Скачать Типовой проект 903-1-224.86 Альбом 9.3. Котельная. Водопровод и канализация. Тепловые сетиДата актуализации: 01.01.2021
|
| Обозначение: | Типовой проект 903-1-224.86 |
| Обозначение англ: | 903-1-224.86 |
| Статус: | действует |
| Название рус.: | Альбом 9.3. Котельная. Водопровод и канализация. Тепловые сети |
| Дата добавления в базу: | 01.09.2013 |
| Дата актуализации: | 01.01.2021 |
| Дата введения: | 20.05.1986 |
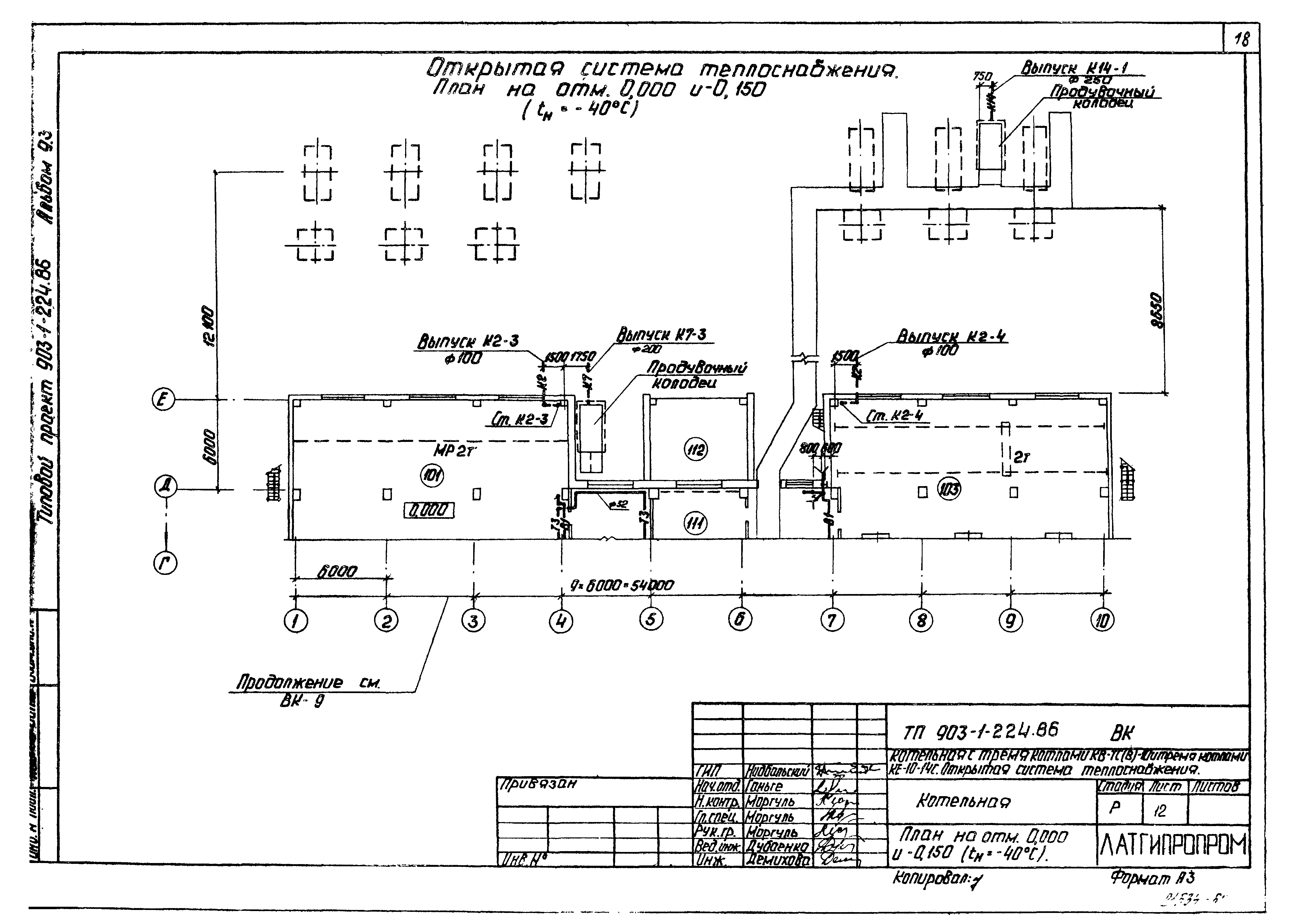
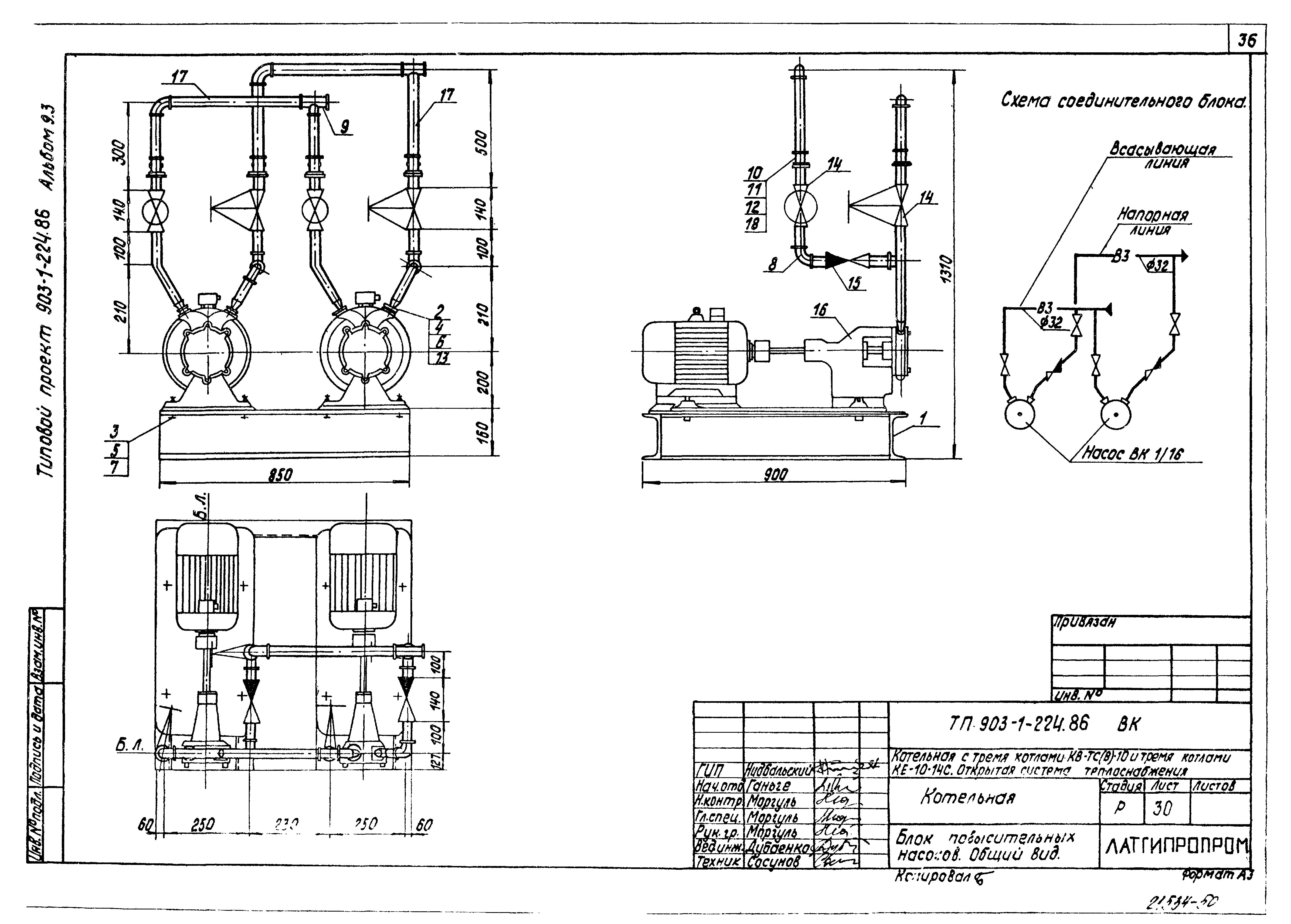
| Оглавление: | ТП 903-1-224.86-ВК Внутренние водопровод и канализация ВК ТП 903-1-224.86-ВК-1 Общие данные (начало) ТП 903-1-224.86-ВК-2 Общие данные (продолжение) ТП 903-1-224.86-ВК-3 Общие данные (продолжение) ТП 903-1-224.86-ВК-4 Общие данные (продолжение) ТП 903-1-224.86-ВК-5 Общие данные (продолжение) ТП 903-1-224.86-ВК-6 Общие данные (продолжение) ТП 903-1-224.86-ВК-7 Общие данные (продолжение) ТП 903-1-224.86-ВК-8 Общие данные (окончание) ТП 903-1-224.86-ВК-9 План на отм. 0.000 ТП 903-1-224.86-ВК-10 План на отм. 3.600 ТП 903-1-224.86-ВК-11 План на отм. 0.000 и -0.150 (tн=-20º;-30ºС) ТП 903-1-224.86-ВК-12 План на отм. 0.000 и -0.150 (tн=-40ºС) ТП 903-1-224.86-ВК-13 План на отм. 0.000 и -0.150 (tн=-20º;-30ºС) ТП 903-1-224.86-ВК-14 План на отм. 0.000 и -0.150 (tн=-40ºС) ТП 903-1-224.86-ВК-15 Фрагмент 1;5 ТП 903-1-224.86-ВК-16 Фрагмент 3;4 ТП 903-1-224.86-ВК-17 Планы на отм. 10.800;15.000;18.600 между осями 4-6 и А-Б ТП 903-1-224.86-ВК-18 План кровли (tн=-20ºС;-30ºС и tн=-40ºС) ТП 903-1-224.86-ВК-19 Схема системы В1 ТП 903-1-224.86-ВК-20 Схема системы В1 ТП 903-1-224.86-ВК-21 Схема системы В1 ТП 903-1-224.86-ВК-22 Схемы систем В1,В3 ТП 903-1-224.86-ВК-23 Схема системы Т3 ТП 903-1-224.86-ВК-24 Схема системы К1 ТП 903-1-224.86-ВК-25 Схемы систем К4,К7 ТП 903-1-224.86-ВК-26 Схемы систем К2,К14 ТП 903-1-224.86-ВК-27 Установка системы 1В1 ТП 903-1-224.86-ВК-28 Установки систем 1В3;1А1. Фрагмент б ТП 903-1-224.86-ВК-29 Установка систем 1В3;1А1. Разрез 1-1 ТП 903-1-224.86-ВК-30 Блок повысительных насосов. Общий вид ТП 903-1-224.86-ВК-31 Блок повысительных насосов. Спецификация ТП 903-1-224.86-ВК-32 Рама под блок повысительных насосов ТП 903-1-224.86-ТС2 Тепловые сети ТС2 ТП 903-1-224.86-ТС2-1 Общие данные (начало) ТП 903-1-224.86-ТС2-2 Общие данные (окончание) ТП 903-1-224.86-ТС2-3 Тепловой пункт. Разрез 1-1 ТП 903-1-224.86-ТС2-4 Тепловой пункт. План ТП 903-1-224.86-ТС2-5 Тепловой пункт. Разрез 1-1 ТП 903-1-224.86-ТС2-6 Тепловой пункт. План ТП 903-1-224.86-ТС2-7 Тепловой пункт. Подключение трубопроводов в котельной. План ТП 903-1-224.86-ТС2-8 Тепловой пункт. Подключение трубопроводов в котельной. Разрез А-А;1-1 |
| Разработан: | Латгипропром |
| Утверждён: | 20.05.1986 Госстрой СССР (Государственный комитет Совета Министров СССР по делам строительства) (USSR Gosstroy А4-29) |
| Заменяет собой: |
|















































