Скачать Типовой проект 416-5-30.84 Альбом I. Общая пояснительная записка. Архитектурные решения. Конструкции железобетонные. Конструкции металлические. Строительные изделия. Отопление и вентиляция. Внутренние водопровод и канализация. Электрическое освещение. Связь и сигнализация. Автоматизация отопления и вентиляции. Организация строительстваДата актуализации: 01.01.2021
|
| Обозначение: | Типовой проект 416-5-30.84 |
| Обозначение англ: | 416-5-30.84 |
| Статус: | не действует |
| Название рус.: | Альбом I. Общая пояснительная записка. Архитектурные решения. Конструкции железобетонные. Конструкции металлические. Строительные изделия. Отопление и вентиляция. Внутренние водопровод и канализация. Электрическое освещение. Связь и сигнализация. Автоматизация отопления и вентиляции. Организация строительства |
| Дата добавления в базу: | 01.09.2013 |
| Дата актуализации: | 01.01.2021 |
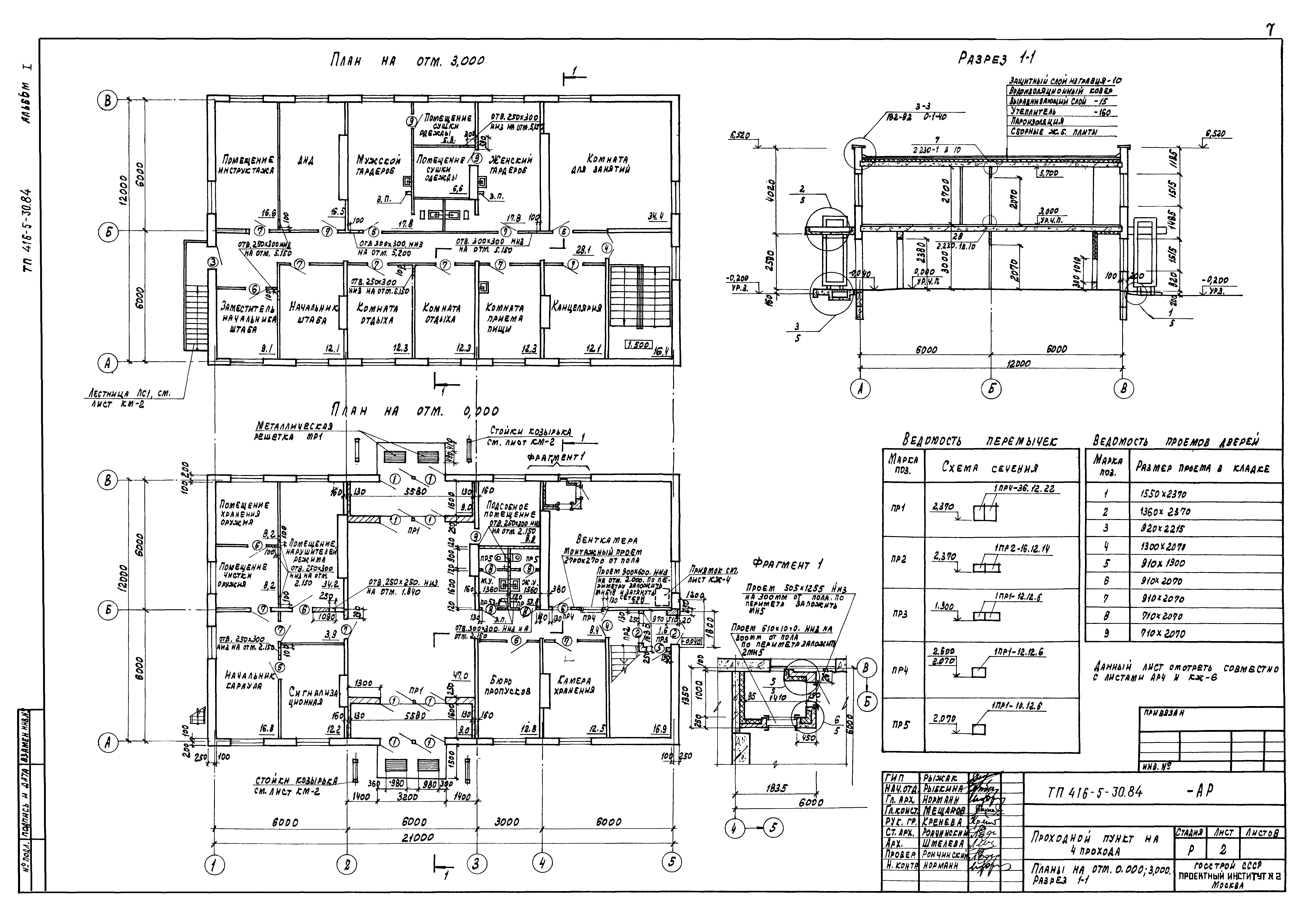
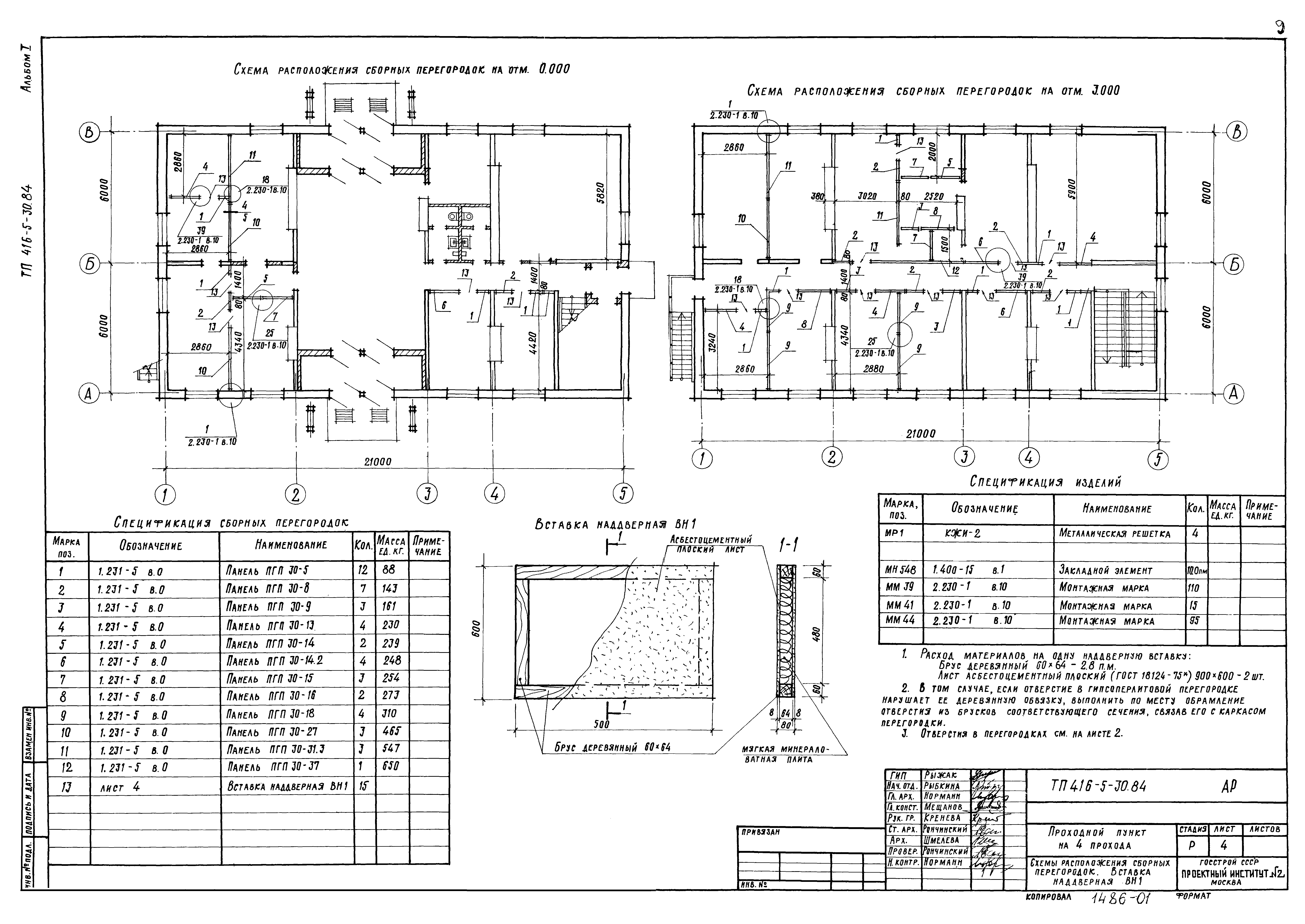
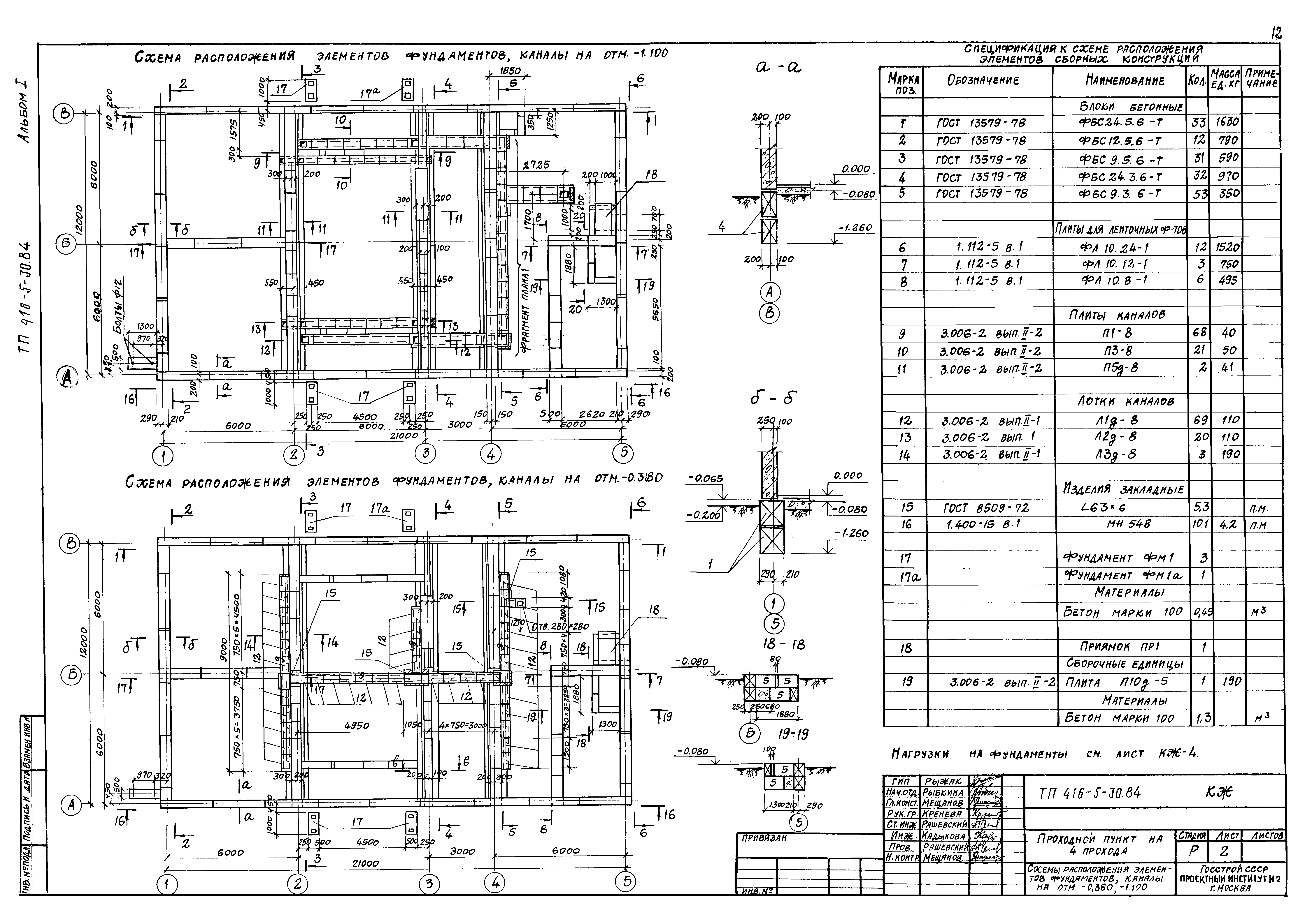
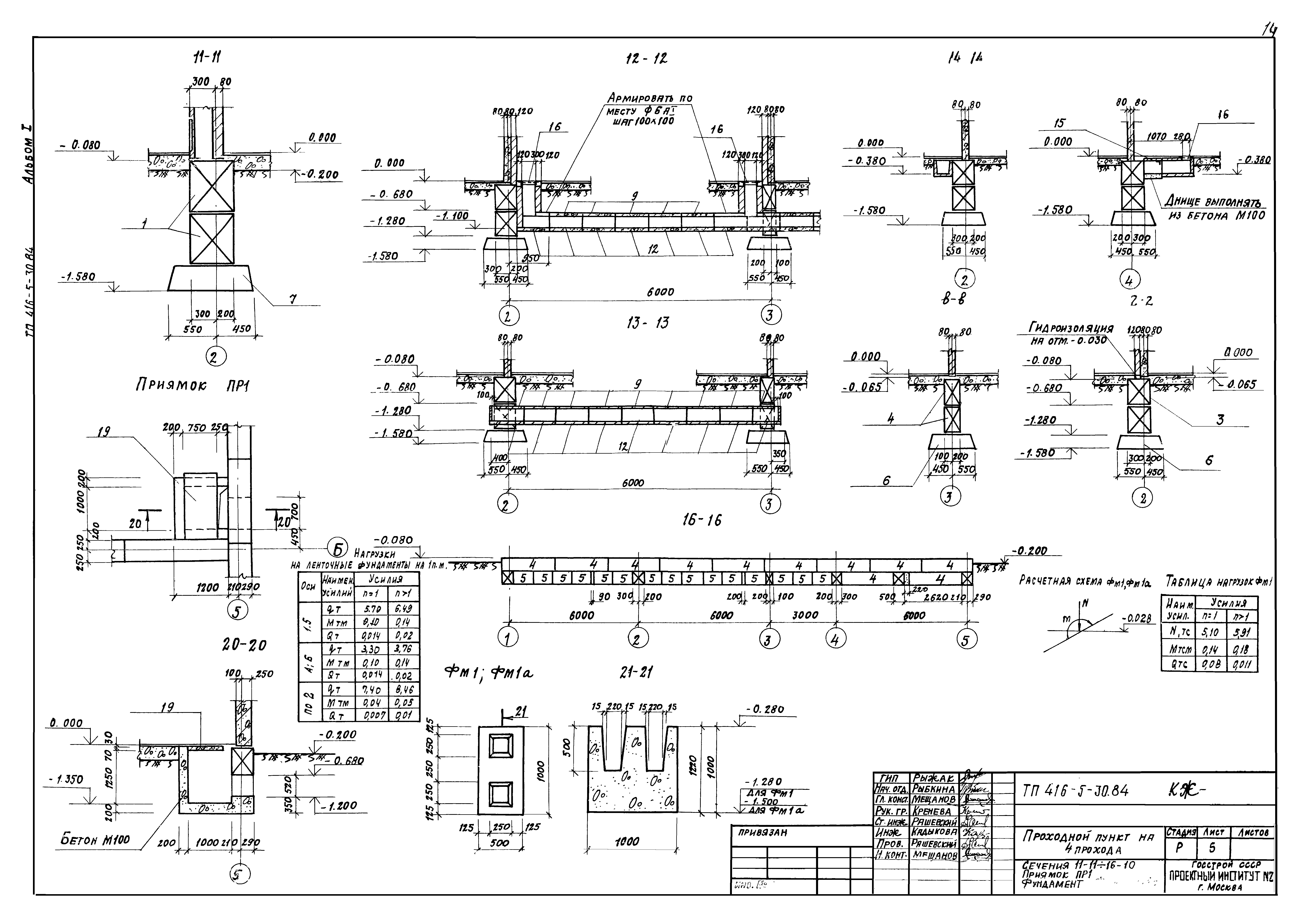
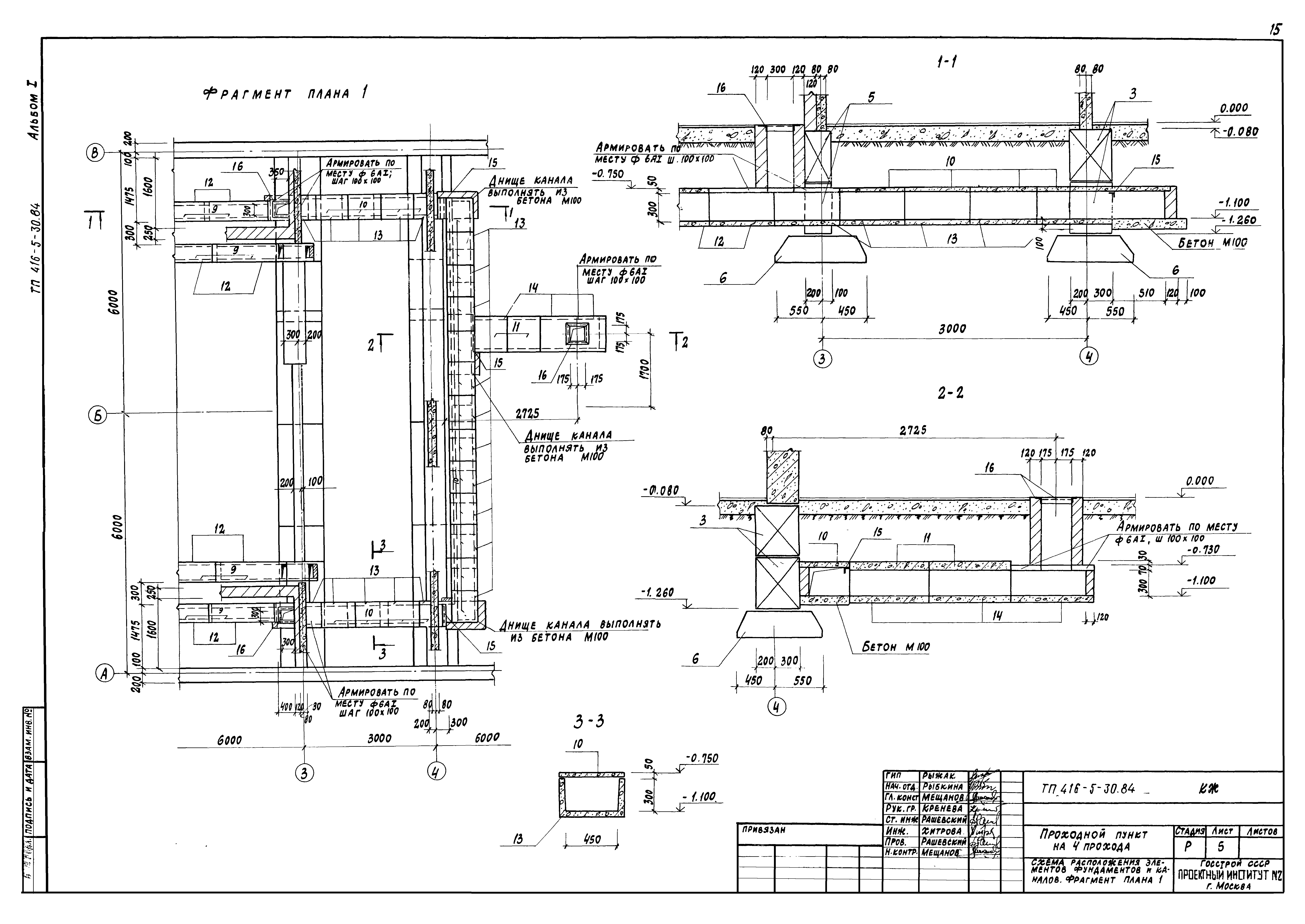
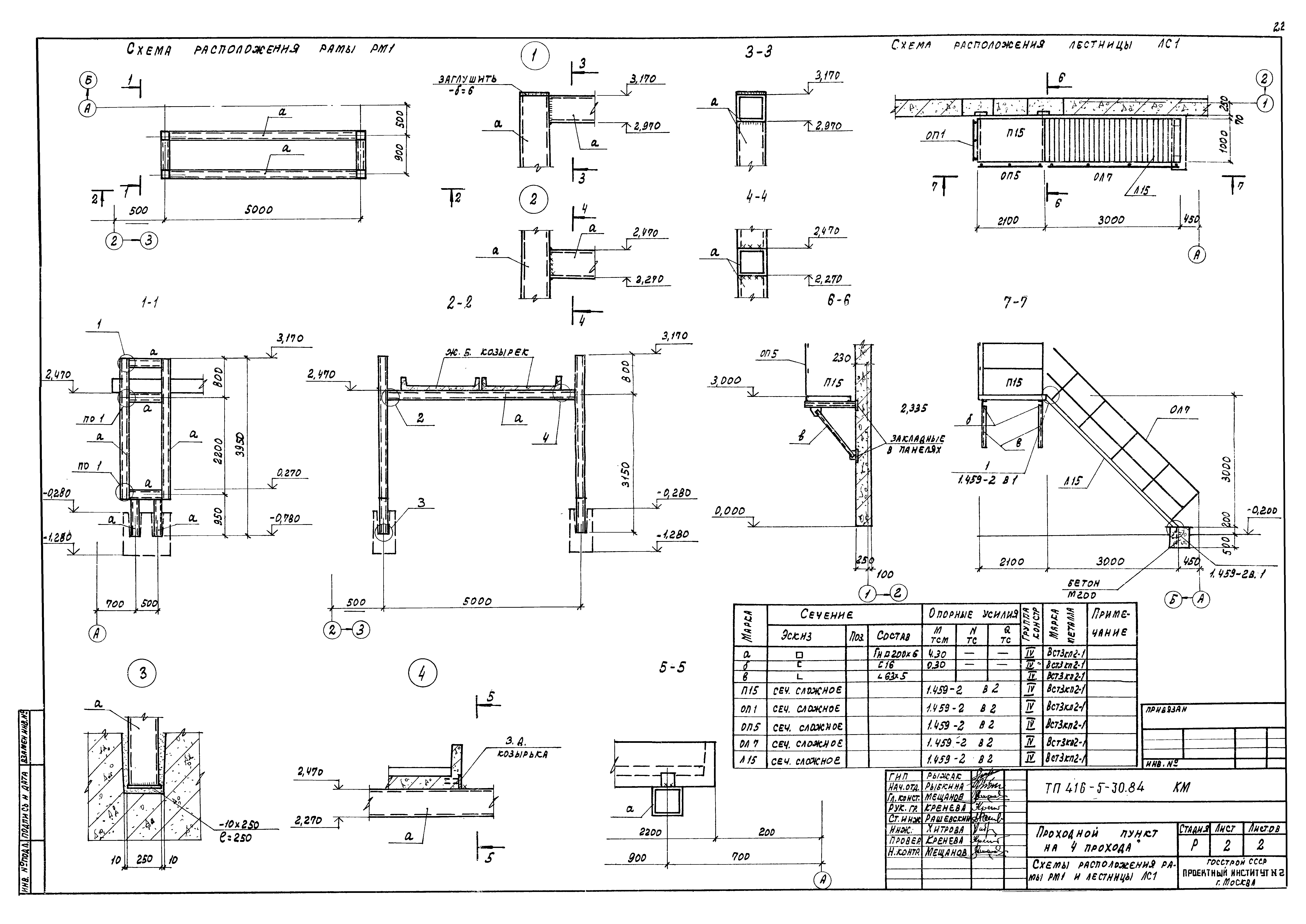
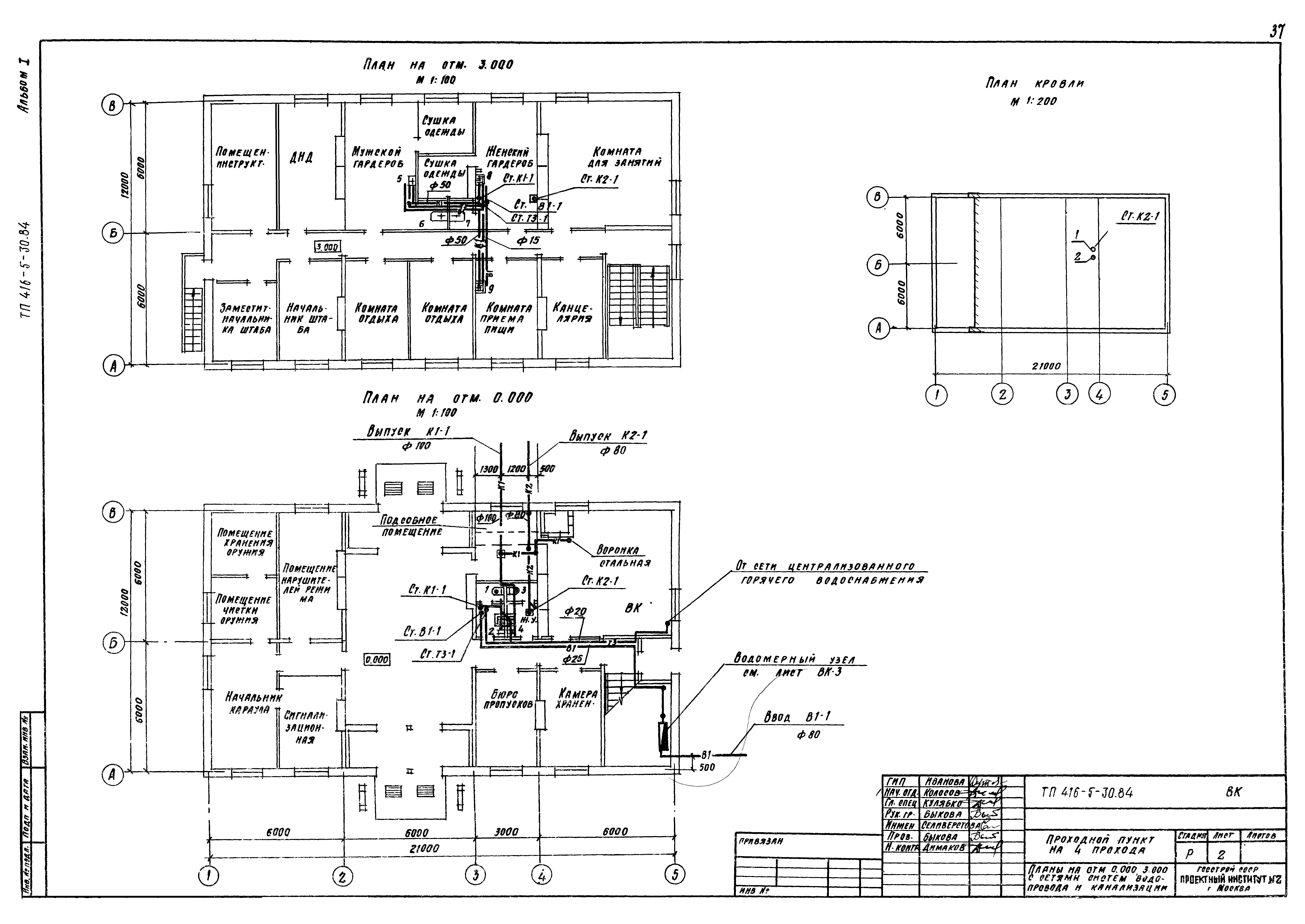
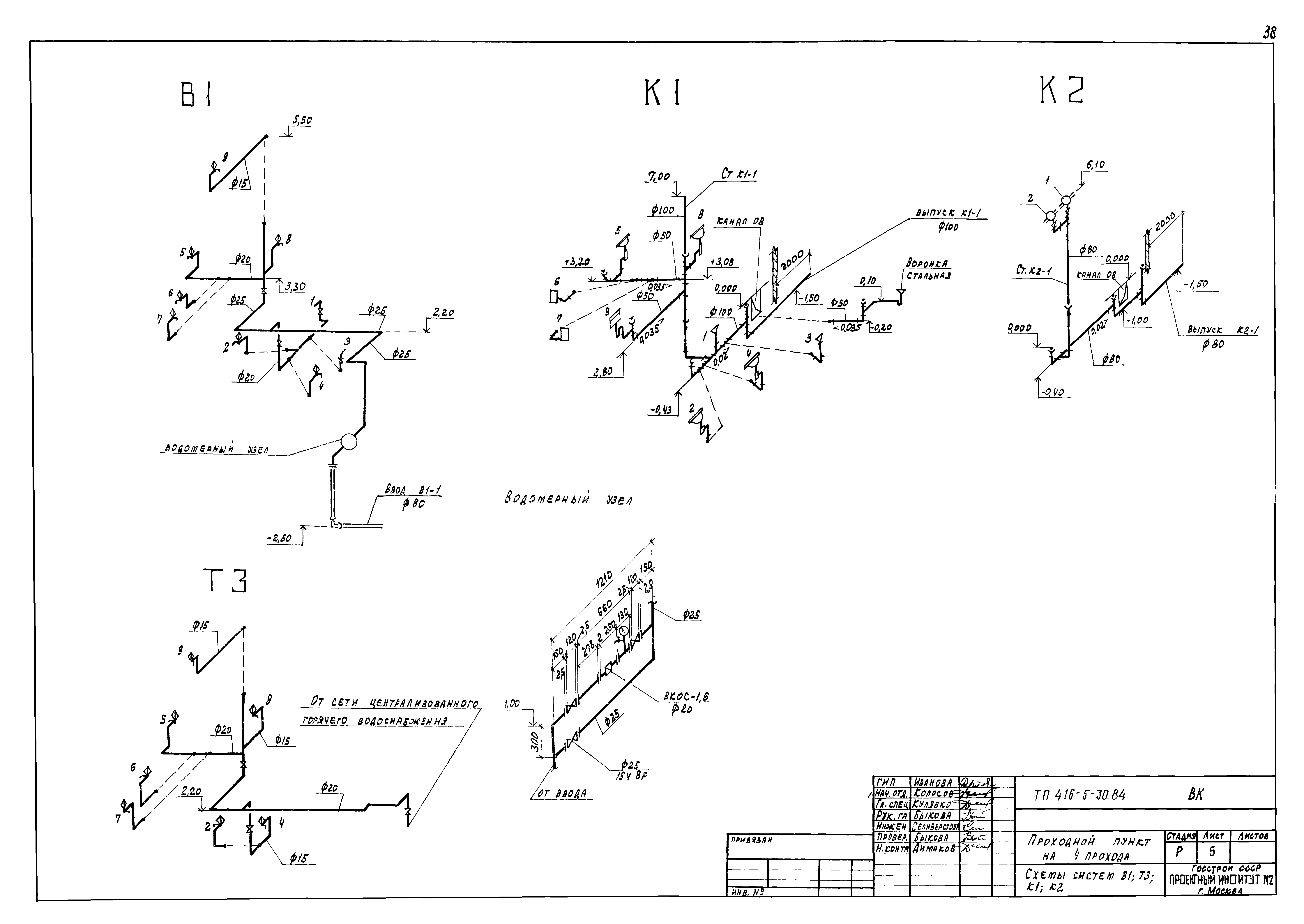
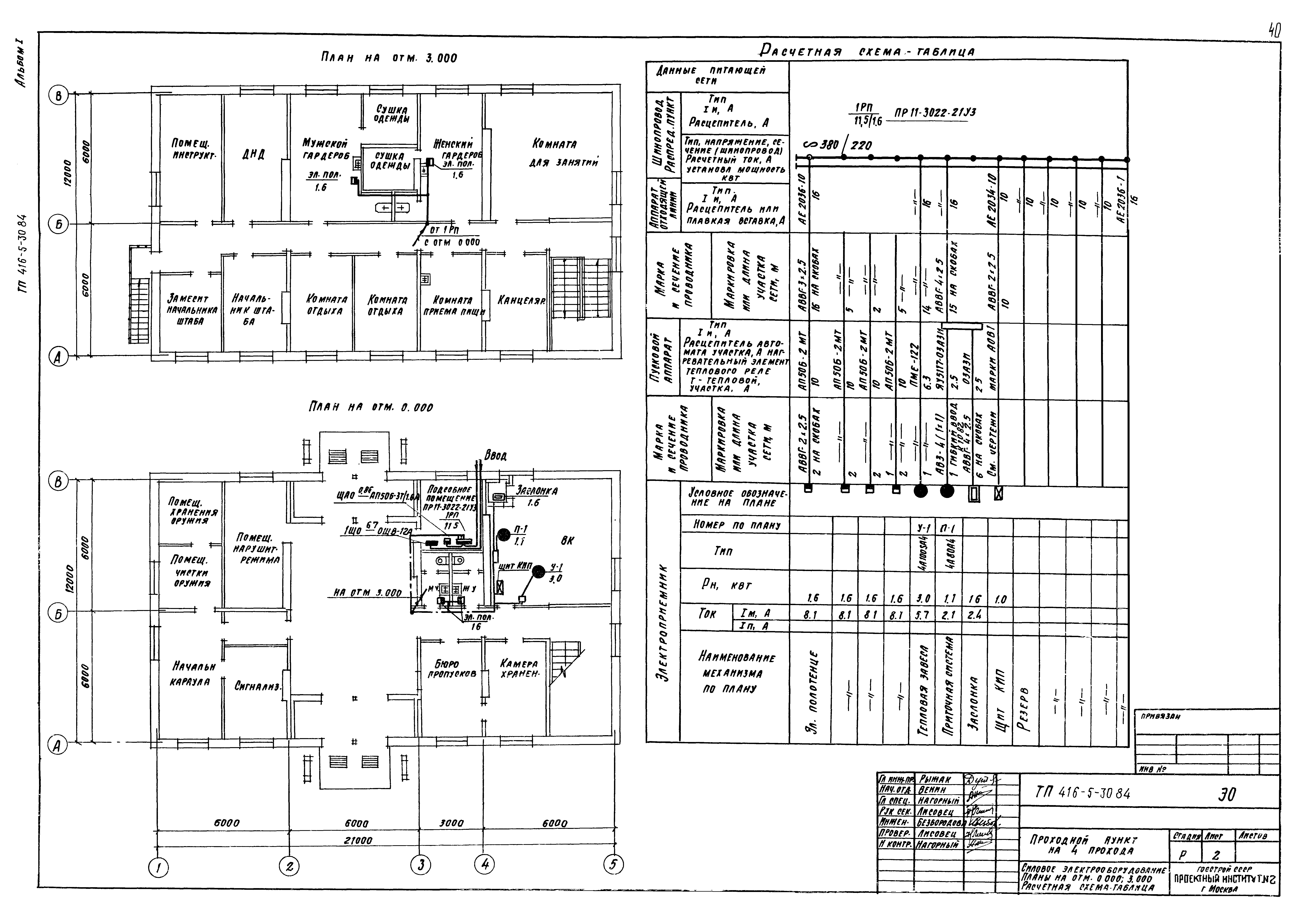
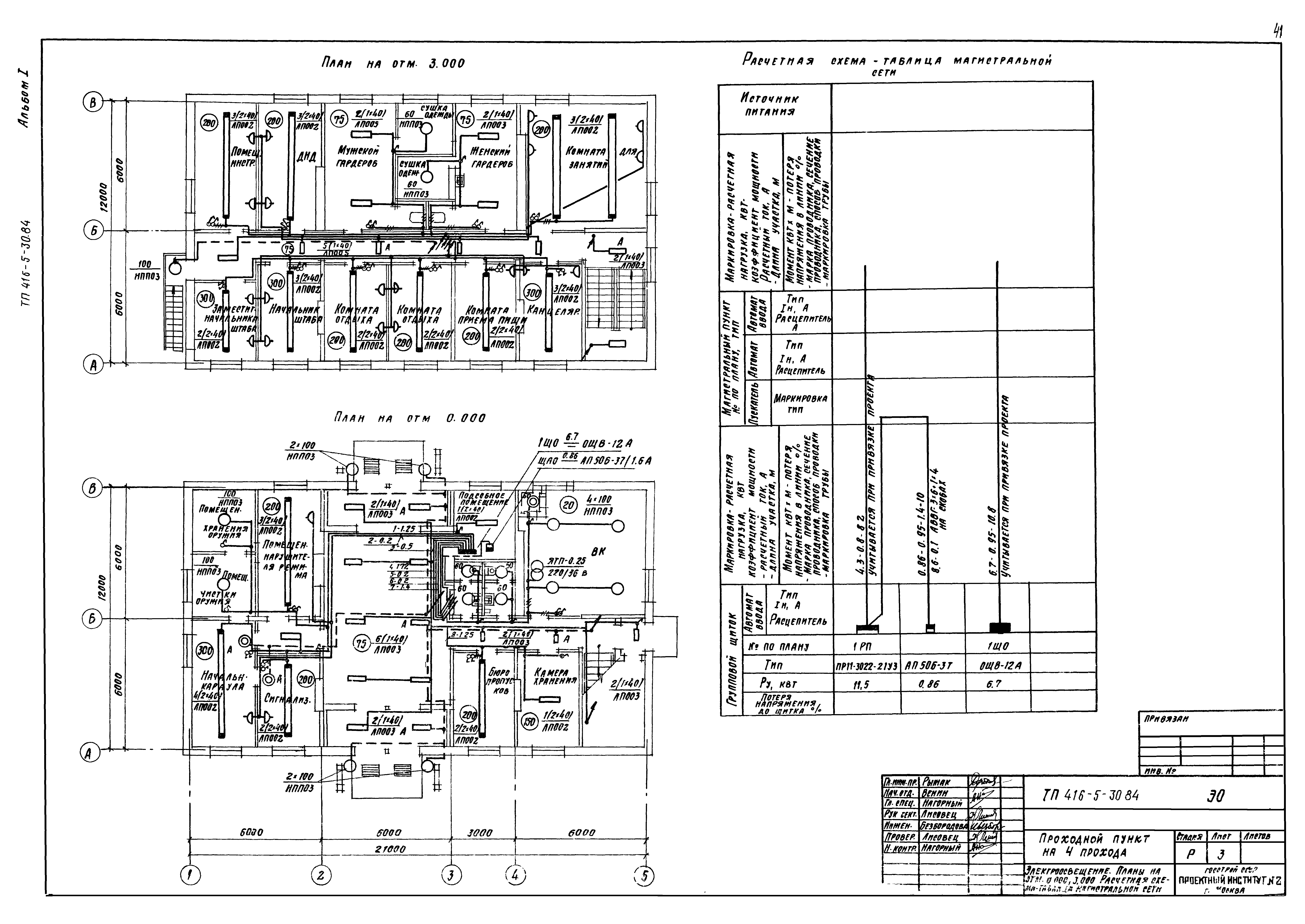
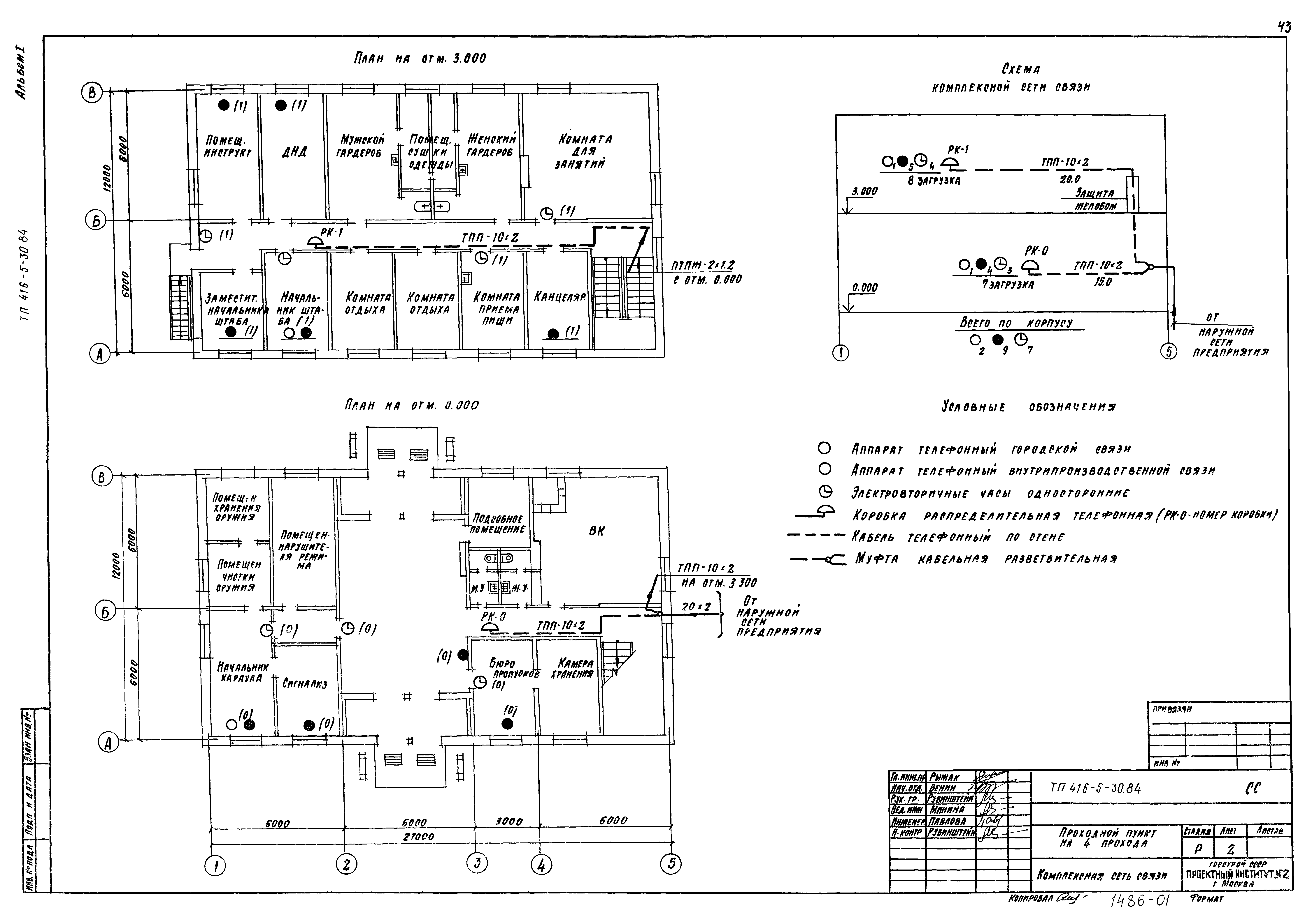
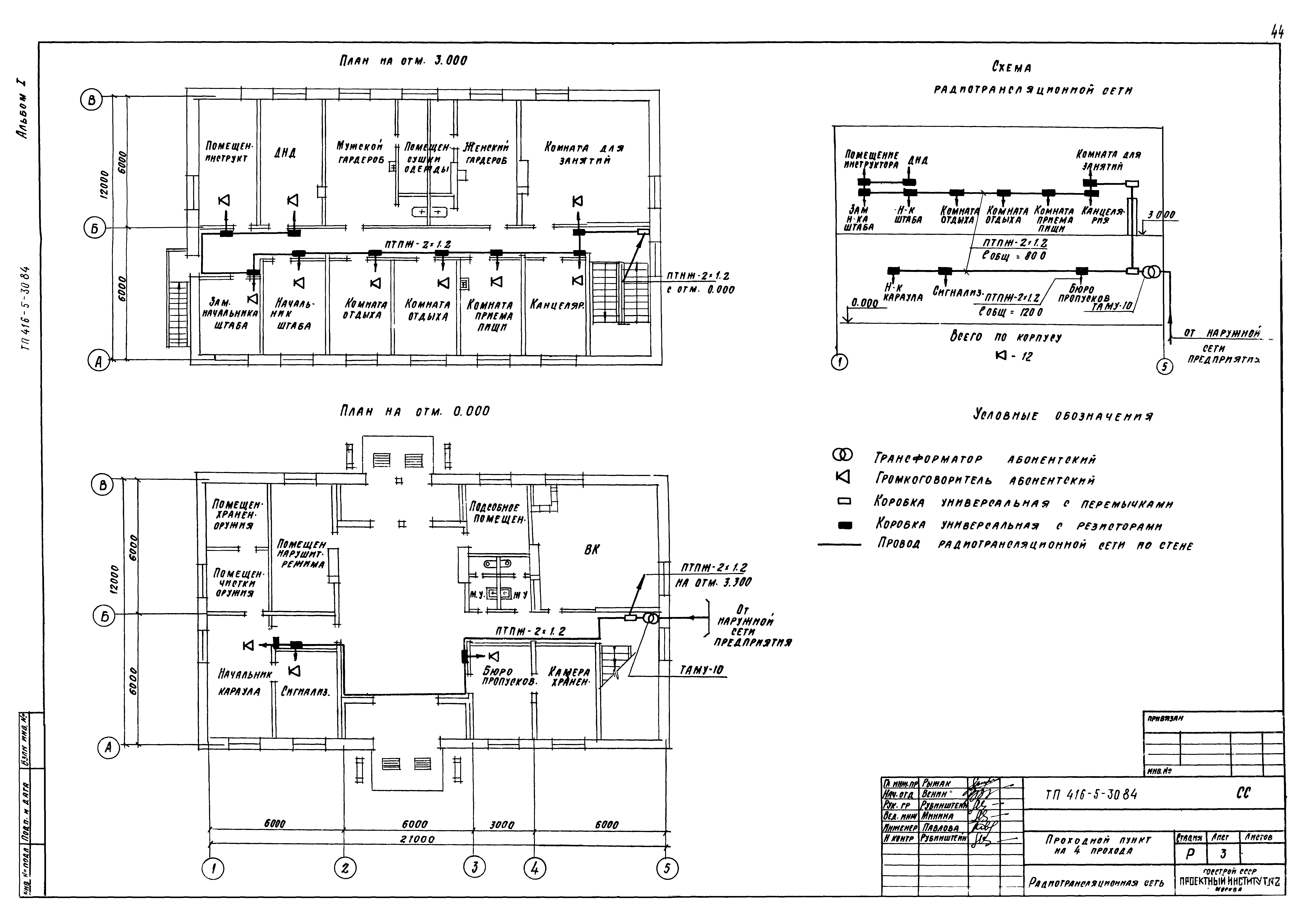
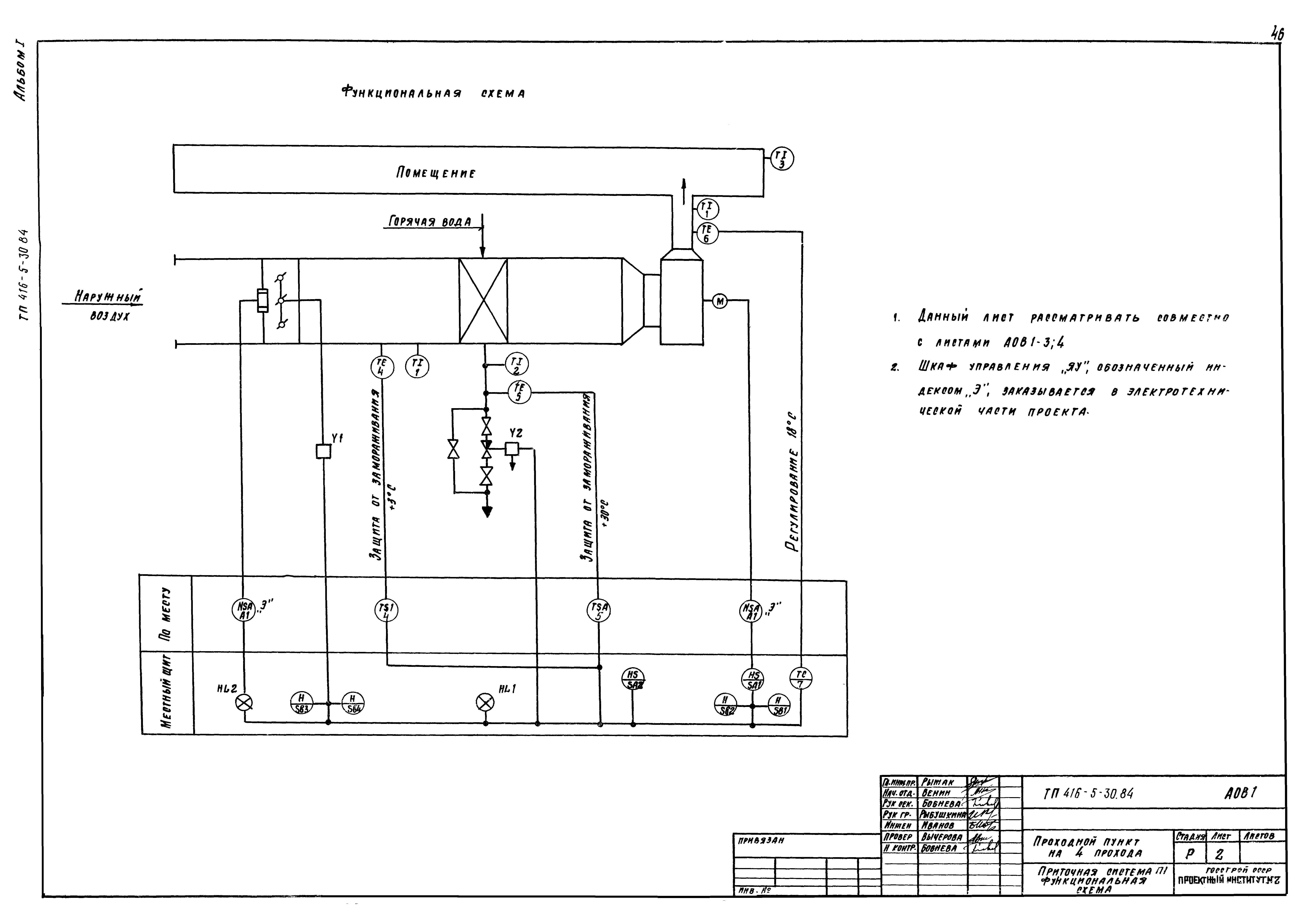
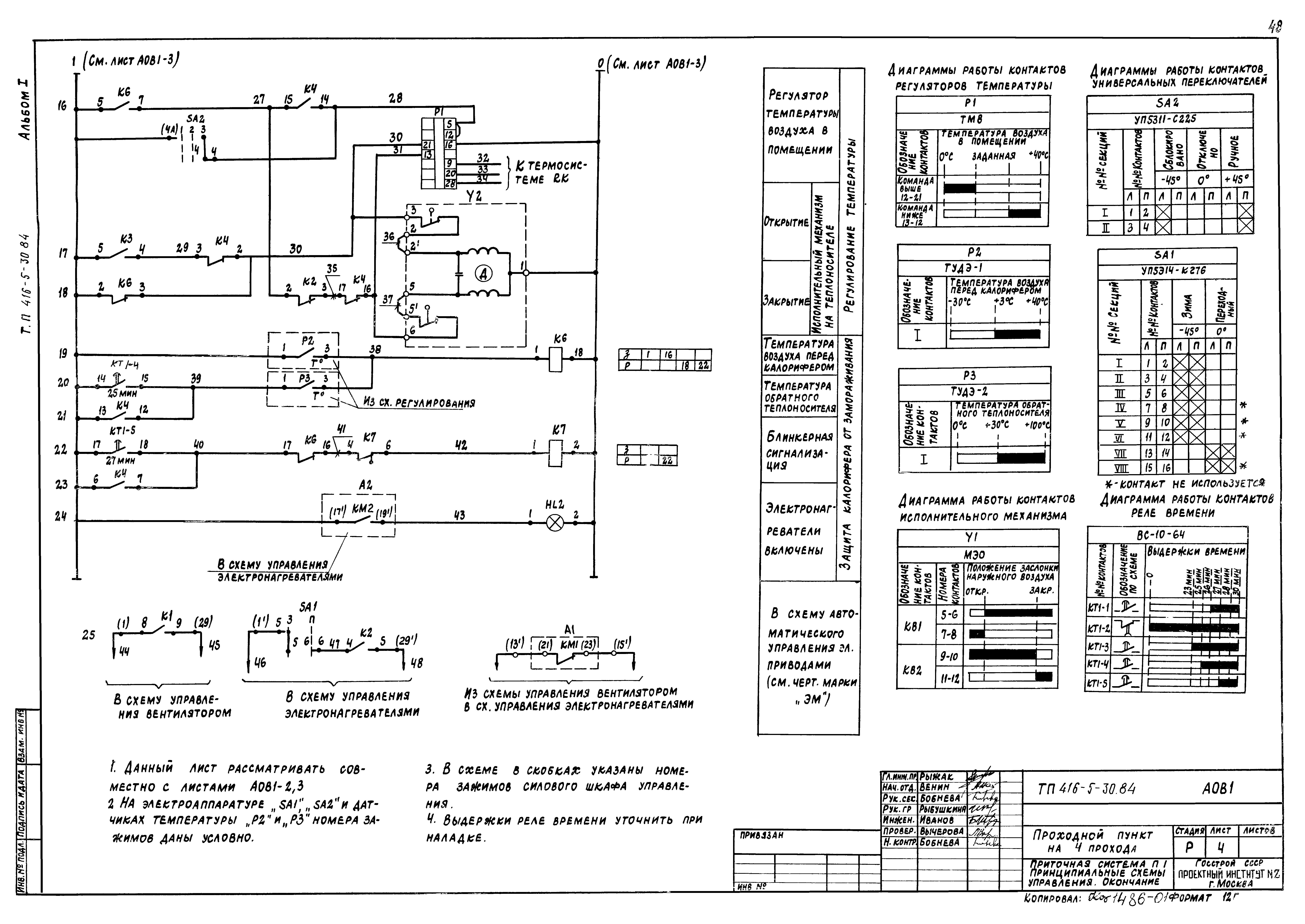
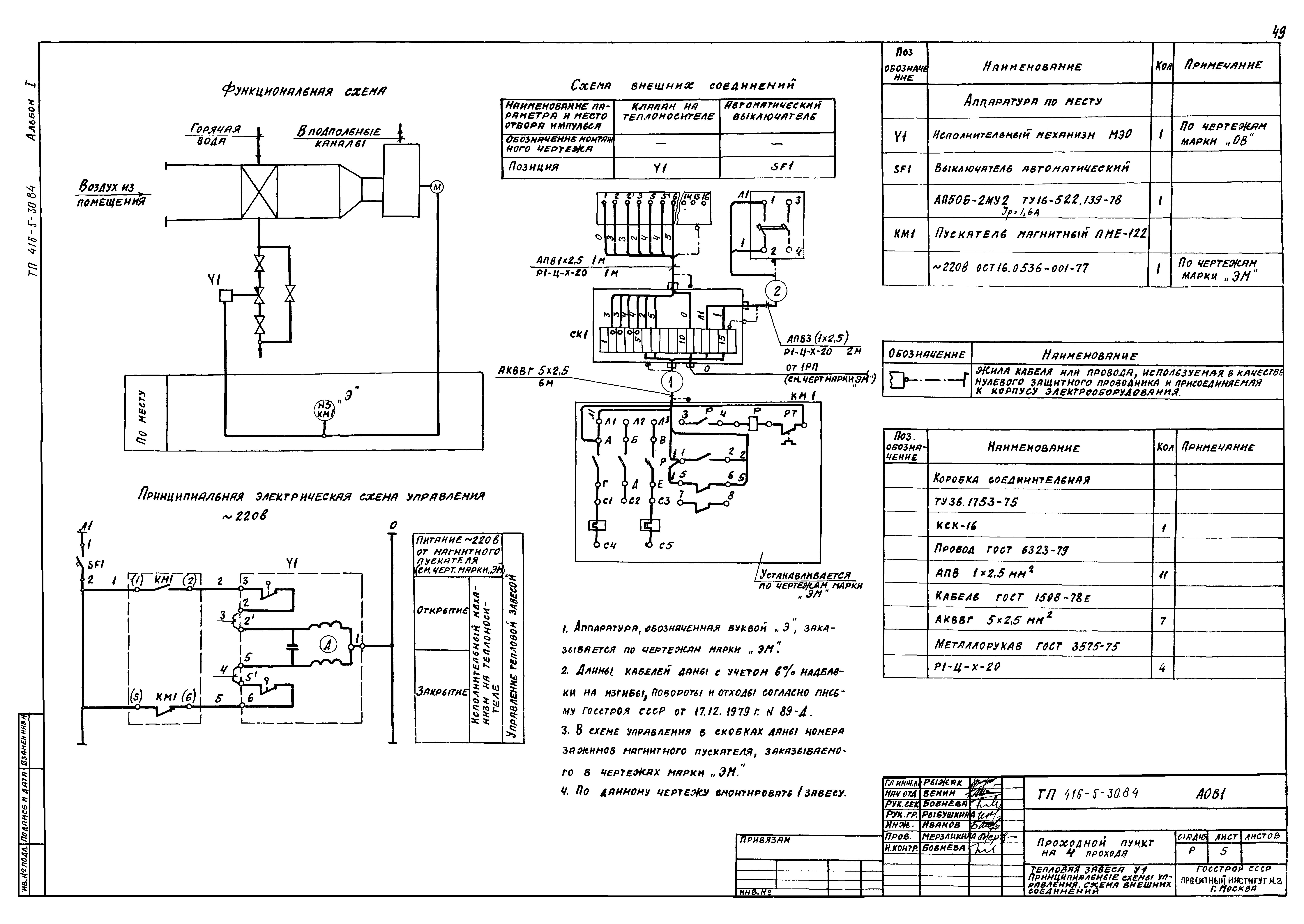
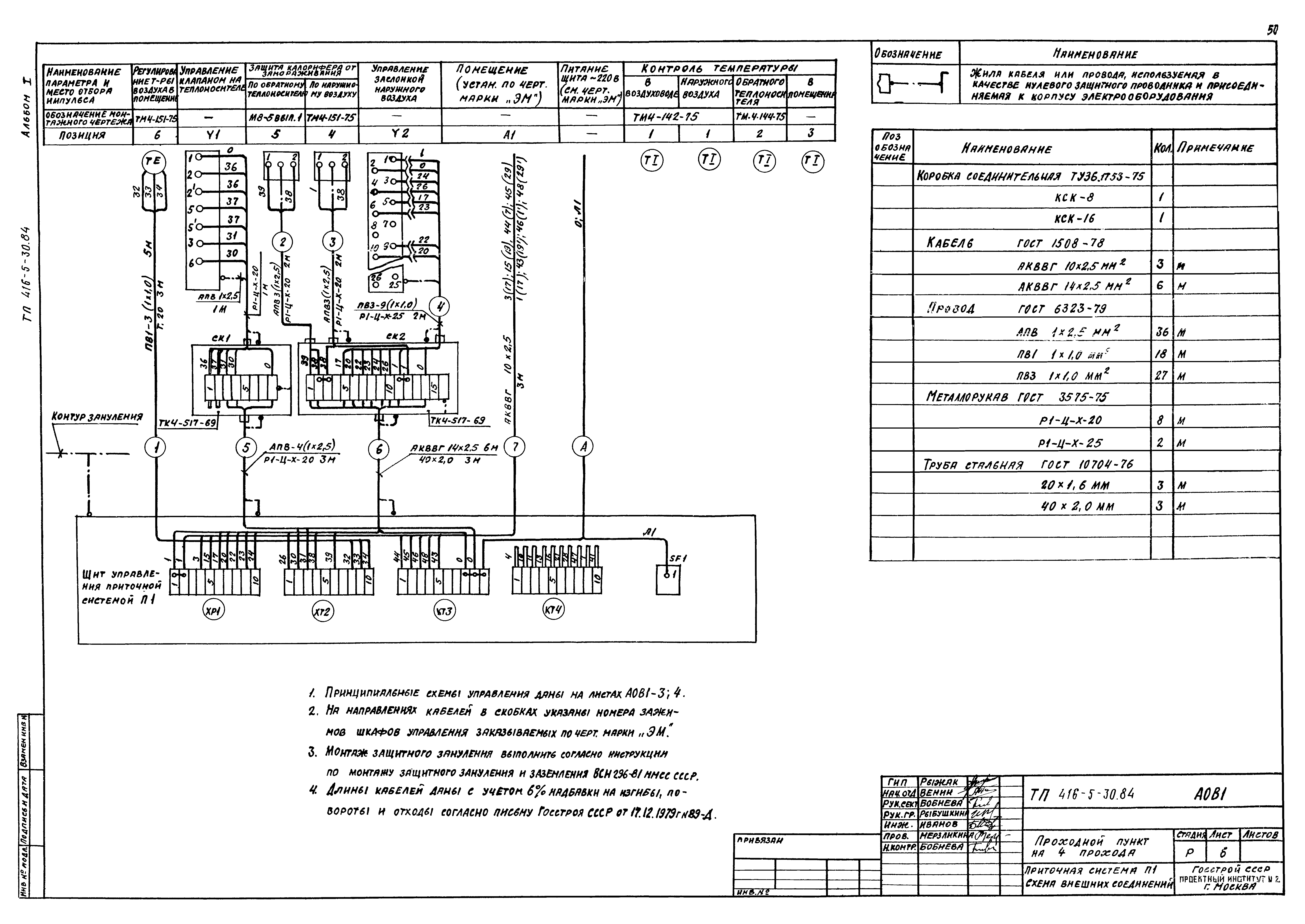
| Оглавление: | ТП 416-5-30.84 Содержание альбома ТП 416-5-30.84-ПЗ Пояснительная записка ТП 416-5-30.84-АР Архитектурные решения ТП 416-5-30.84-АР-1 Общие данные ТП 416-5-30.84-АР-2 Планы на отм. 0.000;3.300. Разрез 1-1 ТП 416-5-30.84-АР-3 Фасады. План кровли ТП 416-5-30.84-АР-4 Схемы расположения сборных перегородок. Вставка наддверная ВН1 ТП 416-5-30.84-АР-5 План полов. Узлы 1-6 ТП 416-5-30.84-КЖ Конструкции железобетонные ТП 416-5-30.84-КЖ-1 Общие данные ТП 416-5-30.84-КЖ-2 Схемы расположения фундаментов. Каналы на отм. -0.380;-1.100 ТП 416-5-30.84-КЖ-3 Сечения 1-1÷10-10,17-17 ТП 416-5-30.84-КЖ-4 Сечения 11-11÷16-16. Приямок ПР1. Фундаменты ФМ1;ФМ1а ТП 416-5-30.84-КЖ-5 Схема расположения элементов фундаментов и каналов. Фрагмент плана 1 ТП 416-5-30.84-КЖ-6 Схема расположения панелей внутренних стен на отм. 0.000;3.300 ТП 416-5-30.84-КЖ-7 Схема расположения элементов лестницы ТП 416-5-30.84-КЖ-8 Схема расположения элементов перекрытия, покрытия и фризовых камней ТП 416-5-30.84-КЖ-9 Фрагмент плана 2 ТП 416-5-30.84-КЖ-10 Схемы расположения наружных стеновых панелей ТП 416-5-30.84-КМ Конструкции металлические ТП 416-5-30.84-КМ-1 Общие данные ТП 416-5-30.84-КМ-2 Схемы расположения рамы РМ1 и лестницы ЛС1 ТП 416-5-30.84-КЖИ Строительные изделия ТП 416-5-30.84-КЖИ-ТТ1 Технические требования к изготовлению сборных железобетонных изделий ТП 416-5-30.84-КЖИ-ТТ2 Технические требования к изготовлению арматурных изделий ТП 416-5-30.84-КЖИ-1 Козырек КВ22-2а ТП 416-5-30.84-КЖИ-2 Панели перекрытия ПР6-60-15А,ПР6-60-15Б ТП 416-5-30.84-КЖИ-3 Решетка МР1 ТП 416-5-30.84-КЖИ-4 Панели стеновая 1ПН15.15.3.5-А,ПН8.15.3.5-А ТП 416-5-30.84-КЖИ-5 Панель 1ПНТ30.15.3.5-А ТП 416-5-30.84-КЖИ-5СБ Панель 1ПНТ30.15.3.5-А ТП 416-5-30.84-КЖИ-5.1 Каркас пространственный КП-1 ТП 416-5-30.84-КЖИ-5.1.1 Каркас плоский К-1 ТП 416-5-30.84-ОВ Отопление и вентиляция ТП 416-5-30.84-ОВ-1 Общие данные (начало) ТП 416-5-30.84-ОВ-1 Общие данные (окончание) ТП 416-5-30.84-ОВ-1 Планы систем отопления и вентиляции. Схемы систем отопления ТП 416-5-30.84-ОВ-1 Схемы систем отопления и теплоснабжения установок П1;У1 ТП 416-5-30.84-ОВ-1 Установки систем П1,У1. Тепловой пункт ТП 416-5-30.84-ОВ-1 Спецификация установок П1,У1 и теплового пункта ТП 416-5-30.84-ОВ-1 Раздаточные короба установки У1 ТП 416-5-30.84-ОВН1 Звено прямого участка асбоцементного воздуховода ТП 416-5-30.84-ОВН2 Лючок с заглушкой для измерения давления воздуха ТП 416-5-30.84-ВК Водопровод и канализация ТП 416-5-30.84-ВК-1 Общие данные ТП 416-5-30.84-ВК-2 Планы на отм. 0.000;3.000 с сетями водопровода и канализации ТП 416-5-30.84-ВК-3 Схемы систем В1,Т3,К1,К2 ТП 416-5-30.84-ЭО Электрическое освещение ТП 416-5-30.84-ЭО-1 Общие данные ТП 416-5-30.84-ЭО-2 Силовое электрооборудование. Планы на отм. 0.000;3.000. Расчетная схема-таблица ТП 416-5-30.84-ЭО-3 Электроосвещение. Планы на отм. 0.000;3.000. Расчетная схема-таблица магистральной сети ТП 416-5-30.84-СС Связь и сигнализация ТП 416-5-30.84-СС-1 Общие данные ТП 416-5-30.84-СС-2 Комплектная сеть связи ТП 416-5-30.84-СС-3 Радиотрансляционная сеть ТП 416-5-30.84-АОВ Автоматизация отопления и вентиляции ТП 416-5-30.84-АОВ1-1 Общие данные ТП 416-5-30.84-АОВ1-2 Приточная система П1. Функциональная схема ТП 416-5-30.84-АОВ1-3 Приточная система П1. Принципиальные схемы управления. Начало ТП 416-5-30.84-АОВ1-4 Приточная система П1. Принципиальные схемы управления. Окончание ТП 416-5-30.84-АОВ1-5 Тепловая завеса У1. Принципиальные схемы управления. Схема внешних соединений ТП 416-5-30.84-АОВ1-6 Приточная система П1. Схема внешних соединений ТП 416-5-30.84-АОВ1-7 План трасс, кабелей и труб ТП 416-5-30.84-ОС Организация строительства ТП 416-5-30.84-ОС-1 Основные положения по организации строительства |
| Разработан: | Проектный институт № 2 Госстроя СССР |
| Утверждён: | 21.02.1984 Госстрой СССР (Государственный комитет Совета Министров СССР по делам строительства) (USSR Gosstroy ВА-11) |





















































