Скачать Серия 1.450-2 Выпуск 0. Указания по применению. Монтажные схемы лестницДата актуализации: 01.01.2021
|
| Обозначение: | Серия 1.450-2 |
| Обозначение англ: | Series 1.450-2 |
| Статус: | не действует |
| Название рус.: | Выпуск 0. Указания по применению. Монтажные схемы лестниц |
| Дата добавления в базу: | 01.09.2013 |
| Дата актуализации: | 01.01.2021 |
| Дата окончания срока действия: | 01.09.1986 |
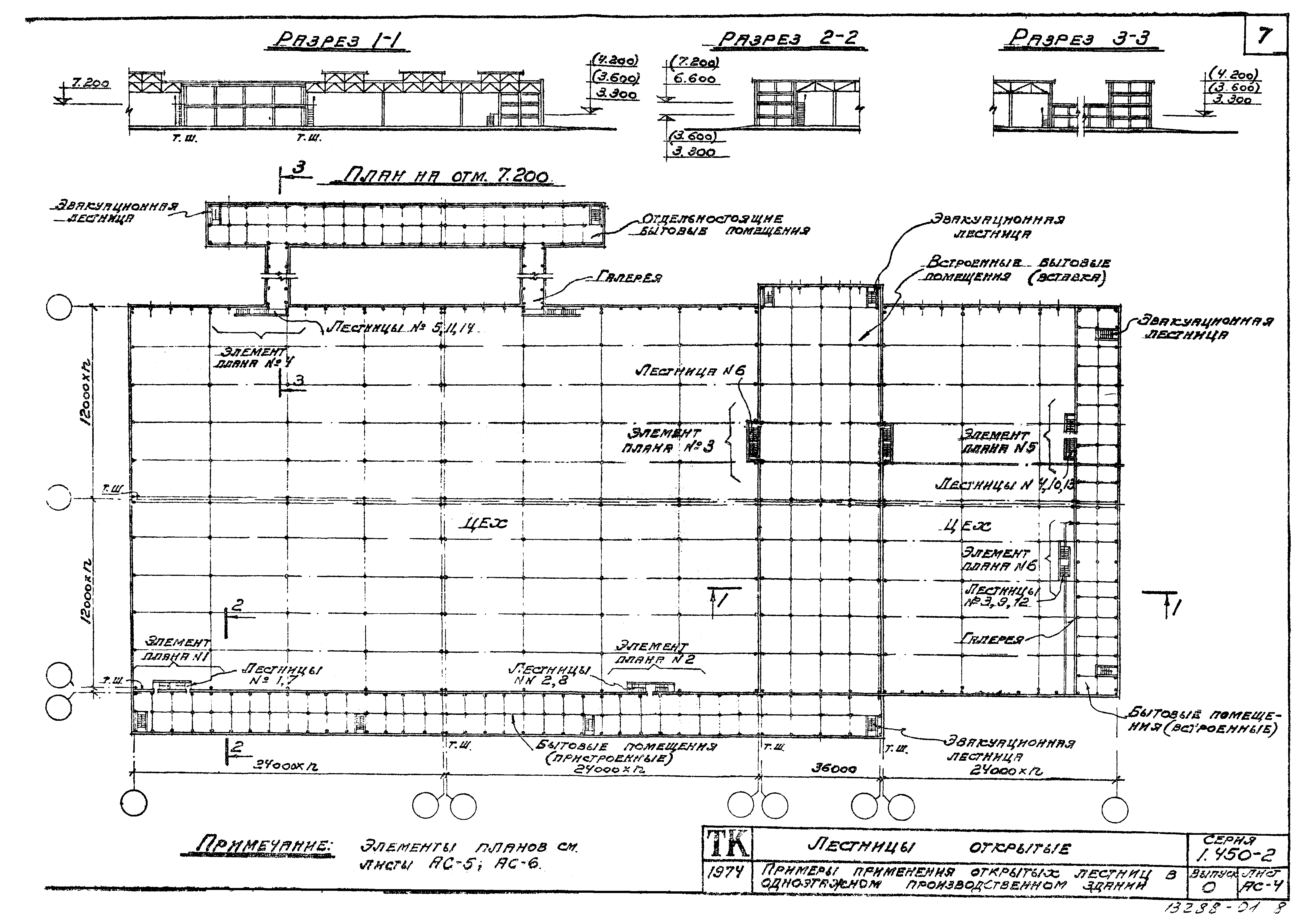
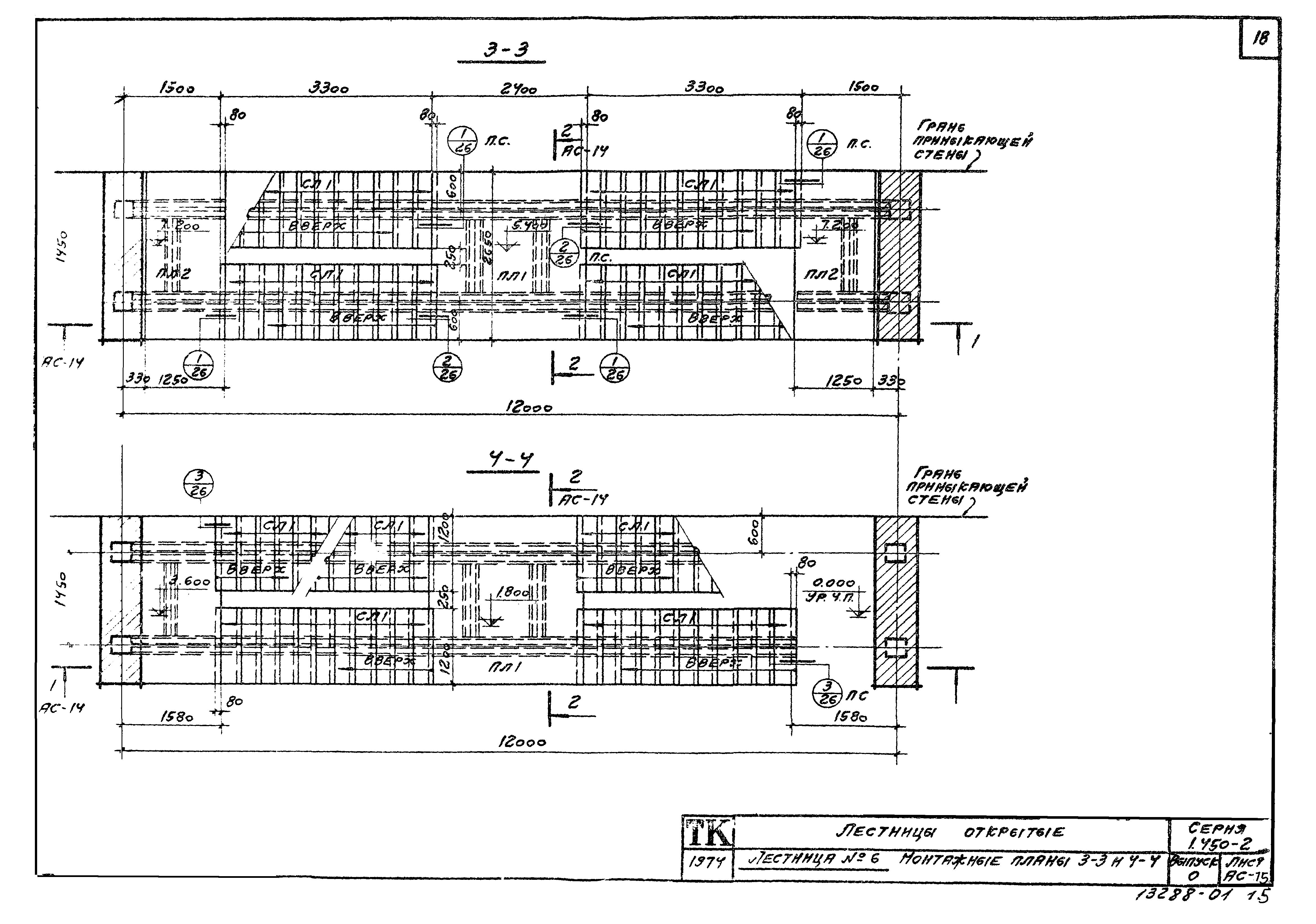
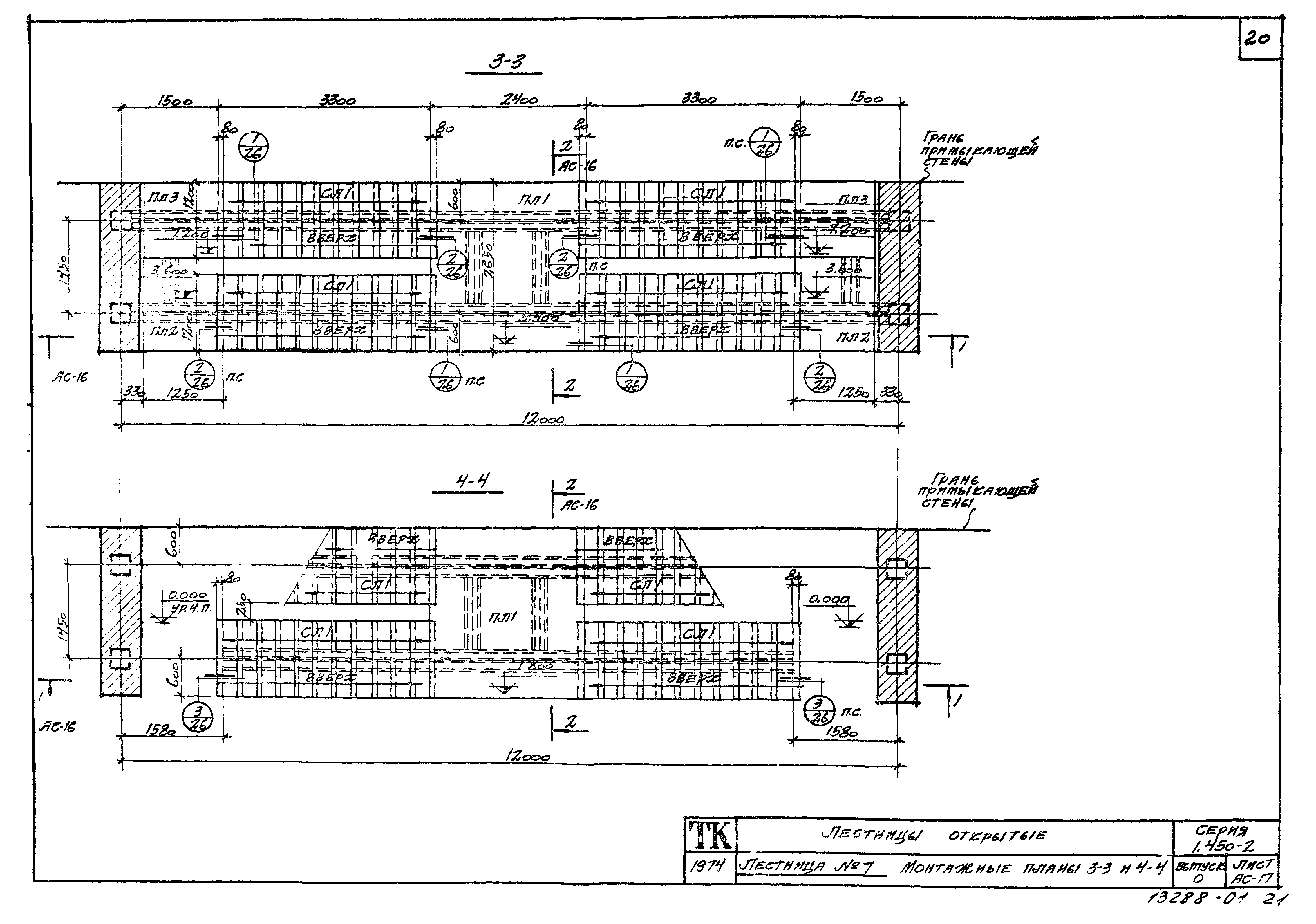
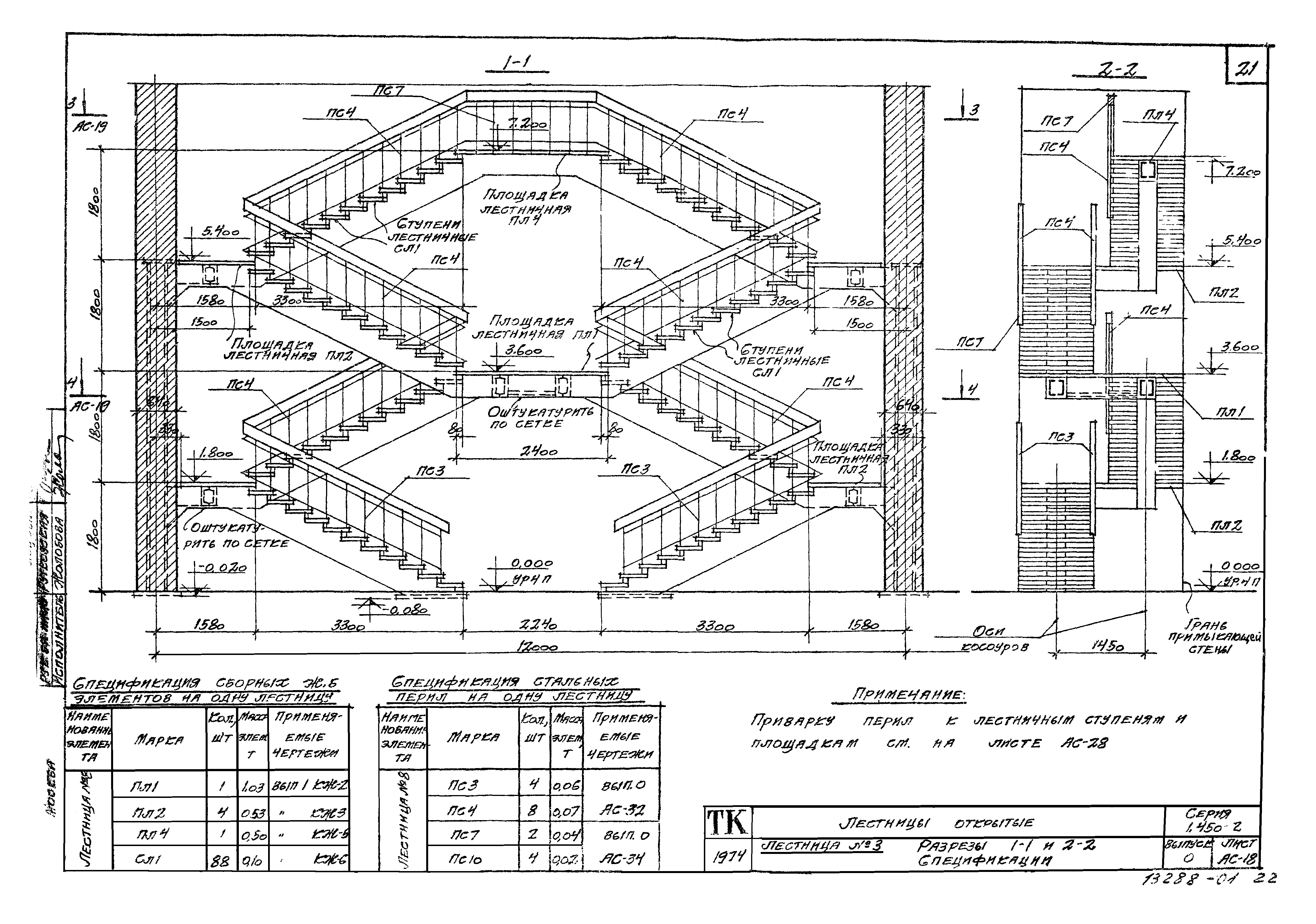
| Оглавление: | 1.450-2 Титульный лист 1.450-2-АС-С Содержание 1.450-2-АС-П Пояснительная записка 1.450-2-АС-1 Номенклатура лестниц (1) 1.450-2-АС-2 Номенклатура лестниц (2) 1.450-2-АС-3 Номенклатура лестниц (3) 1.450-2-АС-4 Примеры применения открытых лестниц в одноэтажном производственном здании 1.450-2-АС-5 Элементы планов №№1,2 и 3 1.450-2-АС-6 Элементы планов №№4,5 и 6 1.450-2-АС-7 Лестница №1. Разрезы 1-1 и 2-2. Спецификация 1.450-2-АС-8 Лестница №1. Монтажные планы 3-3 и 4-4 1.450-2-АС-9 Лестница №2. Разрезы 1-1 и 2-2. Спецификация 1.450-2-АС-10 Лестница №2. Монтажные планы 3-3 и 4-4 1.450-2-АС-11 Лестница №3. Разрезы 1-1 и 2-2. Монтажный план 3-3. Спецификация 1.450-2-АС-12 Лестница №4. Разрезы 1-1 и 2-2. Монтажный план 3-3. Спецификация 1.450-2-АС-13 Лестница №5. Разрезы 1-1 и 2-2. Монтажный план 3-3. Спецификация 1.450-2-АС-14 Лестница №6. Разрезы 1-1 и 2-2. Спецификация 1.450-2-АС-15 Лестница №6. Монтажные планы 3-3 и 4-4 1.450-2-АС-16 Лестница №7. Разрезы 1-1 и 2-2. Спецификация 1.450-2-АС-17 Лестница №7. Монтажные планы 3-3 и 4-4 1.450-2-АС-18 Лестница №8. Разрезы 1-1 и 2-2. Спецификация 1.450-2-АС-19 Лестница №8. Монтажные планы 3-3 и 4-4 1.450-2-АС-20 Лестница №9. Разрезы 1-1 и 2-2. Монтажный план 3-3. Спецификация 1.450-2-АС-21 Лестница №10. Разрезы 1-1 и 2-2. Монтажный план 3-3. Спецификация 1.450-2-АС-22 Лестница №11. Разрезы 1-1 и 2-2. Монтажный план 3-3. Спецификация 1.450-2-АС-23 Лестница №12. Разрезы 1-1 и 2-2. Монтажный план 3-3. Спецификация 1.450-2-АС-24 Лестница №13. Разрезы 1-1 и 2-2. Монтажный план 3-3. Спецификация 1.450-2-АС-25 Лестница №14. Разрезы 1-1 и 2-2. Монтажный план 3-3. Спецификация 1.450-2-АС-26 Монтажные узлы 1,2 и 3 1.450-2-АС-27 Деталь оштукатуривания стальных косоуров 1.450-2-АС-28 Детали ограждений. Примечания 1.450-2-АС-29 Примеры маркировки поручней лестниц 1.450-2-АС-30 Примеры маркировки поручней лестниц. Спецификация деревянных поручней 1.450-2-АС-31 Перила лестничных маршей высотой 1650 мм 1.450-2-АС-32 Перила лестничных маршей высотой 1800 мм 1.450-2-АС-33 Перила лестничных маршей высотой 2100 мм 1.450-2-АС-34 Перила лестничных площадок 1.450-2-АС-35 Спецификация стали на перила |
| Разработан: | Промстройпроект |
| Утверждён: | 20.05.1974 Госстрой СССР (Государственный комитет Совета Министров СССР по делам строительства) (USSR Gosstroy ) |







































