Скачать Типовой проект 902-2-414.86 Альбом II. Технологические, архитектурно-строительные, санитарно-технические решения. Внутренний водопровод и канализация. Нестандартизированное оборудованиеДата актуализации: 01.01.2021
|
| Обозначение: | Типовой проект 902-2-414.86 |
| Обозначение англ: | 902-2-414.86 |
| Статус: | не действует |
| Название рус.: | Альбом II. Технологические, архитектурно-строительные, санитарно-технические решения. Внутренний водопровод и канализация. Нестандартизированное оборудование |
| Дата добавления в базу: | 01.09.2013 |
| Дата актуализации: | 01.01.2021 |
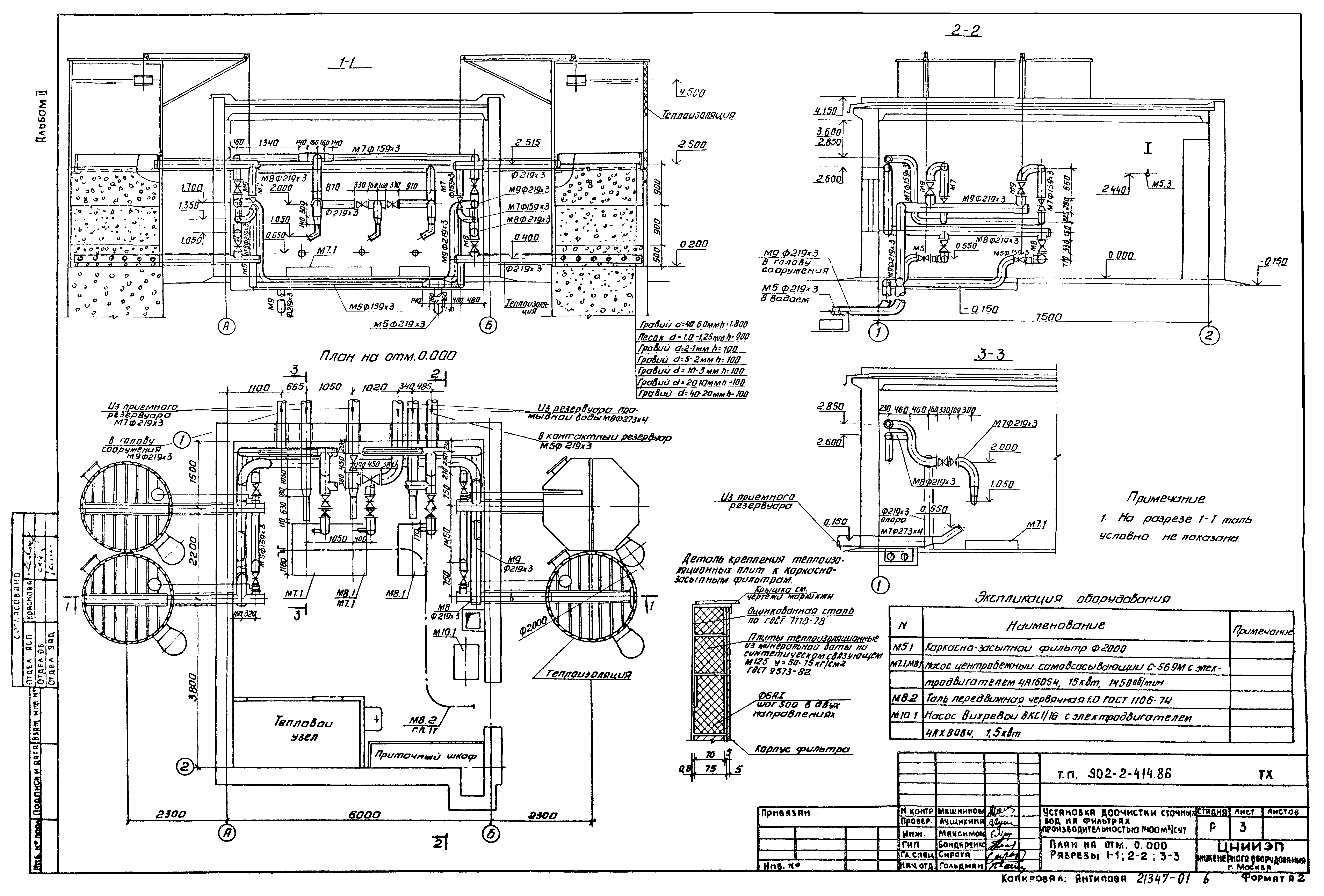
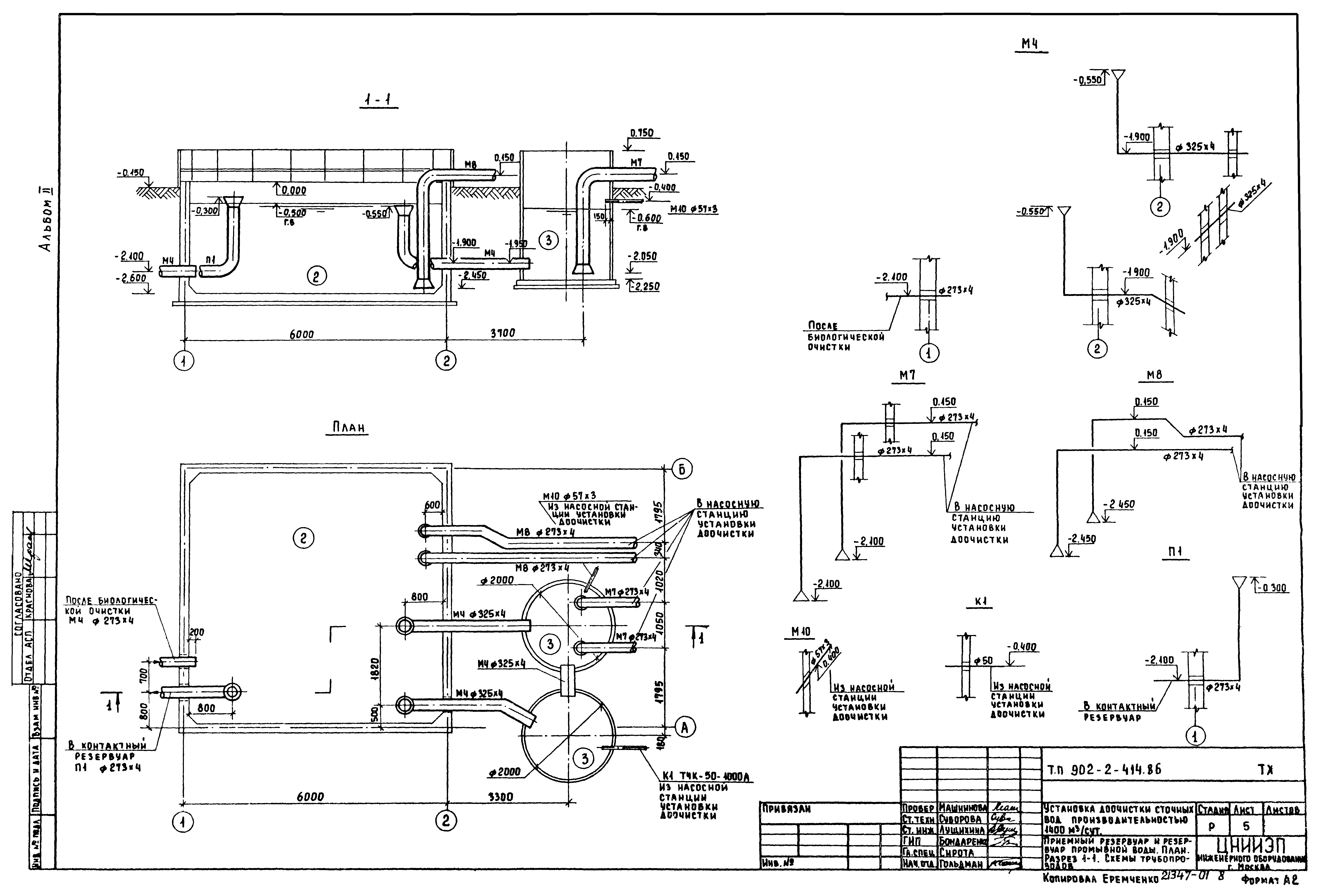
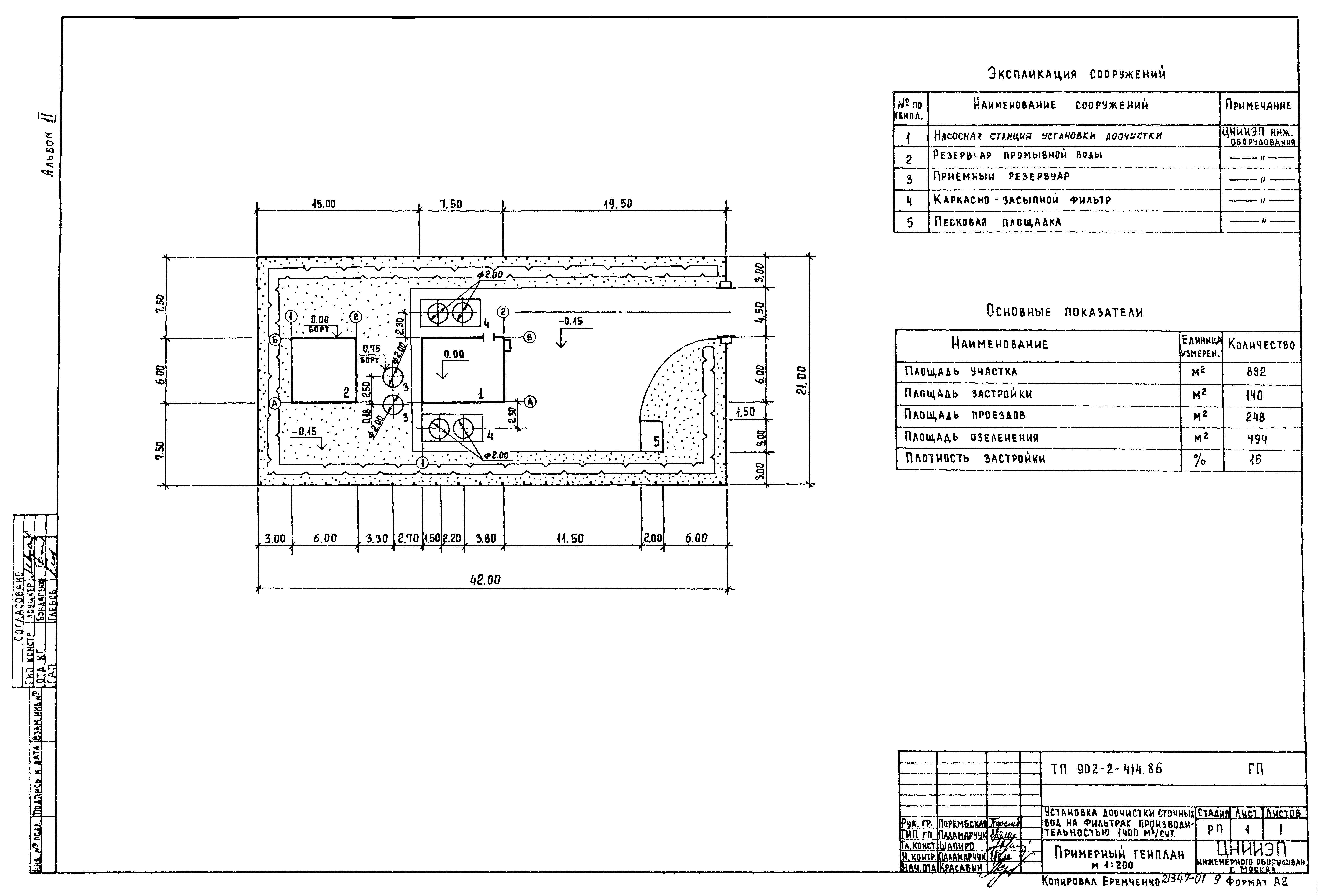
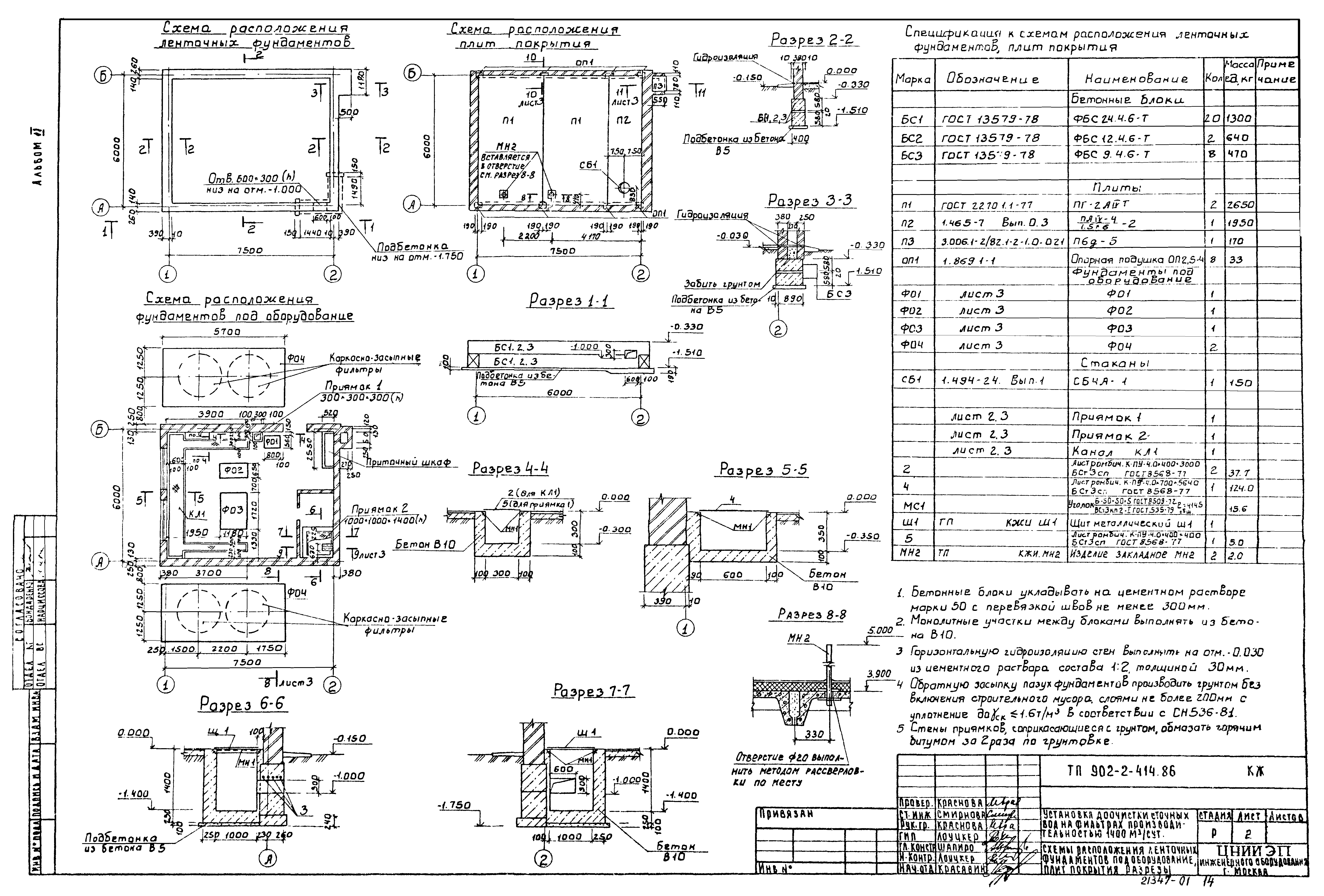
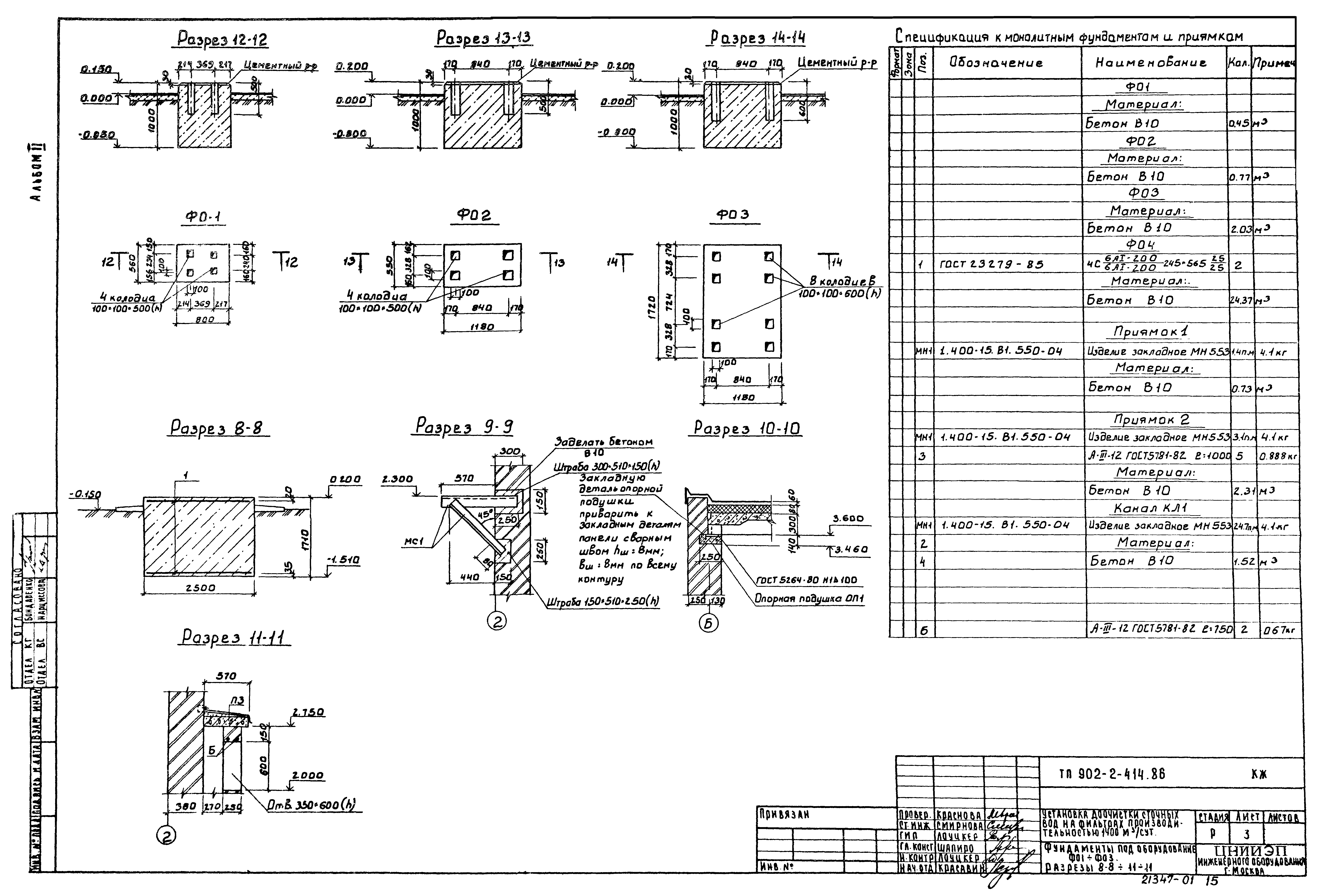
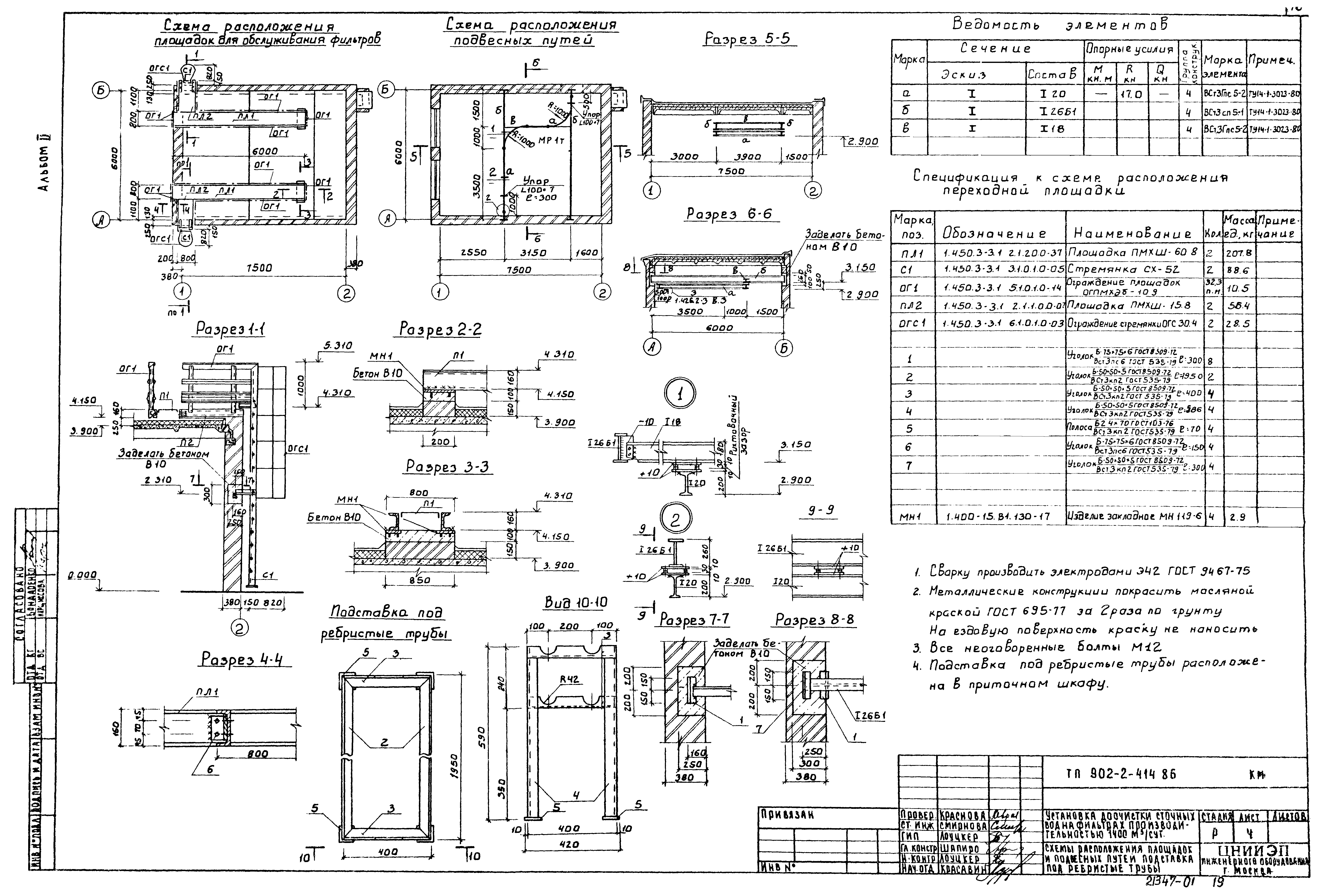
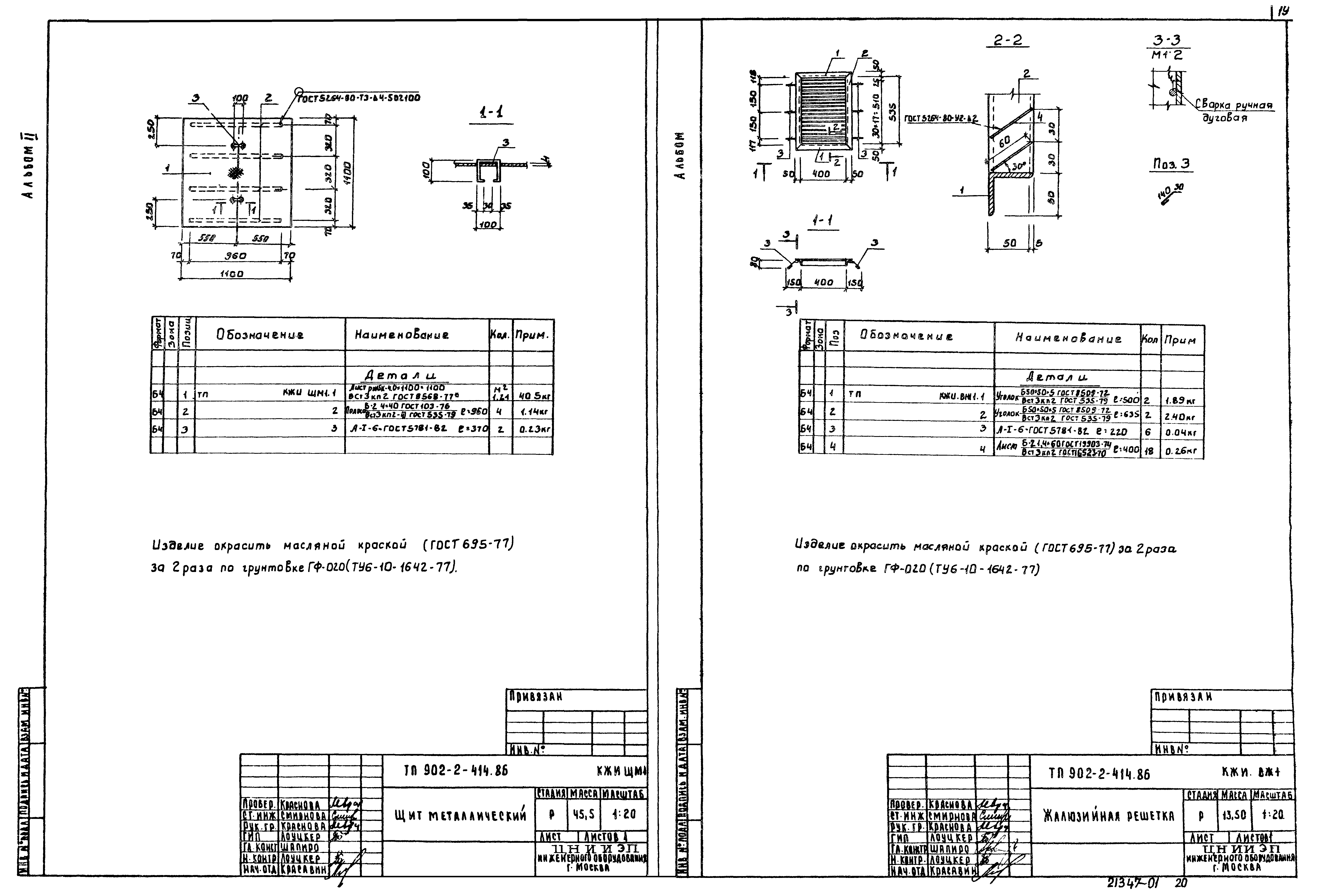
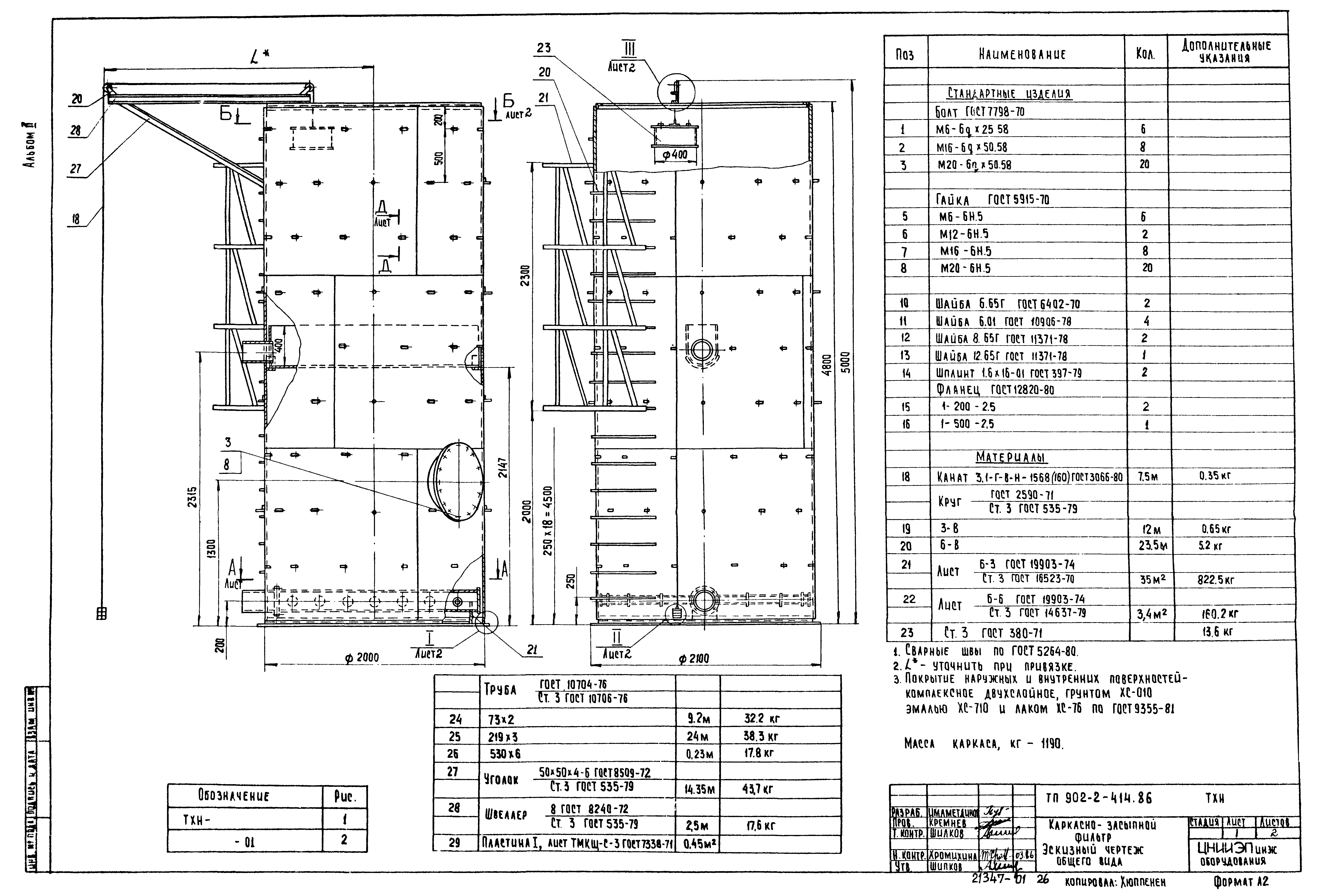
| Оглавление: | ТП 902-2-414.86 Содержание альбома ТП 902-2-414.86 Технологические решения ТП 902-2-414.86-ТХ-1 Общие данные ТП 902-2-414.86-ТХ-2 Технологическая схема ТП 902-2-414.86-ТХ-3 План на отм. 0.000. Разрезы 1-1;2-2;3-3 ТП 902-2-414.86-ТХ-4 Схема трубопроводов М5;М7;М8;М9;М10 ТП 902-2-414.86-ТХ-5 Приемный резервуар и резервуар промывочной воды. План. Разрез 1-1. Схема трубопроводов ТП 902-2-414.86-АР Архитектурно-строительные решения ТП 902-2-414.86-АР-1 Примерный генплан ТП 902-2-414.86-АР-2 Общие данные ТП 902-2-414.86-АР-3 План. Разрезы 1-1;2-2. Фасады 1-2;А-Б;2-1;Б-А. Детали ТП 902-2-414.86-АР-4 Приточный шкаф ТП 902-2-414.86-КЖ-1 Общие данные ТП 902-2-414.86-КЖ-2 Схемы расположения ленточных фундаментов, фундаментов под оборудование, плит покрытия. Разрезы ТП 902-2-414.86-КЖ-3 Фундаменты под оборудование ФО1-ФО3. Разрезы 8-8÷11-11 ТП 902-2-414.86-КЖ-4 Резервуар промывной воды. Опалубочный чертеж и армирование. Приемный резервуар ТП 902-2-414.86-КМ-1 Общие данные (начало). Техническая спецификация стали ТП 902-2-414.86-КМ-2 Общие данные (продолжение). Техническая спецификация стали на типовые конструкции ТП 902-2-414.86-КМ-3 Общие данные (окончание). Ведомость металлоконструкций по видам профилей ТП 902-2-414.86-КМ-4 Схемы расположения площадок и подвесных путей. Подставка под ребристые трубы ТП 902-2-414.86-КЖИ-1 Щит металлический. Жалюзийная решетка ТП 902-2-414.86-КЖИ-2 Щит деревянный. Изделие закладное МН2. ТП 902-2-414.86-ОВ Отопление и вентиляция ТП 902-2-414.86-ОВ-1 Общие данные. План. Схема системы отопления. Схема системы В1. Схема системы теплоснабжения установки ПЕ1. Узел управления ТП 902-2-414.86-ОВН-1 Воздуховод из асбестоцементных листов. Узлы соединений ТП 902-2-414.86-ОВН-2 Тепловая изоляция ТП 902-2-414.86-ОВН-3 Воздухосборник вертикальный ТП 902-2-414.86-ВК Внутренний водопровод и канализация ТП 902-2-414.86-ВК-1 Общие данные. План на отм. 0.000. Схемы трубопроводов В1;К1 ТП 902-2-414.86-ТХН Нестандартизированное оборудование ТП 902-2-414.86-ТХН Каркасно-засыпной фильтр. Эскизный чертеж общего вида ТП 902-2-414.86-ТХН Изоляция трубопроводов ø219х3 мягкими теплоизоляционными материалами |
| Разработан: | ЦНИИЭП |
| Утверждён: | 28.02.1986 Госгражданстрой (Gosgrazhdanstroy 68) |




























