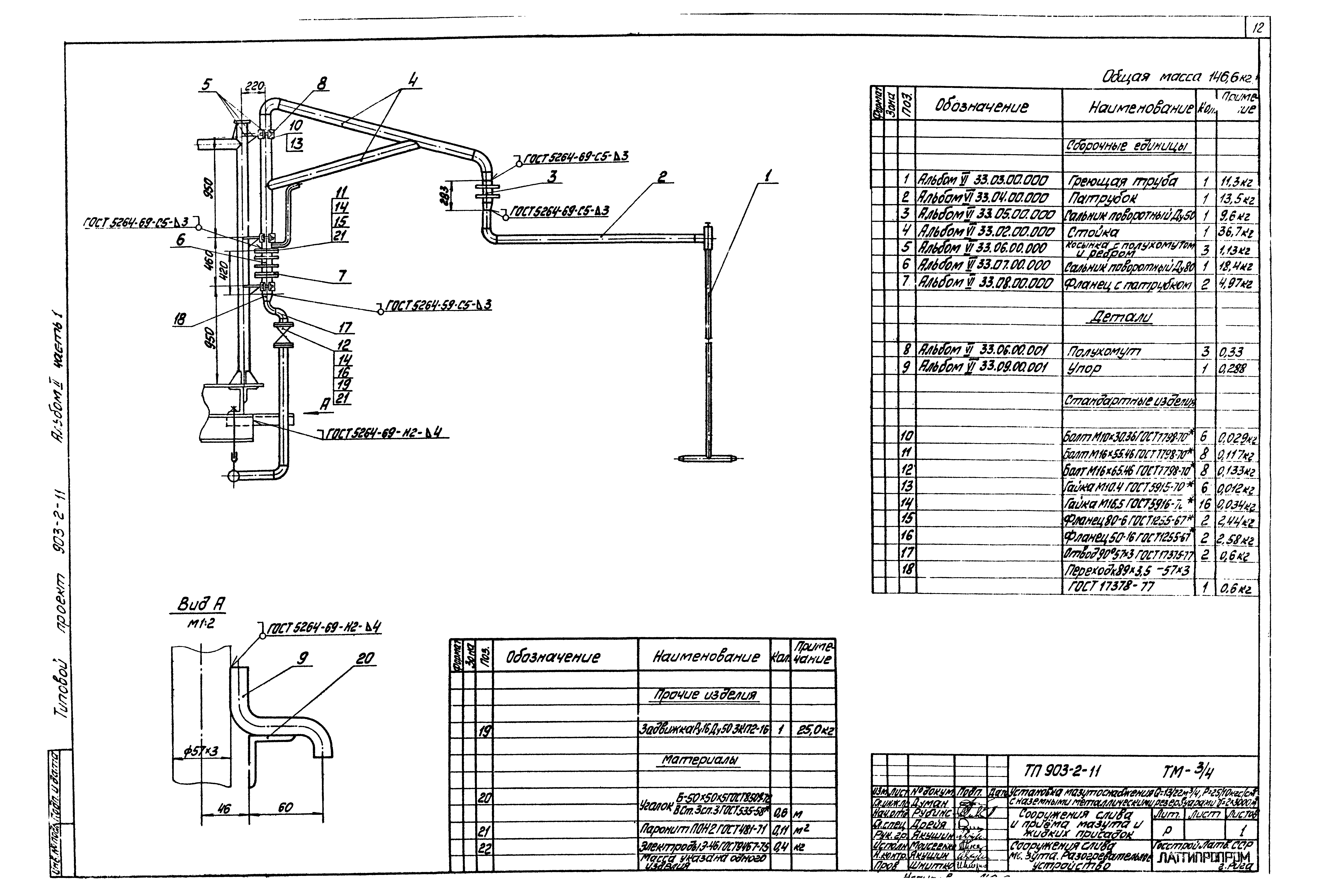
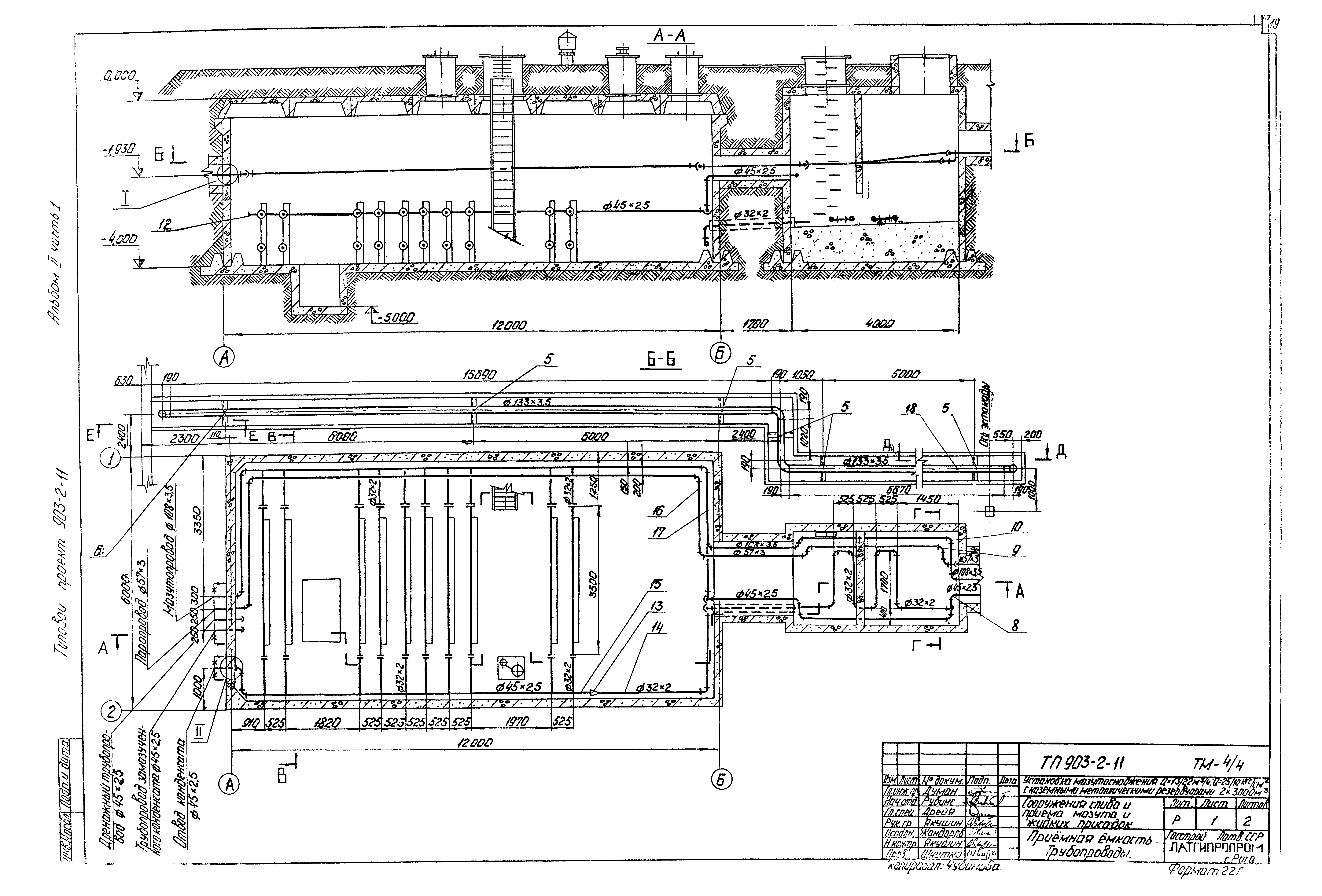
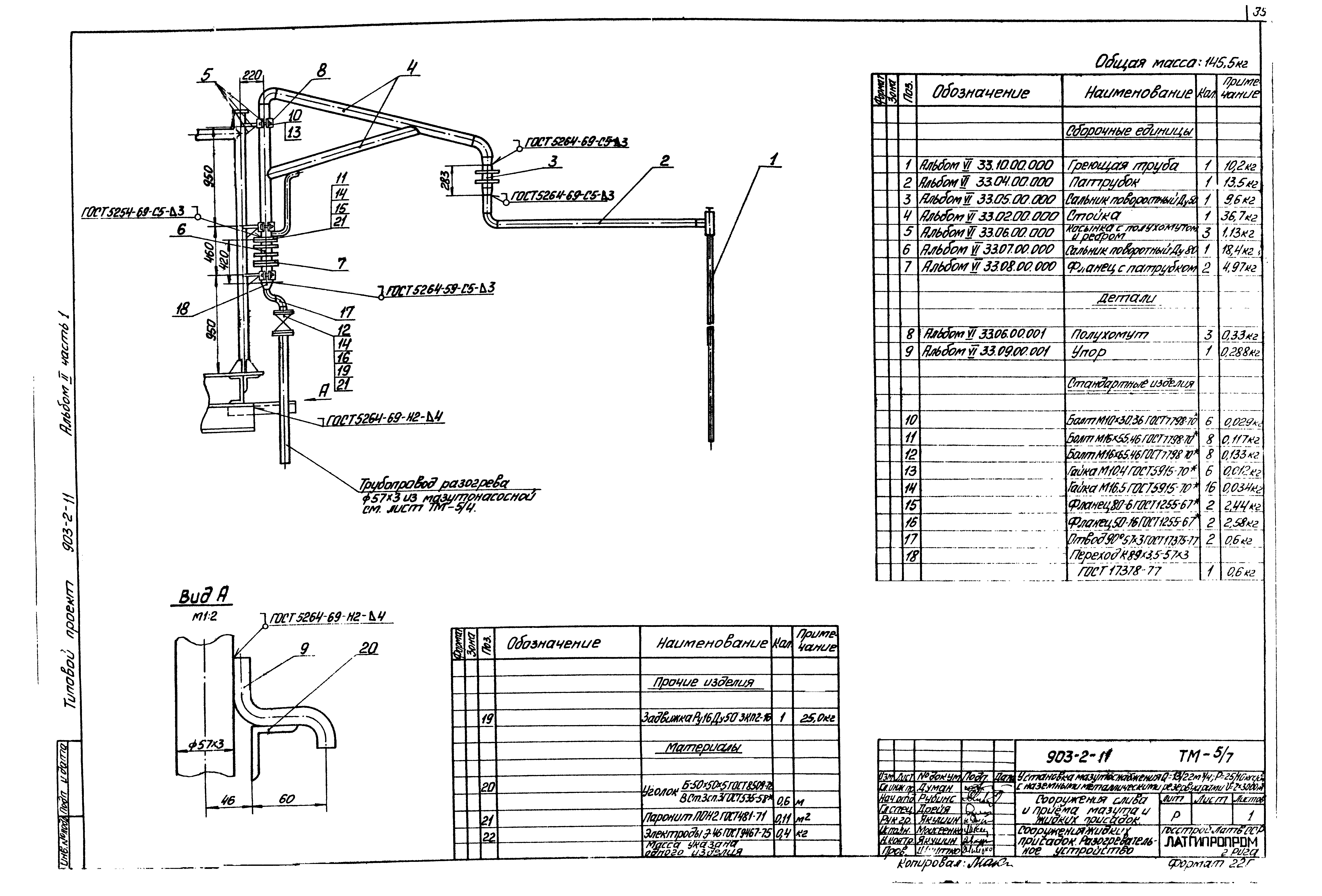
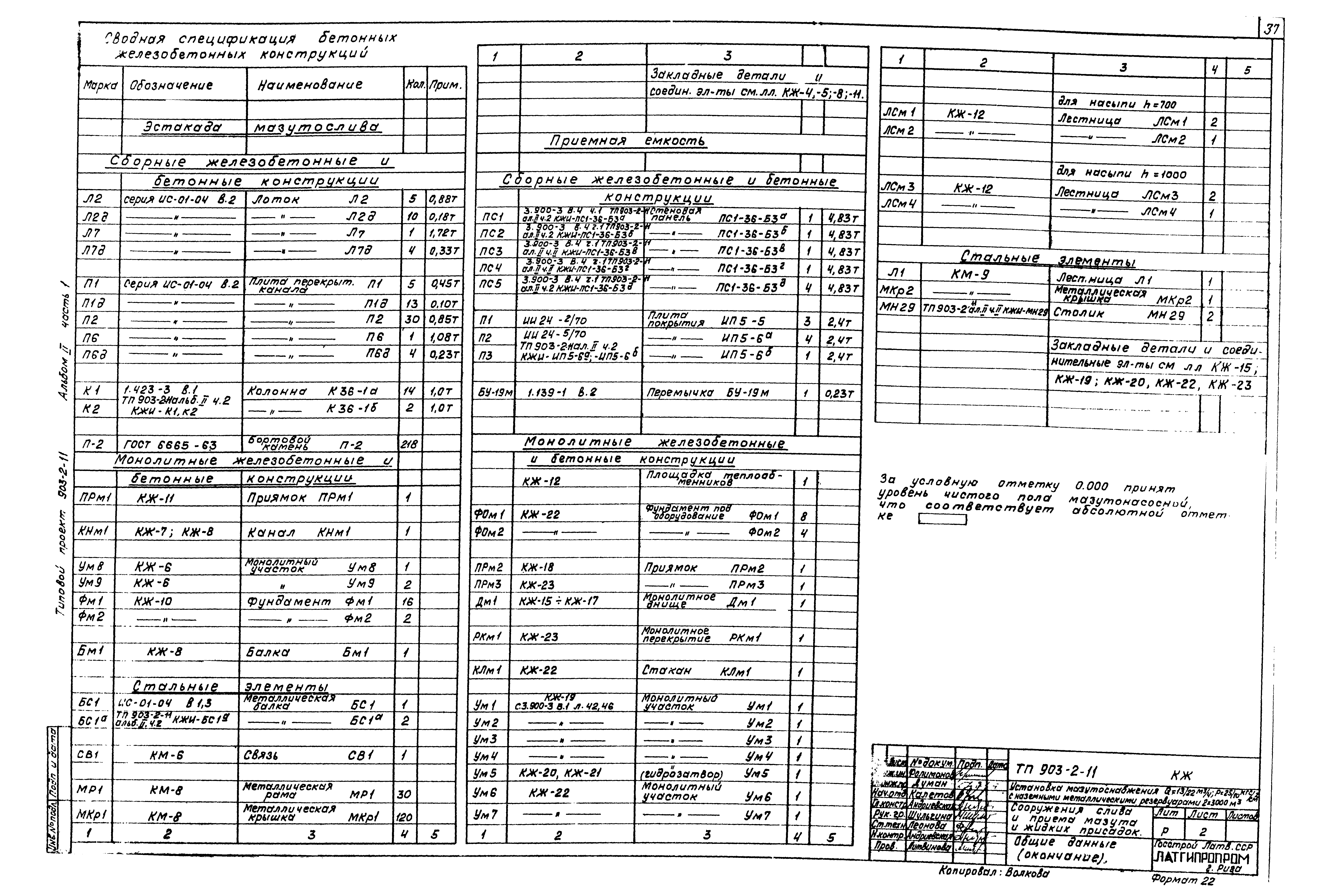
Скачать Типовой проект 903-2-14 Альбом II. Часть 1. Сооружения слива и приема мазута и жидких присадок. Части: тепломеханическая, архитектурно-строительная, автоматизация, электротехническая (из ТП 903-2-11)Дата актуализации: 01.01.2021 Типовой проект 903-2-14
Альбом II. Часть 1. Сооружения слива и приема мазута и жидких присадок. Части: тепломеханическая, архитектурно-строительная, автоматизация, электротехническая (из ТП 903-2-11)| Обозначение: | Типовой проект 903-2-14 | | Обозначение англ: | 903-2-14 | | Статус: | не действует | | Название рус.: | Альбом II. Часть 1. Сооружения слива и приема мазута и жидких присадок. Части: тепломеханическая, архитектурно-строительная, автоматизация, электротехническая (из ТП 903-2-11) | | Дата добавления в базу: | 01.09.2013 | | Дата актуализации: | 01.01.2021 | | Разработан: | Латгипропром
| | Утверждён: | 16.11.1978 Госстрой Латвийской ССР (290)
|
                                                                         
|