Скачать Типовой проект 907-2-223см Альбом II. Металлоконструкции дымовых труб Н = 45 м, Н = 35 м и Н = 30 мДата актуализации: 01.01.2021
|
| Обозначение: | Типовой проект 907-2-223см |
| Обозначение англ: | 907-2-223см |
| Статус: | не определен законодательством |
| Название рус.: | Альбом II. Металлоконструкции дымовых труб Н = 45 м, Н = 35 м и Н = 30 м |
| Дата добавления в базу: | 01.09.2013 |
| Дата актуализации: | 01.01.2021 |
| Дата введения: | 09.01.1979 |
| Дата окончания срока действия: | 30.06.2003 |
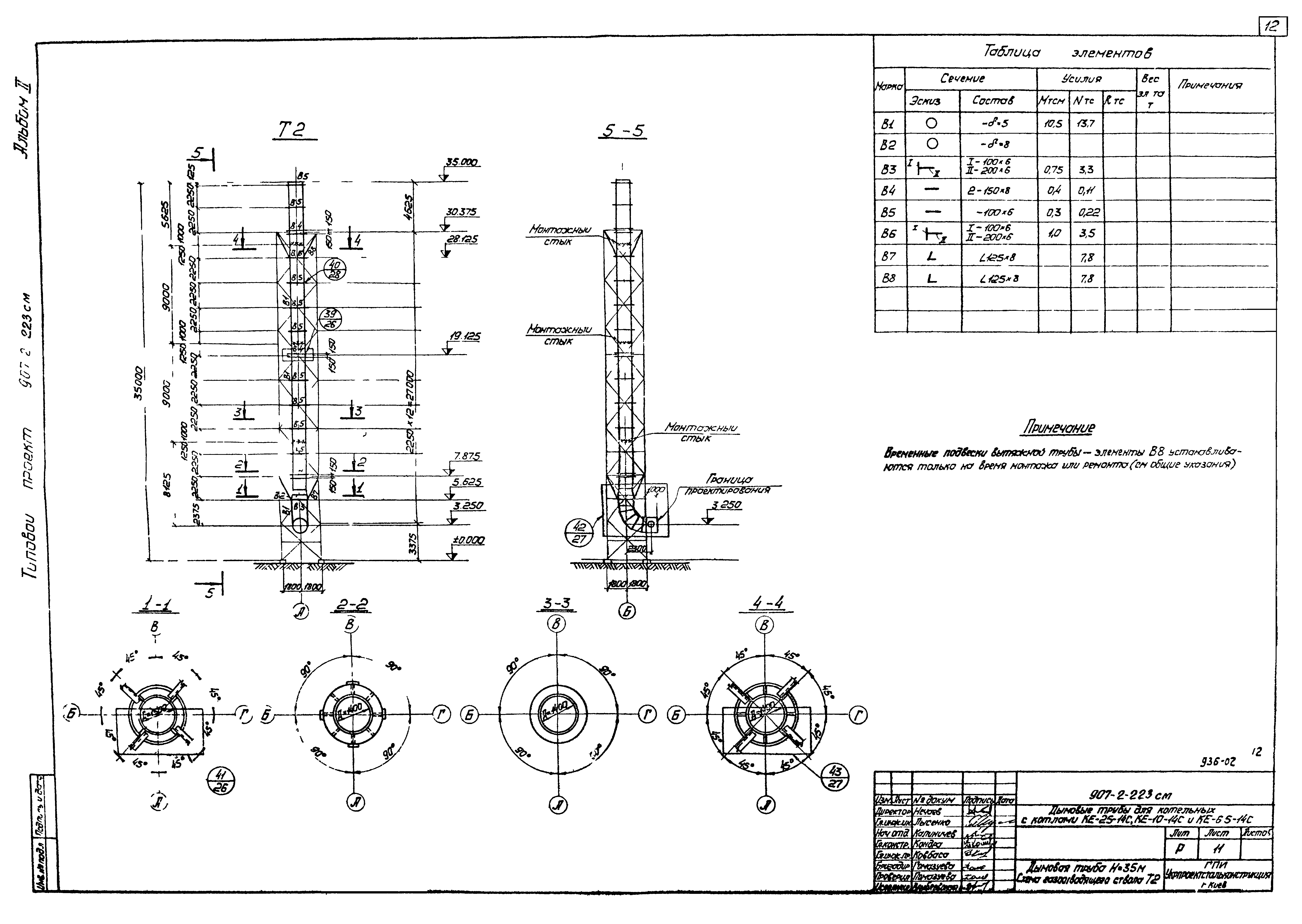
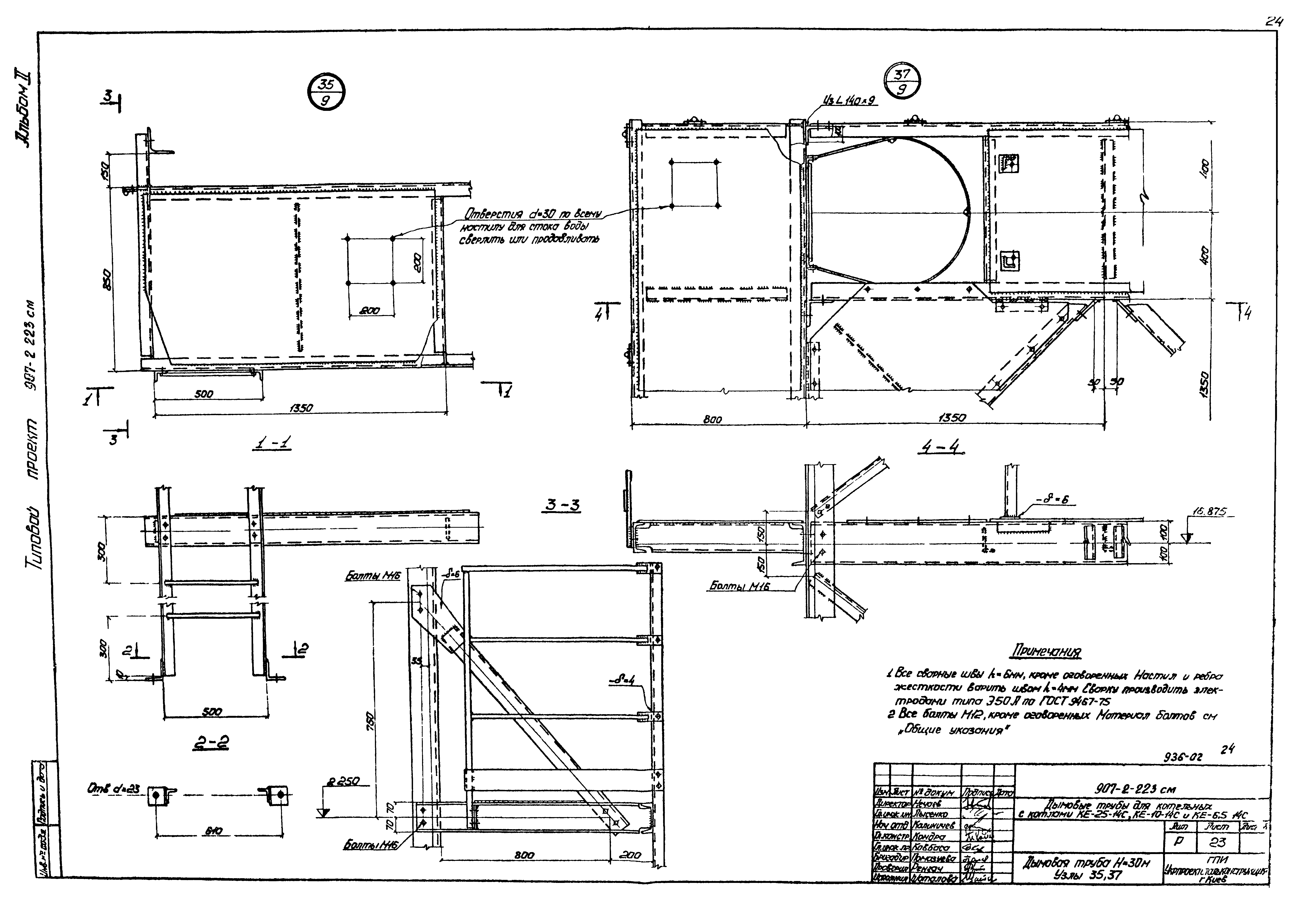
| Оглавление: | ТМ 907-2-223СМ Обложка ТМ 907-2-223СМ Титульный лист ТМ 907-2-223СМ Дымовые трубы Н=45м,Н=35м,Н=30м. Общие данные ТМ 907-2-223СМ Дымовые трубы Н=45м,Н=35м,Н=30м. Техническая спецификация стали ТМ 907-2-223СМ Дымовые трубы Н=45м,Н=35м,Н=30м. Общие виды ТМ 907-2-223СМ Дымовые трубы Н=45м,Н=35м,Н=30м. Нагрузки на фундаменты ТМ 907-2-223СМ Дымовая труба Н=45м. Схема башни Б1 ТМ 907-2-223СМ Дымовая труба Н=35м. Схема башни Б2 ТМ 907-2-223СМ Дымовая труба Н=30м. Схема башни Б3 ТМ 907-2-223СМ Дымовая труба Н=45м. Схема газоотводящего ствола Т1 ТМ 907-2-223СМ Дымовая труба Н=45м. Схема газоотводящего ствола Т2 ТМ 907-2-223СМ Дымовая труба Н=45м. Схема газоотводящего ствола Т3 ТМ 907-2-223СМ Дымовая труба Н=45м. Узлы 1-3 ТМ 907-2-223СМ Дымовая труба Н=45м. Узлы 4-10 ТМ 907-2-223СМ Дымовая труба Н=45м. Узлы 11,14 ТМ 907-2-223СМ Дымовая труба Н=45м. Узел 12 ТМ 907-2-223СМ Дымовая труба Н=45м. Узлы 13,15 ТМ 907-2-223СМ Дымовая труба Н=35м. Узлы 16-20 ТМ 907-2-223СМ Дымовая труба Н=35м. Узлы 21,23 ТМ 907-2-223СМ Дымовая труба Н=35м. Узлы 22,25 ТМ 907-2-223СМ Дымовая труба Н=35м. Узел 24 ТМ 907-2-223СМ Дымовая труба Н=30м. Узлы 26-34 ТМ 907-2-223СМ Дымовая труба Н=30м. Узлы 35,37 ТМ 907-2-223СМ Дымовая труба Н=30м. Узел 36 ТМ 907-2-223СМ Дымовая труба Н=30м. Узел 38 ТМ 907-2-223СМ Дымовые трубы Н=45м,Н=35м,Н=30м. Узлы 39,41 ТМ 907-2-223СМ Дымовые трубы Н=45м,Н=35м,Н=30м. Узлы 42,43 ТМ 907-2-223СМ Дымовые трубы Н=45м,Н=35м,Н=30м. Узлы 40,44 |
| Разработан: | Укрпроектстальконструкция |
| Утверждён: | 09.01.1979 Минмонтажспецстрой СССР (USSR Minmontazhspetsstroy ) |





























