Скачать Типовой проект 903-1-223.86 Альбом 7. Часть 2. Архитектурные решения. Конструкции железобетонные. Конструкции металлическиеДата актуализации: 01.01.2021
|
| Обозначение: | Типовой проект 903-1-223.86 |
| Обозначение англ: | 903-1-223.86 |
| Статус: | не определен законодательством |
| Название рус.: | Альбом 7. Часть 2. Архитектурные решения. Конструкции железобетонные. Конструкции металлические |
| Дата добавления в базу: | 01.09.2013 |
| Дата актуализации: | 01.01.2021 |
| Дата введения: | 13.03.1986 |
| Дата окончания срока действия: | 30.06.2003 |
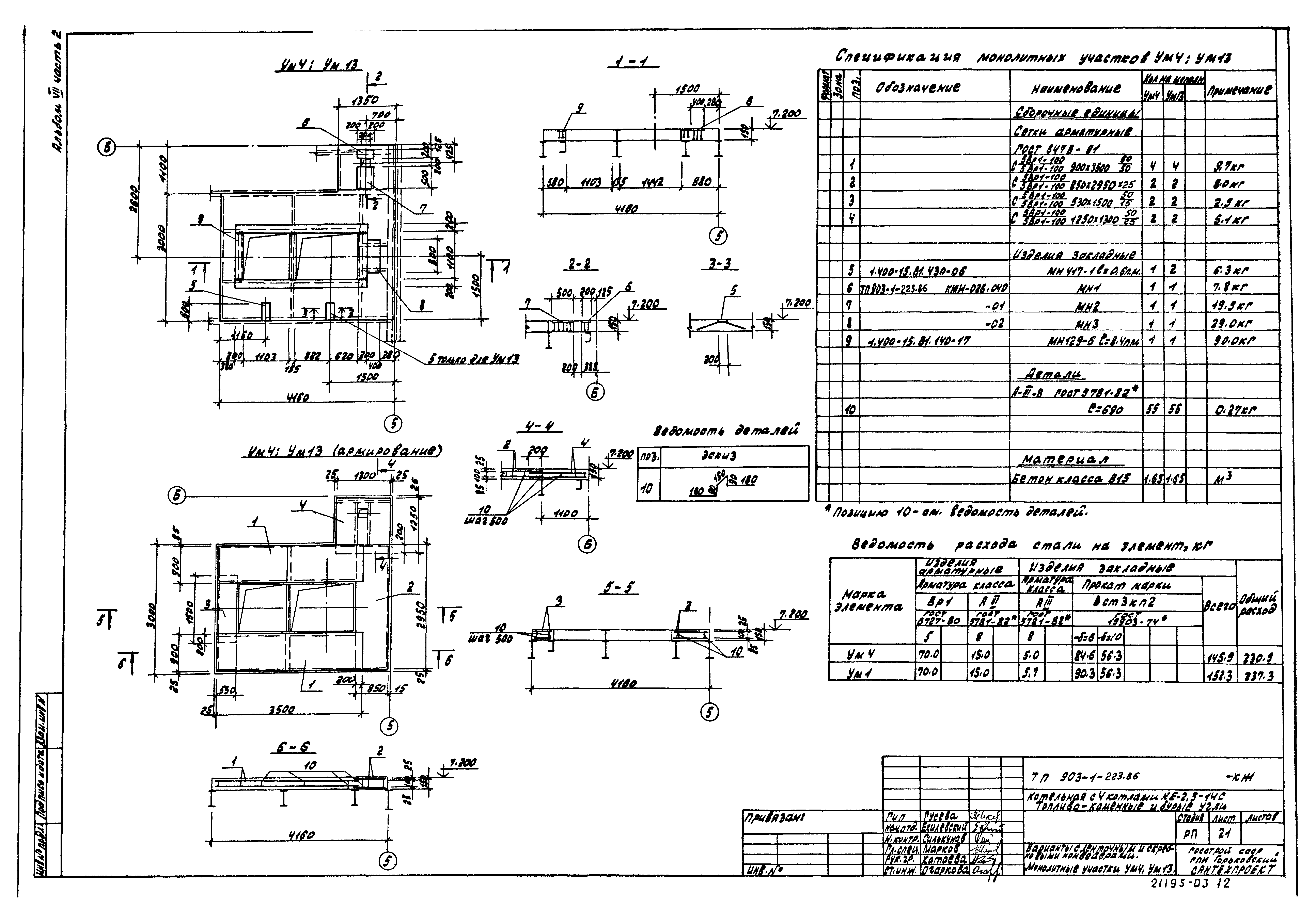
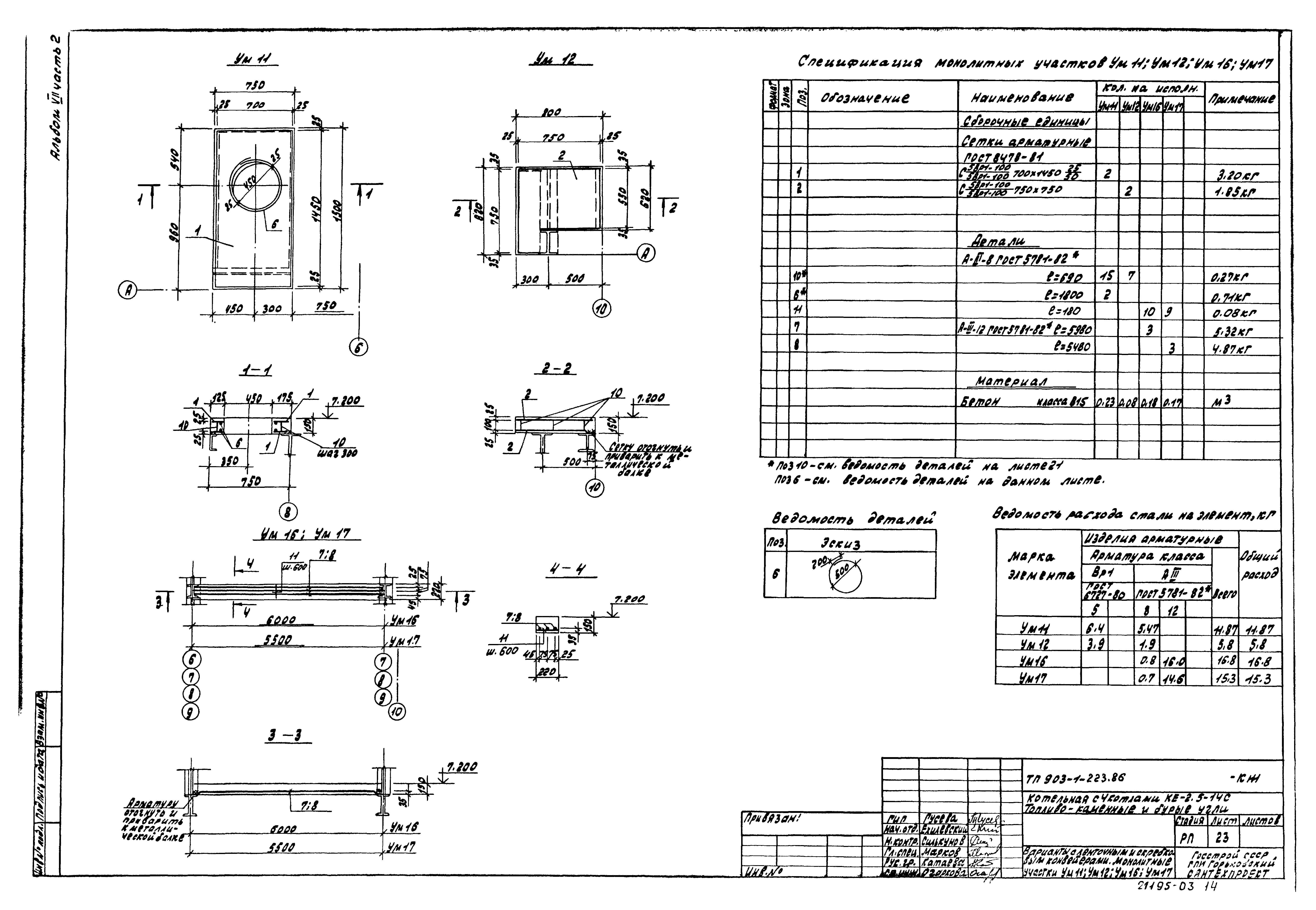
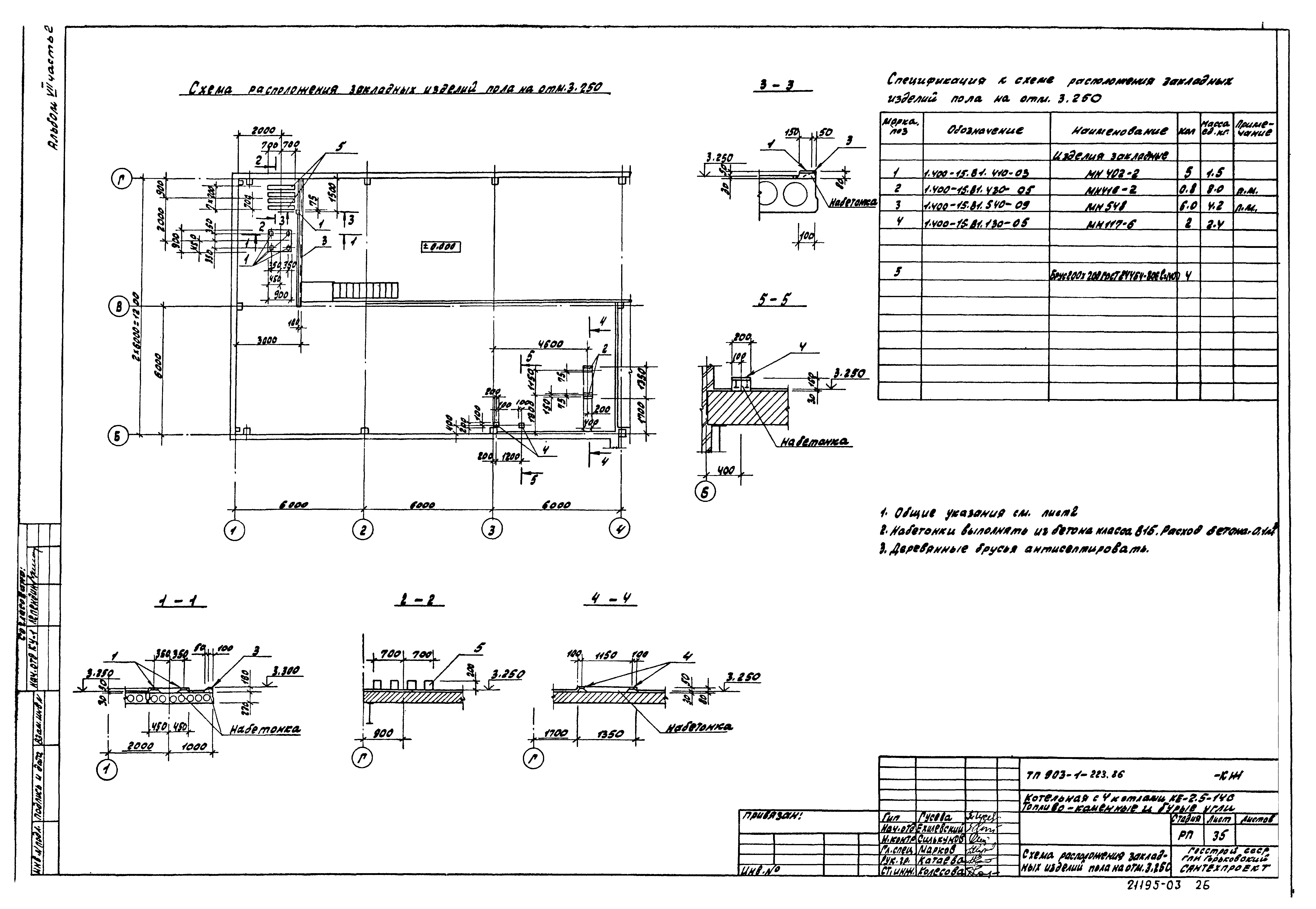
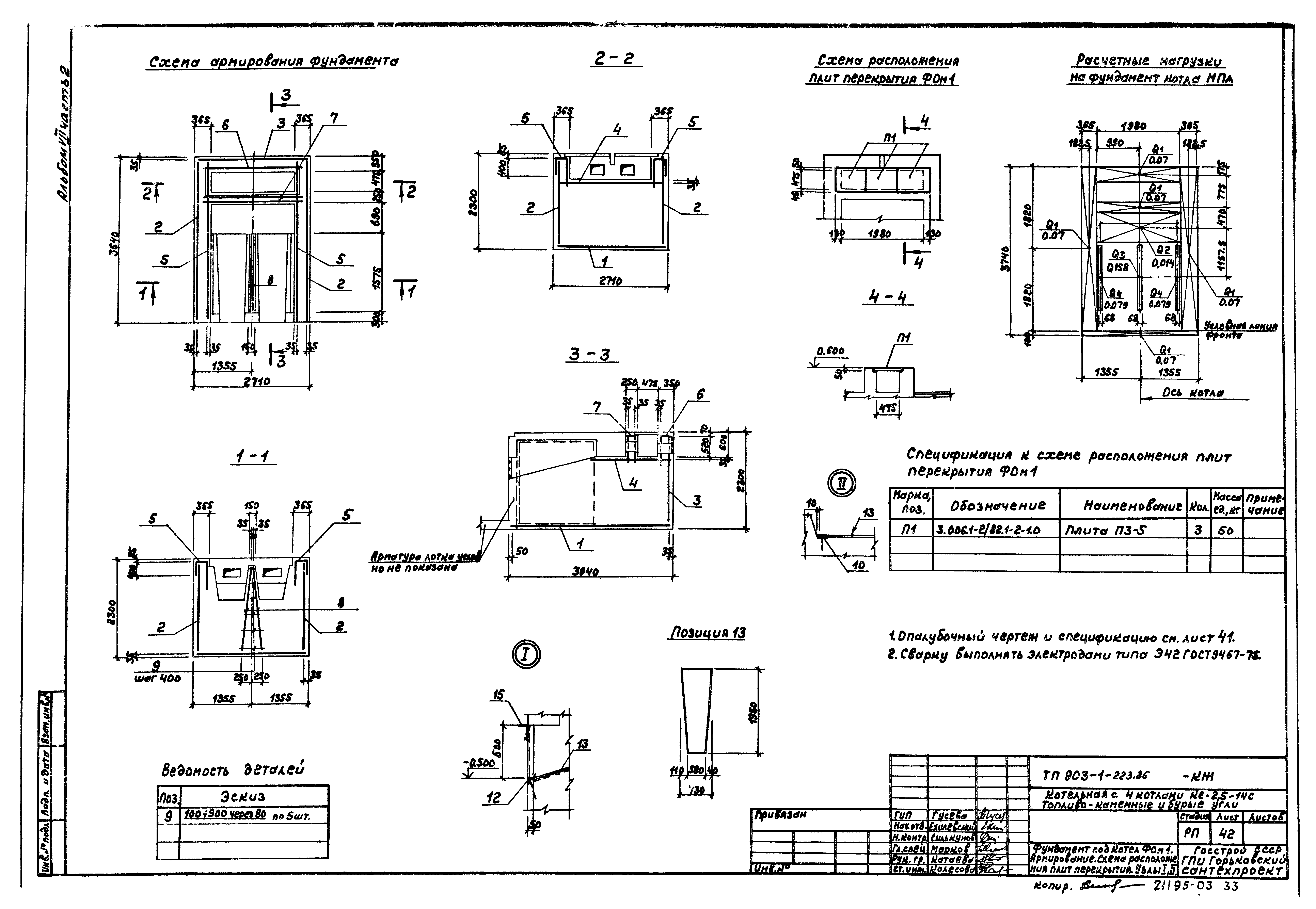
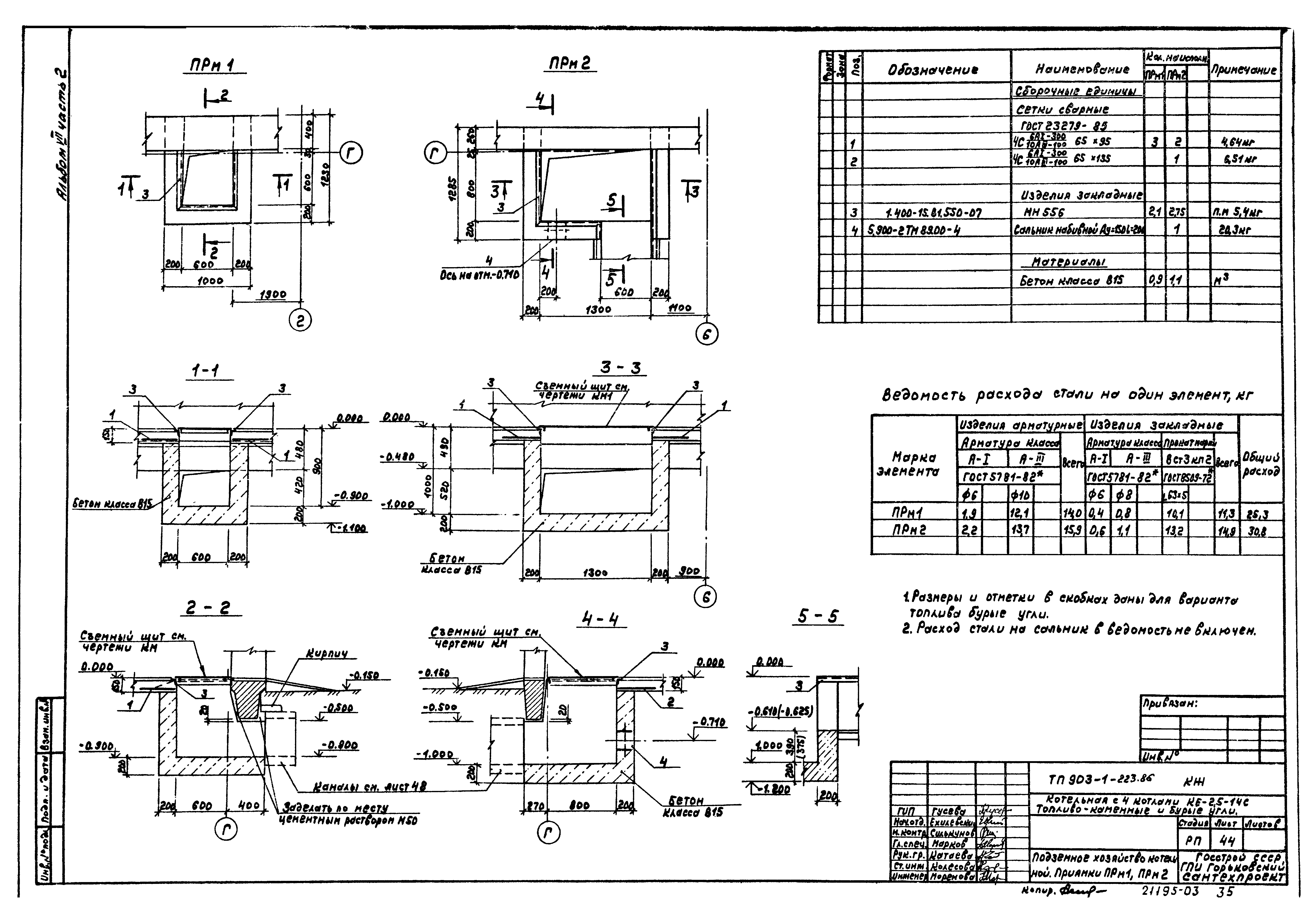
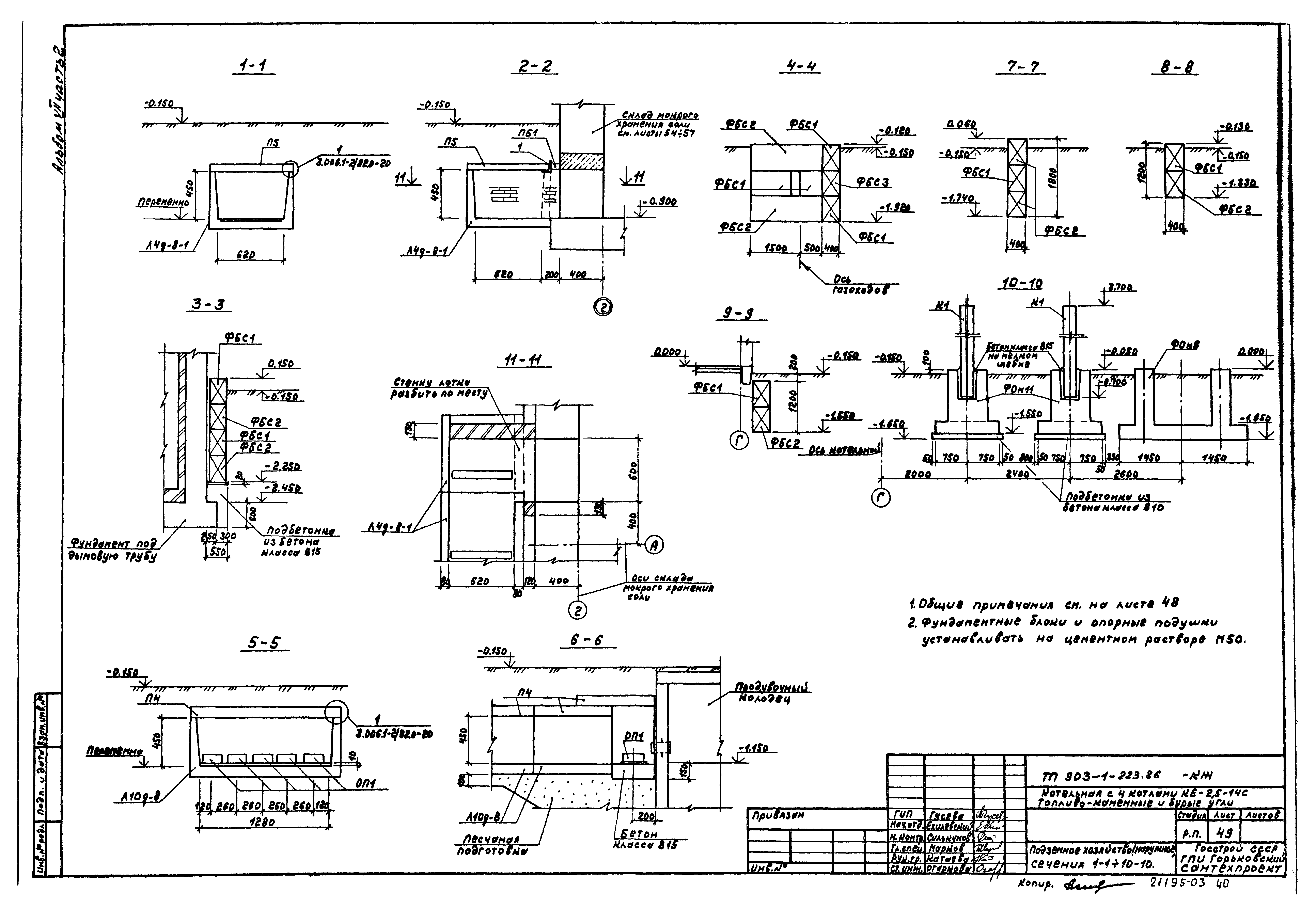
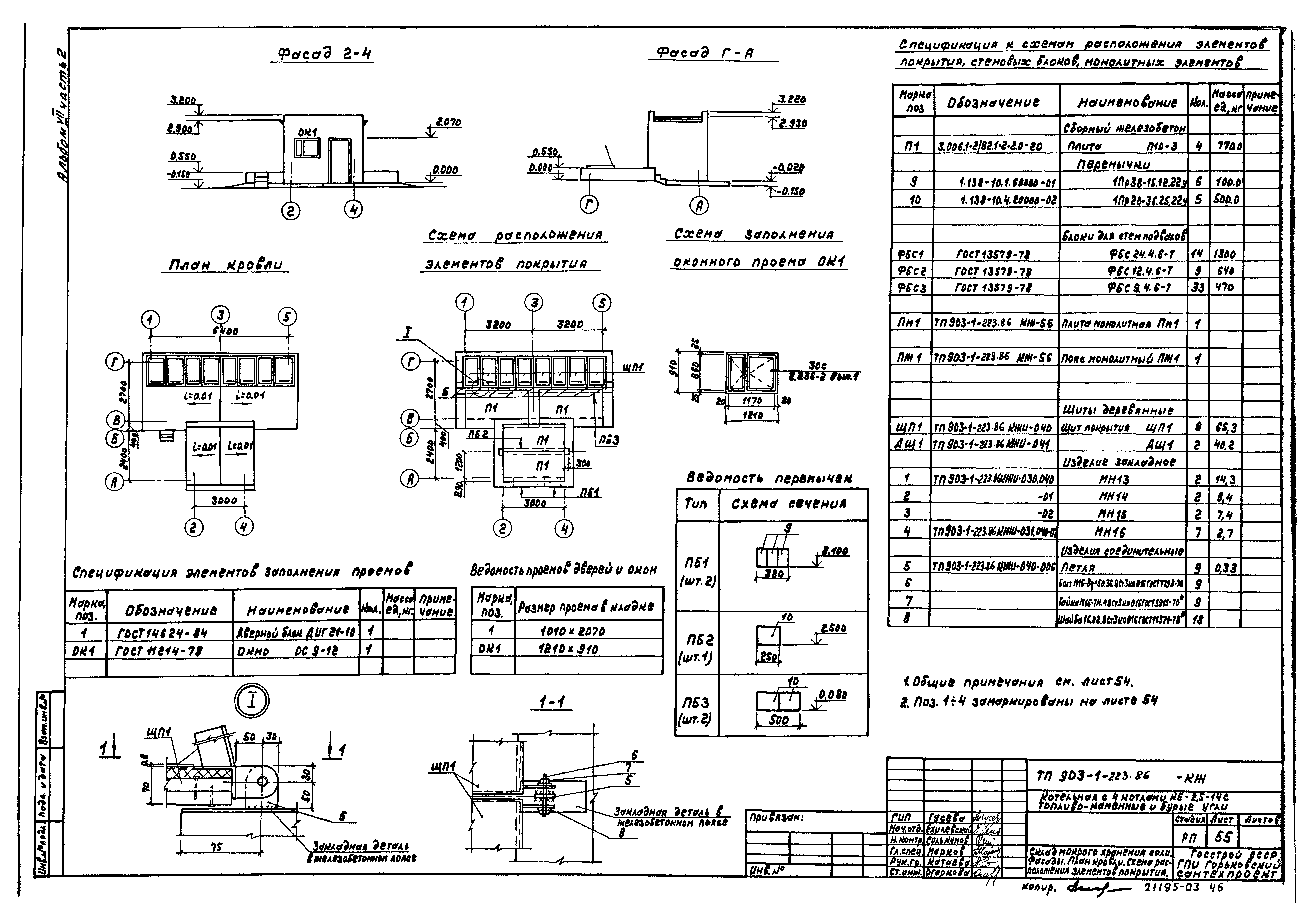
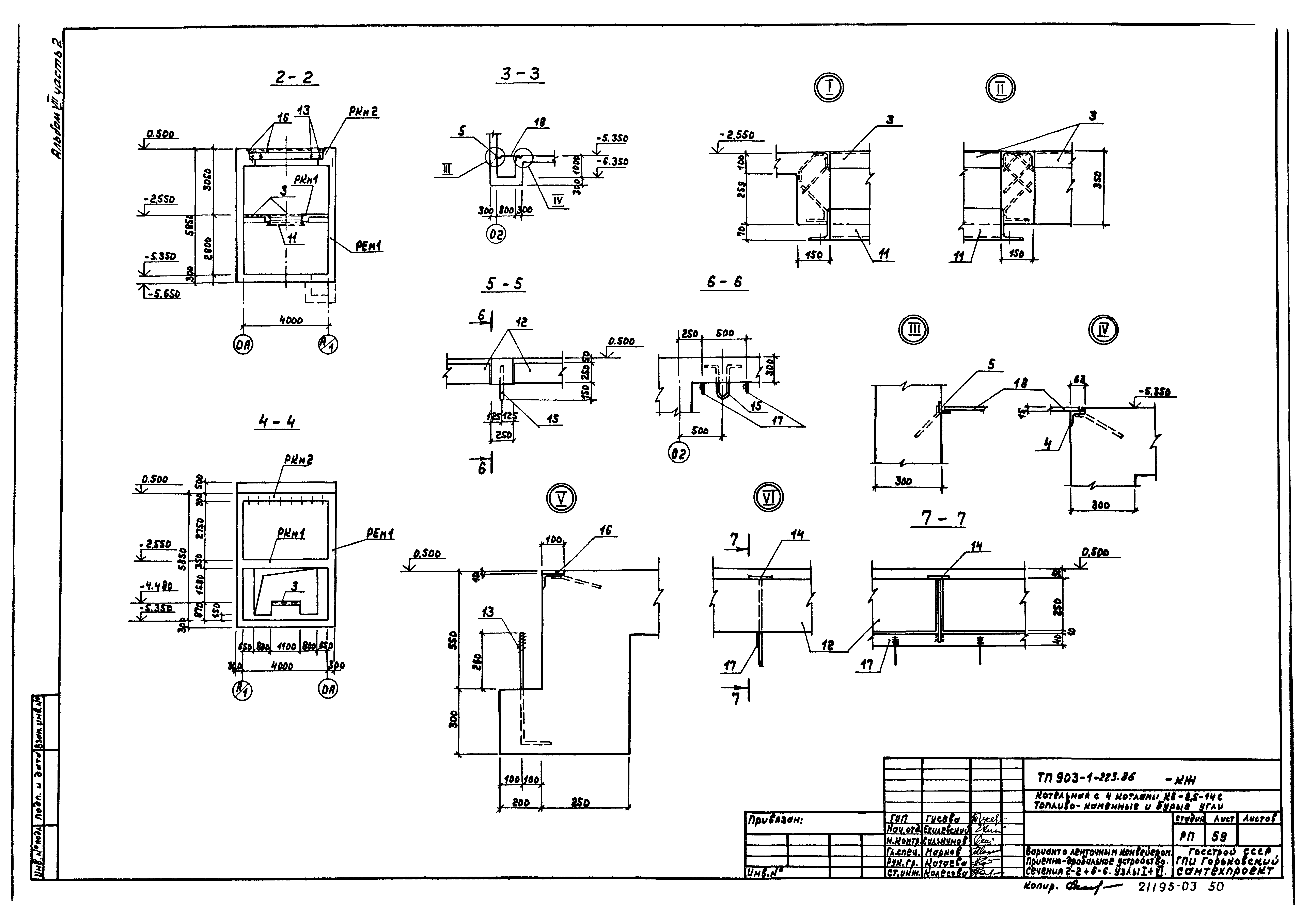
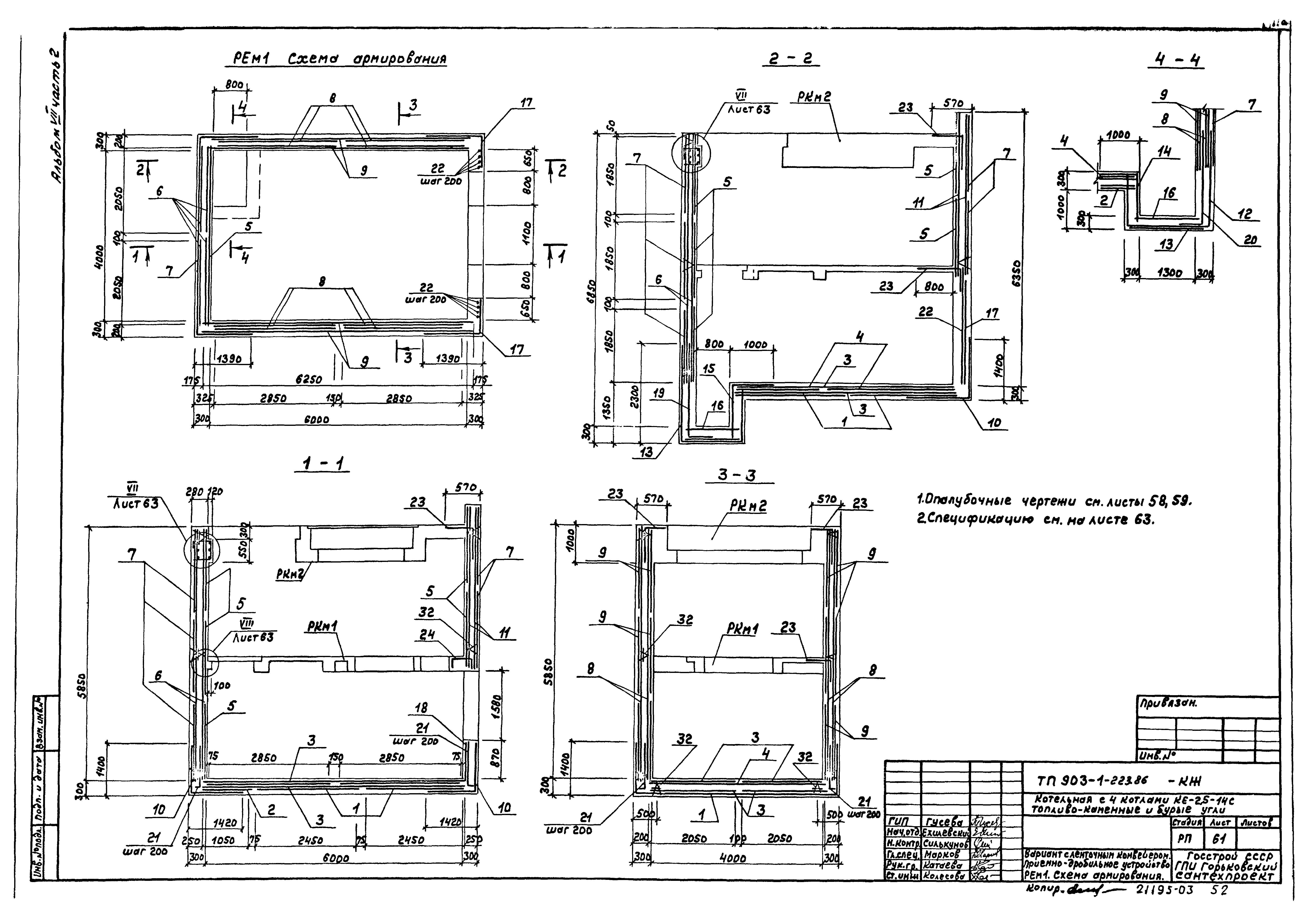
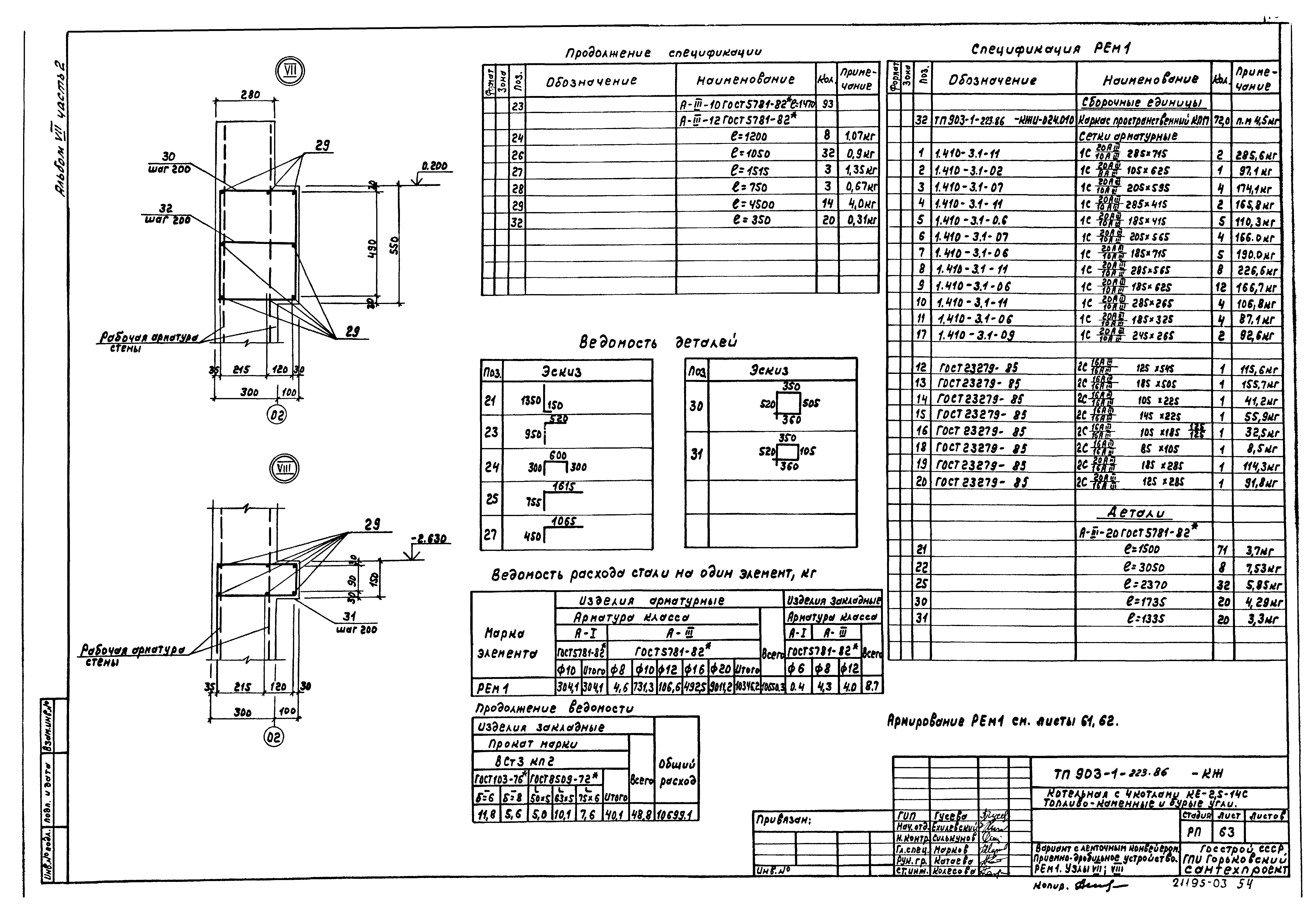
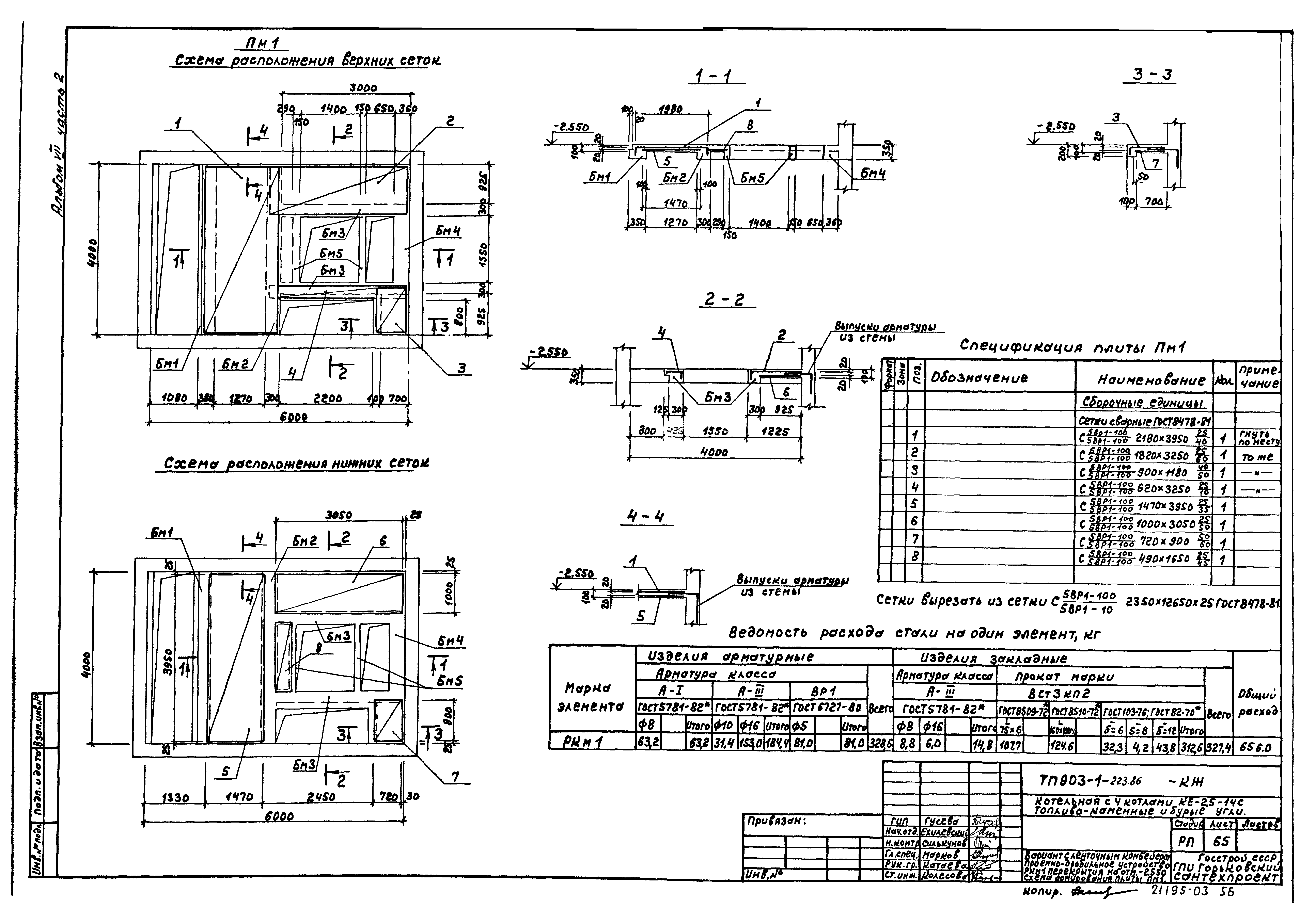
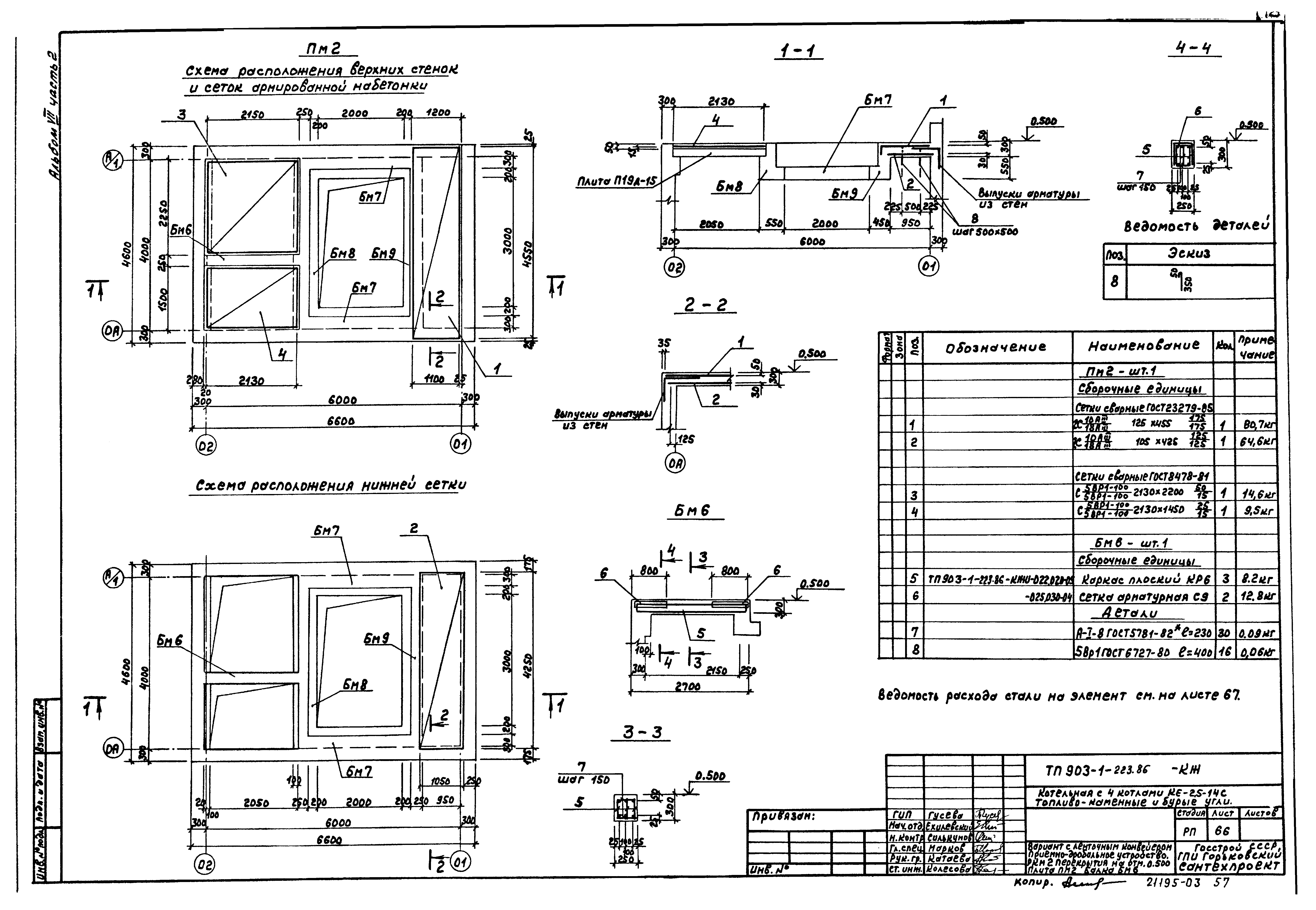
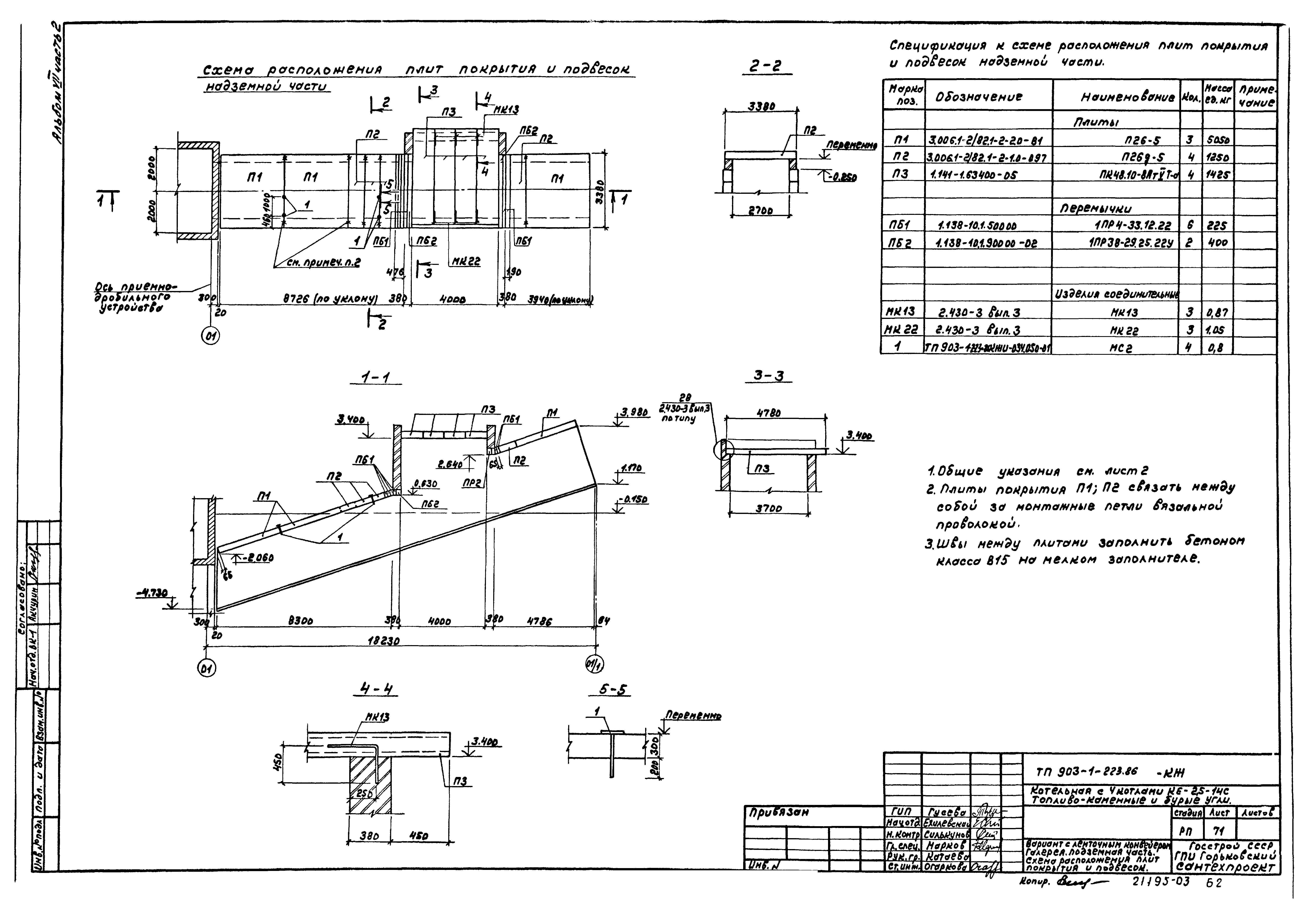
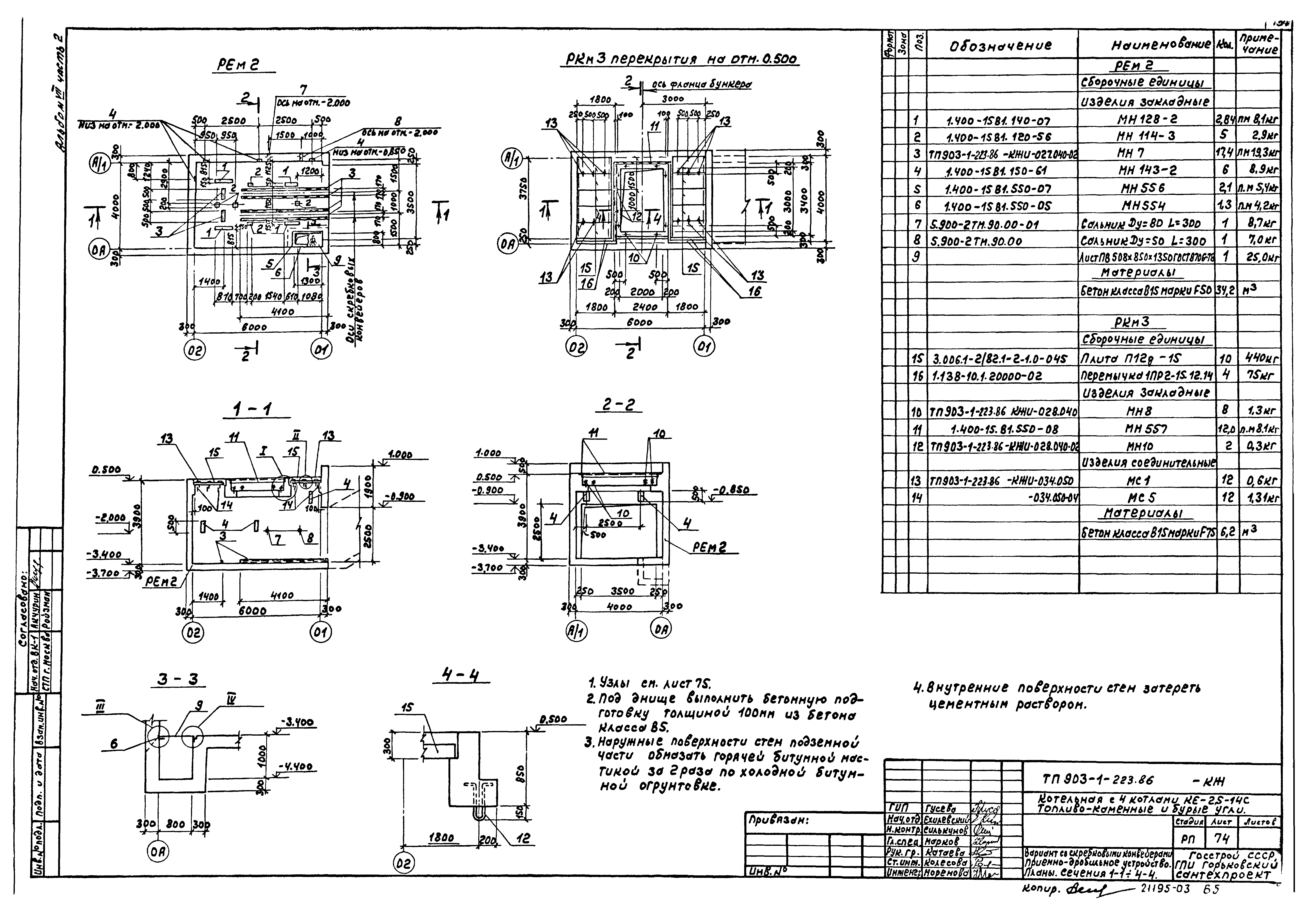
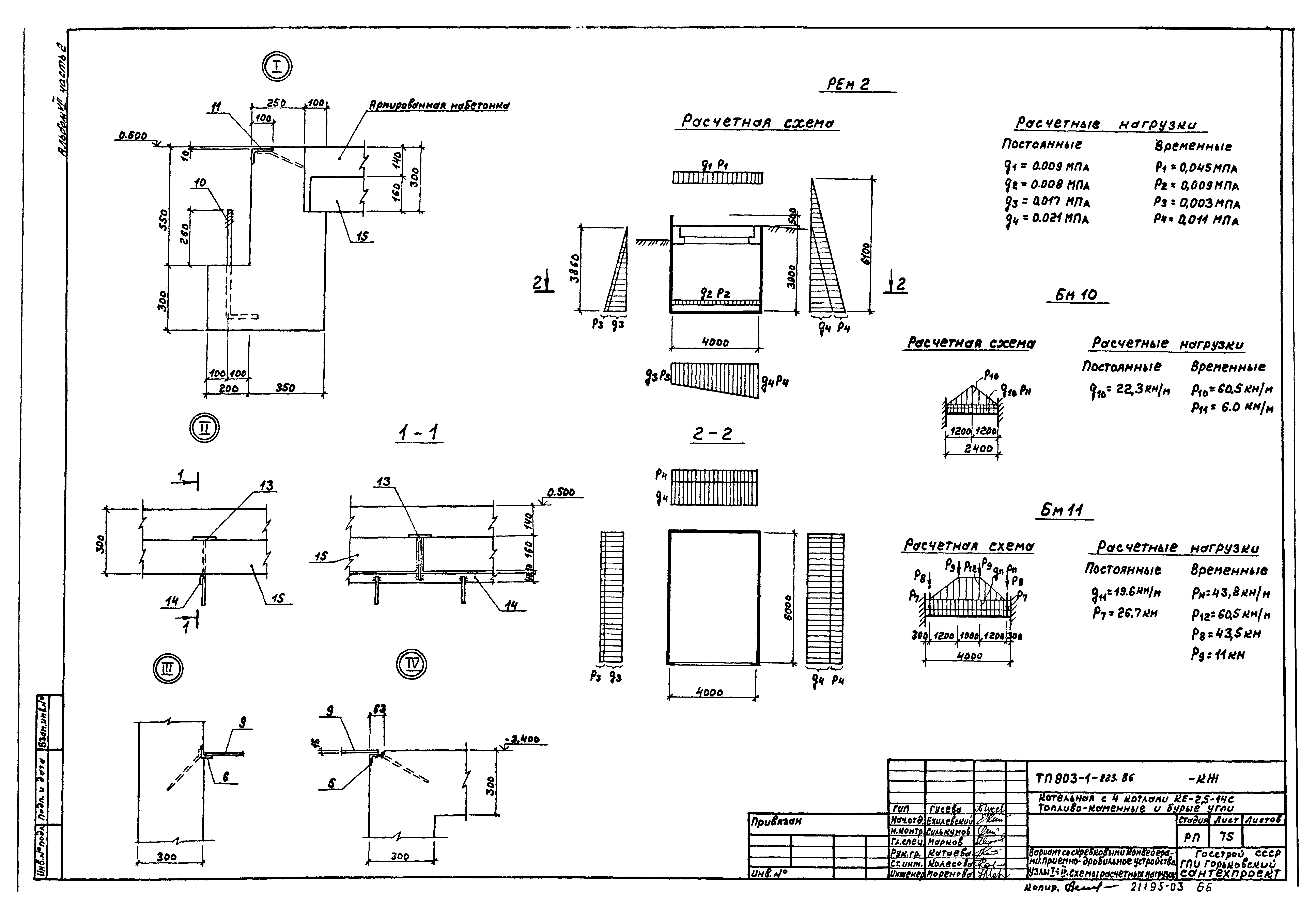
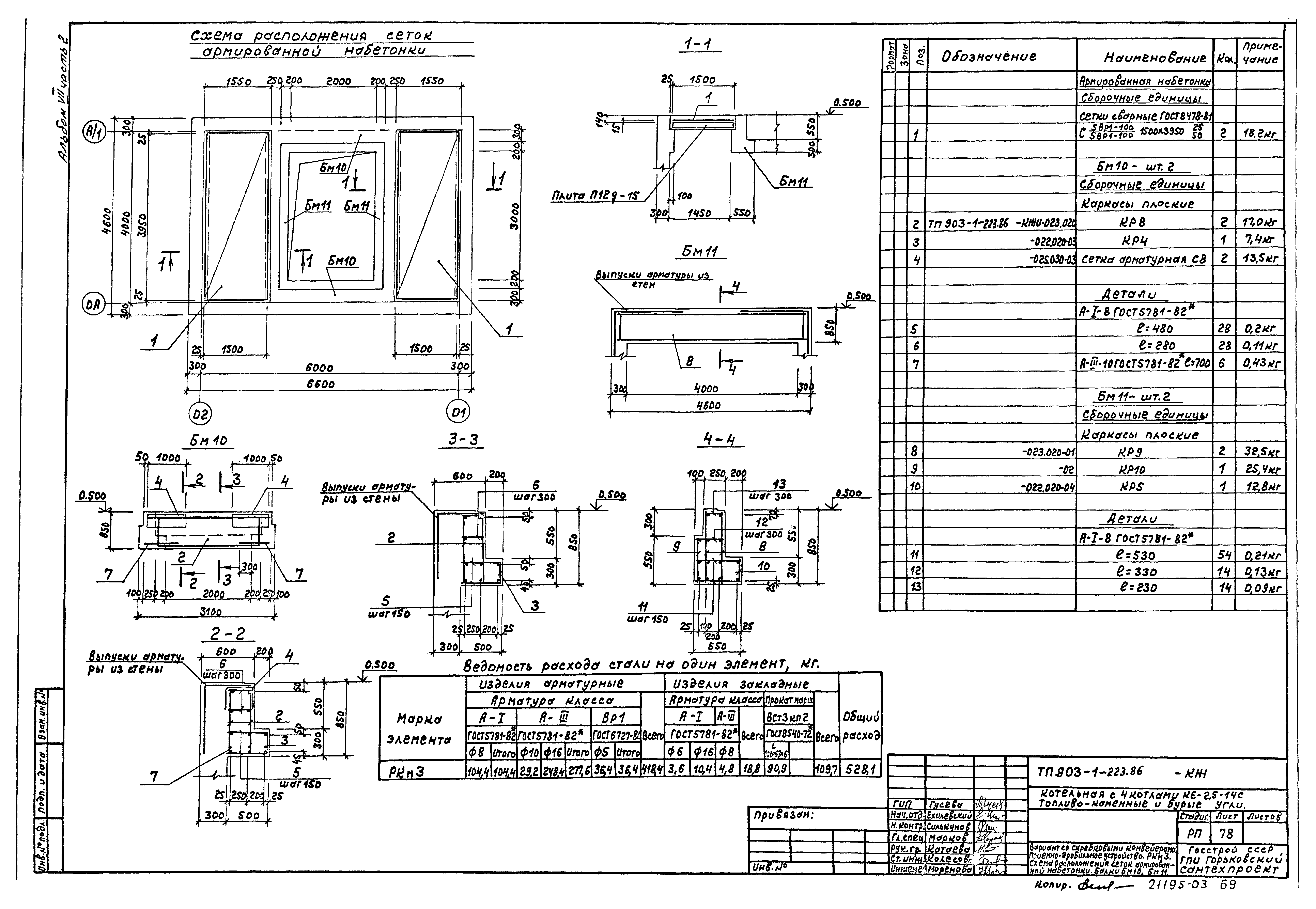
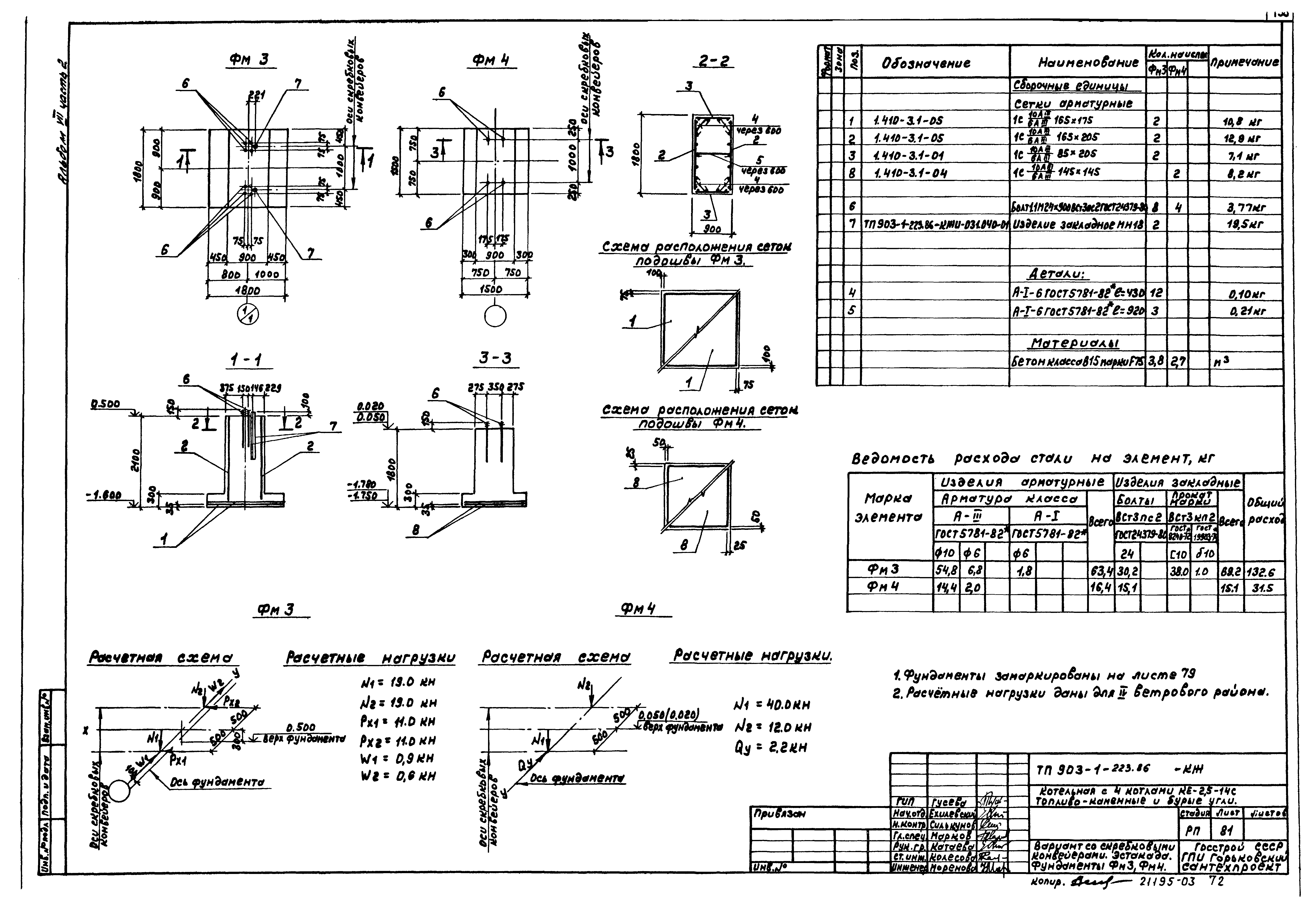
| Оглавление: | ТП 903-1-223.86-КЖ Схемы расположения колонн и балок покрытия ТП 903-1-223.86-КЖ Сечения 1-1÷6-6 к листу 11 ТП 903-1-223.86-КЖ Схема расположения плит покрытия ТП 903-1-223.86-КЖ Схема расположения плит покрытия. Сечения. Узлы ТП 903-1-223.86-КЖ Схема расположения плит перекрытия на отм. 3.250 ТП 903-1-223.86-КЖ Вариант с ленточным конвейером. Схема расположения плит перекрытия на отм. 7.200 ТП 903-1-223.86-КЖ Вариант со скребковыми конвейерами. Схема расположения плит перекрытия на отм. 7.200 ТП 903-1-223.86-КЖ Монолитные участки перекрытия УМ2;УМ3. Опорные подушки ОПм1,ОПм2 ТП 903-1-223.86-КЖ Вариант с ленточным конвейером. Монолитные участки УМ1;УМ1а;УМ5 ТП 903-1-223.86-КЖ Вариант с ленточным конвейером. Монолитный участок УМ6 ТП 903-1-223.86-КЖ Вариант с ленточным и скребковым конвейерами. Монолитные участки УМ4;УМ13 ТП 903-1-223.86-КЖ Вариант с ленточным и скребковым конвейерами. Монолитные участки УМ7-УМ10 ТП 903-1-223.86-КЖ Вариант с ленточным и скребковым конвейерами. Монолитные участки УМ11;УМ12;УМ16;УМ17 ТП 903-1-223.86-КЖ Вариант со скребковыми конвейерами. Монолитные участки УМ14,УМ14а,УМ15 ТП 903-1-223.86-КЖ Схемы расположения стеновых панелей ТП 903-1-223.86-КЖ Схемы расположения стеновых панелей. Фрагменты 1-14 ТП 903-1-223.86-КЖ Схемы расположения стеновых панелей. Фрагменты 15-37. Узел 1 ТП 903-1-223.86-КЖ Схемы расположения стеновых панелей. Спецификация (начало) ТП 903-1-223.86-КЖ Схемы расположения стеновых панелей. Спецификация (окончание) ТП 903-1-223.86-КЖ Схемы расположения асбестоцементных панелей ТП 903-1-223.86-КЖ Схемы расположения панелей перегородок. Сечения 1-1÷6-6 ТП 903-1-223.86-КЖ Схемы расположения панелей перегородок. Узлы 8,9 ТП 903-1-223.86-КЖ Схемы расположения панелей перегородок. Сечения 7-7÷18-18 ТП 903-1-223.86-КЖ Схемы расположения панелей перегородок. Узлы 1-7 ТП 903-1-223.86-КЖ Схемы расположения закладных изделий пола на отм. 3.200 ТП 903-1-223.86-КЖ Схемы расположения фундаментов под оборудование, каналов, приямков и закладных изделий (топливо-каменные угли) ТП 903-1-223.86-КЖ Схемы расположения фундаментов под оборудование, каналов, приямков и закладных изделий (топливо-бурые угли) ТП 903-1-223.86-КЖ Подземное хозяйство котельной. Схема расположения элементов перекрытия канала в осях 1-4. Фрагмент плана 1. Узлы 1-3 ТП 903-1-223.86-КЖ Подземное хозяйство котельной. Сечения 1-1÷13-13 ТП 903-1-223.86-КЖ Подземное хозяйство котельной. Спецификация элементов к листам 36-39 ТП 903-1-223.86-КЖ Фундамент под котел ФОМ1. Опалубка ТП 903-1-223.86-КЖ Фундамент под котел ФОМ1. Армирование. Схема расположения плит перекрытия. Узлы 1,2 ТП 903-1-223.86-КЖ Подземное хозяйство котельной. Фундаменты под оборудование ФОМ2-ФОМ4. Опорные подушки ОПм3-ОПм5 ТП 903-1-223.86-КЖ Подземное хозяйство котельной. Приямки ПРм1,ПРм2 ТП 903-1-223.86-КЖ Канал шлакоудаления ДТм1. План. Сечения 1-1;5-5;6-6 ТП 903-1-223.86-КЖ Канал шлакоудаления ДТм1. План. Сечения 2-2÷4-4. Узлы ТП 903-1-223.86-КЖ Канал шлакоудаления ДТм1. Схема армирования ТП 903-1-223.86-КЖ Подземное хозяйство (наружное). Схема расположения каналов и фундаментов под оборудование. ТП 903-1-223.86-КЖ Подземное хозяйство (наружное). Сечения 1-1÷10-10 ТП 903-1-223.86-КЖ Схема расположения газоходов ТП 903-1-223.86-КЖ Подземное хозяйство (наружное). Фундамент ФОм11. Схема расположения фундаментов под лестницы ТП 903-1-223.86-КЖ Подземное хозяйство (наружное). Фундаменты под оборудование ФОм5-ФОм10 ТП 903-1-223.86-КЖ Продувочный колодец ТП 903-1-223.86-КЖ Склад мокрого хранения соли. План. Разрезы ТП 903-1-223.86-КЖ Склад мокрого хранения соли. Фасады. План кровли. Схема расположения элементов покрытия ТП 903-1-223.86-КЖ Склад мокрого хранения соли. Пояс ПЖ1. Плита ПМ1. Армирование ТП 903-1-223.86-КЖ Склад мокрого хранения соли. Схемы расположения стеновых блоков ТП 903-1-223.86-КЖ Вариант с ленточным конвейером. Приемно-дробильное устройство. Планы. Сечение 1-1 ТП 903-1-223.86-КЖ Вариант с ленточным конвейером. Приемно-дробильное устройство. Сечения 2-2÷6-6. Узлы 1-6 ТП 903-1-223.86-КЖ Вариант с ленточным конвейером. Приемно-дробильное устройство. Схемы расчетных нагрузок ТП 903-1-223.86-КЖ Вариант с ленточным конвейером. Приемно-дробильное устройство РЕМ1. Схема армирования ТП 903-1-223.86-КЖ Вариант с ленточным конвейером. Приемно-дробильное устройство РЕМ1. Схема расположения выпусков из стен ТП 903-1-223.86-КЖ Вариант с ленточным конвейером. Приемно-дробильное устройство РЕМ1. Узлы 7-8 ТП 903-1-223.86-КЖ Вариант с ленточным конвейером. Приемно-дробильное устройство РКМ1 перекрытия на отм. -2.550. Блоки БМ1-БМ5 ТП 903-1-223.86-КЖ Вариант с ленточным конвейером. Приемно-дробильное устройство РКМ1 перекрытия на отм. -2.550. Схема армирования плиты ПМ1 ТП 903-1-223.86-КЖ Вариант с ленточным конвейером. Приемно-дробильное устройство РКМ2 перекрытия на отм. 0.500. Плита ПМ2. Балка БМ6 ТП 903-1-223.86-КЖ Вариант с ленточным конвейером. Приемно-дробильное устройство РКМ2 перекрытия на отм. 0.500. Балки БМ7-БМ9 ТП 903-1-223.86-КЖ Вариант с ленточным конвейером. Галерея. Подземная часть. Схема расположения элементов фундаментов и подпорных стенок ТП 903-1-223.86-КЖ Вариант с ленточным конвейером. Галерея. Подземная часть. Разрезы 1-1÷7-7 ТП 903-1-223.86-КЖ Вариант с ленточным конвейером. Галерея. Подземная часть. Фундаменты ФМ1;ФМ2 ТП 903-1-223.86-КЖ Вариант с ленточным конвейером. Галерея. Подземная часть. Схема расположения плит покрытия и подвесок ТП 903-1-223.86-КЖ Вариант с ленточным конвейером. Галерея. Схема расположения плит перекрытия опорных подушек ТП 903-1-223.86-КЖ Вариант с ленточным конвейером. Галерея. Схема расположения стеновых блоков и асбестоцементных панелей ТП 903-1-223.86-КЖ Вариант с скребковым конвейерами. Приемно-дробильное устройство. Планы. Сечения 1-1÷4-4 ТП 903-1-223.86-КЖ Вариант с скребковым конвейерами. Приемно-дробильное устройство. Узлы 1-4. Схемы расчетных нагрузок ТП 903-1-223.86-КЖ Вариант с скребковым конвейерами. Приемно-дробильное устройство РЕМ2. Схема армирования ТП 903-1-223.86-КЖ Вариант с скребковым конвейерами. Приемно-дробильное устройство РЕМ2. Схема расположения выпусков из стен ТП 903-1-223.86-КЖ Вариант с скребковым конвейерами. Приемно-дробильное устройство РКМ3. Схема расположения сеток армированной набетонки. Балки БМ10,БМ11 ТП 903-1-223.86-КЖ Вариант с скребковым конвейерами. Схема расположения элементов фундаментов эстакады ТП 903-1-223.86-КЖ Вариант с скребковым конвейерами. Схема расположения плит покрытия тамбура приемно-дробильного устройства и подпорных стенок ТП 903-1-223.86-КЖ Вариант с скребковым конвейерами. Эстакада. Фундаменты ФМ3;ФМ4 ТП 903-1-223.86-КЖ Схемы молниезащиты. Узлы 1-3 |
| Разработан: | Горьковский Сантехпроект |
| Утверждён: | 13.03.1986 Госстрой СССР (Государственный комитет Совета Министров СССР по делам строительства) (USSR Gosstroy А4-15) |









































































