Скачать Типовой проект 902-2-171 Альбом V. Очистные сооружения с расходом 30 л/сек. Пояснительная записка. Технологические чертежи. Архитектурно-строительные чертежи. Отопление и вентиляция. Электротехнические чертежи. Заказные спецификации. Тип IIIДата актуализации: 01.01.2021
|
| Обозначение: | Типовой проект 902-2-171 |
| Обозначение англ: | 902-2-171 |
| Статус: | не действует |
| Название рус.: | Альбом V. Очистные сооружения с расходом 30 л/сек. Пояснительная записка. Технологические чертежи. Архитектурно-строительные чертежи. Отопление и вентиляция. Электротехнические чертежи. Заказные спецификации. Тип III |
| Дата добавления в базу: | 01.09.2013 |
| Дата актуализации: | 01.01.2021 |
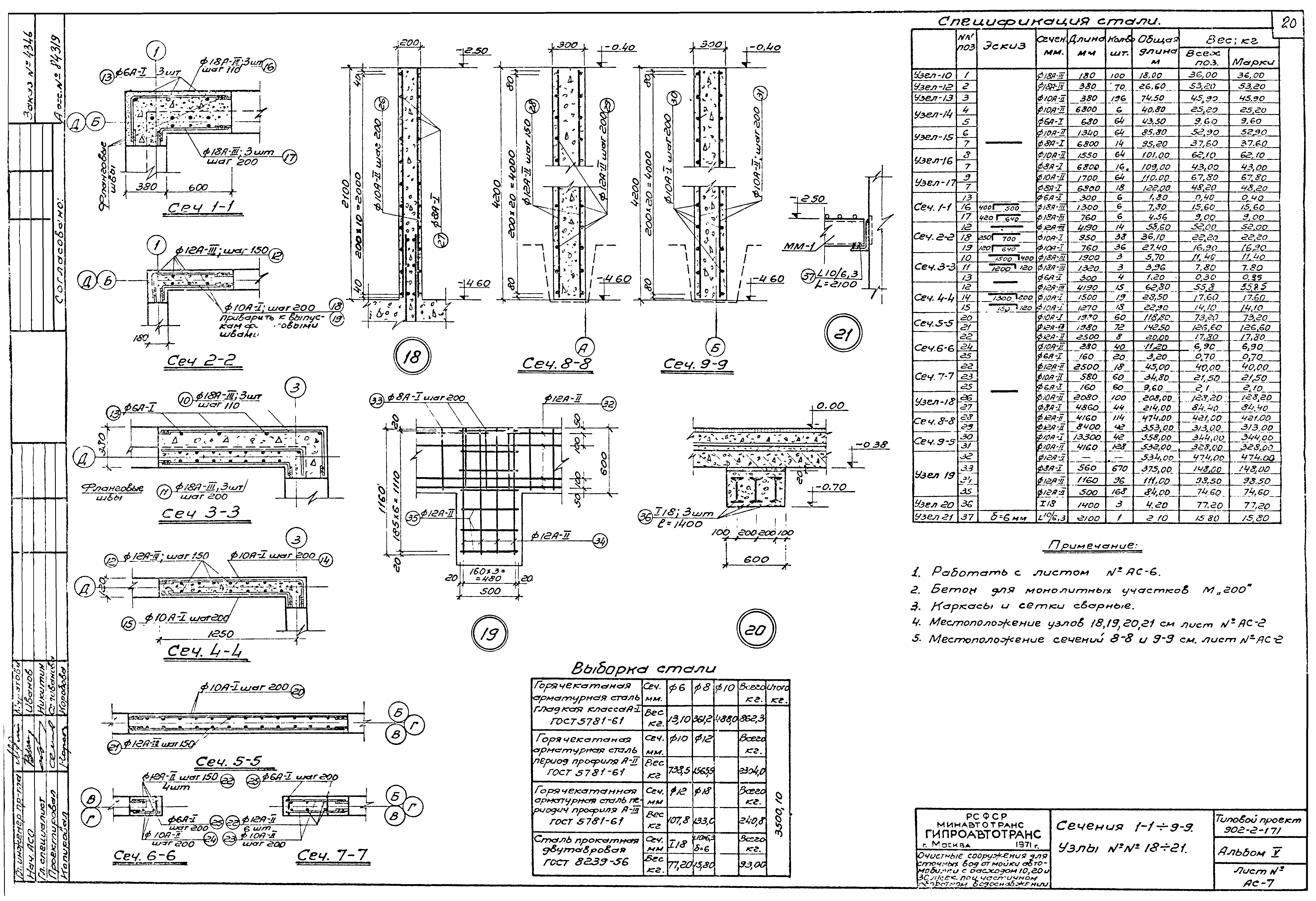
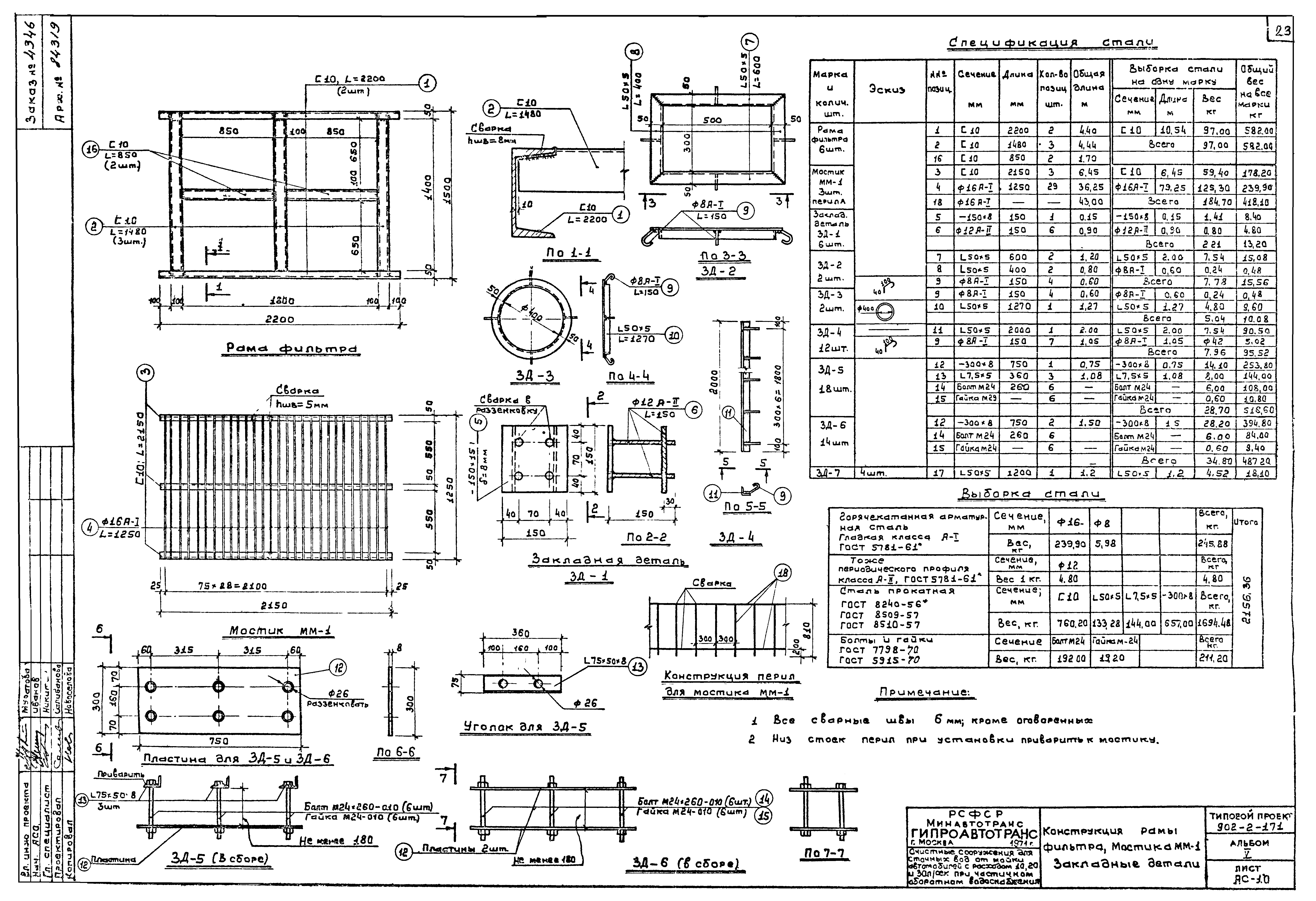
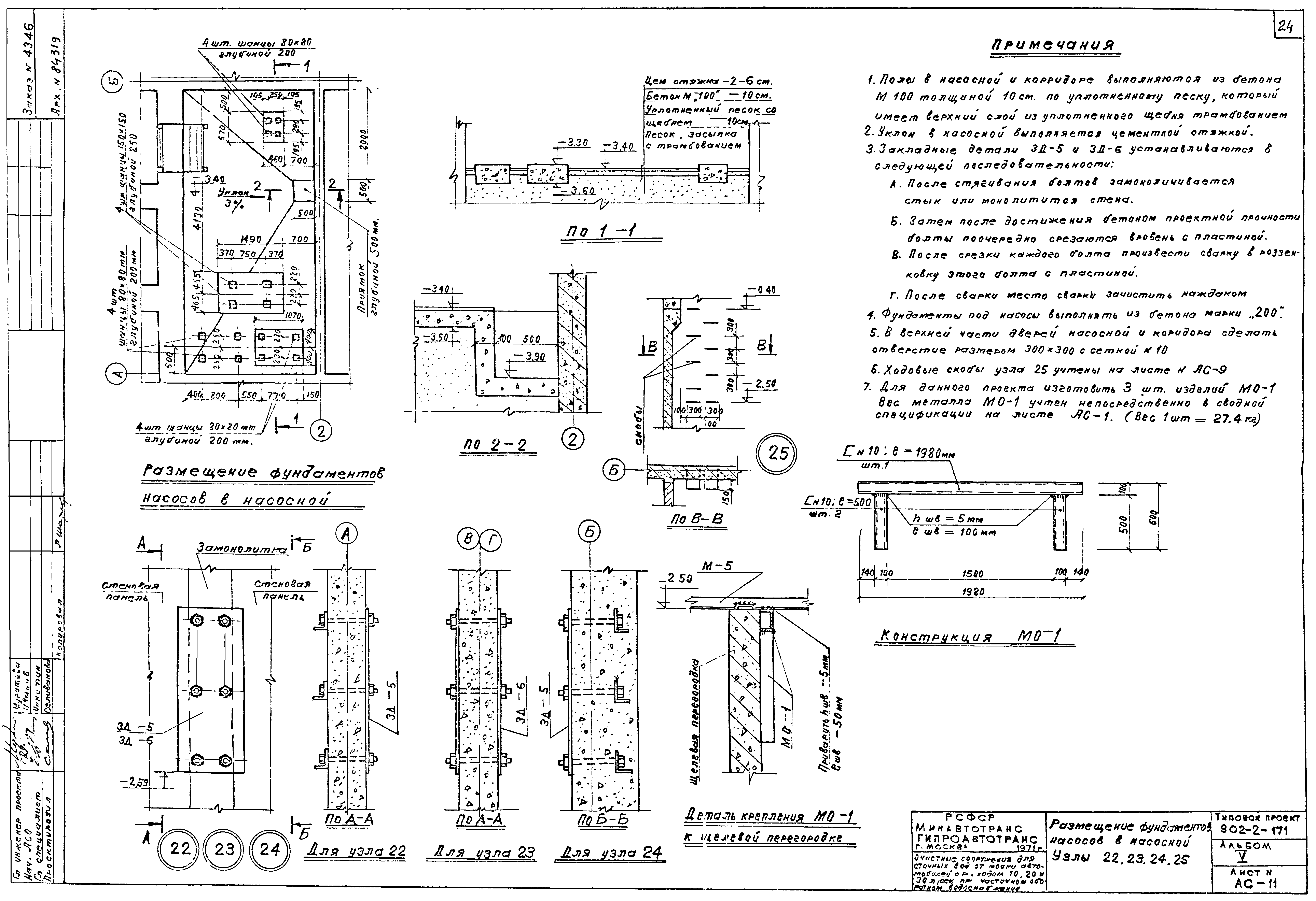
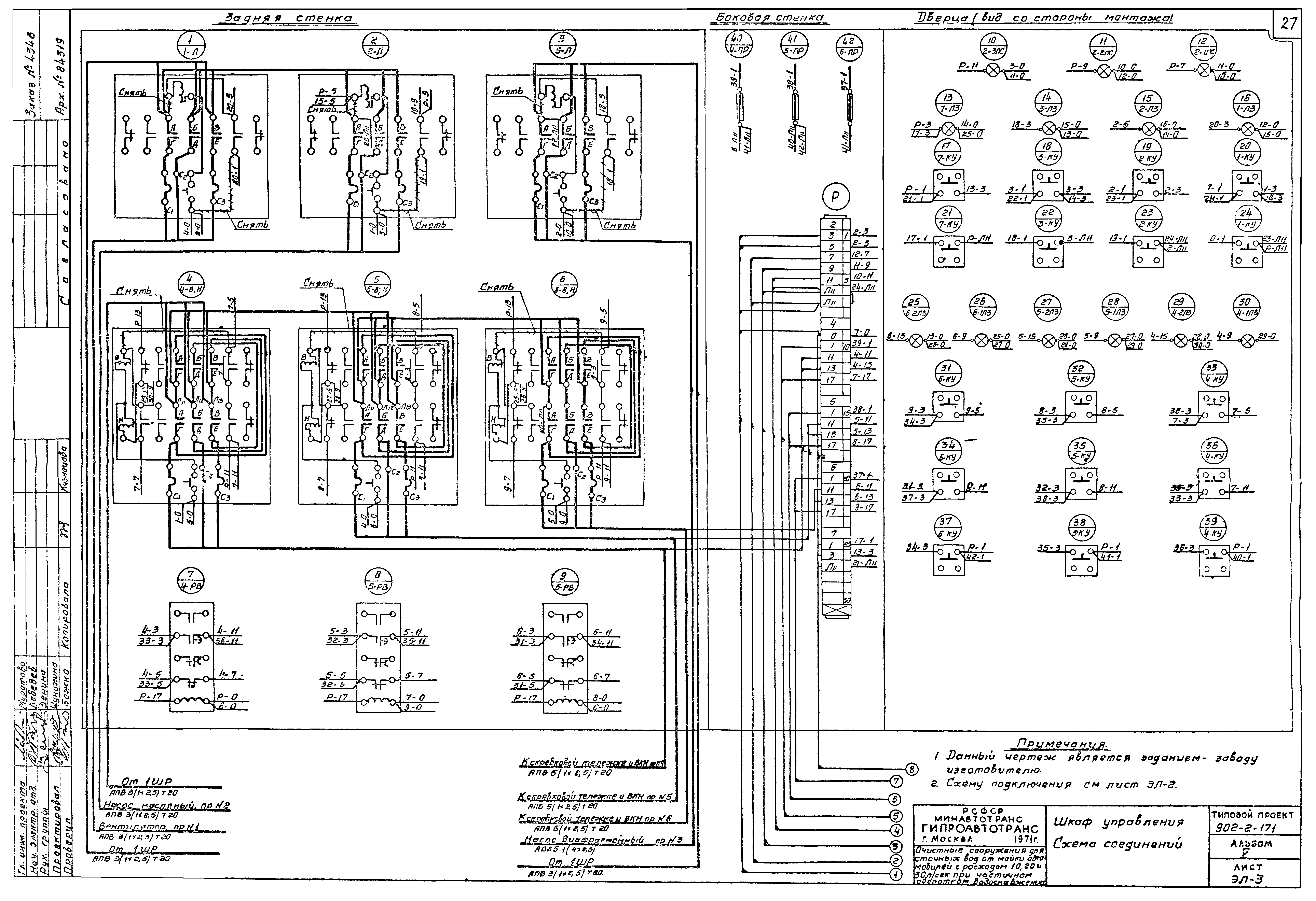
| Оглавление: | ТП 902-2-171 Содержание альбома ТП 902-2-171 Общая часть ТП 902-2-171-ТХ-1 Заглавный лист ТП 902-2-171-ТХ-2 Пояснительная записка ТП 902-2-171-ТХ-3 Пояснительная записка (окончание) ТП 902-2-171-ТХ-4 Трехсекционные очистные сооружения производительностью 30л/сек. План и разрезы. ТП 902-2-171-ТХ-5 Схема удаления осадка из отстойников. Схема удаления масла из очистных сооружений ТП 902-2-171-ТХ-6 Установка гидроэлеватора в приямке для осадка схема откачки дренажных вод. Расположение труб в отстойнике над приямком с осадком ТП 902-2-171-ТХ-7 Реагентное хрзяйство. План. Разрезы. Принципиальная схема ТП 902-2-171-ТХ-8 Тележка скребковая. Общий вид ТП 902-2-171-ТХ-9 Спецификация материалов ТП 902-2-171-ОВ-1 Отопление и вентиляция. План на отм. -3.40. Разрезы 1-1 и 2-2. Схема системы П-1. Спецификация ТП 902-2-171-АС-1 Заглавный лист ТП 902-2-171-АС-2 План отстойника. Разрезы 1-1,2-2,3-3,4-4 ТП 902-2-171-АС-3 План монолитного днища. Планы раскладки сеток. Сечения ТП 902-2-171-АС-4 План перекрытия. Узлы №№1-8. Детали ТП 902-2-171-АС-5 Каркасы и сетки монолитные днища. Щелевая перегородка. Узел 9 ТП 902-2-171-АС-6 Развертки стен по осям "Д";"В";"Г";"3". Узлы №№10-17 ТП 902-2-171-АС-7 Сечения 1-1÷9-9. Узлы №№18-21 ТП 902-2-171-АС-8 Панель ПБИ-42-1. Общий вид. Армирование ТП 902-2-171-АС-9 Конструкция МЛ-1;МЛ-2;МК-1. Деревянные щиты Щ-1,Щ-2 и Щ-3 ТП 902-2-171-АС-10 Конструкция рамы фильтра мостика ММ-1. Закладные детали ТП 902-2-171-АС-11 Размещение фундаментов насосов в насосной. Узлы 22;23;24;25 ТП 902-2-171-ЭЛ-1 Силовое электрооборудование. Электроосвещение ТП 902-2-171-ЭЛ-2 Схемы управления электроприводами №1,2,3,7. Схема подключения. Общий вид шкафа управления ТП 902-2-171-ЭЛ-3 Шкаф управления. Схема соединений ТП 902-2-171 Технологическая часть. Заказная спецификация. Спецификация материалов, не вошедших в заказную спецификацию ТП 902-2-171 Отопление и вентиляция. Заказная спецификация. Спецификация материалов, не вошедших в заказную спецификацию ТП 902-2-171 Электроосвещение. Силовое оборудование. Заказные спецификации ТП 902-2-171 Электроосвещение. Силовое оборудование. Заказные спецификации (окончание) |
| Разработан: | Гипроавтотранс |
| Утверждён: | 30.11.1971 Минавтотранс РСФСР (Russian Federation Minavtotrans 169) |































