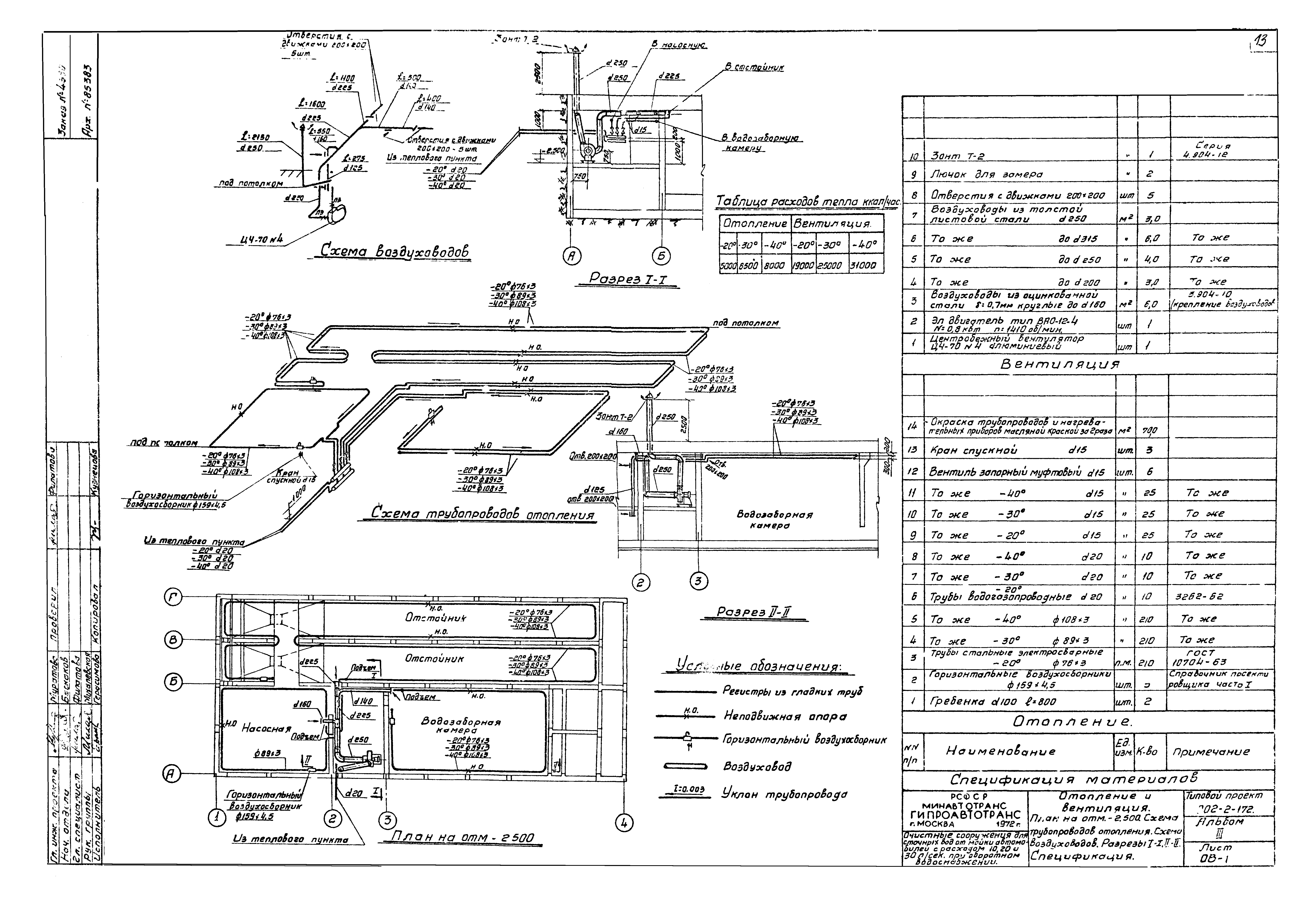
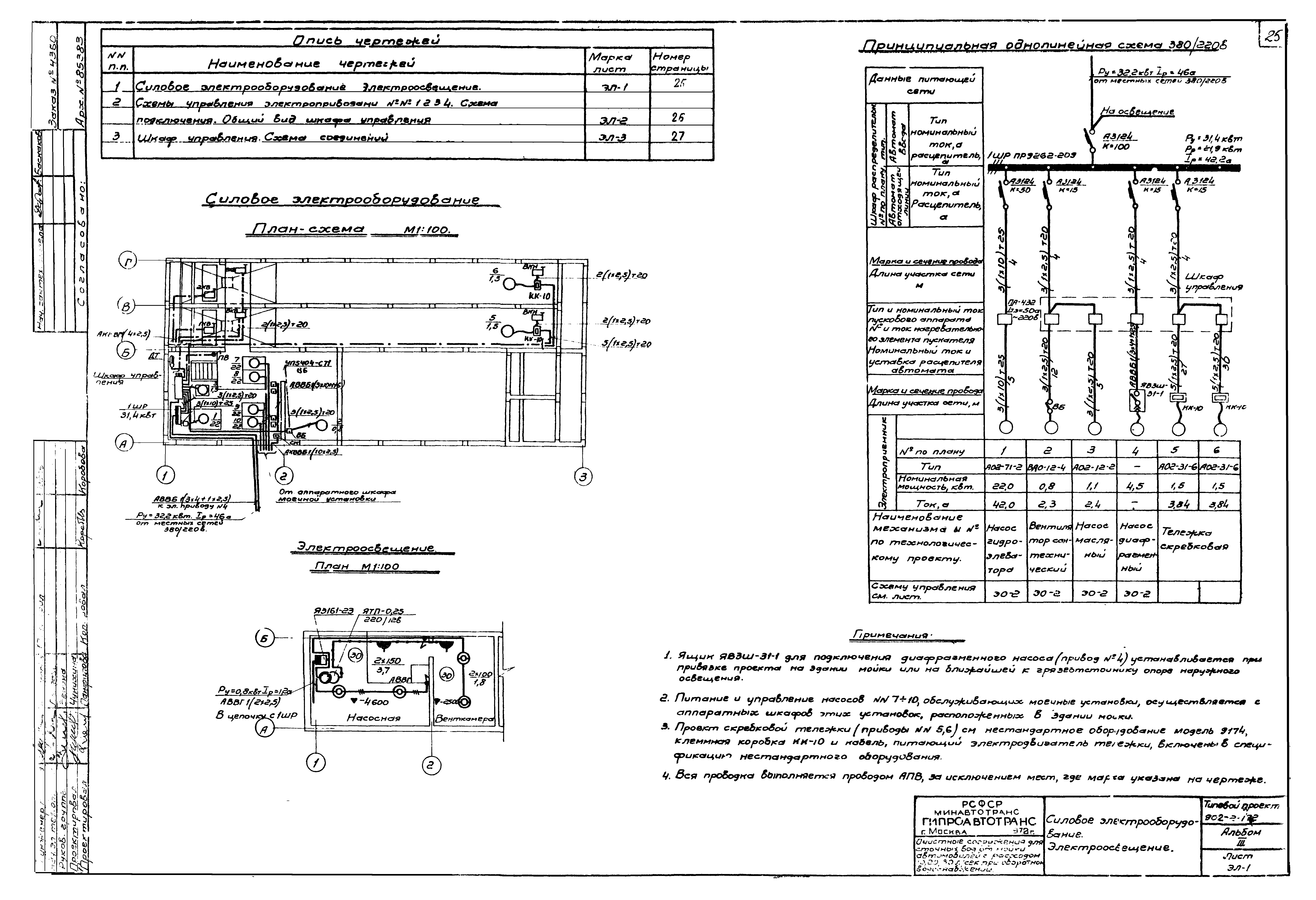
Скачать Типовой проект 902-2-172 Альбом III. Очистные сооружения с расходом 20 л/сек. Пояснительная записка. Технологические чертежи. Архитектурно-строительные чертежи. Отопление и вентиляция. Электротехнические чертежи. Заказные спецификации. Тип IIДата актуализации: 01.01.2021 Типовой проект 902-2-172
Альбом III. Очистные сооружения с расходом 20 л/сек. Пояснительная записка. Технологические чертежи. Архитектурно-строительные чертежи. Отопление и вентиляция. Электротехнические чертежи. Заказные спецификации. Тип II| Обозначение: | Типовой проект 902-2-172 | | Обозначение англ: | 902-2-172 | | Статус: | не действует | | Название рус.: | Альбом III. Очистные сооружения с расходом 20 л/сек. Пояснительная записка. Технологические чертежи. Архитектурно-строительные чертежи. Отопление и вентиляция. Электротехнические чертежи. Заказные спецификации. Тип II | | Дата добавления в базу: | 01.09.2013 | | Дата актуализации: | 01.01.2021 | | Дата введения: | 30.05.1972 | | Дата окончания срока действия: | 01.01.1986 | | Разработан: | Гипроавтотранс
| | Утверждён: | 24.05.1972 Минавтотранс РСФСР (Russian Federation Minavtotrans 50)
|
                             
|