Скачать Типовой проект 902-2-209 Альбом I. Часть 6. Фильтрующие колодцыДата актуализации: 01.01.2021
|
| Обозначение: | Типовой проект 902-2-209 |
| Обозначение англ: | 902-2-209 |
| Статус: | не действует |
| Название рус.: | Альбом I. Часть 6. Фильтрующие колодцы |
| Дата добавления в базу: | 01.09.2013 |
| Дата актуализации: | 01.01.2021 |
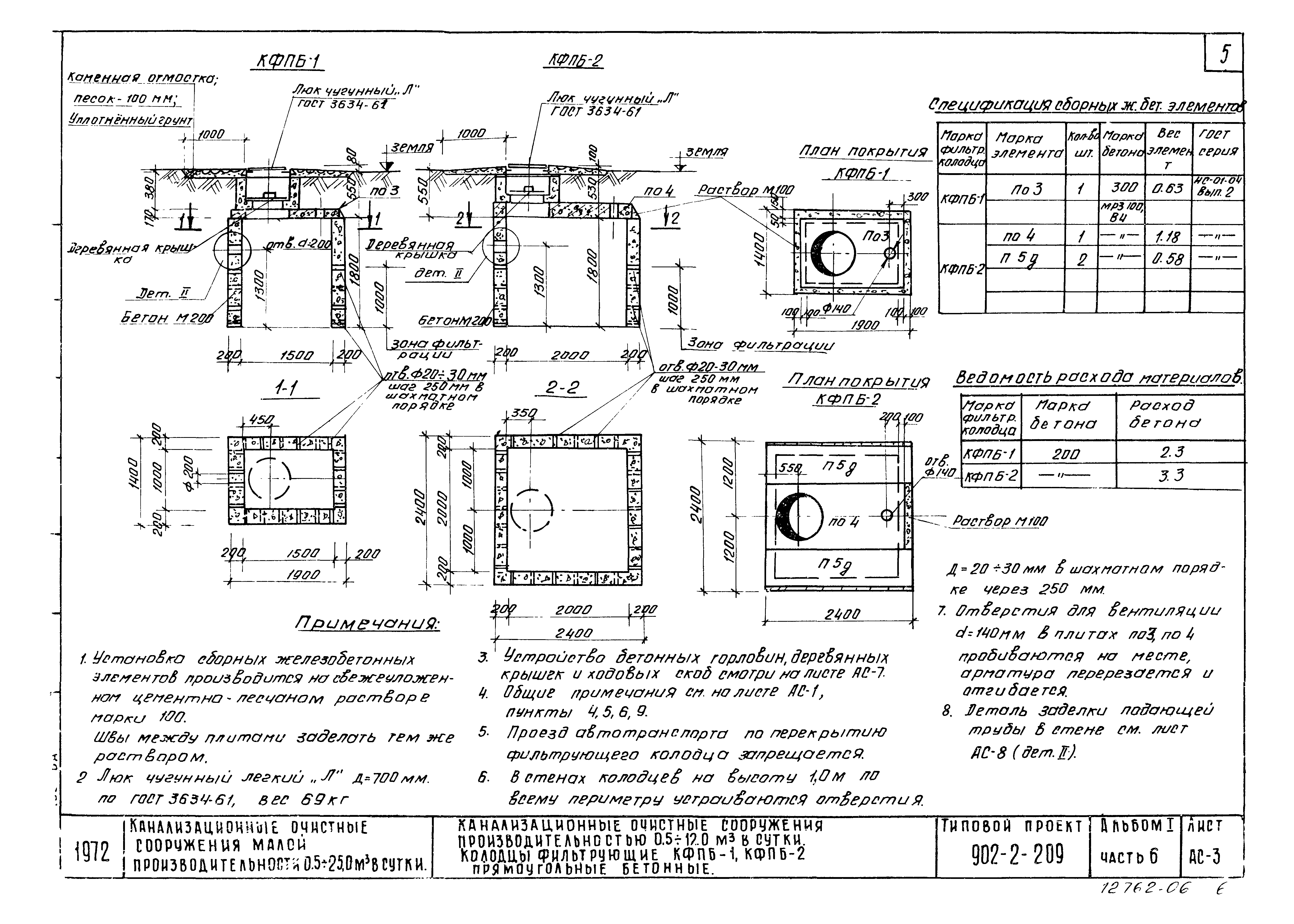
| Оглавление: | ТП 902-2-209 Титульный лист ТП 902-2-209 Содержание альбома ТП 902-2-209-КГ Технологическая часть ТП 902-2-209-КГ-1 Фильтрующие колодцы из сборных железобетонных элементов и местных материалов производительностью 0.5,1.0 м³ в сутки. Схемы 1-3 ТП 902-2-209-АС-1 Колодцы фильтрующие КФКС-1,КФКС-2 круглые сборные ТП 902-2-209-АС-2 Колодцы фильтрующие КФПК-1,КФПК-2 прямоугольные кирпичные ТП 902-2-209-АС-3 Колодцы фильтрующие КФПБ-1,КФПБ-2 прямоугольные бетонные ТП 902-2-209-АС-4 Фильтрующие колодцы. Колодца КС15-2-1Б;КС20-2-1Б ТП 902-2-209-АС-5 Колодцы распределительные КРКС-1÷КРКС-4 круглые сборные ТП 902-2-209-АС-6 Колодцы распределительные КРКК,КРКБ круглые кирпичные и бетонные ТП 902-2-209-АС-7 Горловины из кирпича и бетона ТП 902-2-209-АС-8 Горловина колодца из сборного железобетона. Детали заделки труб 1-4 ТП 902-2-209-АС-9 Плиты перекрытия ПП20-1-2А, ПП15-1-2А |
| Разработан: | ЦНИИЭП |
| Утверждён: | 19.06.1973 Госгражданстрой (Gosgrazhdanstroy 132) |












