Скачать Типовой проект 902-2-212 Альбом I. Строительная, технологическая, санитарно-техническая и электрическая частиДата актуализации: 01.01.2021
|
| Обозначение: | Типовой проект 902-2-212 |
| Обозначение англ: | 902-2-212 |
| Статус: | не действует |
| Название рус.: | Альбом I. Строительная, технологическая, санитарно-техническая и электрическая части |
| Дата добавления в базу: | 01.09.2013 |
| Дата актуализации: | 01.01.2021 |
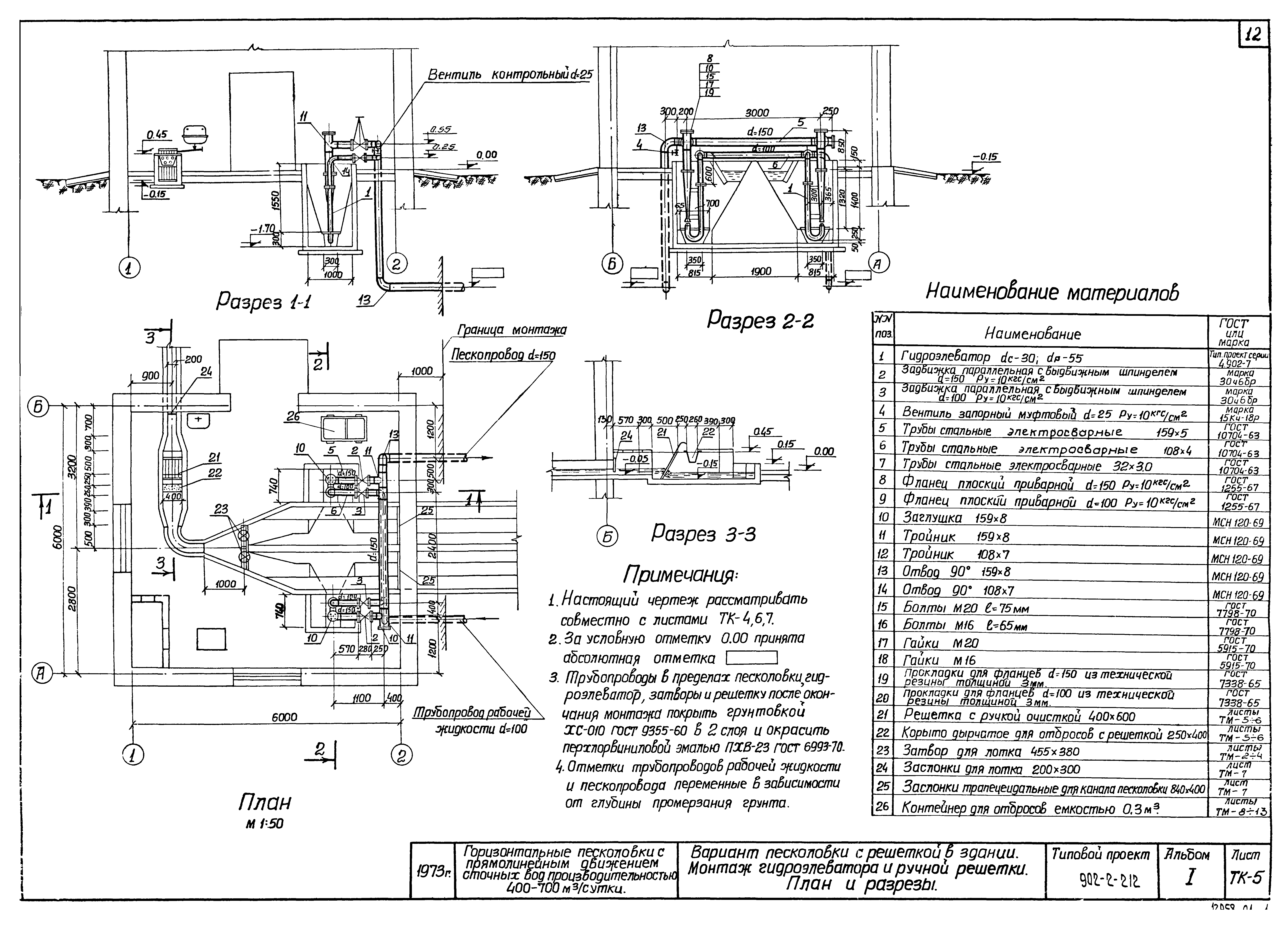
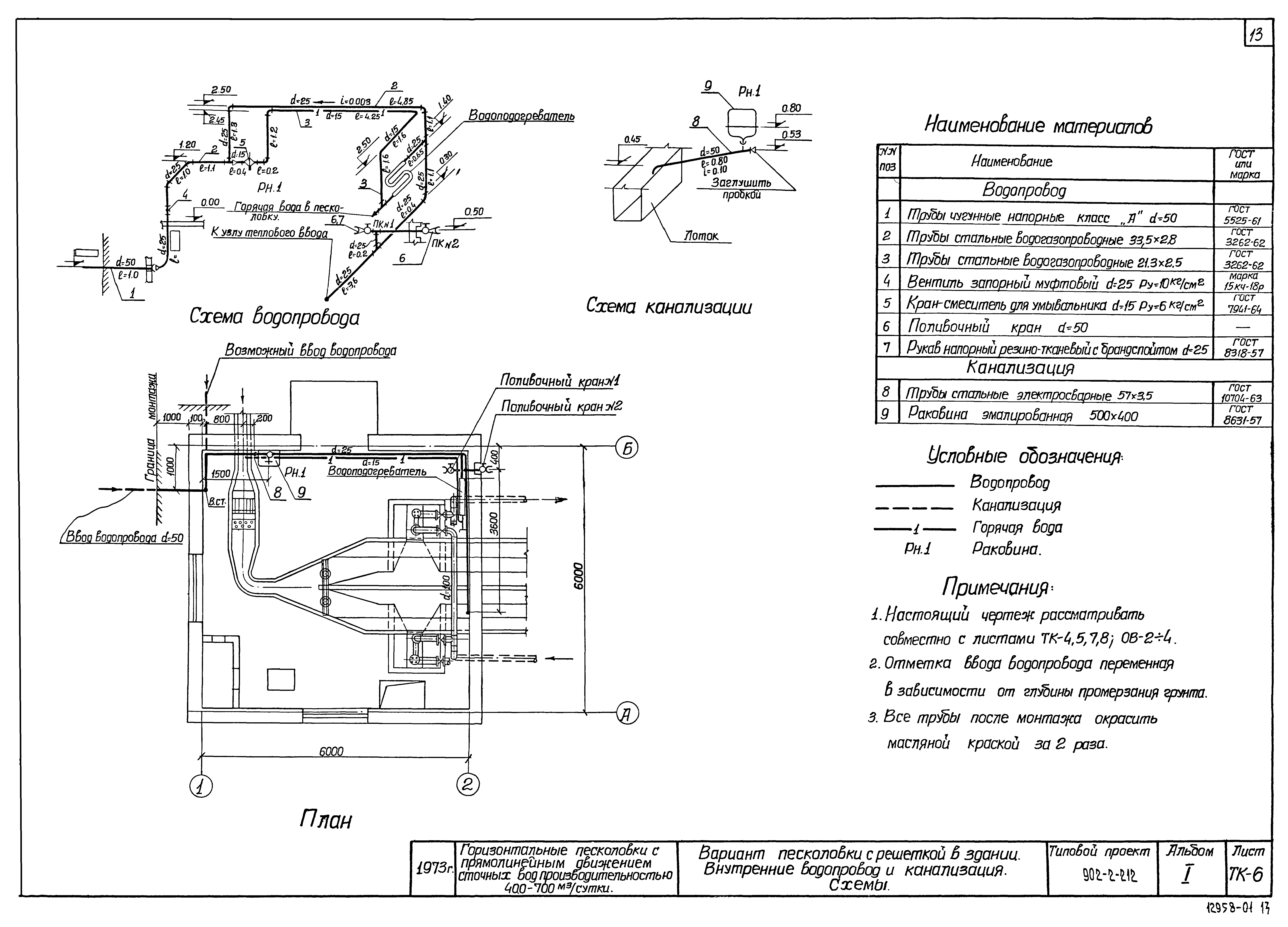
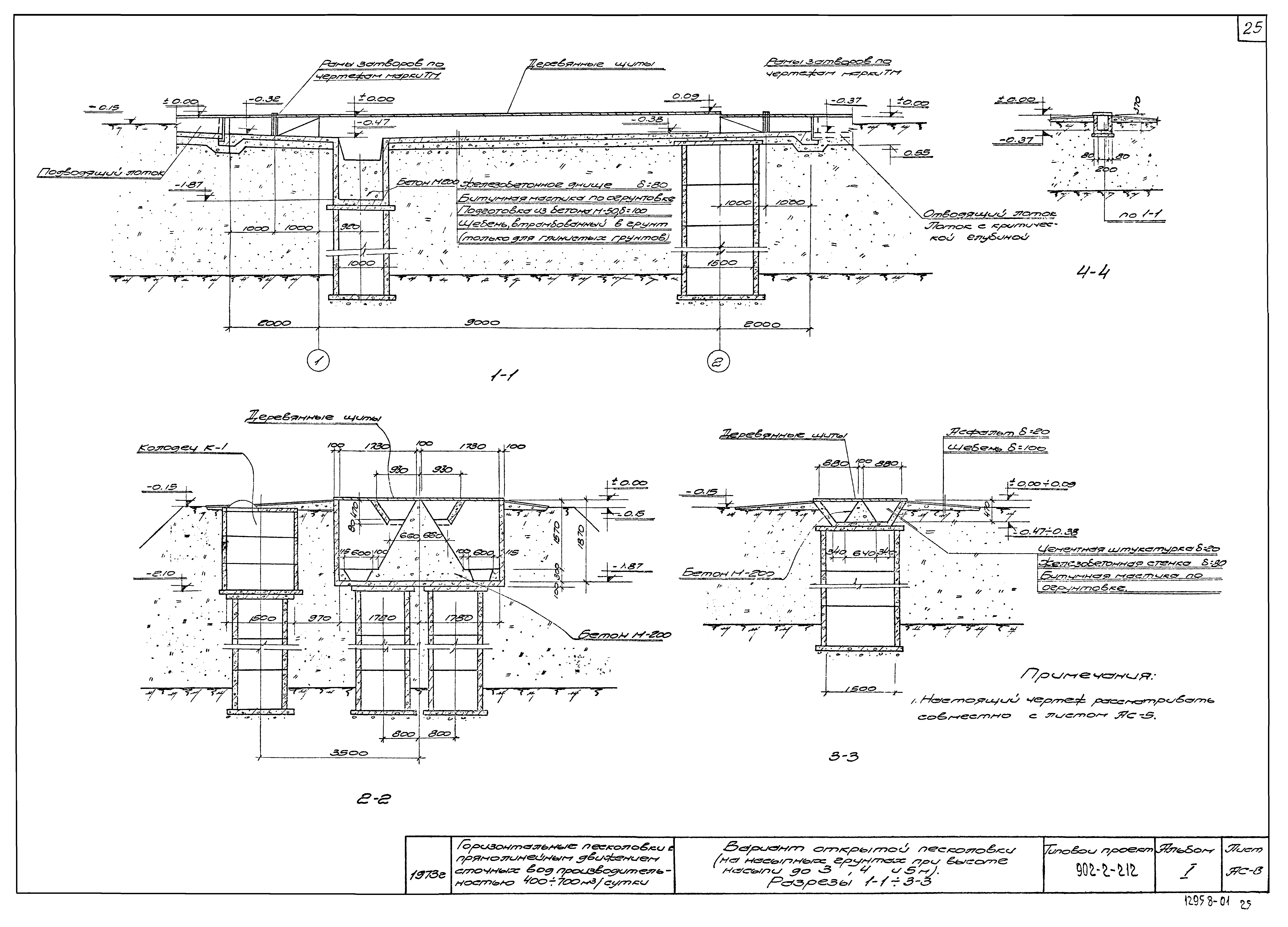
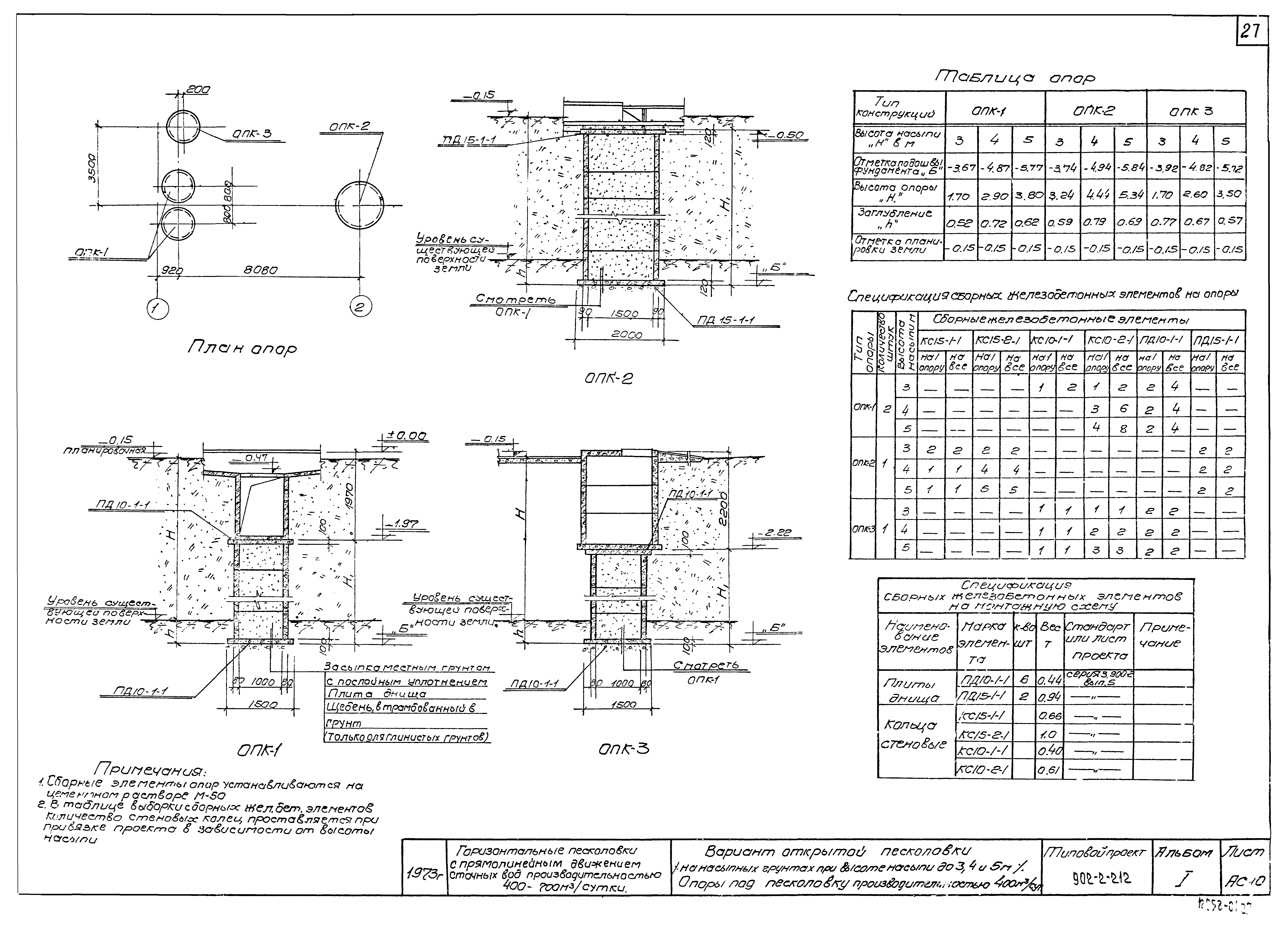
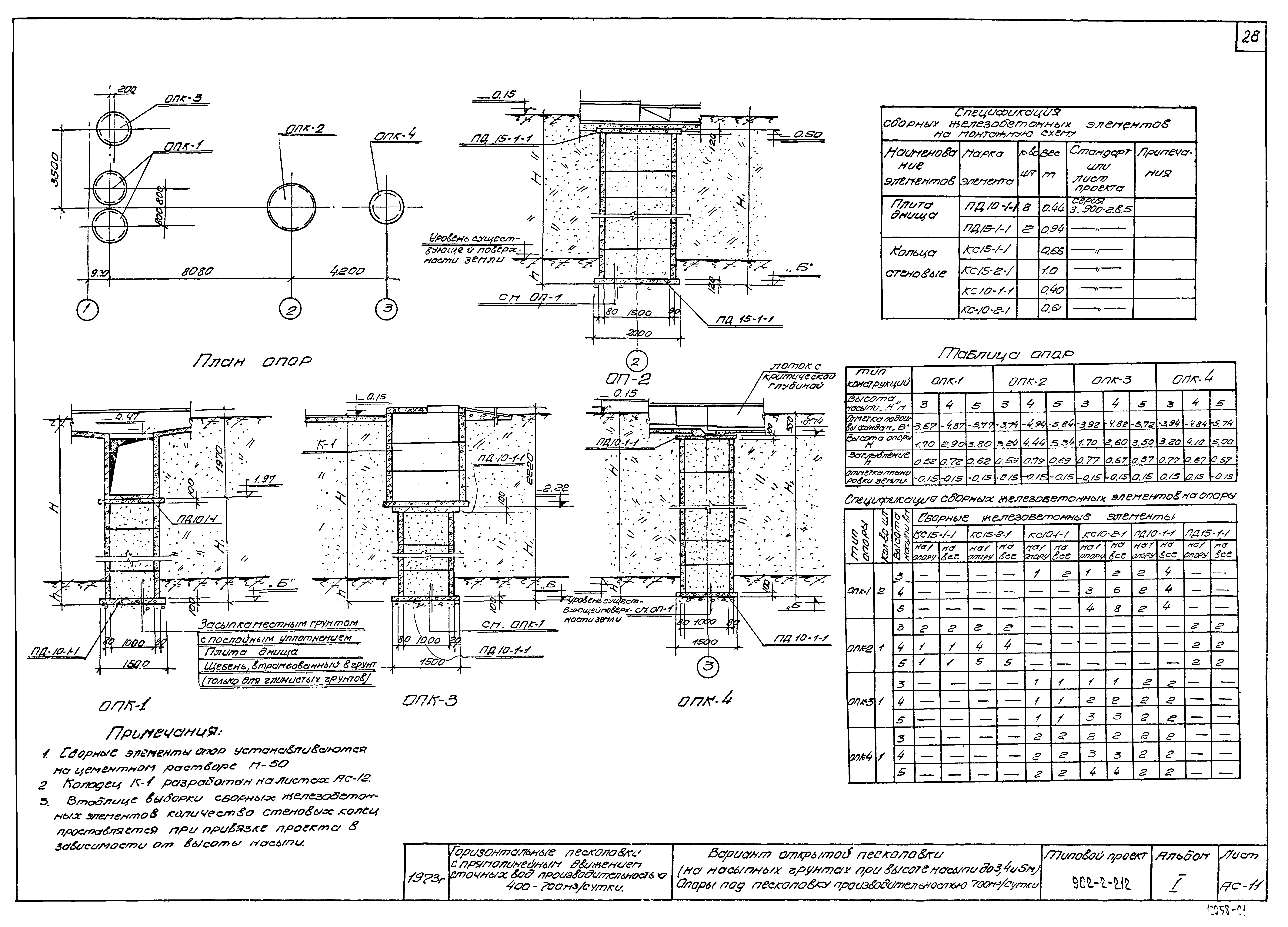
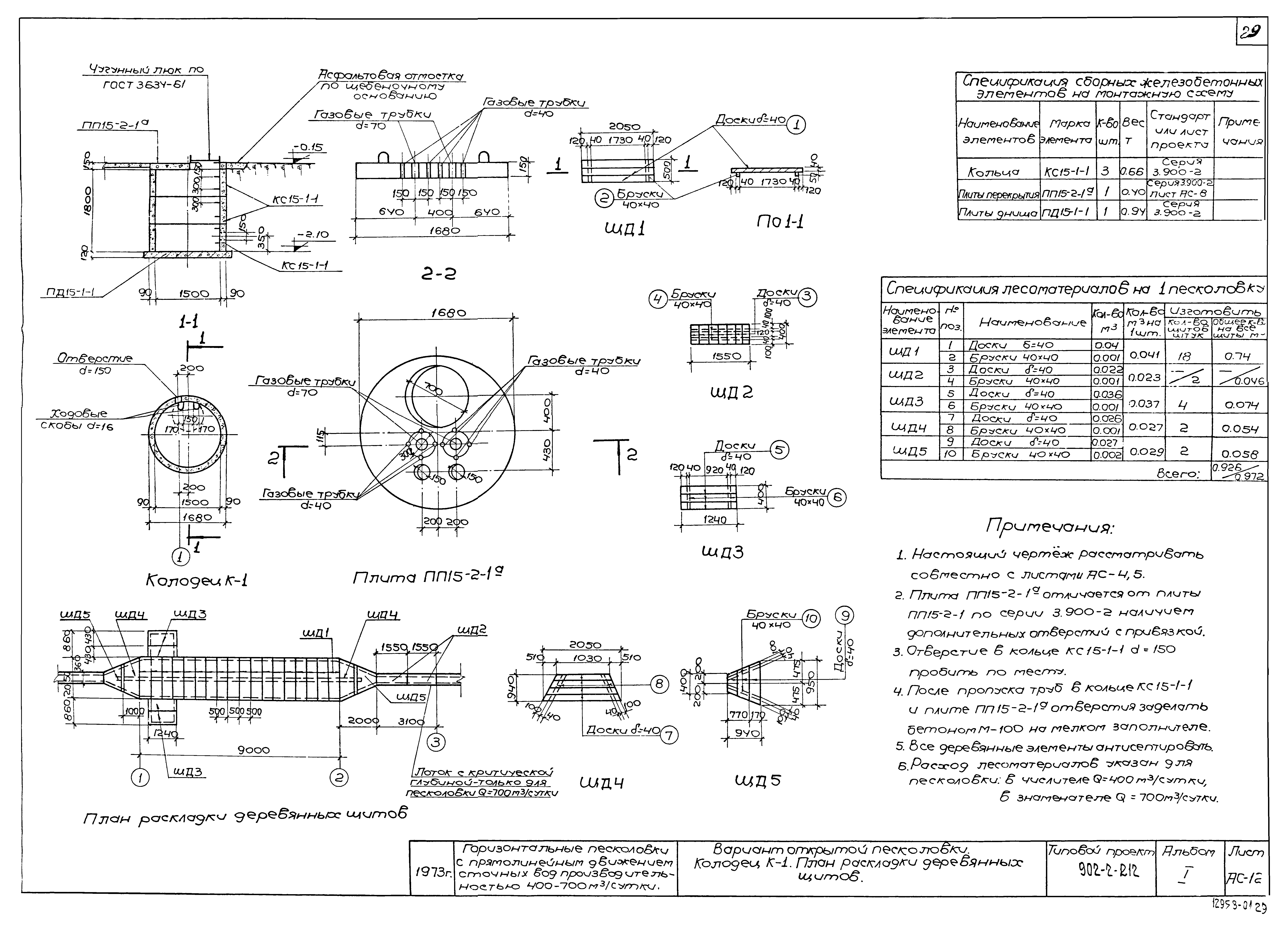
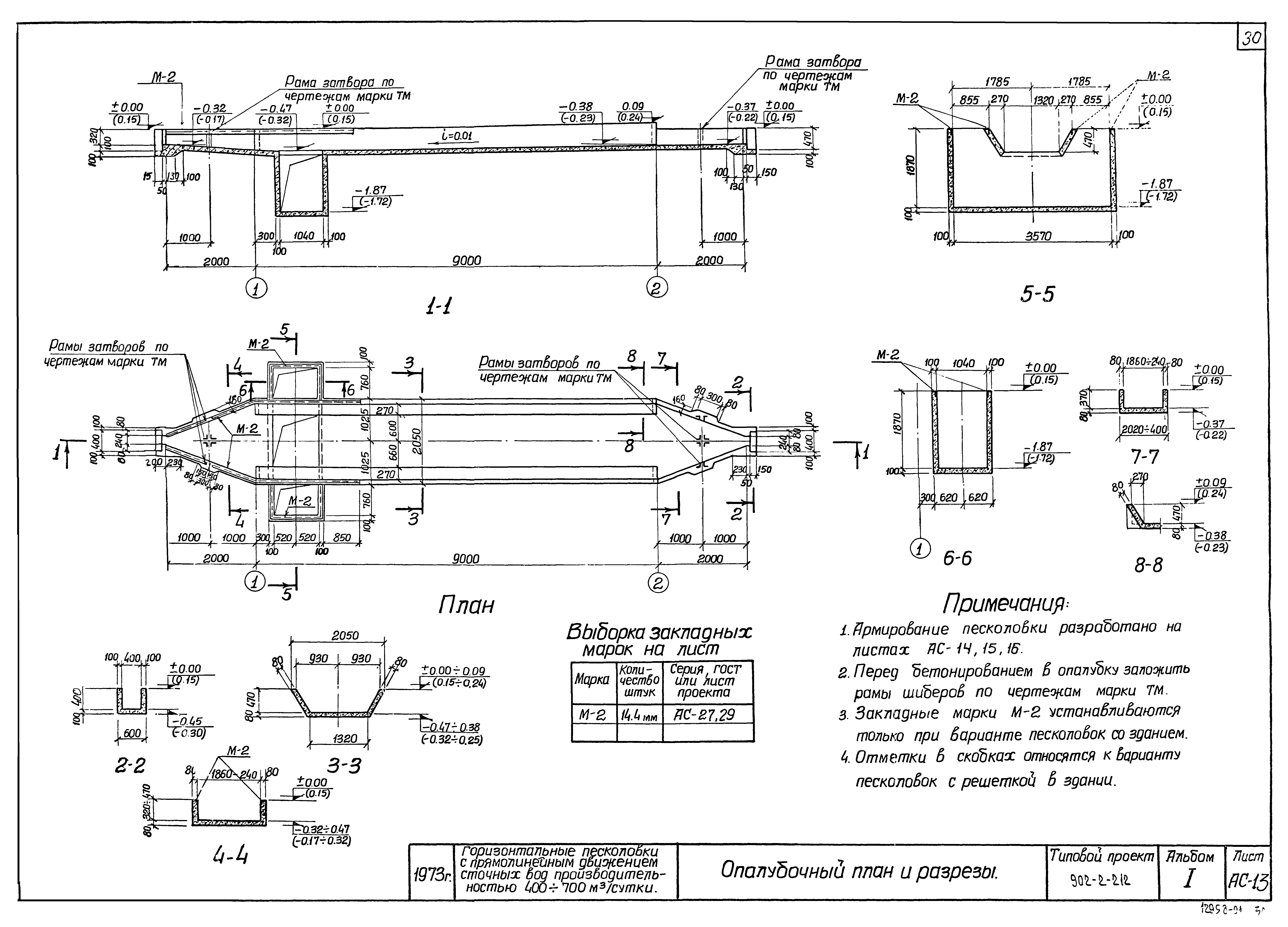
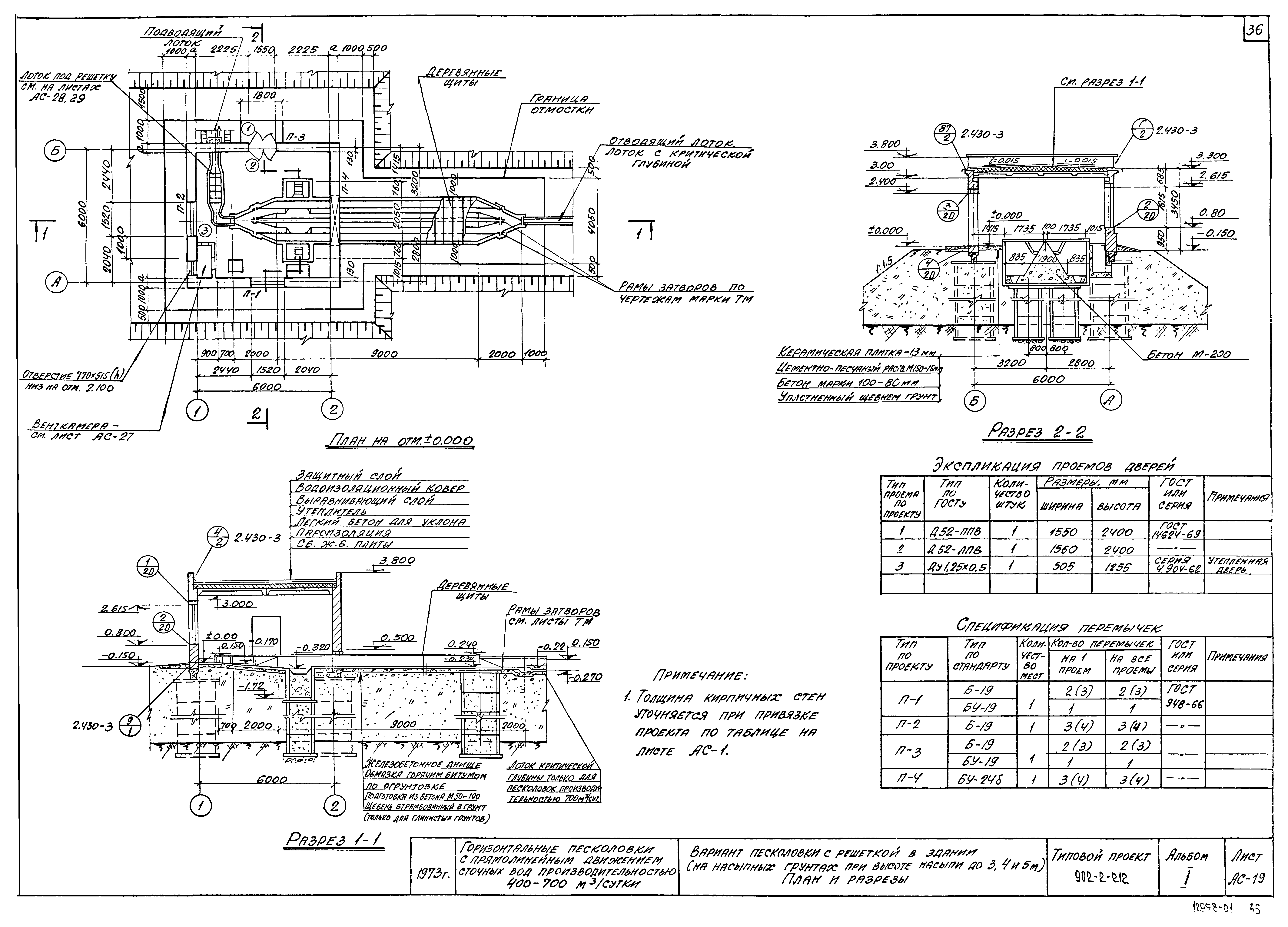
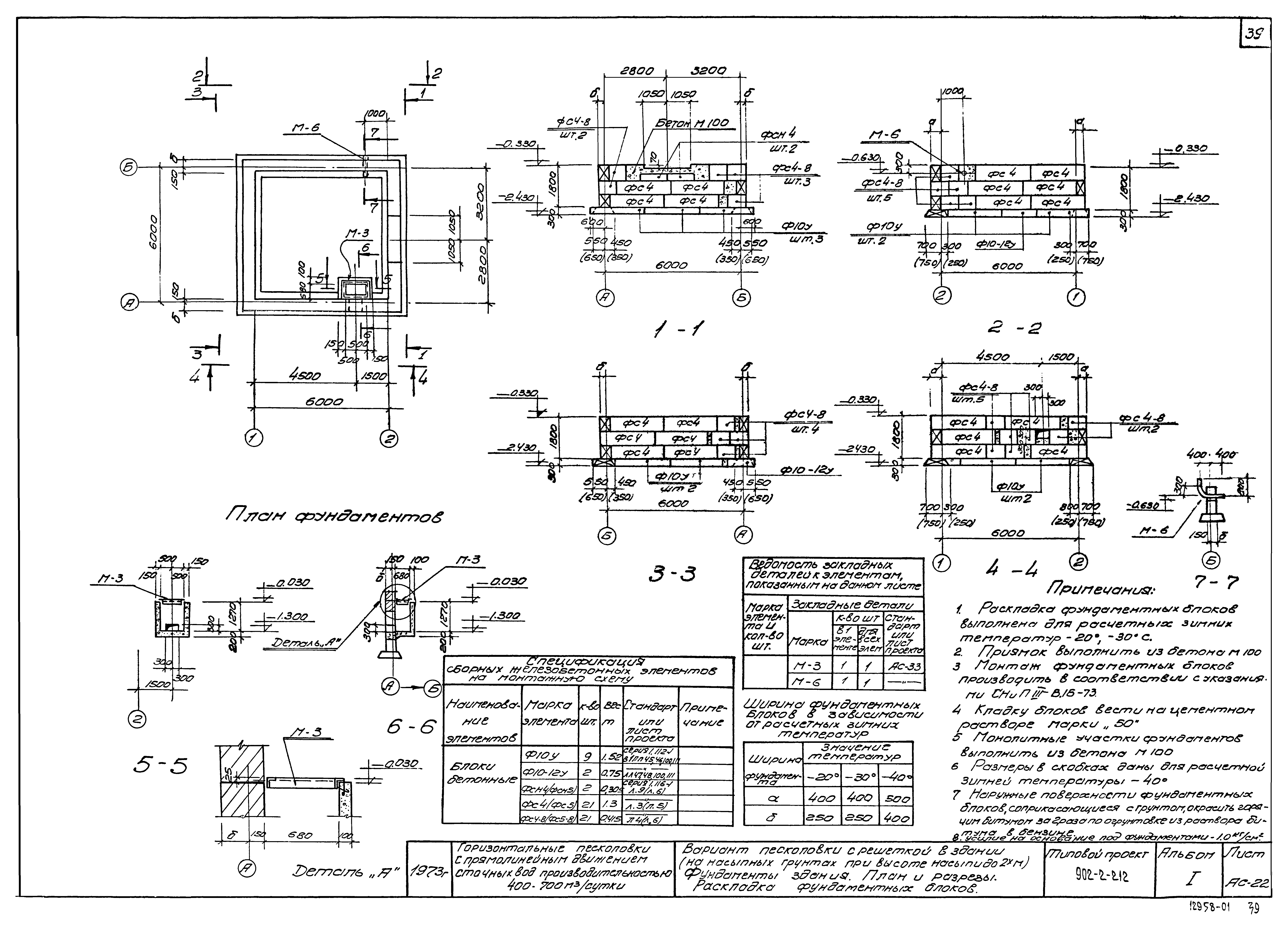
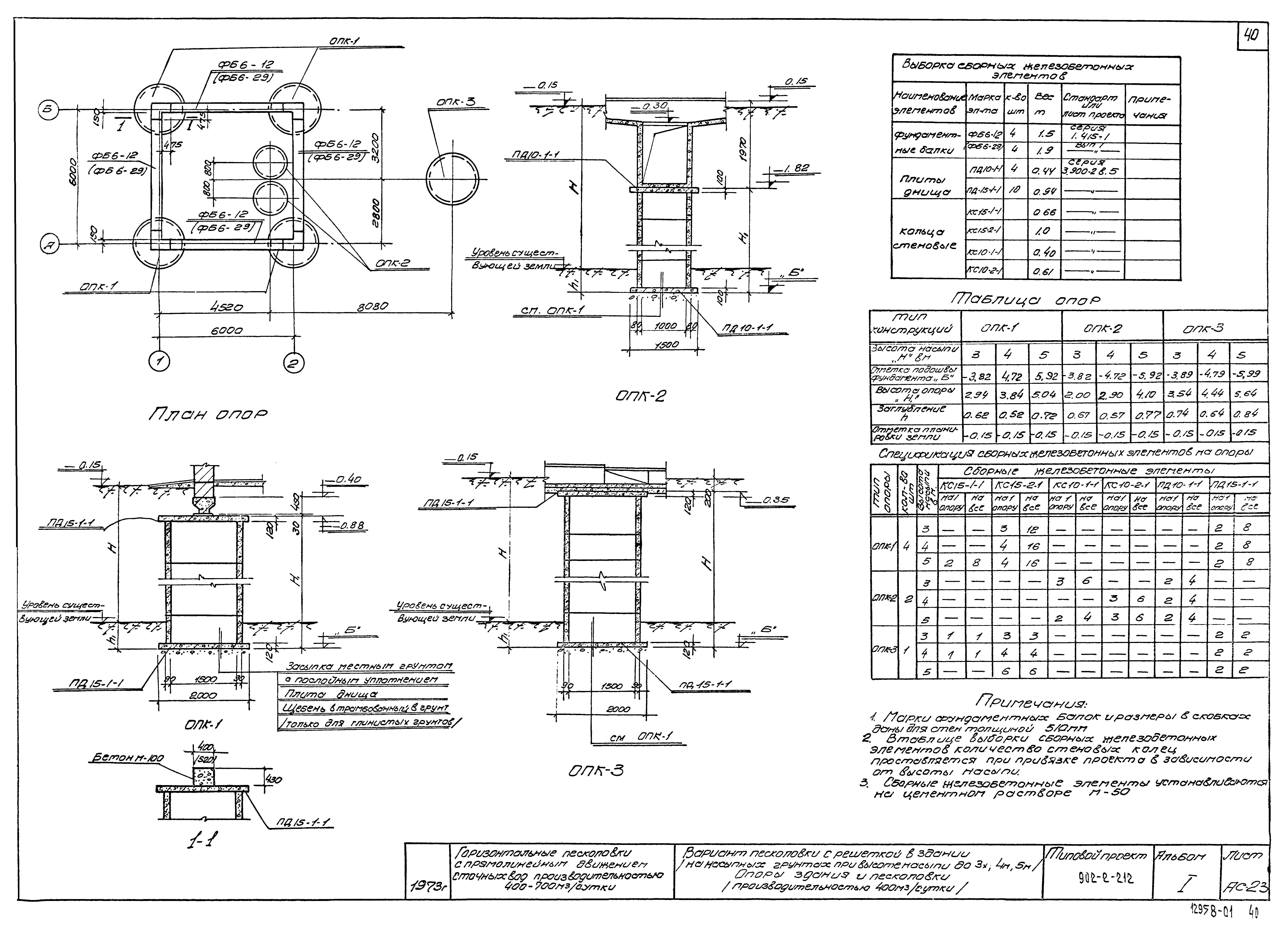
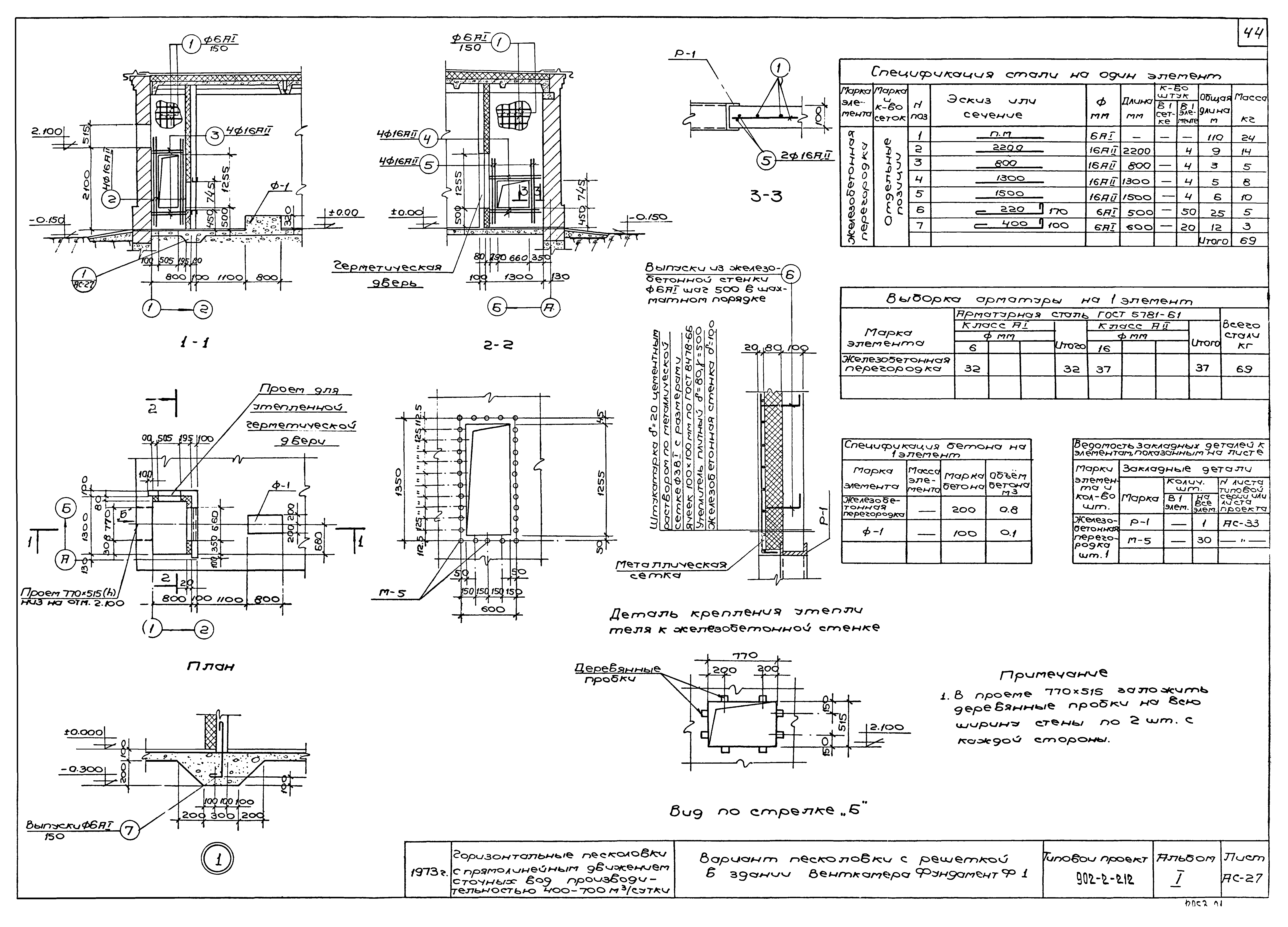
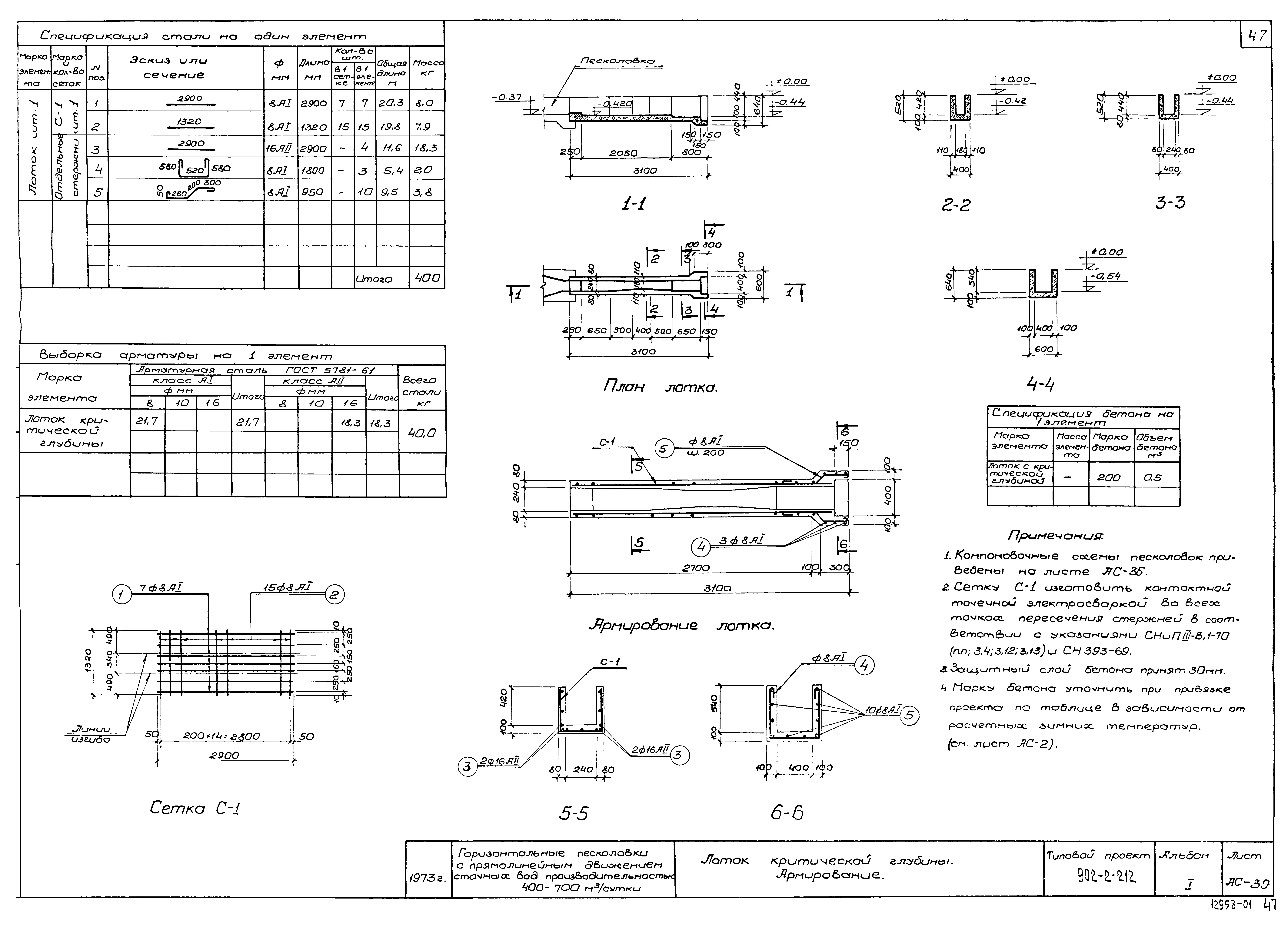
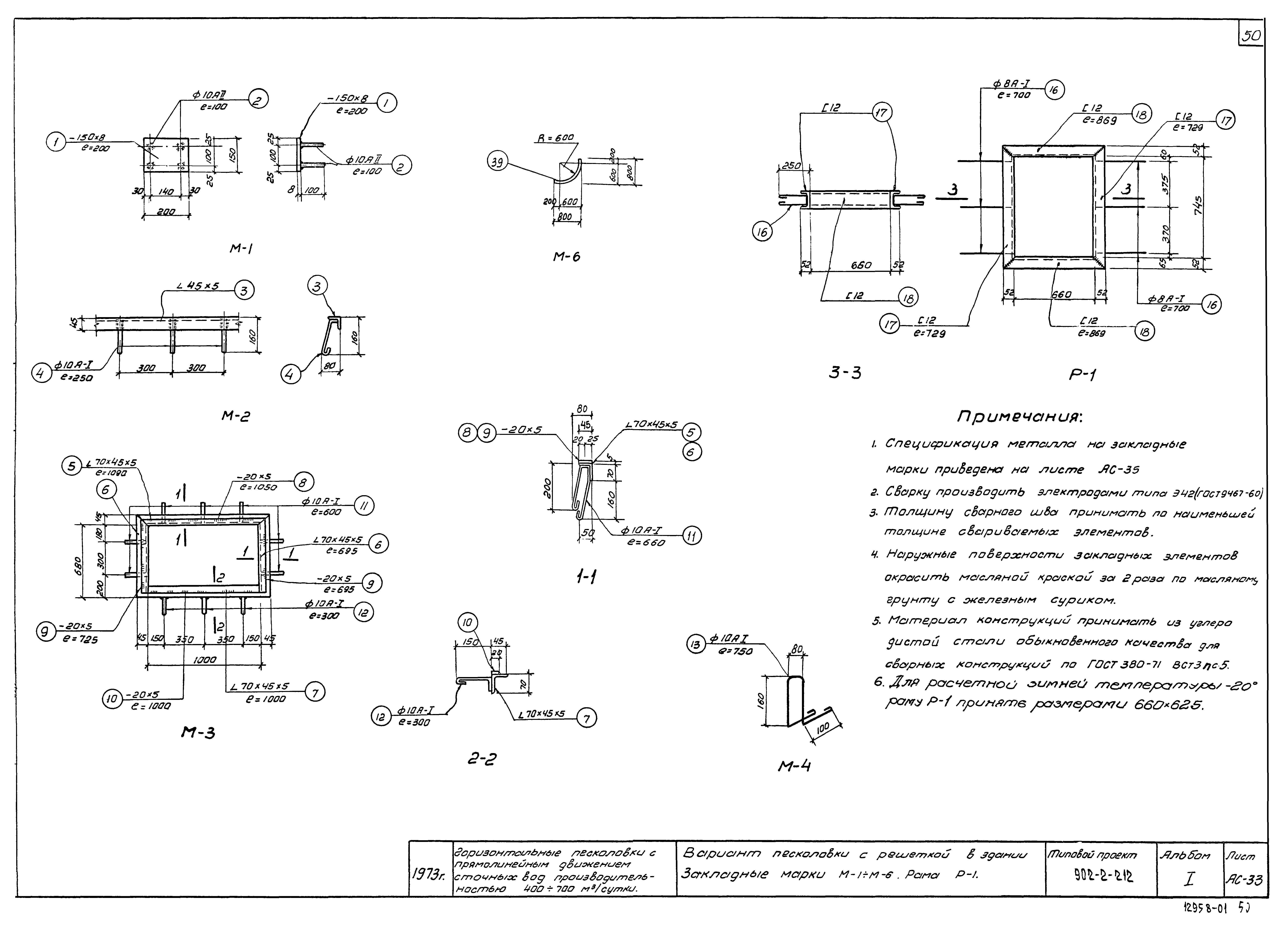
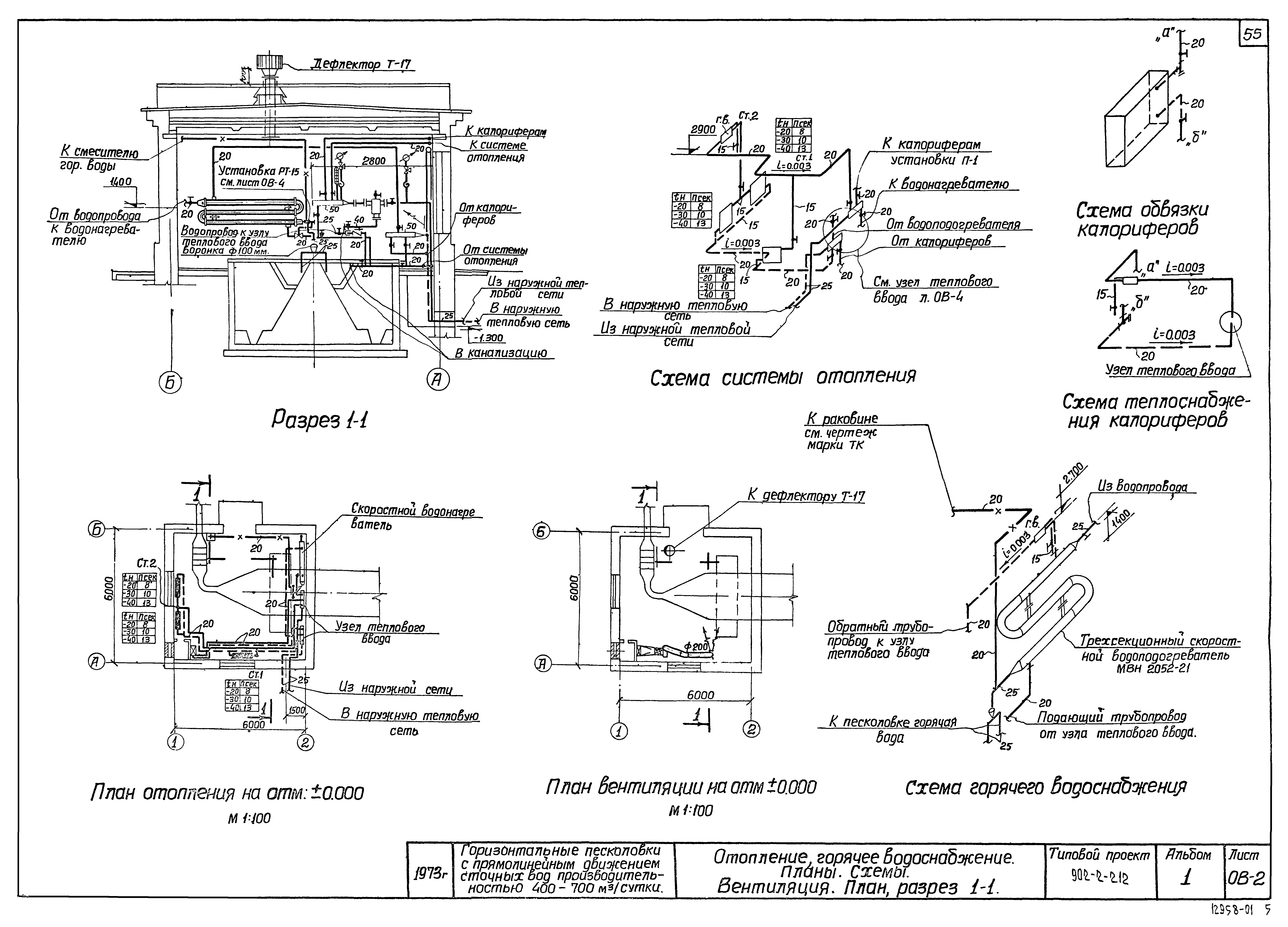
| Оглавление: | ТП 902-2-212-ПЗ Содержание альбома ТП 902-2-212-ПЗ Пояснительная записка ТП 902-2-212-ТК Технологическая часть ТП 902-2-212-ТК-1 Вариант открытой песколовки. Монтажный чертеж. План. Разрезы ТП 902-2-212-ТК-2 Вариант открытой песколовки. Монтаж гидроэлеватора. План. Разрезы ТП 902-2-212-ТК-3 Вариант открытой песколовки. План и разрез. Схема технического водопровода. Деталь узла ТП 902-2-212-ТК-4 Вариант песколовки с решеткой в здании Монтажный чертеж. План и разрезы ТП 902-2-212-ТК-5 Вариант песколовки с решеткой в здании Монтаж гидроэлеватора и ручной решетки. План и разрезы ТП 902-2-212-ТК-6 Вариант песколовки с решеткой в здании Внутренние водопровод и канализация. Схемы ТП 902-2-212-ТК-7 Вариант песколовки с решеткой в здании План. Разрез. Схема технического водопровода. Деталь узла ТП 902-2-212-ТК-8 Вариант песколовки с решеткой в здании Установка решетки с ручной очисткой и корыта дырчатого. Корыто дырчатое. Общий вид и детали ТП 902-2-212-ТК-9 Вариант песколовки с решеткой в здании Установка заслонки воздушной. Установка заслонки воздушной трапецеидальной. Общий вид и детали ТП 902-2-212-ТК-10 Вариант песколовки с решеткой в здании Установка решетки с ручной очисткой и корыта дырчатого. Общий вид и детали ТП 902-2-212-АС Архитектурно-строительная часть ТП 902-2-212-АС-1 Заглавный лист ТП 902-2-212-АС-2 Общие данные по листам марки "АС" ТП 902-2-212-АС-3 Общие данные по листам марки "АС" (продолжение) ТП 902-2-212-АС-4 Вариант открытой песколовки (на ненарушенных грунтах). План песколовки ТП 902-2-212-АС-5 Вариант открытой песколовки (на насыпных грунтах при высоте насыпи до 2,3,4,5 м). План песколовки ТП 902-2-212-АС-6 Вариант открытой песколовки (на ненарушенных грунтах). Разрезы 1-1÷3-3 ТП 902-2-212-АС-7 Вариант открытой песколовки (на насыпных грунтах при высоте насыпи до 2 м). Разрезы 1-1÷3-3 ТП 902-2-212-АС-8 Вариант открытой песколовки (на насыпных грунтах при высоте насыпи до 3,4 и 5 м). Разрезы 1-1÷3-3 ТП 902-2-212-АС-9 Вариант открытой песколовки. Разрезы 5-5÷12-12. Узлы 1,2,3 ТП 902-2-212-АС-10 Вариант открытой песколовки (на насыпных грунтах при высоте насыпи до 3,4 и 5 м). Опоры под песколовку производительностью 400м³/сутки ТП 902-2-212-АС-11 Вариант открытой песколовки (на насыпных грунтах при высоте насыпи до 3,4 и 5 м). Опоры под песколовку производительностью 700м³/сутки ТП 902-2-212-АС-12 Вариант открытой песколовки. Колодец К-1. План раскладки деревянных щитов ТП 902-2-212-АС-13 Опалубочный план и разрезы ТП 902-2-212-АС-14 Армирование песколовки. Разрезы 1-1;2=-2;10-10÷12-12 ТП 902-2-212-АС-15 Армирование песколовки. Разрезы 3-3÷9-9 ТП 902-2-212-АС-16 Армирование песколовки. Спецификация и выборка арматуры. Сетка С-1 ТП 902-2-212-АС-17 Вариант песколовки с решеткой в здании (на ненарушенных грунтах). План и разрезы ТП 902-2-212-АС-18 Вариант песколовки с решеткой в здании (на насыпных грунтах при высоте насыпи до 3 м). Планы и разрезы ТП 902-2-212-АС-19 Вариант песколовки с решеткой в здании (на насыпных грунтах при высоте насыпи до 3,4,5 м). План и разрезы ТП 902-2-212-АС-20 Вариант песколовки с решеткой в здании. Фасады и детали ТП 902-2-212-АС-21 Вариант песколовки с решеткой в здании (на ненарушенных грунтах). Фундаменты здания. План и разрезы. Раскладка фундаментных блоков ТП 902-2-212-АС-22 Вариант песколовки с решеткой в здании (на насыпных грунтах при высоте насыпи до 2 метров). Фундаменты здания. Планы. Разрезы. Раскладка фундаментных блоков ТП 902-2-212-АС-23 Вариант песколовки с решеткой в здании (на насыпных грунтах при высоте насыпи до 3,4,5 м). Опоры здания и песколовки (производительностью 400 м³/сутки) ТП 902-2-212-АС-24 Вариант песколовки с решеткой в здании (на насыпных грунтах при высоте насыпи до 3,4,5 м). Опоры здания и песколовки (производительностью 700 м³/сутки) ОПК-1,ОПК-2 ТП 902-2-212-АС-25 Вариант песколовки с решеткой в здании (на насыпных грунтах при высоте насыпи до 3,4,5 м). Опоры здания и песколовки (производительностью 700 м³/сутки) ОПК-3,ОПК-4 ТП 902-2-212-АС-26 Вариант песколовки с решеткой в здании. Монтажный план покрытия. План опорных подушек ТП 902-2-212-АС-27 Вариант песколовки с решеткой в здании. Венткамера. Фундамент Ф-1 ТП 902-2-212-АС-28 Вариант песколовки с решеткой в здании. Лоток под решетку. Опалубка ТП 902-2-212-АС-29 Вариант песколовки с решеткой в здании. Лоток под решетку. Армирование. Спецификация и выборка арматуры ТП 902-2-212-АС-30 Лоток критической глубина. Армирование ТП 902-2-212-АС-31 Вариант песколовки с решеткой в здании. План раскладки деревянных и металлических щитов (для производительности 400 м³/сутки) ТП 902-2-212-АС-32 Вариант песколовки с решеткой в здании. План раскладки деревянных и металлических щитов (для производительности 700 м³/сутки) ТП 902-2-212-АС-33 Вариант песколовки с решеткой в здании. Закладные марки М-1÷М-6. Рама Р-1 ТП 902-2-212-АС-34 Вариант песколовки с решеткой в здании. Щиты металлические Щ1-Щ9 ТП 902-2-212-АС-35 Вариант песколовки с решеткой в здании. Щиты металлические Щ-10÷Щ-12. Спецификация металла ТП 902-2-212-АС-36 Компоновочные схемы ТП 902-2-212-ОВ Санитарно-техническая часть ТП 902-2-212-ОВ-1 Характеристика отопительно-вентиляционного оборудования. Пояснения к проекту. Перечень стандартов типовых чертежей. Основные показатели по проекту. Условные обозначения ТП 902-2-212-ОВ-2 Отопление, горячее водоснабжение. Планы. Схемы. Вентиляция. План. Разрез 1-1 ТП 902-2-212-ОВ-3 Установка П-1. План. Разрез 1-1. Монтажная спецификация. Схемы воздуховодов системы П-1 ТП 902-2-212-ОВ-4 Узел теплового ввода. Схема. Монтажная спецификация. Установка регулятора температуры ТП 902-2-212-ОВ-5 Рама для крепления калориферов с обводным клапаном. Горизонтальный проточный воздухосборник. Управление обводным клапаном. Общий вид ТП 902-2-212-ОВ-6 Обводной клапан для калорифера. Общий вид. Детали ТП 902-2-212-ОВ-7 Управление обводным клапаном при калорифере. Детали ТП 902-2-212-ОВ-8 Лючок с заглушкой. Блок тип Б-60-II. Общий вид детали ТП 902-2-212-ЭО Электрическая часть ТП 902-2-212-ЭО-1 Силовое электрооборудование и освещение |
| Разработан: | Харьковский Водоканалпроект |
| Утверждён: | 21.01.1974 Госстрой СССР (Государственный комитет Совета Министров СССР по делам строительства) (USSR Gosstroy 7) |





























































