Скачать Типовой проект 704-9-13 Альбом I. Общая пояснительная записка. ЧертежиДата актуализации: 01.01.2021
|
| Обозначение: | Типовой проект 704-9-13 |
| Обозначение англ: | 704-9-13 |
| Статус: | не действует |
| Название рус.: | Альбом I. Общая пояснительная записка. Чертежи |
| Дата добавления в базу: | 01.09.2013 |
| Дата актуализации: | 01.01.2021 |
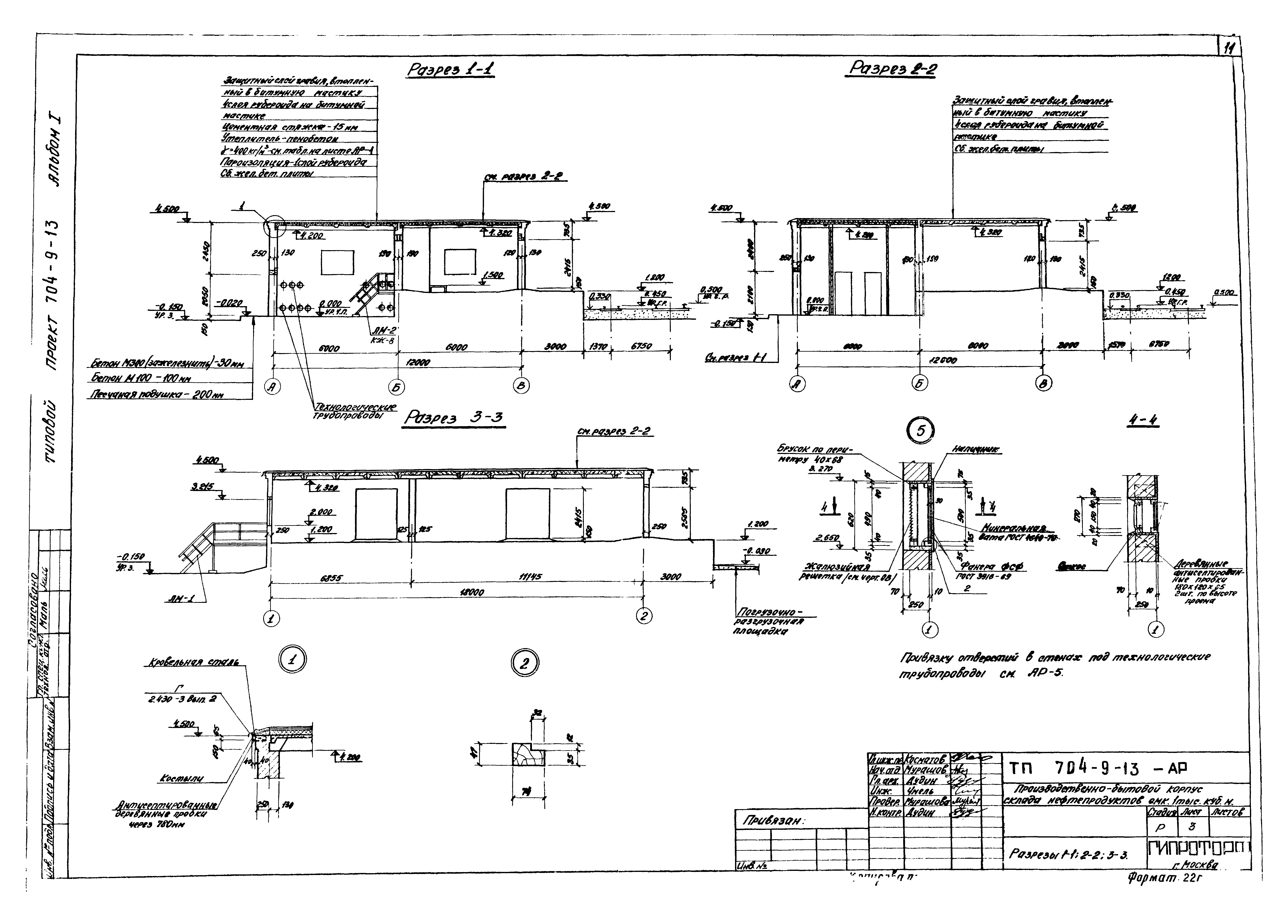
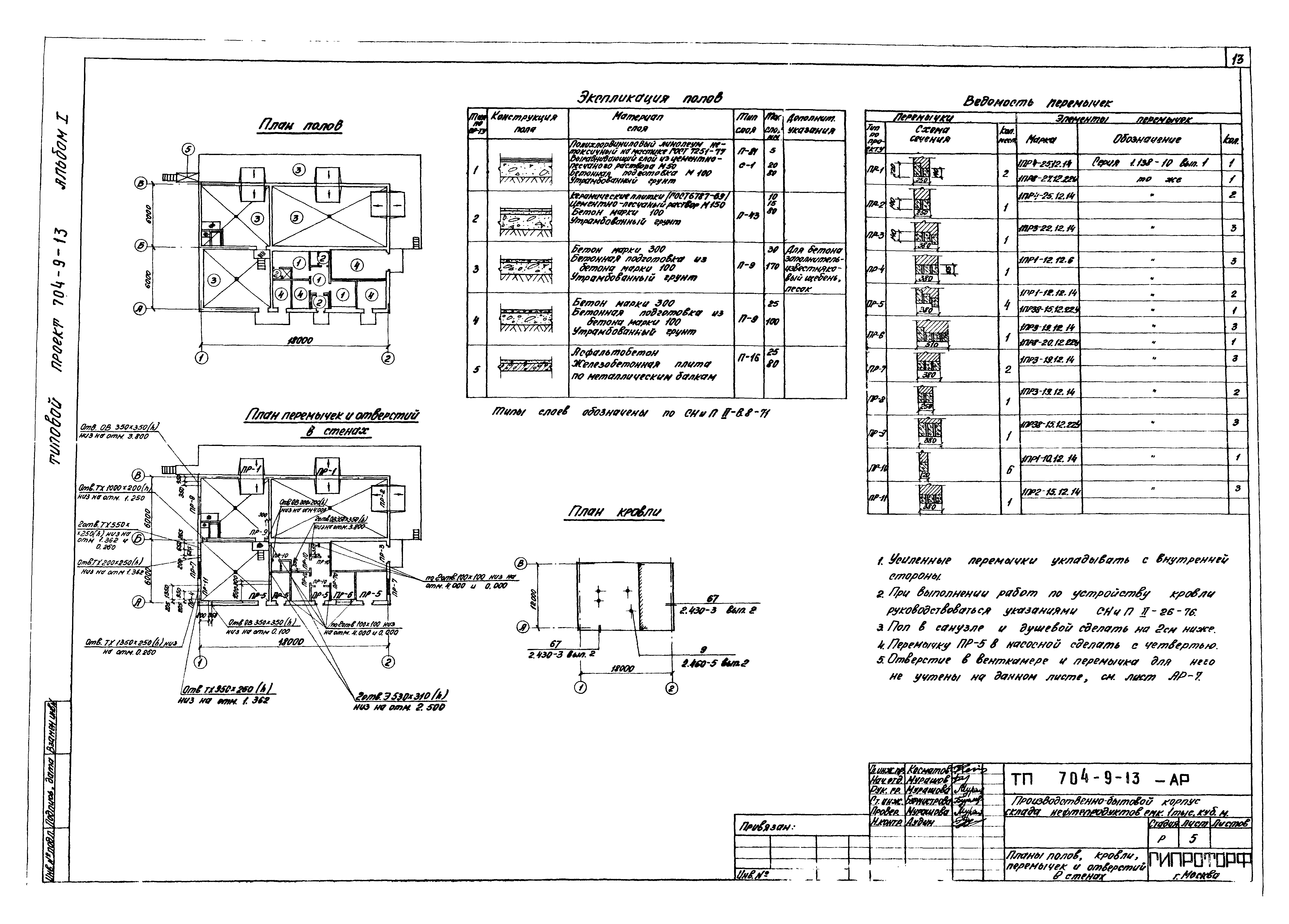
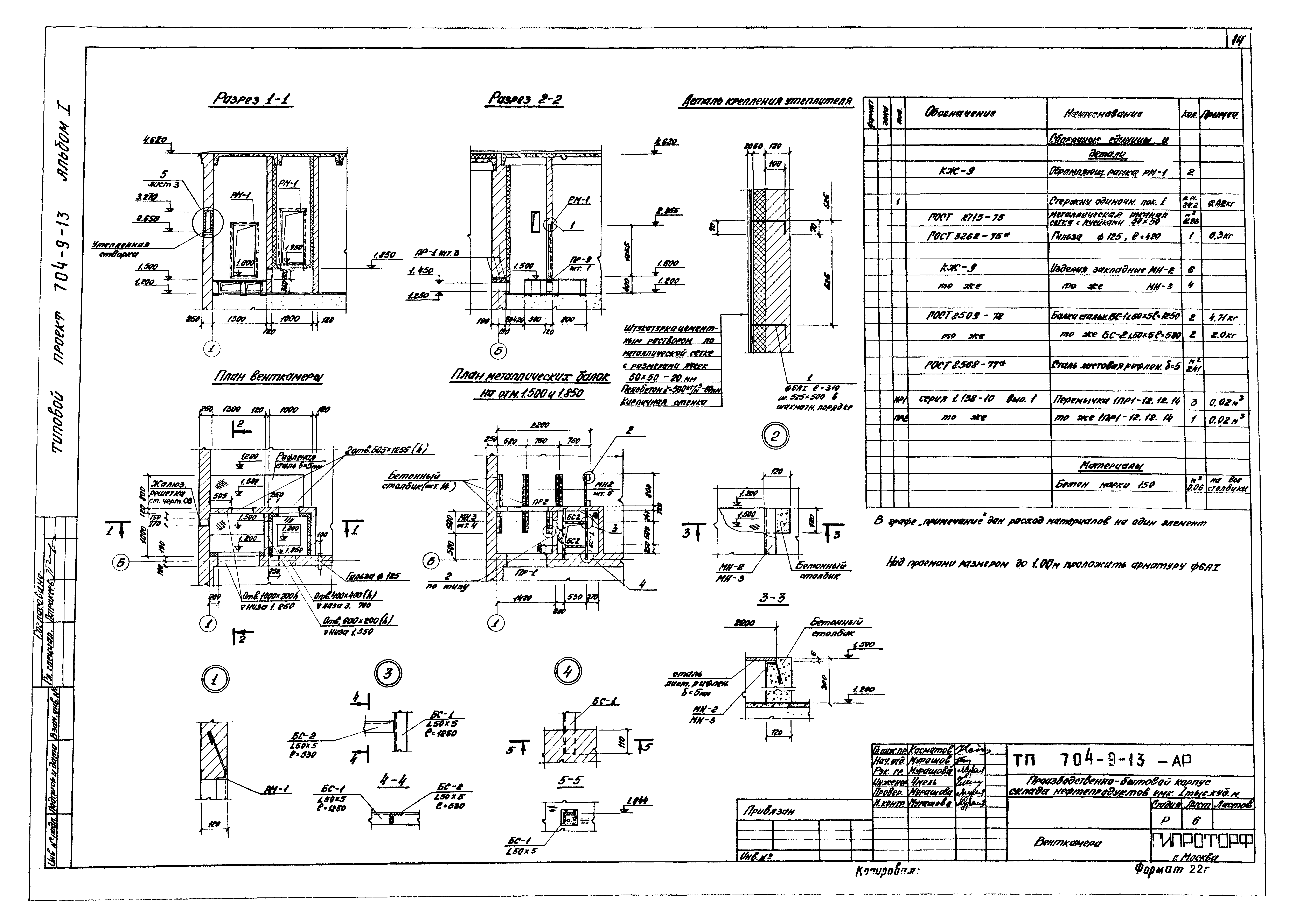
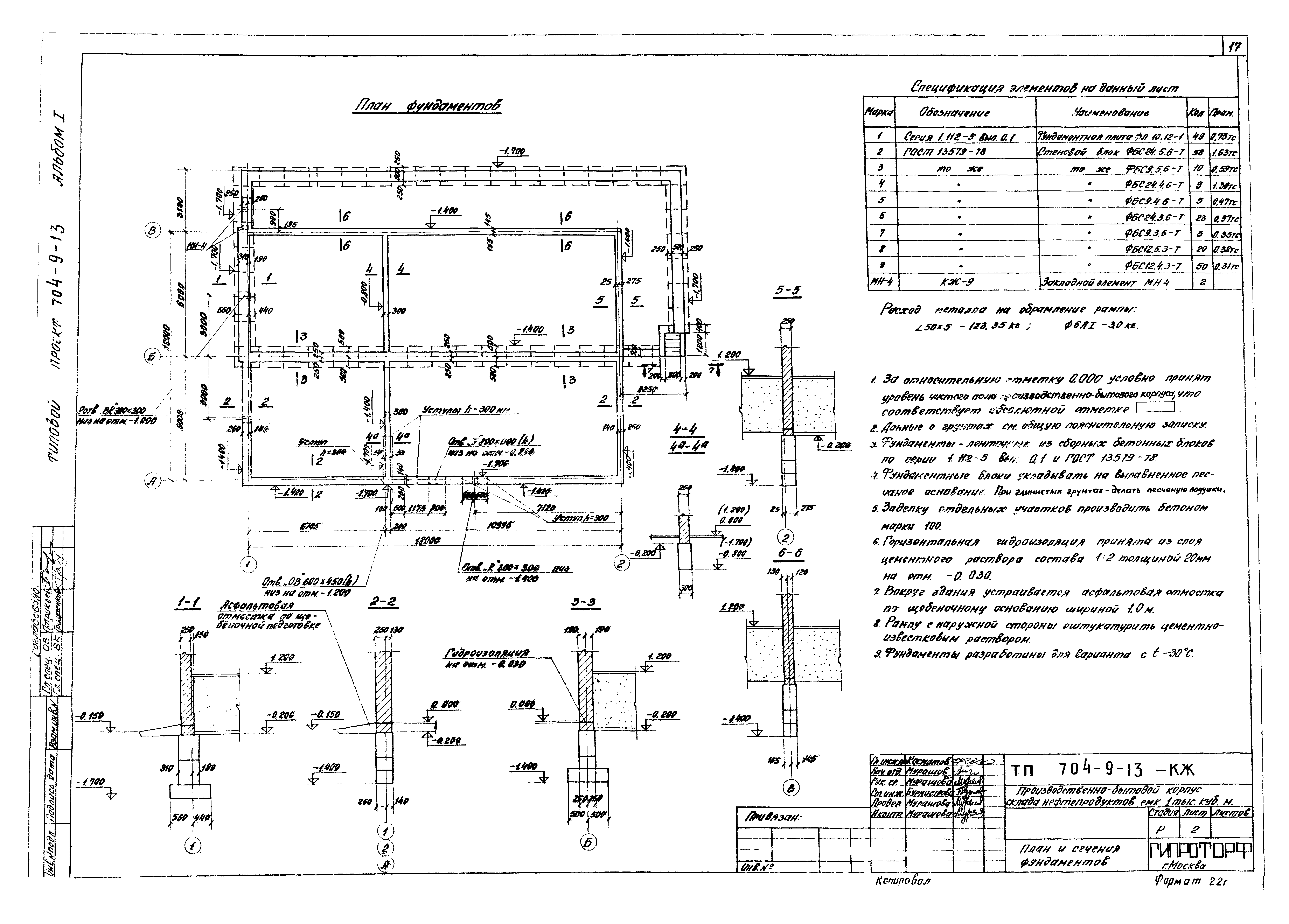
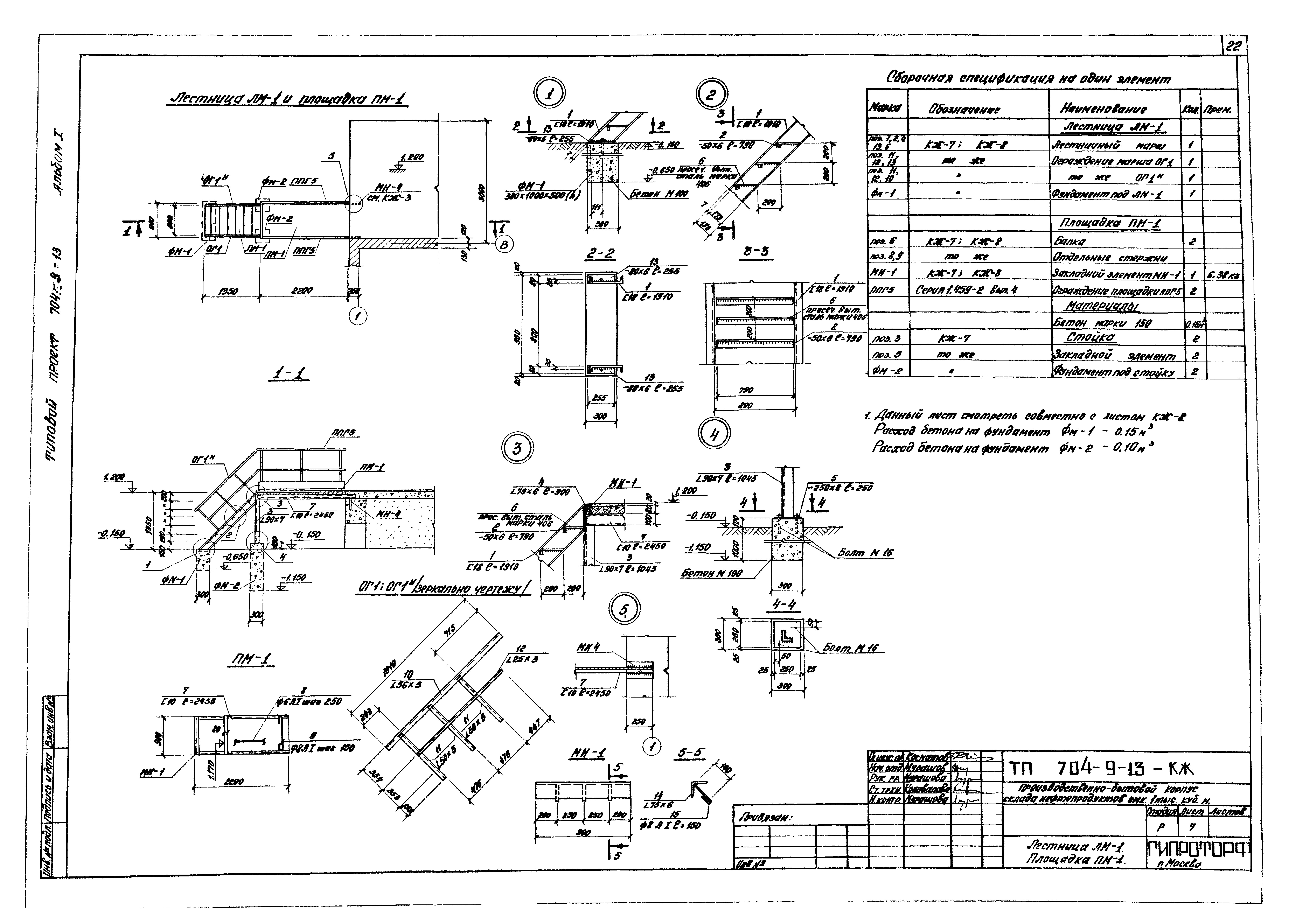
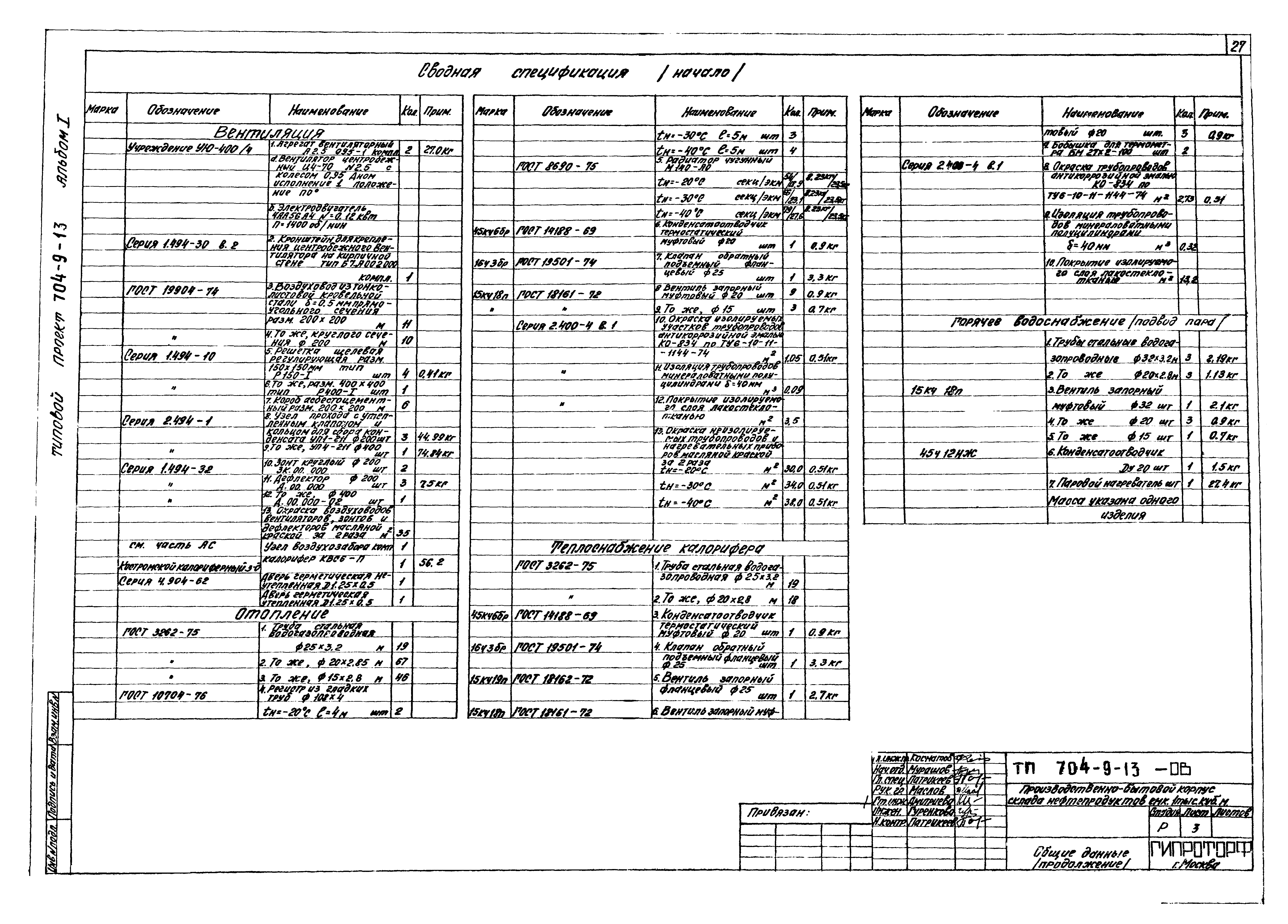
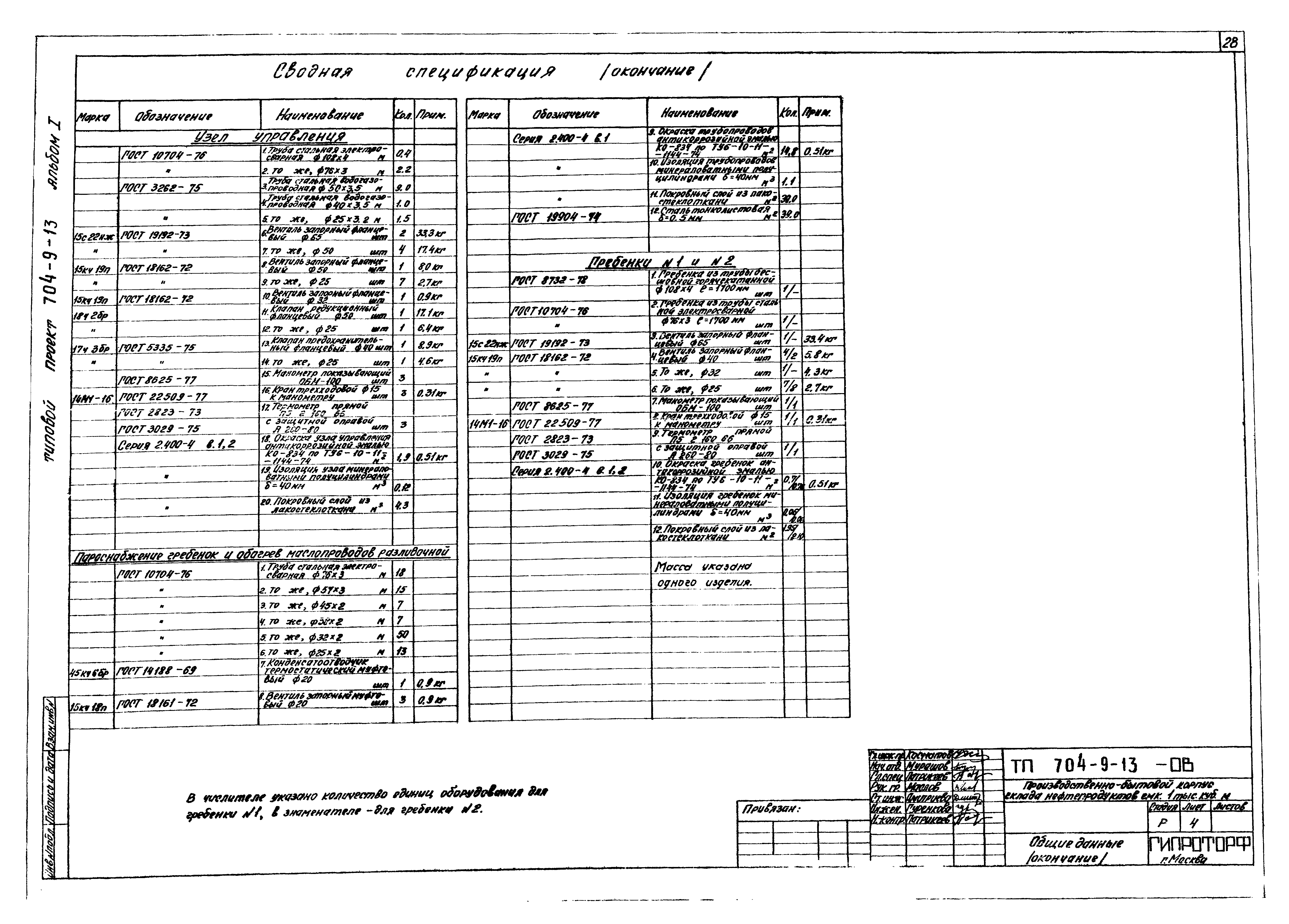
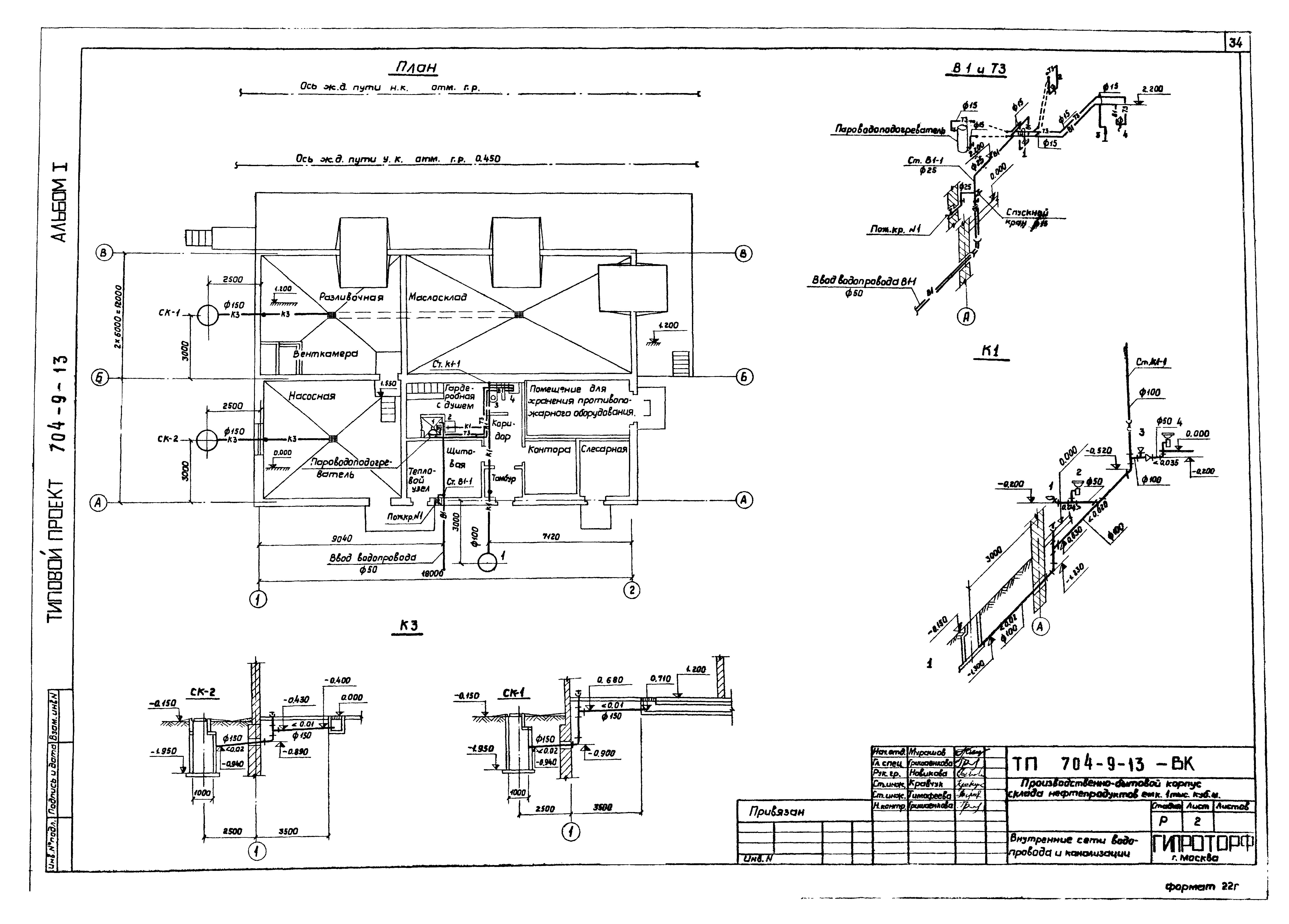
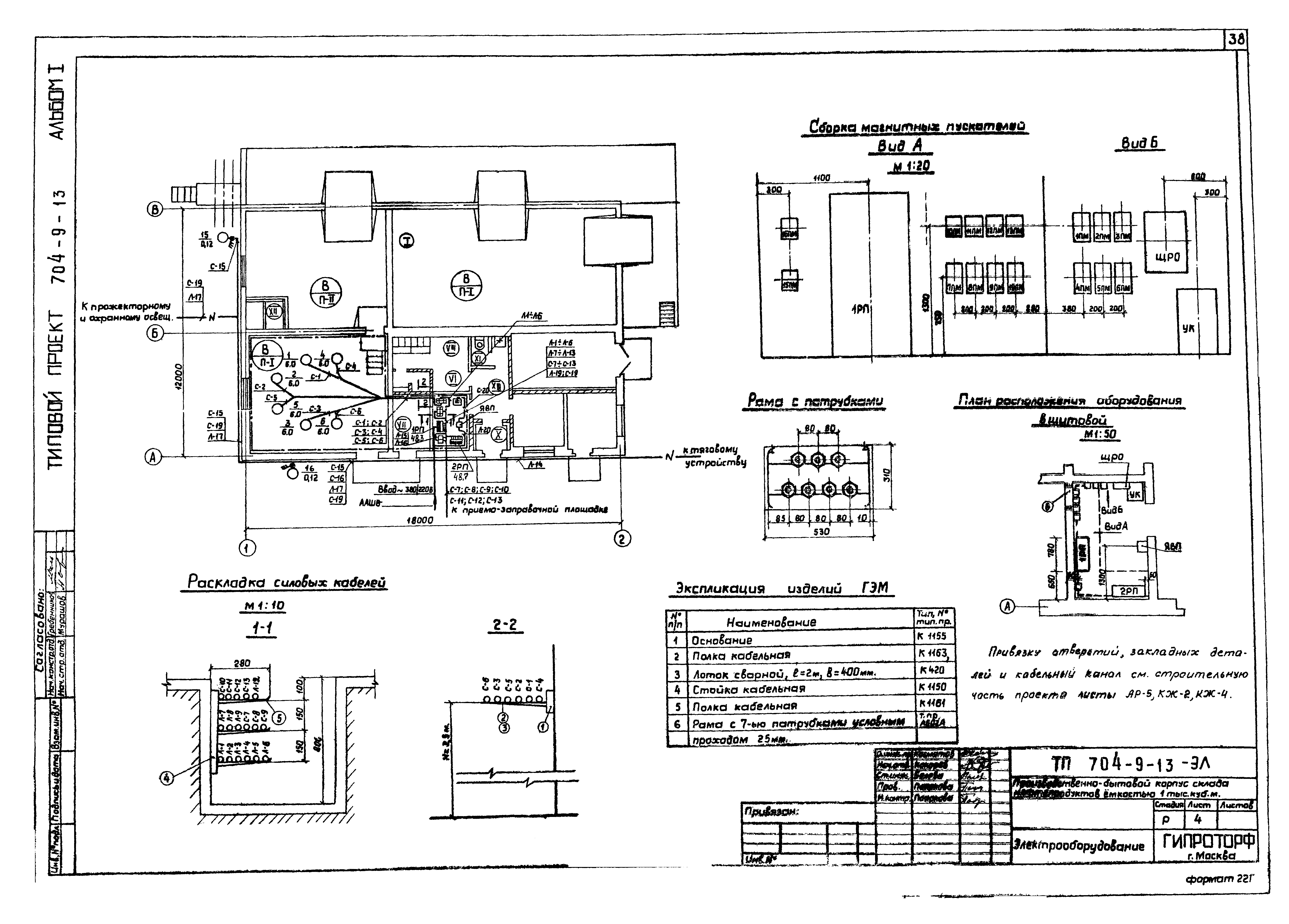
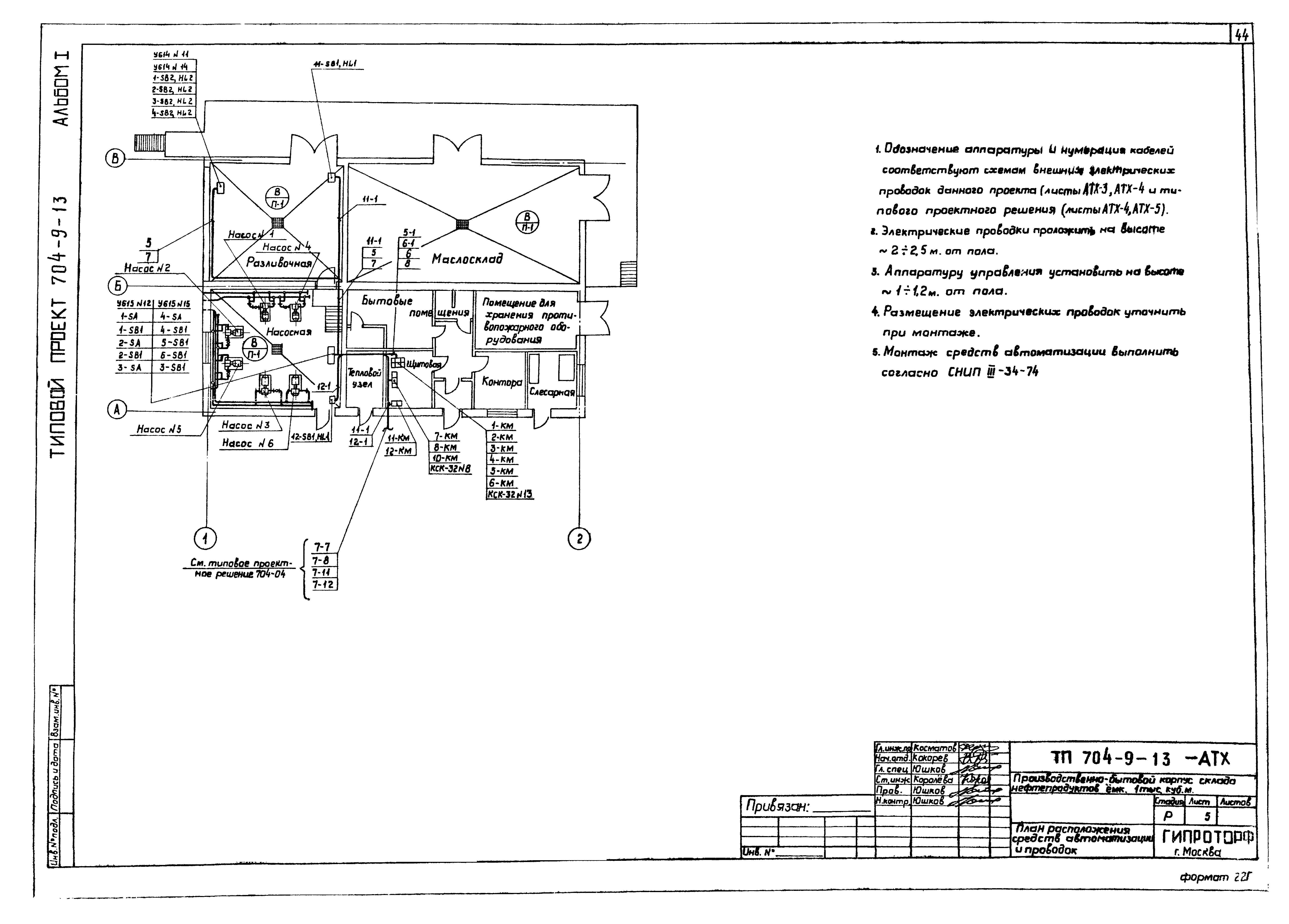
| Оглавление: | ТП 704-9-13-ПЗ-1 Общая пояснительная записка (начало) ТП 704-9-13-ПЗ-2 Общая пояснительная записка (окончание) ТП 704-9-13-ТХ-1 Общие данные ТП 704-9-13-ТХ-2 План расположения оборудования. Разрез А-А ТП 704-9-13-ТХ-3 Разрез Б-Б;В-В;Г-Г;Д-Д ТП 704-9-13-ТХ-4 Разрезы Ж-Ж;Е-Е;И-И;К-К;М-М ТП 704-9-13-ТХ-5 Монтажно-технологическая схема. Свободная спецификация ТП 704-9-13-АР-1 Общие данные ТП 704-9-13-АР-2 План на отм. 0.000 и 1.200 ТП 704-9-13-АР-3 Разрезы 1-1;2-2;3-3 ТП 704-9-13-АР-4 Фасады 1-2;2-2;А-В;В-А. Типы окон ТП 704-9-13-АР-5 План полов, кровли, перемычек и отверстий в стенах ТП 704-9-13-АР-6 Венткамера ТП 704-9-13-АР-7 Кронштейны под трубопроводы ТП 704-9-13-КЖ-1 Общие данные ТП 704-9-13-КЖ-2 План и сечения фундаментов ТП 704-9-13-КЖ-3 Раскладка блоков по осям А;Б;В;1;2 и под рампу ТП 704-9-13-КЖ-4 План подземного хозяйства ТП 704-9-13-КЖ-5 План подземного хозяйства. Сечения 5-5÷7-7. Фрагмент плана 1. Фундамент ФО-1 ТП 704-9-13-КЖ-6 Маркировочная схема плит покрытия ТП 704-9-13-КЖ-7 Лестница ЛМ-1. Площадка ПМ-1 ТП 704-9-13-КЖ-8 Лестница ЛМ-2. Металлическая площадка МП-1 ТП 704-9-13-КЖ-9 Закладные элементы. РМ-1;МН-1;МН-2;МН-3;МН-4 ТП 704-9-13-ОВ-1 Общие данные (начало) ТП 704-9-13-ОВ-2 Общие данные (продолжение) ТП 704-9-13-ОВ-3 Общие данные (продолжение) ТП 704-9-13-ОВ-4 Общие данные (окончание) ТП 704-9-13-ОВ-5 Отопление, вентиляция и теплоснабжение. План и схемы ТП 704-9-13-ОВ-6 Вентиляция. Установка системы ПЕ1 и схемы вытяжных систем ТП 704-9-13-ОВ-7 Пароснабжение гребенок и разливочной. План и схемы ТП 704-9-13-ОВ-8 Узел управления ТП 704-9-13-ВК-1 Общие данные. Спецификация ТП 704-9-13-ВК-2 Внутренние сети водопровода и канализации ТП 704-9-13-ЭЛ-1 Общие данные (начало) ТП 704-9-13-ЭЛ-2 Общие данные (окончание) ТП 704-9-13-ЭЛ-3 Расчетная схема ТП 704-9-13-ЭЛ-4 Электрооборудование ТП 704-9-13-ЭЛ-5 Электроосвещение ТП 704-9-13-АТХ-1 Общие данные. Спецификация ТП 704-9-13-АТХ-2 Схема электрическая принципиальная управления насосами Ш-40-Б ТП 704-9-13-АТХ-3 Схема электрическая принципиальная управления вентиляторами и схема внешних электрических проводок ТП 704-9-13-АТХ-4 Схема внешних электрических проводок ТП 704-9-13-АТХ-5 План расположения средств автоматизации и проводок ТП 704-9-13-СС-1 Общие данные. Связь и сигнализация |
| Разработан: | Гипроторф |
| Утверждён: | 31.12.1980 Минтоппром РСФСР (Russian Federation Mintopprom 222) |













































