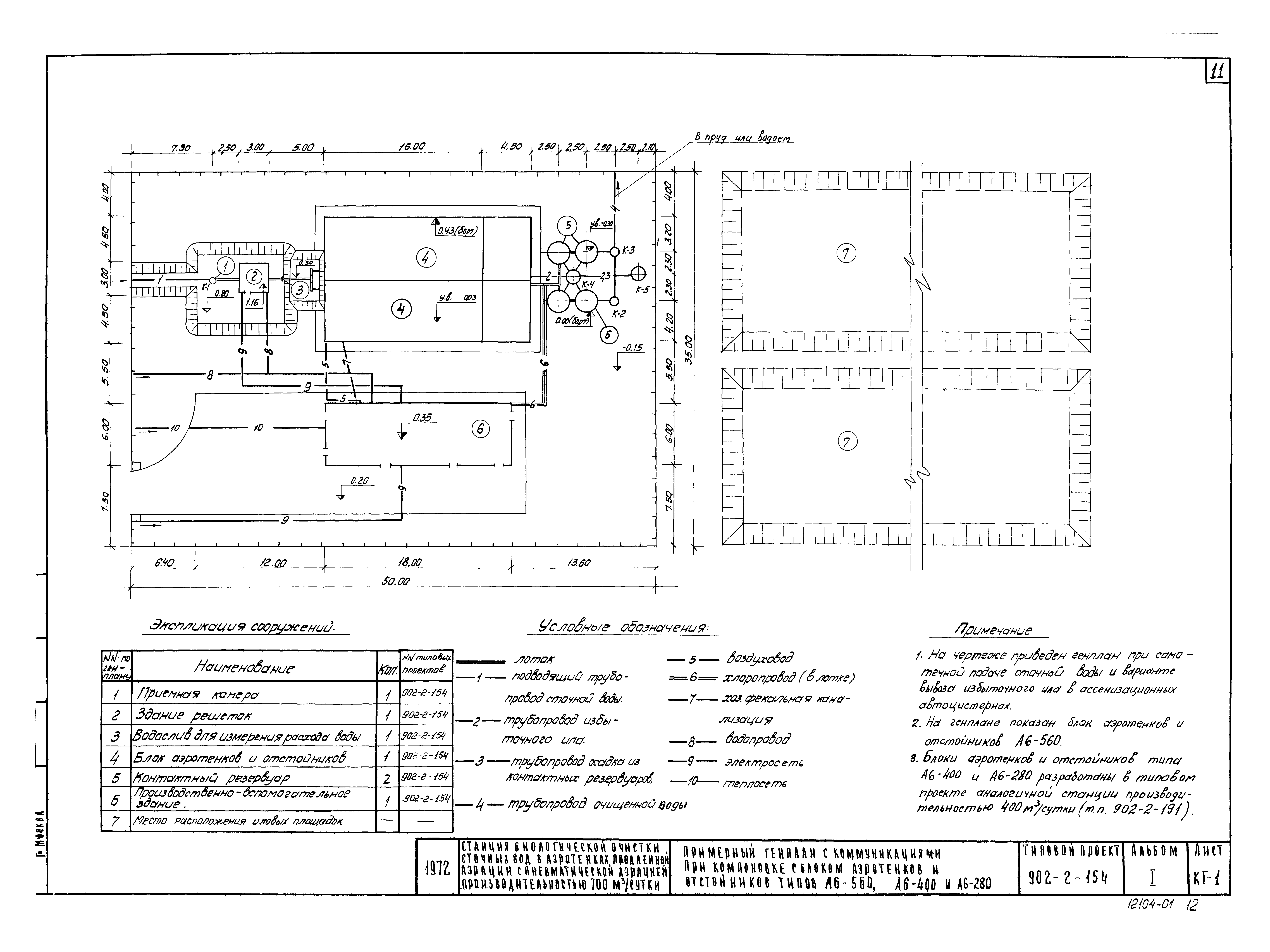
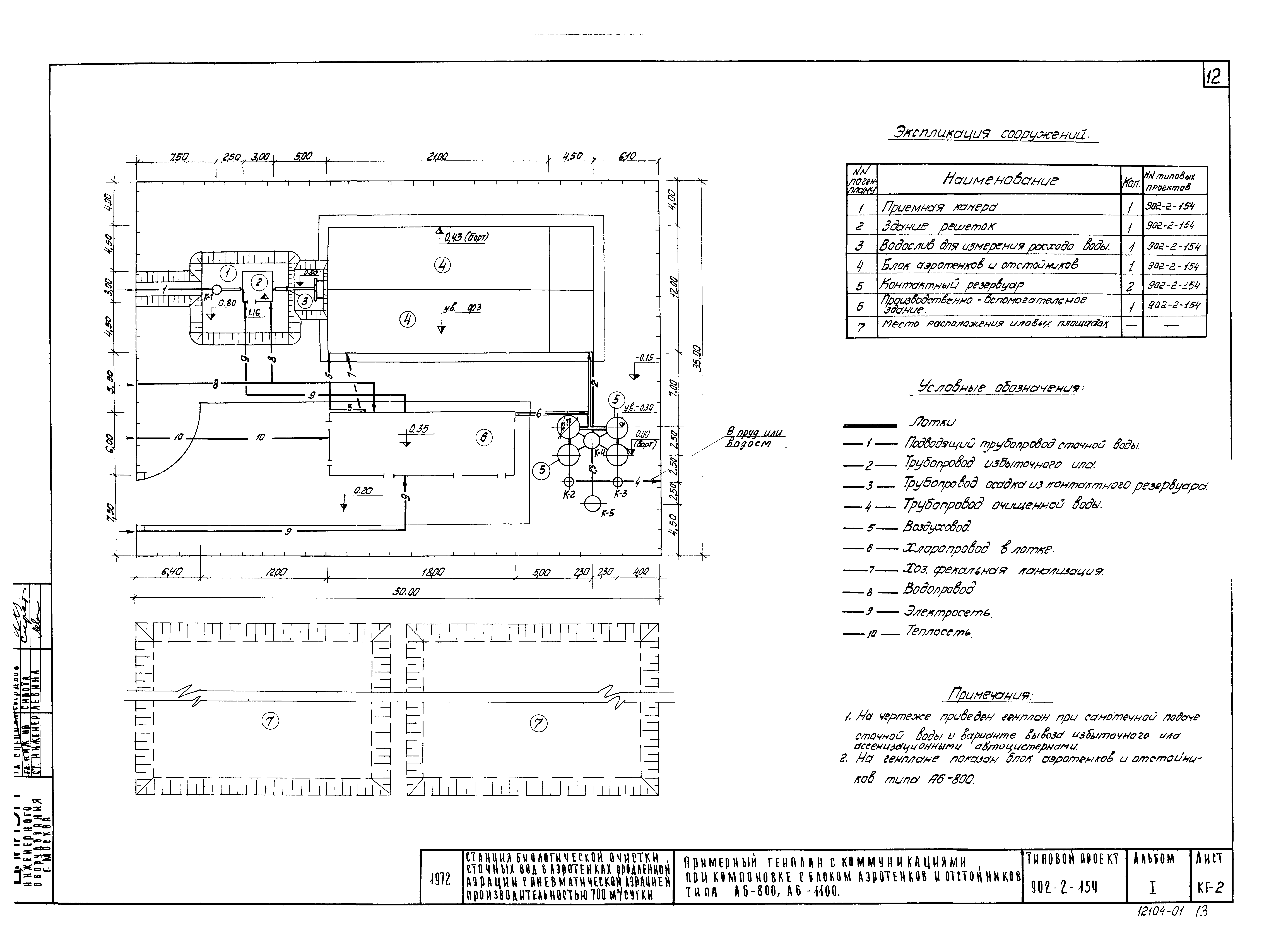
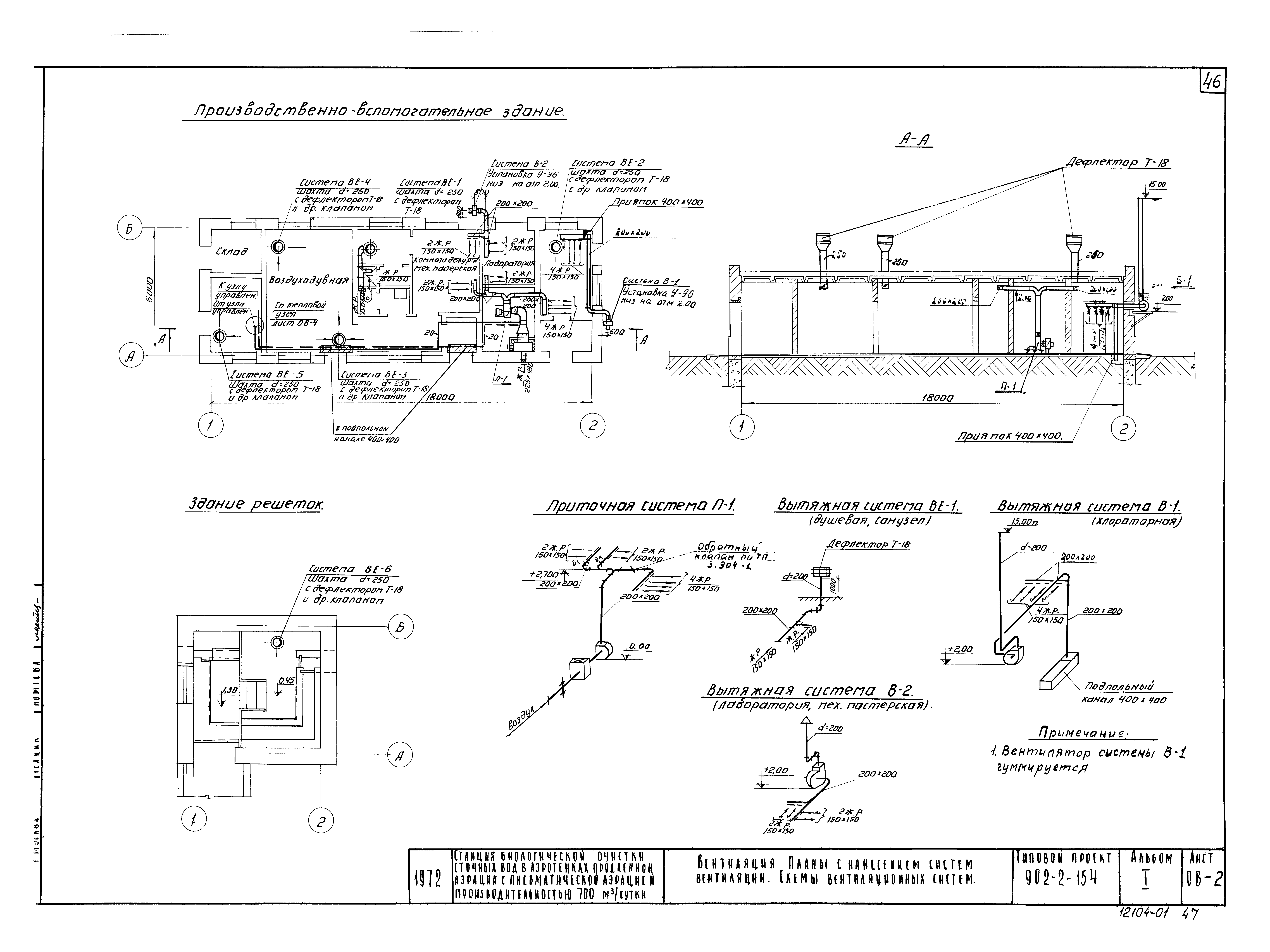
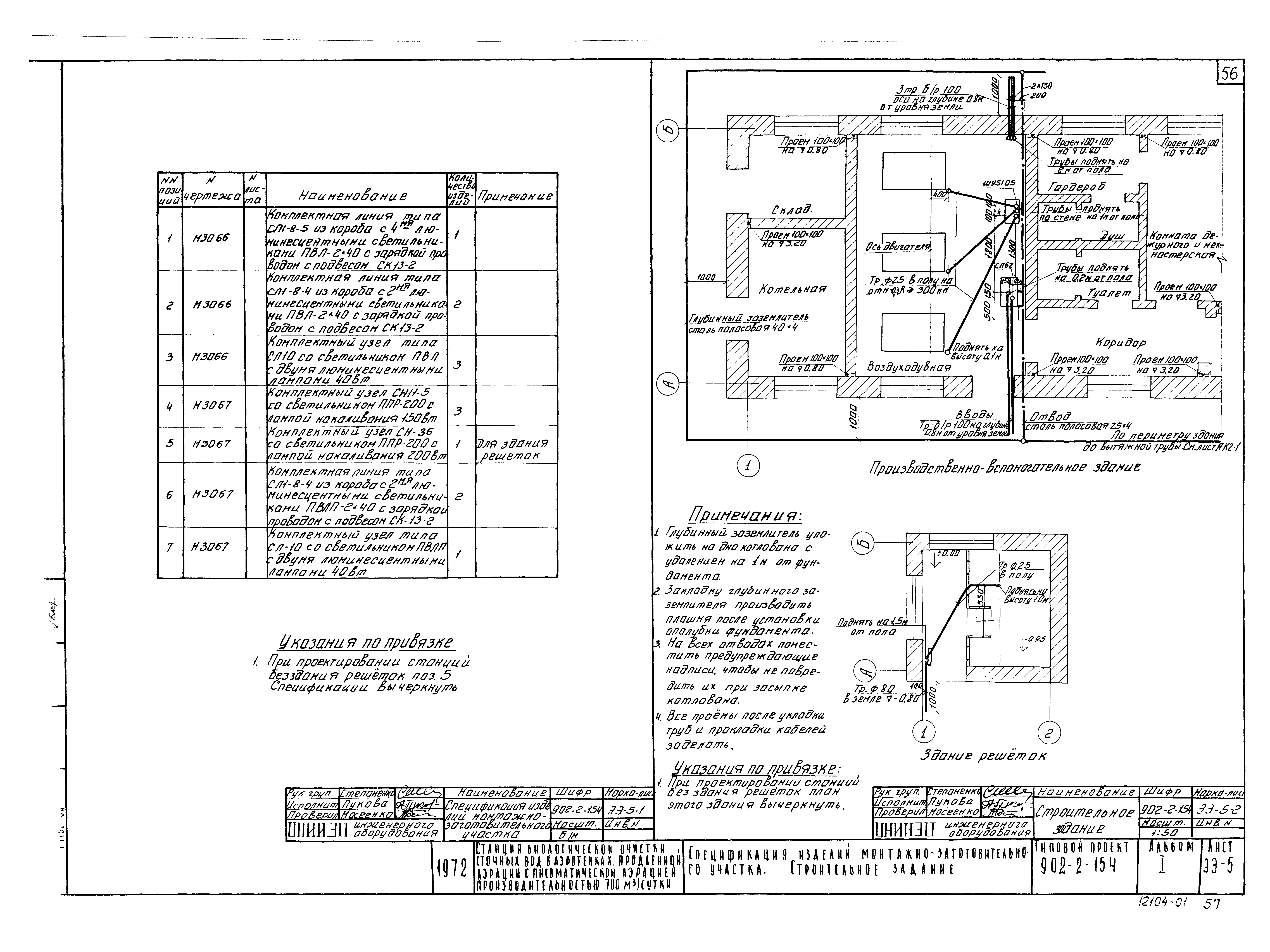
Скачать Типовой проект 902-2-191 Альбом I. Общая пояснительная записка. Генплан, коммуникации зданий и вспомогательные сооружения (из ТП 902-2-154)Дата актуализации: 01.01.2021 Типовой проект 902-2-191
Альбом I. Общая пояснительная записка. Генплан, коммуникации зданий и вспомогательные сооружения (из ТП 902-2-154)| Обозначение: | Типовой проект 902-2-191 | | Обозначение англ: | 902-2-191 | | Статус: | заменен | | Название рус.: | Альбом I. Общая пояснительная записка. Генплан, коммуникации зданий и вспомогательные сооружения (из ТП 902-2-154) | | Дата добавления в базу: | 01.09.2013 | | Дата актуализации: | 01.01.2021 | | Дата введения: | 30.10.1972 | | Дата окончания срока действия: | 01.08.1982 | | Разработан: | ЦНИИЭП
| | Утверждён: | 30.10.1972 Госгражданстрой (Gosgrazhdanstroy 212)
| | Чем заменён: | |
                                                         
|