Скачать Типовые проектные решения 902-02-391.85 Альбом III. Нестандартизированное оборудованиеДата актуализации: 01.01.2021
|
| Обозначение: | Типовые проектные решения 902-02-391.85 |
| Обозначение англ: | 902-02-391.85 |
| Статус: | заменен |
| Название рус.: | Альбом III. Нестандартизированное оборудование |
| Дата добавления в базу: | 01.09.2013 |
| Дата актуализации: | 01.01.2021 |
| Дата окончания срока действия: | 26.04.1988 |
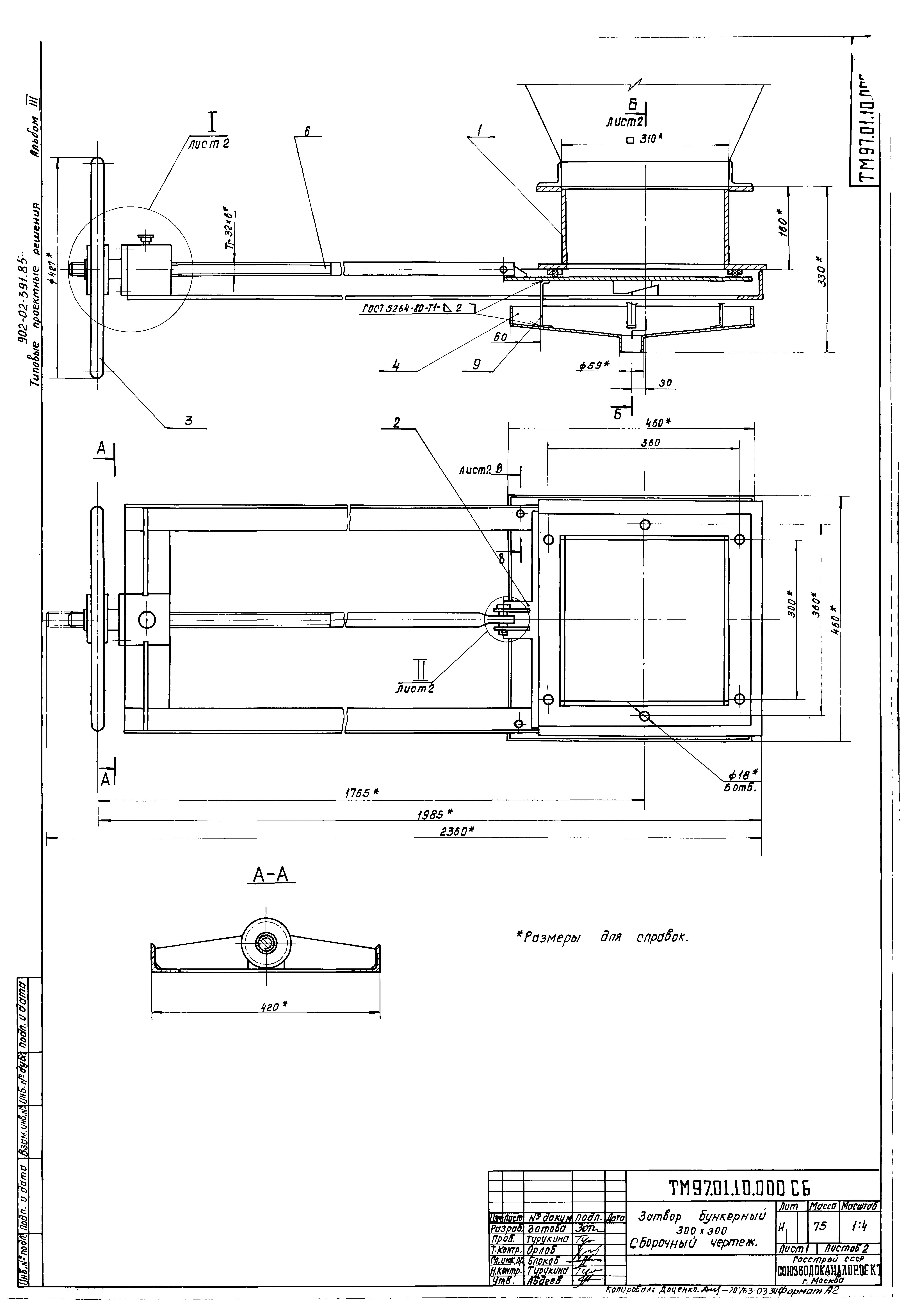
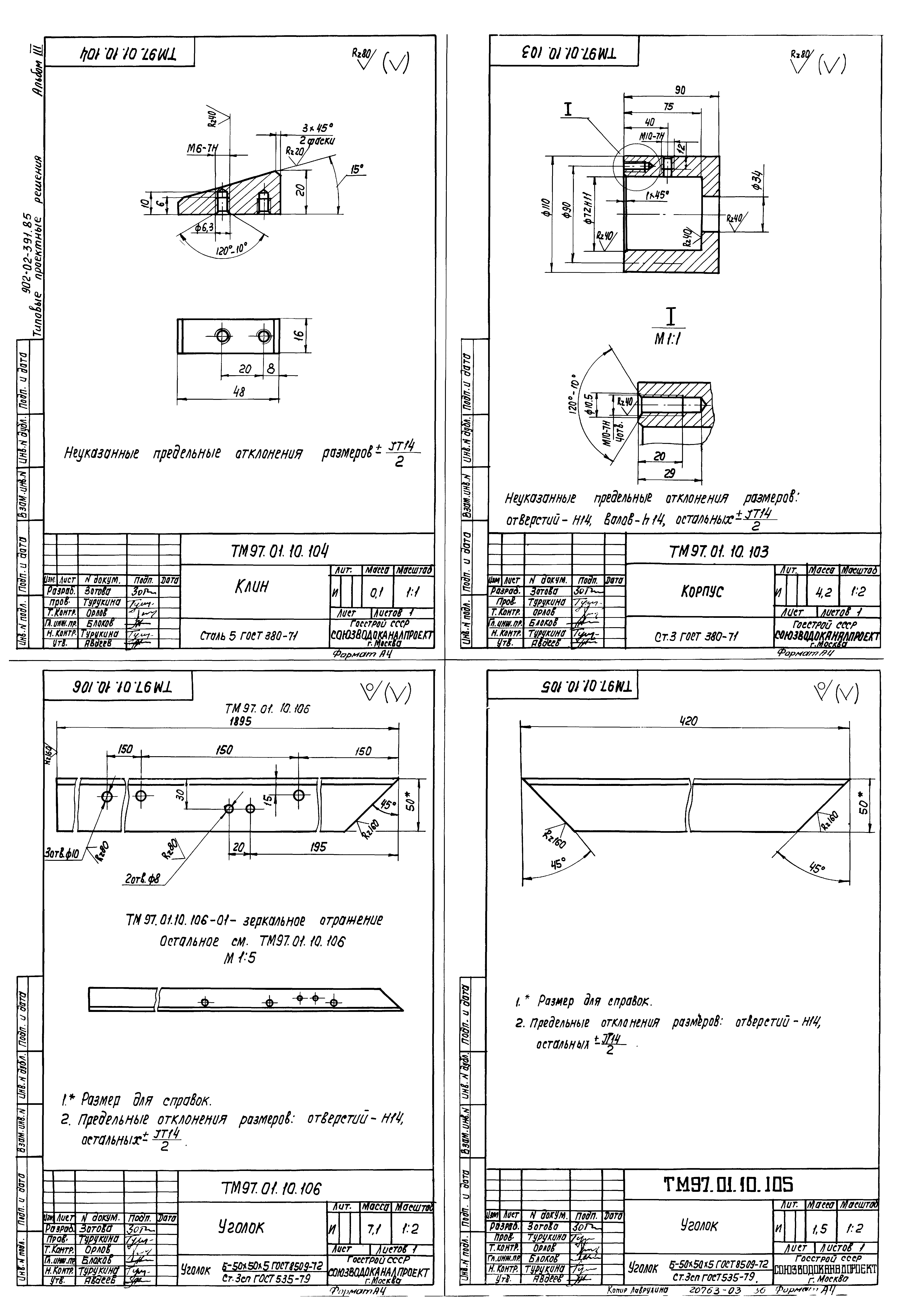
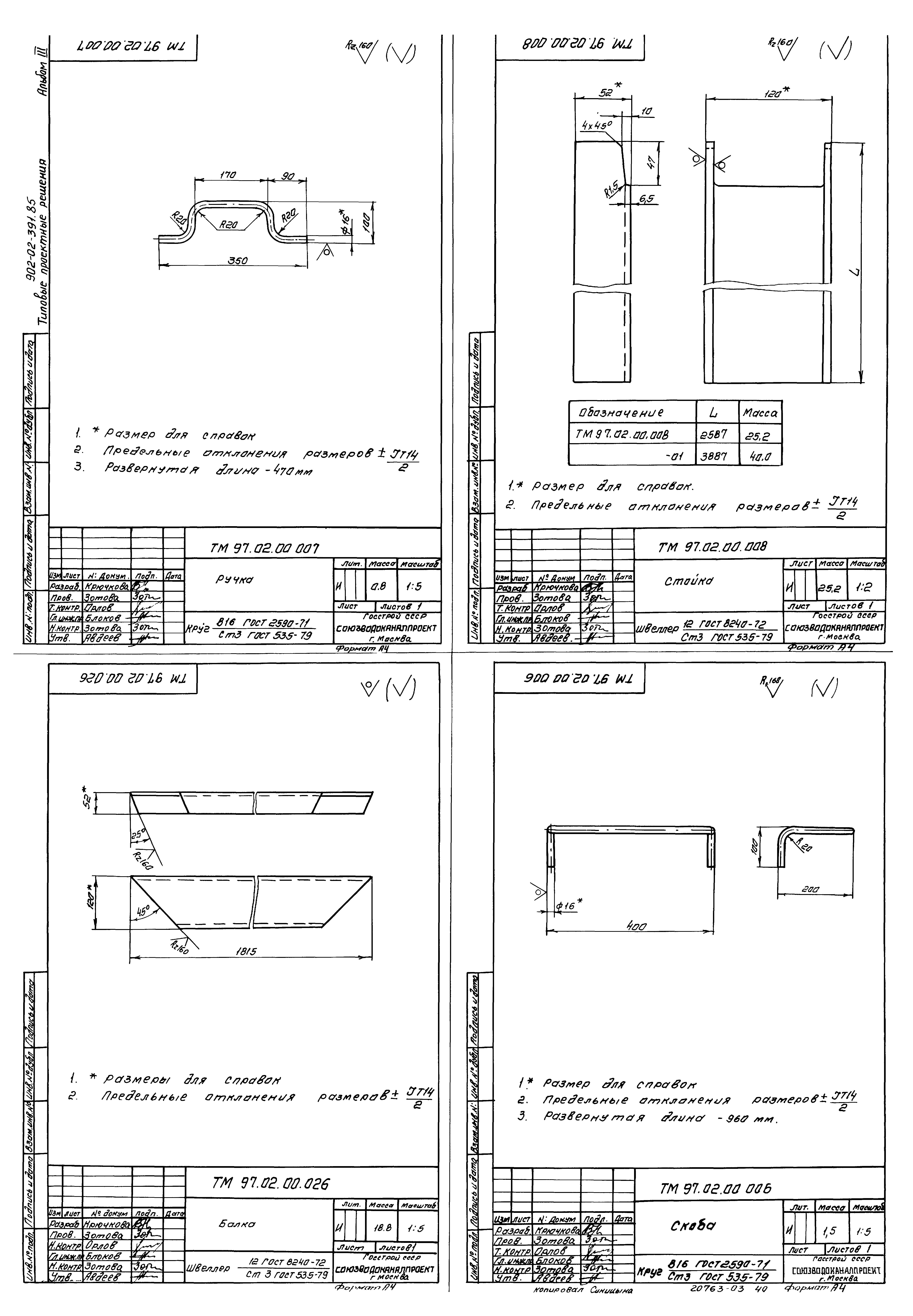
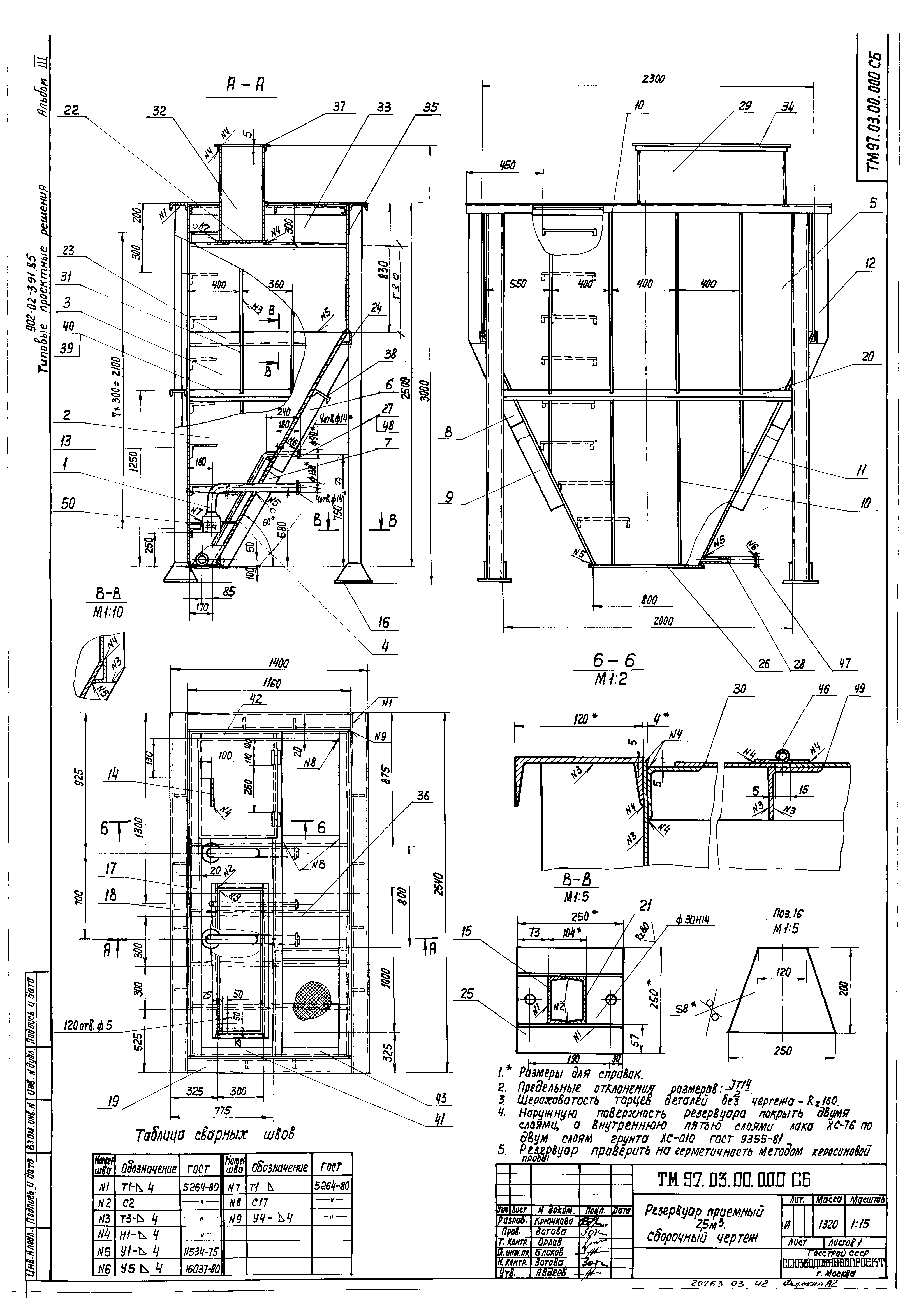
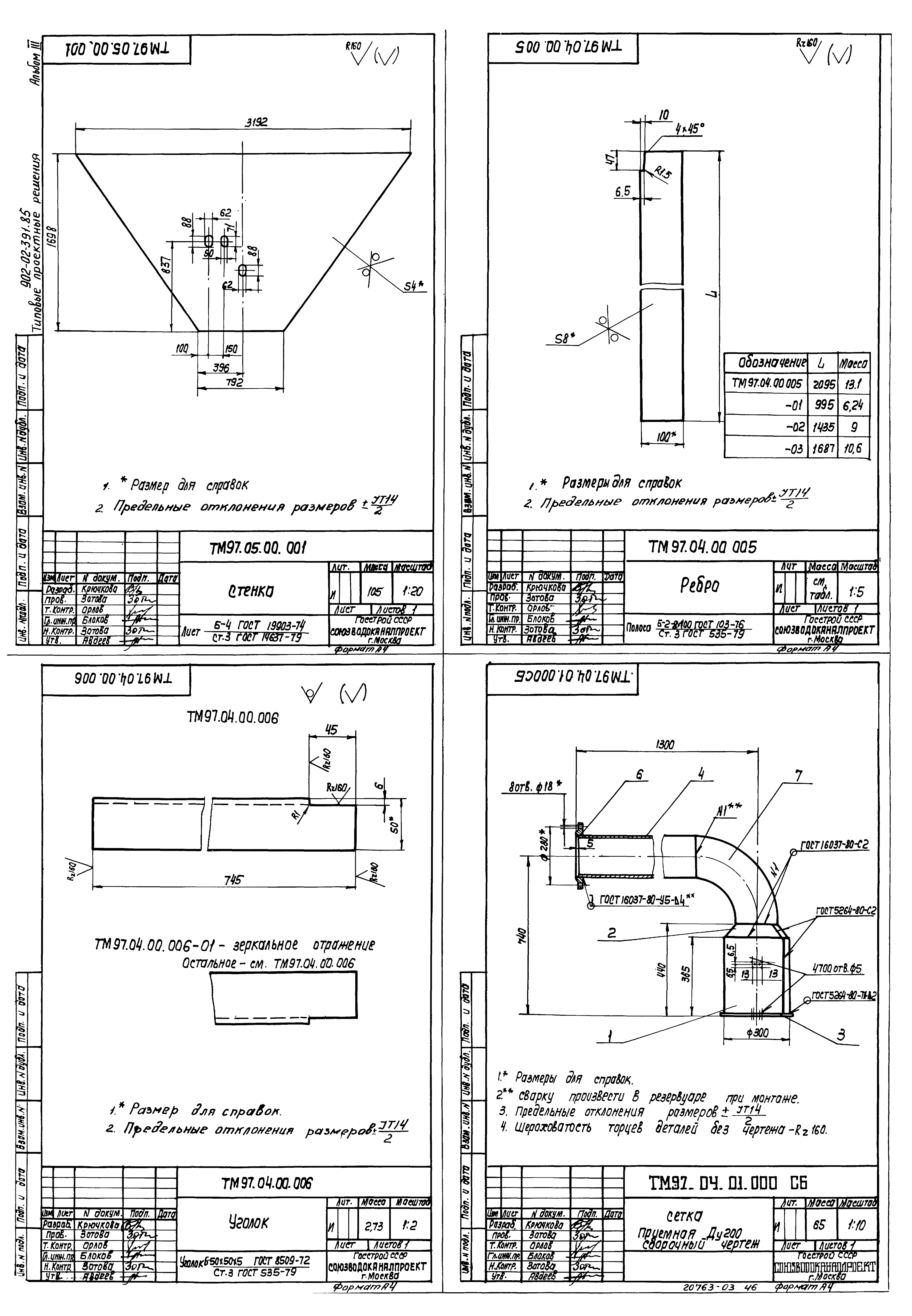
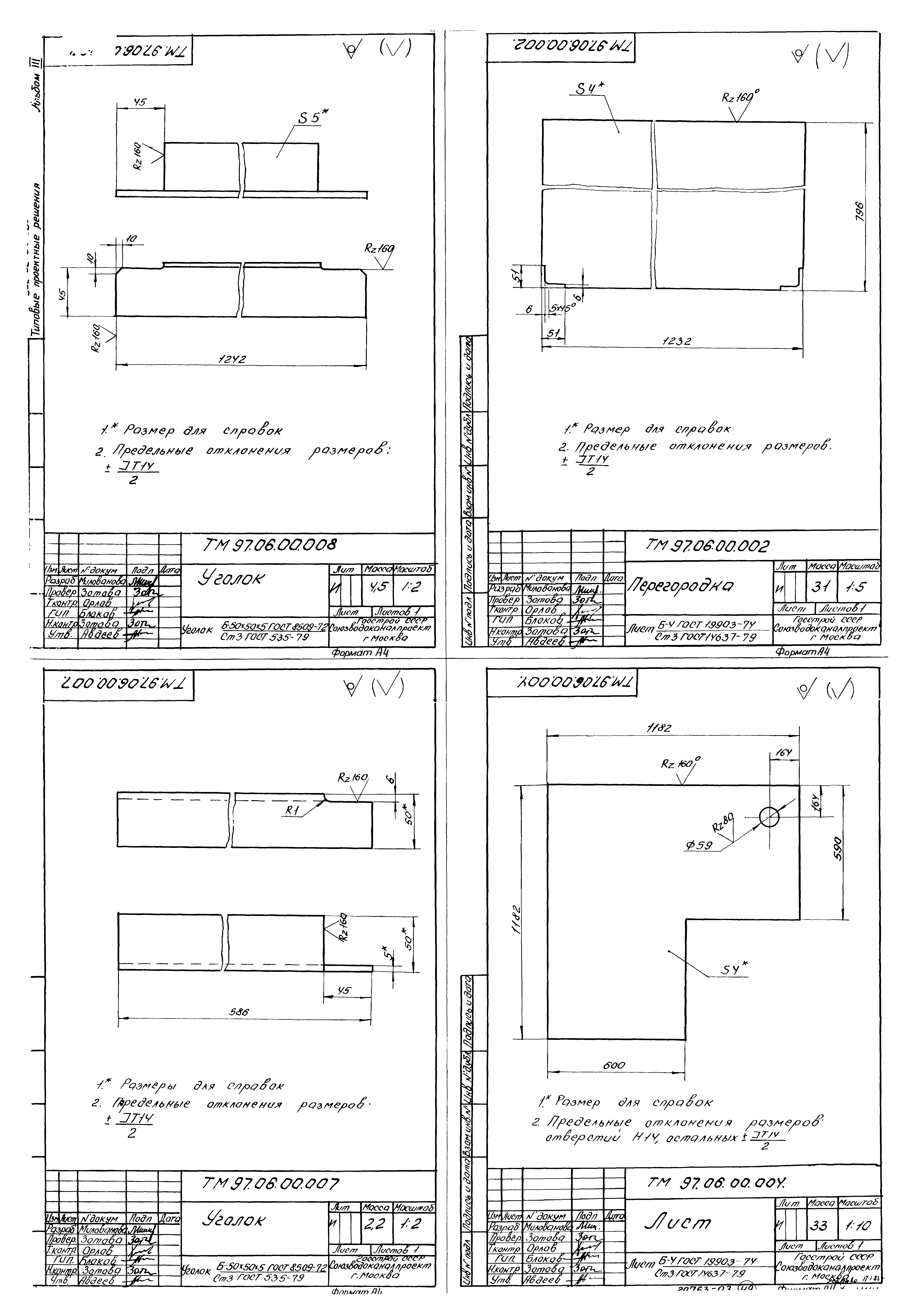
| Оглавление: | ТП 902-02-391.85 Содержание альбома ТП 902-02-391.85 ТМ97.01.00.000 Резервуар шламовый 6.25 м³ ТП 902-02-391.85 ТМ97.01.01.000 Корпус ТП 902-02-391.85 ТМ97.01.02.000 Щит ТП 902-02-391.85 ТМ97.01.03.000 Рама ТП 902-02-391.85 ТМ97.01.04.000 Опора ТП 902-02-391.85 ТМ97.01.05.000 Крышка ТП 902-02-391.85 ТМ97.01.06.000 Крышка ТП 902-02-391.85 ТМ97.01.07.000 Крышка ТП 902-02-391.85 ТМ97.01.08.000 Фильтр ТП 902-02-391.85 ТМ97.01.09.000 Полка ТП 902-02-391.85 ТМ97.01.10.000 Затвор бункерный 300х300 ТП 902-02-391.85 ТМ97.01.10.100 Рама ТП 902-02-391.85 ТМ97.01.10.200 Затвор ТП 902-02-391.85 ТМ97.01.10.300 Маховик ТП 902-02-391.85 ТМ97.01.10.400 Воронка ТП 902-02-391.85 ТМ97.02.00.000 Резервуар осветленной воды 2.5 м³ ТП 902-02-391.85 ТМ97.02.01.000 Сетка приемная Ду80 ТП 902-02-391.85 ТМ97.03.00.000 Резервуар приемный 2.5 м³ ТП 902-02-391.85 ТМ97.04.00.000 Резервуар промывочной воды 14м³ ТП 902-02-391.85 ТМ97.04.01.000 Сетка приемная Ду200 ТП 902-02-391.85 ТМ97.05.00.000 Резервуар-отстойник 14 м³ ТП 902-02-391.85 ТМ97.06.00.000 Резервуар-воздухоотделитель1 м³ ТП 902-02-391.85 ТМ97.01.00.000 СБ Резервуар шламовый 6.25 м³. Сборочный чертеж ТП 902-02-391.85 ТМ97.01.01.000 СБ Корпус. Сборочный чертеж ТП 902-02-391.85 ТМ97.01.01.003 Стенка ТП 902-02-391.85 ТМ97.01.01.004 Стенка ТП 902-02-391.85 ТМ97.01.01.005 Ребро ТП 902-02-391.85 ТМ97.01.01.006 Ребро ТП 902-02-391.85 ТМ97.01.01.007 Ребро ТП 902-02-391.85 ТМ97.01.01.008 Ребро ТП 902-02-391.85 ТМ97.01.01.018 Перегородка ТП 902-02-391.85 ТМ97.01.01.025 Ребро ТП 902-02-391.85 ТМ97.01.01.014 Уголок ТП 902-02-391.85 ТМ97.01.01.015 Уголок ТП 902-02-391.85 ТМ97.01.02.001 Стенка ТП 902-02-391.85 ТМ97.01.02.002 Планка ТП 902-02-391.85 ТМ97.01.02.000 СБ Щит. Сборочный чертеж ТП 902-02-391.85 ТМ97.01.02.003 Планка ТП 902-02-391.85 ТМ97.01.02.004 Ребро ТП 902-02-391.85 ТМ97.01.02.005 Ручка ТП 902-02-391.85 ТМ97.01.02.006 Ушко ТП 902-02-391.85 ТМ97.01.03.000 СБ Рама. Сборочный чертеж ТП 902-02-391.85 ТМ97.01.04.000 СБ Опора. Сборочный чертеж ТП 902-02-391.85 ТМ97.01.04.001 Патрубок ТП 902-02-391.85 ТМ97.01.05.000 СБ Крышка. Сборочный чертеж ТП 902-02-391.85 ТМ97.01.06.000 СБ Крышка. Сборочный чертеж ТП 902-02-391.85 ТМ97.01.07.000 СБ Крышка. Сборочный чертеж ТП 902-02-391.85 ТМ97.01.00.004 Прокладка ТП 902-02-391.85 ТМ97.01.08.000 СБ Фильтр. Сборочный чертеж ТП 902-02-391.85 ТМ97.01.09.000 СБ Полка. Сборочный чертеж ТП 902-02-391.85 ТМ97.01.00.005 Гильза ТП 902-02-391.85 ТМ97.01.00.006 Пружина ТП 902-02-391.85 ТМ97.01.00.001 Водослив ТП 902-02-391.85 ТМ97.01.00.002 Рамка ТП 902-02-391.85 ТМ97.01.00.003 Прокладка ТП 902-02-391.85 ТМ97.01.00.007 Прокладка ТП 902-02-391.85 ТМ97.01.10.000 СБ Затвор бункерный 300х300. Сборочный чертеж ТП 902-02-391.85 ТМ97.01.10.100 СБ Рама. Сборочный чертеж ТП 902-02-391.85 ТМ97.01.10.101 Фланец ТП 902-02-391.85 ТМ97.01.10.102 Фланец ТП 902-02-391.85 ТМ97.01.10.200 СБ Затвор. Сборочный чертеж ТП 902-02-391.85 ТМ97.01.10.300 СБ Маховик. Сборочный чертеж ТП 902-02-391.85 ТМ97.01.10.301 Ступица ТП 902-02-391.85 ТМ97.01.10.400 СБ Воронка. Сборочный чертеж ТП 902-02-391.85 ТМ97.01.10.401 Стенка ТП 902-02-391.85 ТМ97.01.10.001 Винт ТП 902-02-391.85 ТМ97.01.10.002 Гайка ТП 902-02-391.85 ТМ97.01.10.003 Крышка ТП 902-02-391.85 ТМ97.01.10.004 Скоба ТП 902-02-391.85 ТМ97.01.10.105 Уголок ТП 902-02-391.85 ТМ97.01.10.106 Уголок ТП 902-02-391.85 ТМ97.01.10.103 Корпус ТП 902-02-391.85 ТМ97.01.10.104 Клин ТП 902-02-391.85 ТМ97.01.10.107 Ребро ТП 902-02-391.85 ТМ97.01.10.201 Щит ТП 902-02-391.85 ТМ97.01.10.202 Ушко ТП 902-02-391.85 ТМ97.01.10.203 Клин ТП 902-02-391.85 ТМ97.02.00.000 СБ Резервуар осветленной воды 2.5 м³. Сборочный чертеж ТП 902-02-391.85 ТМ97.02.00.001 Стенка ТП 902-02-391.85 ТМ97.02.00.002 Стенка ТП 902-02-391.85 ТМ97.02.00.003 Стенка ТП 902-02-391.85 ТМ97.02.00.005 Ребро ТП 902-02-391.85 ТМ97.02.00.006 Скоба ТП 902-02-391.85 ТМ97.02.00.007 Ручка ТП 902-02-391.85 ТМ97.02.00.008 Стойка ТП 902-02-391.85 ТМ97.02.00.026 Балка ТП 902-02-391.85 ТМ97.02.00.027 Балка ТП 902-02-391.85 ТМ97.02.00.028 Уголок ТП 902-02-391.85 ТМ97.02.00.009 Уголок ТП 902-02-391.85 ТМ97.02.01.000 СБ Сетка приемная Ду80. Сборочный чертеж ТП 902-02-391.85 ТМ97.03.00.000 СБ Резервуар приемный 2.5 м³. Сборочный чертеж ТП 902-02-391.85 ТМ97.04.00.000 СБ Резервуар промывочной воды 14 м³. Сборочный чертеж ТП 902-02-391.85 ТМ97.04.00.001 Стенка ТП 902-02-391.85 ТМ97.04.00.002 Стенка ТП 902-02-391.85 ТМ97.04.00.003 Стенка ТП 902-02-391.85 ТМ97.04.00.004 Ребро ТП 902-02-391.85 ТМ97.03.00.001 Стенка ТП 902-02-391.85 ТМ97.04.00.007 Уголок ТП 902-02-391.85 ТМ97.04.00.030 Уголок ТП 902-02-391.85 ТМ97.02.00.004 Ребро ТП 902-02-391.85 ТМ97.04.00.005 Ребро ТП 902-02-391.85 ТМ97.04.00.006 Уголок ТП 902-02-391.85 ТМ97.04.01.000 СБ Сетка приемная Ду200. Сборочный чертеж ТП 902-02-391.85 ТМ97.05.00.001 Ребро ТП 902-02-391.85 ТМ97.05.00.000 СБ Резервуар-отстойник 14 м³. Сборочный чертеж ТП 902-02-391.85 ТМ97.06.00.000 СБ Резервуар-воздухоотделитель 1 м³. Сборочный чертеж ТП 902-02-391.85 ТМ97.06.00.002 Перегородка ТП 902-02-391.85 ТМ97.06.00.004 Лист ТП 902-02-391.85 ТМ97.06.00.008 Уголок ТП 902-02-391.85 ТМ97.06.00.009 Уголок |
| Разработан: | Союзводоканалпроект |
| Утверждён: | 22.07.1985 Главстройпроект Госстроя СССР (АЧ-27) |
| Чем заменён: |

















































