Скачать Типовой проект 905-1-15 Альбом I. Общая пояснительная записка. Технологические чертежи. Архитектурно-строительные решения. Электротехническая частьДата актуализации: 01.01.2021
|
| Обозначение: | Типовой проект 905-1-15 |
| Обозначение англ: | 905-1-15 |
| Статус: | не действует |
| Название рус.: | Альбом I. Общая пояснительная записка. Технологические чертежи. Архитектурно-строительные решения. Электротехническая часть |
| Дата добавления в базу: | 01.09.2013 |
| Дата актуализации: | 01.01.2021 |
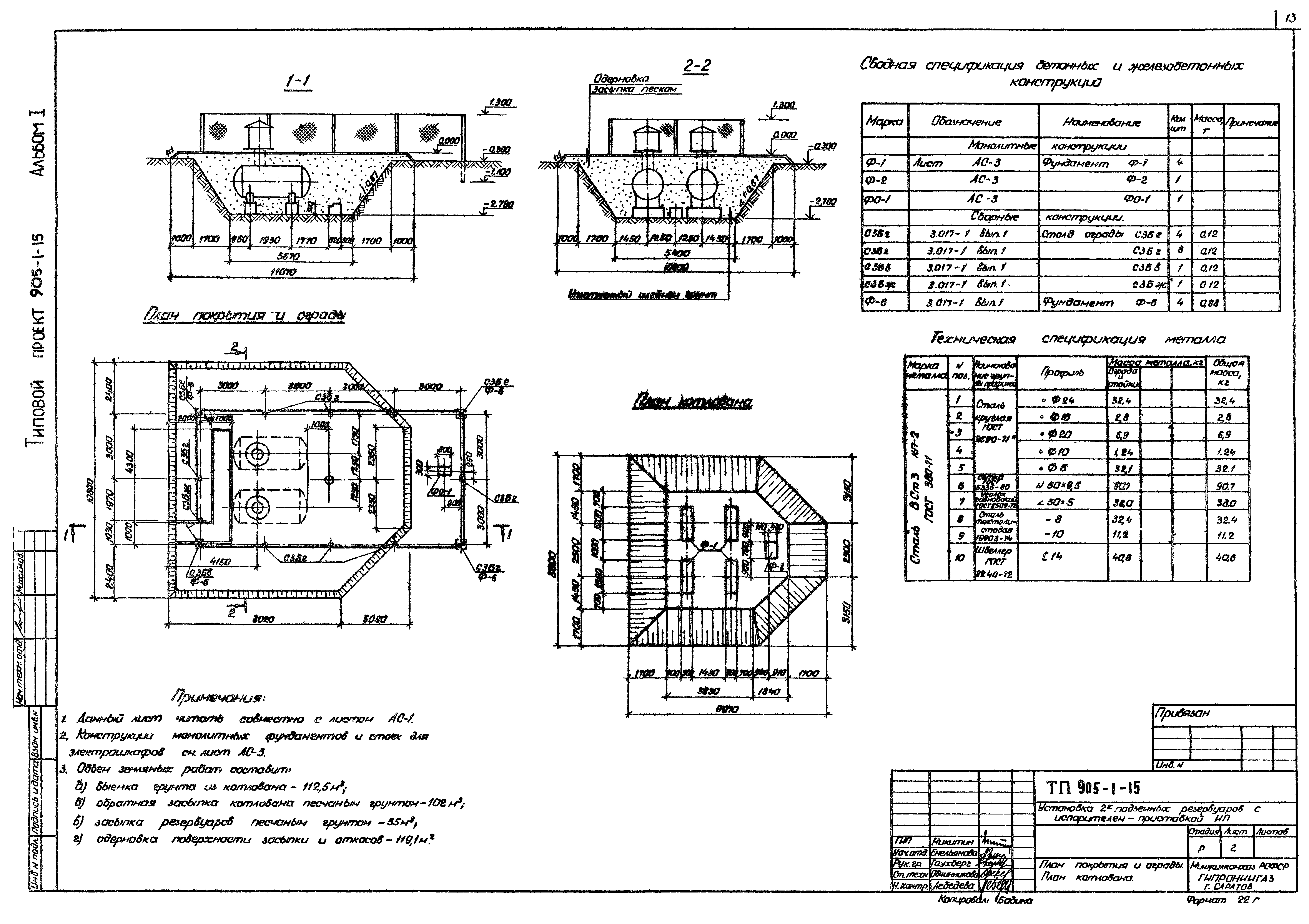
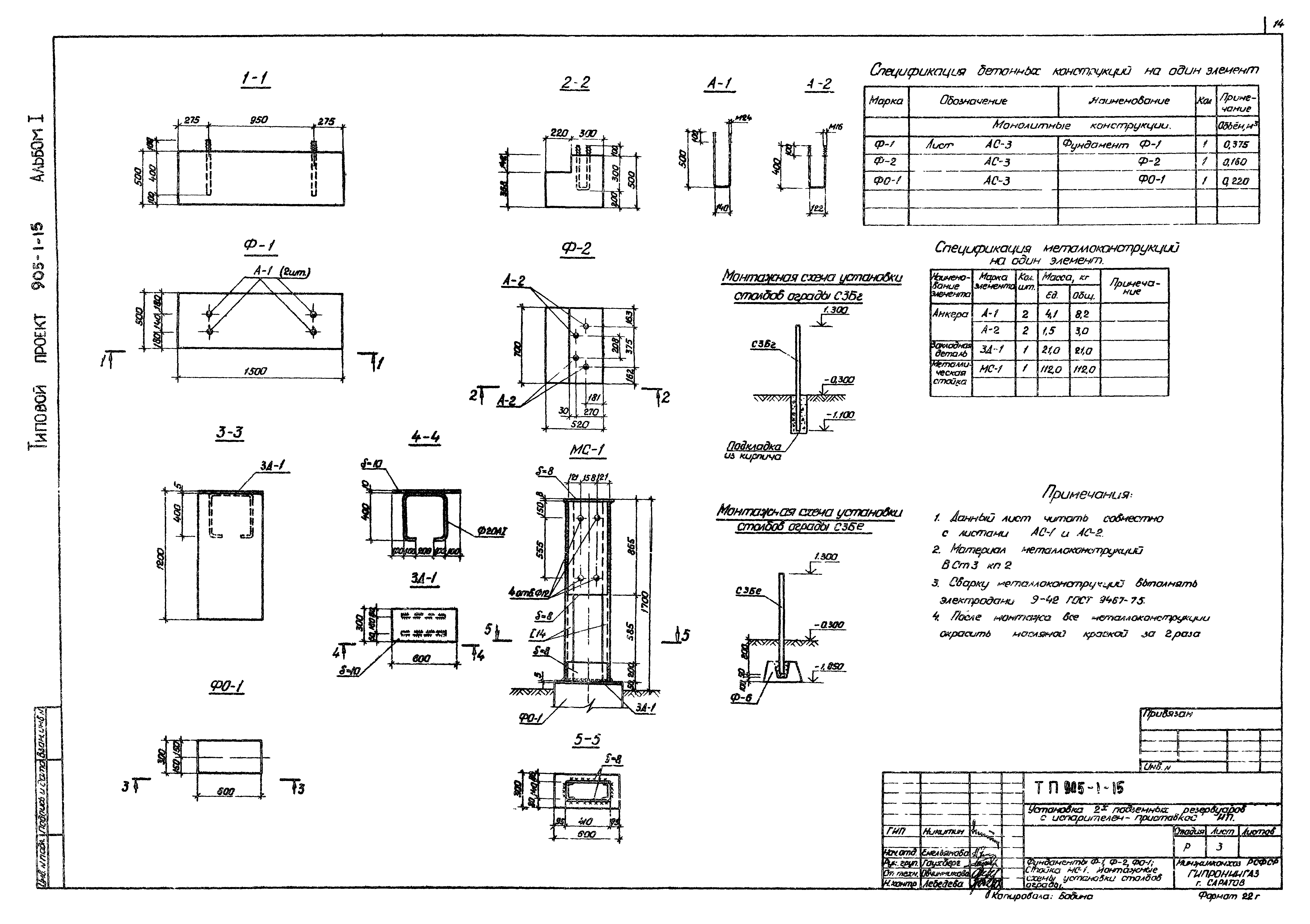
| Оглавление: | ТП 905-1-15 Титульный лист ТП 905-1-15 Содержание альбома ТП 905-1-15 Общая пояснительная записка ТП 905-1-15 Общие данные ТП 905-1-15 План, разрезы А-А,Б-Б ТП 905-1-15 Схема обвязки ТП 905-1-15 Привязка испарителя и реле уровня ТП 905-1-15 Контрольная трубка, импульсная трубка ТП 905-1-15 Общие данные ТП 905-1-15 План покрытия и ограды. План котлована ТП 905-1-15 Фундаменты Ф-1,Ф-2,ФО-1. Стойка МС-1. Монтажные схемы установки столбов ограды ТП 905-1-15 Общие данные ТП 905-1-15 План внутриплощадочных электрических сетей ~220 В. Молниезащита ТП 905-1-15 Шкаф счетчика. Общий вид ТП 905-1-15 Шкаф счетчика. Технические данные. Таблица ТП 905-1-15 Шкаф счетчика. Схема соединений |
| Разработан: | Гипрониигаз Минжилкомхоза РСФСР |
| Утверждён: | 30.06.1981 МосгазНИИпроект (86) |


















