Скачать Типовой проект 903-4-12 Альбом I. Архитектурно-строительная частьДата актуализации: 01.01.2021
|
| Обозначение: | Типовой проект 903-4-12 |
| Обозначение англ: | 903-4-12 |
| Статус: | не действует |
| Название рус.: | Альбом I. Архитектурно-строительная часть |
| Дата добавления в базу: | 01.09.2013 |
| Дата актуализации: | 01.01.2021 |
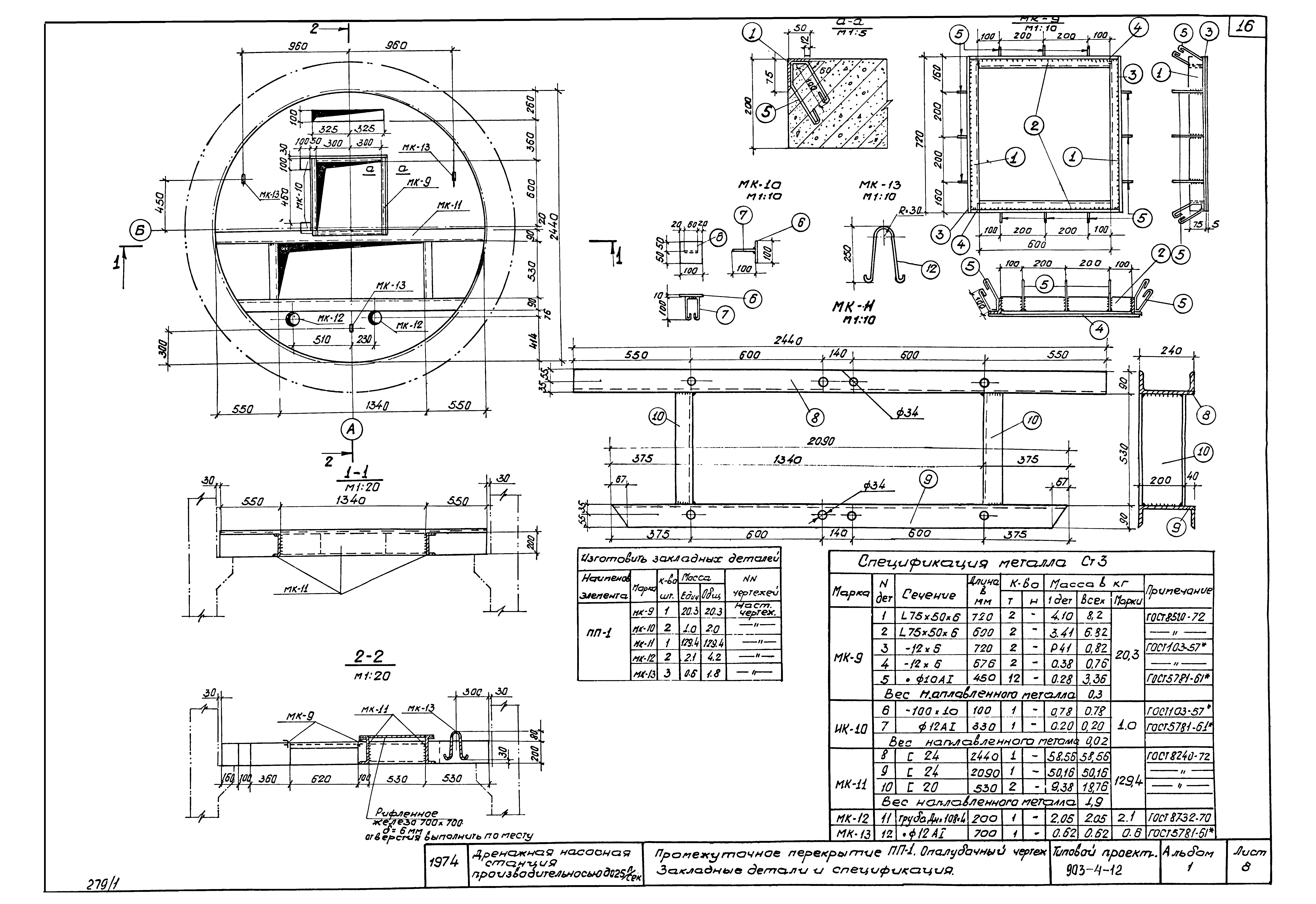
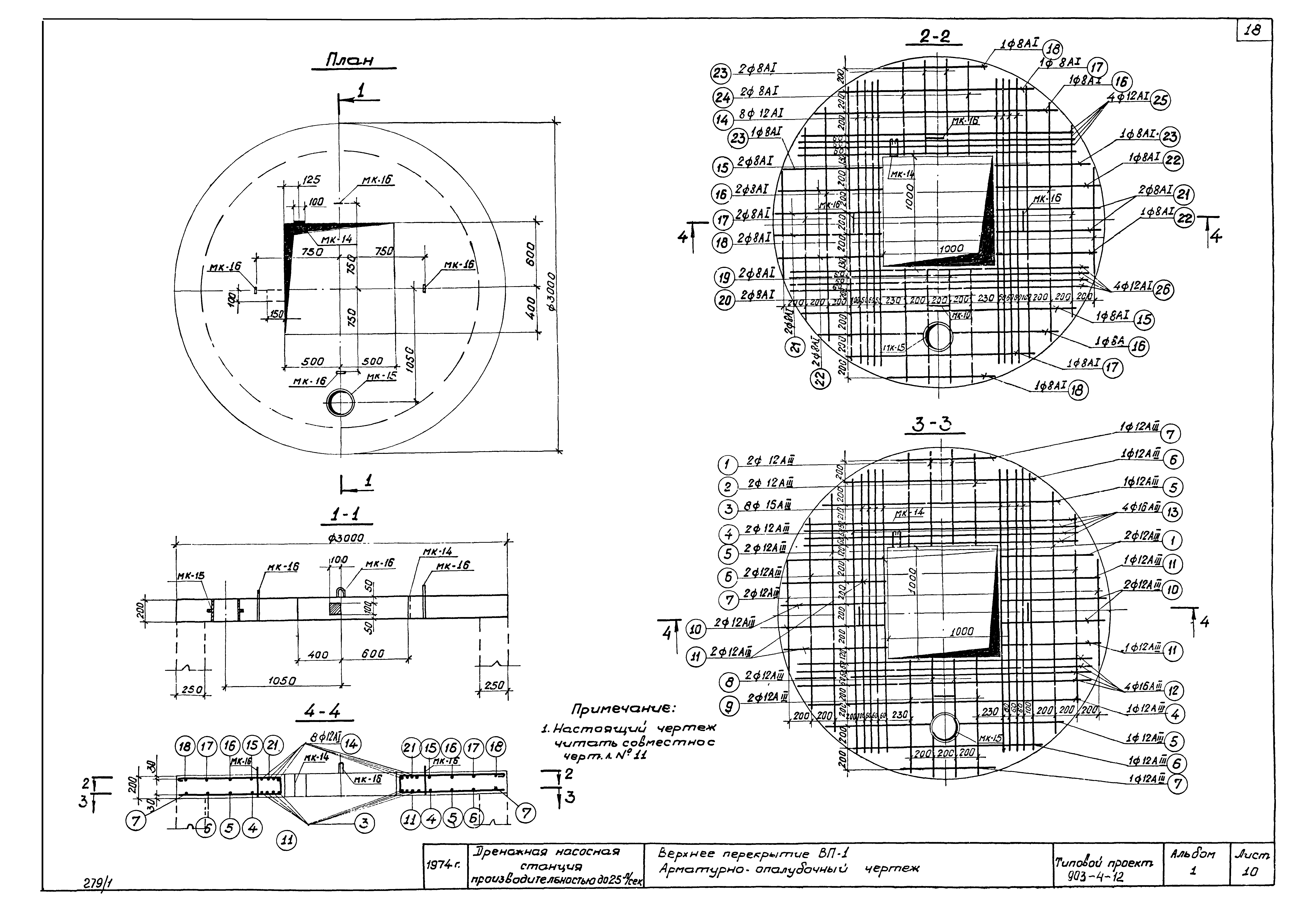
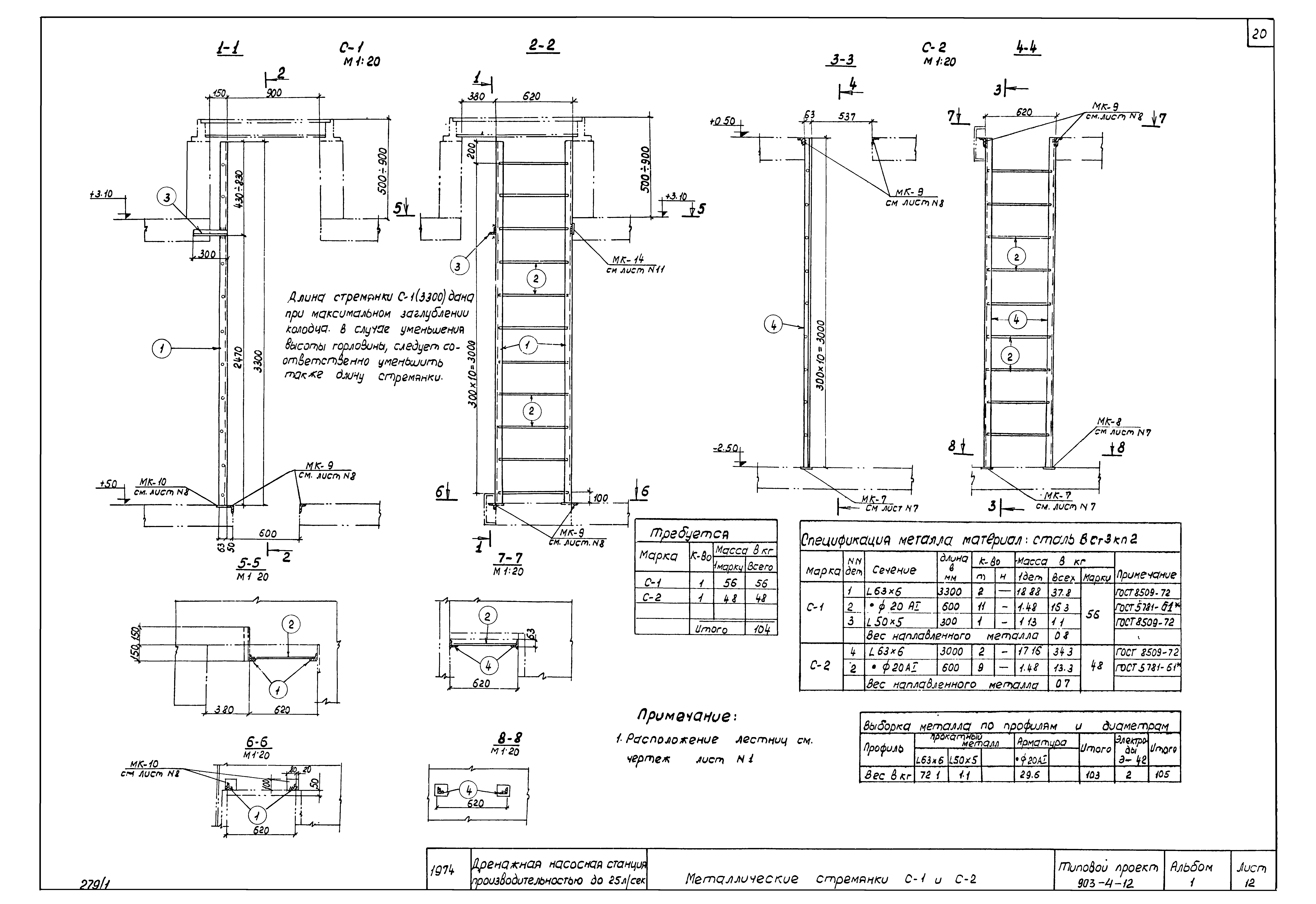
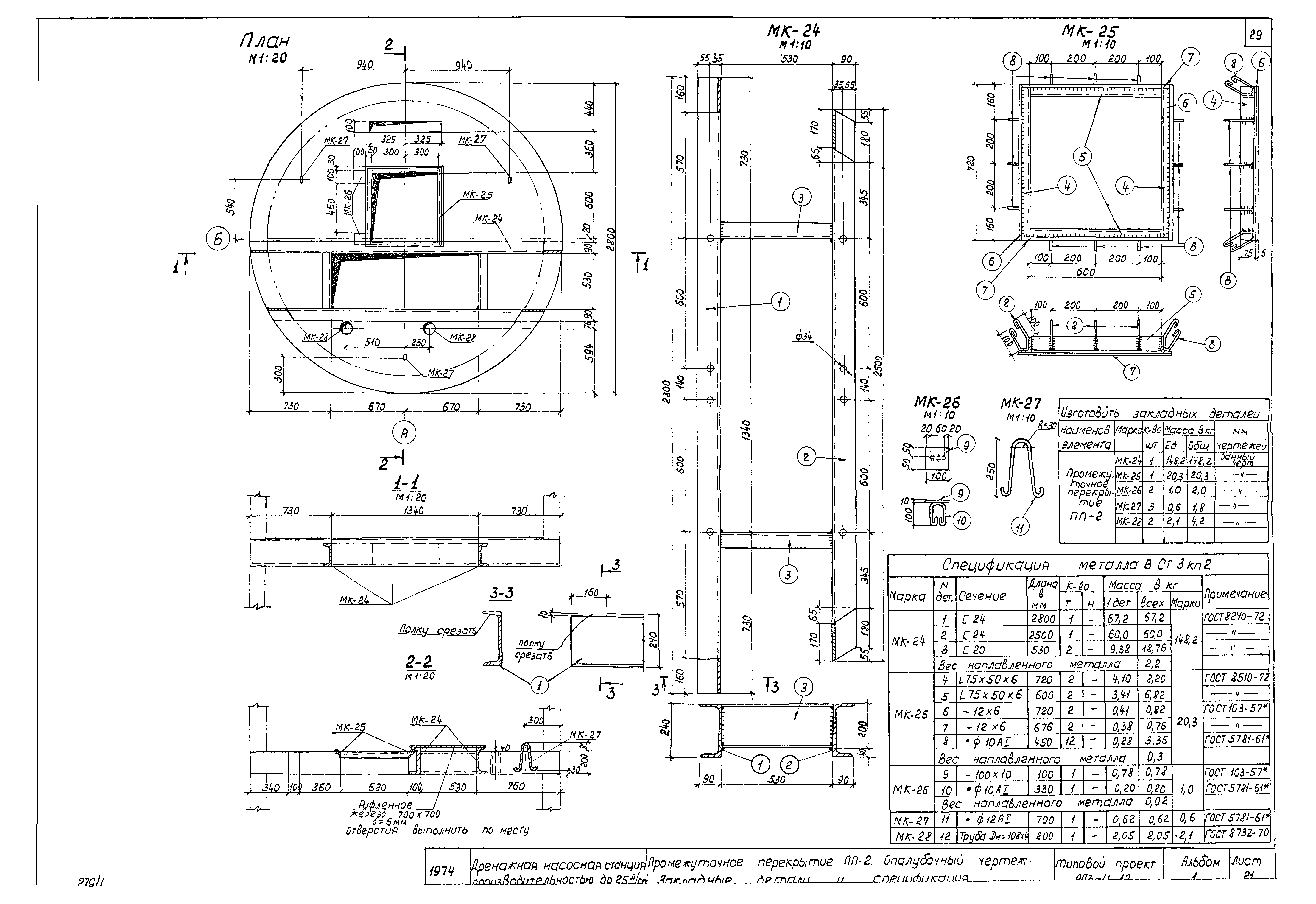
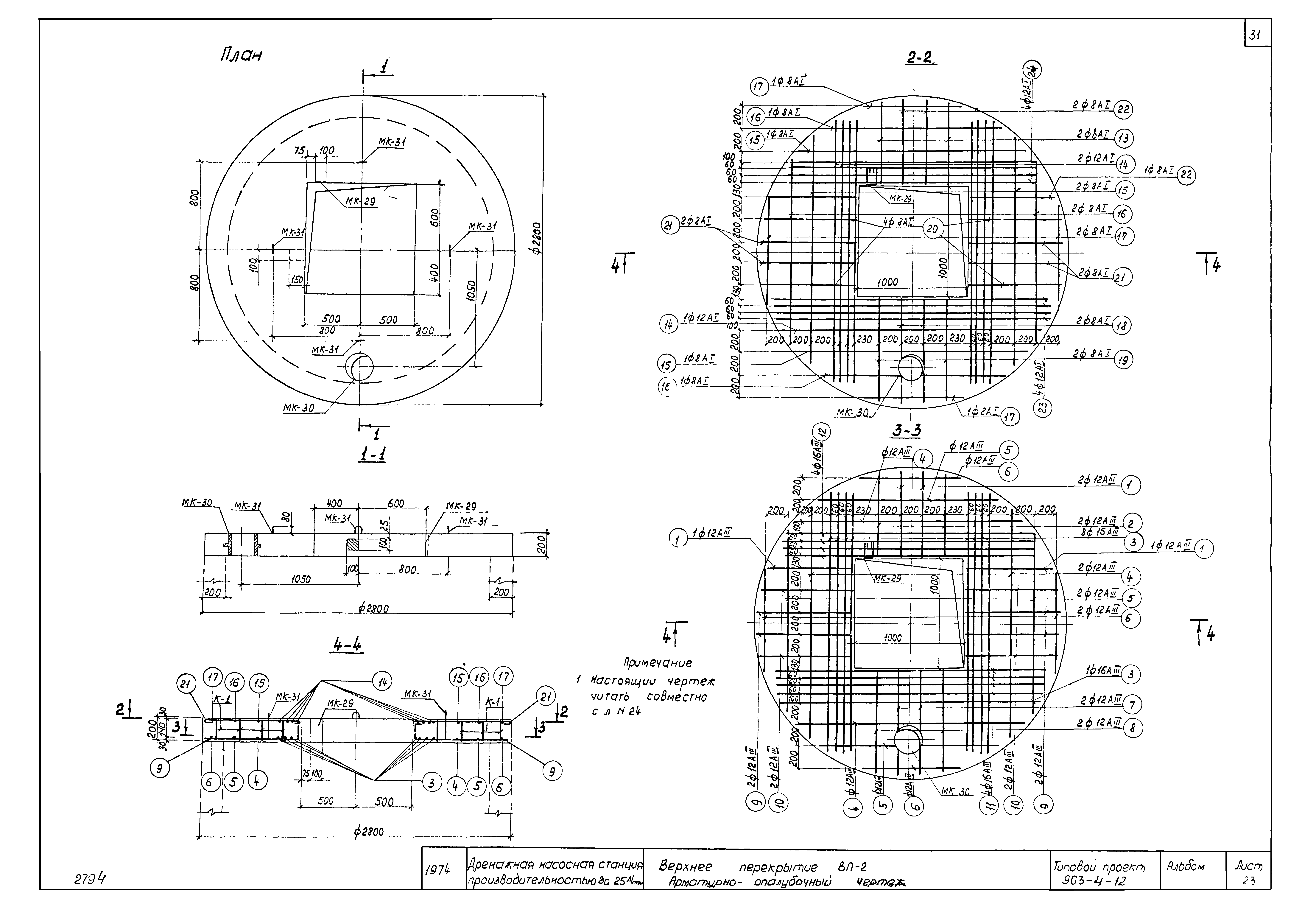
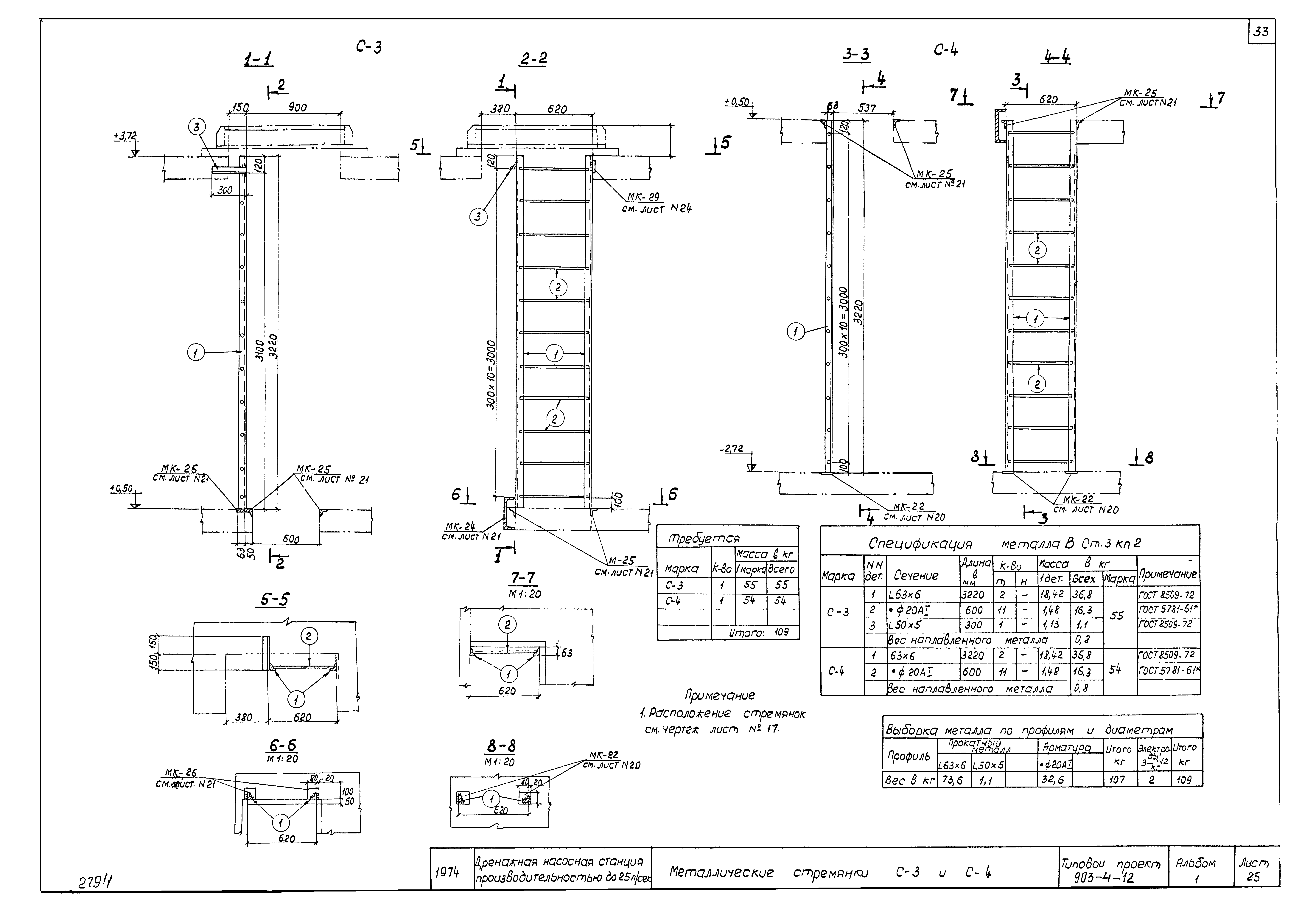
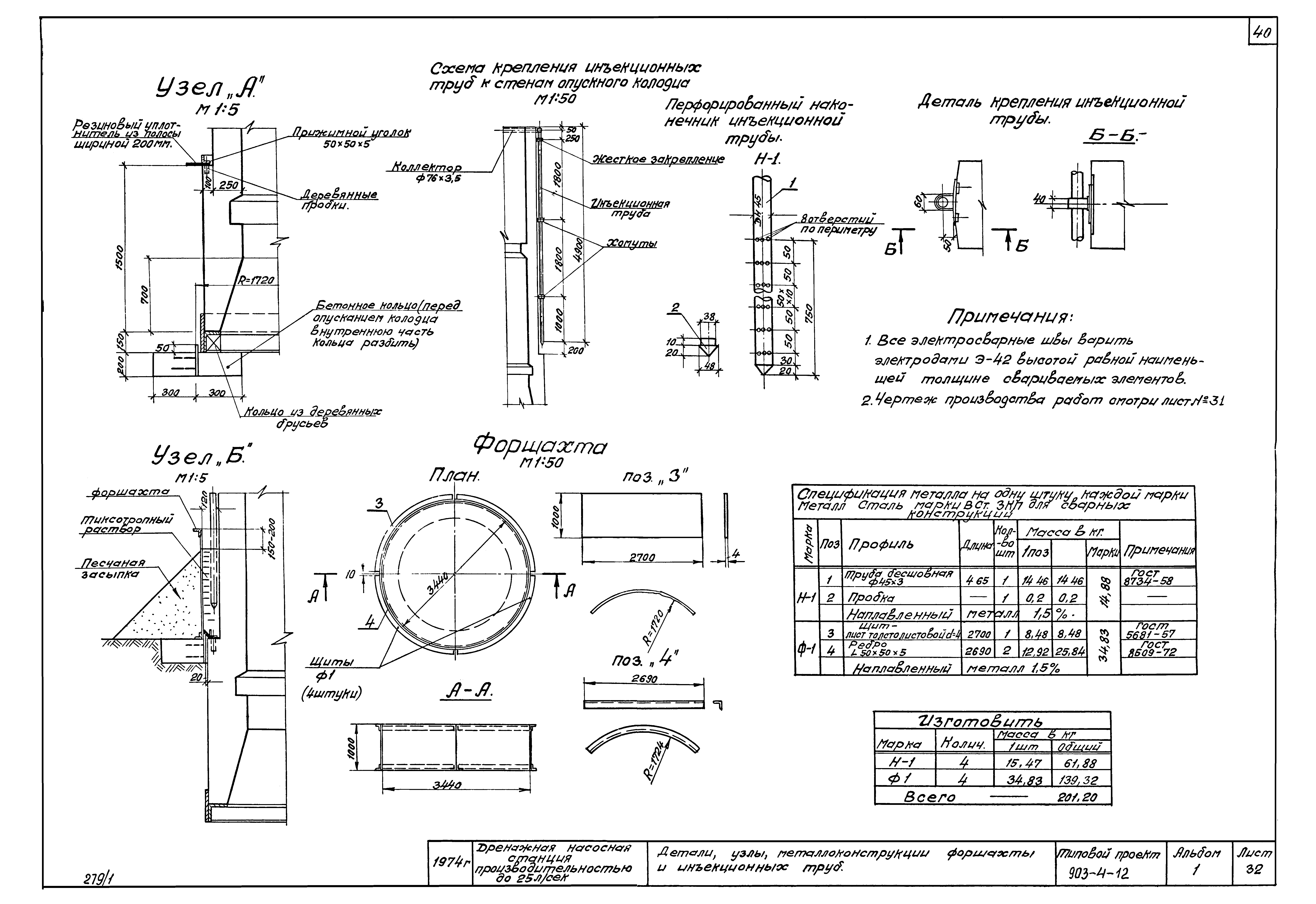
| Оглавление: | ТП 903-4-12 Заглавный лист ТП 903-4-12 Содержание альбома и перечень примененных стандартов и типовых чертежей ТП 903-4-12 Пояснительная записка ТП 903-4-12 Вариант А ТП 903-4-12 Планы и разрезы ТП 903-4-12 Ствол шахты. Опалубочный чертеж. Разрез 1-1. Планы А-А и Б-Б ТП 903-4-12 Армирование ствола шахты. Раскладка стоек, план. Разрез 1-1 ТП 903-4-12 Армирование ствола шахты. Армирование ножа, консоли. Общие виды пространственных каркасов ТП 903-4-12 Армирование ствола шахты. Спецификация и выборка арматуры. Расход материалов ТП 903-4-12 Железобетонная плита днища. Арматурно-опалубочный чертеж ТП 903-4-12 Железобетонная плита днища. Спецификация арматуры и закладных деталей. Расход материала ТП 903-4-12 Промежуточное перекрытие ПП-1. Опалубочный чертеж. Закладные детали и спецификация ТП 903-4-12 Промежуточное перекрытие ПП-1. Арматурный чертеж. Спецификация и выборка арматуры. Расход материалов ТП 903-4-12 Верхнее перекрытие ВП-1. Арматурно-опалубочный чертеж ТП 903-4-12 Верхнее перекрытие ВП-1. Спецификация и выборка арматуры. Расход материалов ТП 903-4-12 Металлические стремянки С-1 и С-2 ТП 903-4-12 Металлический корпус приямка в днище ТП 903-4-12 Проходные сальники и газовые трубы для ввода кабелей ТП 903-4-12 Сводная ведомость на металл и железобетон ТП 903-4-12 Объемы работ ТП 903-4-12 Вариант Б ТП 903-4-12 Планы и разрезы ТП 903-4-12 Маркировочно-монтажный чертеж. Разрезы, планы, узлы. Спецификация сборных железобетонных элементов ТП 903-4-12 Железобетонная плита днища ПД. Арматурно-опалубочный чертеж ТП 903-4-12 Железобетонная плита днища ПД. Спецификация арматуры и закладных деталей. Расход материалов ТП 903-4-12 Промежуточное перекрытие ПП-2. Опалубочный чертеж. Закладные детали, спецификация ТП 903-4-12 Промежуточное перекрытие ПП-2. Арматурный чертеж. Спецификация и выборка арматуры. Расход материалов ТП 903-4-12 Верхнее перекрытие ВП-1. Арматурно-опалубочный чертеж ТП 903-4-12 Верхнее перекрытие ВП-1. Спецификация и выборка арматуры. Расход материалов ТП 903-4-12 Металлические стремянки С-3 и С-4 ТП 903-4-12 Проходные сальники и газовые трубы для ввода кабелей ТП 903-4-12 Сводная ведомость на металл и железобетон ТП 903-4-12 Объемы работ ТП 903-4-12 Проект производства работ ТП 903-4-12 Чертеж деревянной опалубки монолитного опускного колодца и детали узлов ТП 903-4-12 Детали узлов ТП 903-4-12 Разработка грунта внутри колодца и этапы погружения ТП 903-4-12 Детали. Узлы. Металлоконструкции форшахты и инъекционных труб ТП 903-4-12 Котлован и схема монтажа сборного колодца ТП 903-4-12 Календарные графики строительства опускного колодца и сборного колодца ТП 903-4-12 Фальцевая труба диаметром Дв=2500 мм нормальной прочности øт-2.5 м |
| Разработан: | Теплоэлектропроект |
| Утверждён: | 26.10.1974 Минэнерго СССР (USSR Minenergo 221) |









































