Скачать Типовой проект 903-4-12 Альбом III. Электротехническая частьДата актуализации: 01.01.2021
|
| Обозначение: | Типовой проект 903-4-12 |
| Обозначение англ: | 903-4-12 |
| Статус: | не действует |
| Название рус.: | Альбом III. Электротехническая часть |
| Дата добавления в базу: | 01.09.2013 |
| Дата актуализации: | 01.01.2021 |
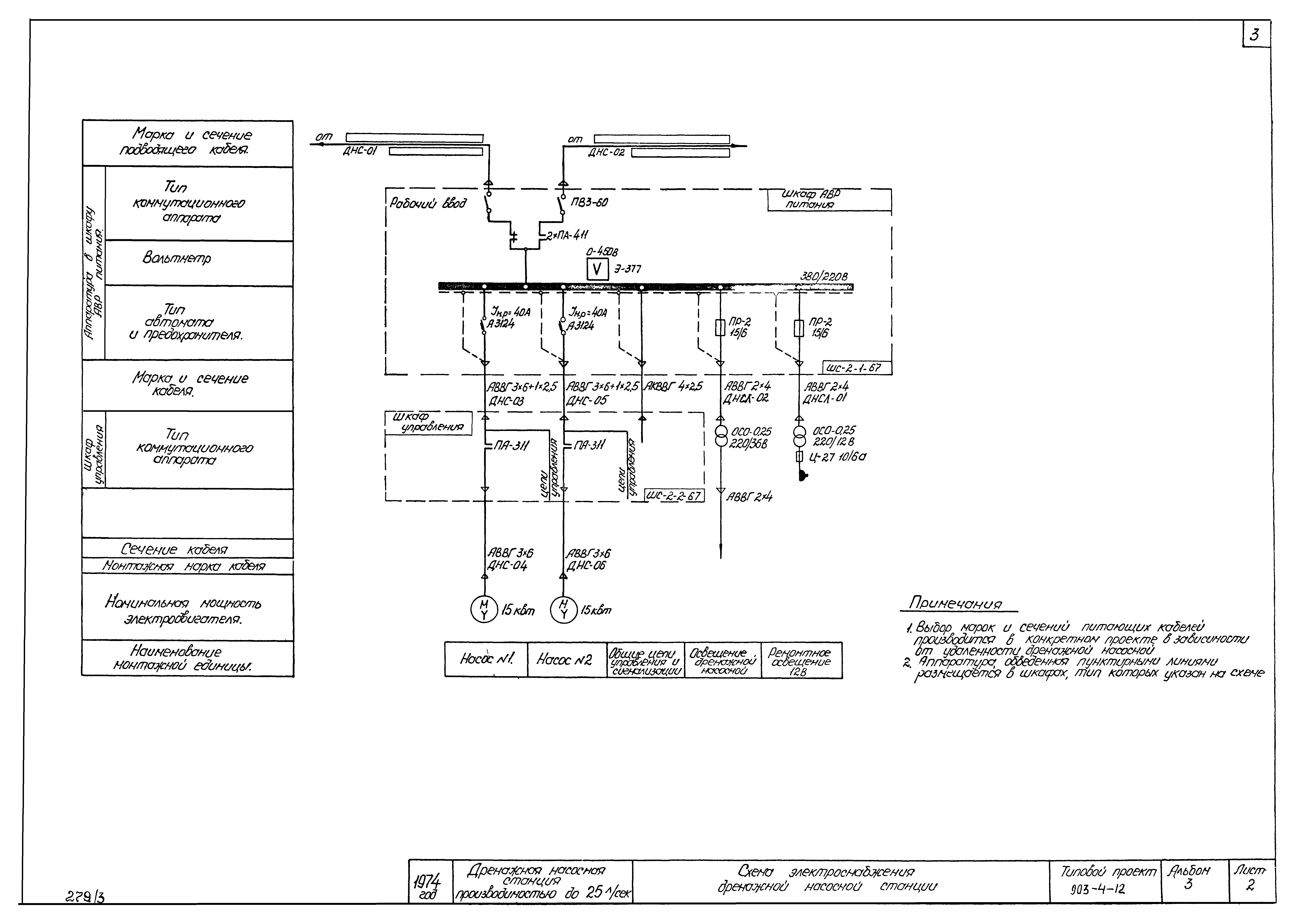
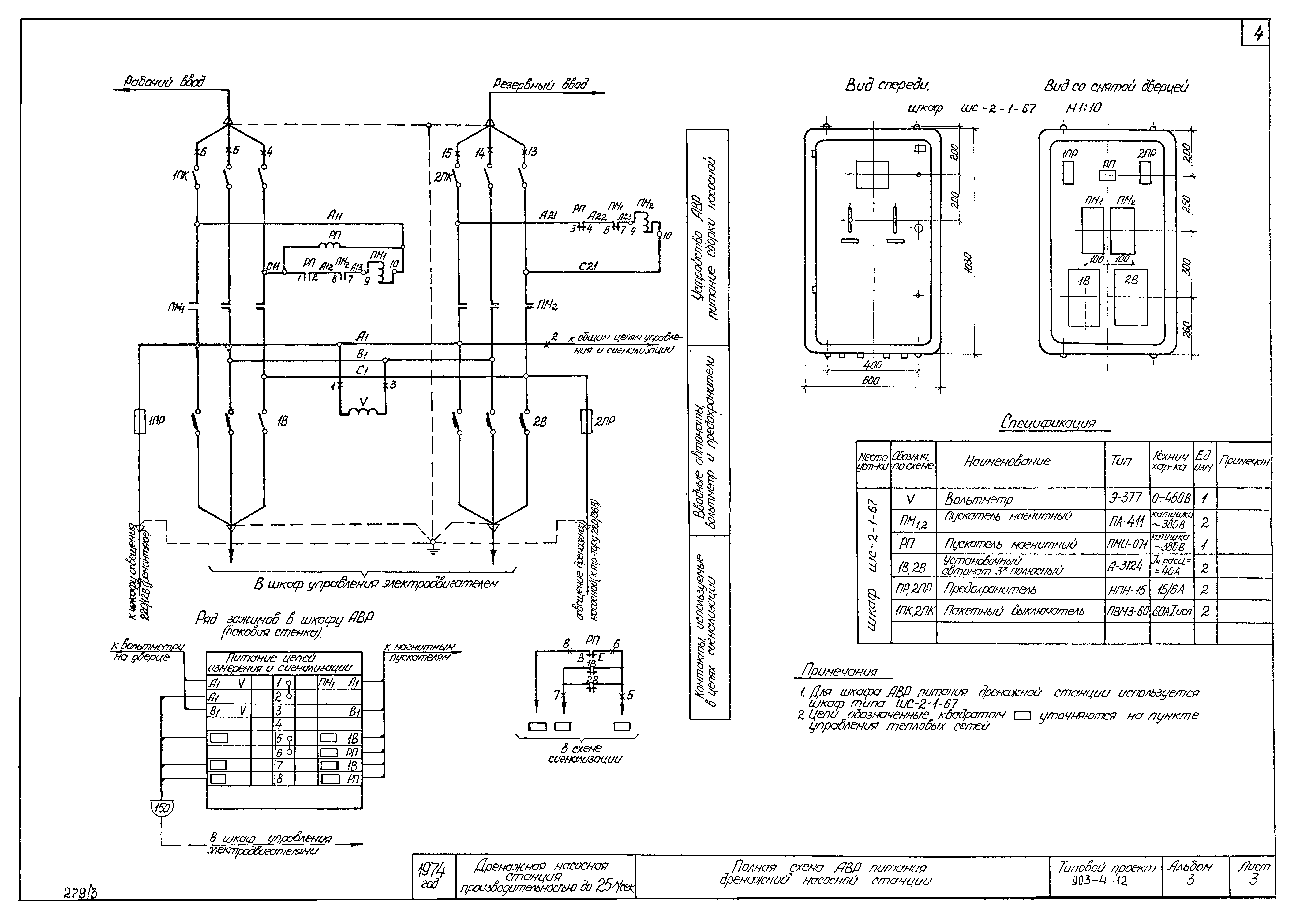
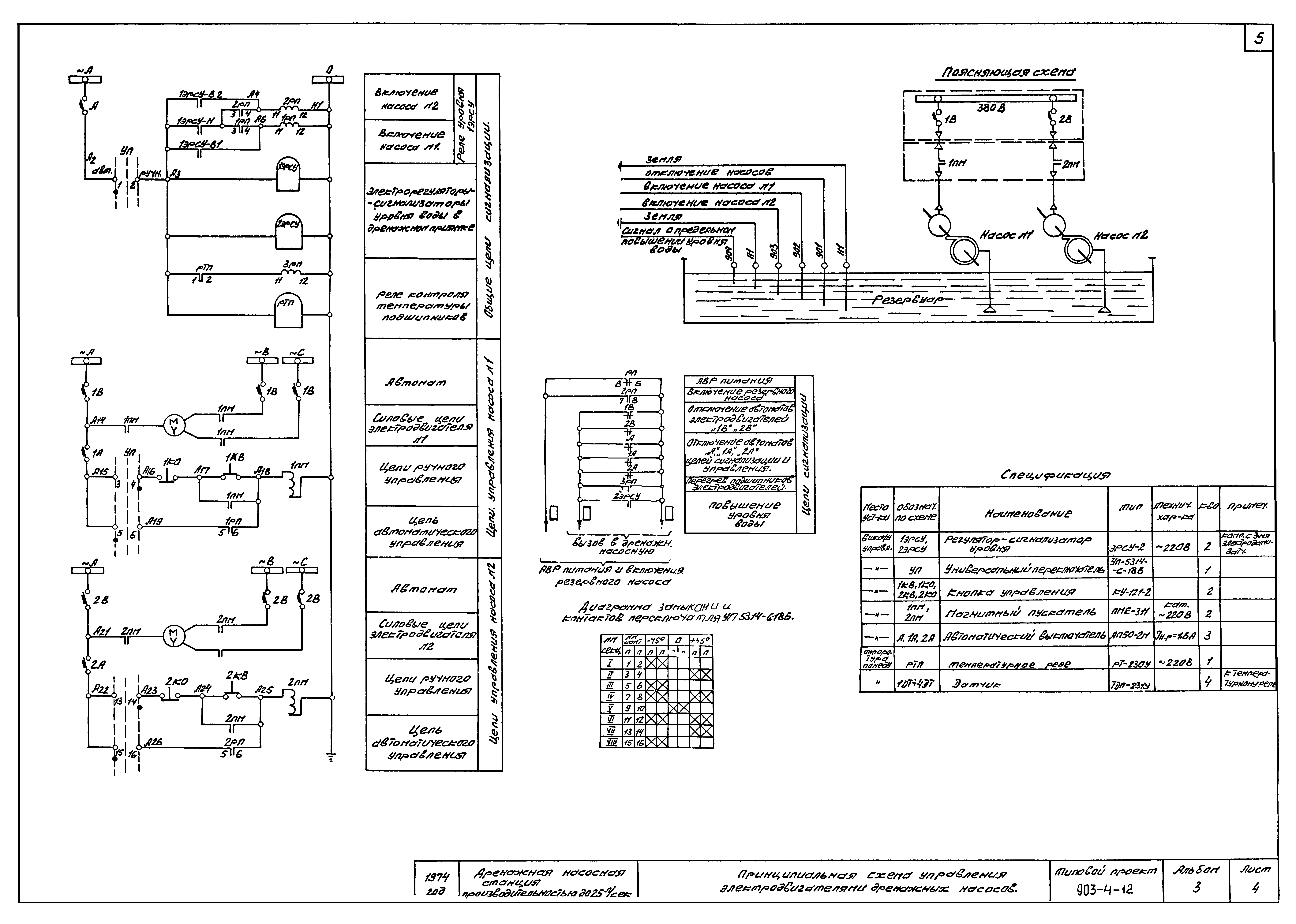
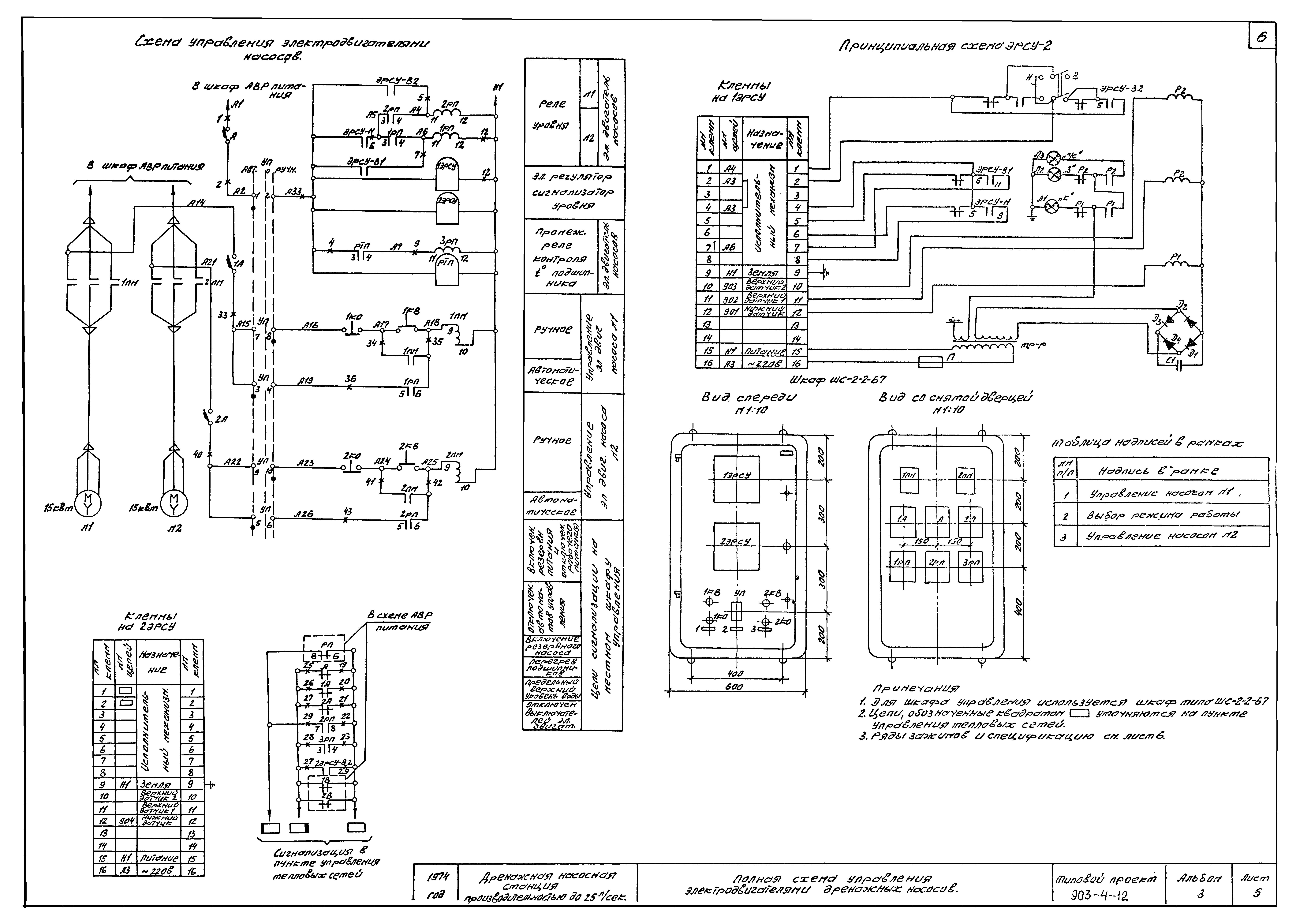
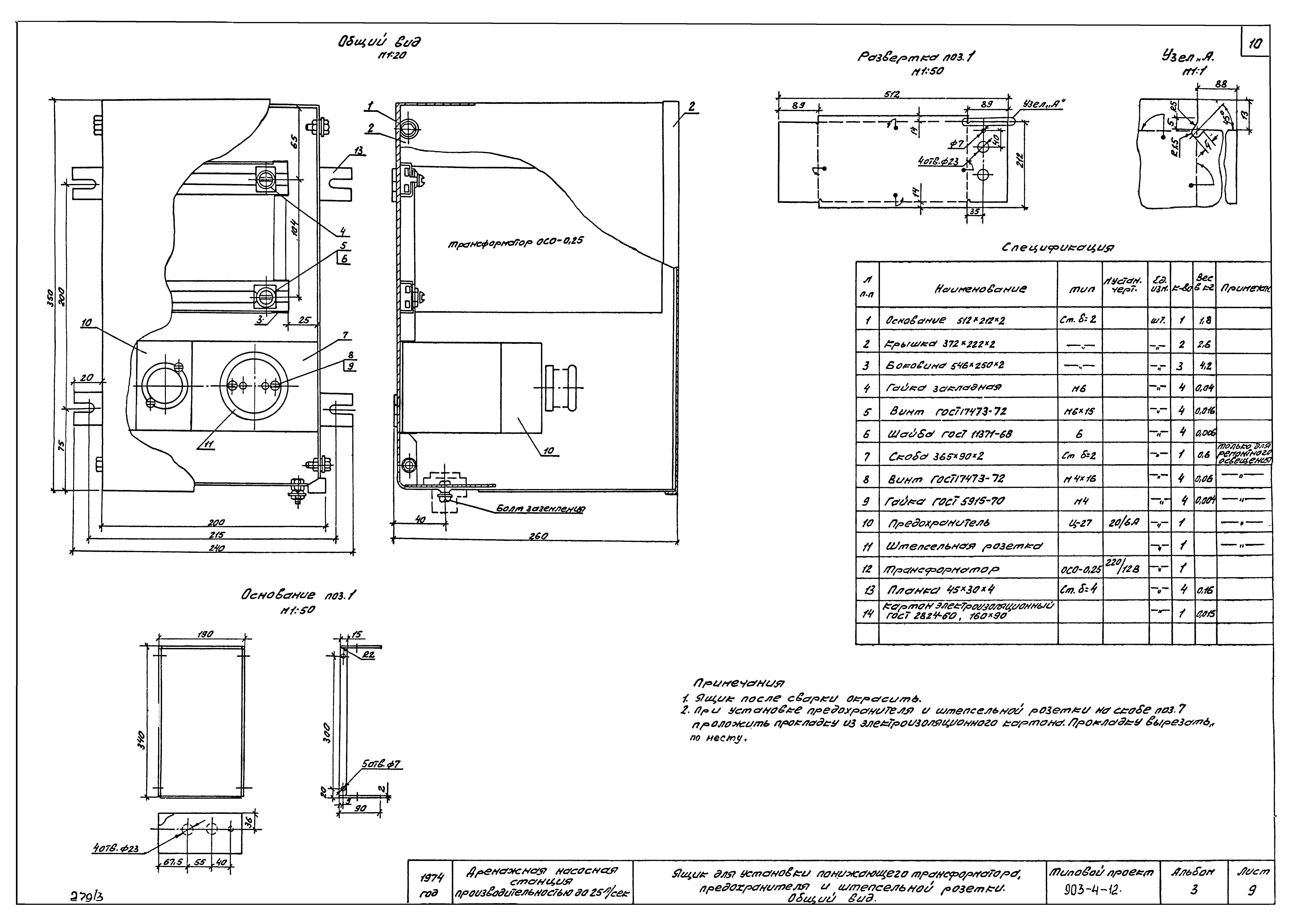
| Оглавление: | ТП 903-4-12 Содержание альбома и пояснительная записка ТП 903-4-12 Схема электроснабжения дренажной насосной станции ТП 903-4-12 Полная схема АВР питания дренажной насосной станции ТП 903-4-12 Принципиальная схема управления электродвигателями дренажных насосов ТП 903-4-12 Полная схема управления электродвигателями дренажных насосов ТП 903-4-12 Ряды зажимов в шкафу управления и спецификация ТП 903-4-12 Размещение электрооборудования, раскладка кабелей в дренажной насосной станции и журнал силовых и контрольных кабелей ТП 903-4-12 Сеть освещения и заземление дренажной насосной станции ТП 903-4-12 Ящик для установки понижающего трансформатора, предохранителя и штепсельной розетки. Общий вид ТП 903-4-12 Ящик для установки понижающего трансформатора, предохранителя и штепсельной розетки. Детали ТП 903-4-12 Задание заводу на шкафы ШС-2-1-67, ШС-2-2-67 |
| Разработан: | Теплоэлектропроект |
| Утверждён: | 26.10.1974 Минэнерго СССР (USSR Minenergo 221) |










