Скачать Типовые проектные решения 903-04-13 Альбом II. АвтоматизацияДата актуализации: 01.01.2021
|
| Обозначение: | Типовые проектные решения 903-04-13 |
| Обозначение англ: | 903-04-13 |
| Статус: | справочные материалы, мп, тпр |
| Название рус.: | Альбом II. Автоматизация |
| Дата добавления в базу: | 01.09.2013 |
| Дата актуализации: | 01.01.2021 |
| Дата окончания срока действия: | 07.04.1981 |
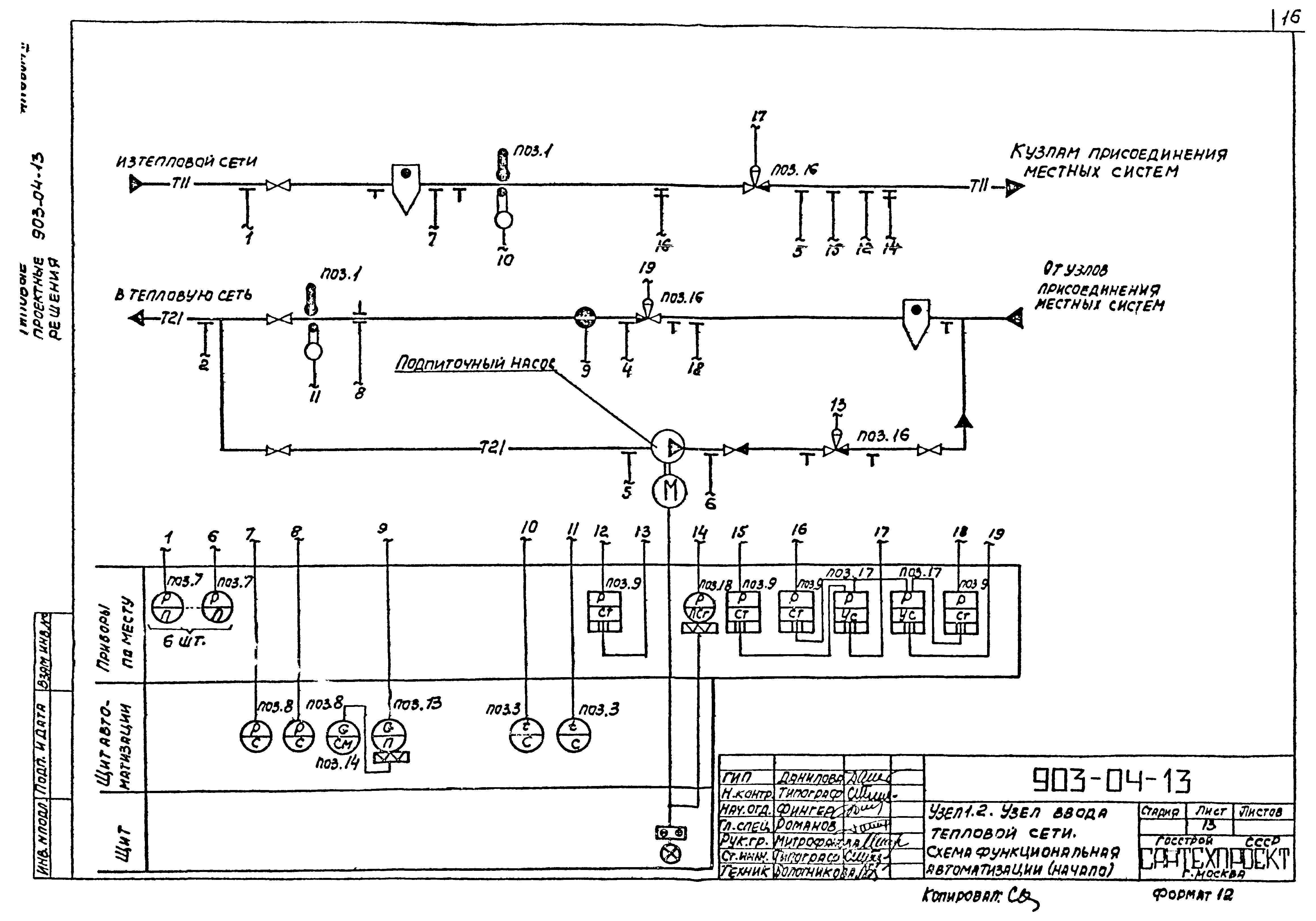
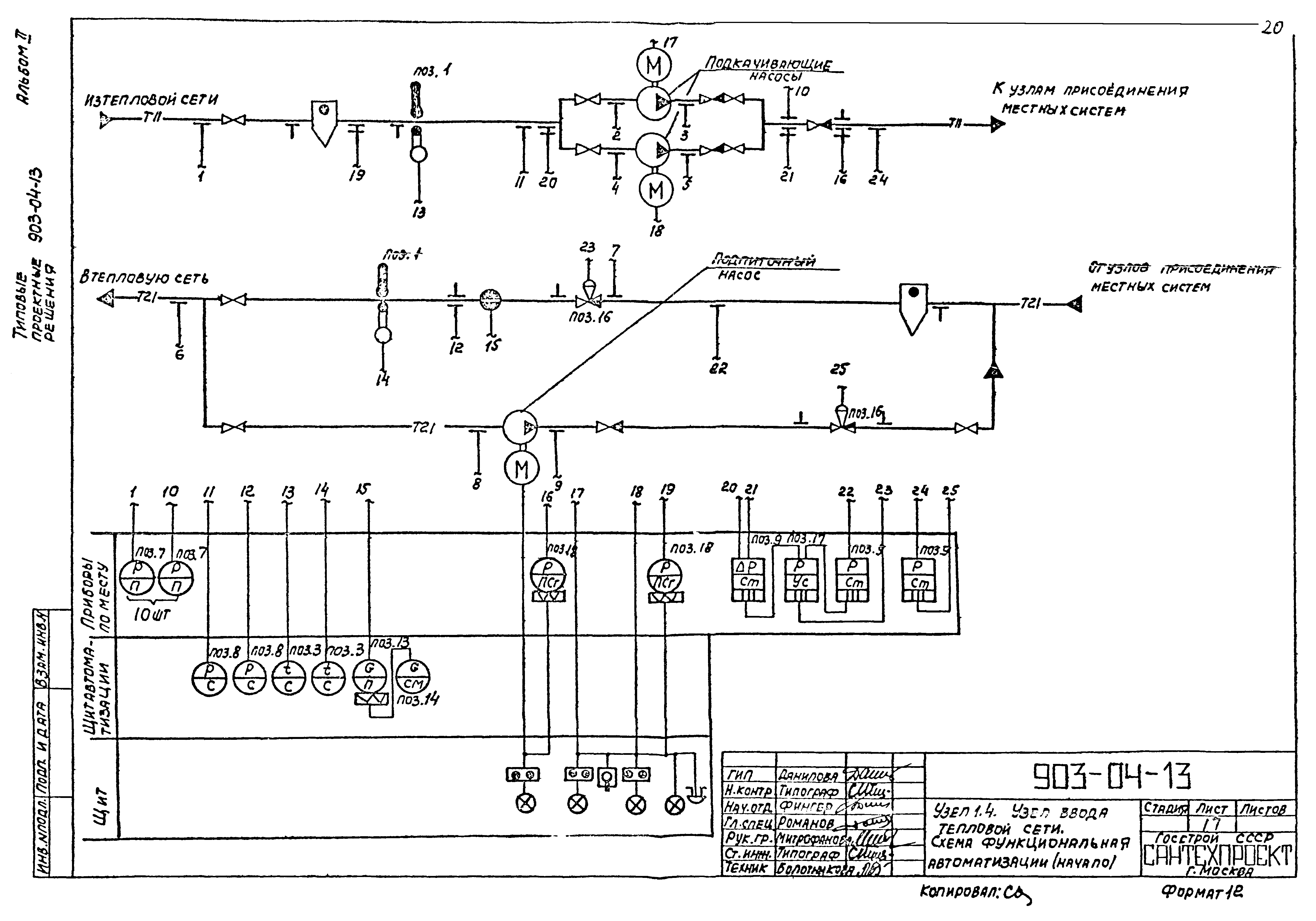
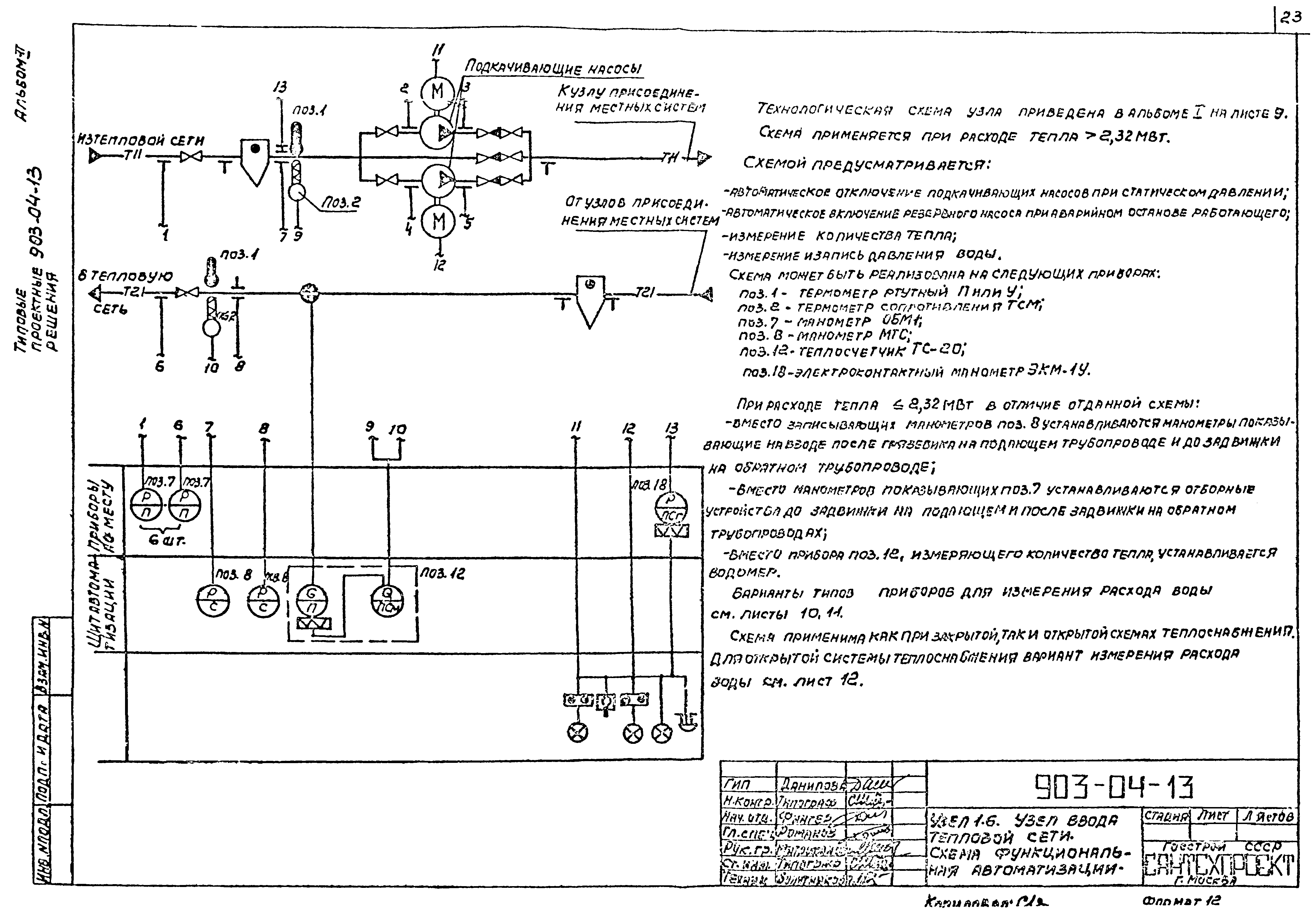
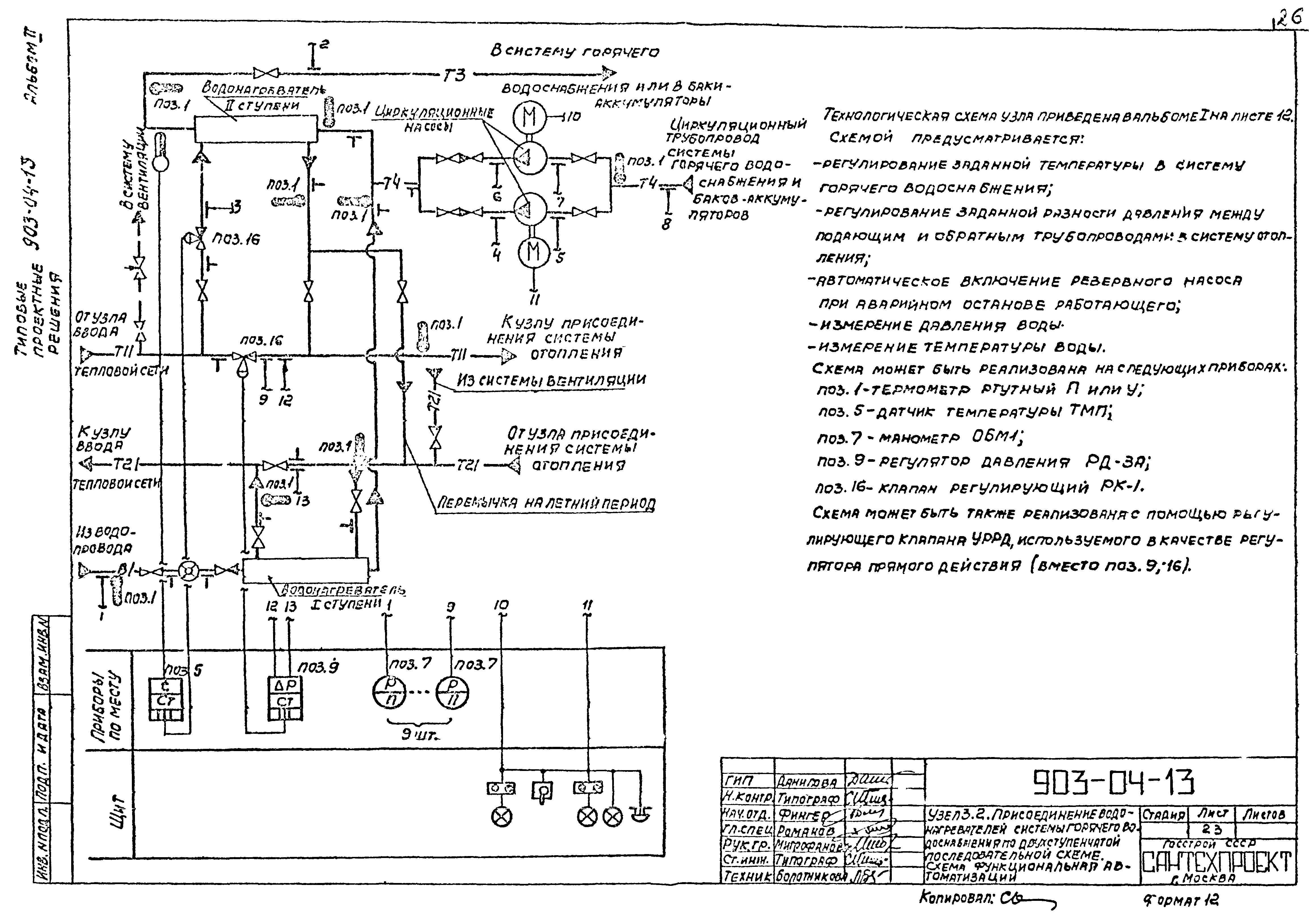
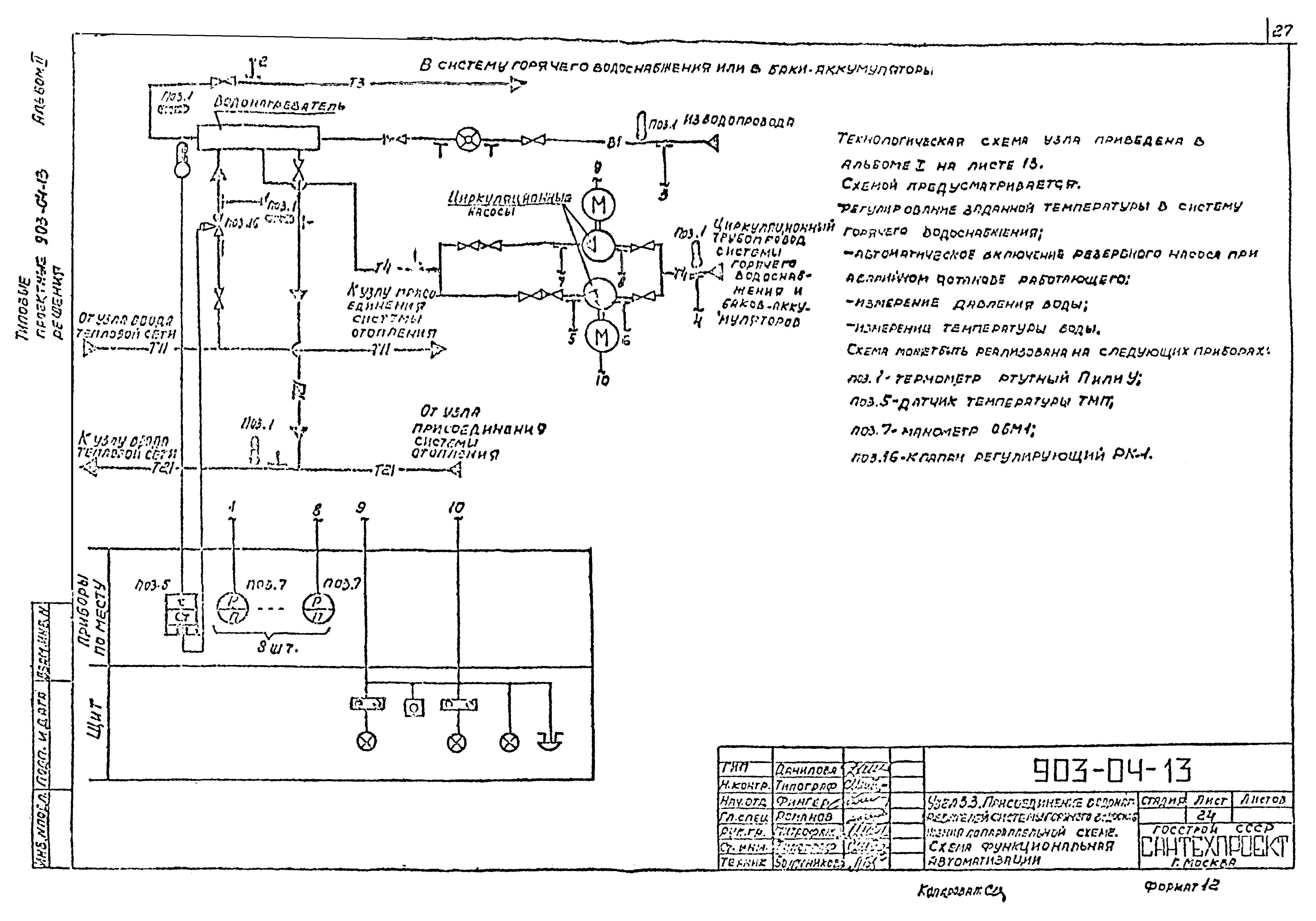
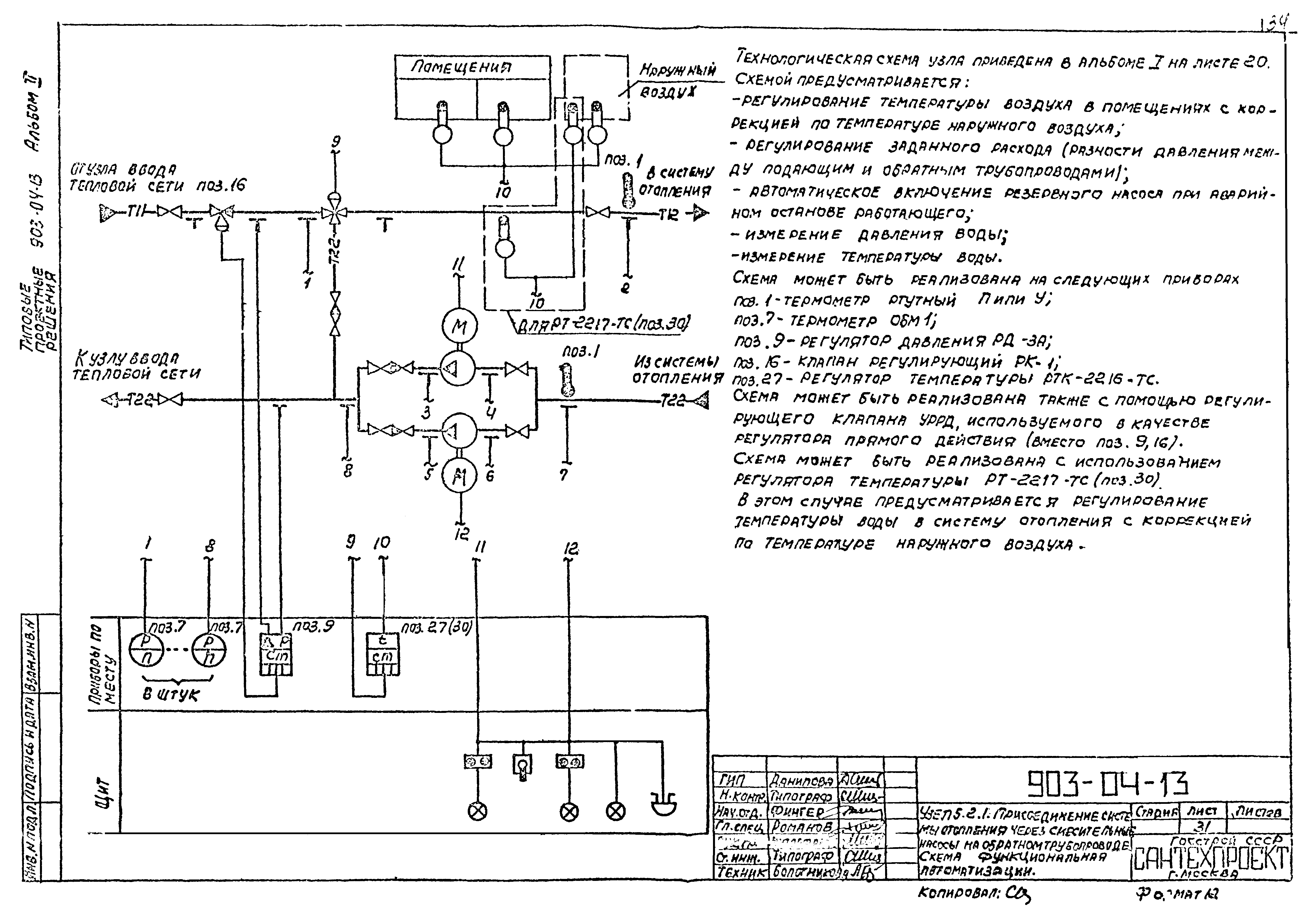
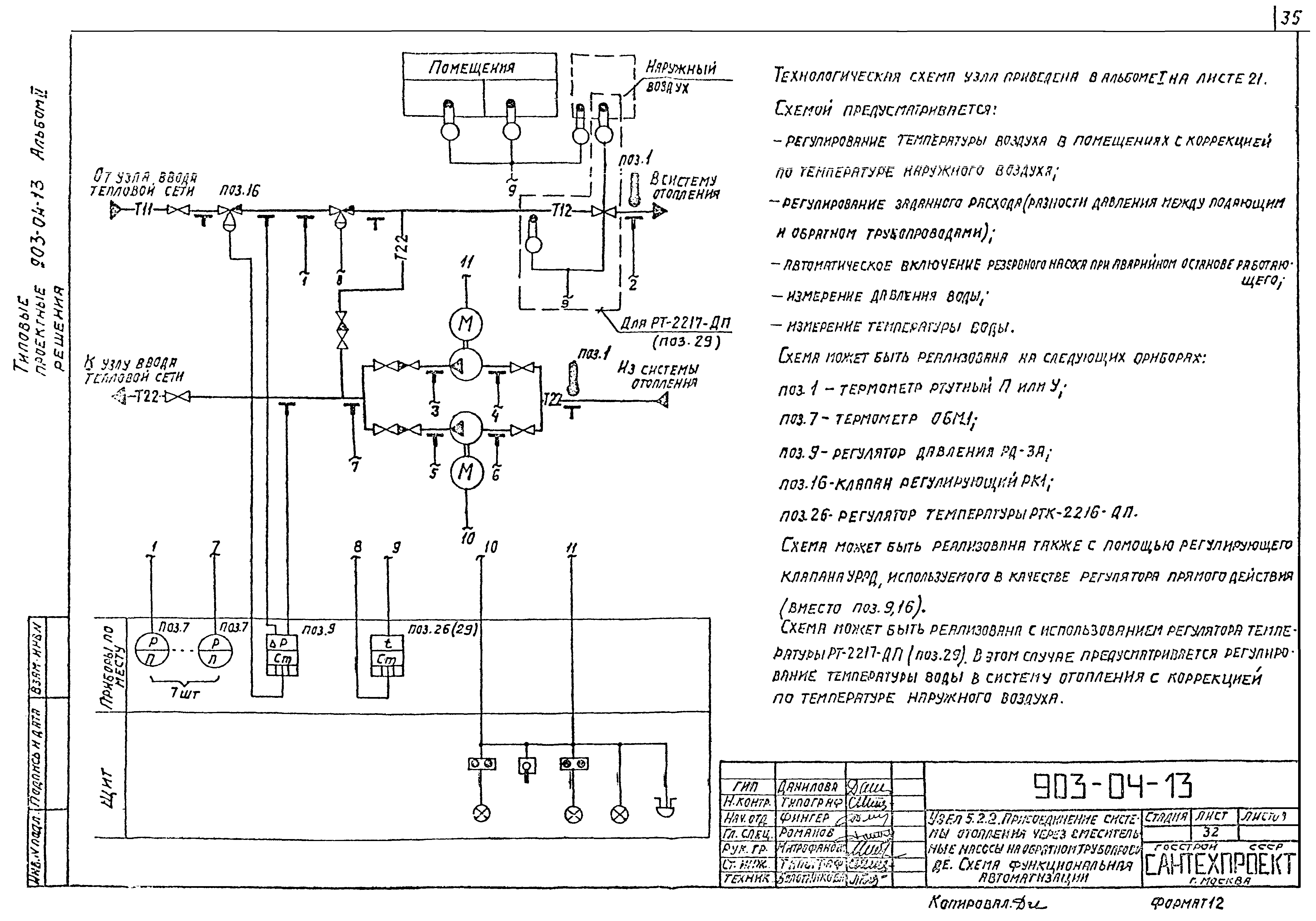
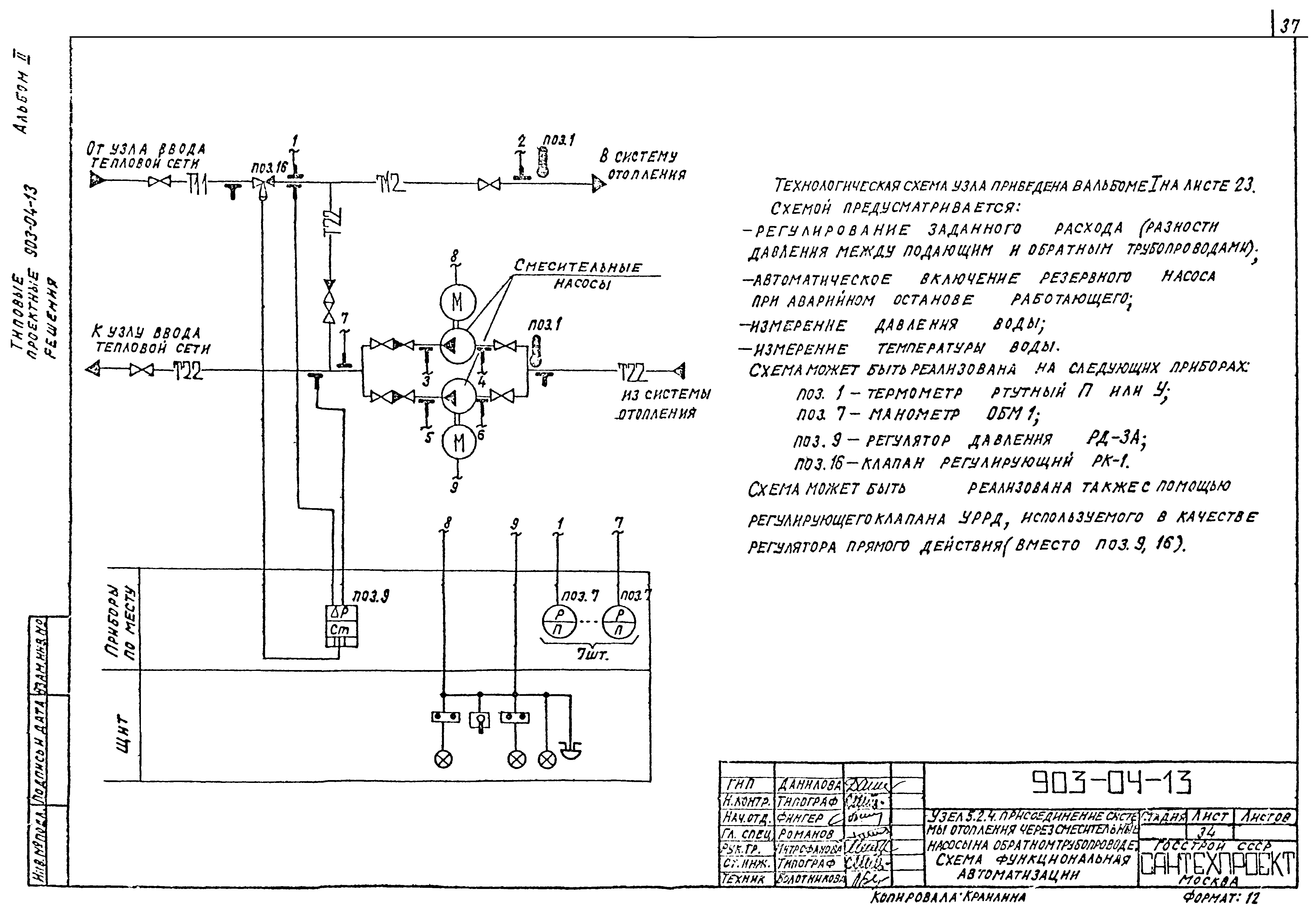
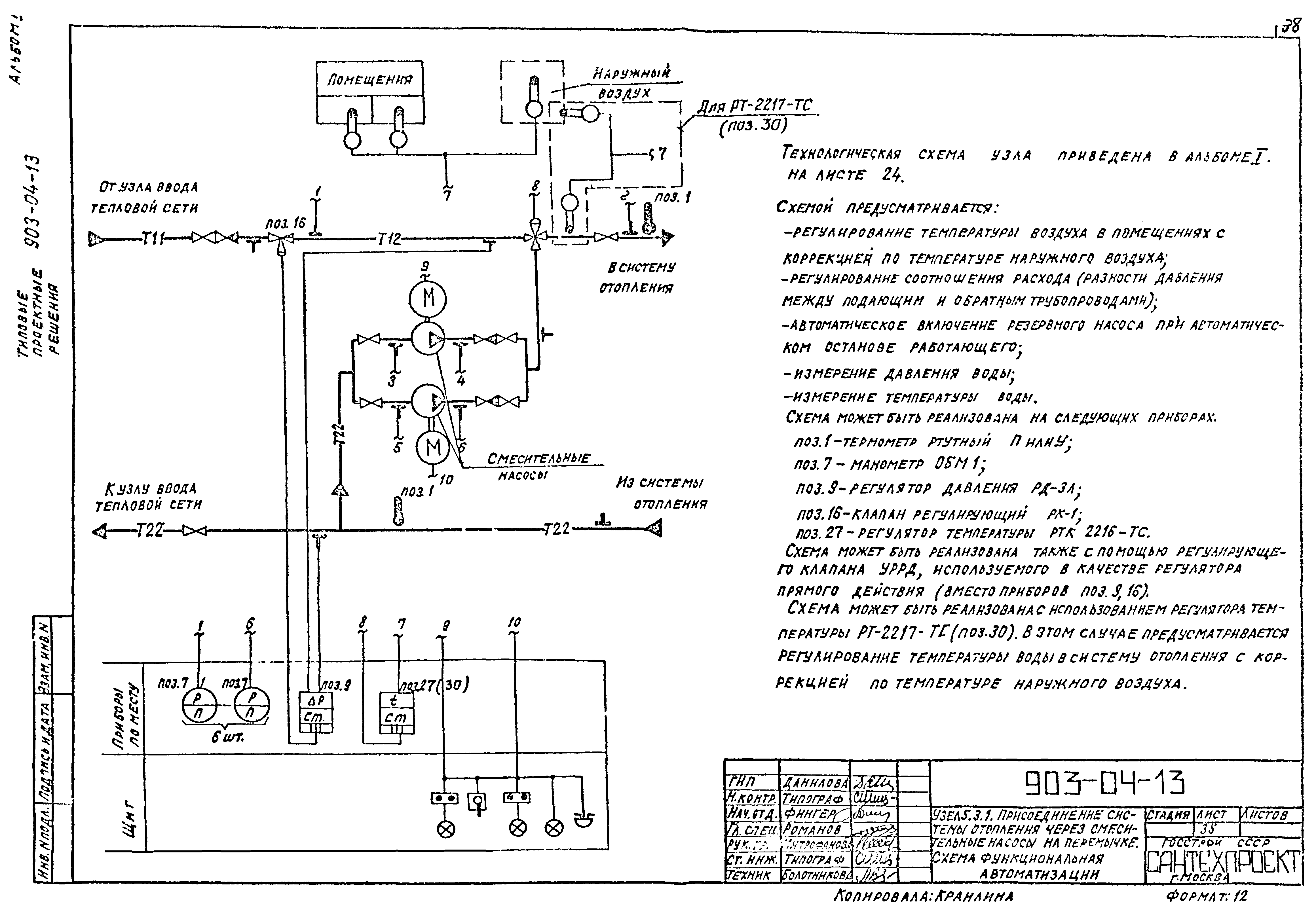
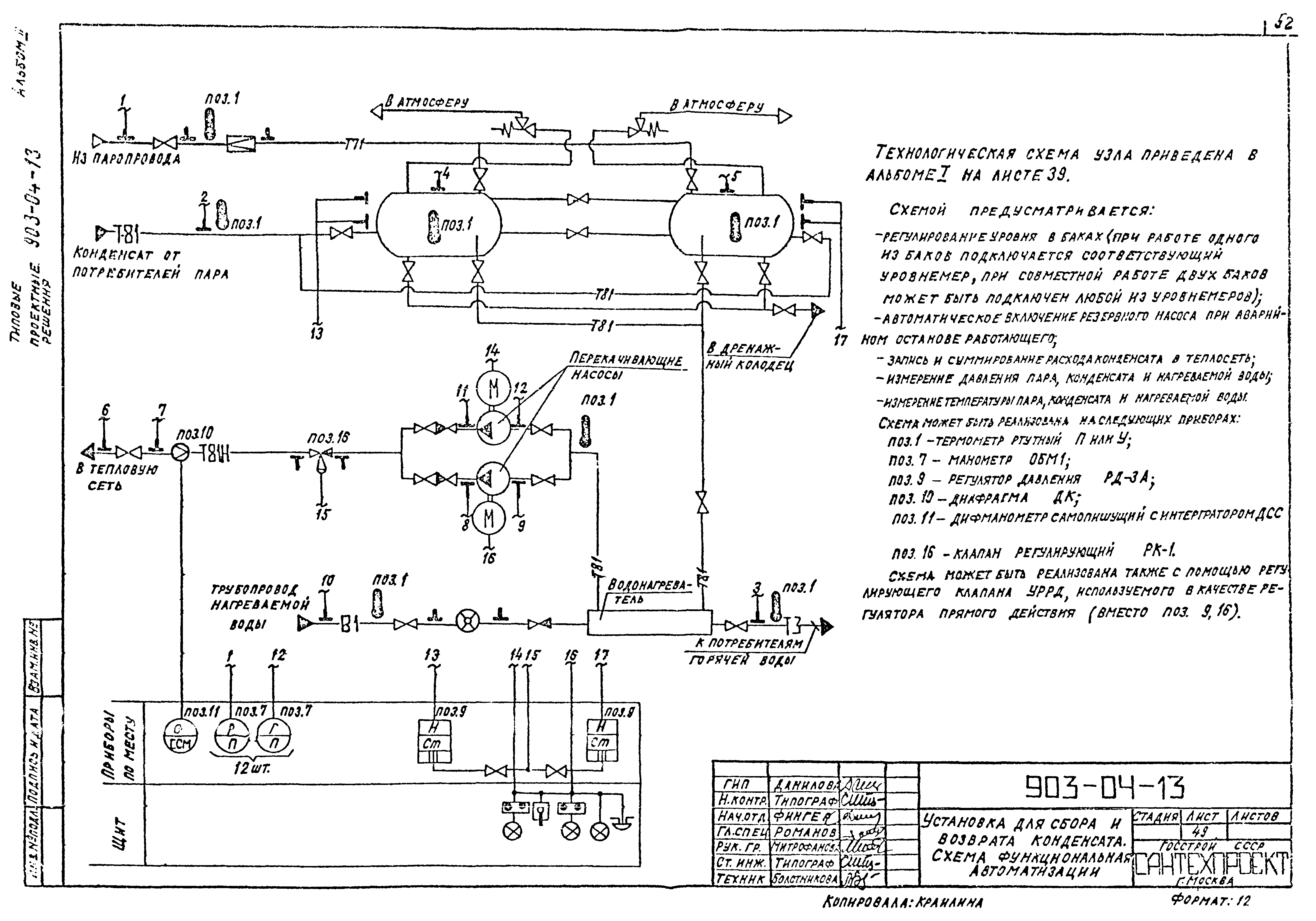
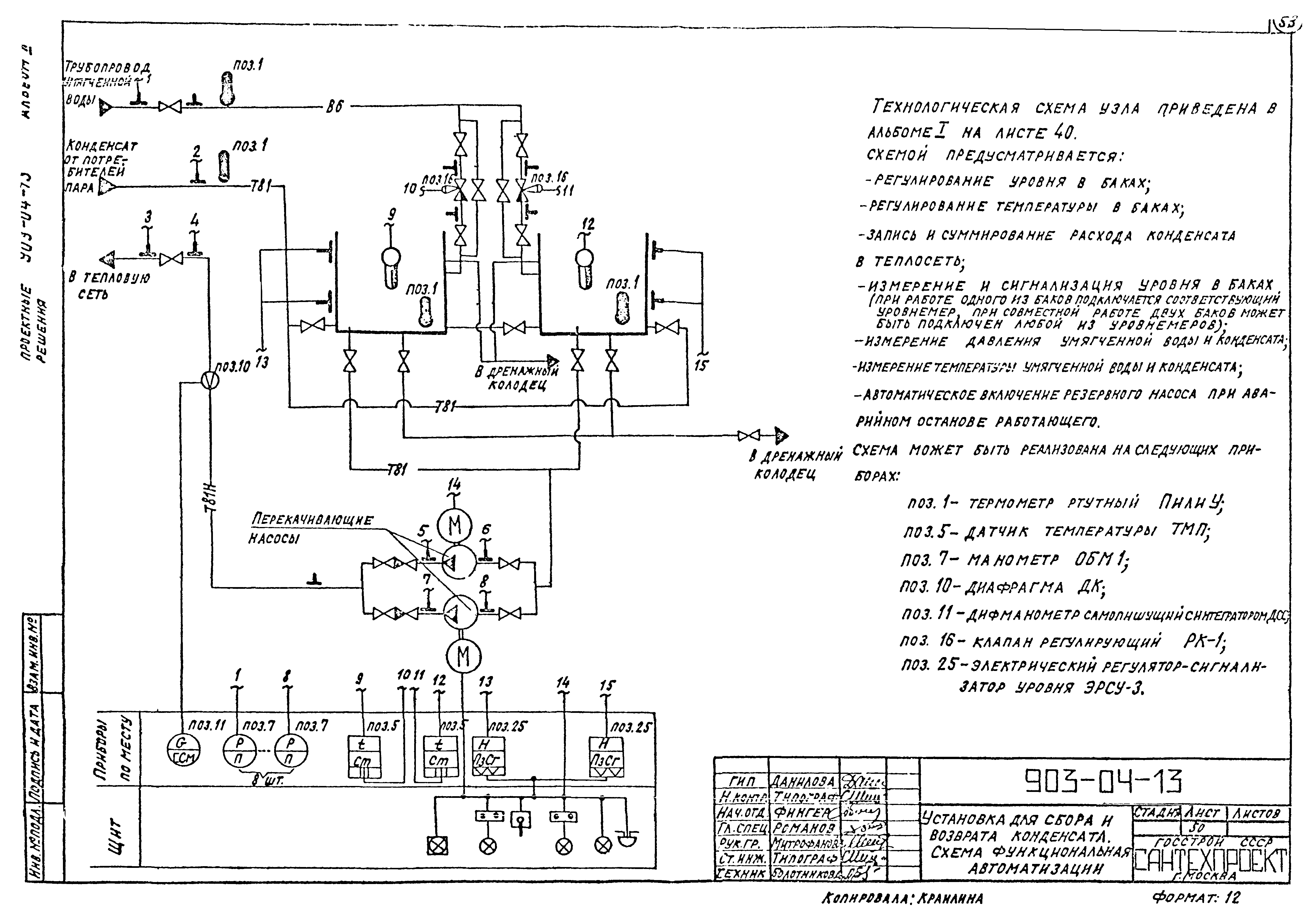
| Оглавление: | ТП 903-04-13 Пояснительная записка (начало) ТП 903-04-13 Пояснительная записка (продолжение) ТП 903-04-13 Пояснительная записка (окончание) ТП 903-04-13 Узел 1.1.1. Узел ввода тепловой сети при закрытой системе теплоснабжения. Схема функциональная автоматизации ТП 903-04-13 Узел 1.1.2. Узел ввода тепловой сети при закрытой системе теплоснабжения. Схема функциональная автоматизации ТП 903-04-13 Узел 1.1.3. Узел ввода тепловой сети при закрытой системе теплоснабжения. Схема функциональная автоматизации ТП 903-04-13 Узел 1.1.4. Узел ввода тепловой сети при закрытой системе теплоснабжения. Схема функциональная автоматизации ТП 903-04-13 Узел 1.2. Узел ввода тепловой сети. Схема функциональная автоматизации (начало) ТП 903-04-13 Узел 1.2. Узел ввода тепловой сети. Схема функциональная автоматизации (окончание) ТП 903-04-13 Узел 1.3. Узел ввода тепловой сети. Схема функциональная автоматизации (начало) ТП 903-04-13 Узел 1.3. Узел ввода тепловой сети. Схема функциональная автоматизации (окончание ТП 903-04-13 Узел 1.4. Узел ввода тепловой сети. Схема функциональная автоматизации (начало) ТП 903-04-13 Узел 1.4. Узел ввода тепловой сети. Схема функциональная автоматизации (окончание) ТП 903-04-13 Узел 1.5. Узел ввода тепловой сети. Схема функциональная автоматизации ТП 903-04-13 Узел 1.6. Узел ввода тепловой сети. Схема функциональная автоматизации ТП 903-04-13 Узел 2.1. Присоединение системы вентиляции. Схема функциональная автоматизации ТП 903-04-13 Узел 3.1. Присоединение водонагревателей системы горячего водоснабжения по двухступенчатой смешанной схеме. Схема функциональная автоматизации ТП 903-04-13 Узел 3.2. Присоединение водонагревателей системы горячего водоснабжения по двухступенчатой последовательной схеме. Схема функциональная автоматизации ТП 903-04-13 Узел 3.3. Присоединение водонагревателей системы горячего водоснабжения по параллельной схеме. Схема функциональная автоматизации ТП 903-04-13 Узел 3.4. Присоединение системы горячего водоснабжения при открытой системе теплоснабжения. Схема функциональная автоматизации ТП 903-04-13 Узел 4.1. Присоединение воздухонагревателей 2 подогрева кондиционирования воздуха. Схема функциональная автоматизации ТП 903-04-13 Узел 4.2. Присоединение воздухонагревателей 2 подогрева кондиционирования воздуха. Схема функциональная автоматизации ТП 903-04-13 Узел 5.1.1. Присоединение системы отопления через элеватор. Схема функциональная автоматизации ТП 903-04-13 Узел 5.1.2. Присоединение системы отопления через элеватор. Схема функциональная автоматизации ТП 903-04-13 Узел 5.1.3. Присоединение системы отопления через элеватор. Схема функциональная автоматизации ТП 903-04-13 Узел 5.2.1. Присоединение системы отопления через смесительные насосы на обратном трубопроводе. Схема функциональная автоматизации ТП 903-04-13 Узел 5.2.2. Присоединение системы отопления через смесительные насосы на обратном трубопроводе. Схема функциональная автоматизации ТП 903-04-13 Узел 5.2.3. Присоединение системы отопления через смесительные насосы на обратном трубопроводе. Схема функциональная автоматизации ТП 903-04-13 Узел 5.2.4. Присоединение системы отопления через смесительные насосы на обратном трубопроводе. Схема функциональная автоматизации ТП 903-04-13 Узел 5.3.1. Присоединение системы отопления через смесительные насосы на перемычке. Схема функциональная автоматизации ТП 903-04-13 Узел 5.3.2. Присоединение системы отопления через смесительные насосы на перемычке. Схема функциональная автоматизации ТП 903-04-13 Узел 5.3.3. Присоединение системы отопления через смесительные насосы на перемычке. Схема функциональная автоматизации ТП 903-04-13 Узел 5.3.4. Присоединение системы отопления через смесительные насосы на перемычке. Схема функциональная автоматизации ТП 903-04-13 Узел 5.4. Присоединение системы отопления через смесительные насосы на подающем трубопроводе. Схема функциональная автоматизации ТП 903-04-13 Узел 5.5.1. Присоединение системы отопления через водоводяной нагреватель. Схема функциональная автоматизации ТП 903-04-13 Узел 5.5.2. Присоединение системы отопления через водоводяной нагреватель. Схема функциональная автоматизации ТП 903-04-13 Узел 5.5.3. Присоединение системы отопления через водоводяной нагреватель. Схема функциональная автоматизации ТП 903-04-13 Узел 5.5.4. Присоединение системы отопления через водоводяной нагреватель. Схема функциональная автоматизации ТП 903-04-13 Ввод паропровода. Схема функциональная автоматизации ТП 903-04-13 Редукционная установка. Схема функциональная автоматизации ТП 903-04-13 Охладительная установка. Схема функциональная автоматизации ТП 903-04-13 Редукционно-охладительная установка. Схема функциональная автоматизации ТП 903-04-13 Установка для получения пара вторичного вскипания. Схема функциональная автоматизации ТП 903-04-13 Установка для сбора и возврата конденсата. Схема функциональная автоматизации |
| Разработан: | Сантехпроект Госстроя СССР |
| Утверждён: | 07.04.1981 Главпромстройпроект Госстроя СССР (19) |




















































