Скачать Типовой проект 704-5-24.88 Альбом 2. Архитектурно-строительные решения. Конструкции железобетонные. Конструкции металлическиеДата актуализации: 01.01.2021
|
| Обозначение: | Типовой проект 704-5-24.88 |
| Обозначение англ: | 704-5-24.88 |
| Статус: | не действует |
| Название рус.: | Альбом 2. Архитектурно-строительные решения. Конструкции железобетонные. Конструкции металлические |
| Дата добавления в базу: | 01.09.2013 |
| Дата актуализации: | 01.01.2021 |
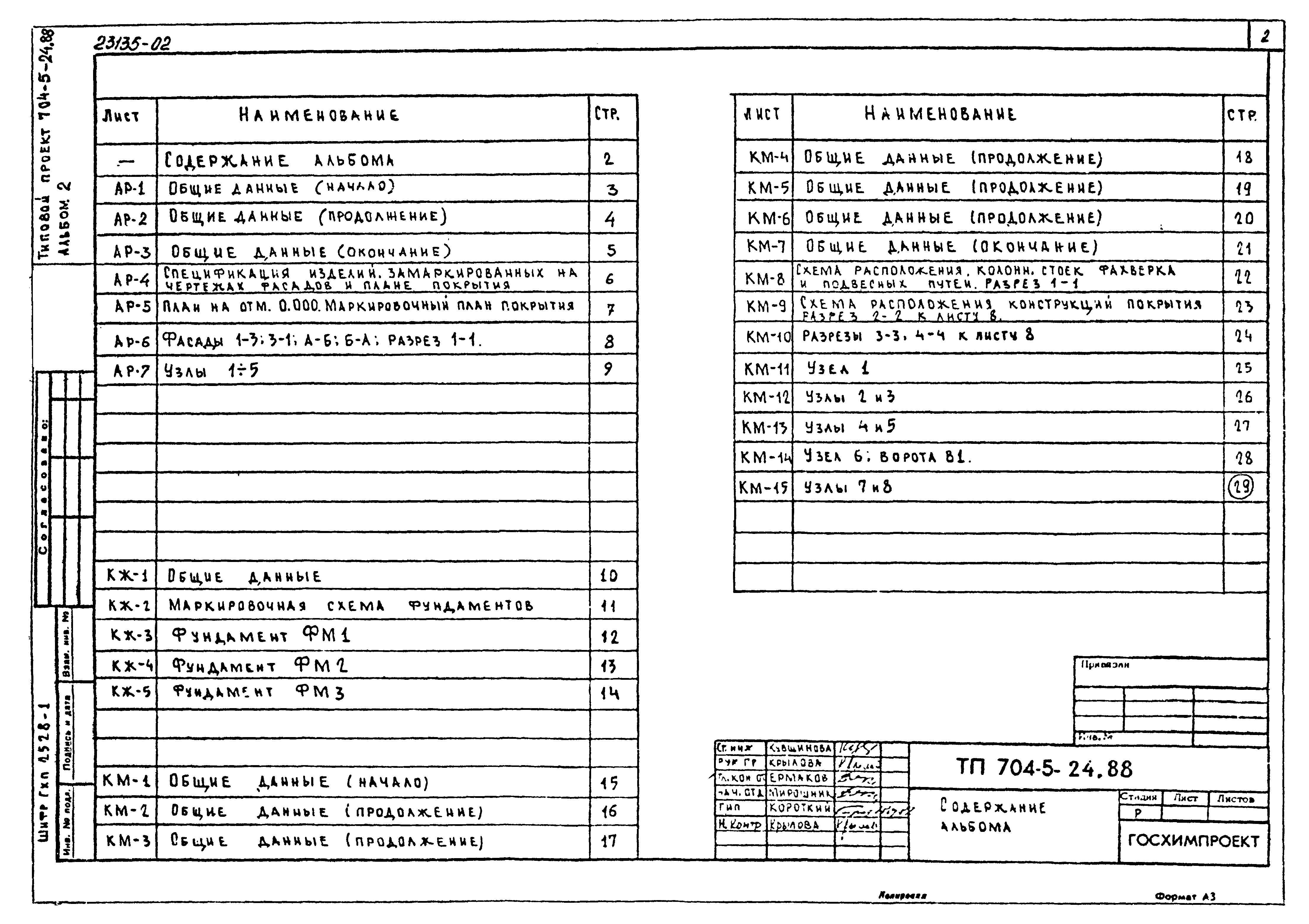
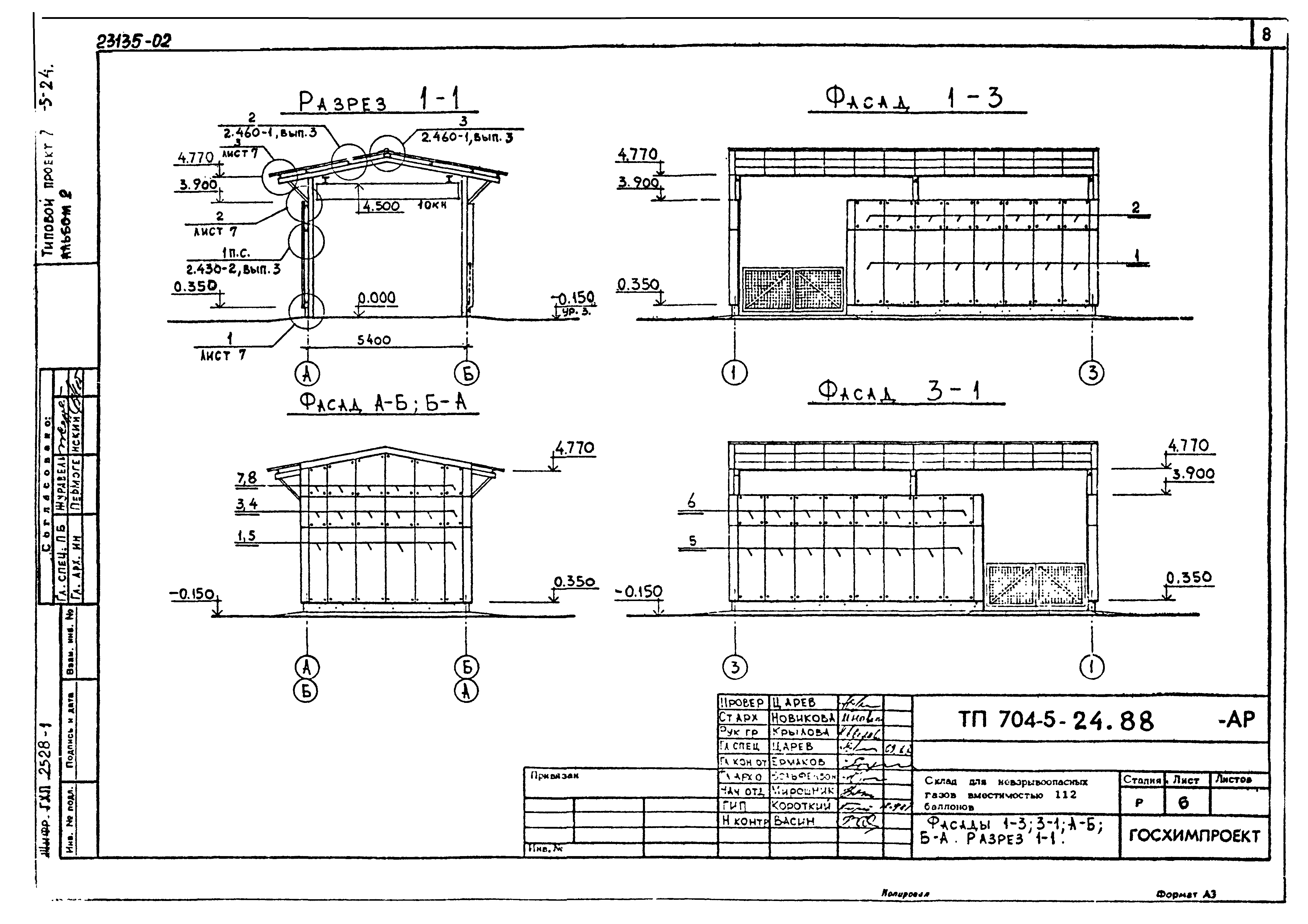
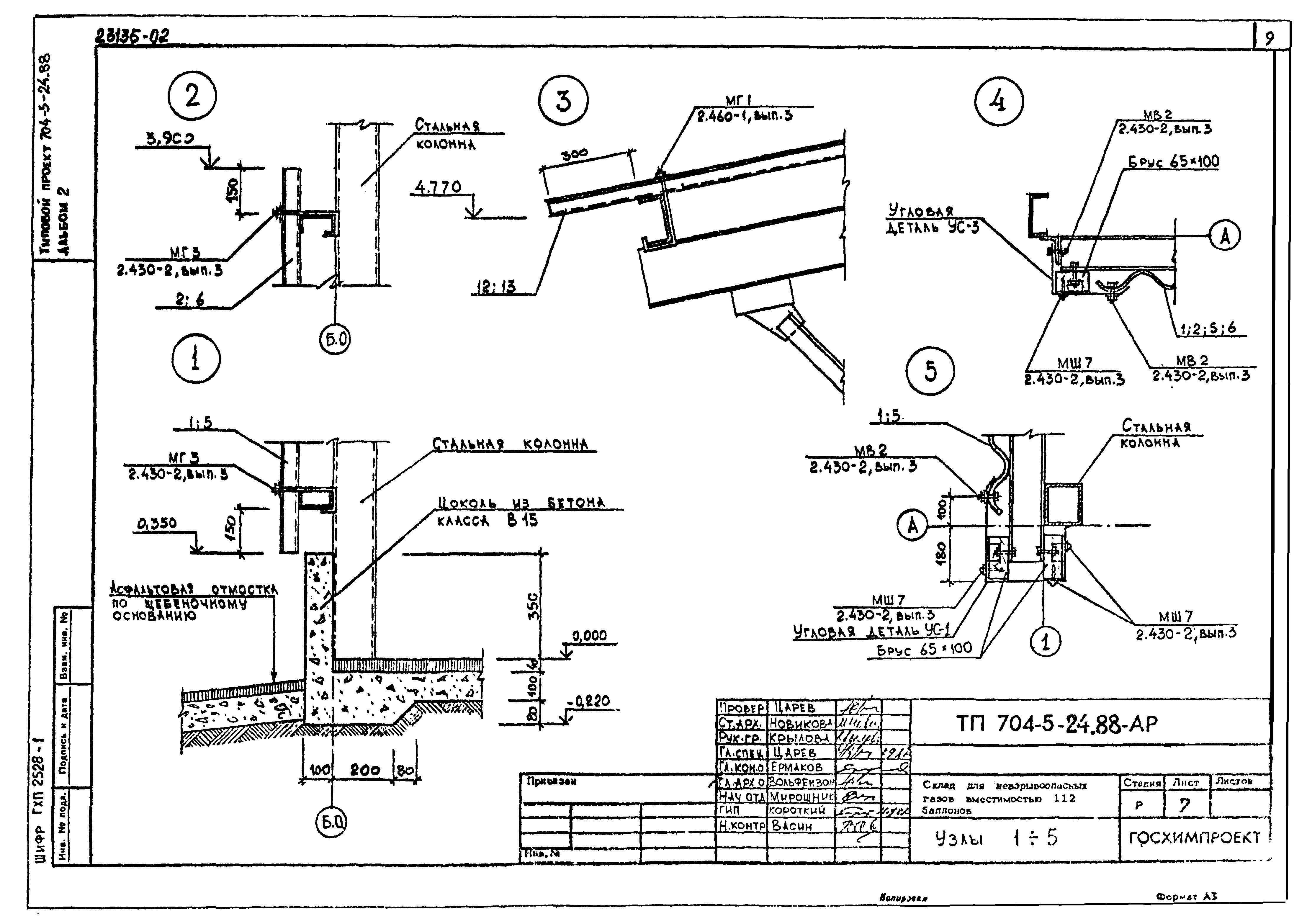
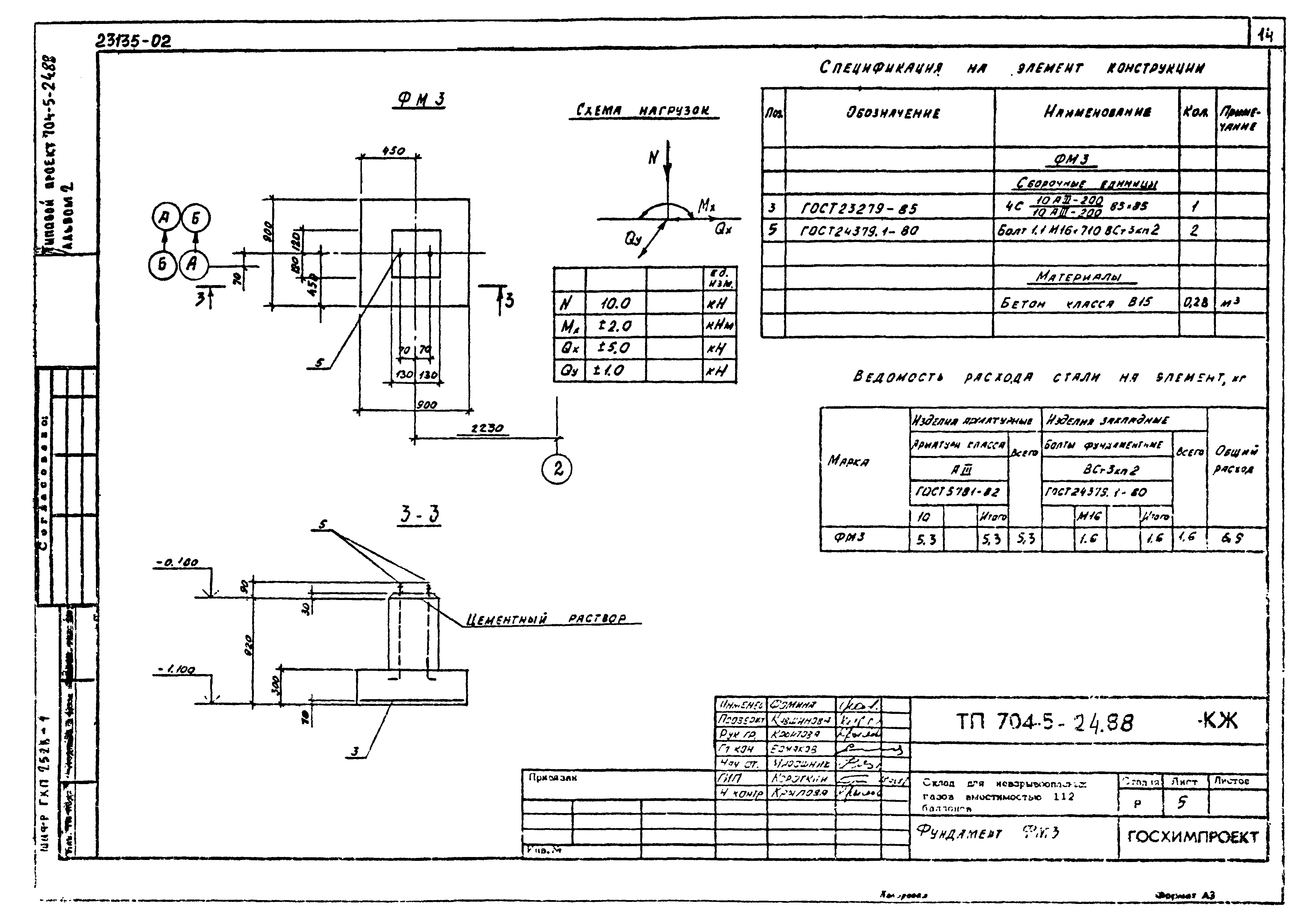
| Оглавление: | ТП 704-5-24.88 Содержание альбома ТП 704-5-24.88-АР-1 Общие данные (начало) ТП 704-5-24.88-АР-2 Общие данные (продолжение) ТП 704-5-24.88-АР-3 Общие данные (окончание) ТП 704-5-24.88-АР-4 Спецификация изделий, замаркированных на чертежах фасадов и плане покрытия ТП 704-5-24.88-АР-5 План на отм. 0.000. Маркировочный план покрытия ТП 704-5-24.88-АР-6 Фасады 1-3;3-1;А-Б;Б-А. Разрез 1-1 ТП 704-5-24.88-АР-7 Узлы 1-5 ТП 704-5-24.88-КЖ-1 Общие данные ТП 704-5-24.88-КЖ-2 Маркировочная схема фундаментов ТП 704-5-24.88-КЖ-3 Фундамент ФМ1 ТП 704-5-24.88-КЖ-4 Фундамент ФМ2 ТП 704-5-24.88-КЖ-5 Фундамент ФМ3 ТП 704-5-24.88-КМ-1 Общие данные (начало) ТП 704-5-24.88-КМ-2 Общие данные (продолжение) ТП 704-5-24.88-КМ-3 Общие данные (продолжение) ТП 704-5-24.88-КМ-4 Общие данные (продолжение) ТП 704-5-24.88-КМ-5 Общие данные (продолжение) ТП 704-5-24.88-КМ-6 Общие данные (продолжение) ТП 704-5-24.88-КМ-7 Общие данные (окончание) ТП 704-5-24.88-КМ-8 Схема расположения колонн, стоек фахверка и подвесных путей. Разрез 1-1 ТП 704-5-24.88-КМ-9 Схема расположения конструкций покрытия. Разрез 2-2 к листу 8 ТП 704-5-24.88-КМ-10 Разрезы 3-3,4-4 к листу 8 ТП 704-5-24.88-КМ-11 Узел 1 ТП 704-5-24.88-КМ-12 Узлы 2 и 3 ТП 704-5-24.88-КМ-13 Узлы 4 и 5 ТП 704-5-24.88-КМ-14 Узел 6. Ворота В1 ТП 704-5-24.88-КМ-15 Узлы 7 и 8 |
| Разработан: | Госхимпроект |
| Утверждён: | 22.03.1988 Минхимпром СССР (USSR Minkhimprom 42-1755) |






























