Скачать Типовой проект 704-6-2 Альбом II. Нестандартизированное оборудованиеДата актуализации: 01.01.2021
|
| Обозначение: | Типовой проект 704-6-2 |
| Обозначение англ: | 704-6-2 |
| Статус: | не действует |
| Название рус.: | Альбом II. Нестандартизированное оборудование |
| Дата добавления в базу: | 01.09.2013 |
| Дата актуализации: | 01.01.2021 |
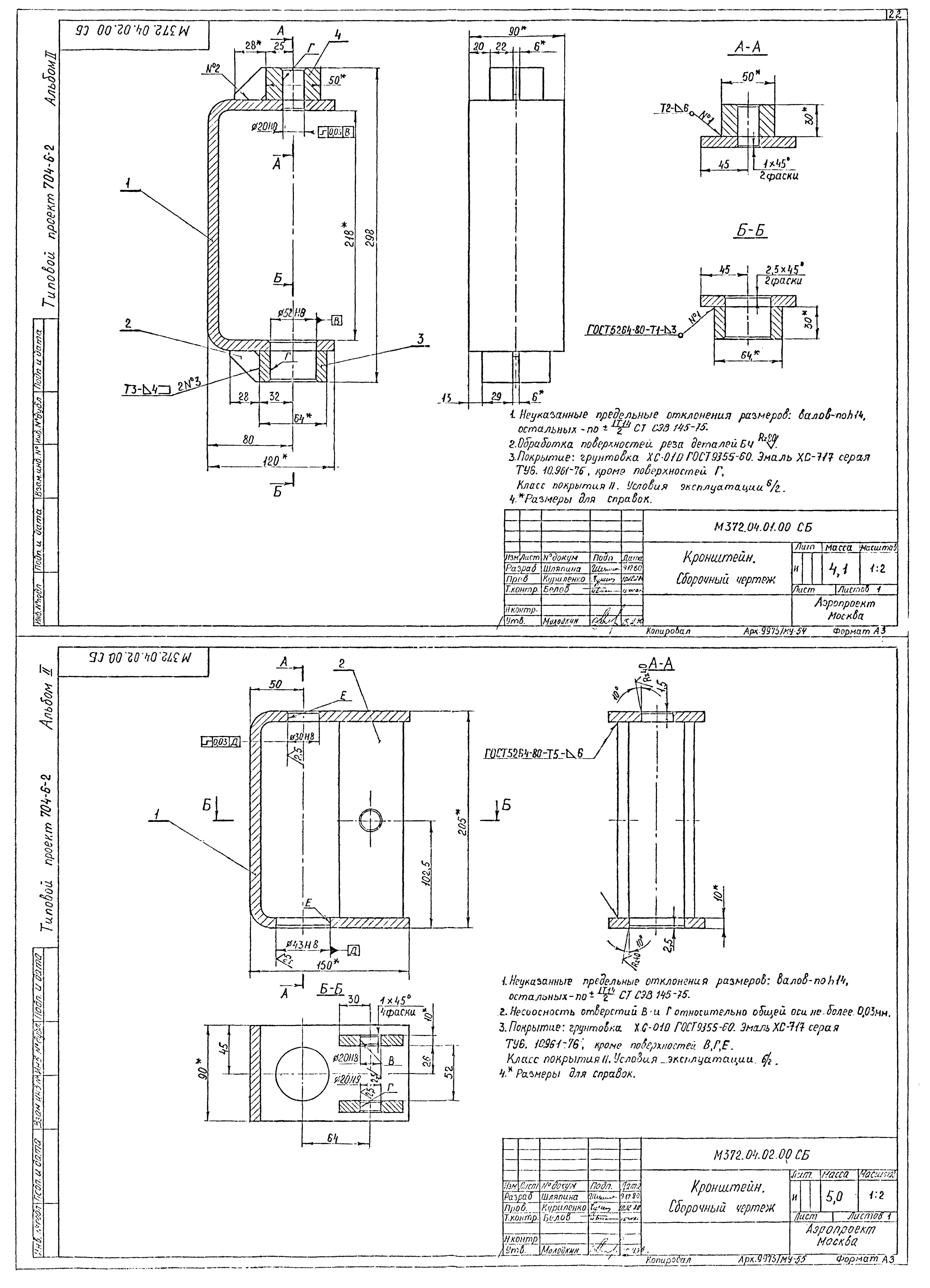
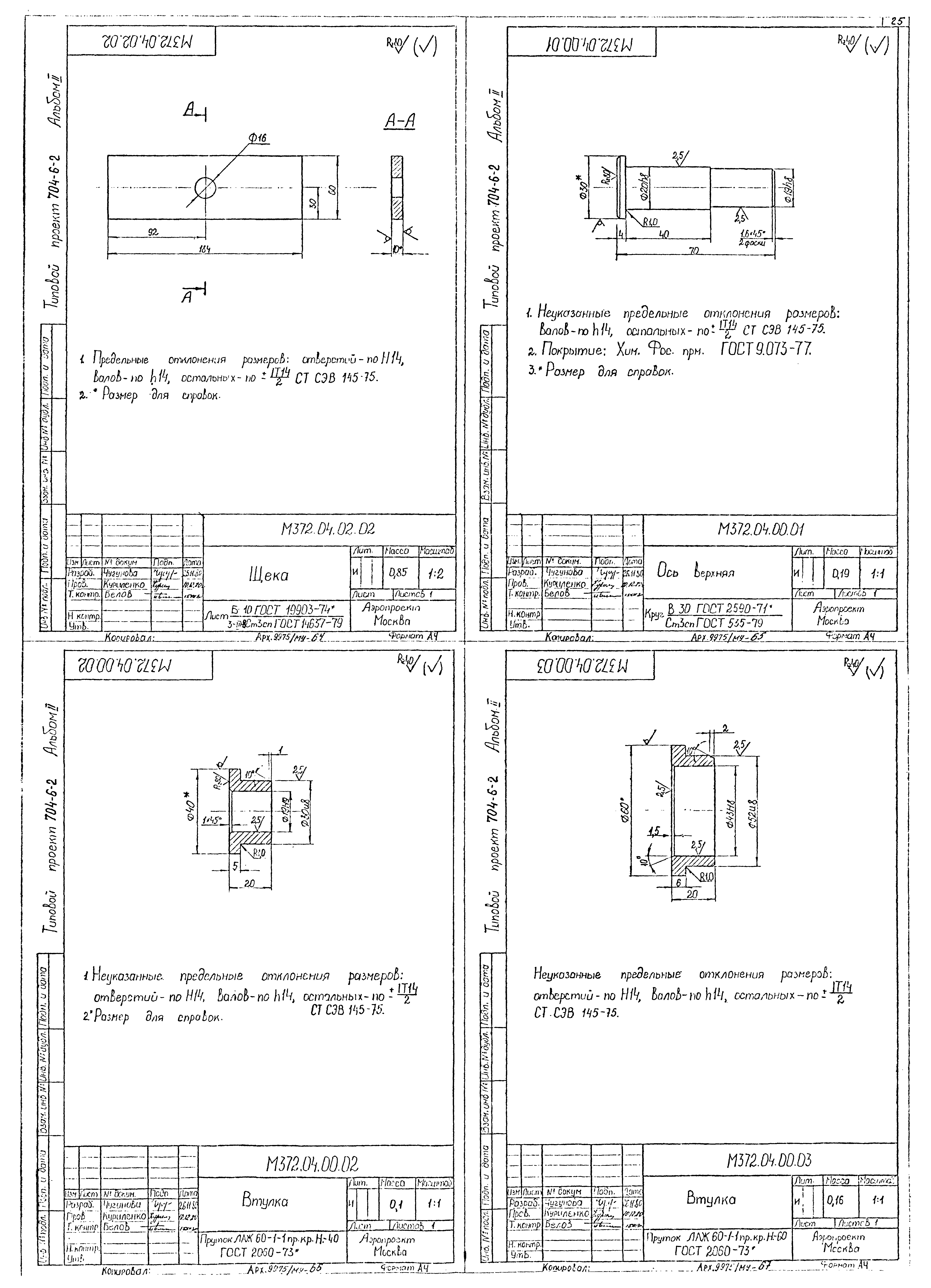
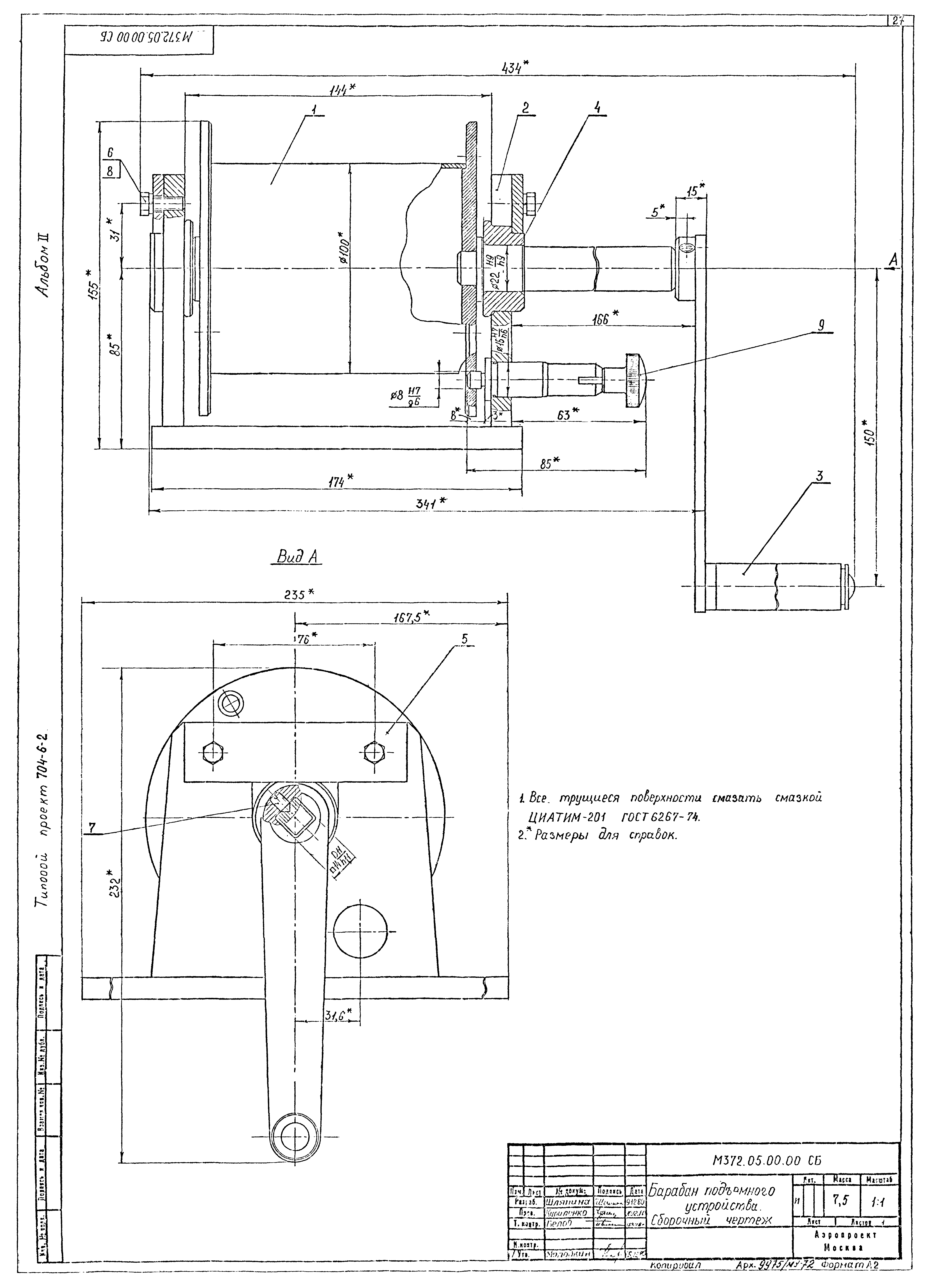
| Оглавление: | ТП 704-6-2 Титульный лист ТП 704-6-2 Содержание альбома ТП 704-6-2 М372.00.00.00 ВС Подъемно-поворотное устройство парных стояков. Ведомость спецификаций ТП 704-6-2 М372.00.00.00 ВП Подъемно-поворотное устройство парных стояков. Ведомость покупных изделий ТП 704-6-2 М372.00.00.07 Скоба ТП 704-6-2 М372.00.00.06 Угольник ТП 704-6-2 М372.00.00.00 Подъемно-поворотное устройство парных стояков ТП 704-6-2 М372.00.00.00 СБ Подъемно-поворотное устройство парных стояков. Сборочный чертеж ТП 704-6-2 М372.01.01.00 СБ Рама. Сборочный чертеж ТП 704-6-2 М372.01.01.00 Рама ТП 704-6-2 М372.01.00.00 Противовес подземного устройства ТП 704-6-2 М372.01.00.00 СБ Противовес подземного устройства. Сборочный чертеж ТП 704-6-2 М372.01.00.01 Башмак ТП 704-6-2 М372.01.00.02 Контргруз ТП 704-6-2 М372.06.00.00 Рама поворотного шарнира ТП 704-6-2 М372.06.00.00 СБ Рама поворотного шарнира. Сборочный чертеж ТП 704-6-2 М372.02.00.00 Шарнир поворотный ТП 704-6-2 М372.02.00.01 Щека ТП 704-6-2 М372.02.00.02 Шайба ТП 704-6-2 М372.02.00.03 Штырь ТП 704-6-2 М372.02.00.00 СБ Шарнир поворотный. Сборочный чертеж ТП 704-6-2 М372.02.10.11 Втулка ТП 704-6-2 М372.02.10.00 СБ Ось в сборе. Сборочный чертеж ТП 704-6-2 М372.02.11.02 Ось ТП 704-6-2 М372.02.10.00 Ось в сборе ТП 704-6-2 М372.02.11.00 Ось ТП 704-6-2 М372.02.11.00 СБ Ось. Сборочный чертеж ТП 704-6-2 М372.02.20.00 СБ Патрубок в сборе. Сборочный чертеж ТП 704-6-2 М372.02.20.00 Патрубок в сборе ТП 704-6-2 М372.02.20.01 Втулка ТП 704-6-2 М372.02.21.00 Патрубок ТП 704-6-2 М372.02.21.00 СБ Патрубок. Сборочный чертеж ТП 704-6-2 М372.02.21.01 Втулка ТП 704-6-2 М372.02.30.01 Вилка ТП 704-6-2 М372.02.30.00 СБ Рукоятка в сборе. Сборочный чертеж ТП 704-6-2 М372.02.30.00 Рукоятка в сборе ТП 704-6-2 М372.02.21.02 Скоба ТП 704-6-2 М372.03.00.00 СБ Укосина. Сборочный чертеж ТП 704-6-2 М372.03.00.00 Укосина ТП 704-6-2 М372.03.00.05 Оголовок укосины ТП 704-6-2 М372.03.01.00 Подвеска ТП 704-6-2 М372.03.01.00 СБ Подвеска. Сборочный чертеж ТП 704-6-2 М372.03.02.00 Полухомут ТП 704-6-2 М372.03.02.00 СБ Полухомут. Сборочный чертеж ТП 704-6-2 М372.03.00.06 Втулка ТП 704-6-2 М372.03.00.04 Шайба ТП 704-6-2 М372.03.02.01 Полухомут ТП 704-6-2 М372.03.02.02 Планка ТП 704-6-2 М372.04.01.00 Кронштейн ТП 704-6-2 М372.04.02.00 Кронштейн ТП 704-6-2 М372.04.00.00 Блок подъемного устройства ТП 704-6-2 М372.04.00.09 Блок ТП 704-6-2 М372.04.00.00 СБ Блок подъемного устройства. Сборочный чертеж ТП 704-6-2 М372.04.01.00 СБ Кронштейн. Сборочный чертеж ТП 704-6-2 М372.04.02.00 СБ Кронштейн. Сборочный чертеж ТП 704-6-2 М372.04.00.07 Втулка направляющая ТП 704-6-2 М372.04.02.01 Скоба ТП 704-6-2 М372.04.01.01 Скоба ТП 704-6-2 М372.04.00.08 Шайба замковая ТП 704-6-2 М372.04.00.05 Ось блока ТП 704-6-2 М372.04.00.06 Ось нижняя ТП 704-6-2 М372.04.00.04 Планка ТП 704-6-2 М372.02.01.02 Ребро ТП 704-6-2 М372.04.02.02 Щека ТП 704-6-2 М372.04.00.01 Ось верхняя ТП 704-6-2 М372.04.00.02 Втулка ТП 704-6-2 М372.04.00.03 Втулка ТП 704-6-2 М372.05.00.01 Втулка ТП 704-6-2 М372.05.01.01 Ось ТП 704-6-2 М372.05.01.04 Ось ТП 704-6-2 М372.05.00.00 Барабан подъемного устройства ТП 704-6-2 М372.05.00.00 СБ Барабан подъемного устройства. Сборочный чертеж ТП 704-6-2 М372.05.01.00 СБ Барабан. Сборочный чертеж ТП 704-6-2 М372.05.01.02 Фланец ТП 704-6-2 М372.05.01.00 Барабан ТП 704-6-2 М372.05.02.00 СБ Опора. Сборочный чертеж ТП 704-6-2 М372.05.02.01 Стойка ТП 704-6-2 М372.05.02.00 Опора ТП 704-6-2 М372.05.03.00 СБ Рукоятка. Сборочный чертеж ТП 704-6-2 М372.05.03.01 Втулка ТП 704-6-2 М372.05.03.00 Рукоятка ТП 704-6-2 М372.01.01.01 Крюк ТП 704-6-2 М372.05.00.02 Оседержатель ТП 704-6-2 М372.05.03.02 Рычаг ТП 704-6-2 М372.05.03.03 Ось ТП 704-6-2 М372.01.00.00 СБ Стяжка. Сборочный чертеж ТП 704-6-2 М372.00.00.03 Балка ТП 704-6-2 М372.01.00.00 Стяжка ТП 704-6-2 М372.07.00.00 СБ Стяжка. Сборочный чертеж ТП 704-6-2 М372.08.00.00 СБ Ложа для рукава. Сборочный чертеж ТП 704-6-2 М372.08.00.01 Ложемент ТП 704-6-2 М372.08.00.00 Ложа для рукава ТП 704-6-2 М372.08.00.03 Ложемент ТП 704-6-2 М372.08.00.02 Ложа ТП 704-6-2 М374.06.00.00 Бобышка ТП 704-6-2 М373.00.00.00 ВС Груз-противовес ТП 704-6-2 М373.00.00.00 ВП Подъемно-поворотное устройство одиночного стояка. Ведомость спецификаций ТП 704-6-2 М373.00.00.00 ВС Подъемно-поворотное устройство одиночного стояка. Ведомость покупных изделий ТП 704-6-2 М372.00.00.00 Подъемно-поворотное устройство одиночного стояка ТП 704-6-2 М372.00.00.05 Связь ТП 704-6-2 М372.00.00.04 Направляющая ТП 704-6-2 М373.00.00.00 СБ Подъемно-поворотное устройство одиночного стояка. Сборочный чертеж ТП 704-6-2 М374.00.00.00 ВС Откидной мостик эстакады. Ведомость спецификаций ТП 704-6-2 М374.00.00.00 ВП Откидной мостик эстакады. Ведомость покупных изделий ТП 704-6-2 М374.00.00.05 Корпус подшипника ТП 704-6-2 М374.00.00.00 Откидной мостик эстакады ТП 704-6-2 М374.00.00.00 СБ Откидной мостик эстакады. . Сборочный чертеж ТП 704-6-2 М374.01.00.00 Рама ТП 704-6-2 М374.01.00.11 Ось ТП 704-6-2 М374.01.00.09 Опора ТП 704-6-2 М374.01.00.00 СБ Рама. Сборочный чертеж ТП 704-6-2 М374.01.00.03 Косынка ТП 704-6-2 М374.01.00.01 Косынка ТП 704-6-2 М374.01.00.06 Косынка ТП 704-6-2 М374.01.00.13 Упор ТП 704-6-2 М374.01.00.04 Опора ТП 704-6-2 М374.01.00.05 Связь ТП 704-6-2 М374.01.00.06 Связь ТП 704-6-2 М374.01.00.08 Раскос ТП 704-6-2 М374.01.00.12 Поперечина ТП 704-6-2 М374.00.00.04 Втулка ТП 704-6-2 М374.00.00.01 Брус ТП 704-6-2 М374.01.00.15 Поперечина ТП 704-6-2 М374.02.00.00 СБ Стойка опорная левая. Сборочный чертеж ТП 704-6-2 М374.02.00.00 Стойка опорная левая ТП 704-6-2 М374.02.00.01 Стойка ТП 704-6-2 М374.02.00.02 Ухо ТП 704-6-2 М374.02.00.03 Опора ТП 704-6-2 М374.03.00.04 Серьга ТП 704-6-2 М374.03.00.03 Палец ТП 704-6-2 М374.03.00.00 СБ Перила. Сборочный чертеж ТП 704-6-2 М374.03.00.00 Перила ТП 704-6-2 М374.03.00.01 Проушина ТП 704-6-2 М374.04.00.00 СБ Стойка. Сборочный чертеж ТП 704-6-2 М374.04.00.00 Стойка ТП 704-6-2 М374.04.00.01 Проушина ТП 704-6-2 М374.05.00.01 Опора ТП 704-6-2 М374.05.00.00 Стойка опорная правая ТП 704-6-2 М374.05.00.00 СБ Стойка опорная правая. Сборочный чертеж ТП 704-6-2 М374.00.00.02 Фиксатор ТП 704-6-2 М374.00.00.03 Пружина ТП 704-6-2 М374.05.00.02 Накладка ТП 704-6-2 М374.01.00.10 Шайба |
| Разработан: | Аэропроект |
| Утверждён: | 23.01.1981 Министерство гражданской авиации СССР (USSR Ministry of Civil Aviation 3) |





















































