Скачать Типовой проект 901-6-93с.86 Альбом II. Технологические и архитектурно-строительные решенияДата актуализации: 01.01.2021
|
| Обозначение: | Типовой проект 901-6-93с.86 |
| Обозначение англ: | 901-6-93с.86 |
| Статус: | не действует |
| Название рус.: | Альбом II. Технологические и архитектурно-строительные решения |
| Дата добавления в базу: | 01.09.2013 |
| Дата актуализации: | 01.01.2021 |
| Дата введения: | 16.04.1986 |
| Дата окончания срока действия: | 01.07.1996 |
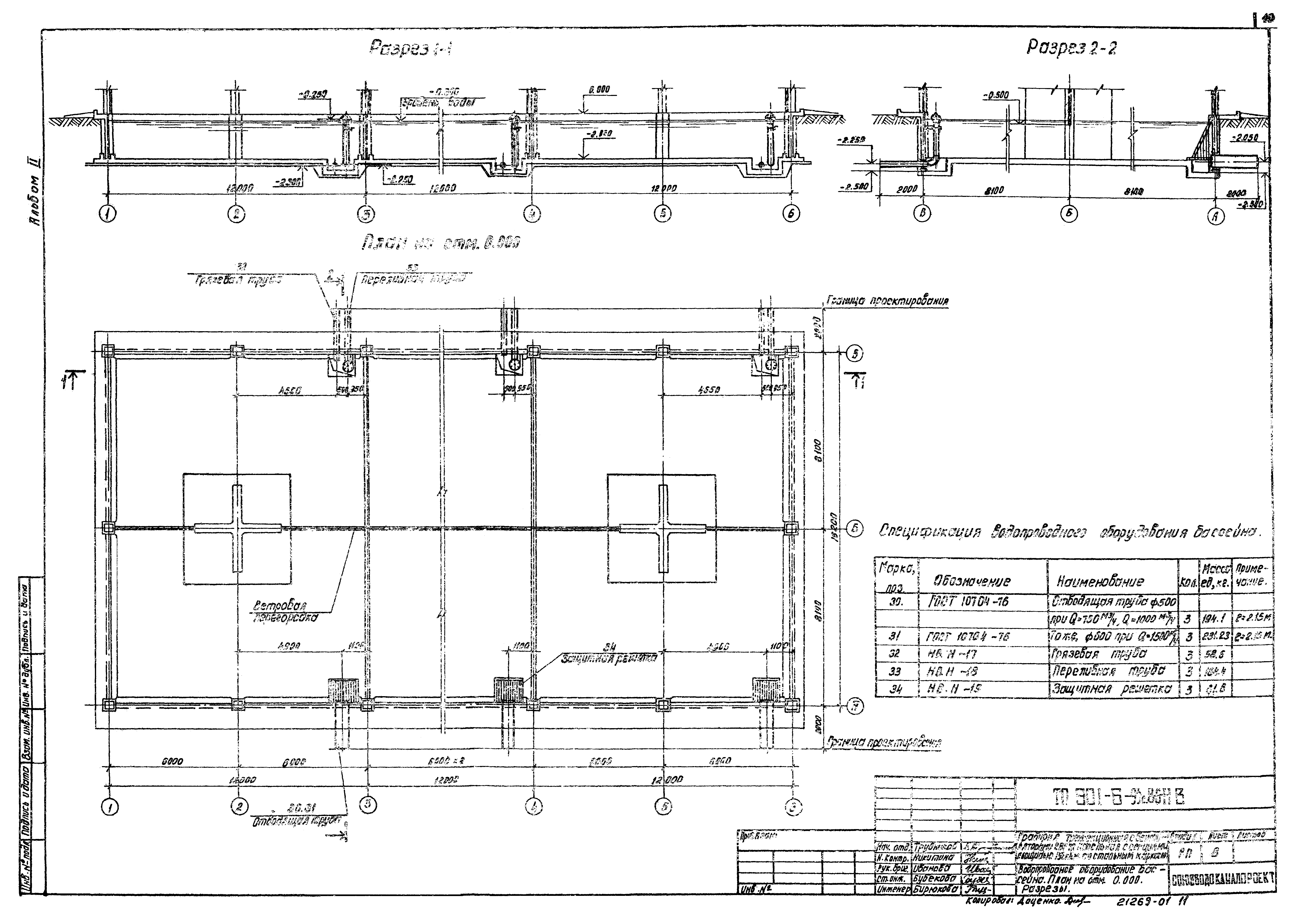
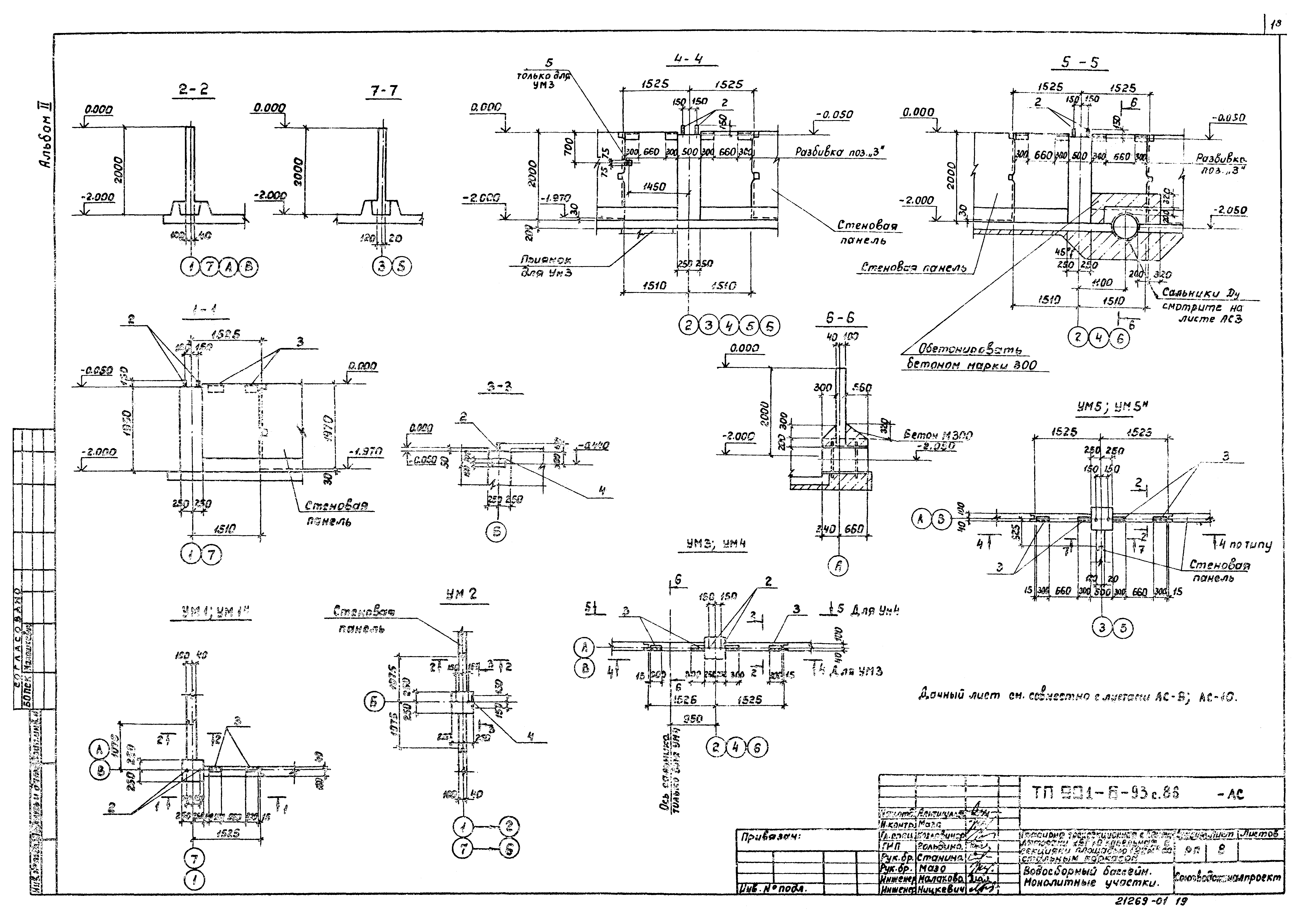
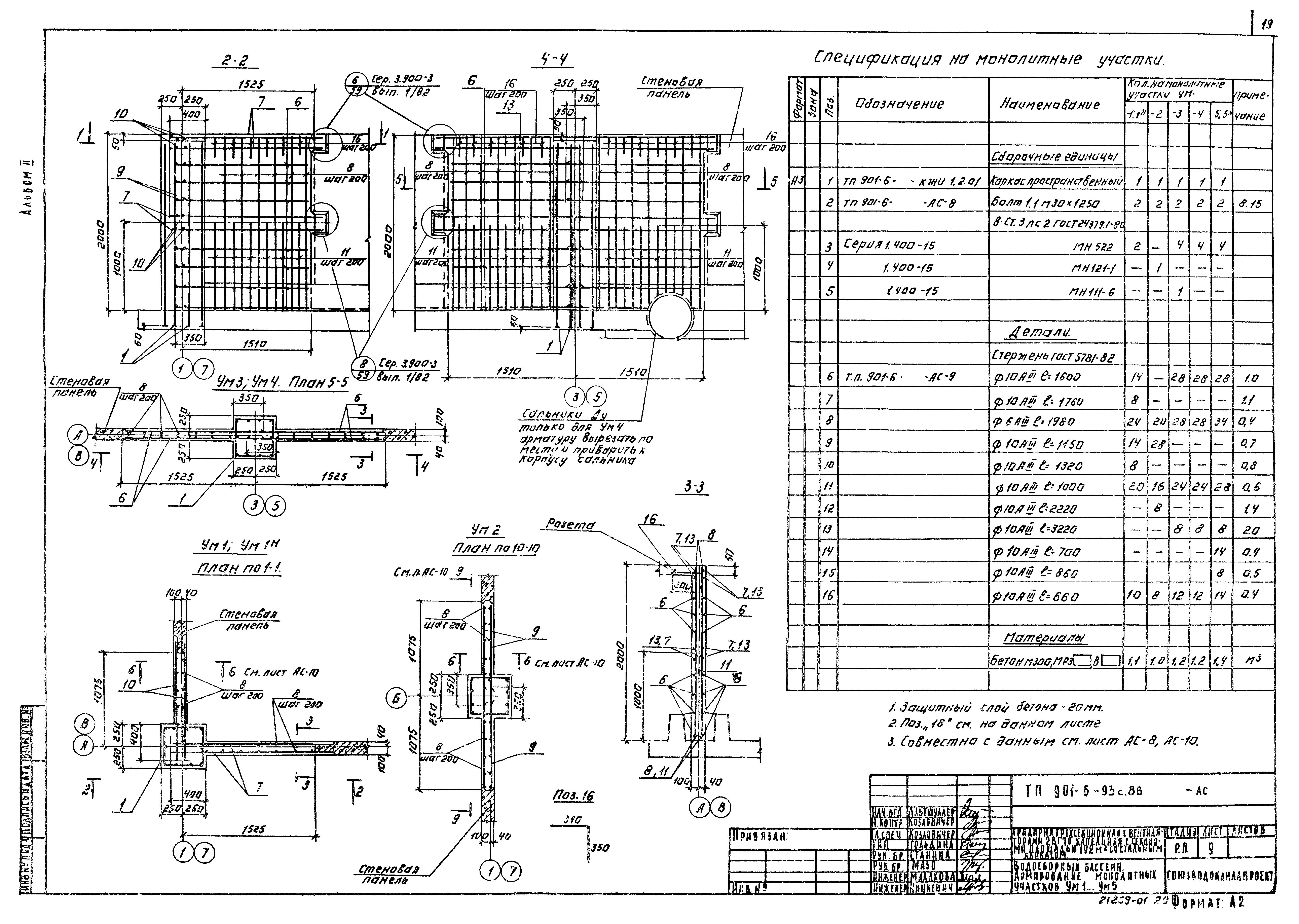
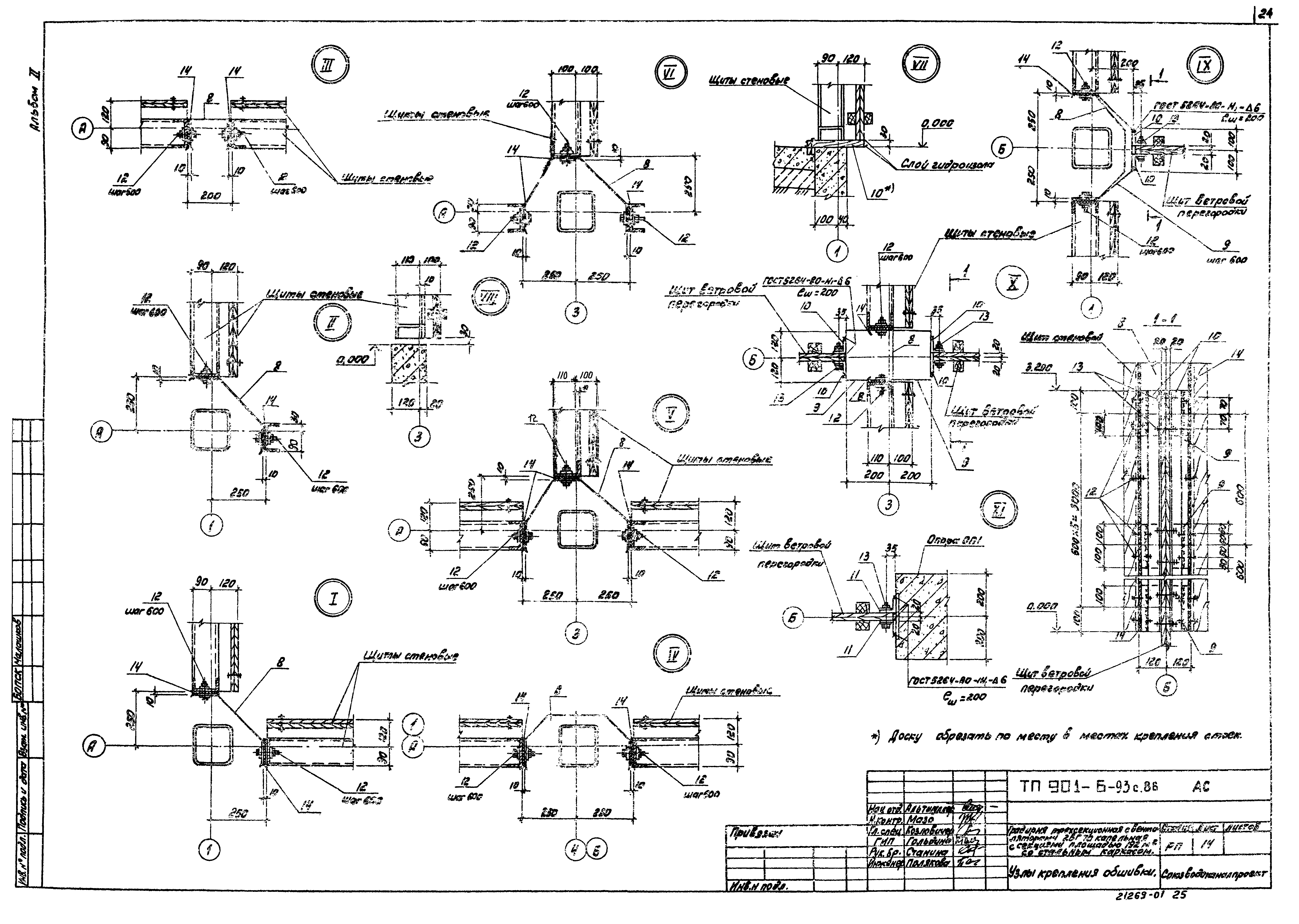
| Оглавление: | ТП 901-6-93с.86 Содержание альбома ТП 901-6-93с.86-НВ-1 Общие данные ТП 901-6-93с.86-НВ-2 Общий вид градирни ТП 901-6-93с.86-НВ-3 Водоуловительные решетки. План на отм. 9.800. Разрезы ТП 901-6-93с.86-НВ-4 Водораспределительная система при нагрузке на секцию 750 м³/ч. План на отм. 7.800. Разрезы ТП 901-6-93с.86-НВ-5 Водораспределительная система при нагрузке на секцию 1000 м³/ч. План на отм. 7.800. Разрезы ТП 901-6-93с.86-НВ-6 Водораспределительная система при нагрузке на секцию 1500 м³/ч. План на отм. 7.800. Разрезы ТП 901-6-93с.86-НВ-7 Блоки капельного оросителя. План на отм. 7.000. Разрезы ТП 901-6-93с.86-НВ-8 Водопроводное оборудование бассейна. План на отм. 0.000. Разрезы ТП 901-6-93с.86-АС-1 Общие данные ТП 901-6-93с.86-АС-2 Фасады, план, детали ТП 901-6-93с.86-АС-3 Водосборный бассейн. Днище. План. Сечение ТП 901-6-93с.86-АС-4 Водосборный бассейн. Днище. Схема армирования ТП 901-6-93с.86-АС-5 Водосборный бассейн. Днище. Схема армирования ТП 901-6-93с.86-АС-6 Водосборный бассейн. Днище. Сечения. Узлы ТП 901-6-93с.86-АС-7 Водосборный бассейн. Схема расположения панелей и опор. Спецификация ТП 901-6-93с.86-АС-8 Водосборный бассейн. Монолитные участки ТП 901-6-93с.86-АС-9 Водосборный бассейн. Армирование монолитных участков УМ1...УМ5 ТП 901-6-93с.86-АС-10 Водосборный бассейн. Армирование монолитных участков УМ1...УМ5 ТП 901-6-93с.86-АС-11 Водосборный бассейн. Опора ОП1 ТП 901-6-93с.86-АС-12 Водосборный бассейн. Армирование опоры ОП1 ТП 901-6-93с.86-АС-13 Раскладка щитов обшивки. Спецификация ТП 901-6-93с.86-АС-14 Узлы крепления обшивки ТП 901-6-93с.86-АС-15 Розета. Схема армирования |
| Разработан: | Союзводоканалпроект |
| Утверждён: | 20.11.1985 Госстрой СССР (Государственный комитет Совета Министров СССР по делам строительства) (USSR Gosstroy АЧ-49) |


























