Скачать Типовой проект 901-6-93с.86 Альбом VI. Конструкции металлическиеДата актуализации: 01.01.2021
|
| Обозначение: | Типовой проект 901-6-93с.86 |
| Обозначение англ: | 901-6-93с.86 |
| Статус: | не действует |
| Название рус.: | Альбом VI. Конструкции металлические |
| Дата добавления в базу: | 01.09.2013 |
| Дата актуализации: | 01.01.2021 |
| Дата введения: | 16.04.1986 |
| Дата окончания срока действия: | 01.07.1996 |
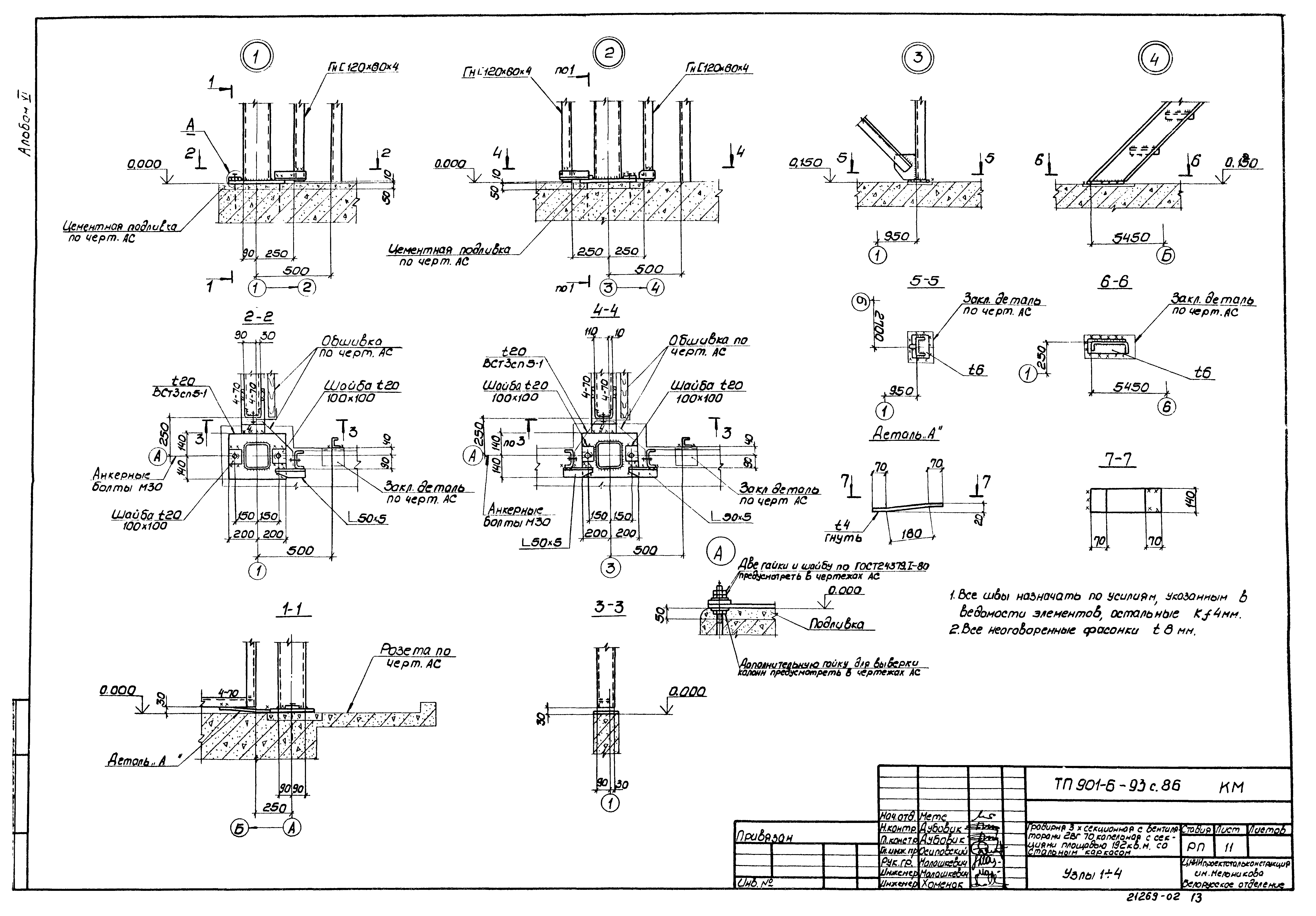
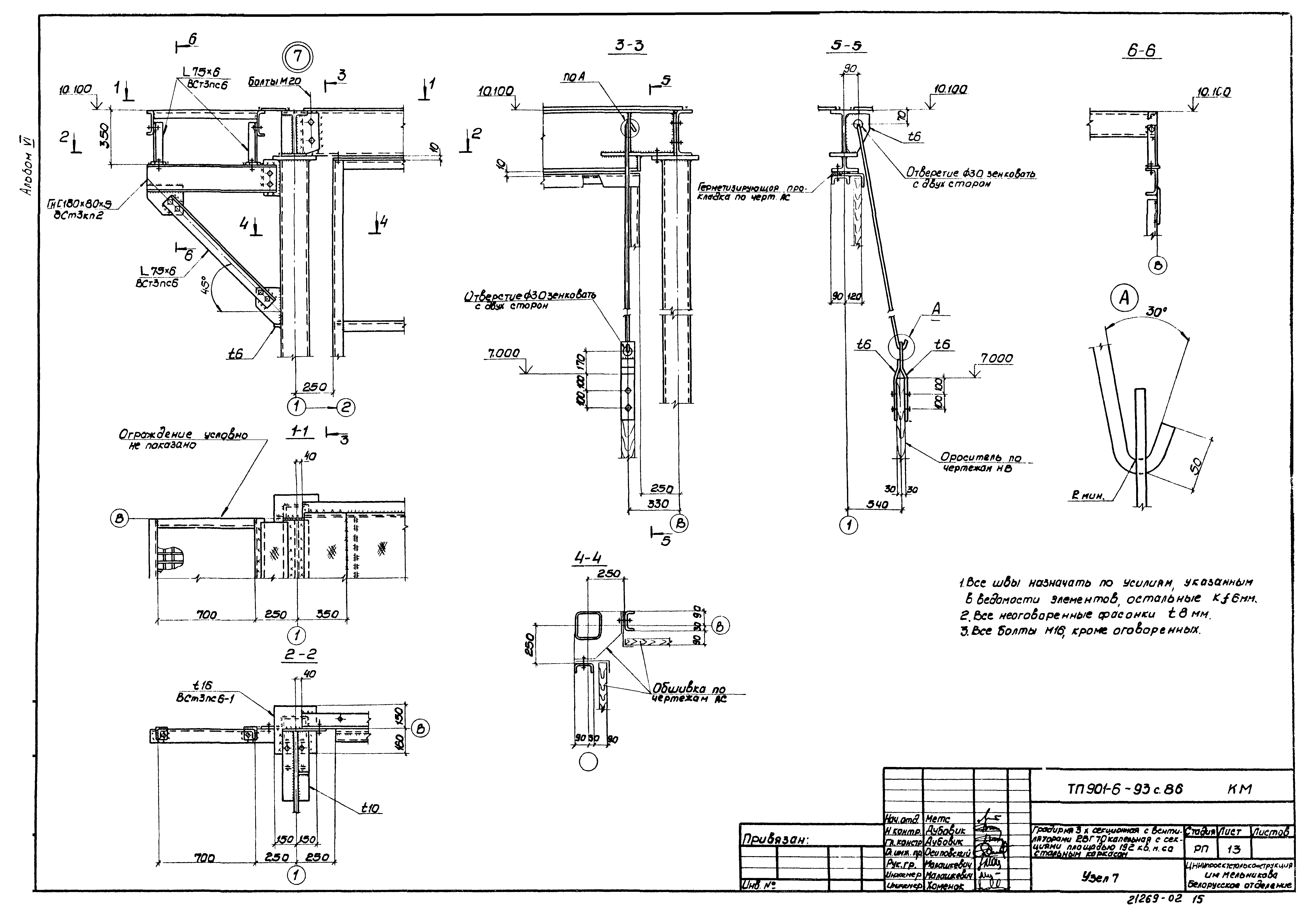
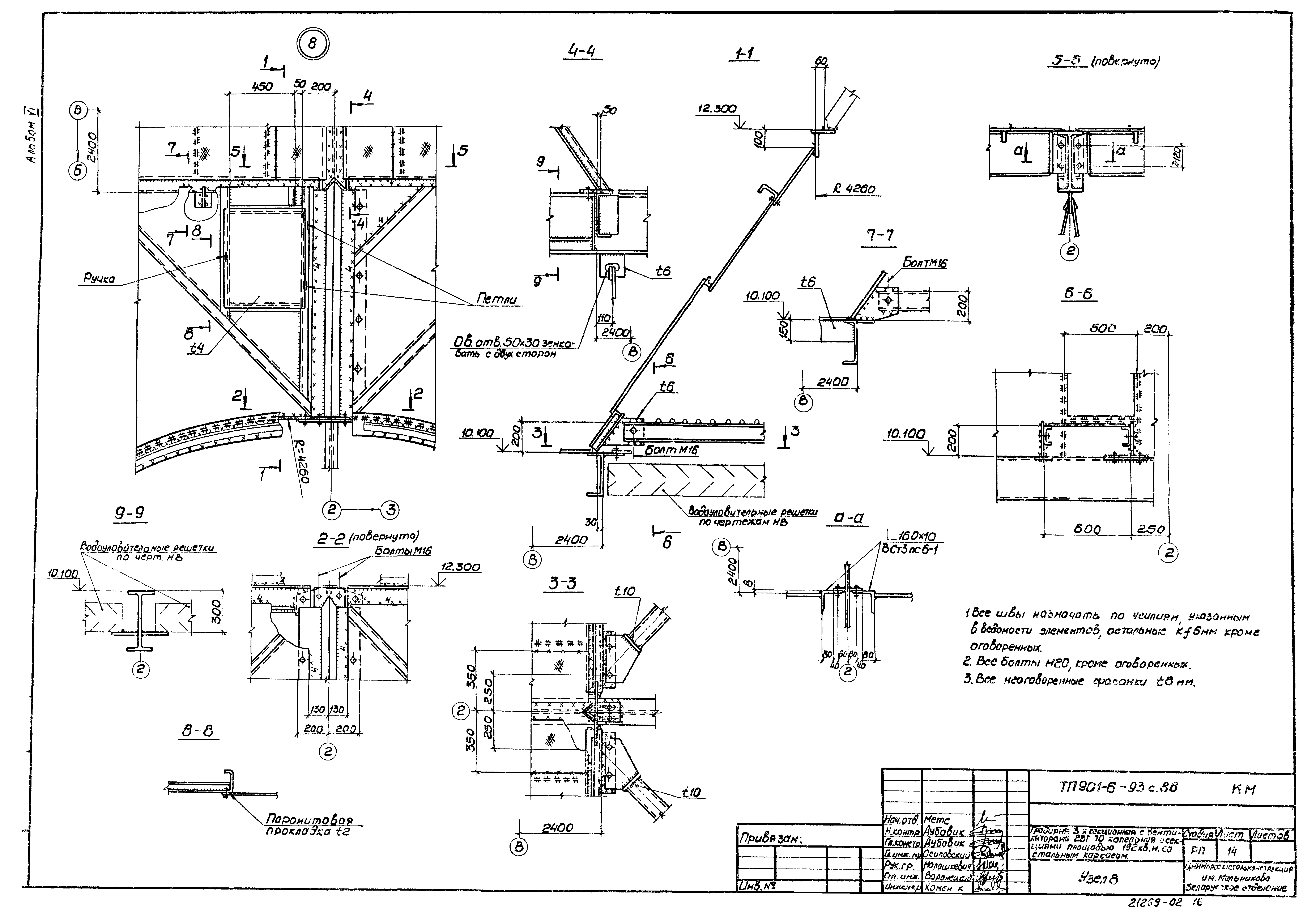
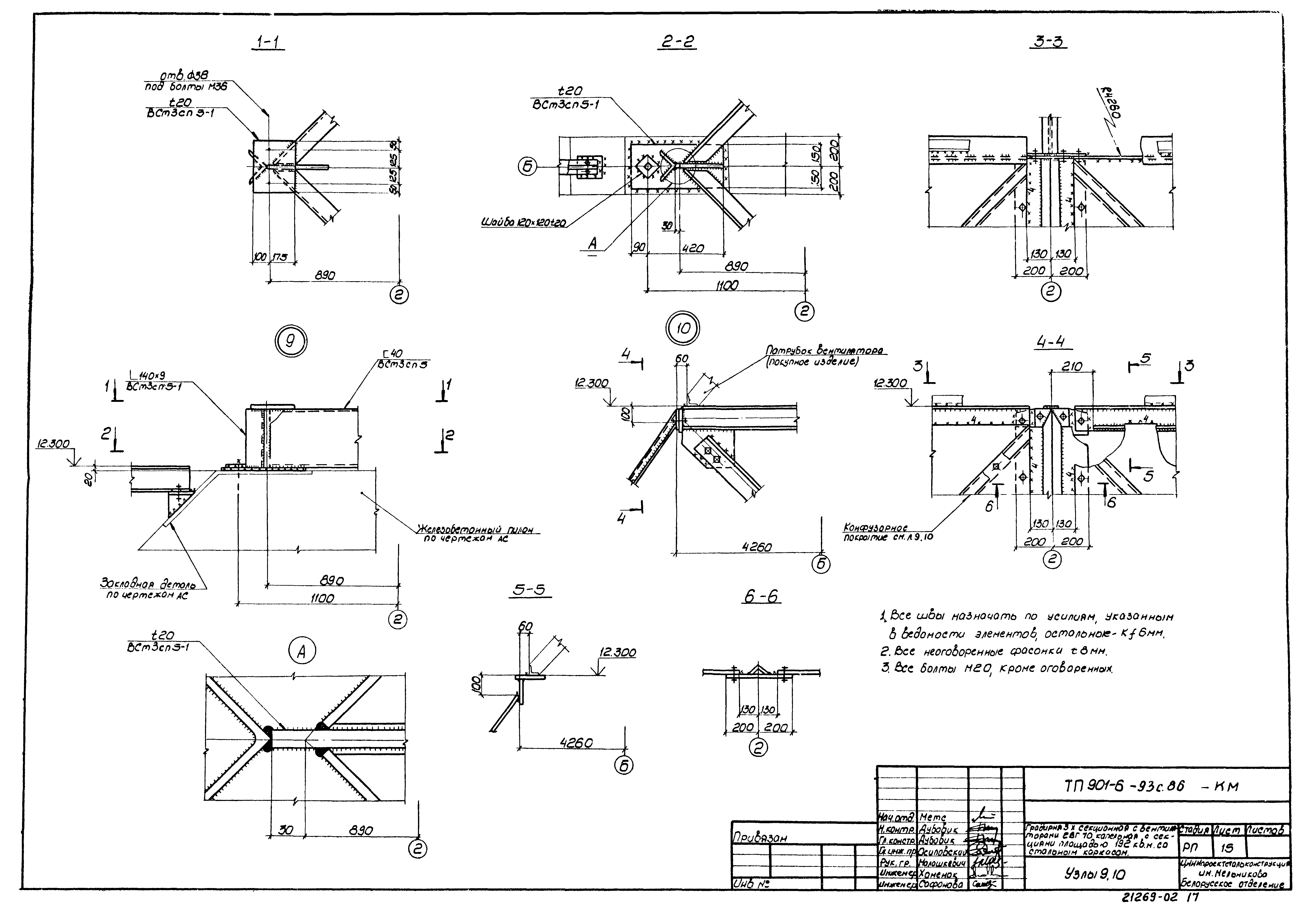
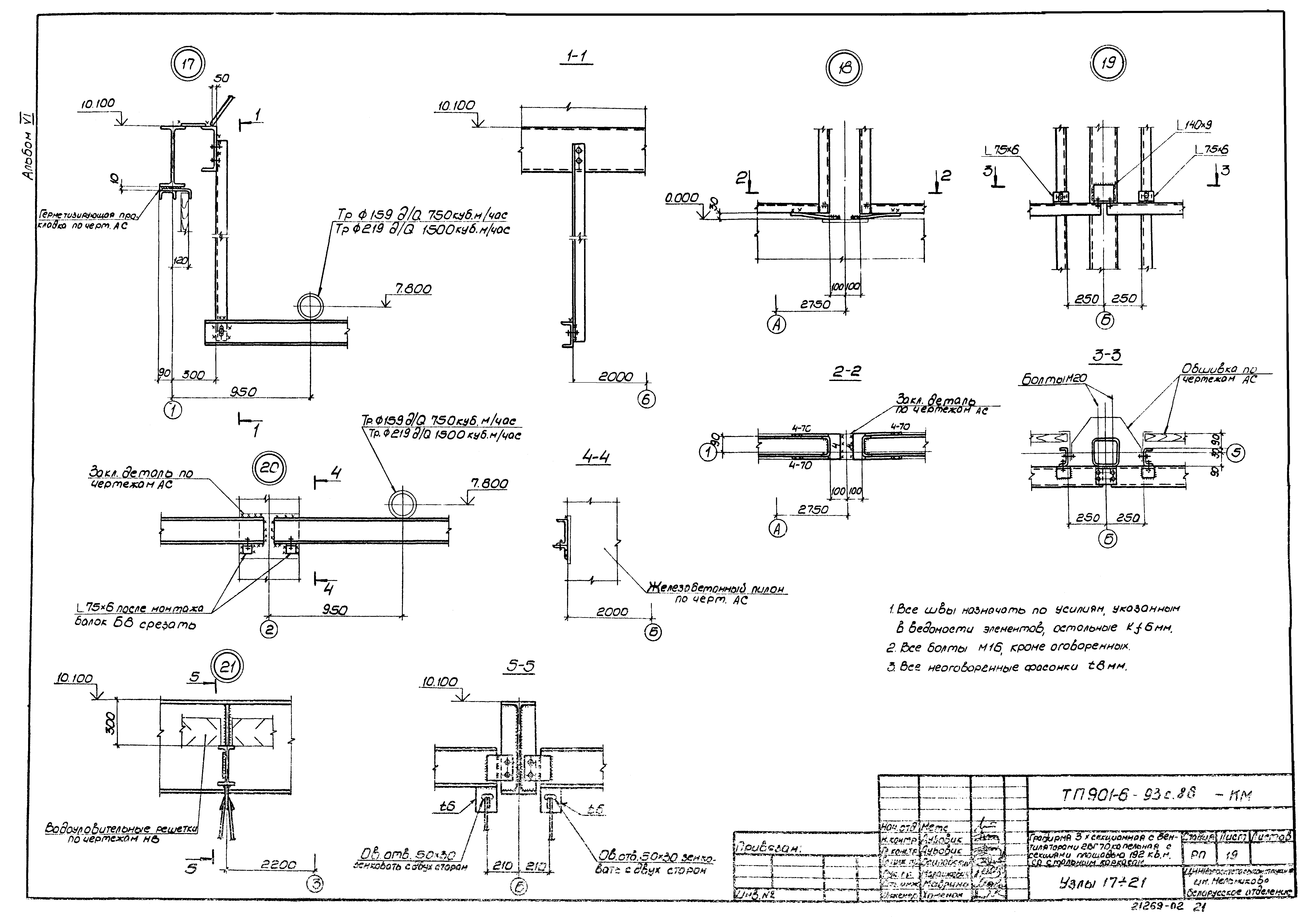
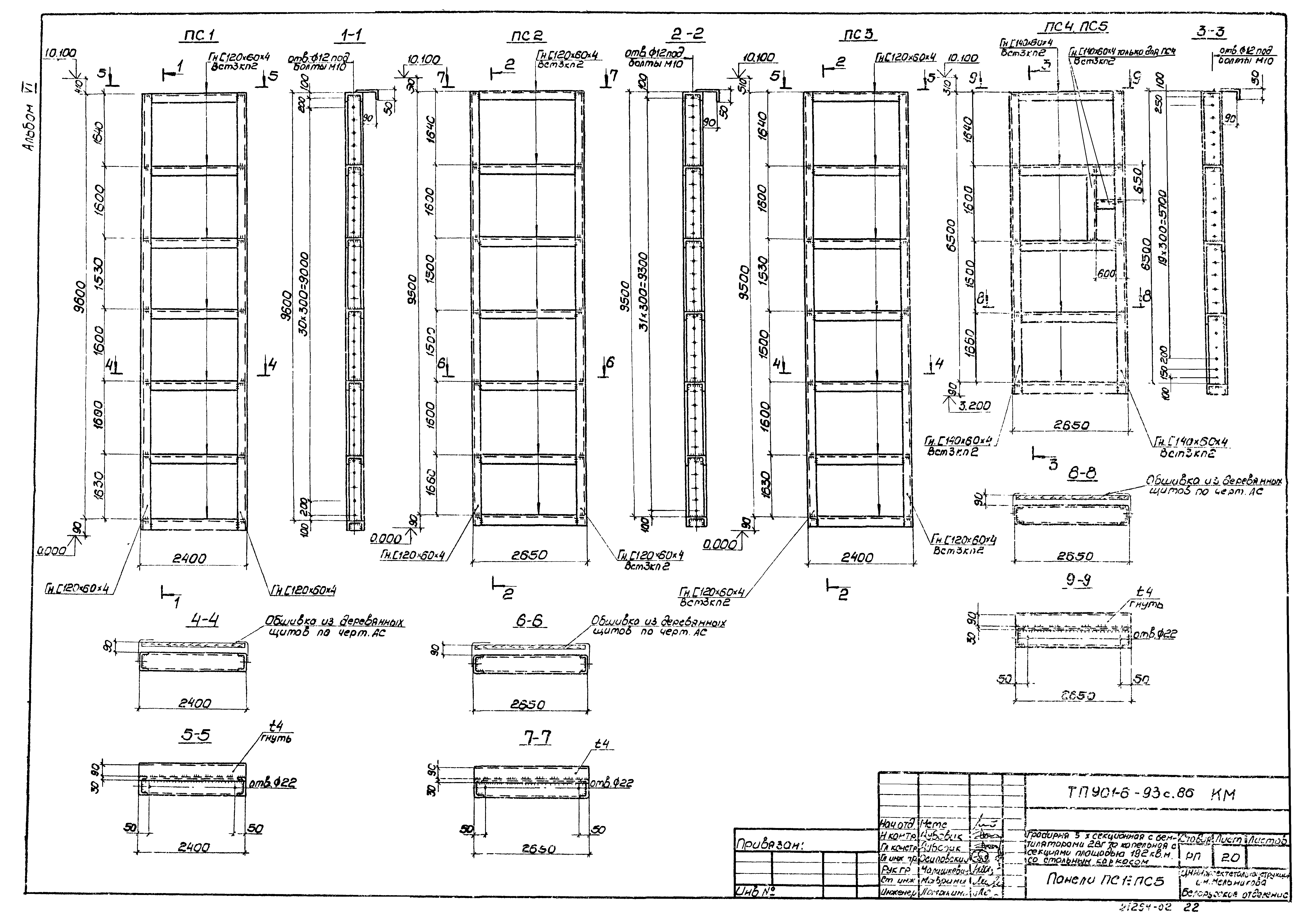
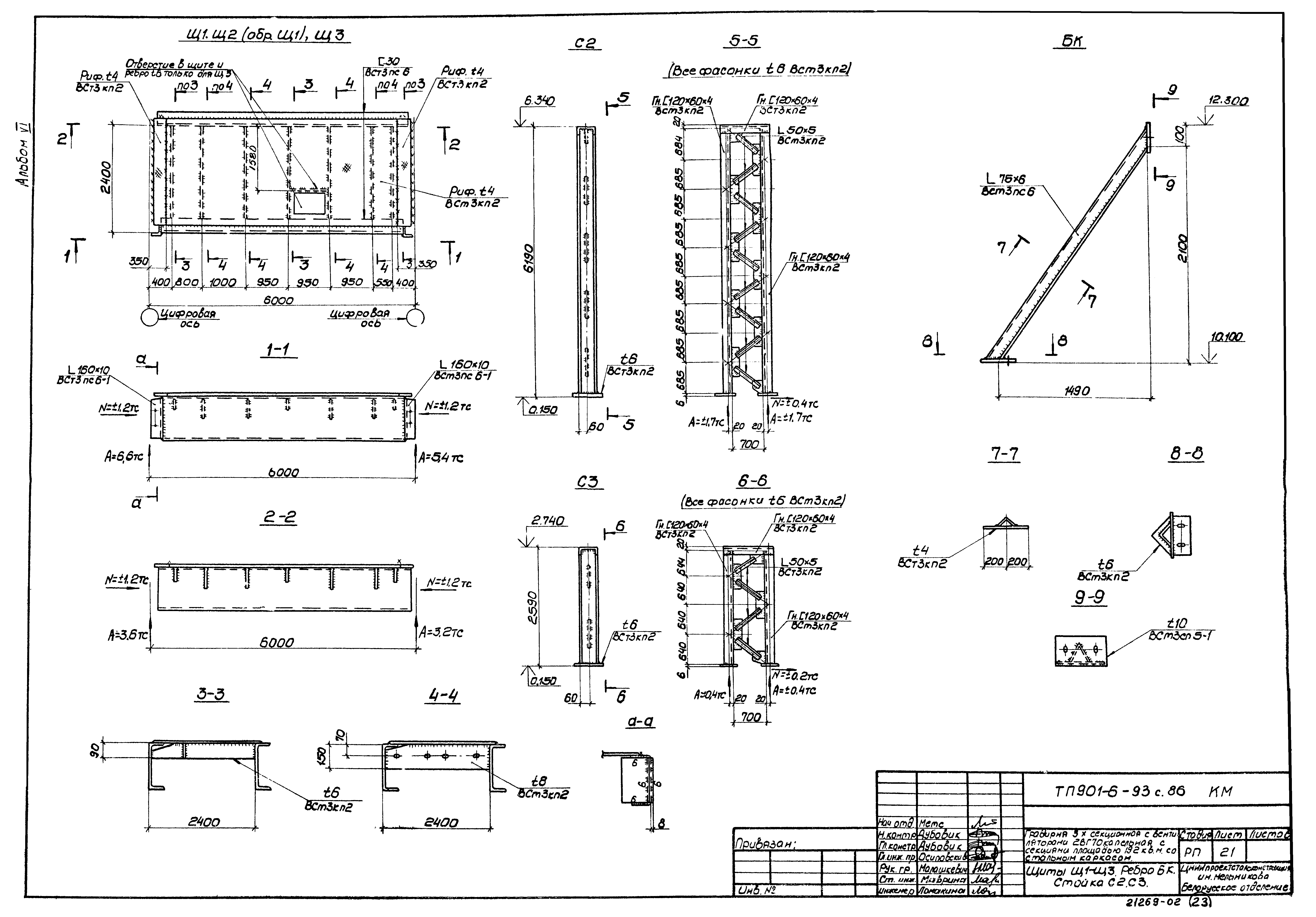
| Оглавление: | ТП 901-6-93с.86-КМ-1 Общие данные ТП 901-6-93с.86-КМ-2 Техническая спецификация стали (начало) ТП 901-6-93с.86-КМ-3 Техническая спецификация стали (окончание) ТП 901-6-93с.86-КМ-4 Ведомость элементов по видам профилей ТП 901-6-93с.86-КМ-5 Схемы расположения стальных конструкций на отм. 0.000;0.150;7.000 ТП 901-6-93с.86-КМ-6 Схемы расположения стальных конструкций на отм. 7.800;9.800;10.100;12.300 ТП 901-6-93с.86-КМ-7 Разрезы 6-6÷8-8. Фрагмент схемы расположения подвесок оросителя на отм. 7.000. Схема расположения отверстий для крепления электродвигателя ТП 901-6-93с.86-КМ-8 Разрезы 1-1÷5-5 ТП 901-6-93с.86-КМ-9 Схема расположения панелей конфузного покрытия ТП 901-6-93с.86-КМ-10 Развертки панелей П1-П8 ТП 901-6-93с.86-КМ-11 Узлы 1-4 ТП 901-6-93с.86-КМ-12 Узлы 5,6 ТП 901-6-93с.86-КМ-13 Узел 7 ТП 901-6-93с.86-КМ-14 Узел 8 ТП 901-6-93с.86-КМ-15 Узлы 9,10 ТП 901-6-93с.86-КМ-16 Узел 11 ТП 901-6-93с.86-КМ-17 Узлы 12,13 ТП 901-6-93с.86-КМ-18 Узлы 14-16 ТП 901-6-93с.86-КМ-19 Узлы 17-21 ТП 901-6-93с.86-КМ-20 Панели ПС1-ПС5 ТП 901-6-93с.86-КМ-21 Щиты Щ1-Щ3. Ребро 6К. Стойка С2,С3 |
| Разработан: | Союзводоканалпроект |
| Утверждён: | 20.11.1985 Госстрой СССР (Государственный комитет Совета Министров СССР по делам строительства) (USSR Gosstroy АЧ-49) |























