Скачать Типовой проект 901-7-5.84 Альбом III. Технологическая и санитарно-техническая части. Вариант обеззараживания сточных водДата актуализации: 01.01.2021
|
| Обозначение: | Типовой проект 901-7-5.84 |
| Обозначение англ: | 901-7-5.84 |
| Статус: | действует |
| Название рус.: | Альбом III. Технологическая и санитарно-техническая части. Вариант обеззараживания сточных вод |
| Дата добавления в базу: | 01.09.2013 |
| Дата актуализации: | 01.01.2021 |
| Дата введения: | 23.09.1983 |
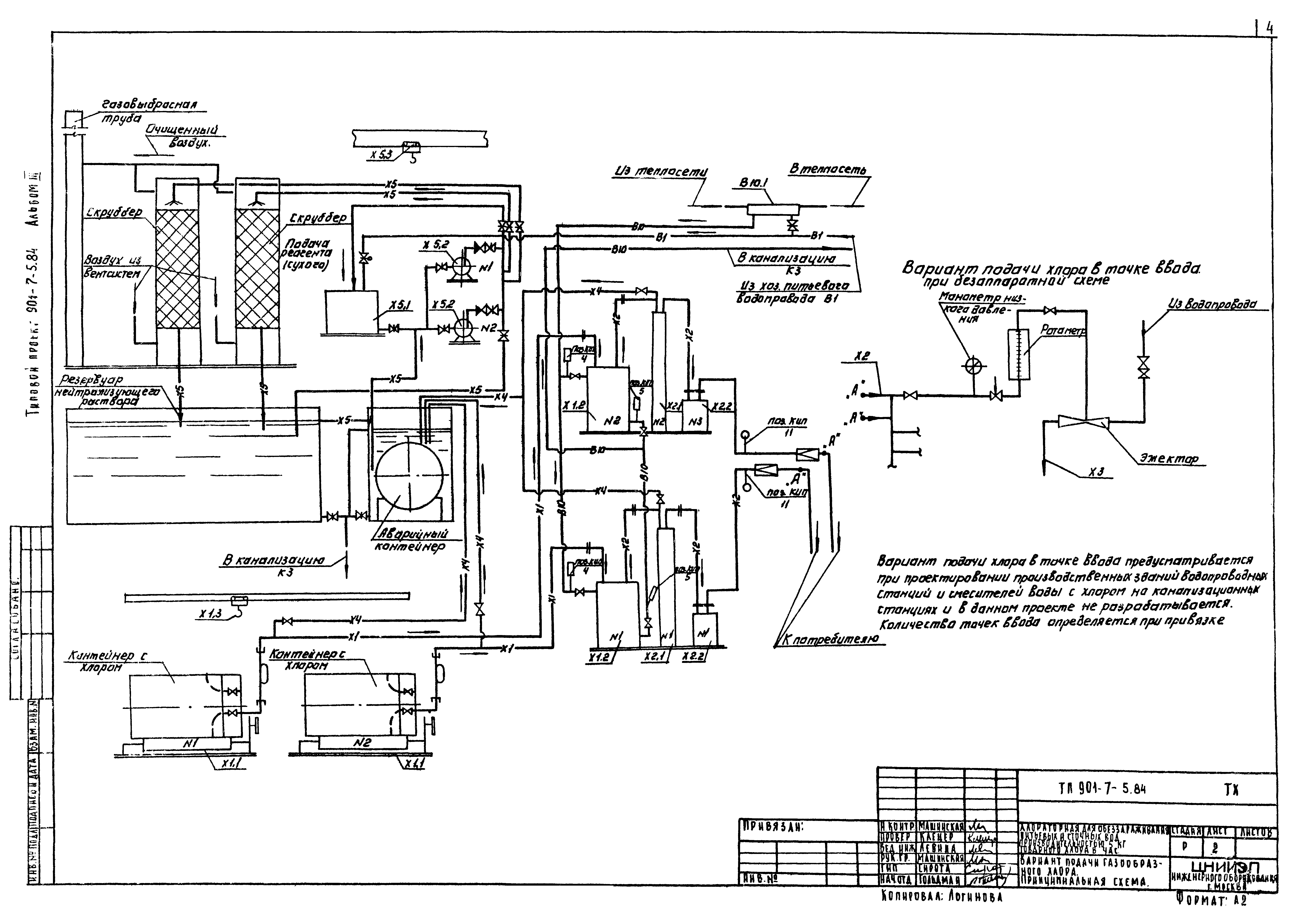
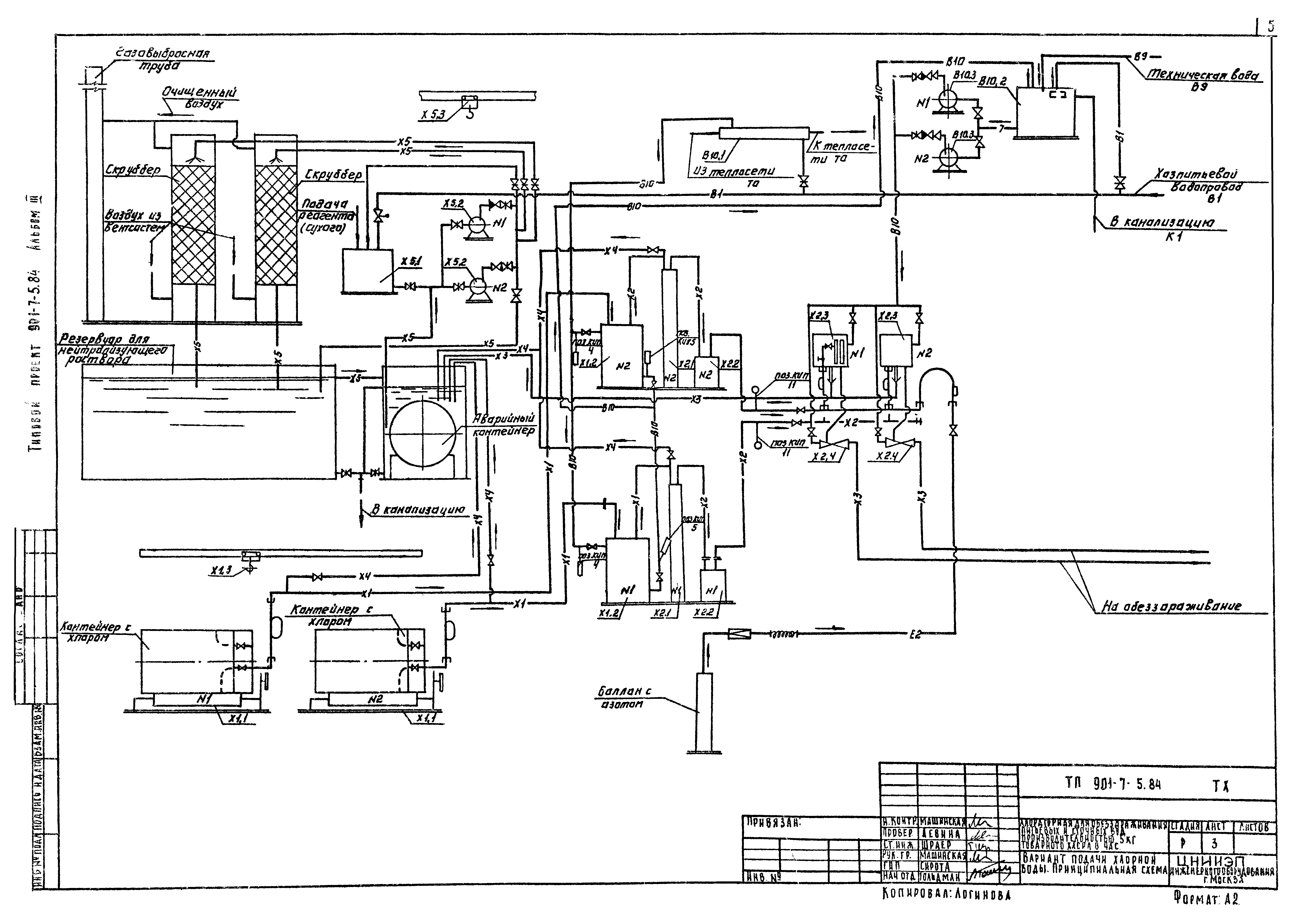
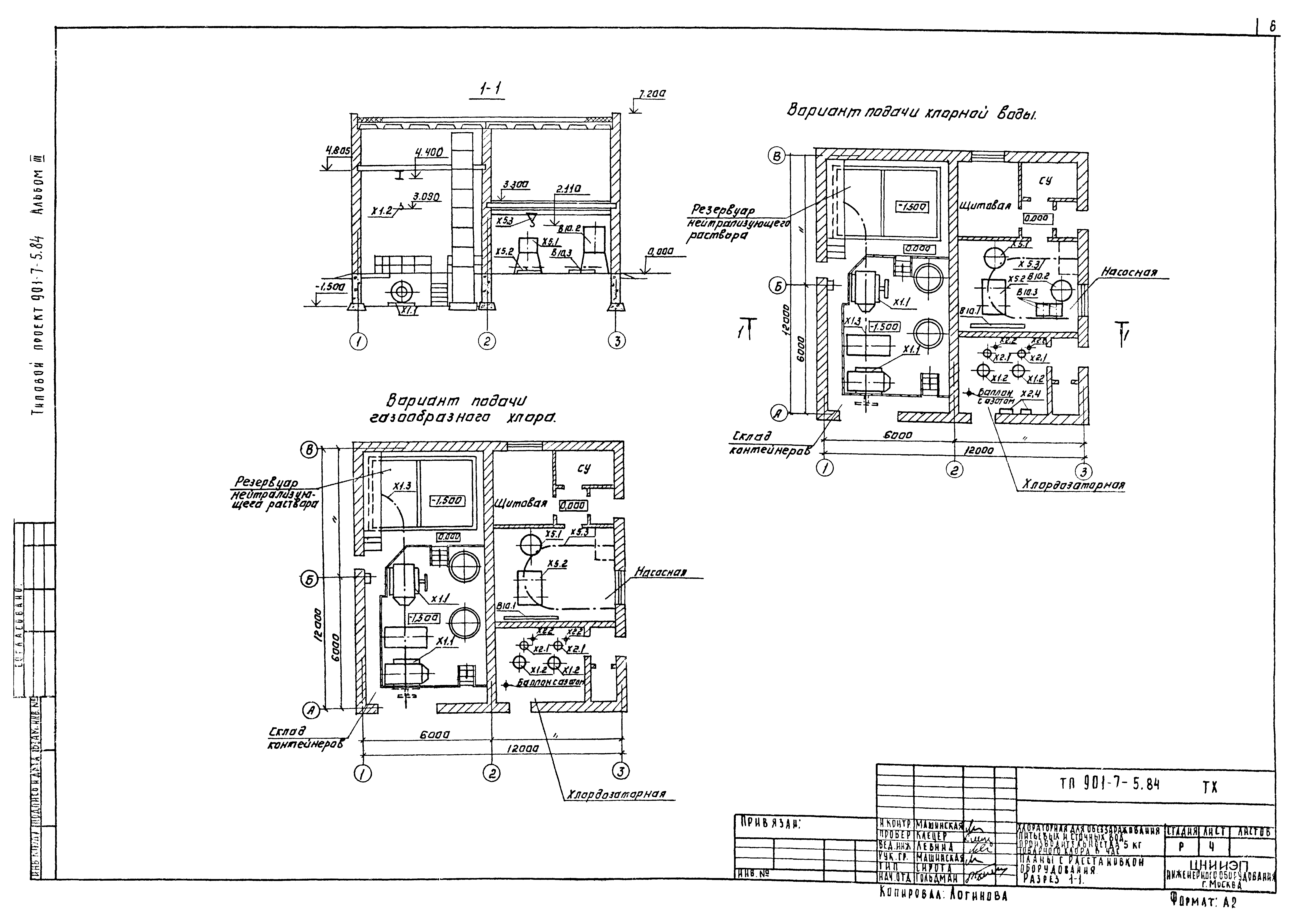
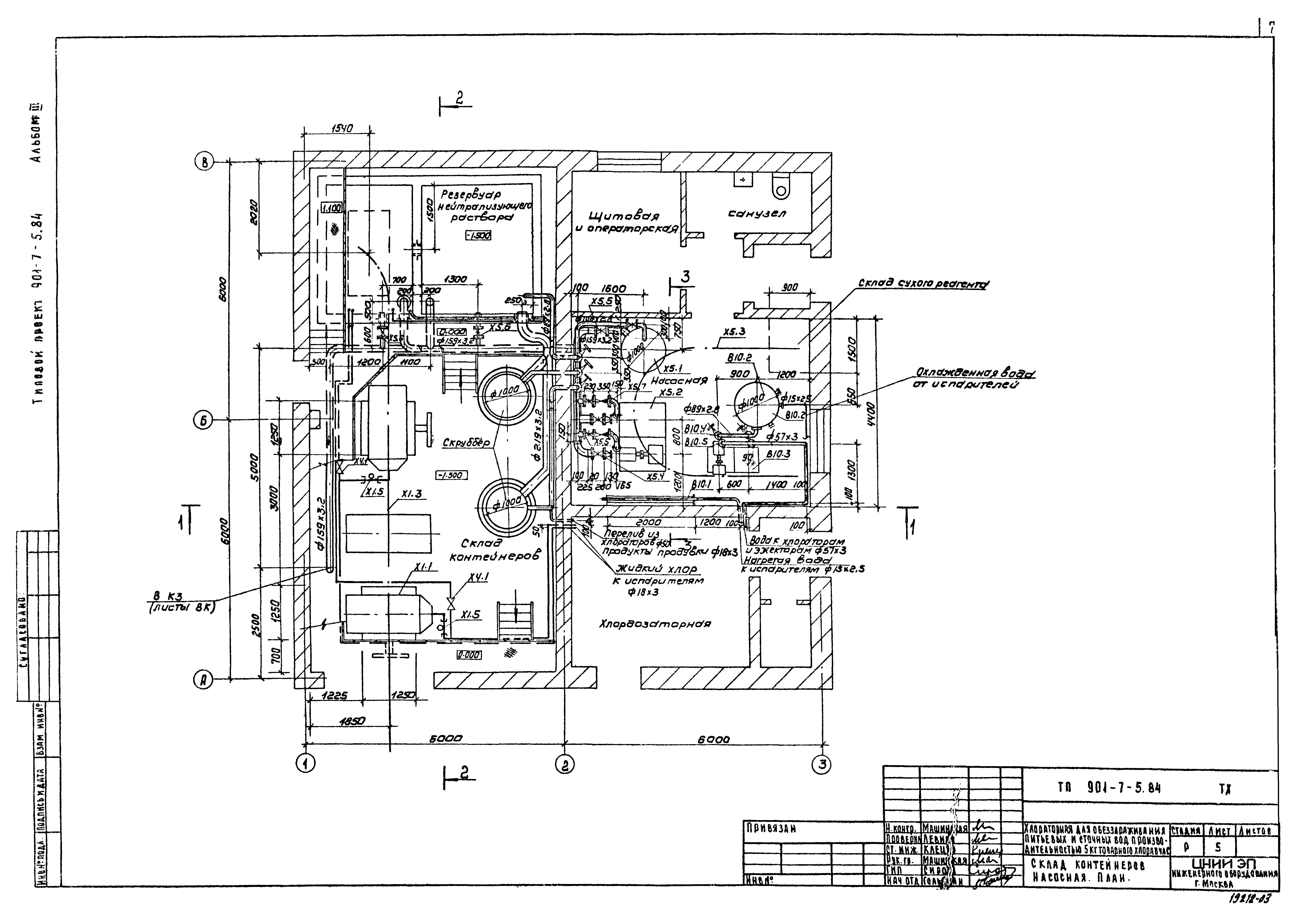
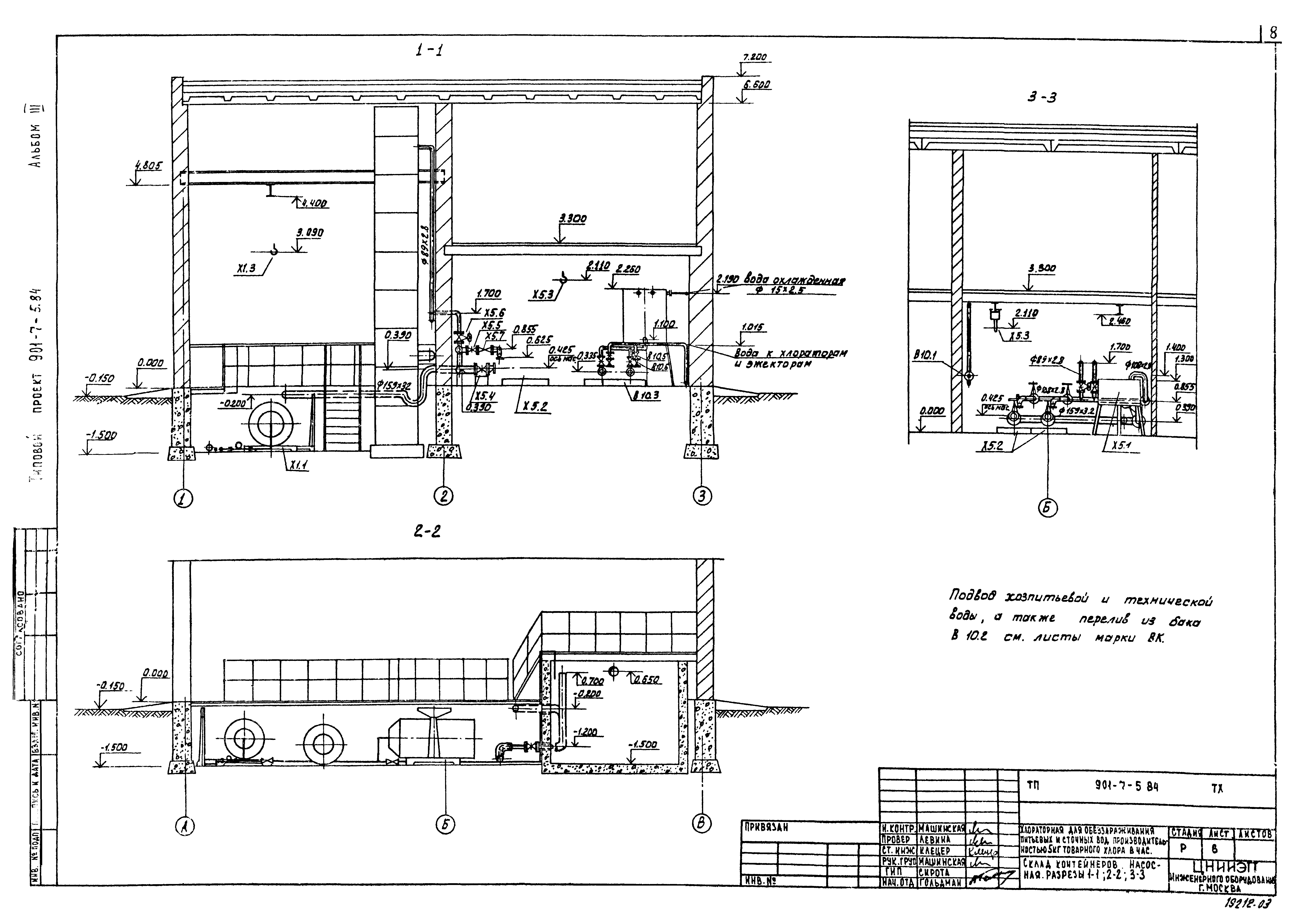
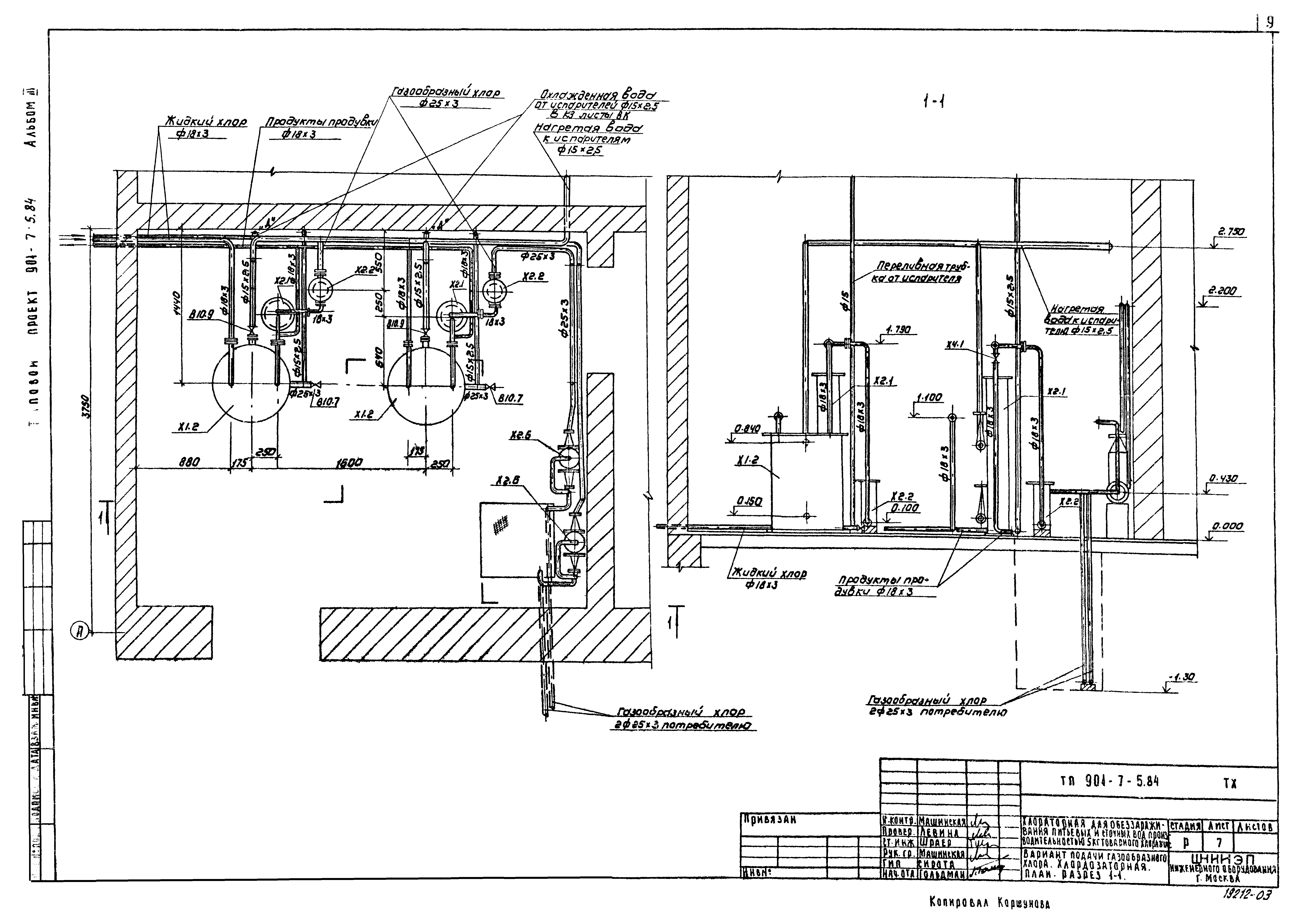
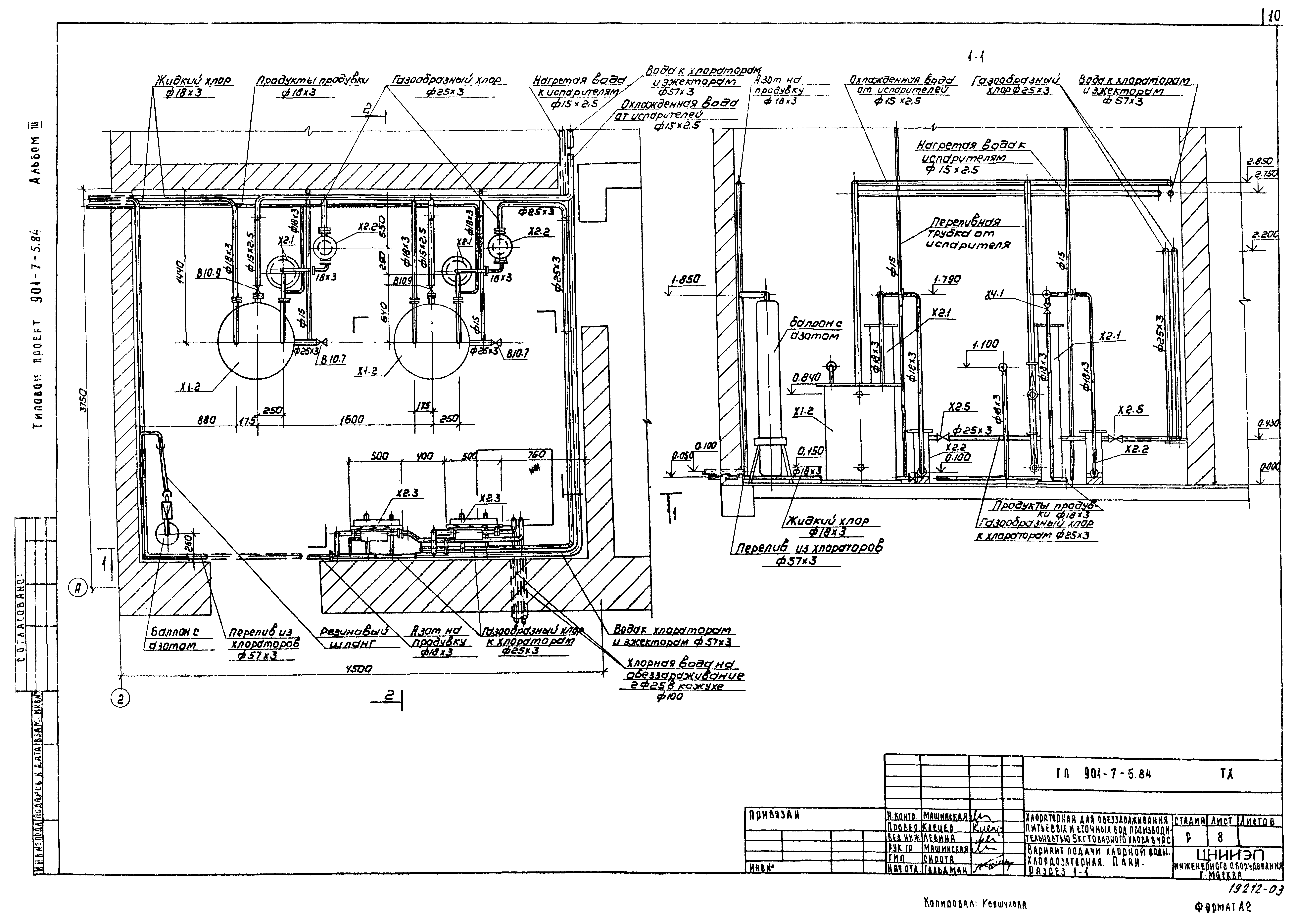
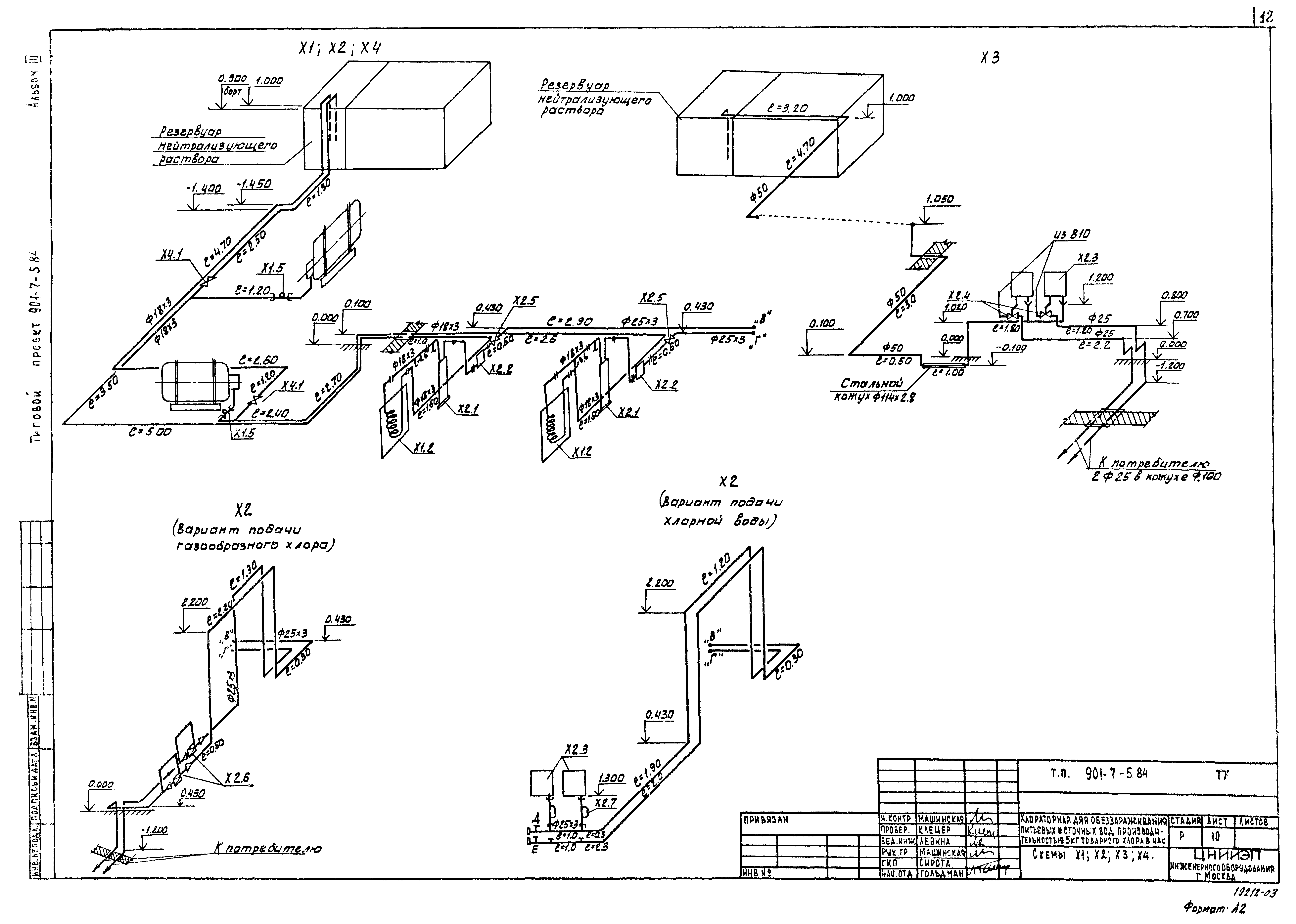
| Оглавление: | ТП 901-7-5.84 Содержание альбома ТП 901-7-5.84-ТХ Технологическая часть ТП 901-7-5.84-ТХ-1 Общие данные ТП 901-7-5.84-ТХ-2 Вариант подачи газообразного хлора. Принципиальная схема ТП 901-7-5.84-ТХ-3 Вариант подачи хлорной воды. Принципиальная схема ТП 901-7-5.84-ТХ-4 Планы с расстановкой оборудования. Разрез 1-1 ТП 901-7-5.84-ТХ-5 Склад контейнеров. Насосная. План ТП 901-7-5.84-ТХ-6 Склад контейнеров. Насосная. Разрезы 1-1;2-2;3-3 ТП 901-7-5.84-ТХ-7 Вариант подачи газообразного хлора. Хлордозаторная. План. Разрез 1-1 ТП 901-7-5.84-ТХ-8 Вариант подачи хлорной воды. Хлордозаторная. План. Разрез 1-1 ТП 901-7-5.84-ТХ-9 Вариант подачи хлорной воды. Хлордозаторная. Разрез 2-2 ТП 901-7-5.84-ТХ-10 Схемы Х1;Х2;Х3;Х4 ТП 901-7-5.84-ТХ-11 Схемы В10;Х4;Е2 ТП 901-7-5.84-ТХ-12 Схема Х5. ТП 901-7-5.84-ВК Внутренний водопровод и канализация ТП 901-7-5.84-ВК-1 Общие данные ТП 901-7-5.84-ВК-2 План. Схемы В1;В9;К1;К3;ТО ТП 901-7-5.84-ОВ Отопление и вентиляция ТП 901-7-5.84-ОВ-1 Общие данные ТП 901-7-5.84-ОВ-2 Планы на отм. 0.000 и 3.300 ТП 901-7-5.84-ОВ-3 Схемы систем вентиляции П1;П2;В1;В2;В3;В4 отопления ТП 901-7-5.84-ОВ-4 Установка систем П1;П2;В1;В2;В3. Схема системы теплоснабжения ТП 901-7-5.84-ОВН Переходы |
| Разработан: | ЦНИИЭП |
| Утверждён: | 27.12.1979 Госгражданстрой (Gosgrazhdanstroy 279) |






















