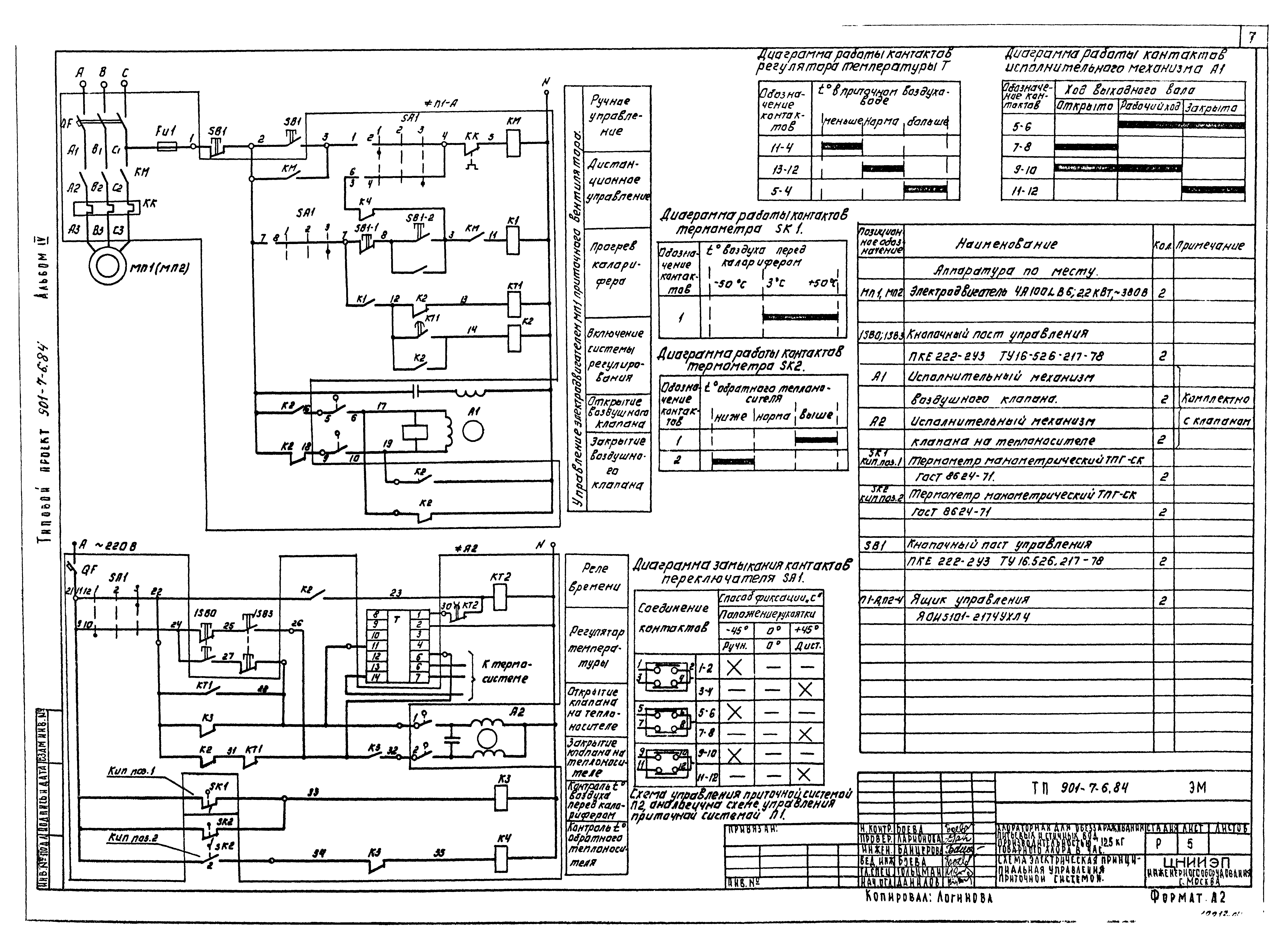
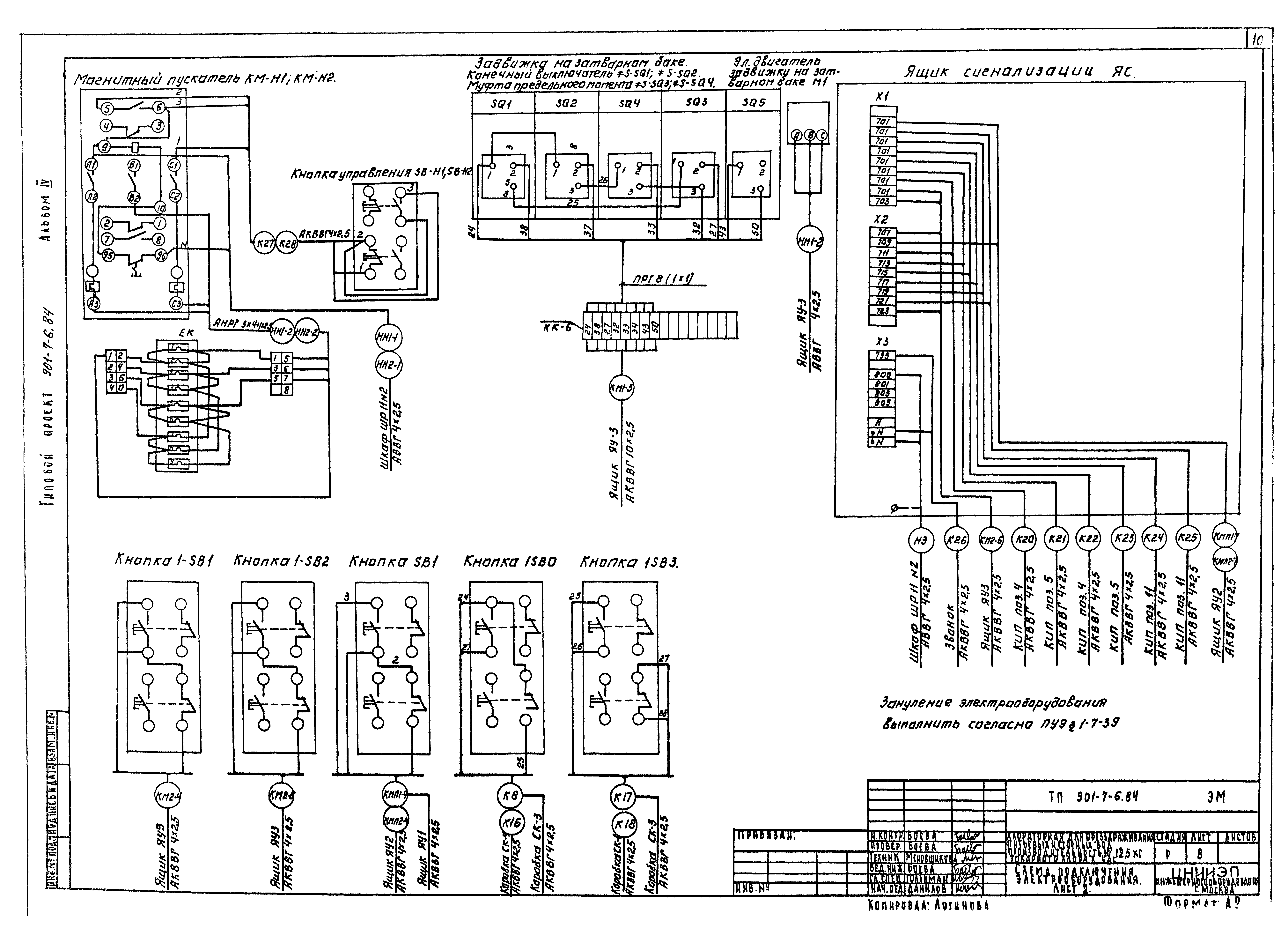
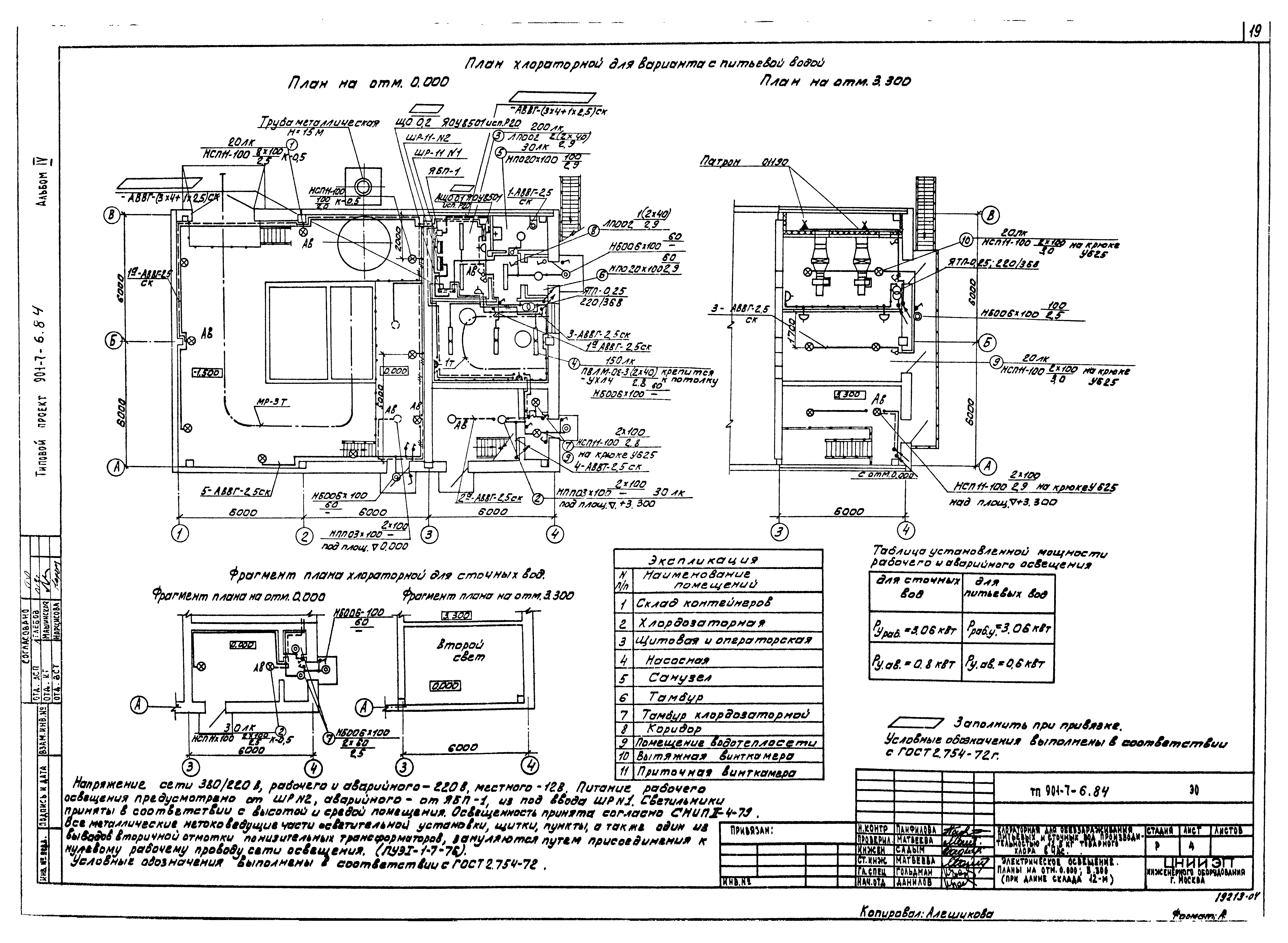
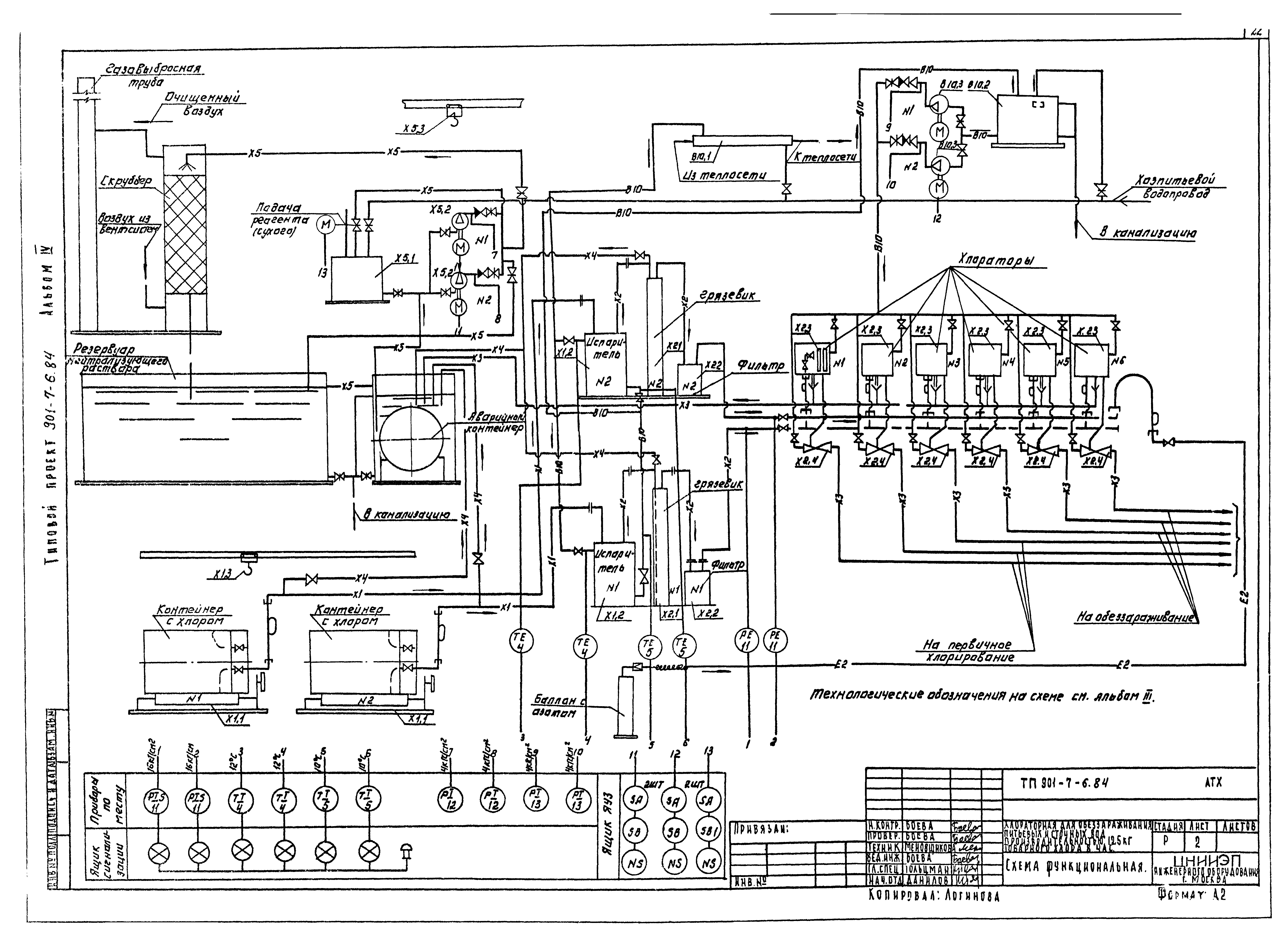
Скачать Типовой проект 901-7-5.84 Альбом IV. Электротехническая часть (из ТП 901-7-6.84)Дата актуализации: 01.01.2021 Типовой проект 901-7-5.84
Альбом IV. Электротехническая часть (из ТП 901-7-6.84)| Обозначение: | Типовой проект 901-7-5.84 | | Обозначение англ: | 901-7-5.84 | | Статус: | действует | | Название рус.: | Альбом IV. Электротехническая часть (из ТП 901-7-6.84) | | Дата добавления в базу: | 01.09.2013 | | Дата актуализации: | 01.01.2021 | | Дата введения: | 23.09.1983 | | Разработан: | ЦНИИЭП
| | Утверждён: | 27.12.1979 Госгражданстрой (Gosgrazhdanstroy 279)
|
                           
|