Скачать Типовой проект 902-2-285 Альбом II. Технологическая, строительная и электротехническая частиДата актуализации: 01.01.2021
|
| Обозначение: | Типовой проект 902-2-285 |
| Обозначение англ: | 902-2-285 |
| Статус: | действует |
| Название рус.: | Альбом II. Технологическая, строительная и электротехническая части |
| Дата добавления в базу: | 01.09.2013 |
| Дата актуализации: | 01.01.2021 |
| Дата введения: | 20.02.1977 |
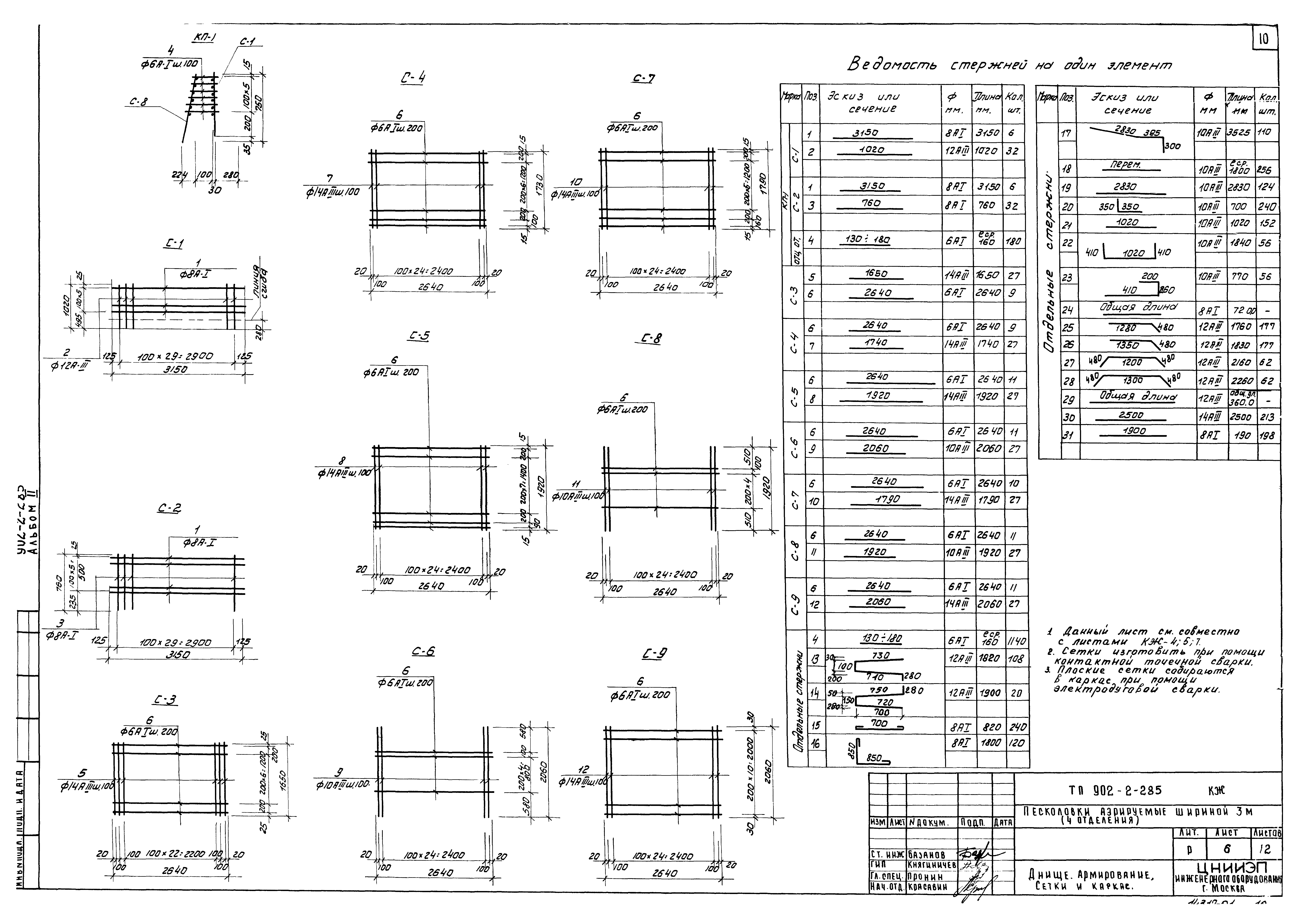
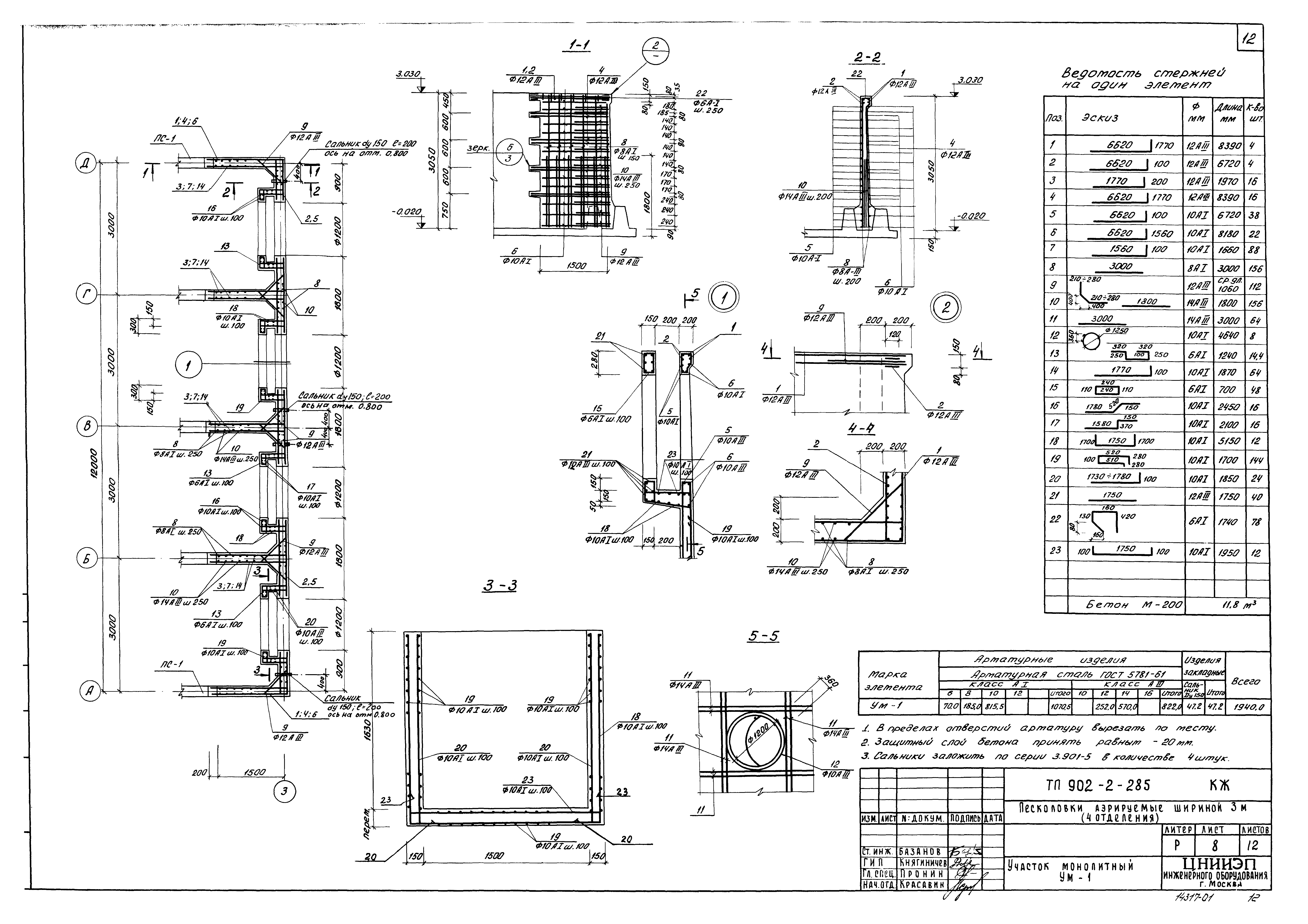
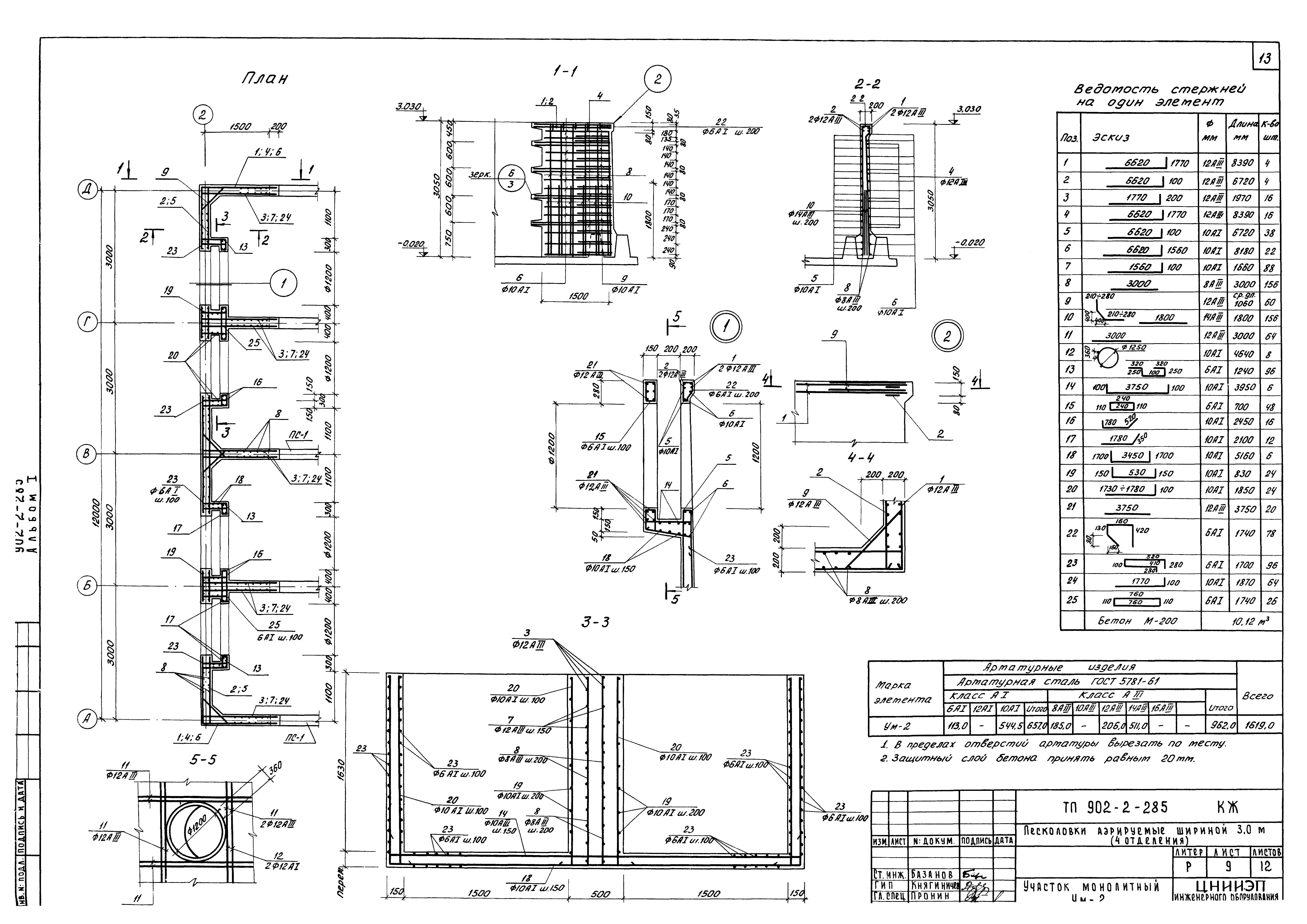
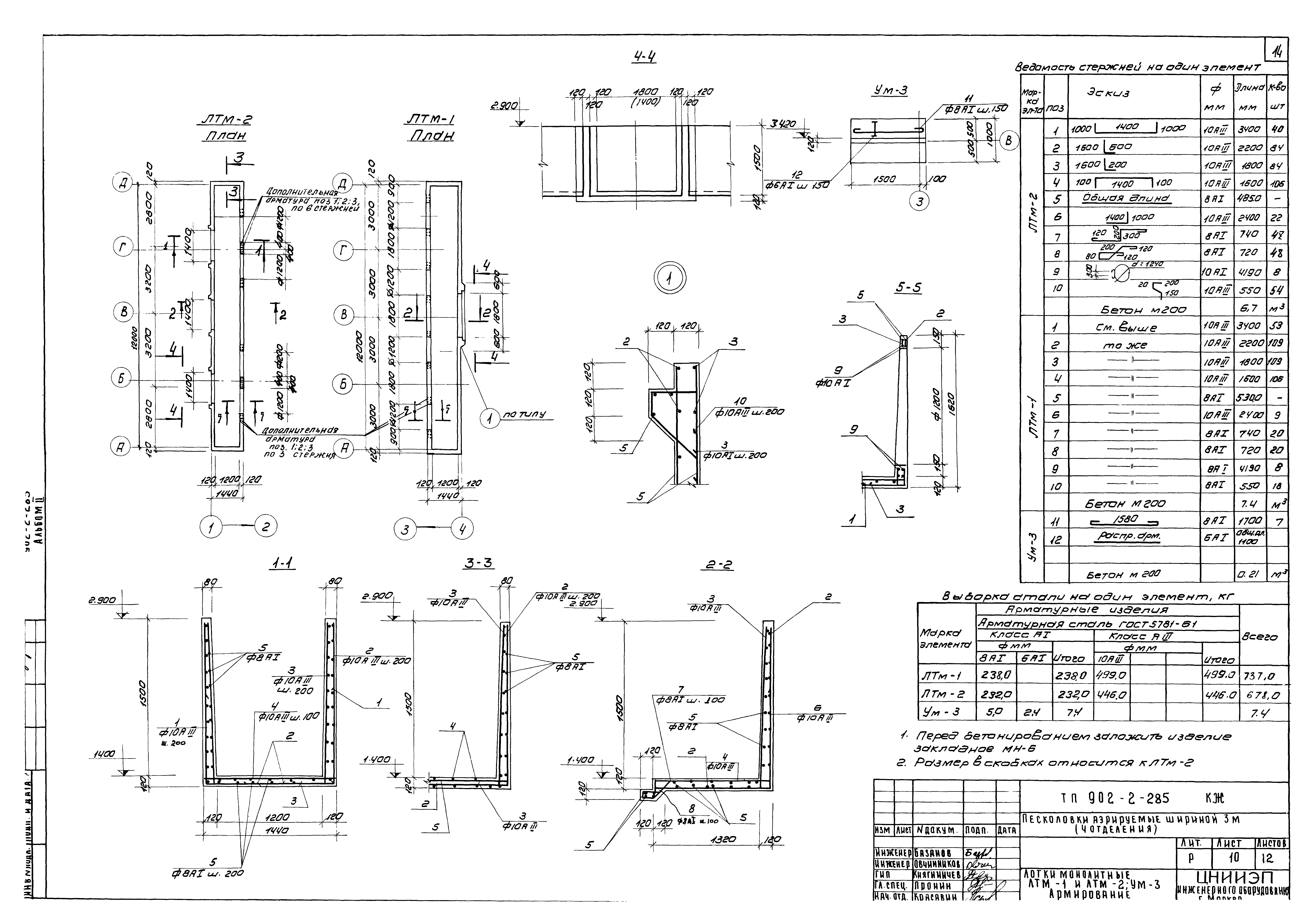
| Оглавление: | ТП 902-2-285-КГ-1 Заглавный лист ТП 902-2-285-КГ-2 План. Разрезы. Детали трубопроводов ТП 902-2-285-КГ-3 Схемы ТП 902-2-285-КЖ-1 Сводные спецификации ТП 902-2-285-КЖ-2 Общий вид. План. Разрез 1-1. Узлы 1,2 ТП 902-2-285-КЖ-3 Общий вид. Разрез 2-2. Узлы 3-11 ТП 902-2-285-КЖ-4 Днище. Опалубка. Армирование. Планы. Разрезы ТП 902-2-285-КЖ-5 Днище. Армирование. Узлы. Разрез 3-3 ТП 902-2-285-КЖ-6 Днище. Армирование. Сетки и каркас ТП 902-2-285-КЖ-7 Днище. Армирование бункера. Выборка стали на днище ТП 902-2-285-КЖ-8 Участок монолитный УМ-1 ТП 902-2-285-КЖ-9 Участок монолитный УМ-2 ТП 902-2-285-КЖ-10 Лотки монолитные ЛТМ-1,ЛТМ-2,УМ-3. Армирование ТП 902-2-285-КЖ-11 Балка БМ-1. Опалубка панелей, плит СПМ-1. Изделия закладные ТП 902-2-285-КЖ-12 Вставка ТП 902-2-285-АК-1 Питание электрооборудования. Схема принципиальная электрическая ТП 902-2-285-АК-2 Задвижки песколовок Д1(Д2-Д12). Схема принципиальная электрическая (Лист 1) ТП 902-2-285-АК-3 Задвижки песколовок Д1(Д2-Д12). Схема принципиальная электрическая (Лист 2) ТП 902-2-285-АК-4 Аварийная сигнализация. Схема принципиальная электрическая ТП 902-2-285-АК-5 Шкафы РТ30-69 №1,2,3. Общий вид ТП 902-2-285-АК-6 Шкаф РТ30-69 №1. Схема соединений (Лист 1) ТП 902-2-285-АК-7 Шкаф РТ30-69 №1. Схема соединений (Лист 2) ТП 902-2-285-АК-8 Шкаф РТ30-69 №2. Схема соединений (Лист 1) ТП 902-2-285-АК-9 Шкаф РТ30-69 №2. Схема соединений (Лист 2) ТП 902-2-285-АК-10 Шкаф РТ30-69 №3. Схема соединений (Лист 1) ТП 902-2-285-АК-11 Шкаф РТ30-69 №3. Схема соединений (Лист 2) ТП 902-2-285-АК-12 Схема подключения электрооборудования ТП 902-2-285-АК-13 Кабельный журнал ТП 902-2-285-АК-14 Опросные листы и попанельная спецификация шкафов ШР1107-67 и РТ30-69 |
| Разработан: | ЦНИИЭП |
| Утверждён: | 22.07.1974 Госгражданстрой (Gosgrazhdanstroy 164) |






























