Скачать Типовой проект 907-2-247 Альбом I. Конструкции металлические, железобетонные. СветоограждениеДата актуализации: 01.01.2021
|
| Обозначение: | Типовой проект 907-2-247 |
| Обозначение англ: | 907-2-247 |
| Статус: | не определен законодательством |
| Название рус.: | Альбом I. Конструкции металлические, железобетонные. Светоограждение |
| Дата добавления в базу: | 01.09.2013 |
| Дата актуализации: | 01.01.2021 |
| Дата введения: | 20.10.1981 |
| Дата окончания срока действия: | 30.06.2003 |
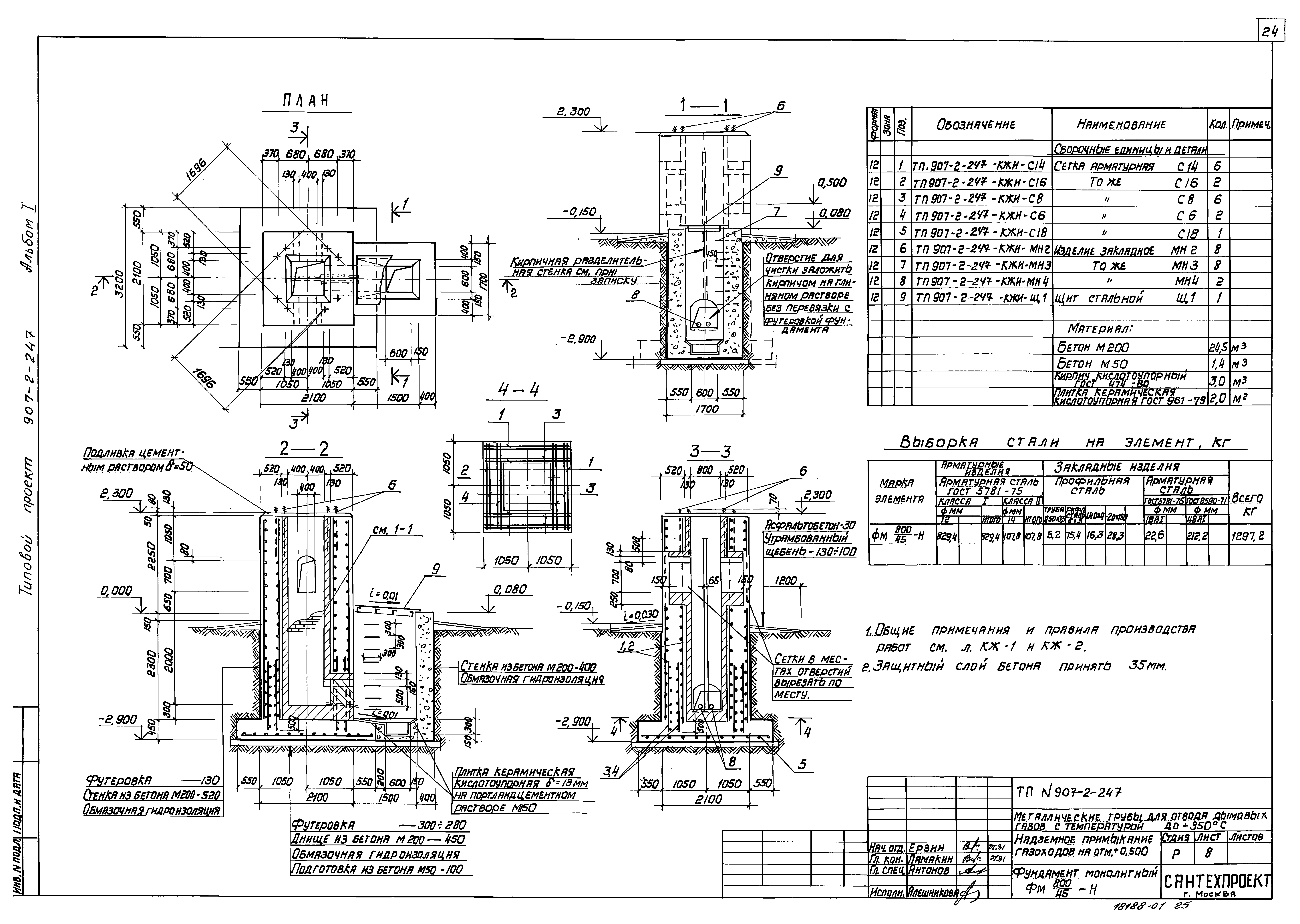
| Оглавление: | ТП 907-2-247 Обложка ТП 907-2-247 Титульный лист ТП 907-2-247 Содержание ТП 907-2-247-КМ Конструкции металлические ТП 907-2-247-КМ-1 Общие данные (начало) ТП 907-2-247-КМ-1 Общие данные (окончание) ТП 907-2-247-КМ-2 Техническая спецификация металла. Труба Н=21,375м;Д=400;500 мм ТП 907-2-247-КМ-3 Техническая спецификация металла. Труба Н=31,815м;Д=500;600;800мм ТП 907-2-247-КМ-4 Техническая спецификация металла. Труба Н=44,225м;Д=600;800;1000мм ТП 907-2-247-КМ-5 Схема труб Н=21,375м;Д=400;500мм ТП 907-2-247-КМ-6 Схема труб Н=31,815м;Д=500;600 и 800мм ТП 907-2-247-КМ-7 Схема труб Н=44,225м;Д=600;800 и 1000мм ТП 907-2-247-КМ-8 Узлы 1,2,3,4,5. Деталь крепления кабеля ТП 907-2-247-КМ-9 Оттяжки ОТ-1÷ОТ-14 ТП 907-2-247-КМ-10 Оттяжки ОТ-1÷ОТ-14. Детали 1,2,5,8,9,12-25. Спецификация ТП 907-2-247-КЖ-1 Конструкции железобетонные (КЖ-1) ТП 907-2-247-КЖ-1-1 Общие данные ТП 907-2-247-КЖ-1-2 План фундаментов трубы Н=21,375м. План фундаментов трубы Н=31,815м. План фундаментов трубы Н=44,225м ТП 907-2-247-КЖ-1-3 Фундаменты Ф-1,Ф-2,Ф-3 ТП 907-2-247-КЖ-2 Чертежи фундаментов под дымовые трубы (КЖ-2) ТП 907-2-247-КЖ-2-1 Общие данные (начало) ТП 907-2-247-КЖ-2-2 Общие данные (окончание) ТП 907-2-247-КЖ-2-3 Фундамент монолитный ФМ 400-Н ТП 907-2-247-КЖ-2-4 Фундамент монолитный ФМ 500-Н ТП 907-2-247-КЖ-2-5 Фундамент монолитный ФМ 600/30-Н ТП 907-2-247-КЖ-2-6 Фундамент монолитный ФМ 600/45-Н ТП 907-2-247-КЖ-2-7 Фундамент монолитный ФМ 800/30-Н ТП 907-2-247-КЖ-2-8 Фундамент монолитный ФМ 800/45-Н ТП 907-2-247-КЖ-2-9 Фундамент монолитный ФМ 1000-Н ТП 907-2-247-КЖИ-МН1 Изделие закладное МН1 ТП 907-2-247-КЖИ-МН2 Изделие закладное МН2 ТП 907-2-247-КЖИ-МН3,МН4 Изделие закладное МН3,МН4 ТП 907-2-247-КЖИ-Щ1 Щит стальной Щ1 ТП 907-2-247-КЖИ-С1;С3 Сетки арматурные С1;С3 ТП 907-2-247-КЖИ-С2;С6 Сетки арматурные С2;С6 ТП 907-2-247-КЖИ-С4;С5 Сетки арматурные С4;С5 ТП 907-2-247-КЖИ-С7;С8 Сетки арматурные С7;С8 ТП 907-2-247-КЖИ-С9;С10 Сетки арматурные С9;С10 ТП 907-2-247-КЖИ-С11;С12 Сетки арматурные С11;С12 ТП 907-2-247-КЖИ-С13;С14 Сетки арматурные С13;С14 ТП 907-2-247-КЖИ-С15;С16 Сетки арматурные С15;С16 ТП 907-2-247-КЖИ-С17 Сетка арматурная С17 ТП 907-2-247-КЖИ-С18 Сетка арматурная С18 ТП 907-2-247-КЖИ-С19 Сетка арматурная С19 ТП 907-2-247-КЖИ-С20 Сетка арматурная С20 ТП 907-2-247-КЖИ-С22 Сетка арматурная С22 ТП 907-2-247-КЖИ-ЗД1 Изделие закладное ЗД1 ТП 907-2-247-КЖИ-ЗД2;ЗД3 Изделия закладные ЗД2;ЗД3 ТП 907-2-247-Э1 Светоограждение дымовых труб ТП 907-2-247-Э1-1 Общие данные (начало) ТП 907-2-247-Э1-1 Общие данные (окончание) ТП 907-2-247-Э1-1 Схема принципиальная управления огнями светоограждения ТП 907-2-247-Э1-1 Схема подключения ТП 907-2-247-Э1-1 Трассы кабелей электроосвещения по трубе и на площадке ТП 907-2-247-Э1-1 Кабельный журнал ТП 907-2-247-Э1-1 Ведомость изделий МЭЗ. Ведомость изделий и материалов для изготовления изделий МЭЗ ТП 907-2-247-Э1-1 Узлы крепления и детали прокладки сети ТП 907-2-247-Э1-1 Узлы и детали установки и крепления светильников ТП 907-2-247-Э2 Чертежи-задания заводу-изготовителю ТП 907-2-247-Э2-1 Ящик ШУ-3. Таблица-технические данные аппаратов ТП 907-2-247-Э2-2 Ящик ШУ-3. Общий вид ТП 907-2-247-Э2-3 Ящик ШУ-3. Перечень надписей ТП 907-2-247-Э2-4 Ящик ШУ-3. Схема электрическая соединений ТП 907-2-247-Э3-1 Ведомость электрооборудования кабельных изделий и материалов, поставляемых заказчиком ТП 907-2-247-Э3-2 Уточненная ведомость изделий и материалов, поставляемых генподрядчиком и электромонтажной организацией Заказная спецификация №1 на силовое электрооборудование и материалы |
| Разработан: | ГПИ Укрпроектстальконструкция |
| Утверждён: | 20.10.1981 Укрпроектстальконструкция (40) |









































