Скачать Серия ПК-01-128 Стальные элементы для сопряжений сборных железобетонных конструкций. Рабочие чертежиДата актуализации: 01.01.2021
|
| Обозначение: | Серия ПК-01-128 |
| Обозначение англ: | Series ПК-01-128 |
| Статус: | не действует |
| Название рус.: | Стальные элементы для сопряжений сборных железобетонных конструкций. Рабочие чертежи |
| Дата добавления в базу: | 01.09.2013 |
| Дата актуализации: | 01.01.2021 |
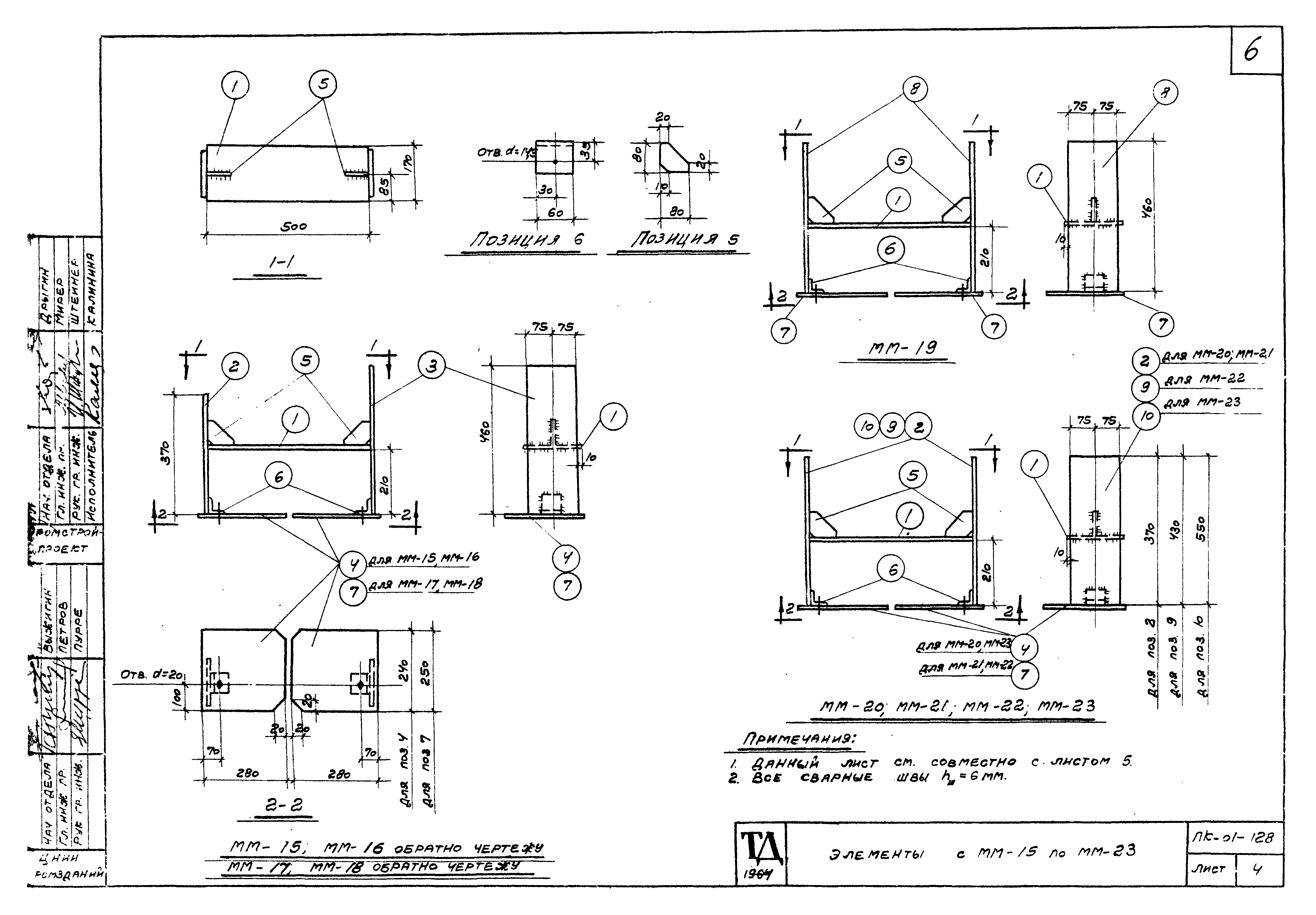
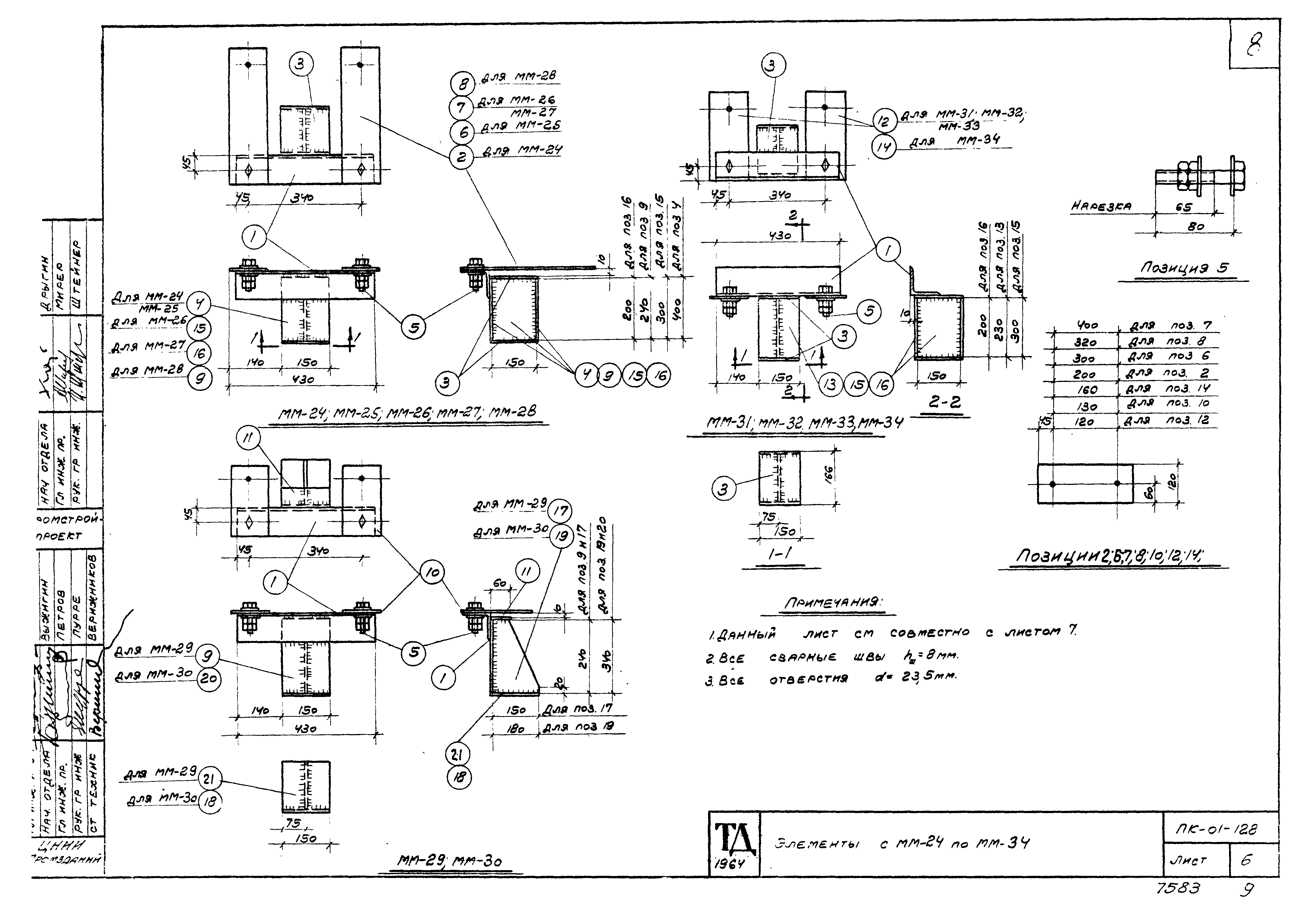
| Оглавление: | ПК-01-128 Пояснительная записка ПК-01-128 Лист № 1. Элементы с ММ-1 по ММ-7 ПК-01-128 Лист № 2. Элементы с ММ-8 по MM-14 ПК-01-128 Лист № 3. Элементы с MM-1 по MM-14. Спецификация стали ПК-01-128 Лист № 4. Элементы с MM-15 по ММ-23 ПК-01-128 Лист № 5. Элементы с MM-15 по ММ-23. Спецификация стали ПК-01-128 Лист № 6. Элементы с ММ-24 во ММ-34 ПК-01-128 Лист № 7. Элементы с ММ-24 по ММ-34. Спецификация стала ПК-01-128 Лист № 8. ММ-35 по ММ-40 ПК-01-128 Лист № 9. MM-41 по ММ-43 ПК-01-128 Лист № 10. ММ-35 по ММ-43. Спецификация стали ПК-01-128 Лист № 11. ММ-44 по ММ-48 ПК-01-128 Лист № 12. ММ-47 по ММ-58 ПК-01-128 Лист № 13. MM-59 по ММ-66 ПК-01-128 Лист № 14. MM-57 по ММ-74 ПК-01-128 Лист № 15. ММ-75 по ММ-82 |
| Разработан: | ЦНИИпромзданий Промстройпроект |
| Утверждён: | 05.11.1964 Госстрой СССР (Государственный комитет Совета Министров СССР по делам строительства) (USSR Gosstroy 194) |

















