Скачать Серия ПК-01-111 Крупнопанельные железобетонные предварительно напряженные плиты покрытий размером 1,5х6 м. Рабочие чертежиДата актуализации: 01.01.2021
|
| Обозначение: | Серия ПК-01-111 |
| Обозначение англ: | Series ПК-01-111 |
| Статус: | не действует |
| Название рус.: | Крупнопанельные железобетонные предварительно напряженные плиты покрытий размером 1,5х6 м. Рабочие чертежи |
| Дата добавления в базу: | 01.09.2013 |
| Дата актуализации: | 01.01.2021 |
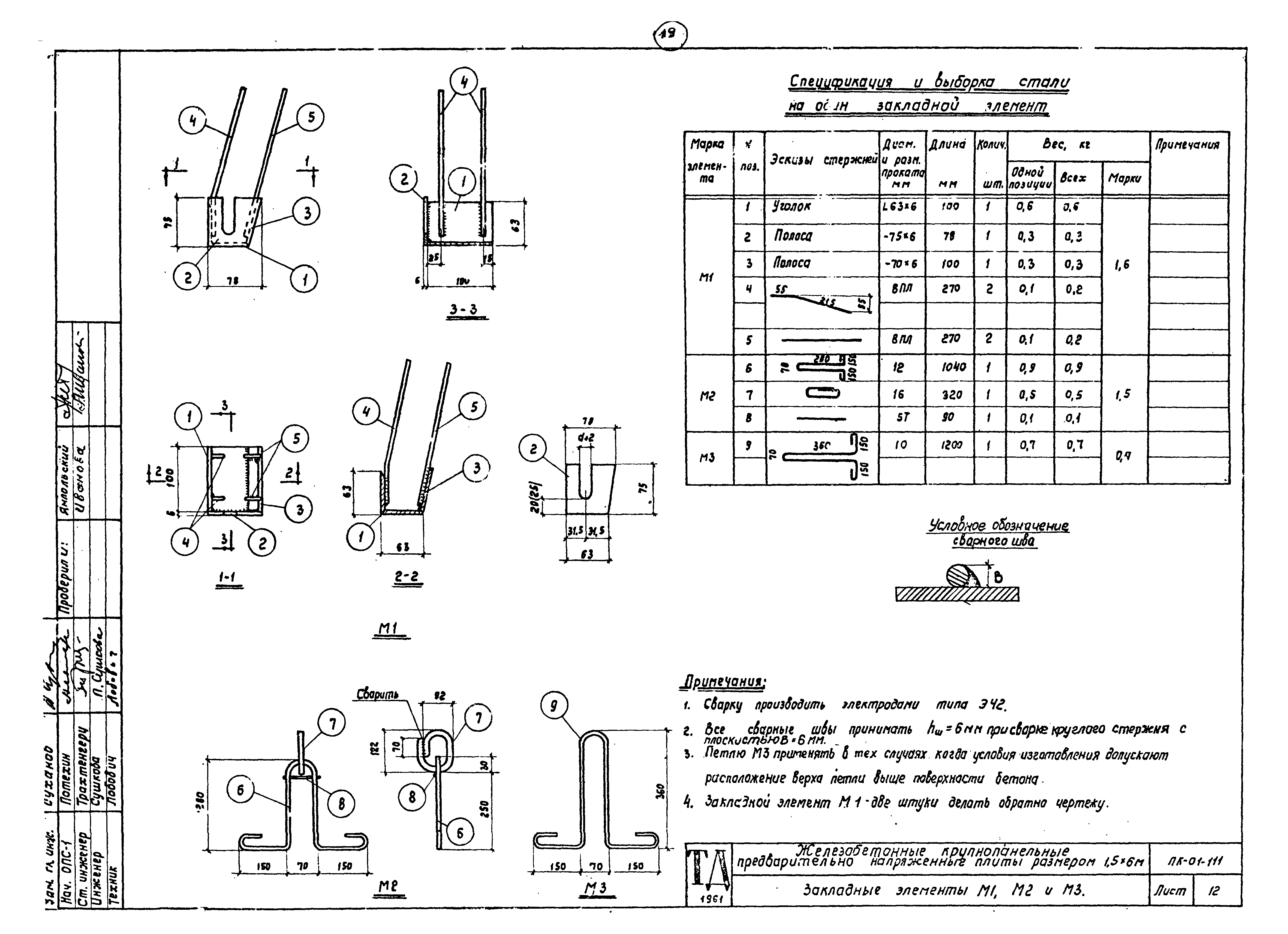
| Оглавление: | ПК-01-111 Пояснительная записка ПК-01-111 Чертежи ПК-01-111 Лист 1. Опалубочный чертеж плит (ПНС-10/1.5х6)-(ПНС-14/1.5х6). Технико-экономические показатели ПК-01-111 Лист 2. Опалубочный чертеж плит (ПНС-10/1.5х6)-(ПНС-14/1.5х6). Технико-экономические показатели ПК-01-111 Лист 3. Армирование плит (ПНС-10/1.5х6)-(ПНС-14/1.5х6). Разрезы ПК-01-111 Лист 4. Армирование плит (ПНС-10/1.5х6)-(ПНС-14/1.5х6). Детали ПК-01-111 Лист 5. Арматурные каркасы и сетки плит (ПНС-10/1.5х6)-(ПНС-14/1.5х6) ПК-01-111 Лист 6. Закладные элементы М1,М2 и М3 ПК-01-111 Лист 7. Опалубочный чертеж плит (ПНС-15/1.5х6)-(ПНС-19/1.5х6). Технико-экономические показатели ПК-01-111 Лист 8. Опалубочный чертеж плит (ПНС-15/1.5х6)-(ПНС-19/1.5х6). Технико-экономические показатели ПК-01-111 Лист 9. Армирование плит (ПНС-15/1.5х6)-(ПНС-19/1.5х6). Разрезы ПК-01-111 Лист 10. Армирование плит (ПНС-15/1.5х6)-(ПНС-19/1.5х6). Детали ПК-01-111 Лист 11. Арматурные каркасы и сетки плит (ПНС-15/1.5х6)-(ПНС-19/1.5х6) ПК-01-111 Лист 14. Закладные элементы М1,М2 и М3 |
| Разработан: | НИИЖБ Гипротис |
| Утверждён: | 08.12.1961 Госстрой СССР (Государственный комитет Совета Министров СССР по делам строительства) (USSR Gosstroy 343) |




















