Скачать Серия ПК-01-110/68 Выпуск 1. Рабочие чертежи подстропильных ферм с проволочной, стержневой и прядевой арматуройДата актуализации: 01.01.2021
|
| Обозначение: | Серия ПК-01-110/68 |
| Обозначение англ: | Series ПК-01-110/68 |
| Статус: | заменен |
| Название рус.: | Выпуск 1. Рабочие чертежи подстропильных ферм с проволочной, стержневой и прядевой арматурой |
| Дата добавления в базу: | 01.09.2013 |
| Дата актуализации: | 01.01.2021 |
| Дата окончания срока действия: | 01.05.1983 |
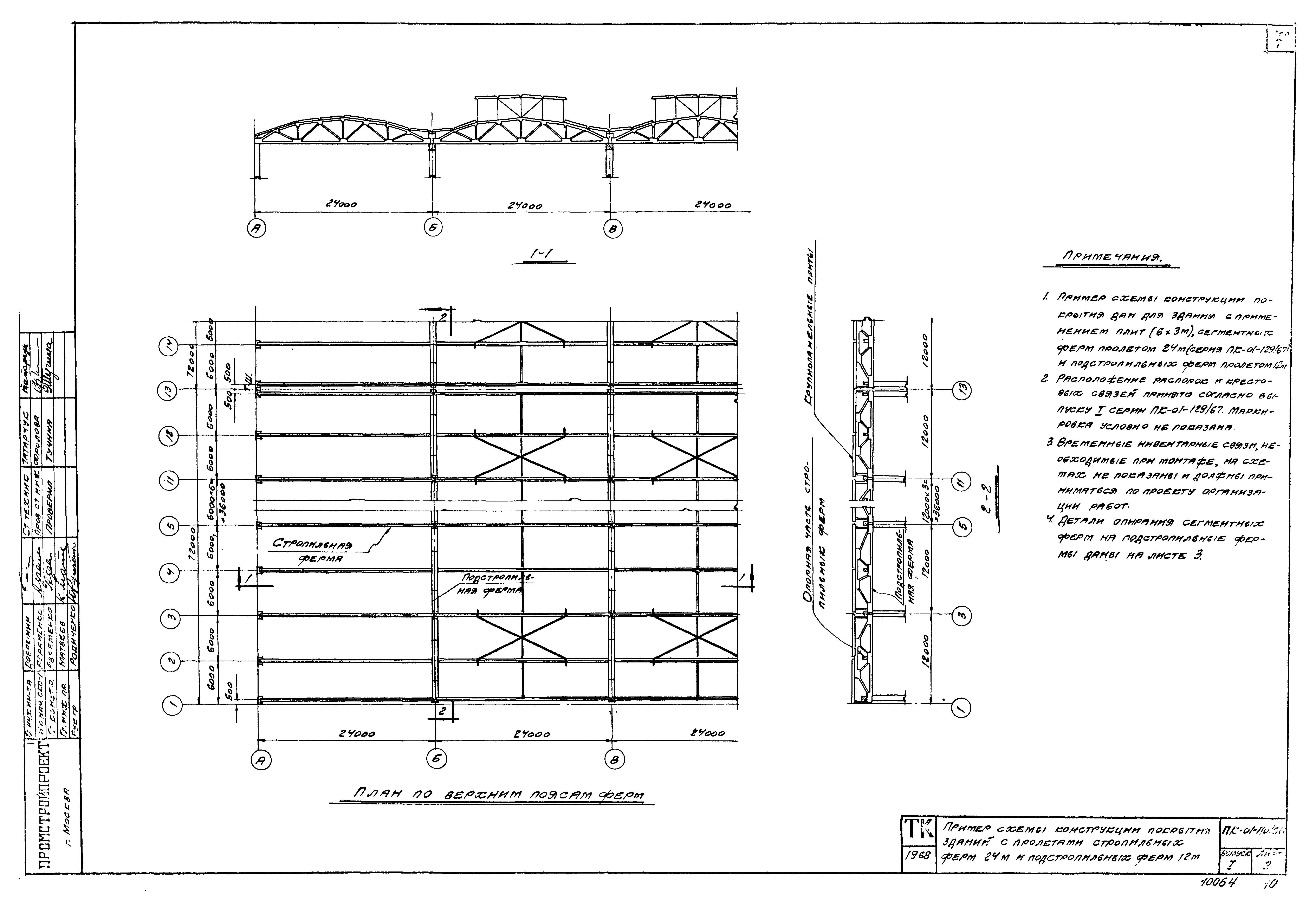
| Оглавление: | ПК-01-110/68 Пояснительная записка ПК-01-110/68 Лист 1. Схема испытания ферм ПК-01-110/68 Лист 2. Пример схемы конструкции покрытия зданий с пролетами стропильных ферм 24м и подстропильных ферм 12м ПК-01-110/68 Лист 3. Узлы опирания подстропильных ферм на колонны и стропильных ферм на подстропильные фермы ПК-01-110/68 Лист 4. Выборка стали и расход материалов на фермы ПК-01-110/68 Лист 5. Выборка стали и расход материалов на фермы ПК-01-110/68 Лист 6. Подстропильные фермы ПФ-1,ПФ-2,ПФ-3,ПФ-4. Опалубочный чертеж ПК-01-110/68 Лист 7. Подстропильные фермы ПФ-1К,ПФ-2К,ПФ-3К,ПФ-4К. Опалубочный чертеж ПК-01-110/68 Лист 8. Подстропильные фермы ПФ-1В,ПФ-1АIII,ПФ-1АIV,ПФ-1П. Арматурный чертеж ПК-01-110/68 Лист 9. Подстропильные фермы ПФ-2В,ПФ-2АIII,ПФ-2АIV,ПФ-2П. Арматурный чертеж ПК-01-110/68 Лист 10. Подстропильные фермы ПФ-3В,ПФ-3АIII,ПФ-3АIV,ПФ-3П. Арматурный чертеж ПК-01-110/68 Лист 11. Подстропильные фермы ПФ-4В,ПФ-4АIII,ПФ-4АIV,ПФ-4П. Арматурный чертеж ПК-01-110/68 Лист 12. Подстропильные фермы ПФ-1ВК,ПФ-1АIIКI,ПФ-1АIVК,ПФ-1ПК. Арматурный чертеж ПК-01-110/68 Лист 13. Подстропильные фермы ПФ-2ВК,ПФ-2АIIКI,ПФ-2АIVК,ПФ-2ПК. Арматурный чертеж ПК-01-110/68 Лист 14. Подстропильные фермы ПФ-3ВК,ПФ-3АIIКI,ПФ-3АIVК,ПФ-3ПК. Арматурный чертеж ПК-01-110/68 Лист 15. Подстропильные фермы ПФ-4ВК,ПФ-4АIIКI,ПФ-4АIVК,ПФ-4ПК. Арматурный чертеж ПК-01-110/68 Лист 16. Расположение напрягаемой арматуры в сечении 5-5 ПК-01-110/68 Лист 17. Арматурные узлы А,Б ПК-01-110/68 Лист 18. Арматурные узлы В,Г ПК-01-110/68 Лист 19. Арматурные каркасы КП1,КП2,КП8,КП9,К1-К8 ПК-01-110/68 Лист 20. Арматурные каркасы КП3,КП6,КП7,КП9-К12 ПК-01-110/68 Лист 21. Арматурные каркасы КП4,КП5,КП10,КП13-К17 ПК-01-110/68 Лист 22. Арматурные каркасы КП18-К24 ПК-01-110/68 Лист 23. Арматурные каркасы КП25-К30 ПК-01-110/68 Лист 24. Арматурные каркасы КП31-К35 ПК-01-110/68 Лист 25. Закладные детали М1-М5 ПК-01-110/68 Лист 26. Расположение напрягаемой арматуры в сечении 5-5. Варианты замены напрягаемой арматуры: ø15п7 на ø9п7; класса АIIIВ; класса А-IV ПК-01-110/68 Лист 27. Варианты замены напрягаемой арматуры: ø15п7 на ø9п7; класса АIIIВ; класса А-IV. Выборка стали и расход материалов на фермы ПК-01-110/68 Лист 28. Варианты замены напрягаемой арматуры: ø15п7 на ø9п7; класса АIIIВ; класса А-IV. Выборка стали и расход материалов на фермы |
| Разработан: | НИИЖБ Госстроя СССР Промстройпроект |
| Утверждён: | 09.12.1968 Госстрой СССР (Государственный комитет Совета Министров СССР по делам строительства) (USSR Gosstroy 106) |
| Чем заменён: |




































