Скачать Серия ПК-01-99/62 Выпуск II. Плиты размером 1,5х12 м со стержневой арматурой. Рабочие чертежиДата актуализации: 01.01.2021
|
| Обозначение: | Серия ПК-01-99/62 |
| Обозначение англ: | Series ПК-01-99/62 |
| Статус: | не действует |
| Название рус.: | Выпуск II. Плиты размером 1,5х12 м со стержневой арматурой. Рабочие чертежи |
| Дата добавления в базу: | 01.09.2013 |
| Дата актуализации: | 01.01.2021 |
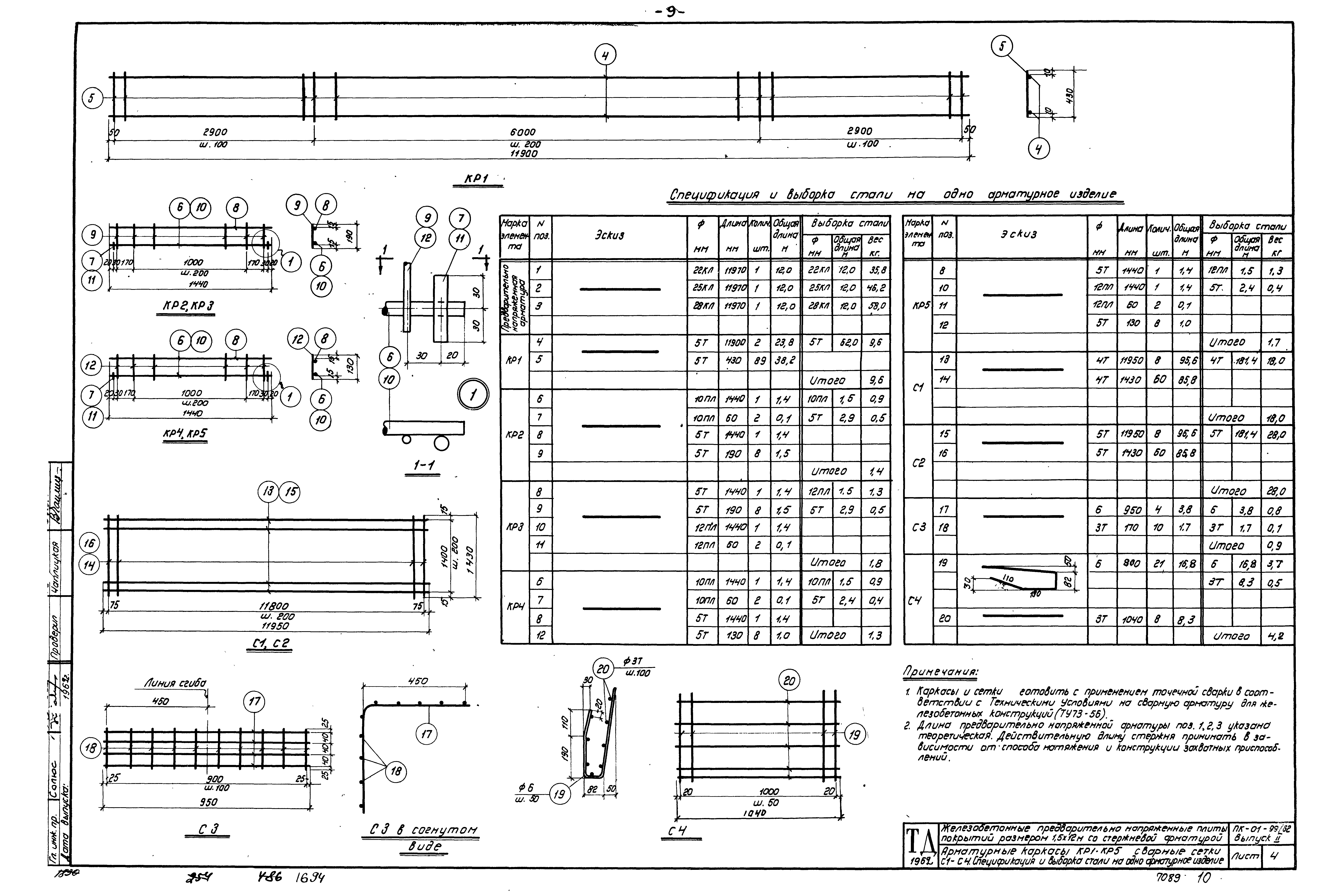
| Оглавление: | ПК-01-99/62 Пояснительная записка ПК-01-99/62 Лист 1. Опалубочный чертеж плит ПНКЛ1/1.5х12 ПНКД3/1.5х12 ПК-01-99/62 Лист 2. Армирование плит. Продольные и поперечные разрезы. Деталь расположения предварительно напряженной арматуры ПК-01-99/62 Лист 3. Армирование плит. Детали 1-3 ПК-01-99/62 Лист 4. Арматурные каркасы КР1-КР5, сварные сетки С1-С4. Спецификация и выборка стали на одно арматурное издетие ПК-01-99/62 Лист 5. Закладные элементы М1,М2. Спецификация и выборка стали |
| Разработан: | НИИЖБ Гипротис |
| Утверждён: | 14.12.1962 Госстрой СССР (Государственный комитет Совета Министров СССР по делам строительства) (USSR Gosstroy 466) |
| Заменяет собой: |











