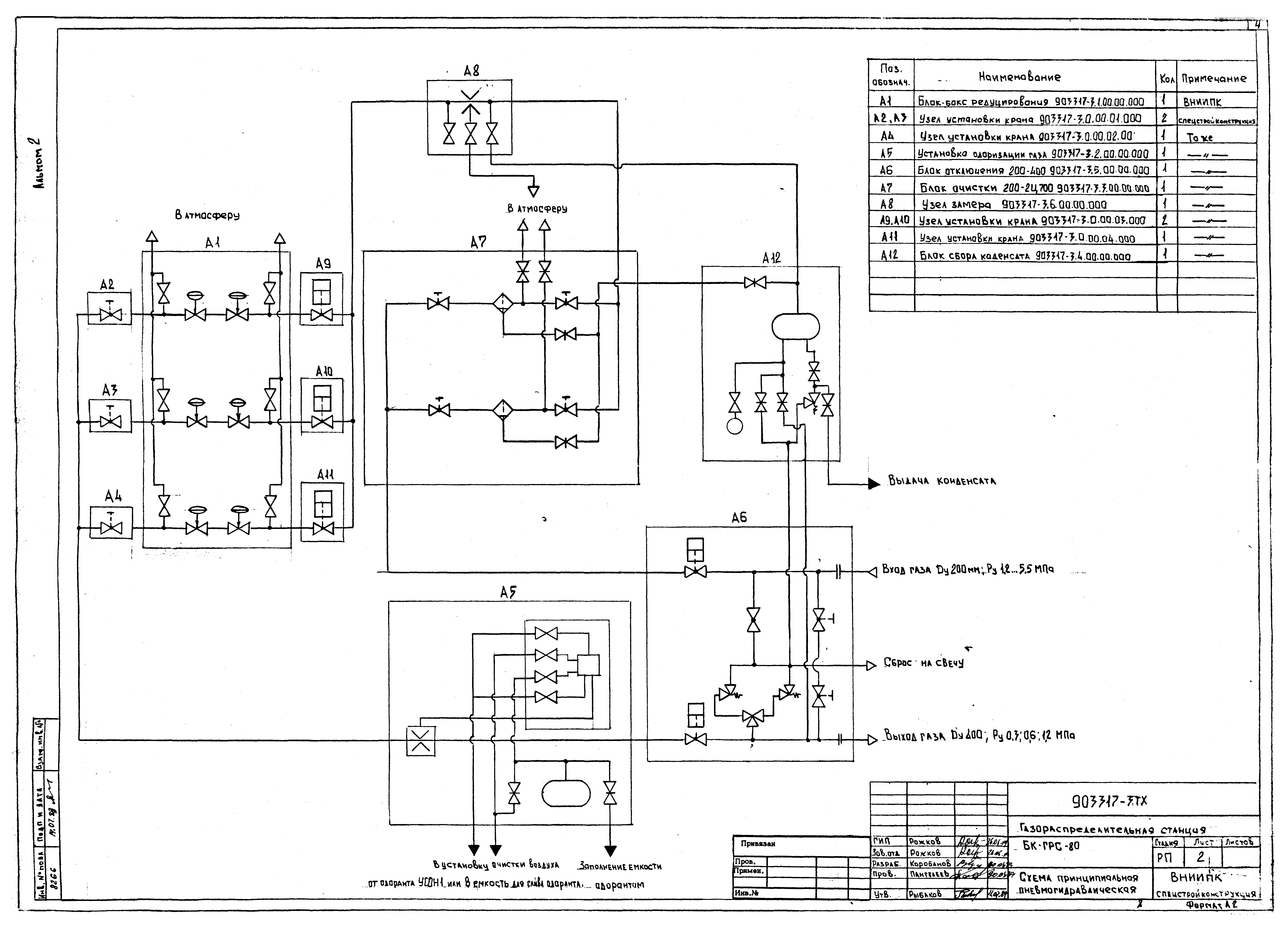
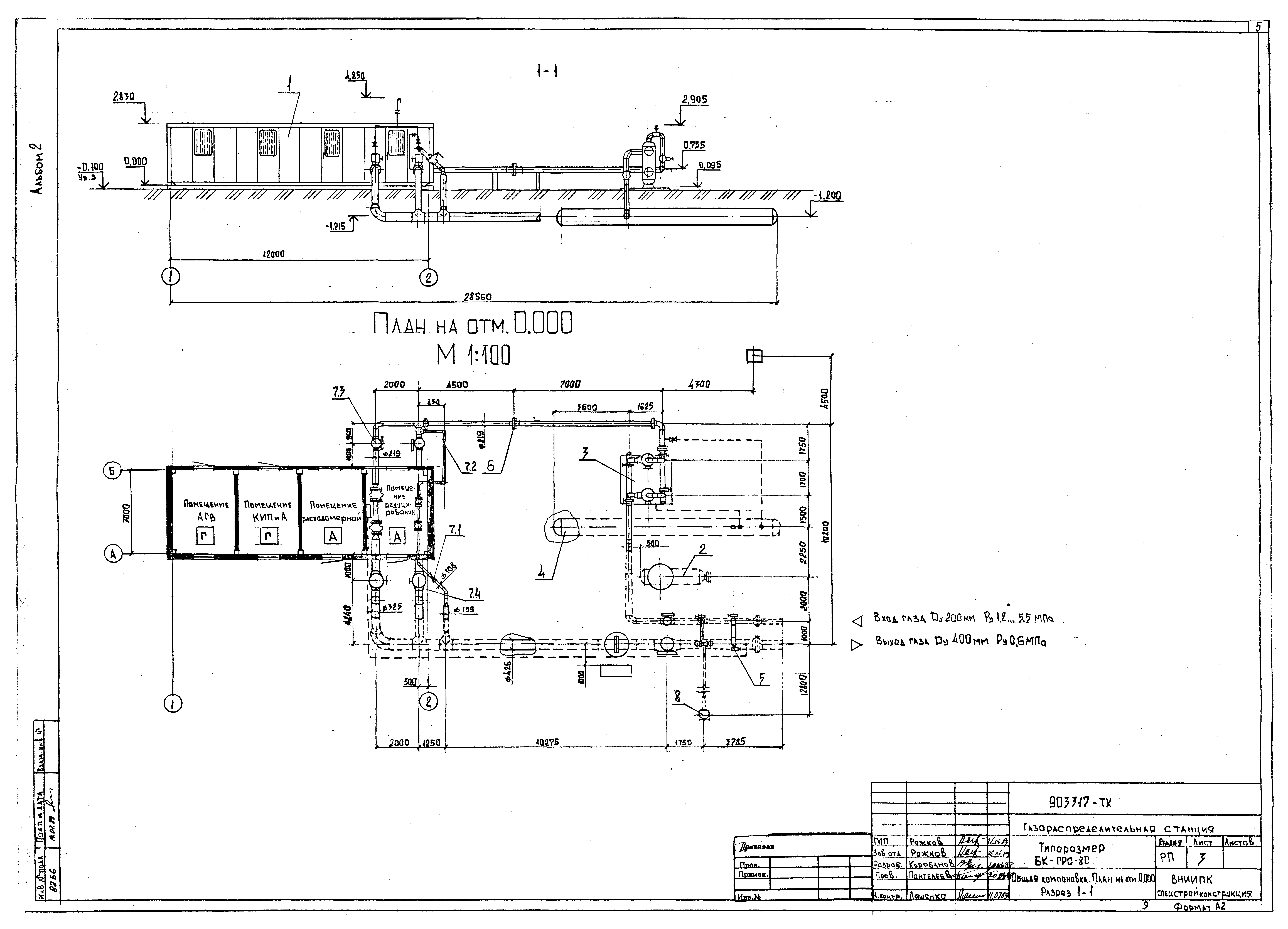
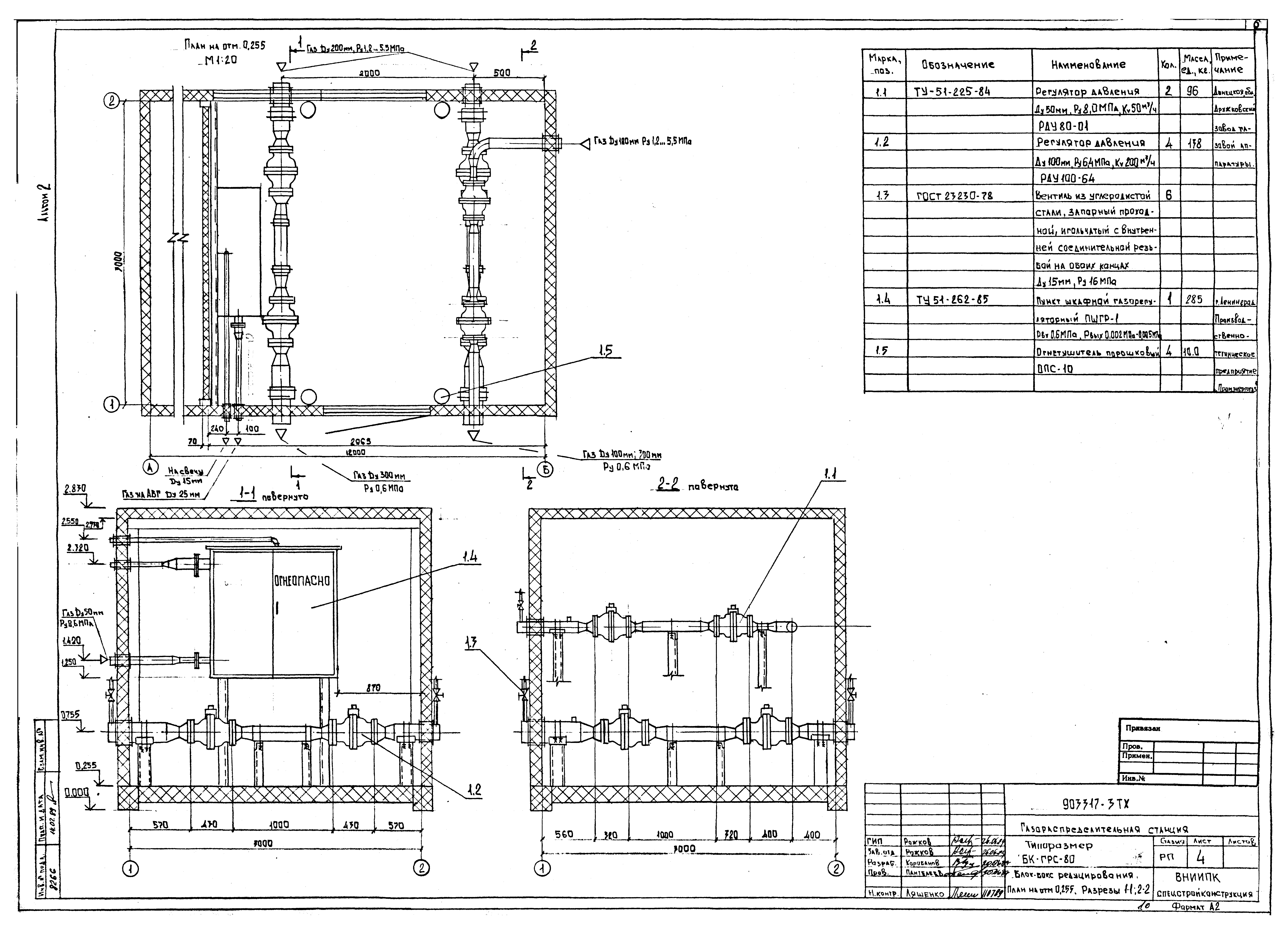
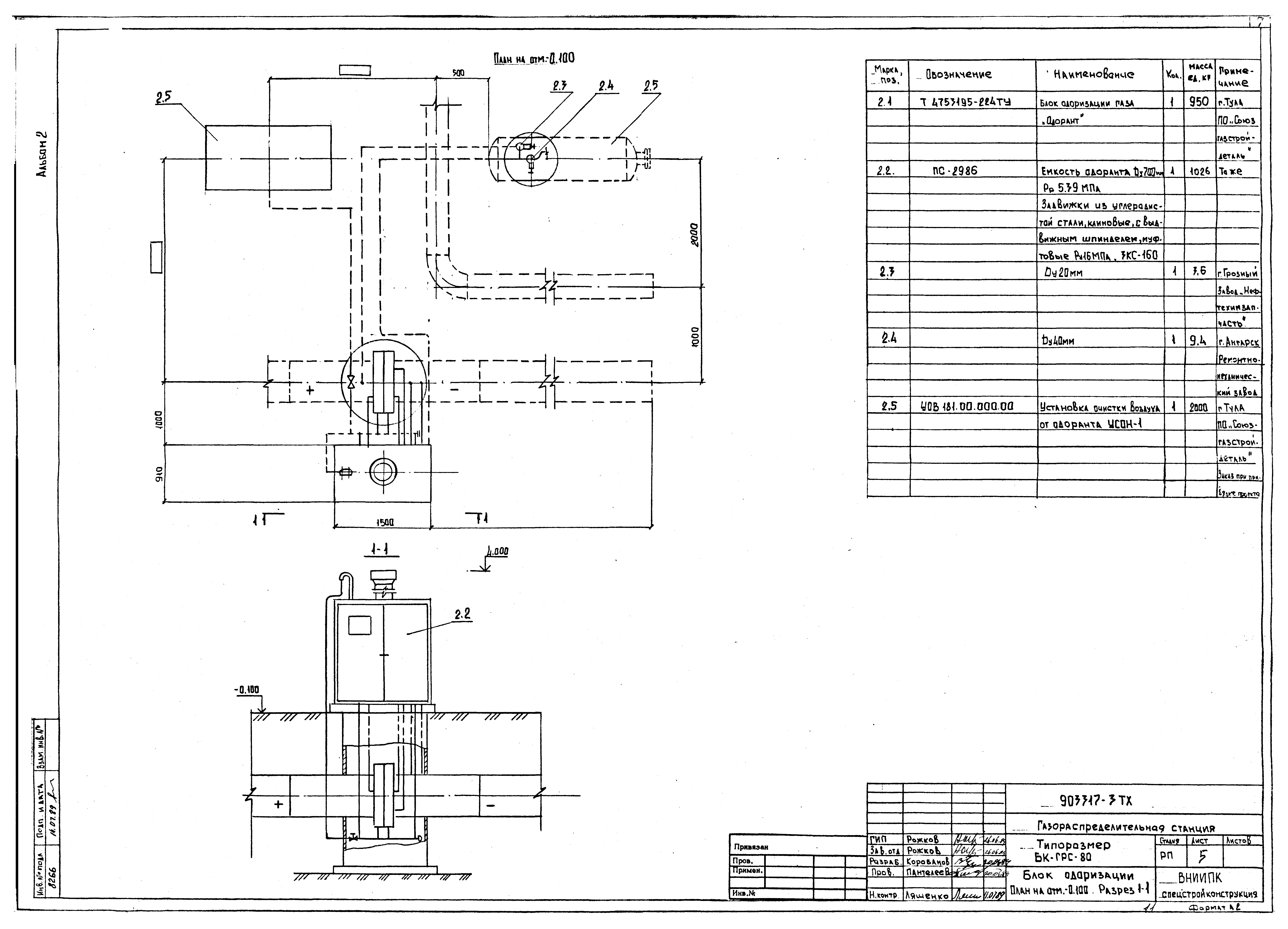
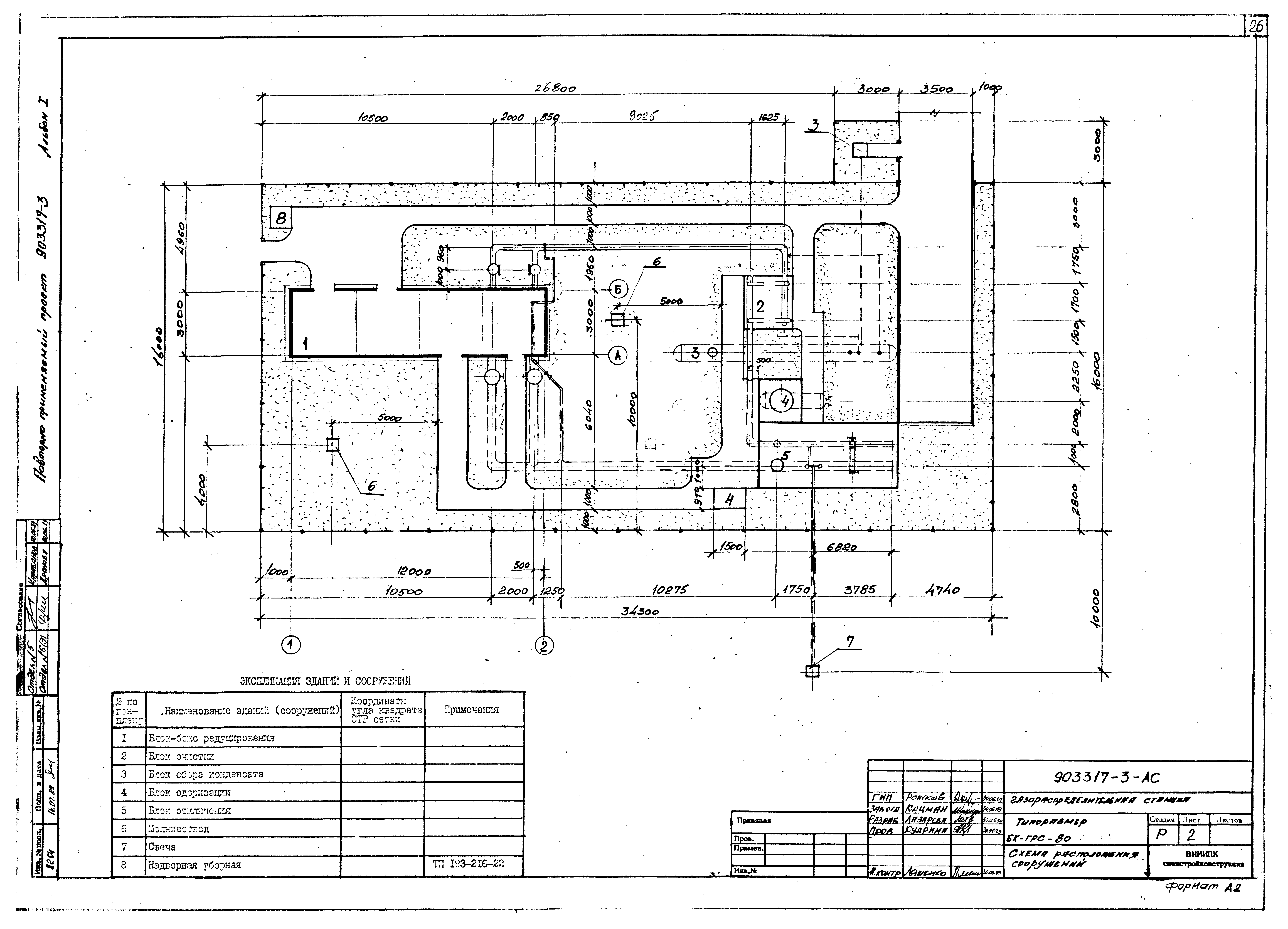
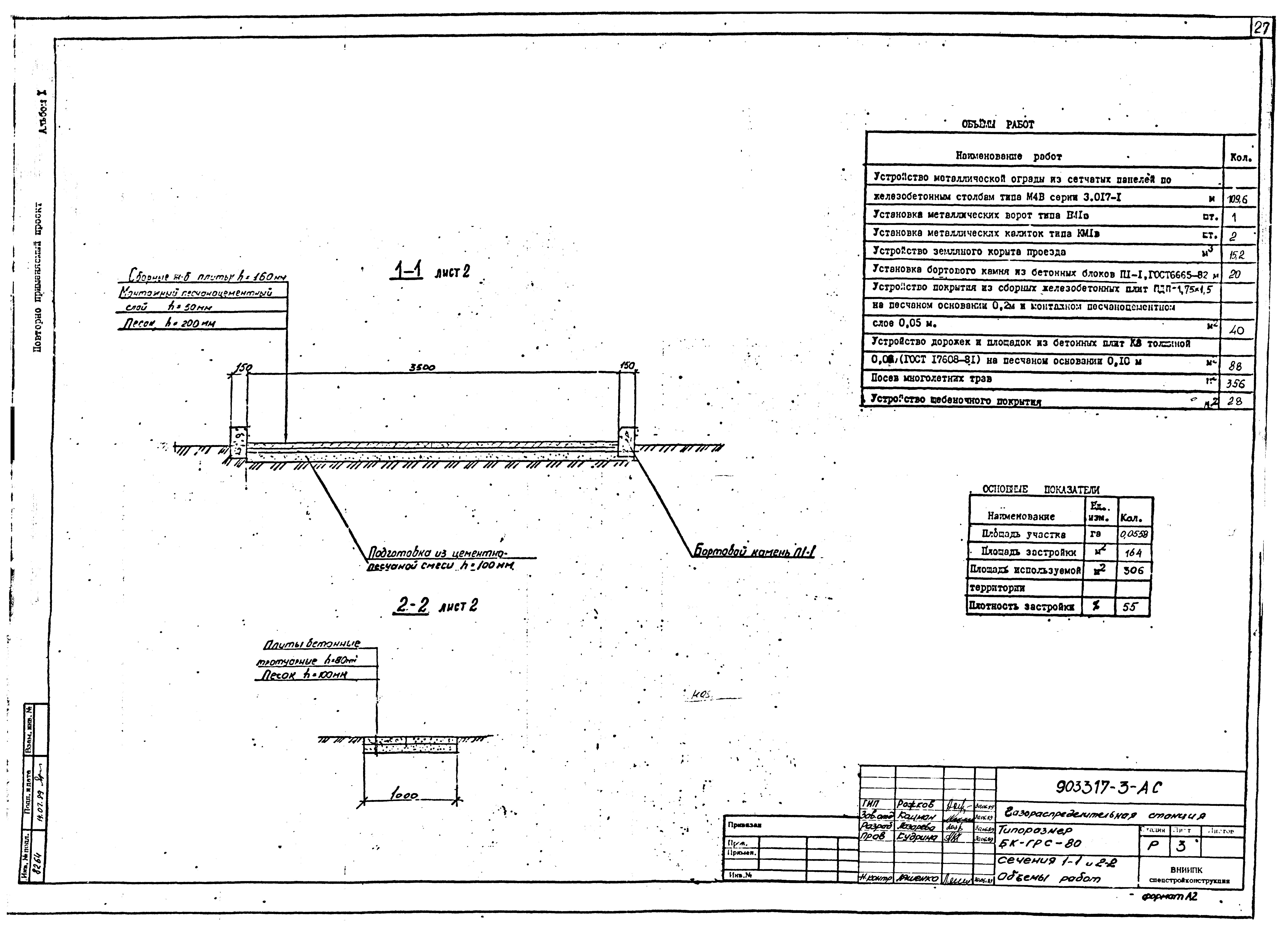
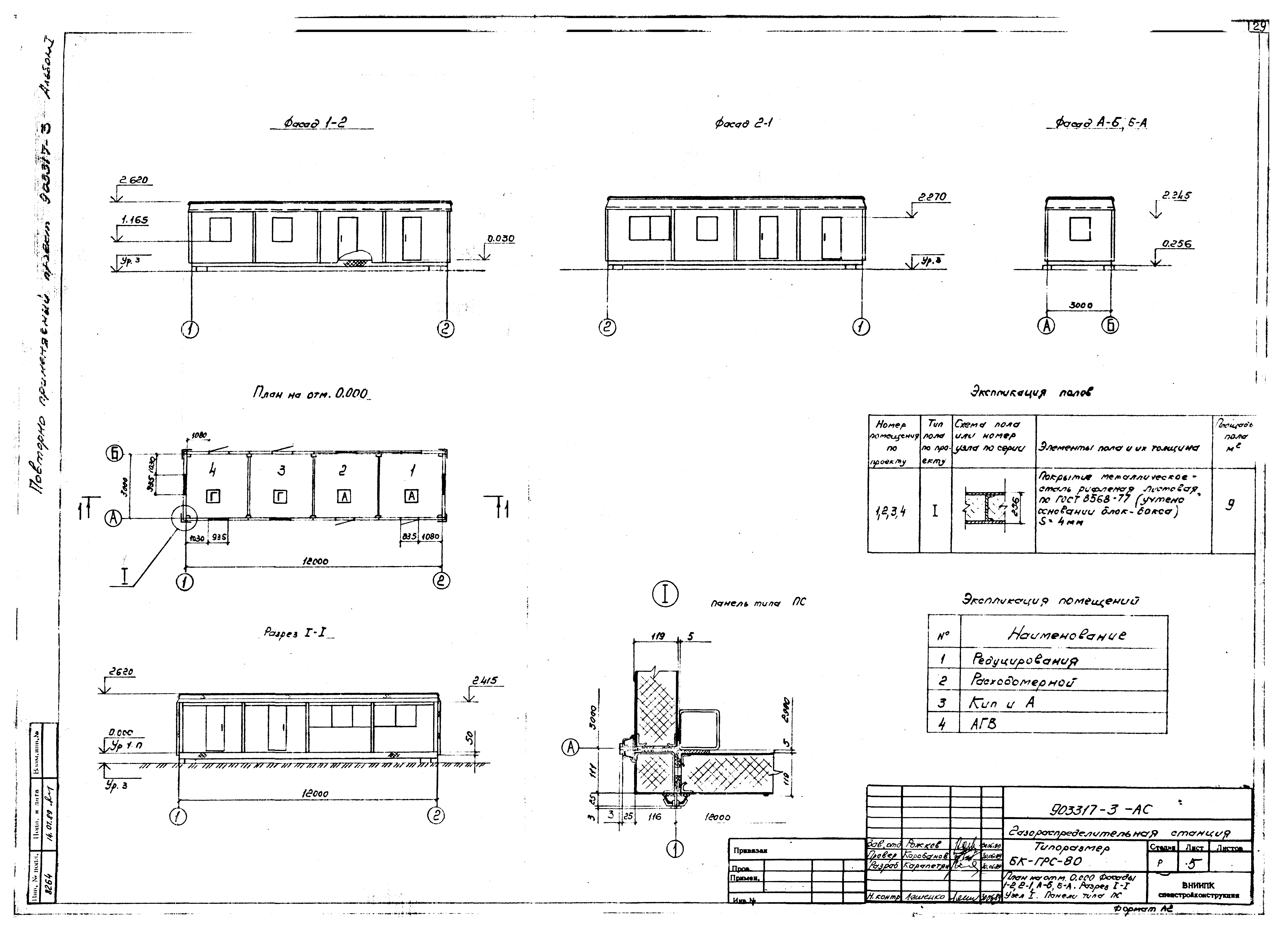
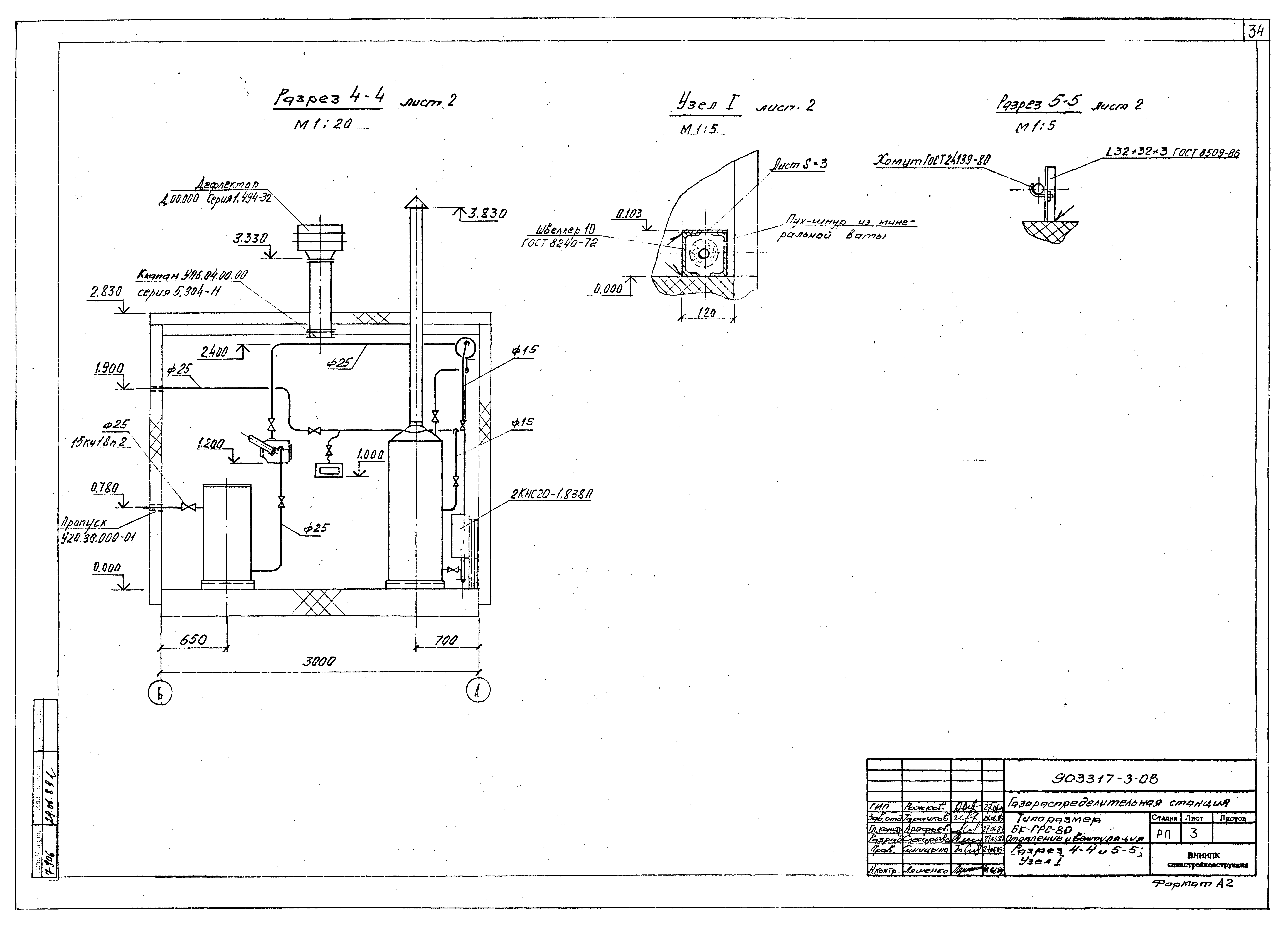
Скачать Типовой проект 903317-3 Альбом II. Технологические решения, автоматизация, электрическое освещение, архитектурно-строительные решения, отопление и вентиляцияДата актуализации: 01.01.2021 Типовой проект 903317-3
Альбом II. Технологические решения, автоматизация, электрическое освещение, архитектурно-строительные решения, отопление и вентиляция| Обозначение: | Типовой проект 903317-3 | | Обозначение англ: | 903317-3 | | Статус: | не действует | | Название рус.: | Альбом II. Технологические решения, автоматизация, электрическое освещение, архитектурно-строительные решения, отопление и вентиляция | | Дата добавления в базу: | 01.09.2013 | | Дата актуализации: | 01.01.2021 | | Разработан: | ВНИИПКспецстройконструкция
|
                                  
|