Скачать Типовой проект 704-1-236.88 Альбом III. Конструкции металлические резервуараДата актуализации: 01.01.2021
|
| Обозначение: | Типовой проект 704-1-236.88 |
| Обозначение англ: | 704-1-236.88 |
| Статус: | не действует |
| Название рус.: | Альбом III. Конструкции металлические резервуара |
| Дата добавления в базу: | 01.09.2013 |
| Дата актуализации: | 01.01.2021 |
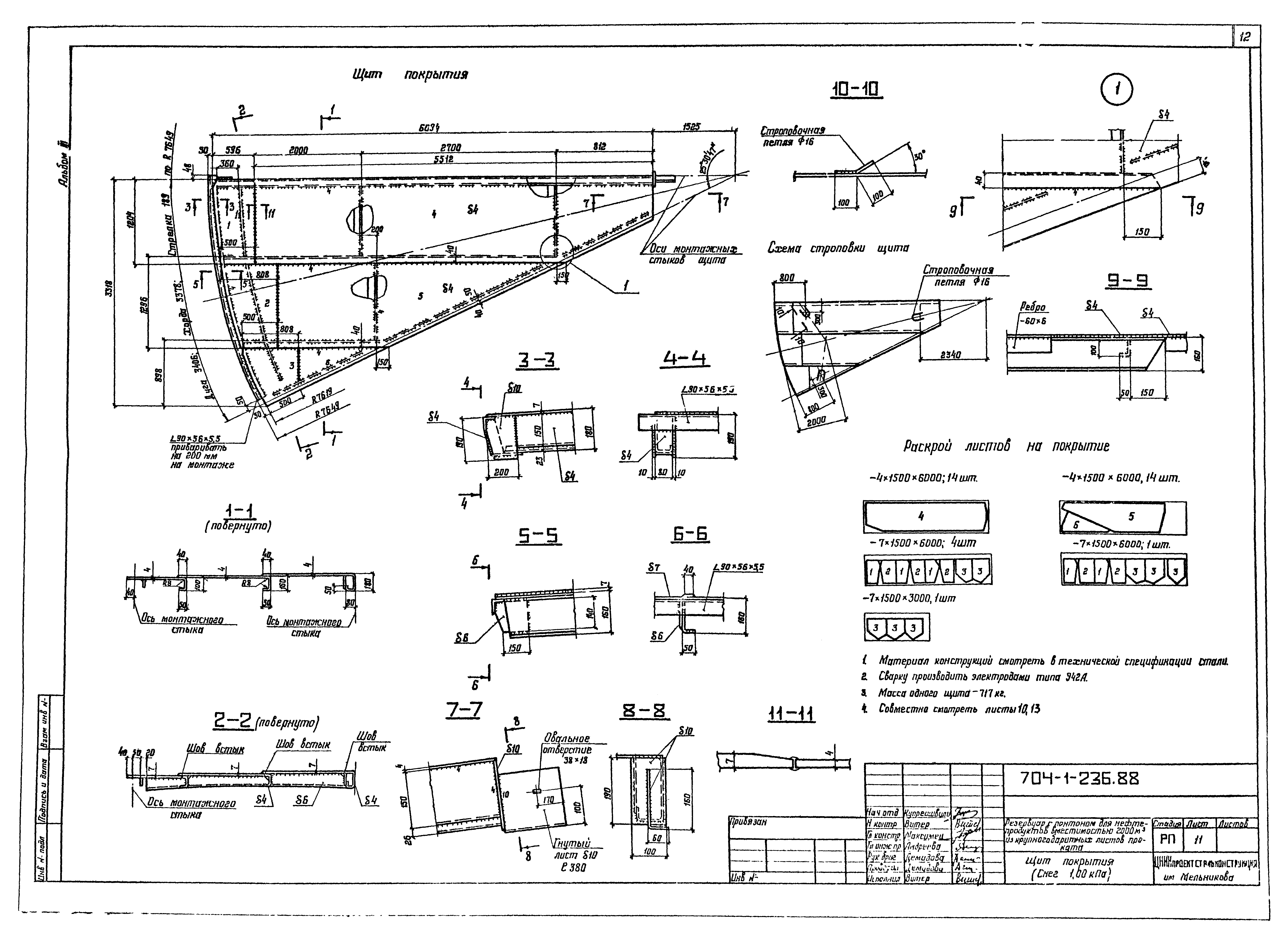
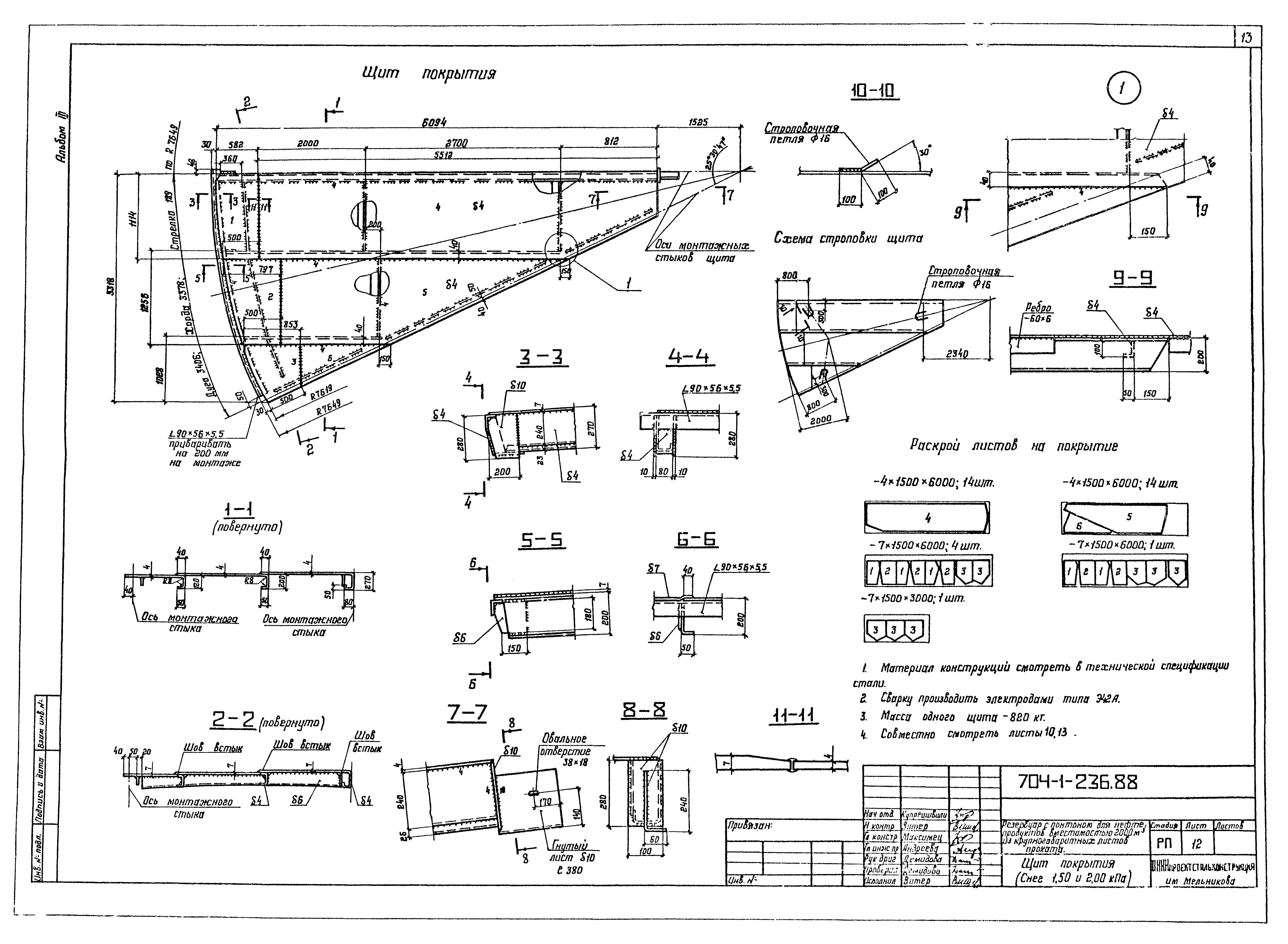
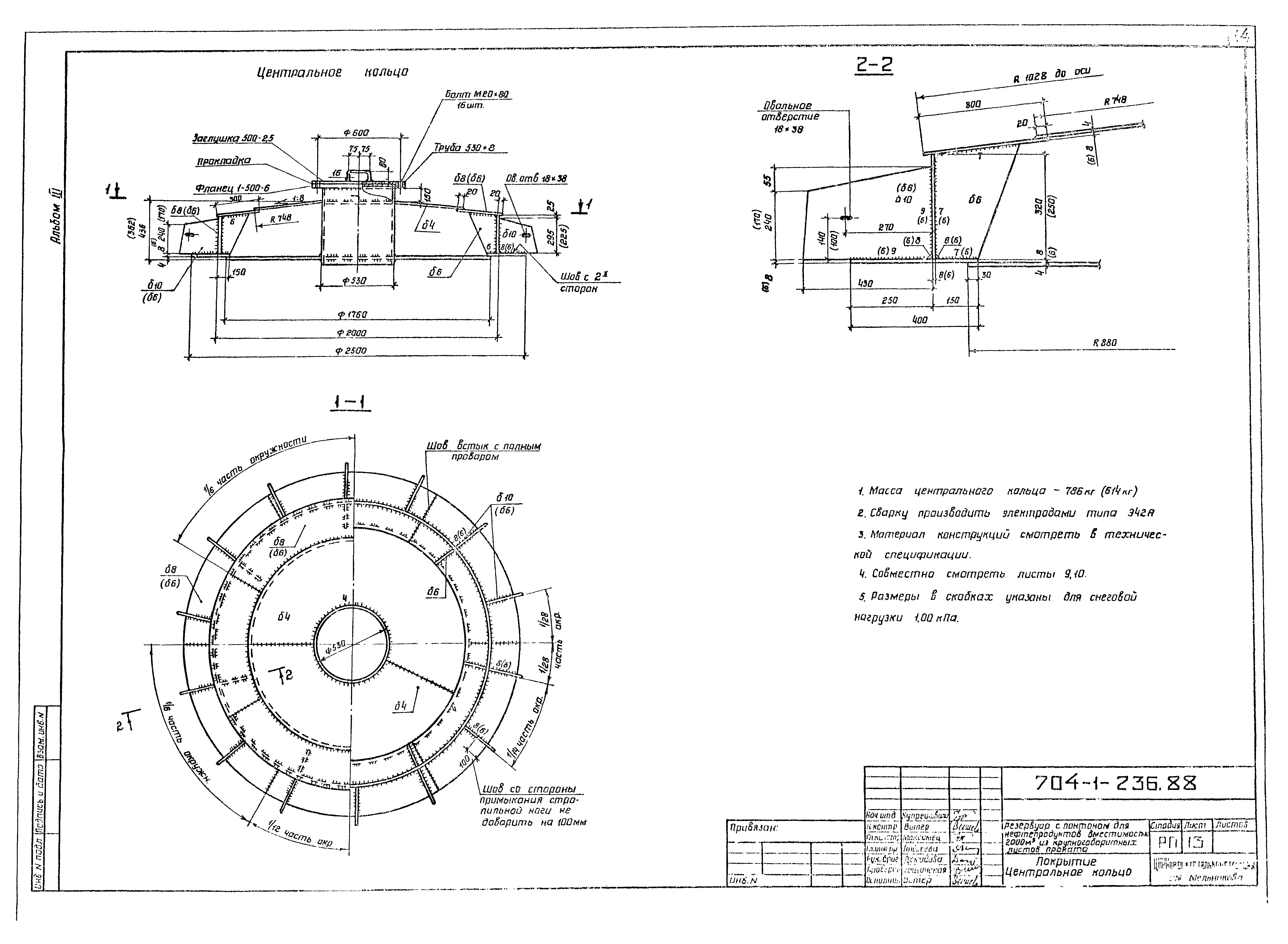
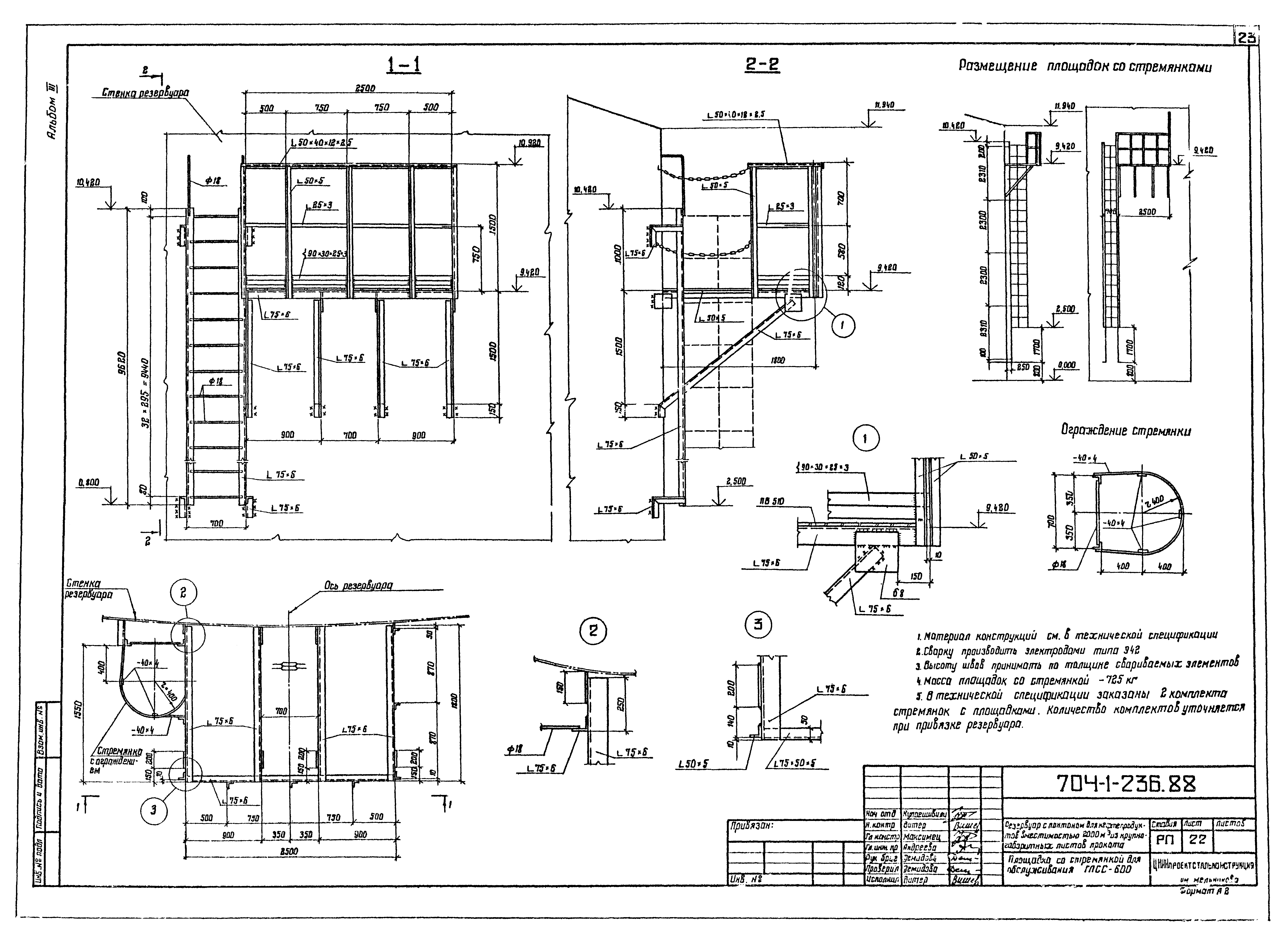
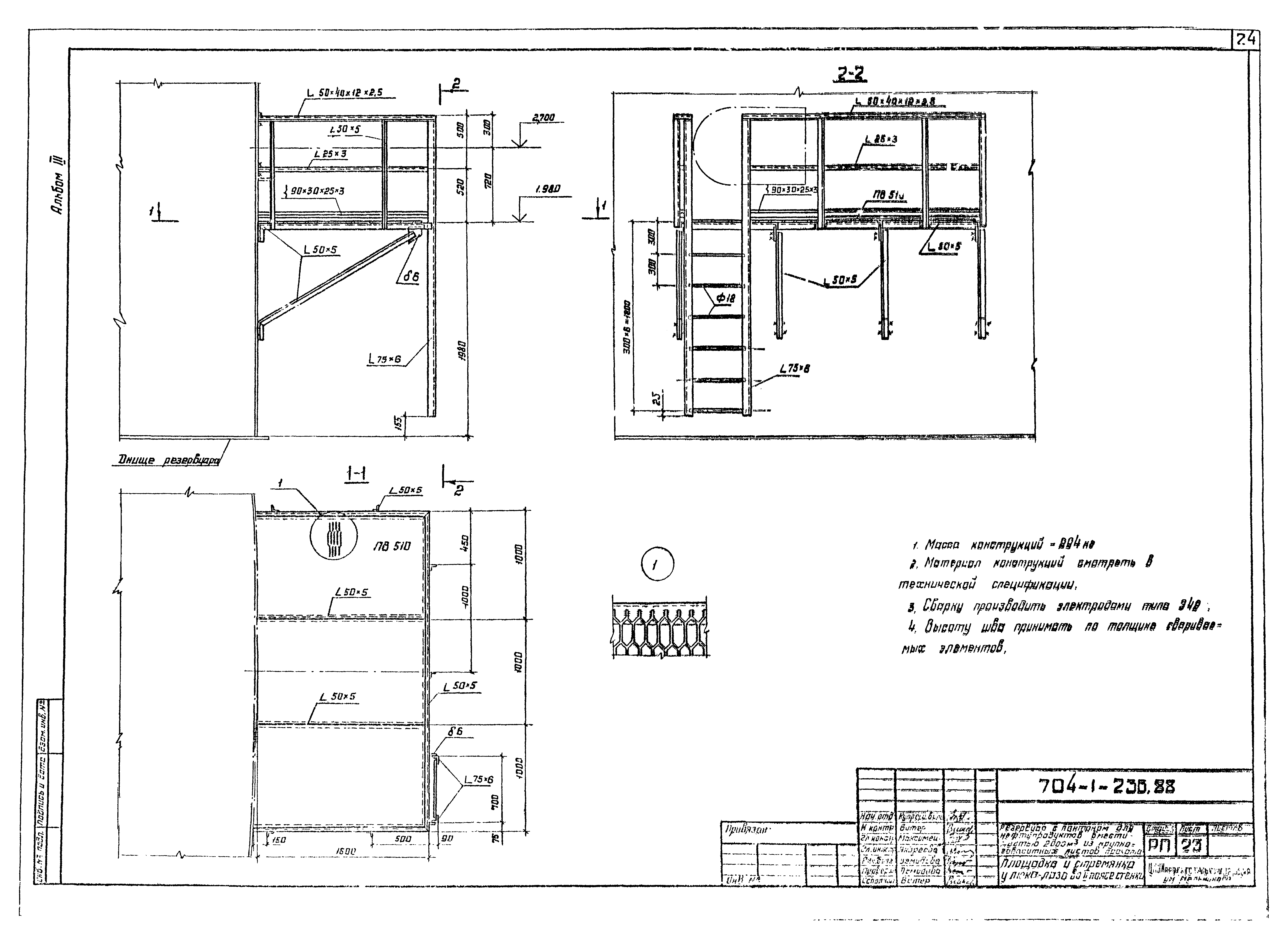
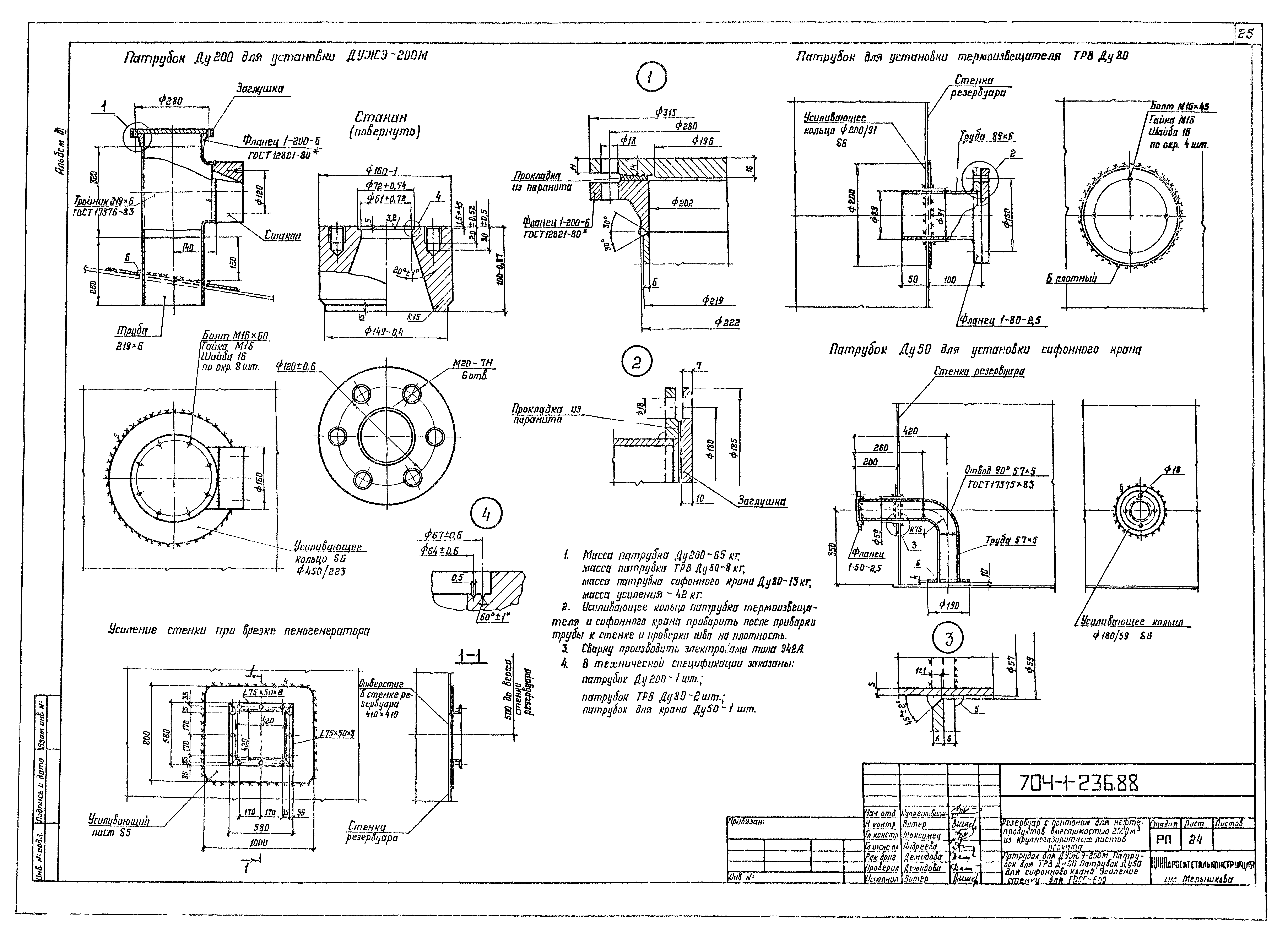
| Оглавление: | ТП 704-1-236.88 Общие данные (начало) ТП 704-1-236.88 Общие данные (окончание) ТП 704-1-236.88 Техническая спецификация стали (начало) ТП 704-1-236.88 Техническая спецификация стали (продолжение) ТП 704-1-236.88 Техническая спецификация стали (окончание) ТП 704-1-236.88 Ведомость металлоконструкций по видам профилей ТП 704-1-236.88 Общий вид ТП 704-1-236.88 Стенка ТП 704-1-236.88 Днище ТП 704-1-236.88 План покрытия. Монтажные узлы ТП 704-1-236.88 Щит покрытия (снег 1.00 кПа) ТП 704-1-236.88 Щит покрытия (снег 1.50 и 3.00 кПа) ТП 704-1-236.88 Покрытие. Центральное кольцо ТП 704-1-236.88 Площадки и ограждения на крыше ТП 704-1-236.88 Люк-лаз Ду 500 в 1 поясе стенке ТП 704-1-236.88 Люк-лаз овальный 600х900 в 1 поясе стенке ТП 704-1-236.88 Люк-лаз овальный 600х900 во 2 поясе стенке ТП 704-1-236.88 Патрубок приемо-раздаточный Ду400 ТП 704-1-236.88 Патрубок приемо-раздаточный Ду250 и патрубок для зачистки Ду150 ТП 704-1-236.88 Патрубки на крыше. Люк световой Ду500 ТП 704-1-236.88 Направляющие понтона ТП 704-1-236.88 Площадка со стремянкой для обслуживания ГПСС-600 ТП 704-1-236.88 Площадка со стремянкой у люка-лаза во 2 поясе стенки ТП 704-1-236.88 Патрубок для ДУЖЭ-200м. Патрубок для ТРВ Ду80. Патрубок Ду50 для сифонного крана. Усиление стенки для ГПСС-600 ТП 704-1-236.88 Исходные данные для проектирования основания и фундаментов |
| Разработан: | ЦНИИпроектстальконструкция |
| Утверждён: | 06.10.1988 Миннефтепром (Minnefteprom 180-"Э") |


























