Скачать Типовой проект 902-1-134.88 Альбом II. Технологические решения. Отопление и вентиляция. Внутренний водопровод и канализация. Архитектурные решения. Конструкции железобетонные и металлическиеДата актуализации: 01.01.2021
|
| Обозначение: | Типовой проект 902-1-134.88 |
| Обозначение англ: | 902-1-134.88 |
| Статус: | не определен законодательством |
| Название рус.: | Альбом II. Технологические решения. Отопление и вентиляция. Внутренний водопровод и канализация. Архитектурные решения. Конструкции железобетонные и металлические |
| Дата добавления в базу: | 01.09.2013 |
| Дата актуализации: | 01.01.2021 |
| Дата введения: | 01.09.1988 |
| Дата окончания срока действия: | 30.06.2003 |
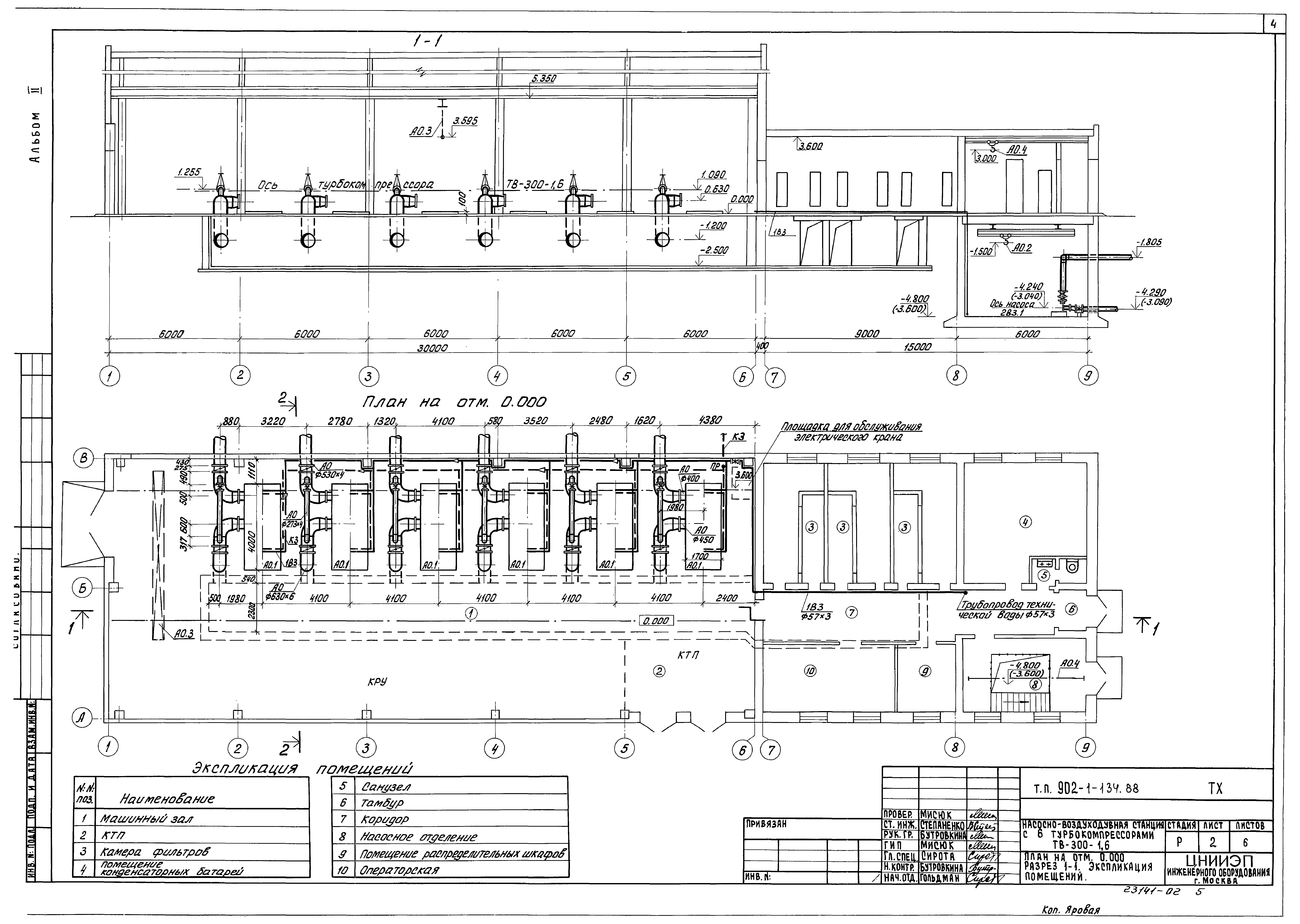
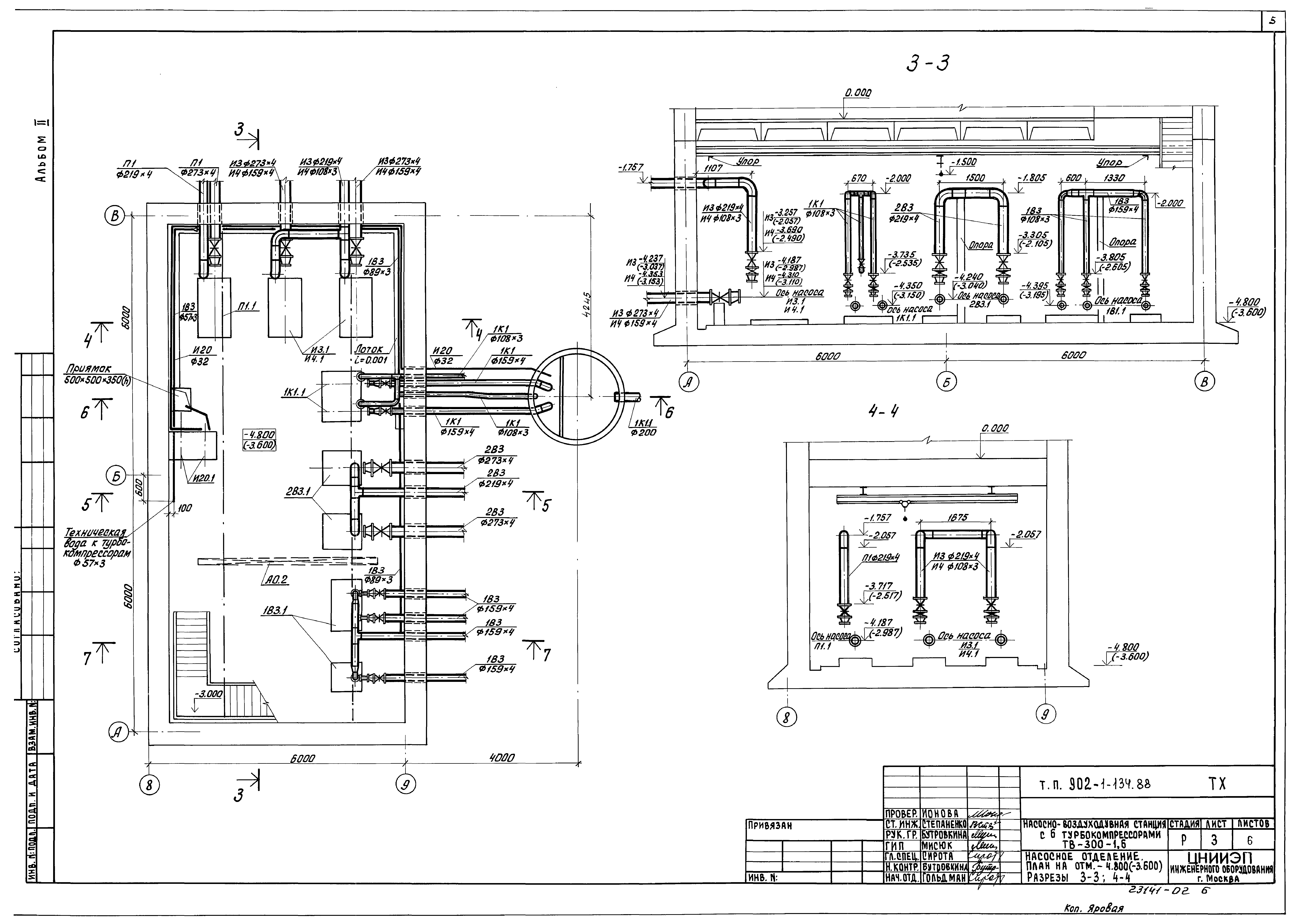
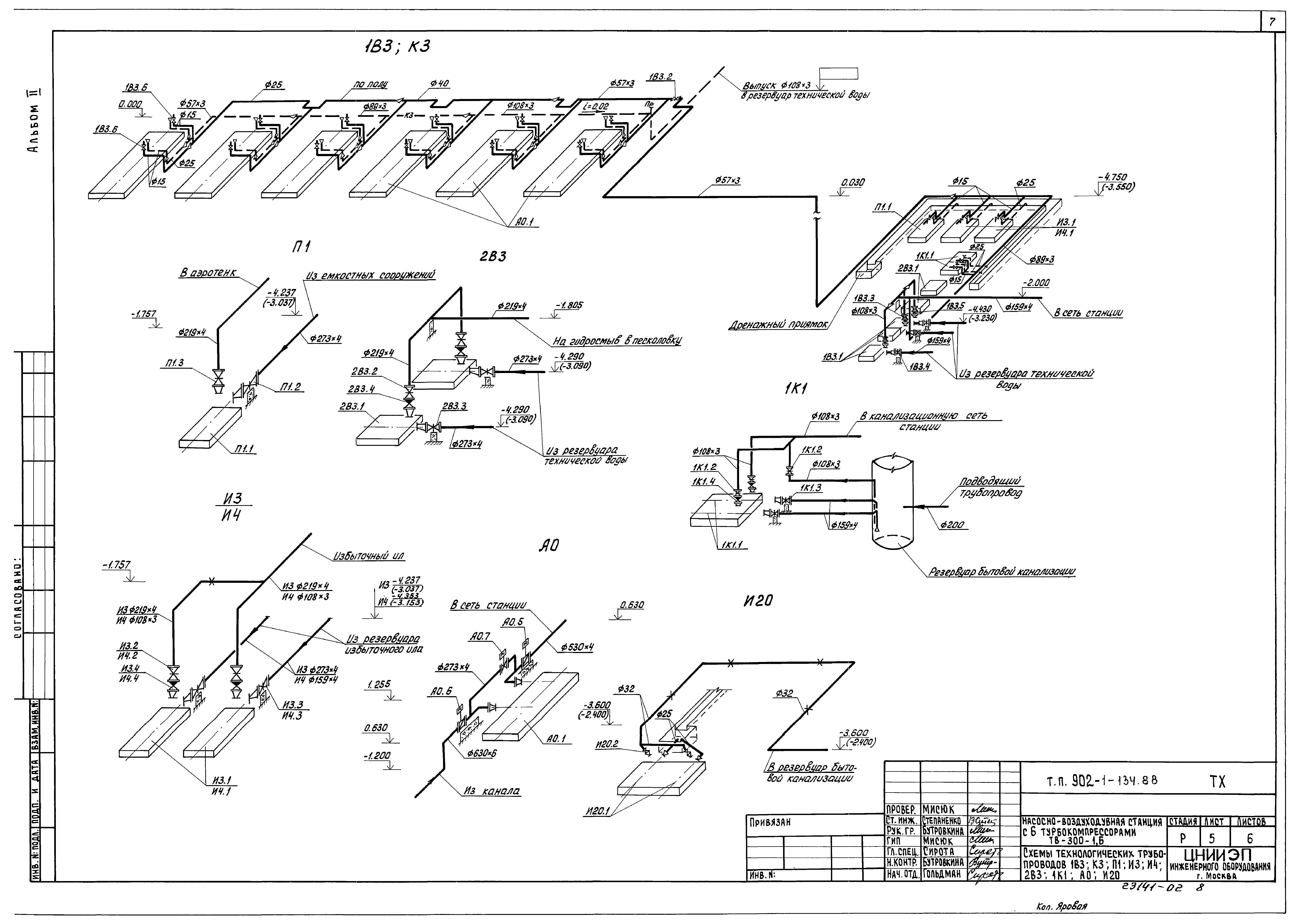
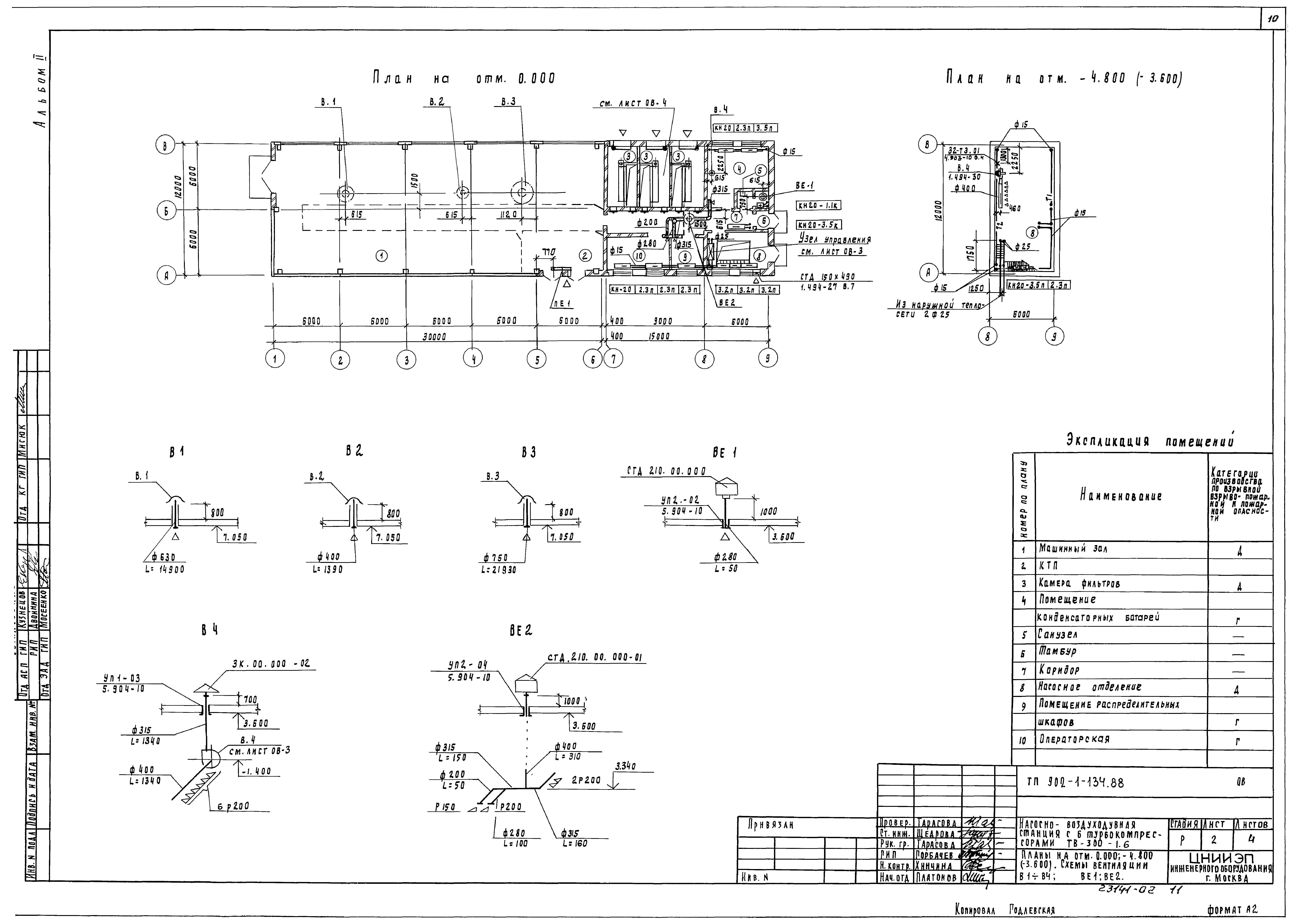
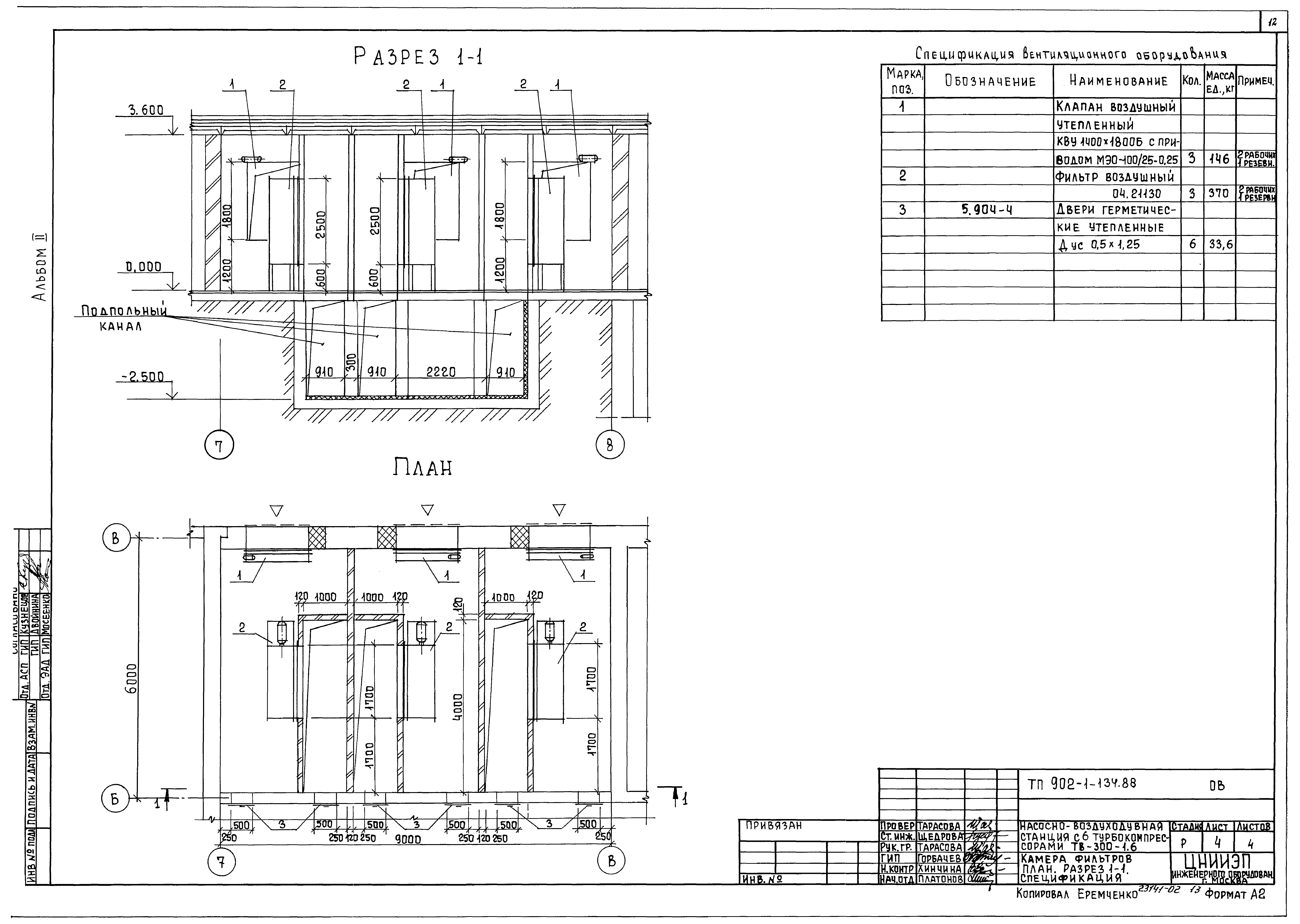
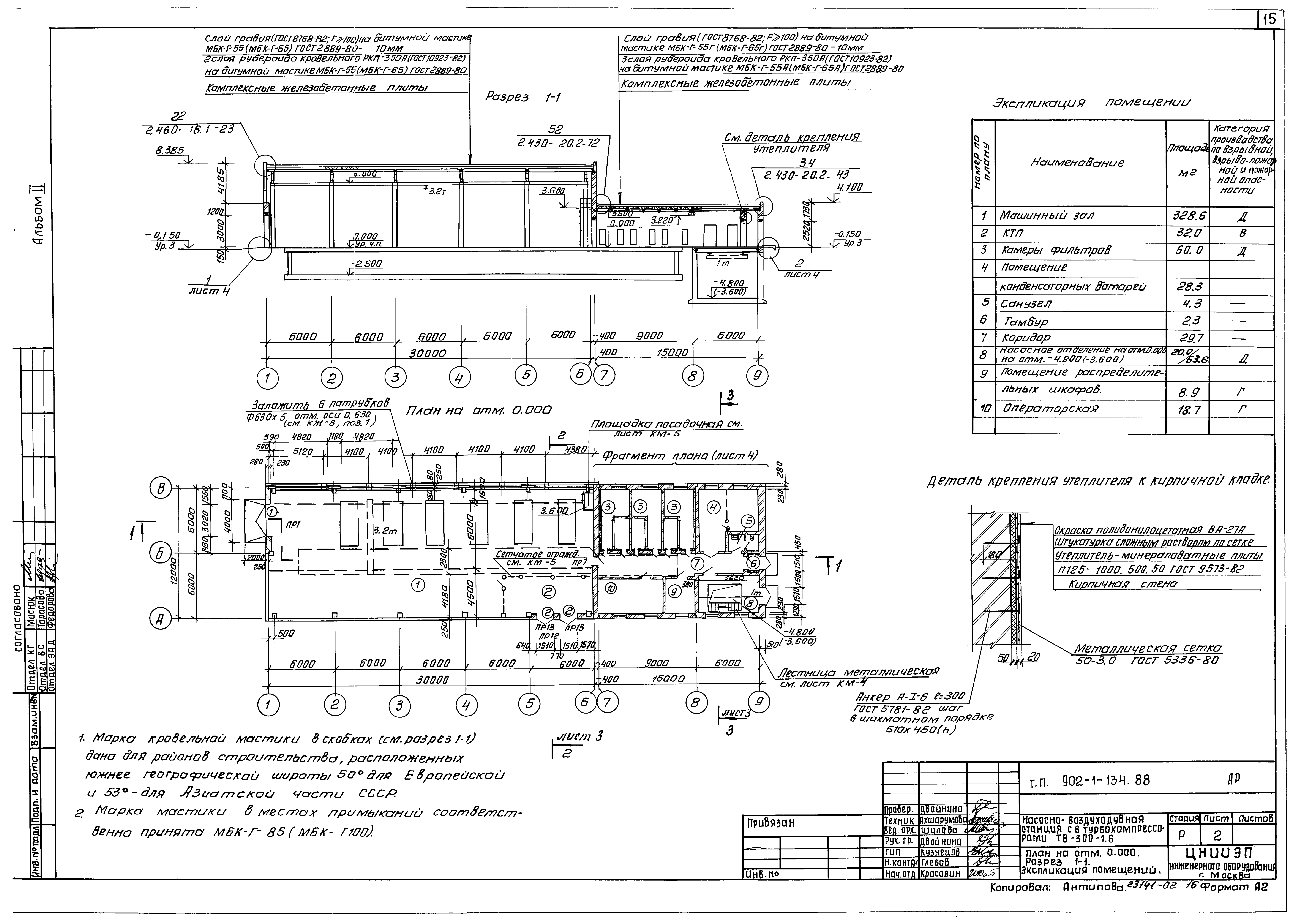
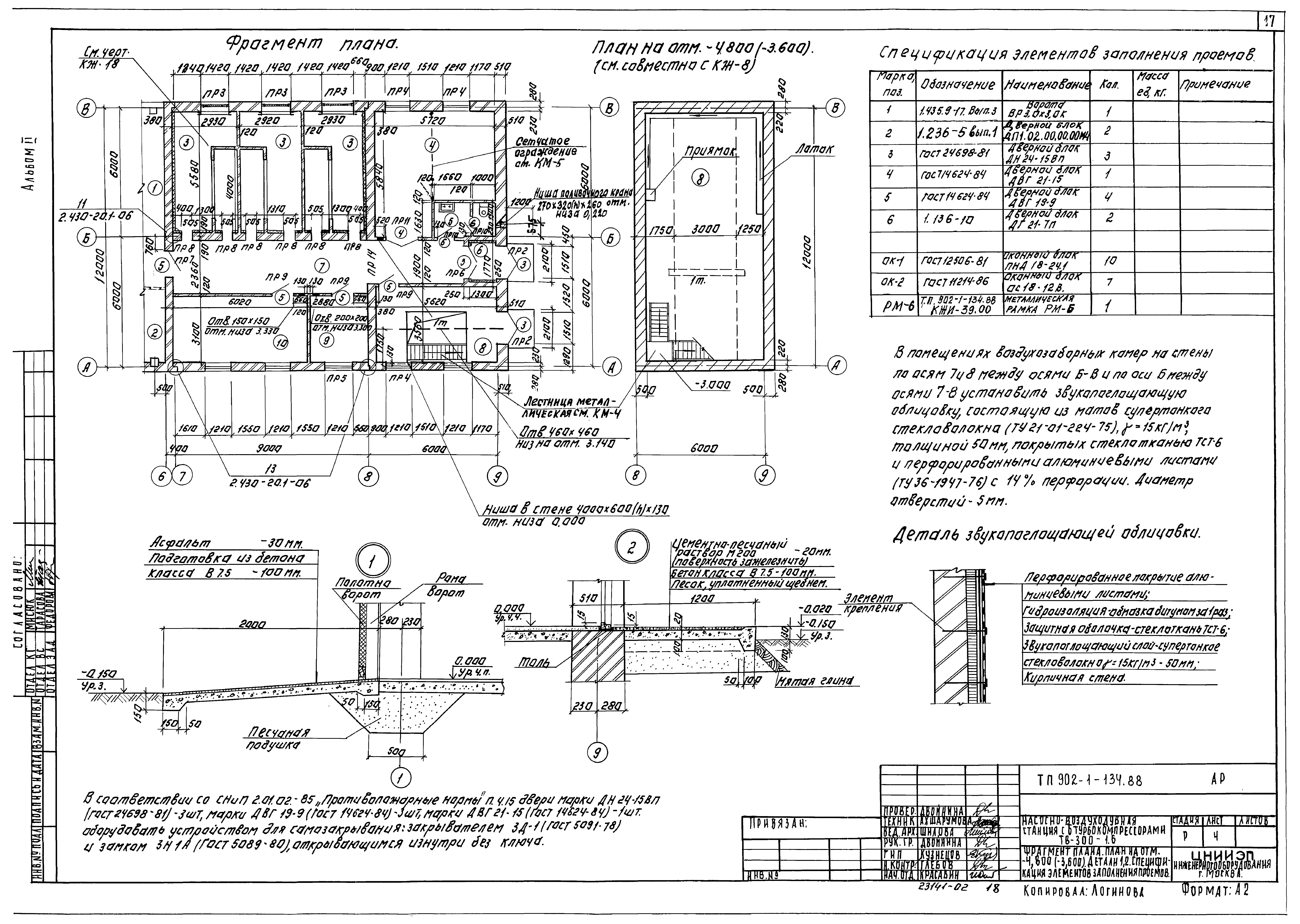
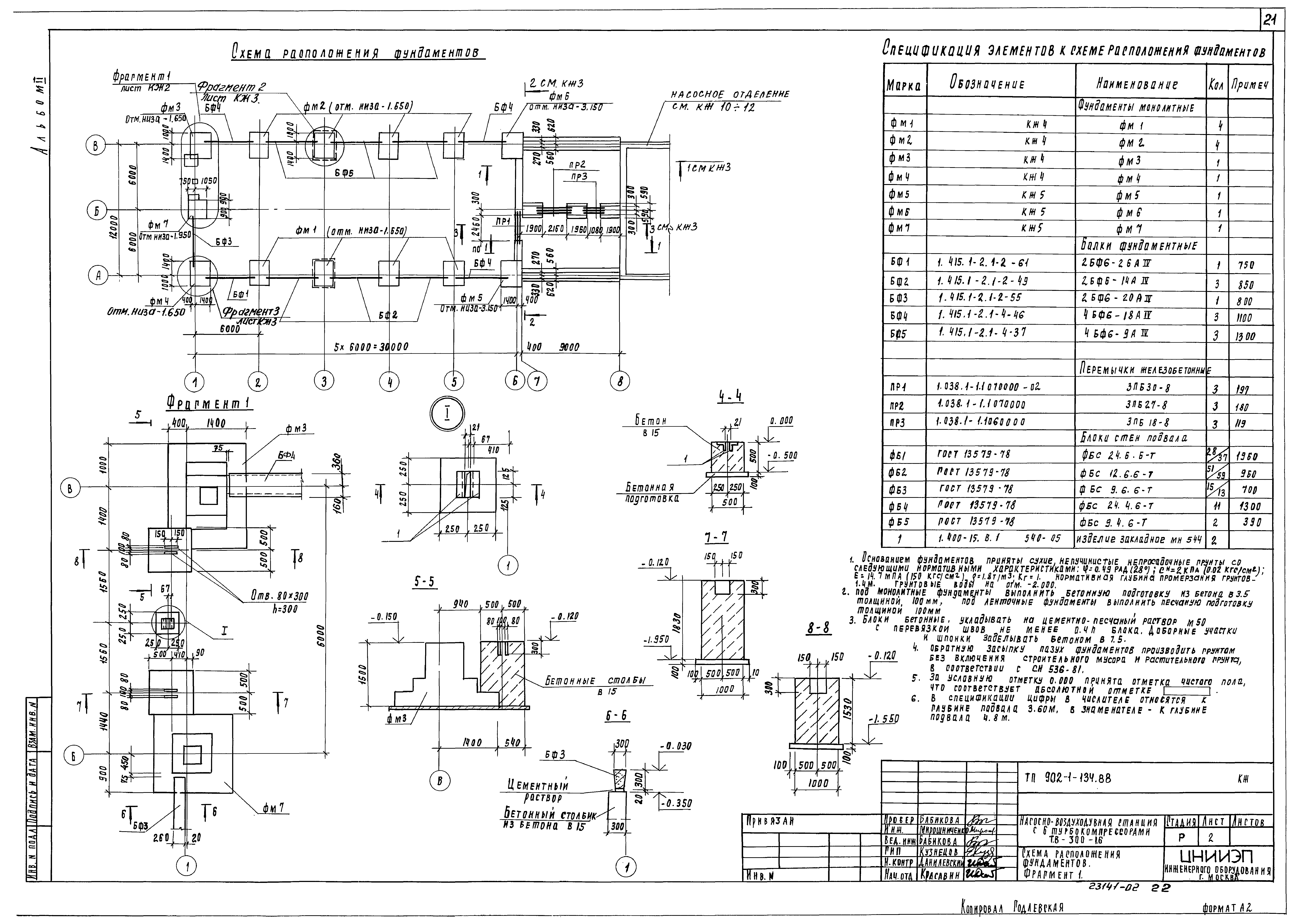
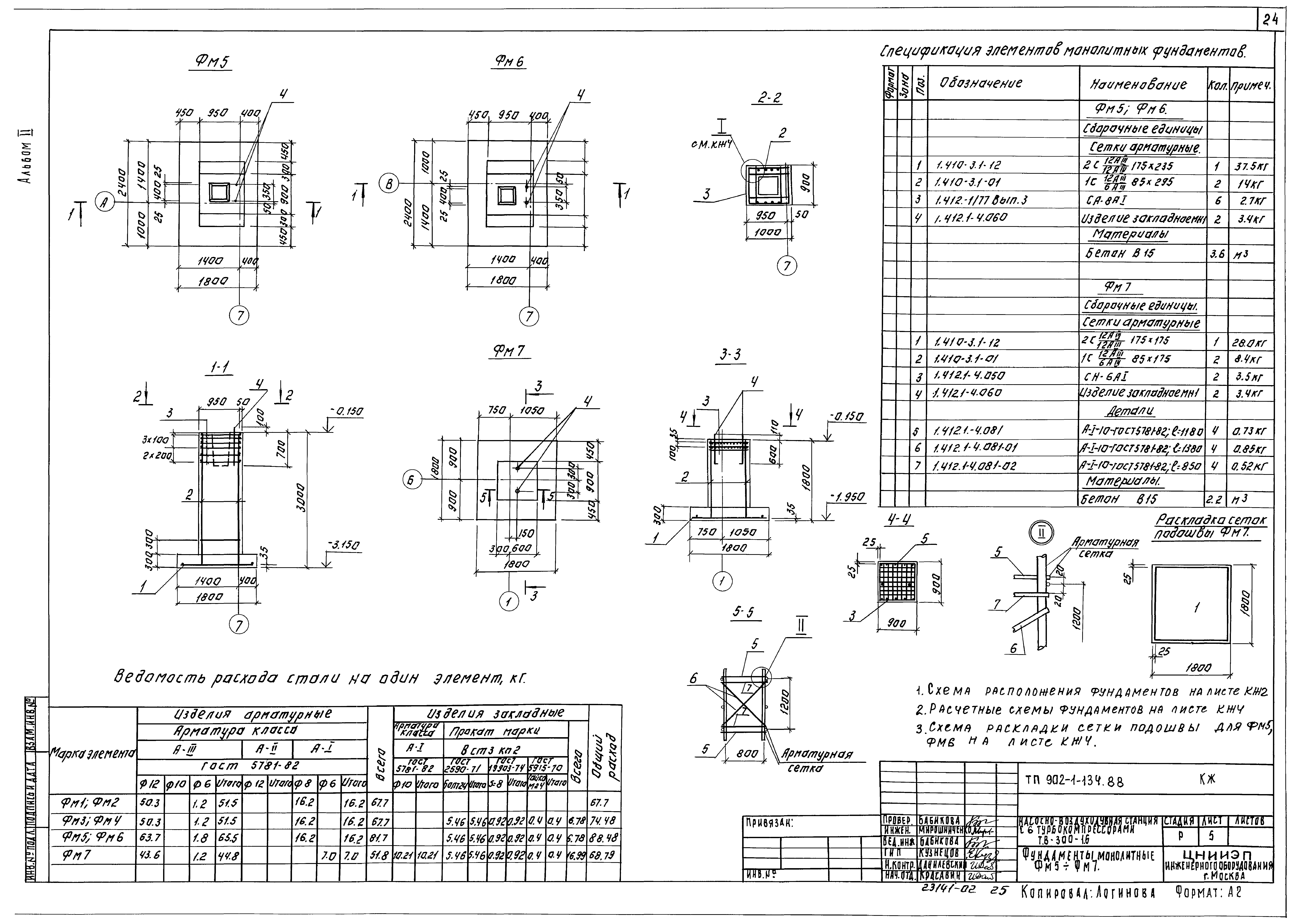
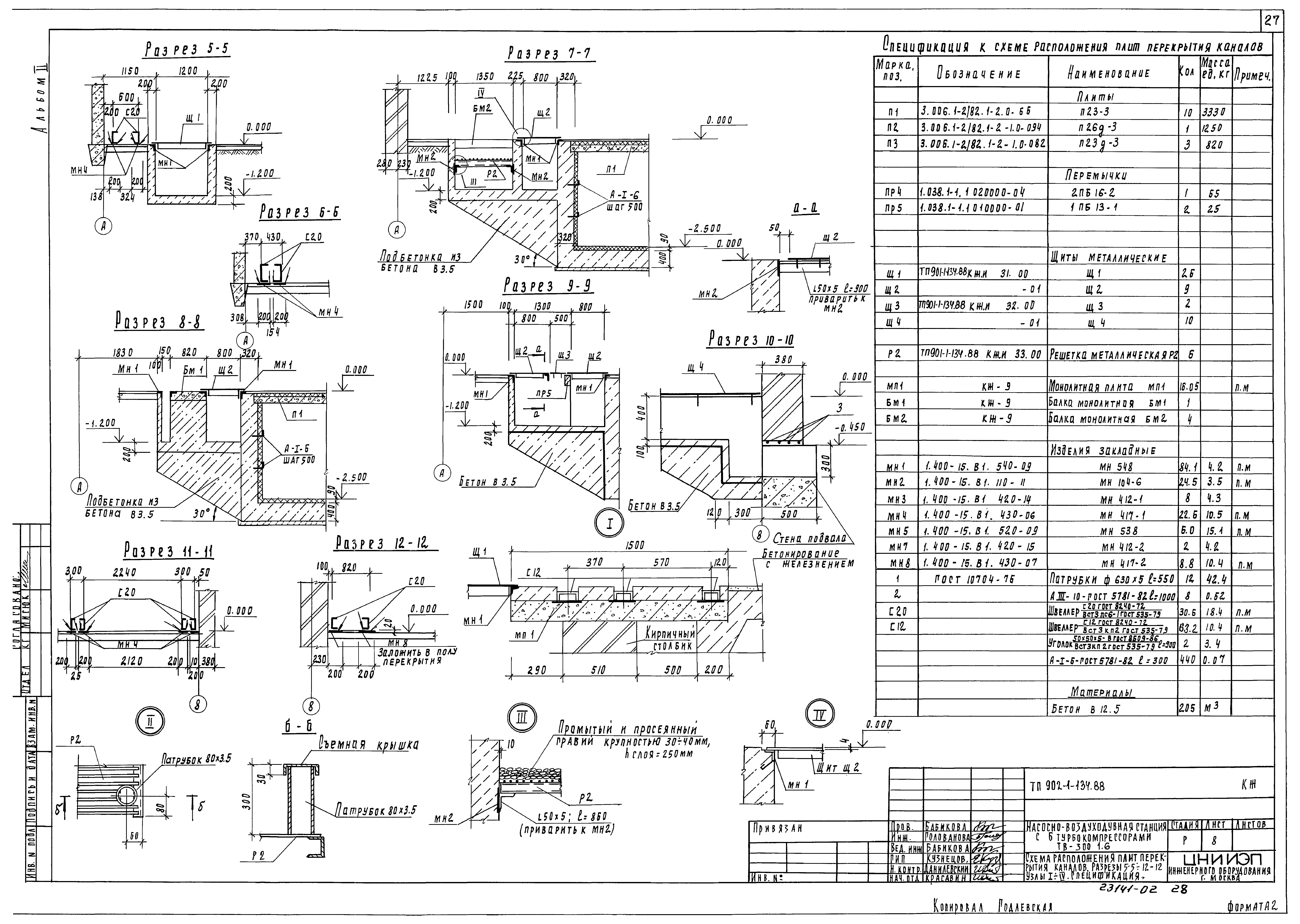
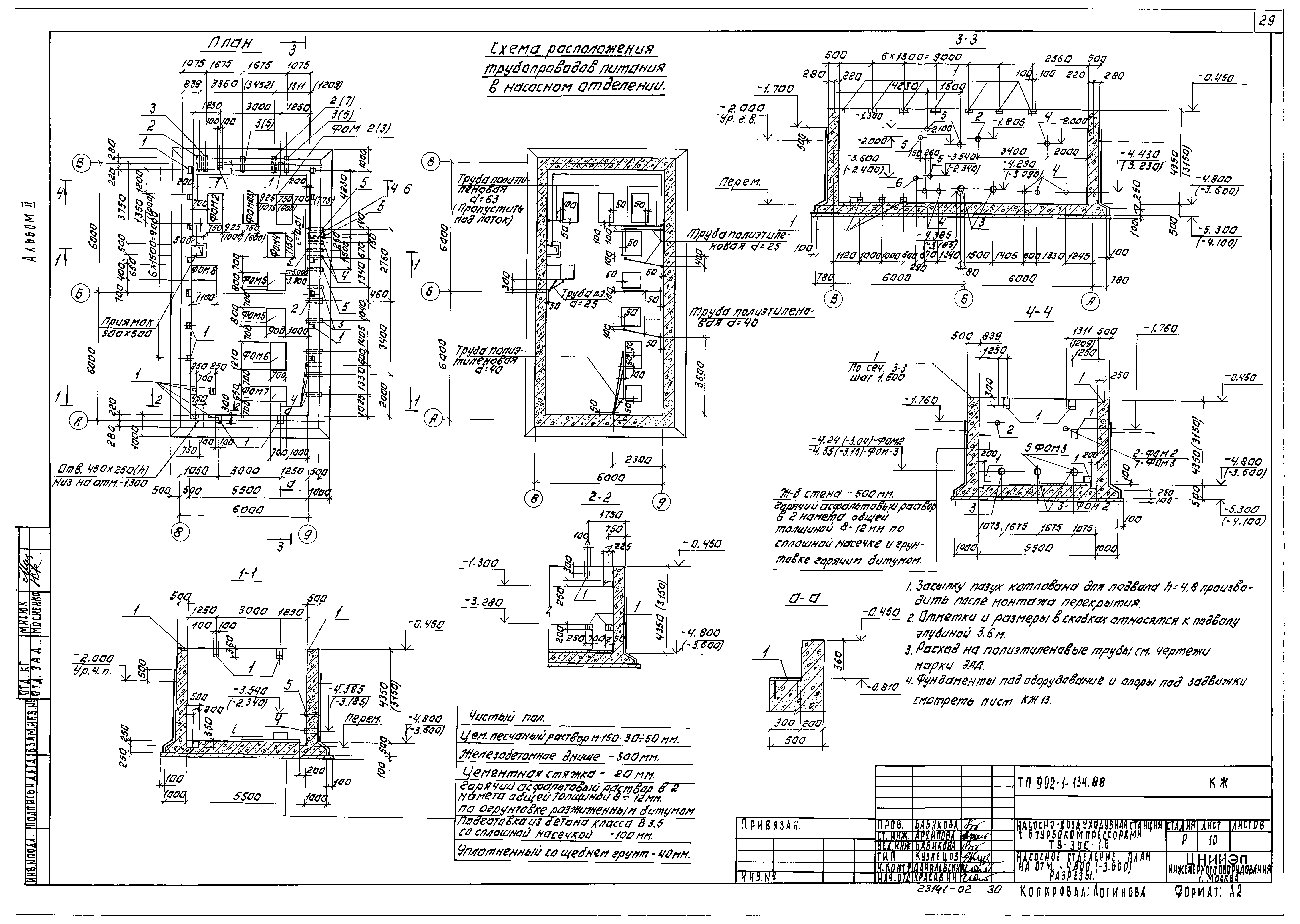
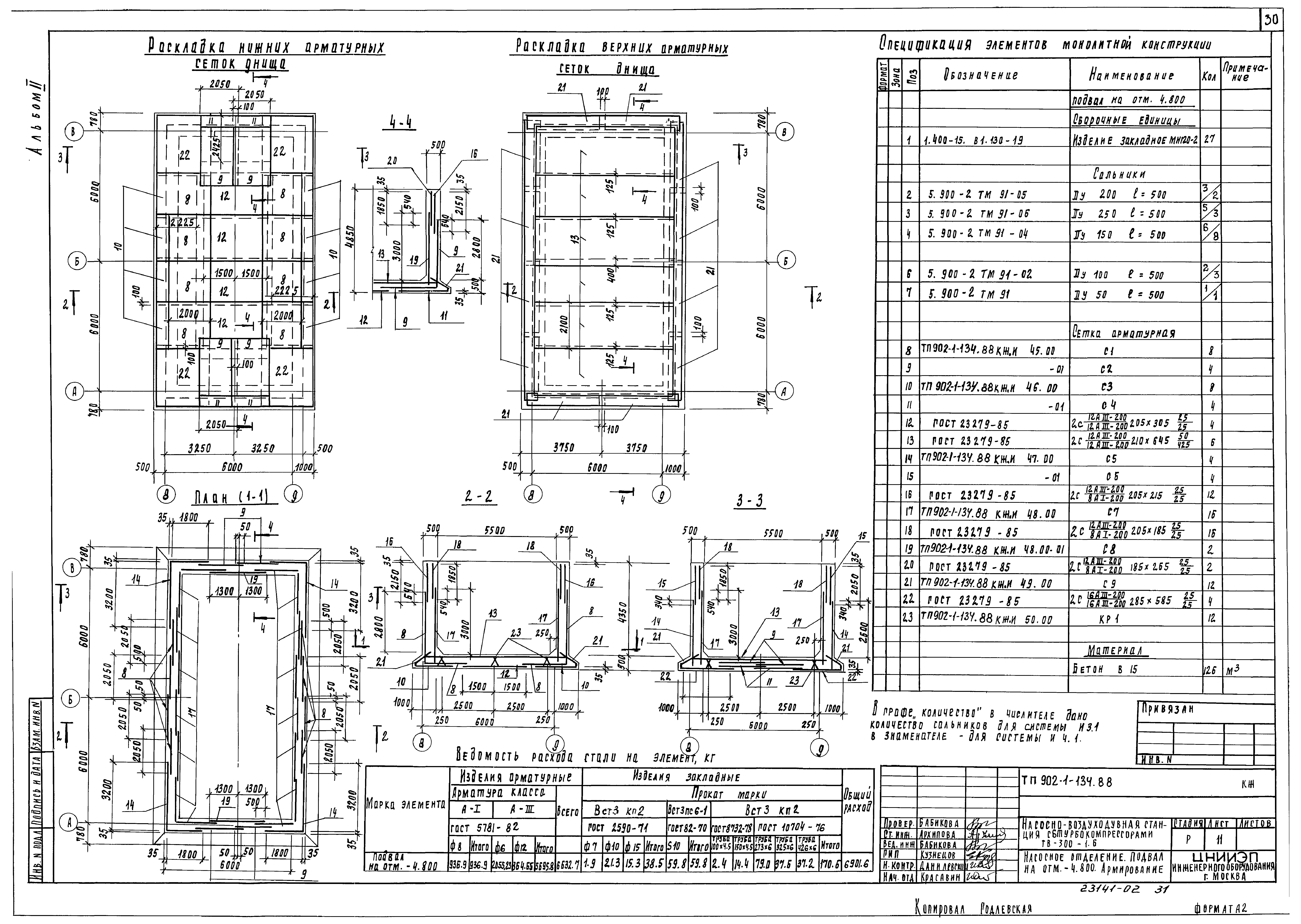
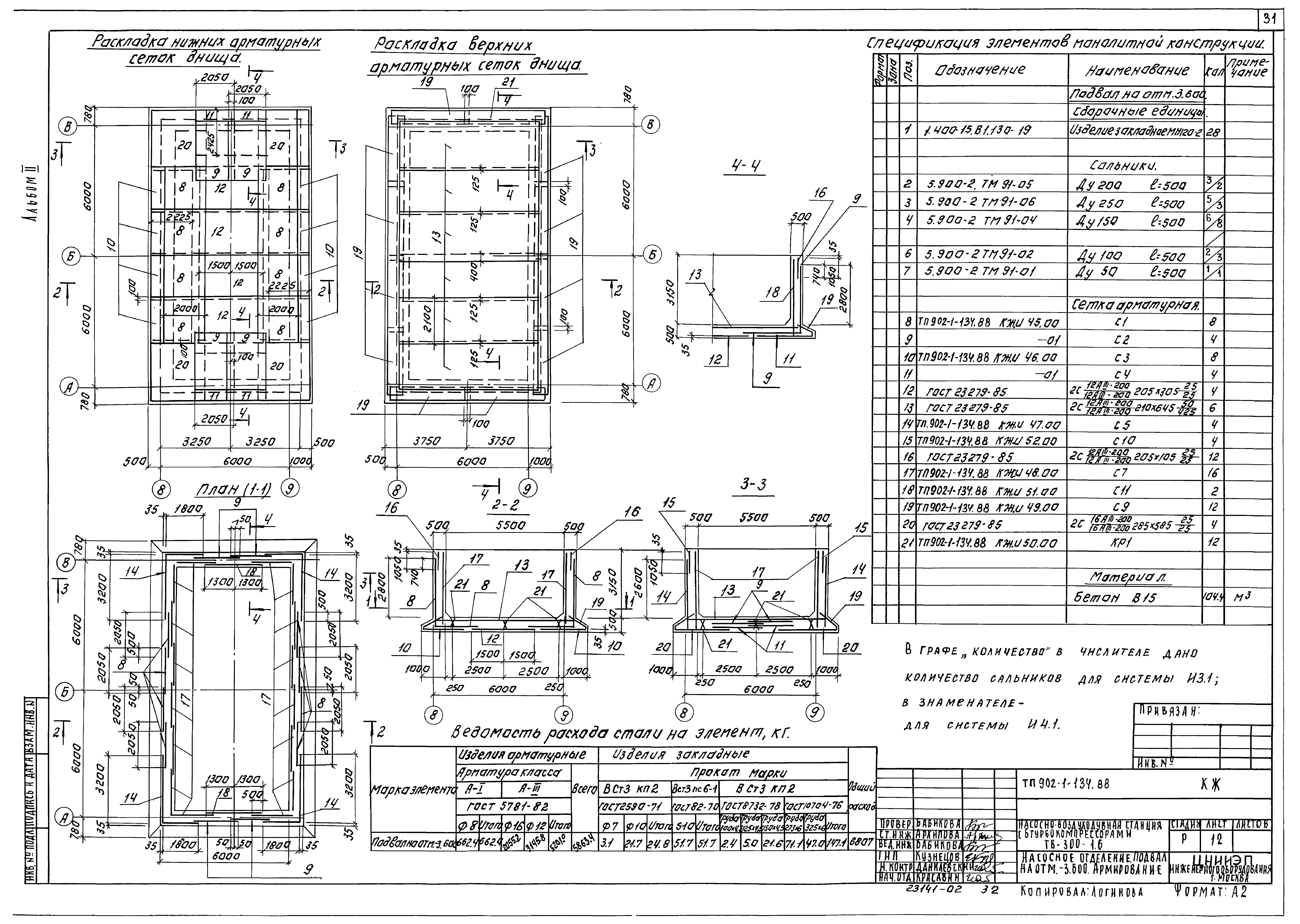
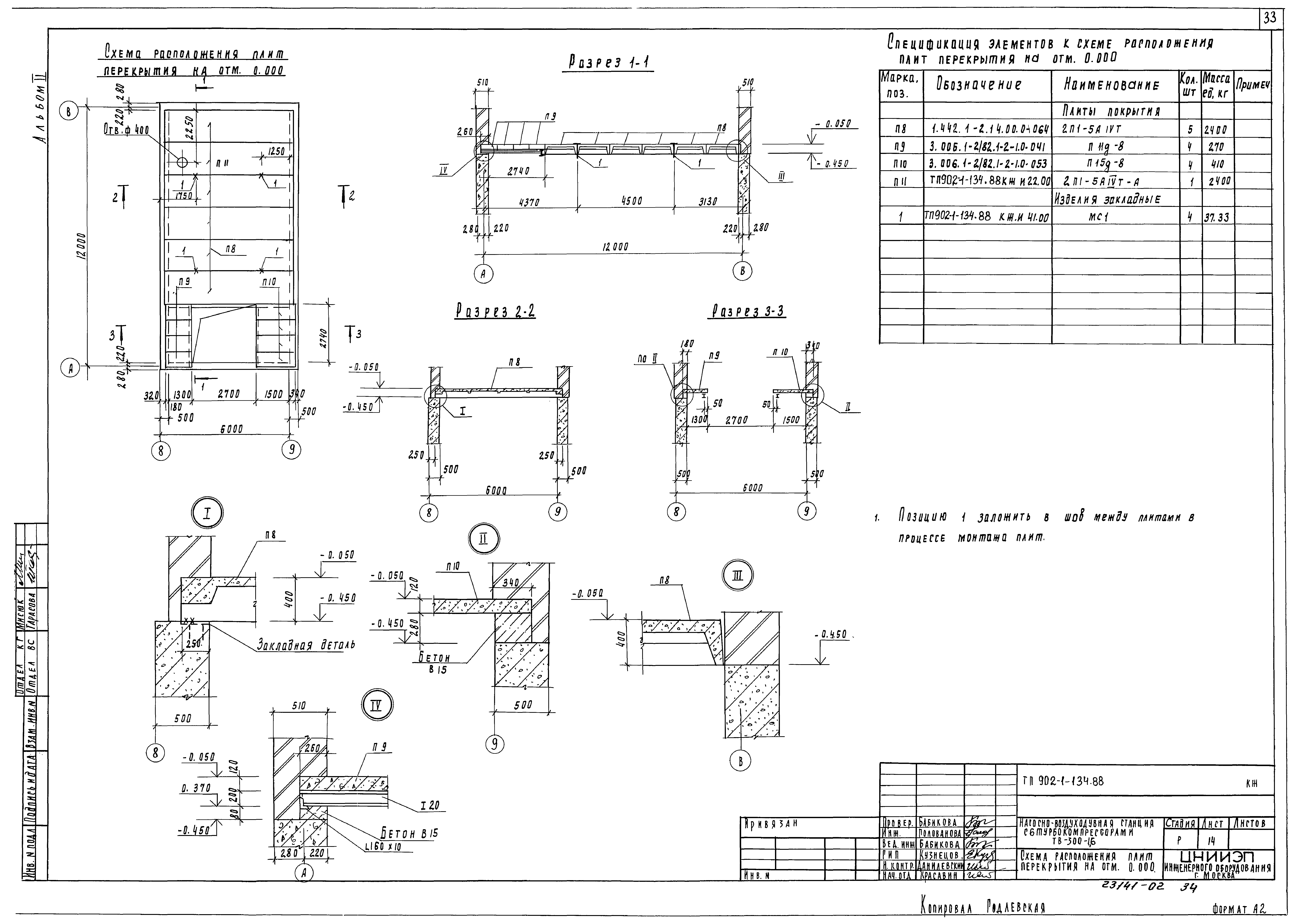
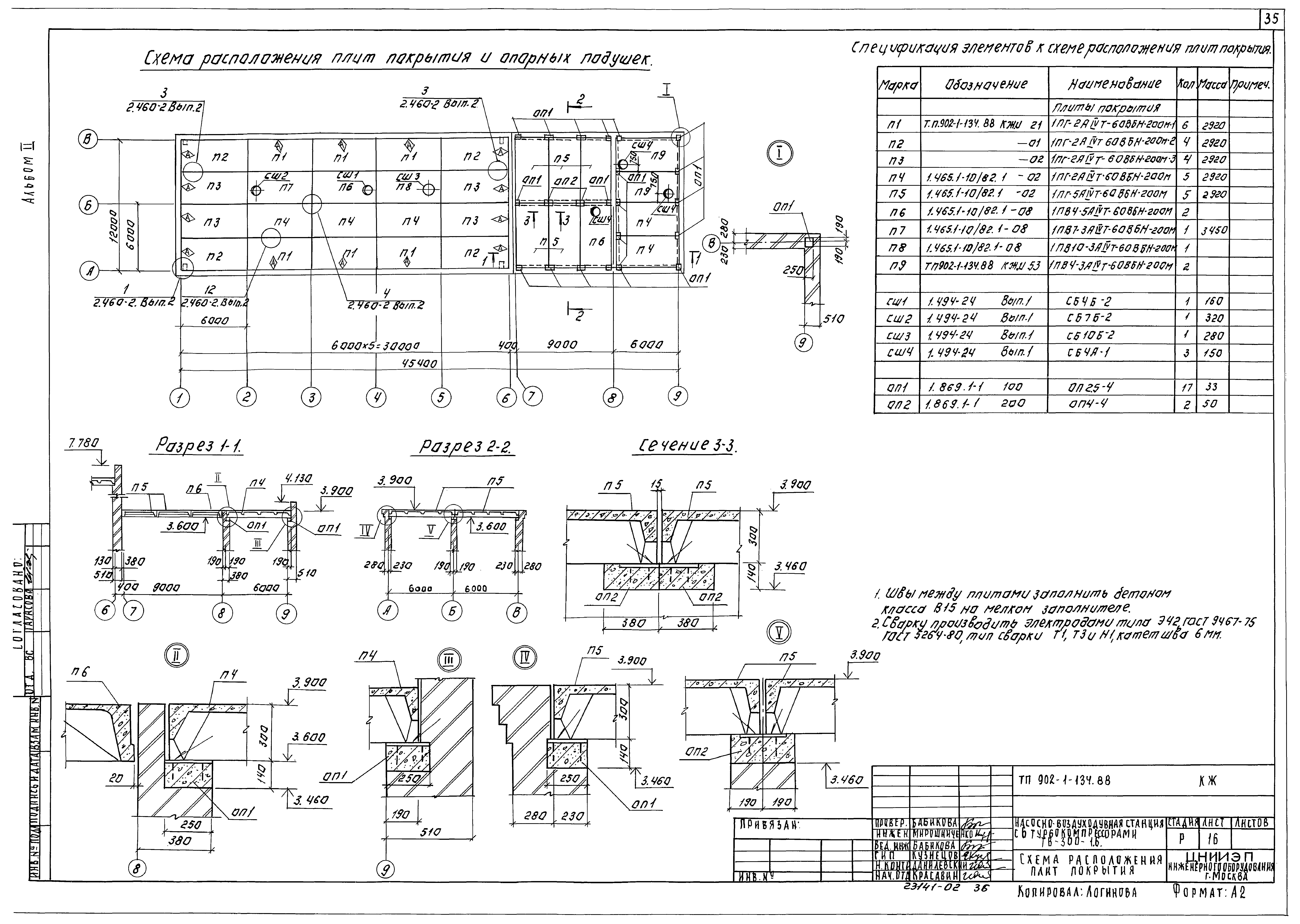
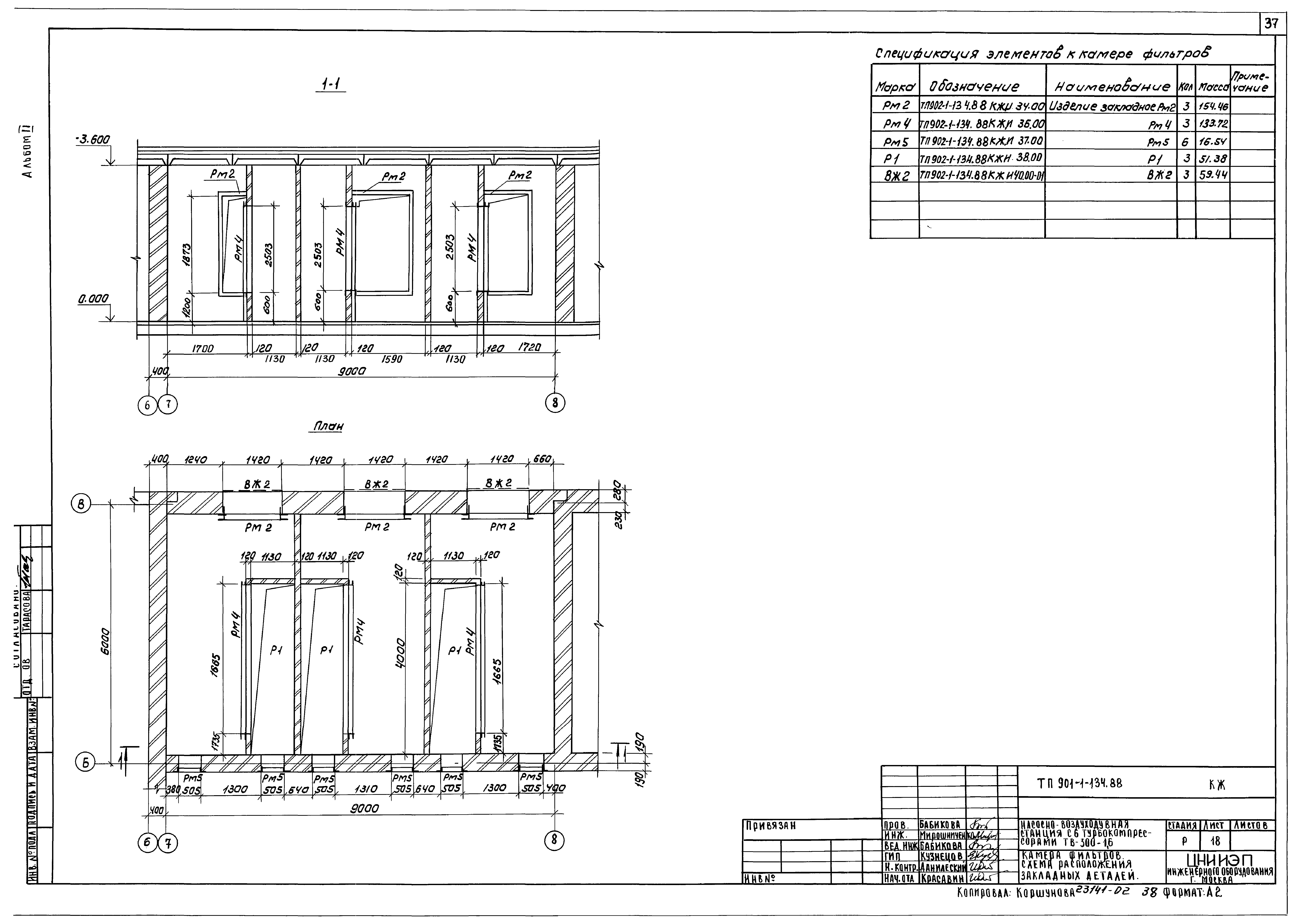
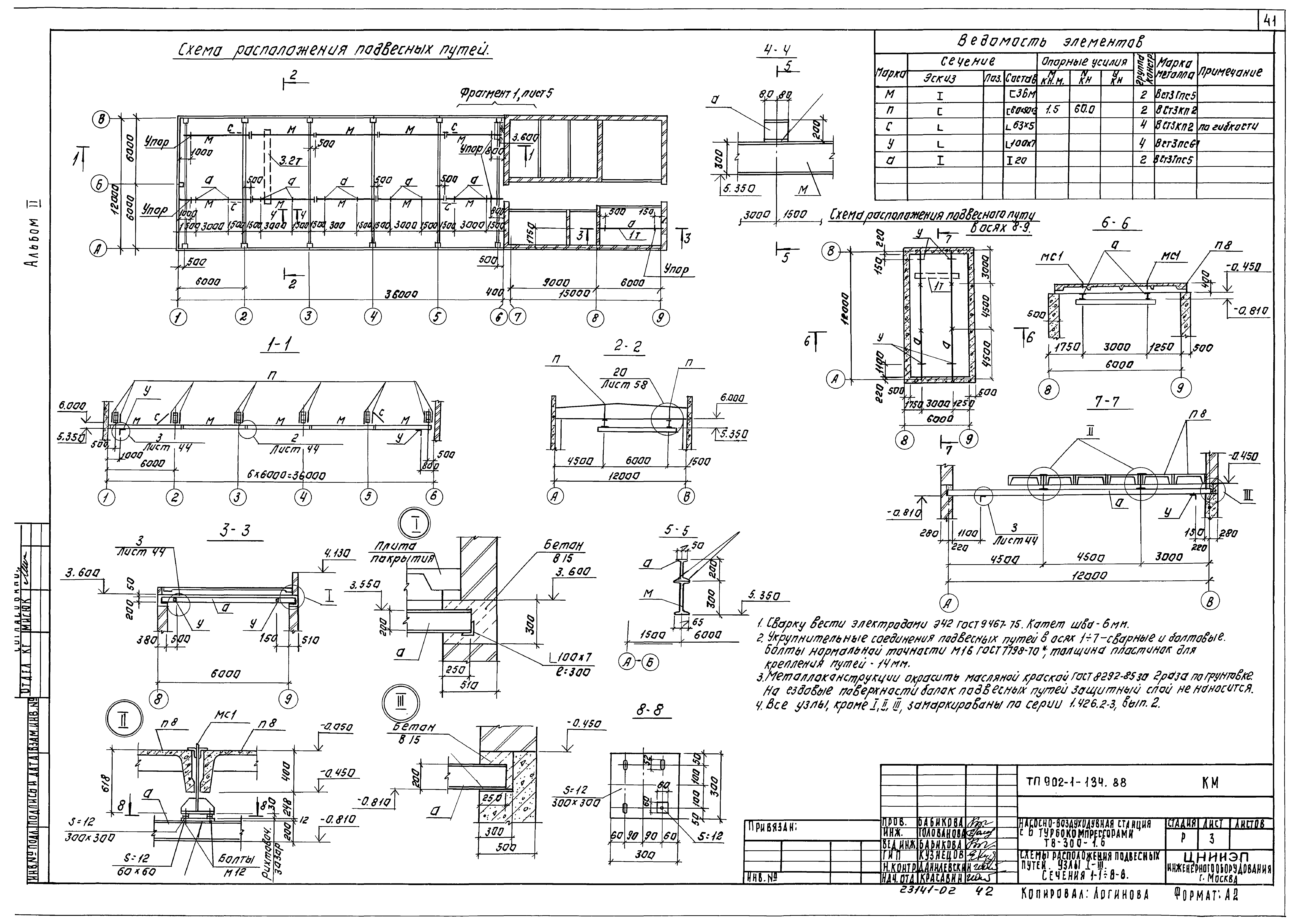
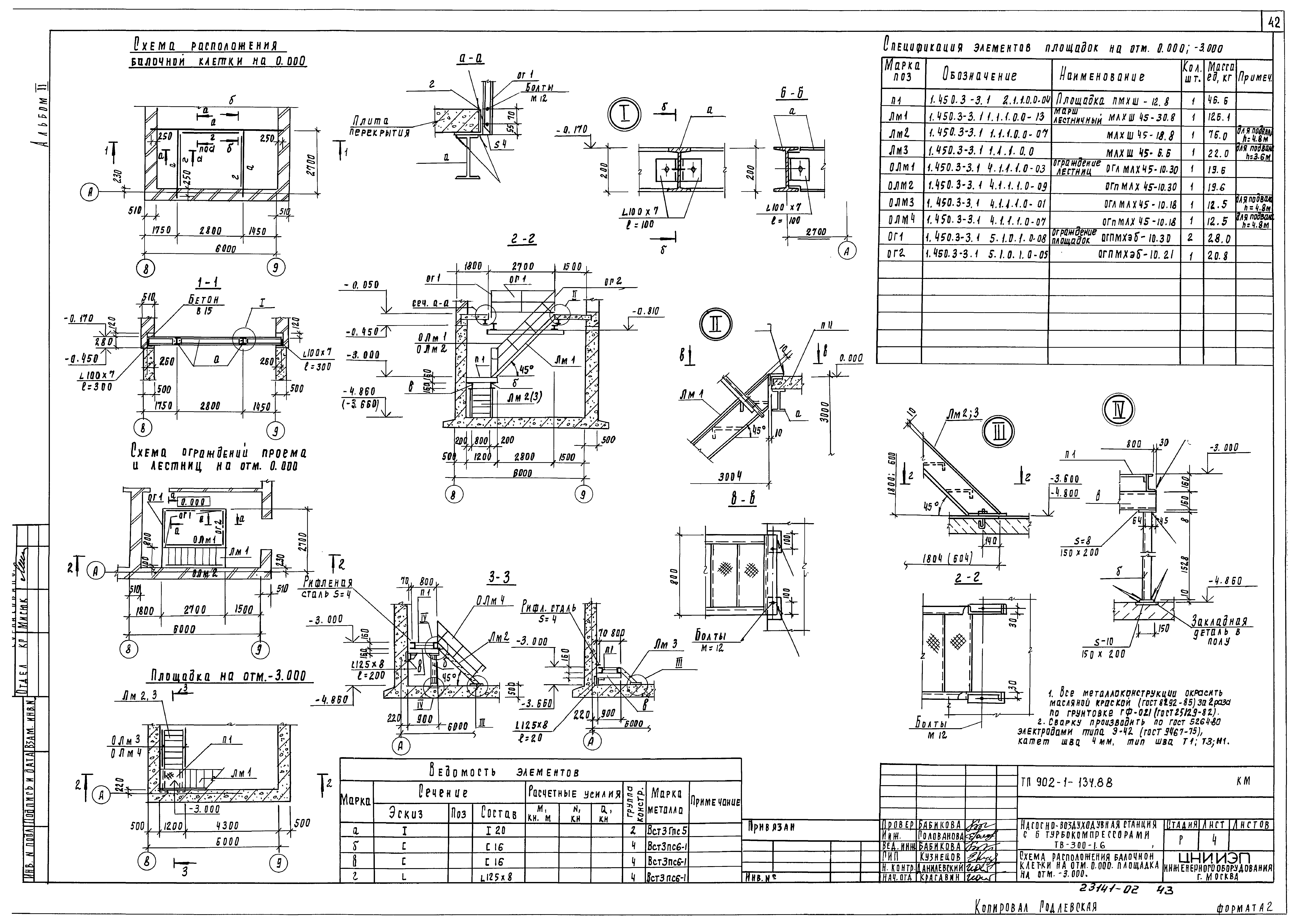
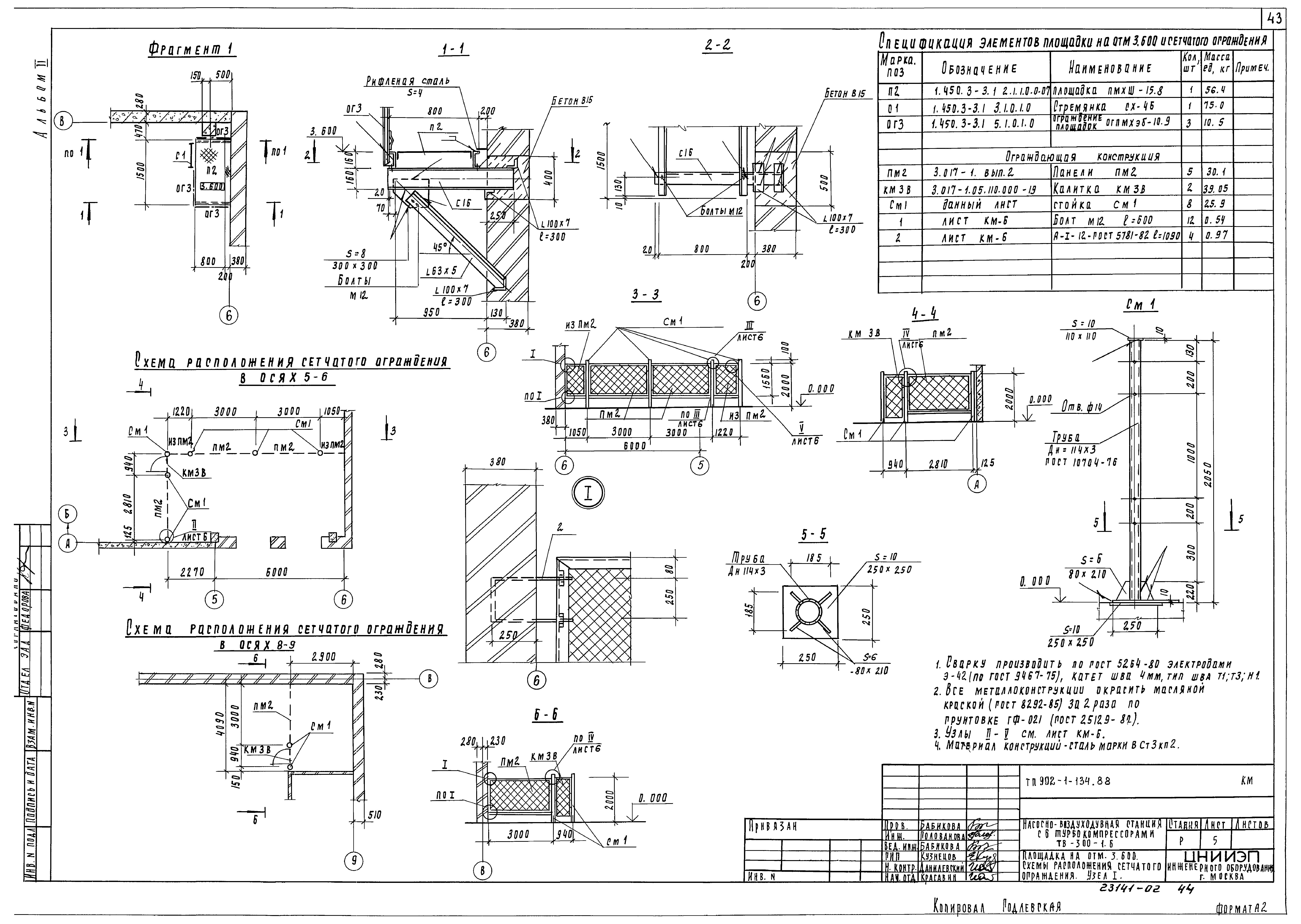
| Оглавление: | Содержание альбома Технологические решения Общие данные План на отм. 0.000. Разрез 1-1. Экспликация помещений Насосное отделение. План на отм. - 4.800 (- 3.600). Разрезы 3-3, 4-4 Разрезы 5-5, 6-6, 7-7, 2-2 Схемы технологических трубопроводов 1В3, К3, П1, И3, И4, 2В3, 1К1, А0, И20 Установка турбокомпрессора ТВ-300-1,6м-02 с электродвигателем А30450 ZВ-2У1 Отопление и вентиляция Общие данные План на отм. 0.000; - 4.800 (- 3.600). Схемы вентиляции В1 - В4; ВЕ1; ВЕ-2 Установка системы В-4. План. Разрез 1-1. Узел управления. Схема системы отопления. Спецификация Камера фильтров. План. Разрез 1-1. Спецификация Внутренний водопровод и канализация Общие данные. Внутренний водопровод и канализация. Планы на отм. 0.000; - 4.800 (- 3.600). Схемы В1, 2К1 Архитектурно-строительные решения Общие данные План на отм. 0.000. Разрез 1-1. Экспликация помещений Фасады А - В; В - А; 1 - 9; 9 - 1. Разрезы 2-2, 3-3. Схемы заполнения оконных проемов Фрагмент плана. План на отм. - 4.800 (- 3.600). Детали 1, 2. Спецификация элементов заполнения проемов Ведомости проемов ворот и дверей, перемычек, отделки помещений. Спецификация перемычек План кровли. Планы полов на отм. 0.000; - 4.800 (- 3.600). Экспликация полов Конструкции железобетонные Общие данные Схема расположения фундаментов. Фрагмент 1 Схема расположения фундаментов. Разрезы 1-1 - 3-3 Фундаменты монолитные ФМ1 - ФМ4 Фундаменты монолитные ФМ5 - ФМ7 Схема расположения каналов, приямков и фундаментов под оборудование. Разрез 1-1 Схема расположения плит перекрытия каналов. Разрезы 2-2 - 4-4 Схема расположения плит перекрытия каналов. Разрезы 5-5 - 12-12. Узлы I - IV. Спецификация Балки БМ1 и БМ2. Плита МП1. Опалубка. Армирование Насосное отделение. План на отм. - 4.800 (- 3.600). Разрезы Насосное отделение. Подвал на отм. - 4.800. Армирование Насосное отделение. Подвал на отм. - 3.600. Армирование Фундаменты под оборудование ФОм1 - ФОм8 Схема расположения плит перекрытия на отм. 0.000 Схема расположения колонн, балок покрытия. Разрезы Схема расположения плит покрытия Схема расположения стеновых панелей Камера фильтров. Схема расположения закладных деталей Схема расположения элементов резервуара бытовой канализации Конструкции металлические Общие данные. Ведомость металлоконструкций по видам профилей Техническая спецификация металла Схемы расположения подвесных путей. Узлы I - III. Сечения 1-1 - 8-8 Схема расположения балочной клетки на отм. 0.000. Площадка на отм. - 3.000 Площадка на отм. - 3.600. Схема расположения сетчатого ограждения. Узел I Схема расположения сетчатого ограждения. Узлы II - V Организация строительства График производства работ Схема стройгенплана |
| Разработан: | ЦНИИЭП |
| Утверждён: | 15.03.1988 Госкомархитектура (68) |
| Заменяет собой: |
|















































