Скачать Типовой проект 902-1-135.88 Альбом II. Технологические решения. Отопление и вентиляция. Внутренний водопровод и канализация. Архитектурные решения. Конструкции железобетонные и металлическиеДата актуализации: 01.01.2021
|
| Обозначение: | Типовой проект 902-1-135.88 |
| Обозначение англ: | 902-1-135.88 |
| Статус: | не определен законодательством |
| Название рус.: | Альбом II. Технологические решения. Отопление и вентиляция. Внутренний водопровод и канализация. Архитектурные решения. Конструкции железобетонные и металлические |
| Дата добавления в базу: | 01.09.2013 |
| Дата актуализации: | 01.01.2021 |
| Дата введения: | 01.09.1988 |
| Дата окончания срока действия: | 30.06.2003 |
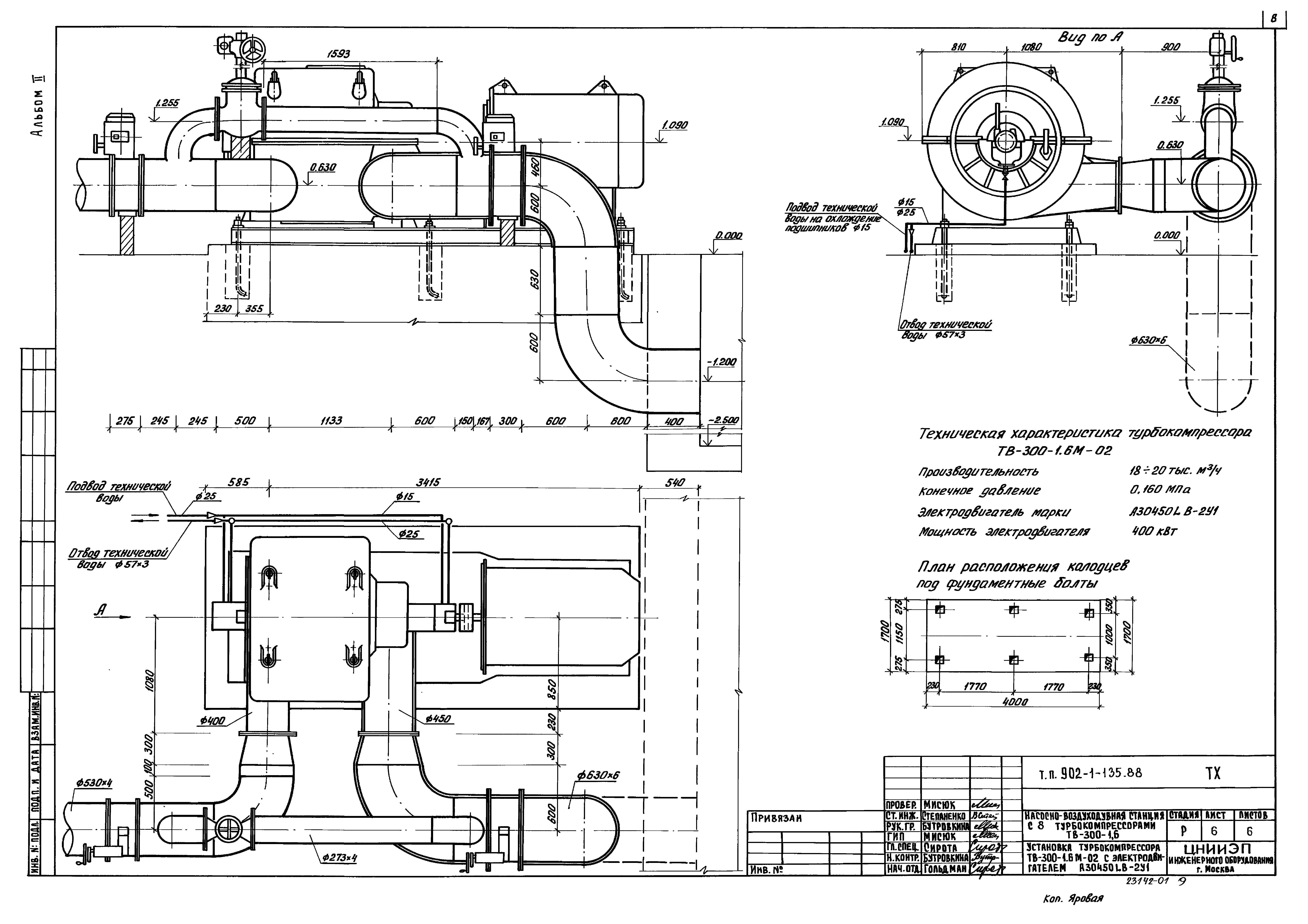
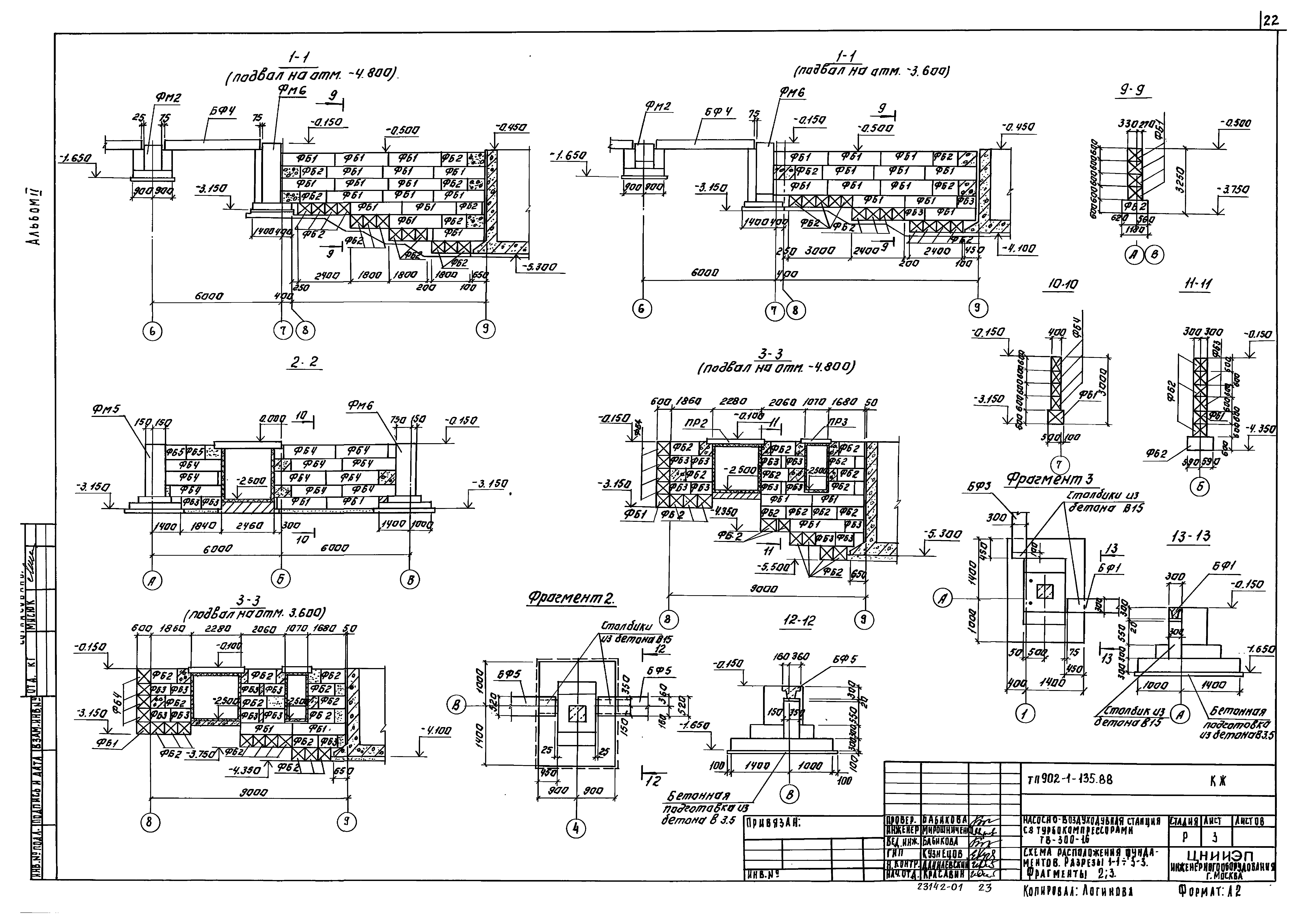
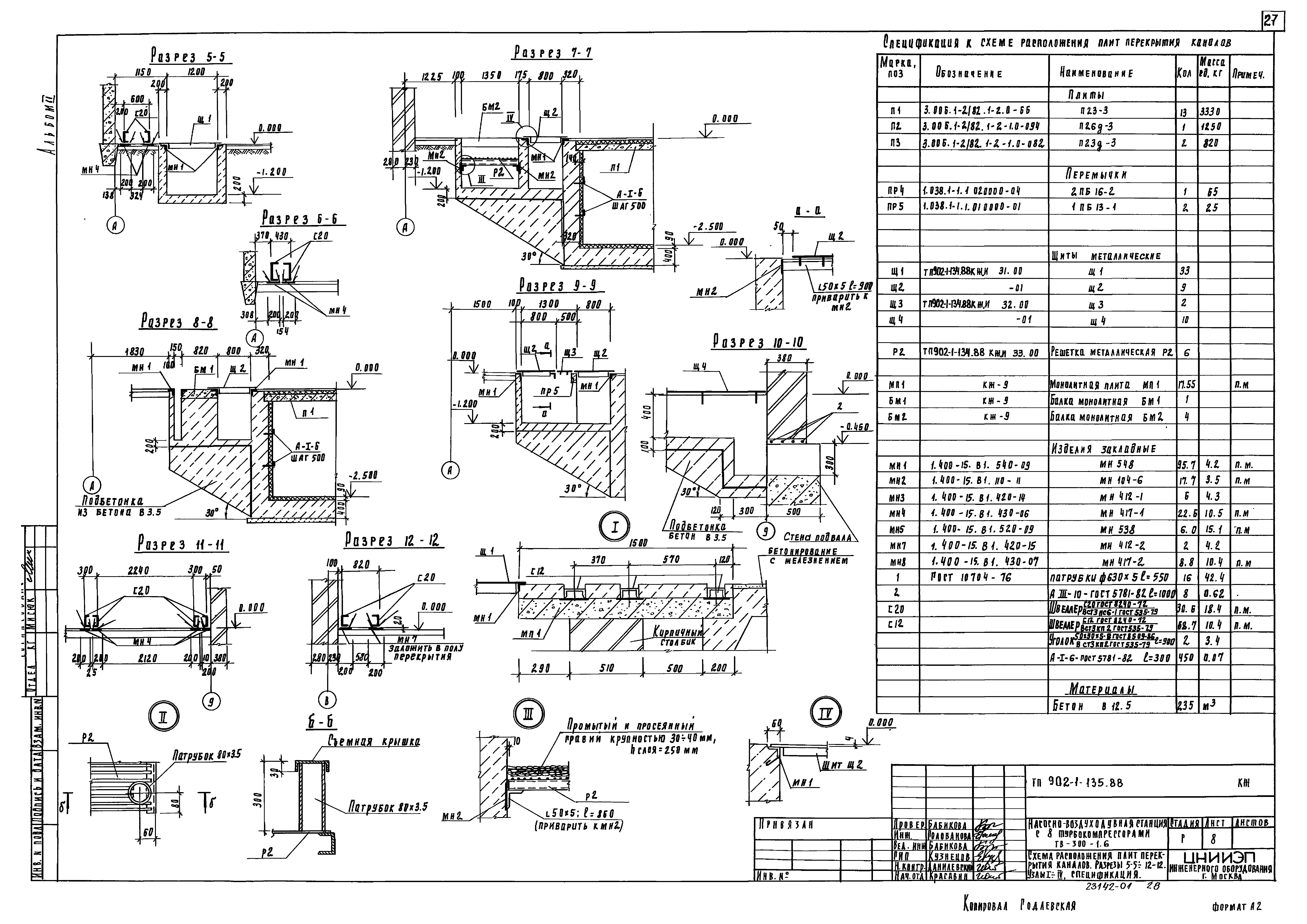
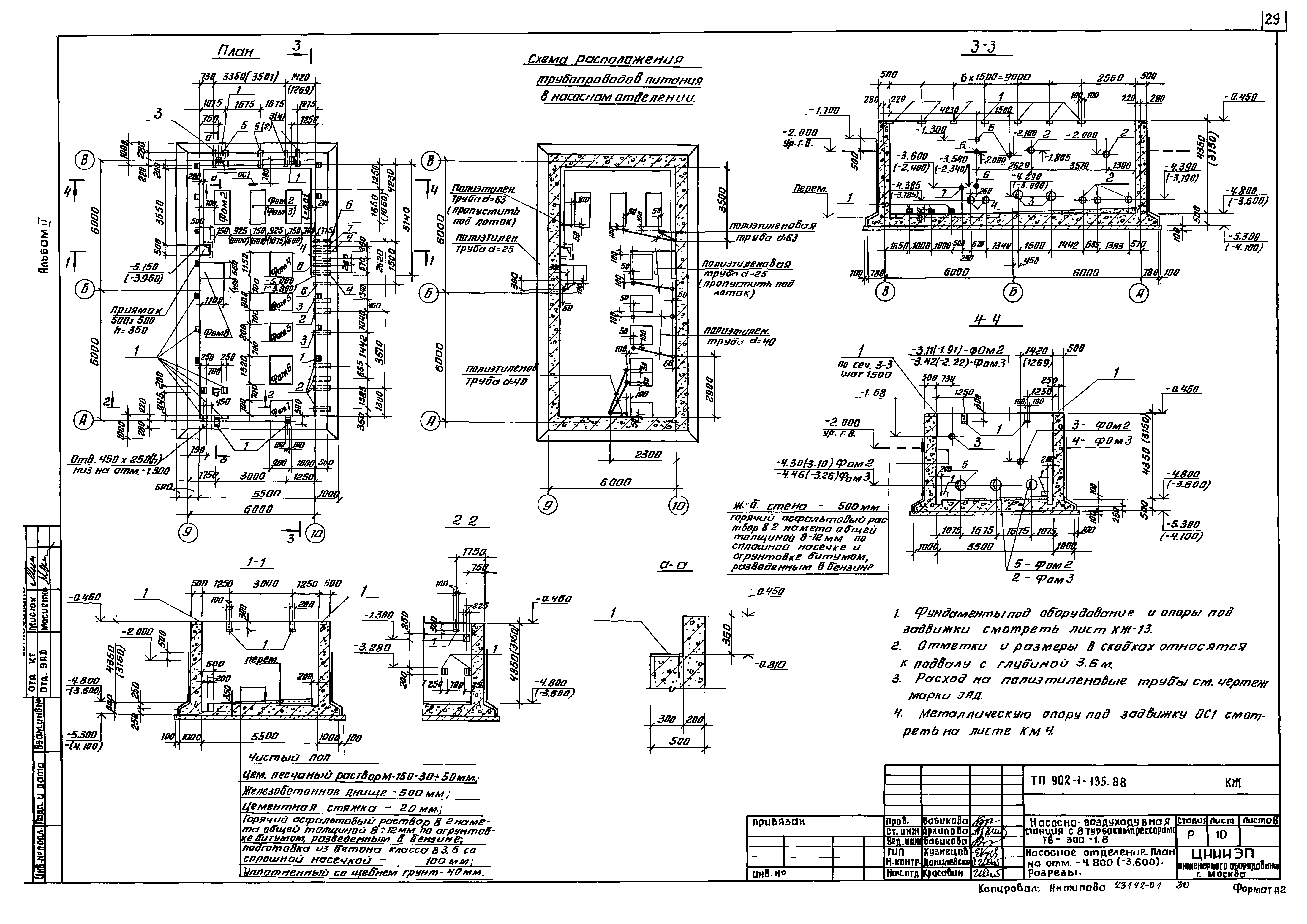
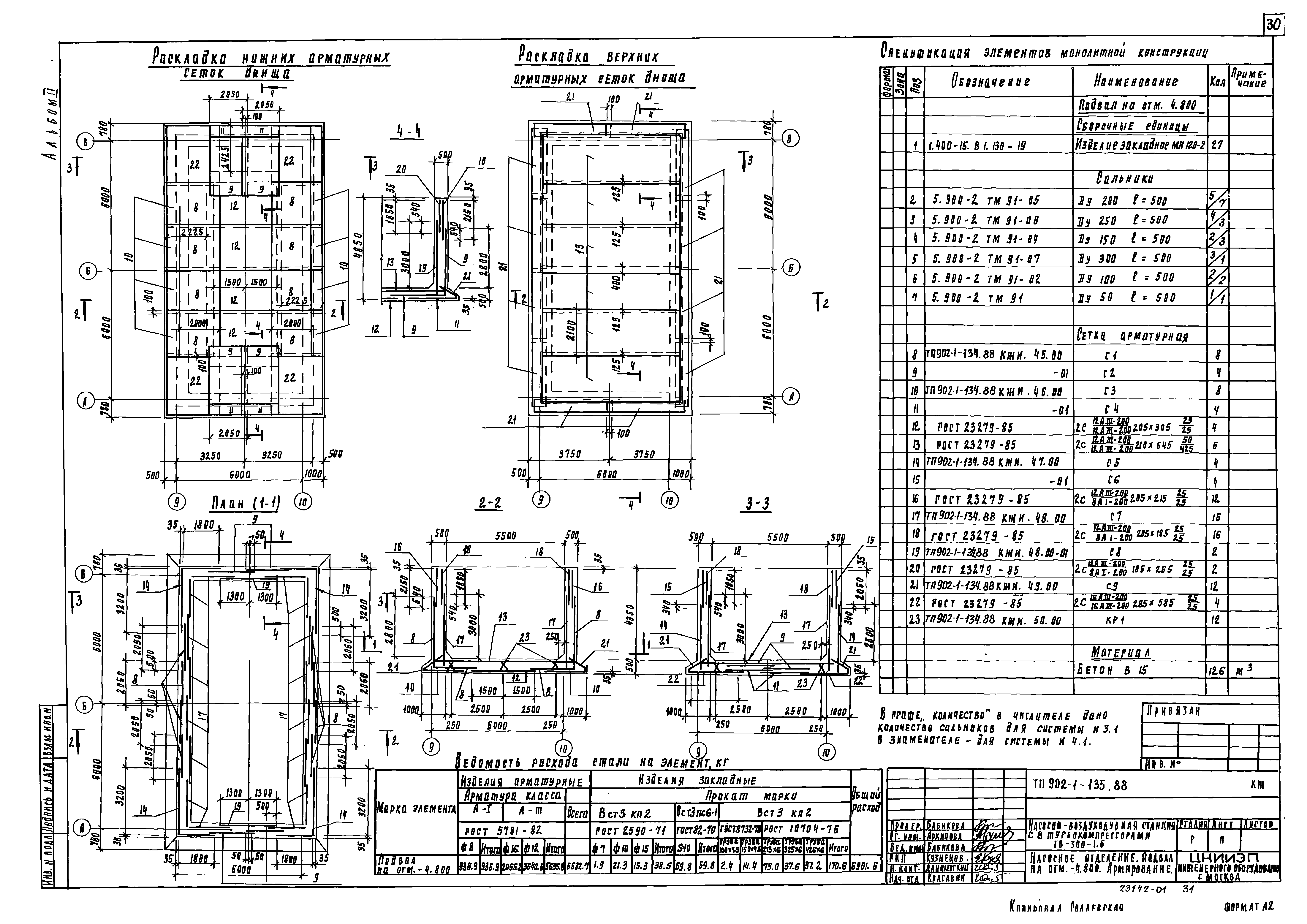
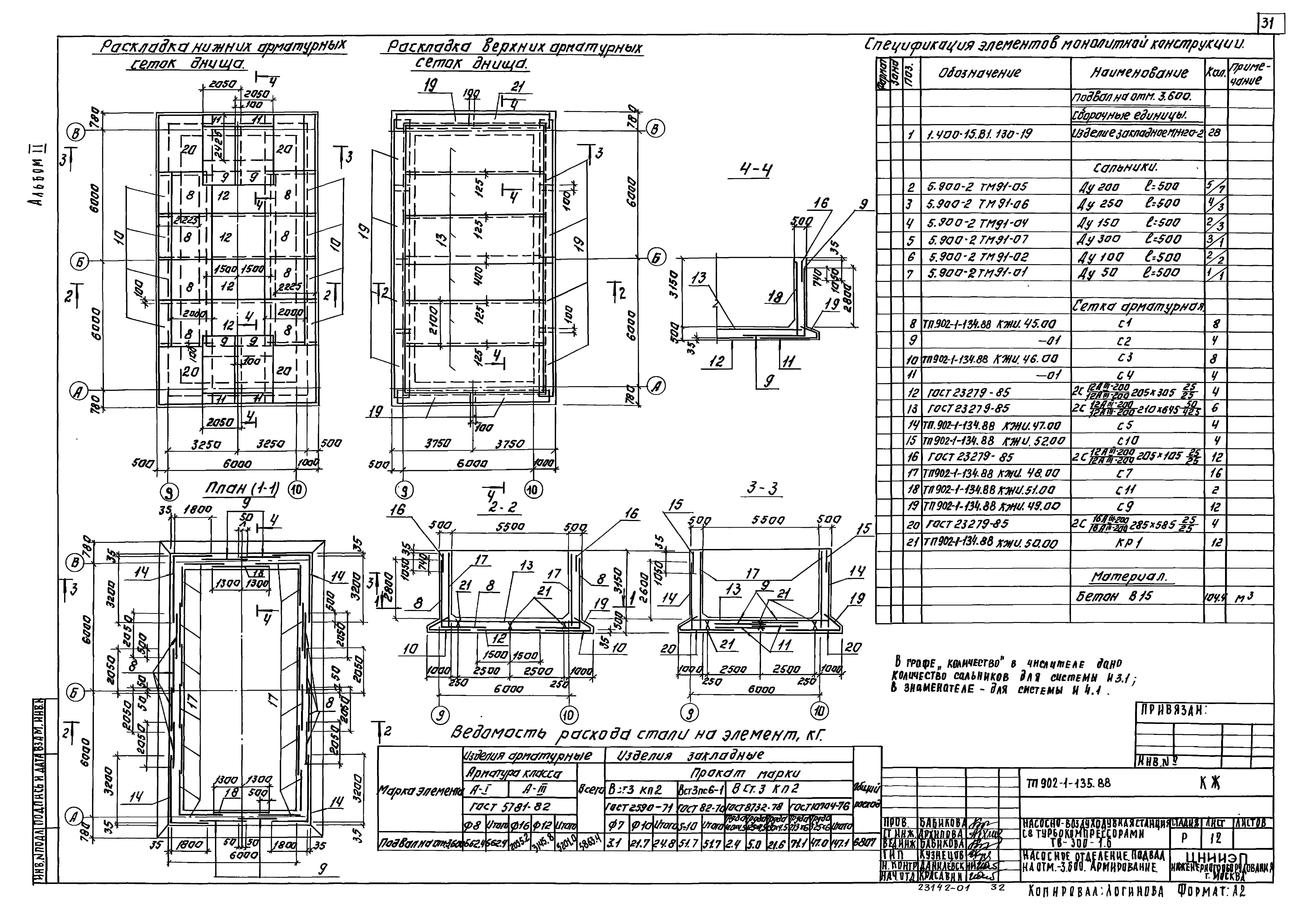
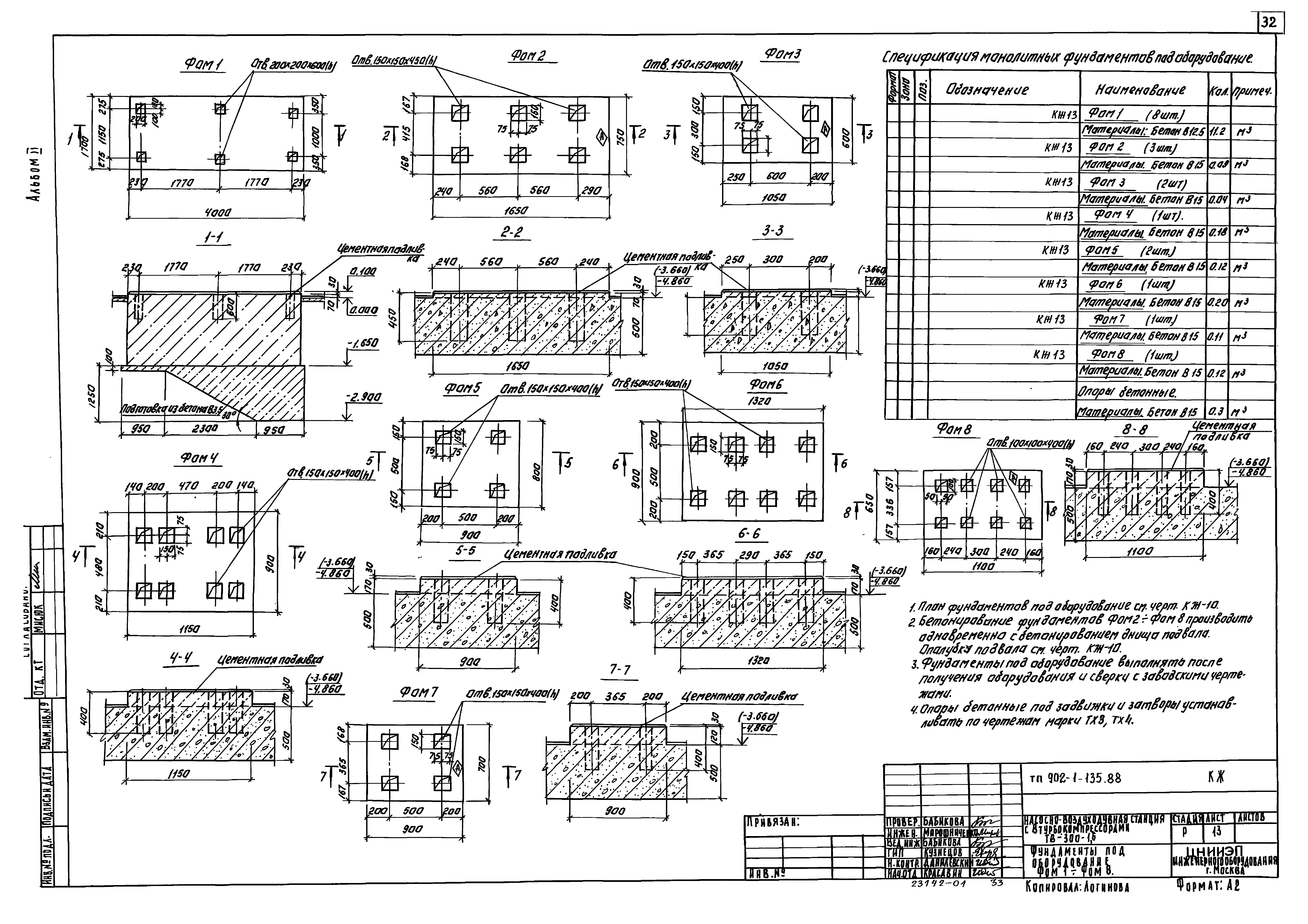
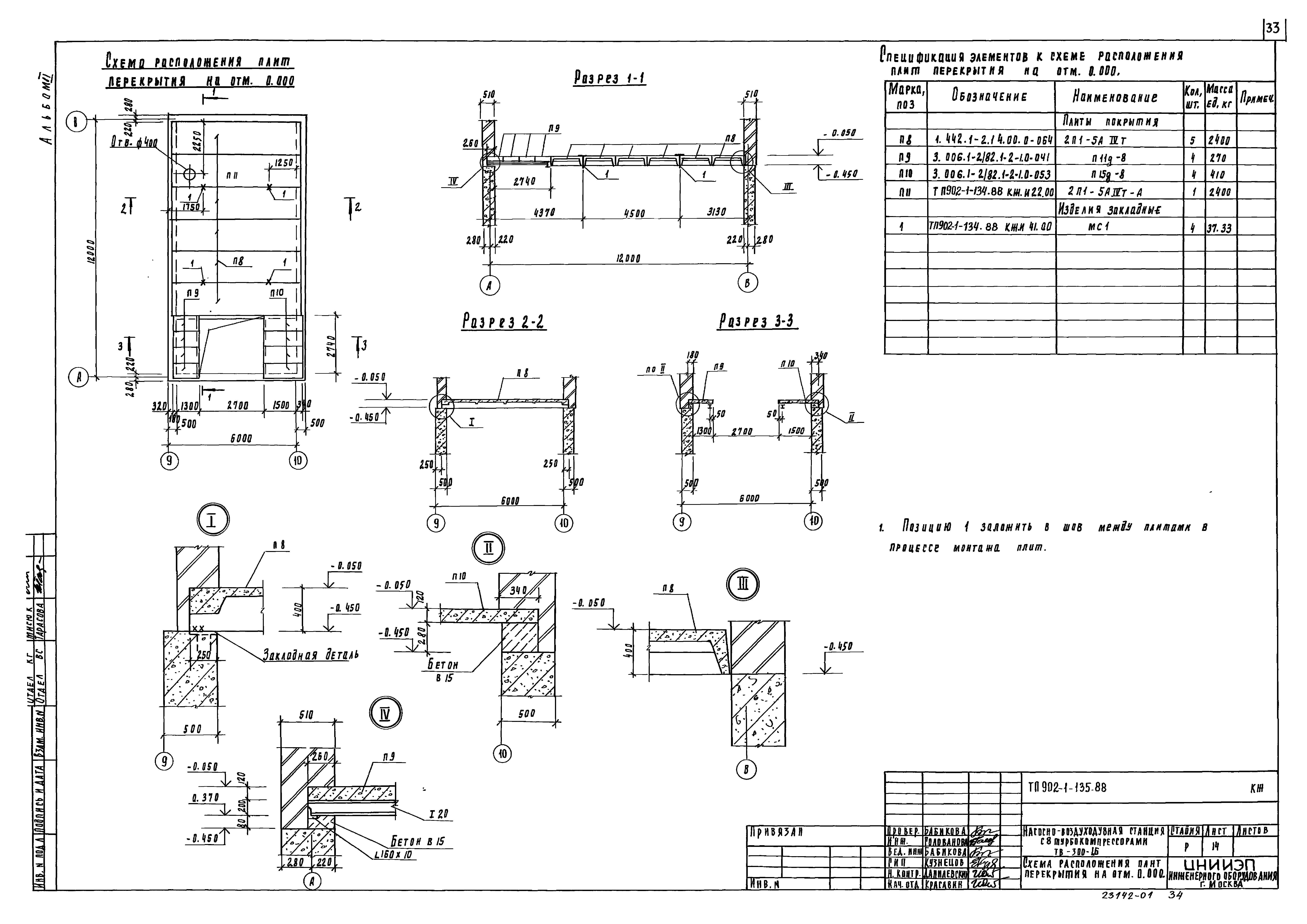
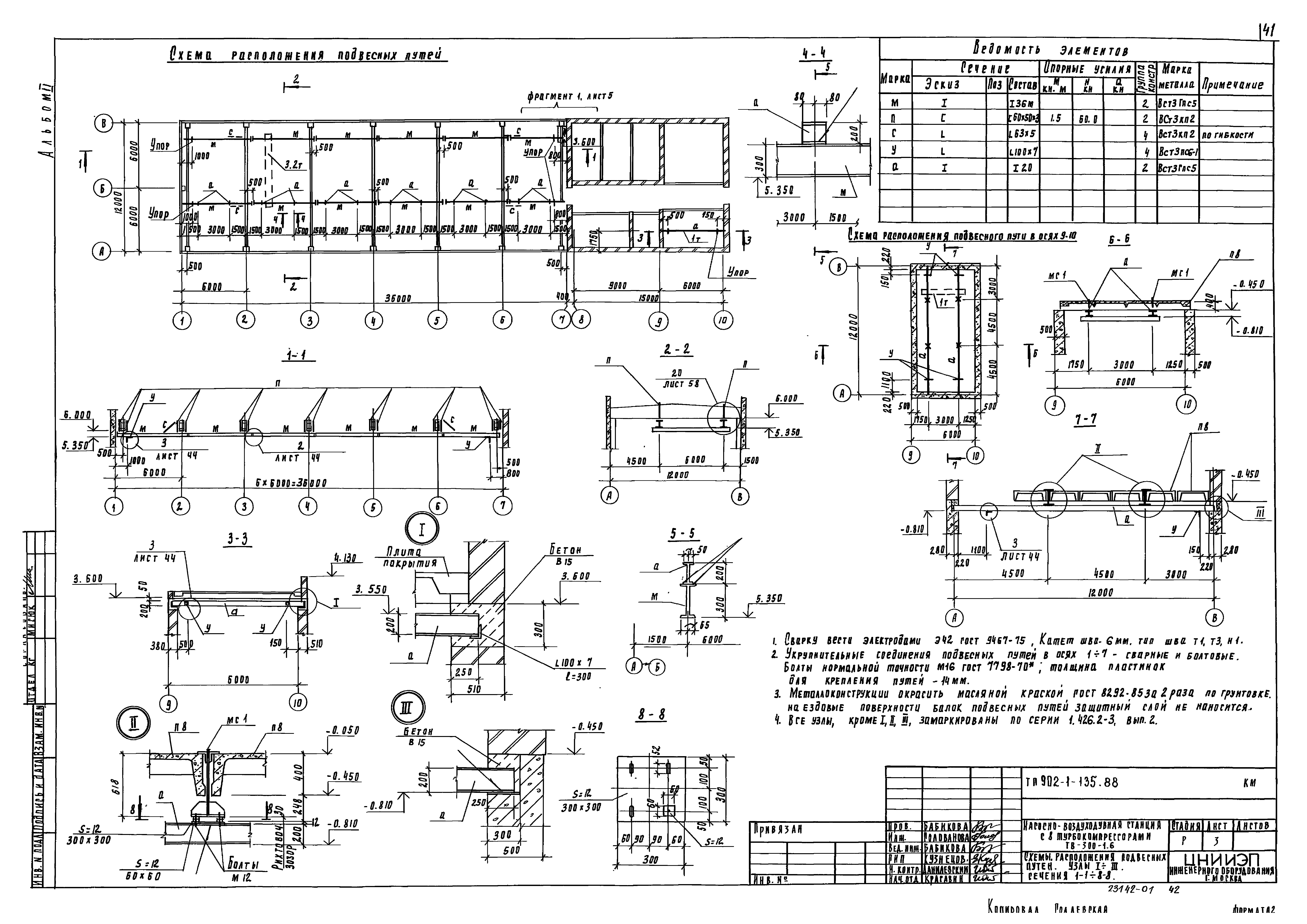
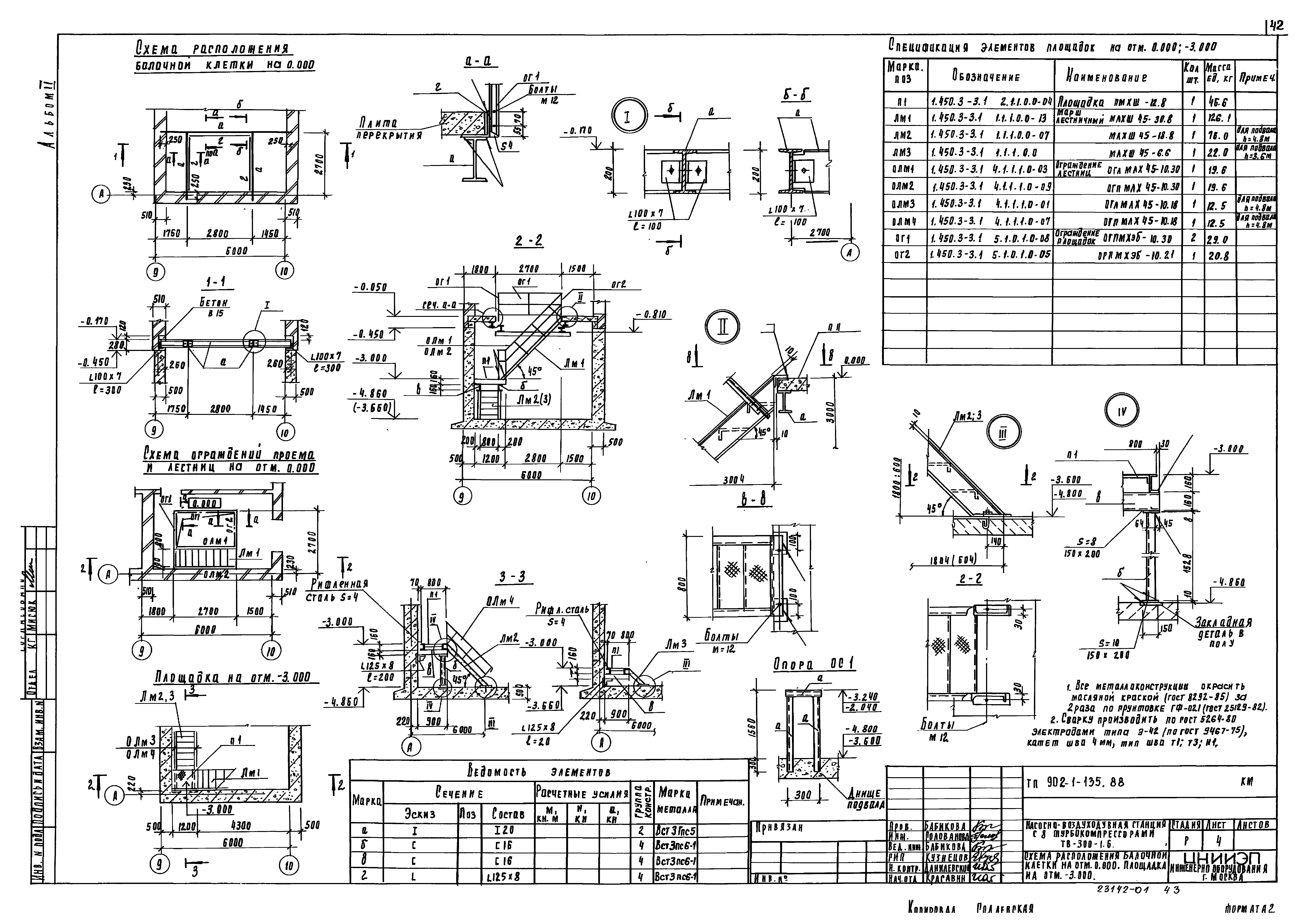
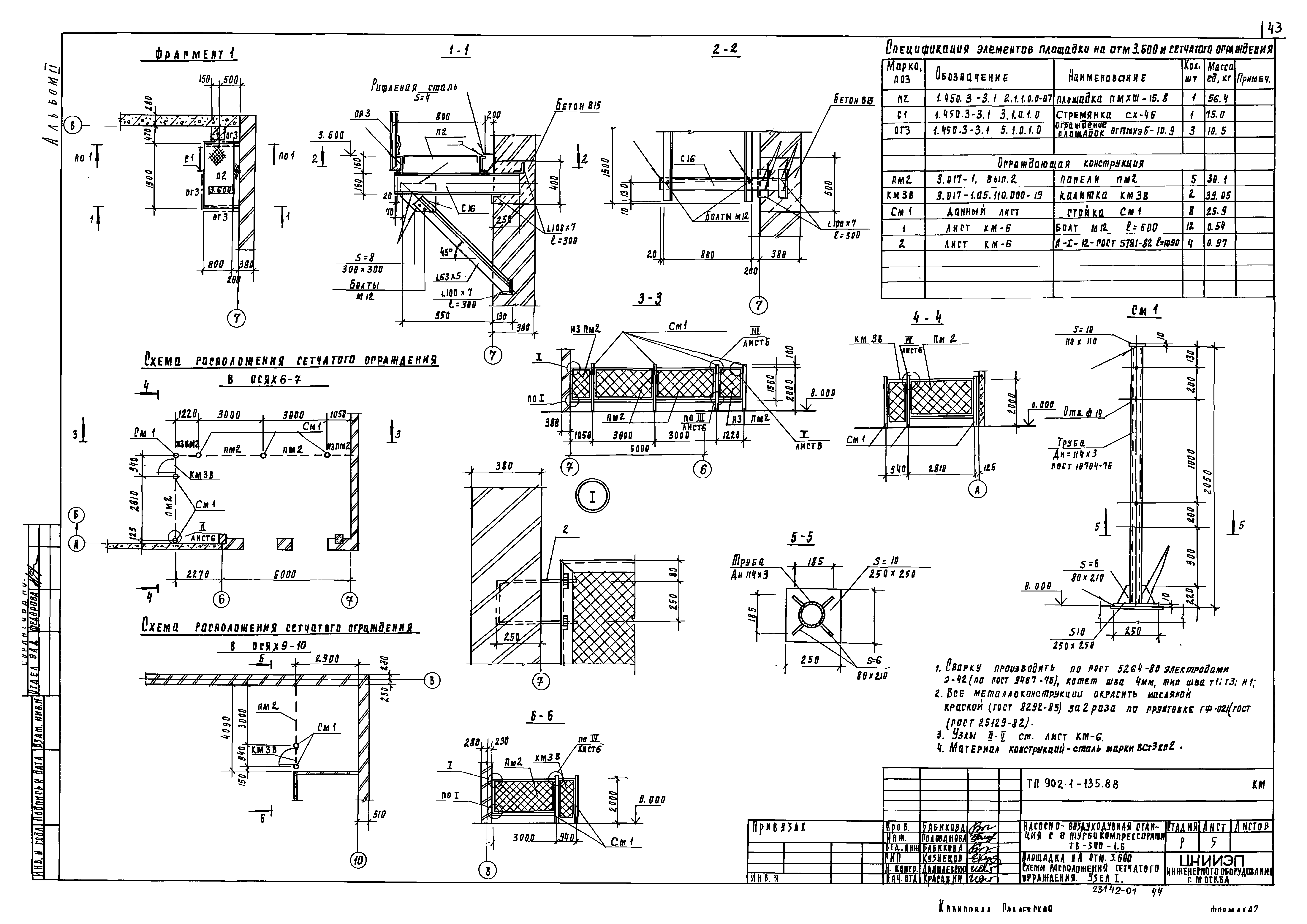
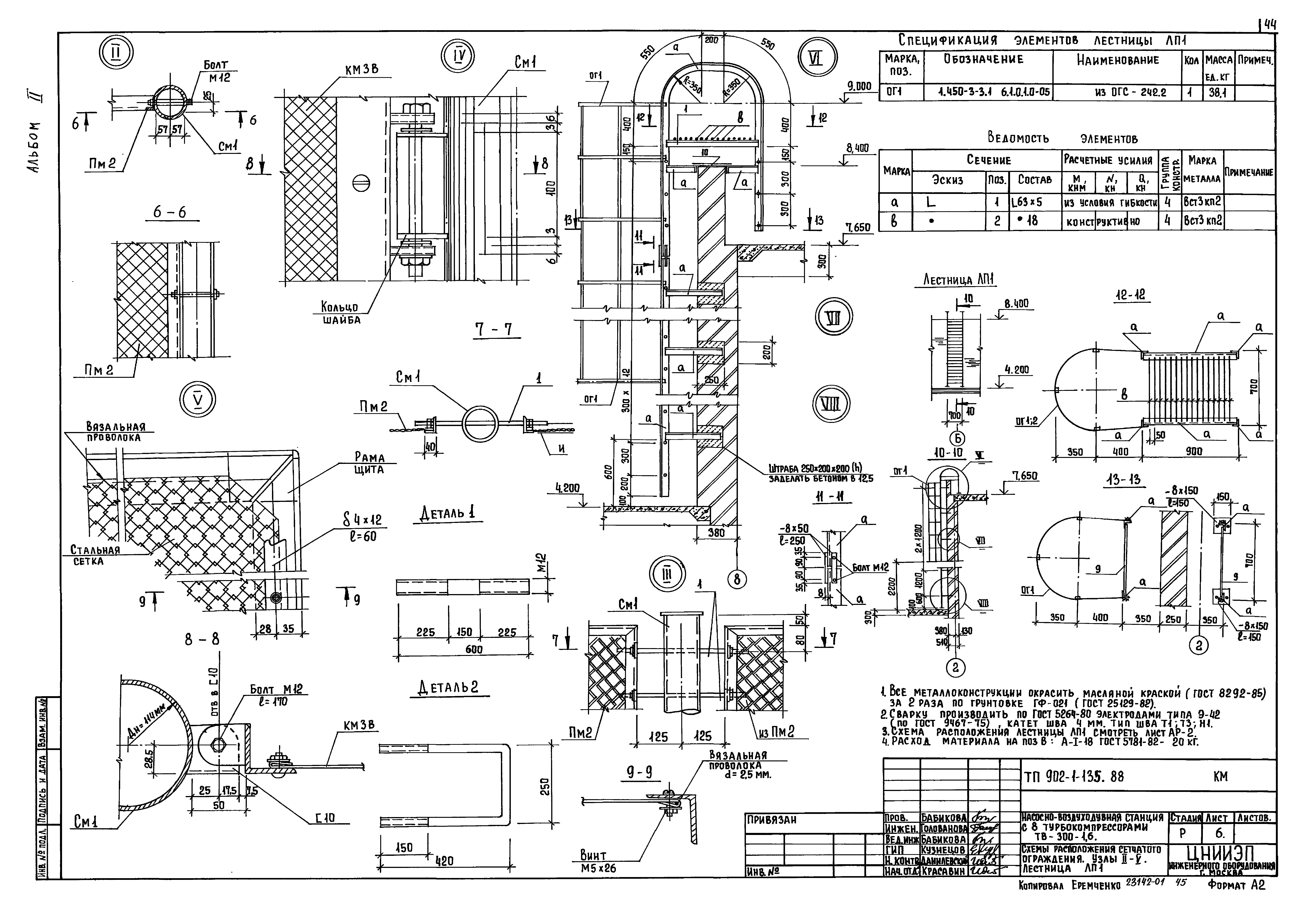
| Оглавление: | ТП 902-1-135.88 Содержание альбома ТП 902-1-135.88-ТХ Технологические решения ТП 902-1-135.88-ТХ-1 Общие данные ТП 902-1-135.88-ТХ-2 План на отм. 0.000. Разрез 1-1. Экспликация помещений ТП 902-1-135.88-ТХ-3 Насосное отделение. План на отм. -4.800(-3.600). Разрез 3-3;4-4 ТП 902-1-135.88-ТХ-4 Разрезы 5-5;6-6;7-7;2-2 ТП 902-1-135.88-ТХ-5 Схемы технологических трубопроводов 1В3;К3;П1;И3;И4;2В3;И20;1К1;АО ТП 902-1-135.88-ТХ-6 Установка турбокомпрессора ТВ-300-1,6м-02 с электродвигателем А30450ZВ-2У1 ТП 902-1-135.88-ОВ Отопление и вентиляция ТП 902-1-135.88-ОВ-1 Общие данные ТП 902-1-135.88-ОВ-2 Планы на отм. 0.000;-4.800(-3.600). Схемы вентиляции В1-В5;ВЕ1;ВЕ2 ТП 902-1-135.88-ОВ-3 Установка системы В-5. План. Разрез 1-1. Узел управления. Схема системы отопления. Спецификация ТП 902-1-135.88-ОВ-4 Камера фильтров. План. Разрез 1-1. Спецификация ТП 902-1-135.88-ВК Внутренний водопровод и канализация ТП 902-1-135.88-ВК-1 Общие данные. Внутренний водопровод и канализация. Планы на отм. 0.000;-4.800(-3.600). Схемы В1;2К1 ТП 902-1-135.88-АР Архитектурно-строительные решения ТП 902-1-135.88-АР-1 Общие данные ТП 902-1-135.88-АР-2 План на отм. 0.000. Разрез 1-1. Экспликация помещений ТП 902-1-135.88-АР-3 Фасады А-В;В-А;1-10;10-1. Разрезы 2-2;3-3. Схемы заполнения оконных проемов ТП 902-1-135.88-АР-4 Фрагмент плана. План на отм. -4.800(-3.600). Детали 1;2. Спецификация элементов заполнения проемов ТП 902-1-135.88-АР-5 Ведомости: проемов ворот и дверей, перемычек, отделки помещений. Спецификация перемычек ТП 902-1-135.88-АР-6 План кровли. Планы полов на отм. 0.000;-4.800(-3.600). Экспликация полов ТП 902-1-135.88-КЖ Конструкции железобетонные ТП 902-1-135.88-КЖ-1 Общие данные ТП 902-1-135.88-КЖ-2 Схема расположения фундаментов. Фрагмент 1 ТП 902-1-135.88-КЖ-3 Схема расположения фундаментов. Разрезы 1-1÷3-3. Фрагменты 2,3 ТП 902-1-135.88-КЖ-4 Фундаменты монолитные ФМ1-ФМ4 ТП 902-1-135.88-КЖ-5 Фундаменты монолитные ФМ5-ФМ7 ТП 902-1-135.88-КЖ-6 Схема расположения каналов, приямков и фундаментов под оборудование. Разрез 1-1 ТП 902-1-135.88-КЖ-7 Схема расположения плит перекрытия каналов. Разрезы 2-2÷4-4 ТП 902-1-135.88-КЖ-8 Схема расположения плит перекрытия каналов. Разрезы 5-5÷12-12. Узлы 1-4. Спецификация ТП 902-1-135.88-КЖ-9 Балки БМ1 и БМ2. ПлитаМП1. Опалубка. Армирование ТП 902-1-135.88-КЖ-10 Насосное отделение. План на отм. -4.800(-3.600). Разрезы ТП 902-1-135.88-КЖ-11 Насосное отделение. План на отм. -4.800. Армирование ТП 902-1-135.88-КЖ-12 Насосное отделение. План на отм. -3.600. Армирование ТП 902-1-135.88-КЖ-13 Фундаменты под оборудование ФОМ1-ФОМ8 ТП 902-1-135.88-КЖ-14 Схема расположения плит перекрытия на отм. 0.000 ТП 902-1-135.88-КЖ-15 Схема расположения колонн, балок покрытия. Разрезы ТП 902-1-135.88-КЖ-16 Схема расположения плит покрытия ТП 902-1-135.88-КЖ-17 Схема расположения стеновых панелей ТП 902-1-135.88-КЖ-18 Камера фильтров. Схема расположения закладных деталей ТП 902-1-135.88-КЖ-19 Схема расположения элементов резервуара бытовой канализации ТП 902-1-135.88-КМ Конструкции металлические ТП 902-1-135.88-КМ-1 Общие данные. Ведомость металлоконструкций по видам профилей ТП 902-1-135.88-КМ-2 Общие данные. Техническая спецификация металла ТП 902-1-135.88-КМ-3 Схема расположения подвесных путей. Узлы 1-3. Сечения 1-1÷8-8 ТП 902-1-135.88-КМ-4 Схема расположения балочной клетки на отм. 0.000. Площадка на отм. -3.000 ТП 902-1-135.88-КМ-5 Площадка на отм. -3.600. Схема расположения сетчатого ограждения. Узел 1 ТП 902-1-135.88-КМ-6 Схема расположения сетчатого ограждения. Узлы 2-5 ТП 902-1-135.88-ОС Организация строительства ТП 902-1-135.88-ОС-1 График производства работ (начало) ТП 902-1-135.88-ОС-2 График производства работ (окончание) ТП 902-1-135.88-ОС-3 Схема стройгенплана |
| Разработан: | ЦНИИЭП |
| Утверждён: | 15.03.1988 Госкомархитектура (62) |
| Заменяет собой: |
|















































