Скачать Серия ИИ-04-2 Выпуск 20. Колонны сечением 400х400 мм для зданий с высотой этажа 2,8 м. Рабочие чертежиДата актуализации: 01.01.2021
|
| Обозначение: | Серия ИИ-04-2 |
| Обозначение англ: | Series ИИ-04-2 |
| Статус: | заменен |
| Название рус.: | Выпуск 20. Колонны сечением 400х400 мм для зданий с высотой этажа 2,8 м. Рабочие чертежи |
| Дата добавления в базу: | 01.09.2013 |
| Дата актуализации: | 01.01.2021 |
| Дата введения: | 01.10.1977 |
| Дата окончания срока действия: | 01.04.1982 |
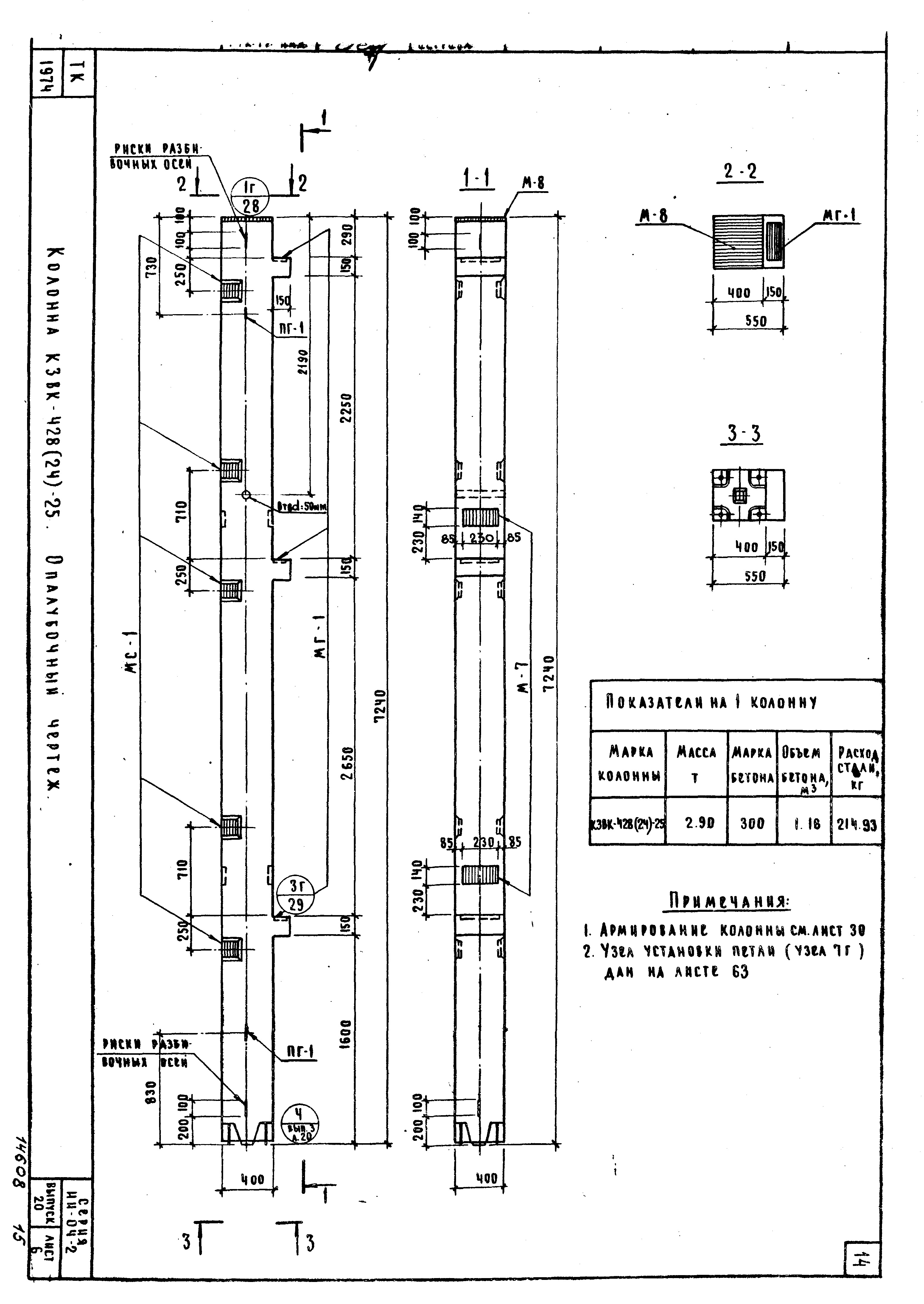
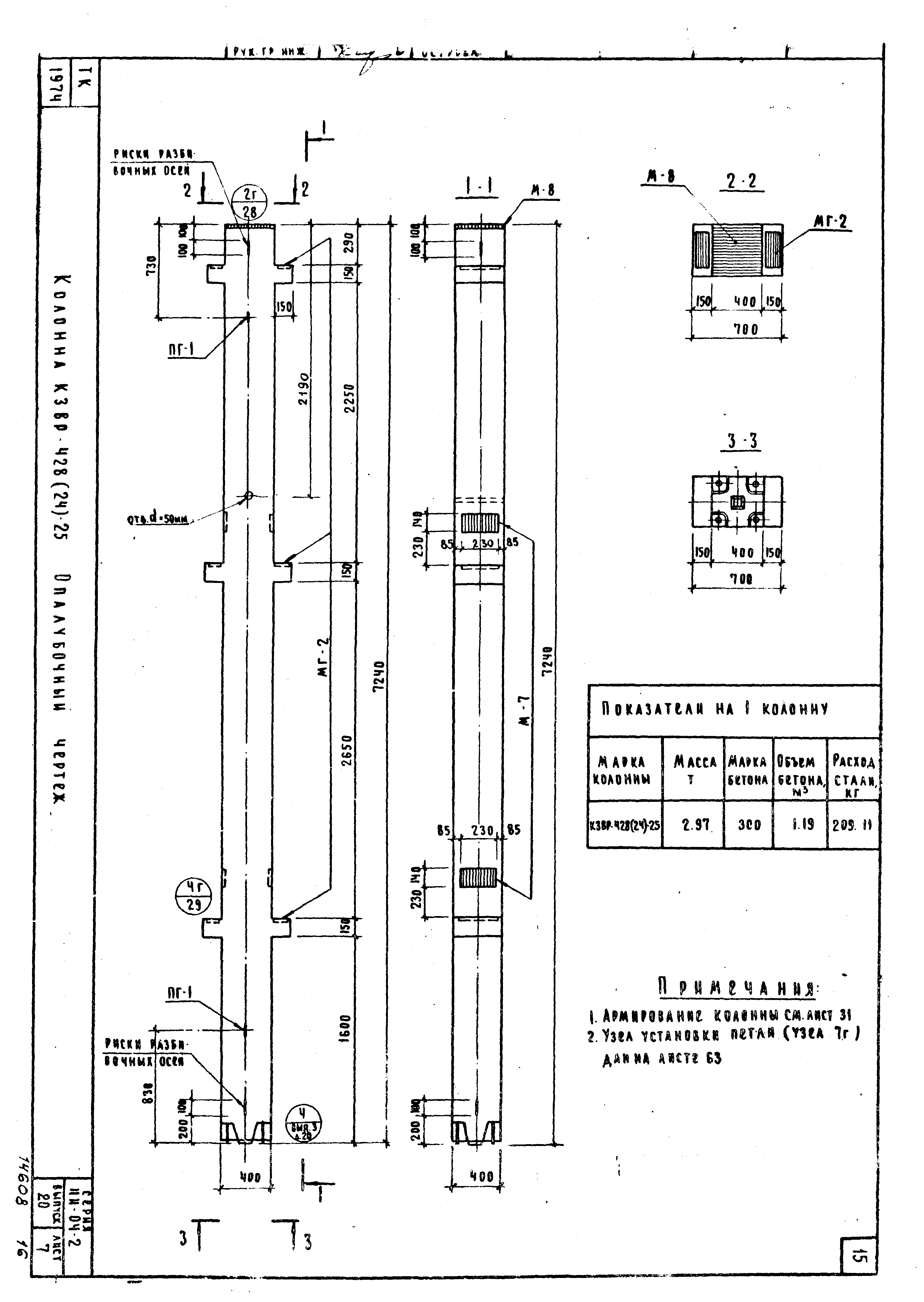
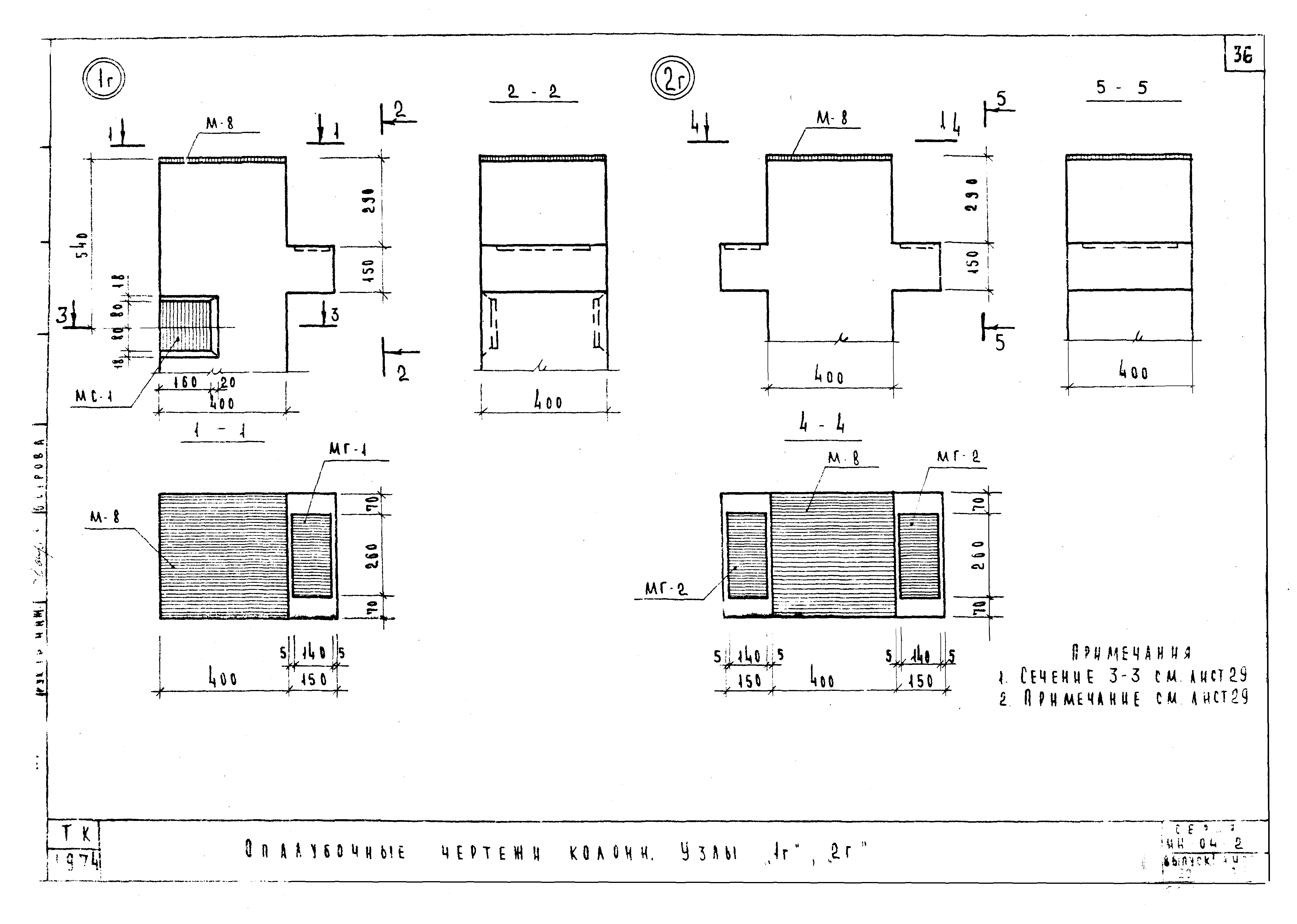
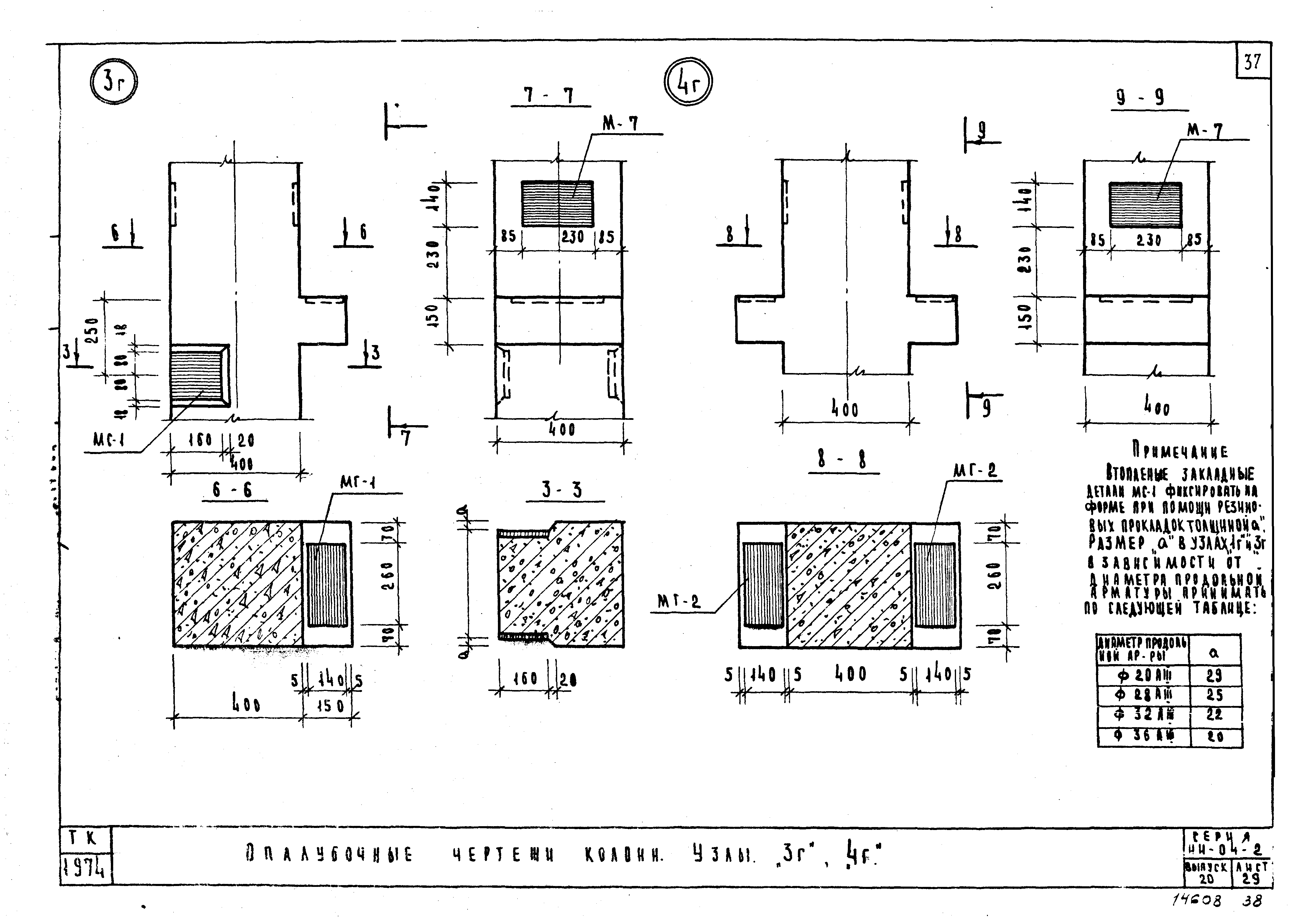
| Оглавление: | ИИ-04-2 Содержание ИИ-04-2 Пояснительная записка ИИ-04-2 Лист 1. Номенклатура верхних колонн ИИ-04-2 Лист 2. Номенклатура верхних колонн ИИ-04-2 Лист 3. Номенклатура верхних колонн ИИ-04-2 Лист 4. Номенклатура средних колонн ИИ-04-2 Лист 5. Номенклатура средних колонн ИИ-04-2 Лист 6. Колонна К3ВК-428(24)-25. Опалубочный чертеж ИИ-04-2 Лист 7. Колонна К3ВР-428(24)-25. Опалубочный чертеж ИИ-04-2 Лист 8. Колонна К4ВК-428(24)-25. Опалубочный чертеж ИИ-04-2 Лист 9. Колонна К4ВР-428(24)-25. Опалубочный чертеж ИИ-04-2 Лист 10. Колонна К5ВК-428(24)-25. Опалубочный чертеж ИИ-04-2 Лист 11. Колонна К5ВР-428(24)-25. Опалубочный чертеж ИИ-04-2 Лист 12. Колонна К6ВК-428(24)-25. Опалубочный чертеж ИИ-04-2 Лист 13. Колонна К6ВР-428(24)-25. Опалубочный чертеж ИИ-04-2 Лист 14. Колонна К3ВК-428-25. Опалубочный чертеж ИИ-04-2 Лист 15. Колонна К3ВР-428-25. Опалубочный чертеж ИИ-04-2 Лист 16. Колонна К4ВК-428-25. Опалубочный чертеж ИИ-04-2 Лист 17. Колонна К4ВР-428-25. Опалубочный чертеж ИИ-04-2 Лист 18. Колонна К5ВК-428-25. Опалубочный чертеж ИИ-04-2 Лист 19. Колонна К5ВР-428-25. Опалубочный чертеж ИИ-04-2 Лист 20. Колонна К6ВК-428-25. Опалубочный чертеж ИИ-04-2 Лист 21. Колонна К6ВР-428-25. Опалубочный чертеж ИИ-04-2 Лист 22. Колонны К3СК-428-25,К3СК-428-31,К3СК-428-33,К3СК-428-39,К3СК-428-45,К3СК-428-52. Опалубочный чертеж ИИ-04-2 Лист 23. Колонны К3СР-428-25,К3СР-428-31,К3СР-428-33,К3СР-428-39,К3СР-428-45,К3СР-428-52. Опалубочный чертеж ИИ-04-2 Лист 24. Колонны К4СК-428-25,К4СК-428-31,К4СК-428-33,К4СК-428-39,К4СК-428-45,К4СК-428-52. Опалубочный чертеж ИИ-04-2 Лист 25. Колонны К4СР-428-25,К4СР-428-31,К4СР-428-33,К4СР-428-39,К4СР-428-45,К4СР-428-52. Опалубочный чертеж ИИ-04-2 Лист 26. Колонны К6СК-428-25,К6СК-428-31,К6СК-428-33,К6СК-428-39,К6СК-428-45,К6СК-428-52. Опалубочный чертеж ИИ-04-2 Лист 27. Колонны К6СР-428-25,К6СР-428-31,К6СР-428-33,К6СР-428-39,К6СР-428-45,К6СР-428-52. Опалубочный чертеж ИИ-04-2 Лист 28. Опалубочные чертежи колонн. Узлы "1г","2г" ИИ-04-2 Лист 29. Опалубочные чертежи колонн. Узлы "3г","4г" ИИ-04-2 Лист 30. Колонна К3ВК-428(24)-25. Армирование ИИ-04-2 Лист 31. Колонна К3ВР-428(24)-25. Армирование ИИ-04-2 Лист 32. Колонна К4ВК-428(24)-25. Армирование ИИ-04-2 Лист 33. Колонна К4ВР-428(24)-25. Армирование ИИ-04-2 Лист 34. Колонна К5ВК-428(24)-25. Армирование ИИ-04-2 Лист 35. Колонна К5ВР-428(24)-25. Армирование ИИ-04-2 Лист 36. Колонна К6ВК-428(24)-25,К6ВК-428(24)-31. Армирование ИИ-04-2 Лист 37. Колонна К6ВР-428(24)-25,К6ВР-428(24)-31. Армирование ИИ-04-2 Лист 38. Колонна К3ВК-428-25. Армирование ИИ-04-2 Лист 39. Колонна К3ВР-428-25. Армирование ИИ-04-2 Лист 40. Колонна К4ВК-428-25. Армирование ИИ-04-2 Лист 41. Колонна К4ВР-428-25. Армирование ИИ-04-2 Лист 42. Колонна К5ВК-428-25. Армирование ИИ-04-2 Лист 43. Колонна К5ВР-428-25. Армирование ИИ-04-2 Лист 44. Колонна К6ВК-428-25,К6ВК-428-31. Армирование ИИ-04-2 Лист 45. Колонна К6ВР-428-25,К6ВР-428-31. Армирование ИИ-04-2 Лист 46. Колонна К3СК-428-25,К3СК-428-31. Армирование ИИ-04-2 Лист 47. Колонна К3СК-428-33,К3СК-428-39. Армирование ИИ-04-2 Лист 48. Колонна К3СК-428-45,К3СК-428-52. Армирование ИИ-04-2 Лист 49. Колонна К3СР-428-25,К3СР-428-31. Армирование ИИ-04-2 Лист 50. Колонна К3СР-428-33,К3СР-428-39. Армирование ИИ-04-2 Лист 51. Колонна К3СР-428-45,К3СР-428-52. Армирование ИИ-04-2 Лист 52. Колонна К4СК-428-25,К4СК-428-31. Армирование ИИ-04-2 Лист 53. Колонна К4СК-428-33,К4СК-428-39. Армирование ИИ-04-2 Лист 54. Колонна К4СК-428-45,К4СК-428-52. Армирование ИИ-04-2 Лист 55. Колонна К4СР-428-25,К4СР-428-31. Армирование ИИ-04-2 Лист 56. Колонна К4СР-428-33,К4СР-428-39. Армирование ИИ-04-2 Лист 57. Колонна К4СР-428-45,К4СР-428-52. Армирование ИИ-04-2 Лист 58. Колонна К6СК-428-25,К6СК-428-31. Армирование ИИ-04-2 Лист 59. Колонна К6СК-428-33,К6СК-428-39. Армирование ИИ-04-2 Лист 60. Колонна К6СК-428-45,К6СК-428-52. Армирование ИИ-04-2 Лист 61. Колонна К6СР-428-33,К6СР-428-39. Армирование ИИ-04-2 Лист 62. Колонна К6СР-428-45,К6СР-428-52. Армирование ИИ-04-2 Лист 63. Армирование колонн. Узлы "5г","6г". Узел установки петли "7г" ИИ-04-2 Лист 64. Колонна К3ВК-428(24)-25. Объемный каркас ОКГ-1 ИИ-04-2 Лист 65. Колонна К3ВР-428(24)-25. Объемный каркас ОКГ-2 ИИ-04-2 Лист 66. Колонна К4ВК-428(24)-25. Объемный каркас ОКГ-3 ИИ-04-2 Лист 67. Колонна К4ВР-428(24)-25. Объемный каркас ОКГ-4 ИИ-04-2 Лист 68. Колонна К5ВК-428(24)-25. Объемный каркас ОКГ-5 ИИ-04-2 Лист 69. Колонна К5ВР-428(24)-25. Объемный каркас ОКГ-6 ИИ-04-2 Лист 70. Колонна К6ВК-428(24)-25,К6ВК-428(24)-31. Объемный каркас ОКГ-7 ИИ-04-2 Лист 71. Колонна К6ВР-428(24)-25,К6ВР-428(24)-31. Объемный каркас ОКГ-8 ИИ-04-2 Лист 72. Колонна К3ВК-428-25. Объемный каркас ОКГ-9 ИИ-04-2 Лист 73. Колонна К3ВР-428-25. Объемный каркас ОКГ-10 ИИ-04-2 Лист 74. Колонна К4ВК-428-25. Объемный каркас ОКГ-11 ИИ-04-2 Лист 75. Колонна К4ВР-428-25. Объемный каркас ОКГ-12 ИИ-04-2 Лист 76. Колонна К5ВК-428-25. Объемный каркас ОКГ-13 ИИ-04-2 Лист 77. Колонна К5ВР-428-25. Объемный каркас ОКГ-14 ИИ-04-2 Лист 78. Колонна К6ВК-428-25,К6ВК-428-31. Объемный каркас ОКГ-15 ИИ-04-2 Лист 79. Колонна К6ВР-428-25,К6ВР-428-31. Объемный каркас ОКГ-16 ИИ-04-2 Лист 80. Колонна К3СК-428-25,К3СК-428-31. Объемный каркас ОКГ-17 ИИ-04-2 Лист 81. Колонна К3СК-428-33,К3СК-428-39. Объемный каркас ОКГ-18 ИИ-04-2 Лист 82. Колонна К3СК-428-45,К3СК-428-52. Объемный каркас ОКГ-19 ИИ-04-2 Лист 83. Колонна К3СР-428-25,К3СР-428-31. Объемный каркас ОКГ-20 ИИ-04-2 Лист 84. Колонна К3СР-428-33,К3СР-428-39. Объемный каркас ОКГ-21 ИИ-04-2 Лист 85. Колонна К3СР-428-45,К3СР-428-52. Объемный каркас ОКГ-22 ИИ-04-2 Лист 86. Колонна К4СК-428-25,К4СК-428-31. Объемный каркас ОКГ-23 ИИ-04-2 Лист 87. Колонна К4СК-428-33,К4СК-428-39. Объемный каркас ОКГ-24 ИИ-04-2 Лист 88. Колонна К4СК-428-45,К4СК-428-52. Объемный каркас ОКГ-25 ИИ-04-2 Лист 89. Колонна К4СР-428-25,К4СР-428-31. Объемный каркас ОКГ-26 ИИ-04-2 Лист 90. Колонна К4СР-428-33,К4СР-428-39. Объемный каркас ОКГ-27 ИИ-04-2 Лист 91. Колонна К4СР-428-45,К4СР-428-52. Объемный каркас ОКГ-28 ИИ-04-2 Лист 92. Колонна К6СК-428-25,К6СК-428-31. Объемный каркас ОКГ-29 ИИ-04-2 Лист 93. Колонна К6СК-428-33,К6СК-428-39. Объемный каркас ОКГ-30 ИИ-04-2 Лист 94. Колонна К6СК-428-45,К6СК-428-52. Объемный каркас ОКГ-31 ИИ-04-2 Лист 95. Колонна К6СР-428-33,К6СР-428-39. Объемный каркас ОКГ-32 ИИ-04-2 Лист 96. Колонна К6СР-428-45,К6СР-428-52. Объемный каркас ОКГ-33 ИИ-04-2 Лист 97. Объемные каркасы. Узел "8г" ИИ-04-2 Лист 98. Объемные каркасы. Узел "9г" ИИ-04-2 Лист 99. Объемные каркасы. Узел "10г" ИИ-04-2 Лист 100. Объемные каркасы. Узел "11г" ИИ-04-2 Лист 101. Объемные каркасы. Узел "12г" ИИ-04-2 Лист 102. Объемные каркасы. Узел "13г" ИИ-04-2 Лист 103. Объемные каркасы. Узел "14г" ИИ-04-2 Лист 104. Объемные каркасы. Узел "15г" ИИ-04-2 Лист 105. Объемные каркасы. Узел "16г" ИИ-04-2 Лист 106. Объемные каркасы. Узел "17г" ИИ-04-2 Лист 107. Объемные каркасы. Узел "18г" ИИ-04-2 Лист 108. Деталь установки связи СА 2 в объемном каркасе. Узел крепления закладной детали МС-1 в колоннах с замкнутыми хомутами ИИ-04-2 Лист 109. Плоские каркасы КГ-1,КГ-2 ИИ-04-2 Лист 110. Плоские каркасы КГ-3,КГ-4 ИИ-04-2 Лист 111. Плоские каркасы КГ-5,КГ-6 ИИ-04-2 Лист 112. Отдельные стержни. Замкнутый хомут ХГ-1. Петля ПГ-1. Сетки С-5г,С-6г ИИ-04-2 Лист 113. Закладная деталь МГ-1 ИИ-04-2 Лист 114. Закладная деталь МГ-2 ИИ-04-2 Лист 115. Рекомендации по маркировке колонн при примыкании к ним диафрагм жесткости и лестничных ригелей ИИ-04-2 Лист 116. Примеры разбивки закладных деталей для крепления диафрагм жесткости в трехэтажных средних колоннах ИИ-04-2 Лист 117. Примеры разбивки закладных деталей для крепления лестничных ригелей в трехэтажных средних колоннах ИИ-04-2 Лист 118. Примеры разбивки закладных деталей для крепления лестничных ригелей в трехэтажных средних колоннах ИИ-04-2 Лист 119. Примеры разбивки закладных деталей для крепления лестничных ригелей в трехэтажных средних колоннах ИИ-04-2 Лист 120. Рекомендации по маркировке колонн с дополнительными закладными деталями для навески стеновых панелей. Примеры разбивки закладных деталей для навески стеновых панелей в трехэтажных крайних колоннах при глухой стене и в торцевых трехэтажных колоннах ИИ-04-2 Лист 121. Примеры разбивки закладных деталей для навески стеновых панелей в трехэтажных средних угловых колоннах |
| Разработан: | ЦНИИЭП торгово-бытовых зданий и туристских комплексов НИИЖБ |
| Утверждён: | 19.08.1977 Государственный комитет по гражданскому строительству (165) |
| Чем заменён: |


































































































































