Скачать Серия 3.015-1 Выпуск II-2. Сборные железобетонные колонны для опор типов II и III и траверсы. Рабочие чертежиДата актуализации: 01.01.2021
|
| Обозначение: | Серия 3.015-1 |
| Обозначение англ: | Series 3.015-1 |
| Статус: | не действует |
| Название рус.: | Выпуск II-2. Сборные железобетонные колонны для опор типов II и III и траверсы. Рабочие чертежи |
| Дата добавления в базу: | 01.09.2013 |
| Дата актуализации: | 01.01.2021 |
| Дата введения: | 01.12.1973 |
| Дата окончания срока действия: | 01.08.1979 |
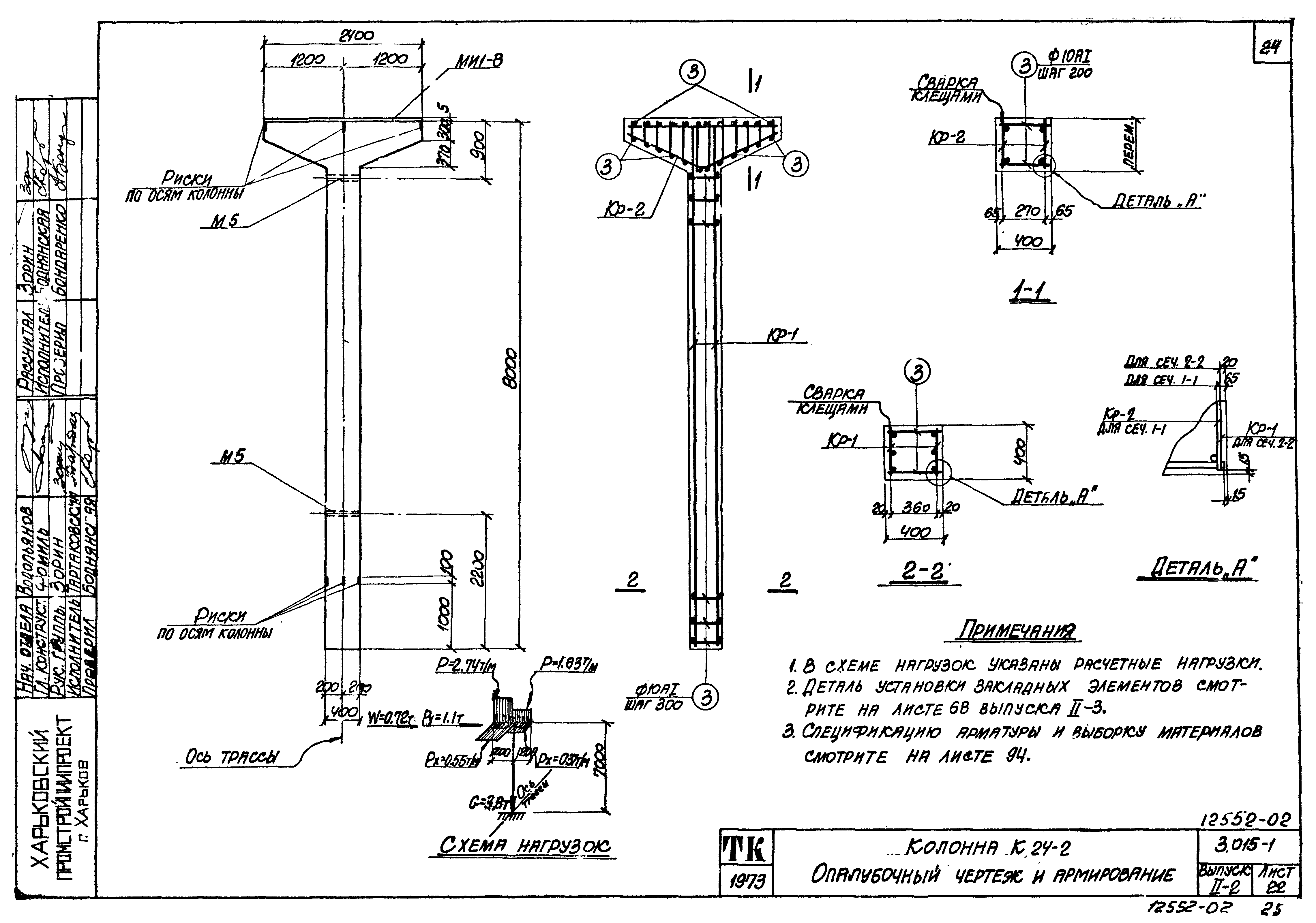
| Оглавление: | 3.015-1 Содержание 3.015-1 Лист 1. Траверса Т1-1. Опалубочно-арматурный чертеж 3.015-1 Лист 2. Траверса Т2-1. Опалубочно-арматурный чертеж 3.015-1 Лист 3. Траверса Т3-1. Опалубочно-арматурный чертеж 3.015-1 Лист 4. Траверса Т4-1. Опалубочно-арматурный чертеж 3.015-1 Лист 5. Траверса Т5-1. Опалубочно-арматурный чертеж 3.015-1 Лист 6. Траверса Т6-1. Опалубочно-арматурный чертеж 3.015-1 Лист 7. Траверса Т6-2. Опалубочно-арматурный чертеж 3.015-1 Лист 8. Траверса Т7-1. Опалубочно-арматурный чертеж 3.015-1 Лист 9. Траверса Т8-1. Опалубочно-арматурный чертеж 3.015-1 Лист 10. Траверса Т8-2. Опалубочно-арматурный чертеж 3.015-1 Лист 11. Траверса Т8-3. Опалубочно-арматурный чертеж 3.015-1 Лист 12. Траверса Т9-1. Опалубочно-арматурный чертеж 3.015-1 Лист 13. Траверса Т10-1. Опалубочно-арматурный чертеж 3.015-1 Лист 14. Траверса Т10-2. Опалубочно-арматурный чертеж 3.015-1 Лист 15. Траверса Т11-1. Опалубочно-арматурный чертеж 3.015-1 Лист 16. Траверса Т12-1. Опалубочно-арматурный чертеж 3.015-1 Лист 17. Траверса Т12-2. Опалубочно-арматурный чертеж 3.015-1 Лист 18. Траверса Т13-1. Опалубочно-арматурный чертеж 3.015-1 Лист 19. Траверса Т14-1. Опалубочно-арматурный чертеж 3.015-1 Лист 20. Траверса Т14-2. Опалубочно-арматурный чертеж 3.015-1 Лист 21. Траверса Т15-1. Опалубочно-арматурный чертеж 3.015-1 Лист 22. Колонна К24-2. Опалубочный чертеж и армирование 3.015-1 Лист 23. Колонна К24-2. Спецификация арматуры и выборка материалов 3.015-1 Лист 24. Колонна К25-1 3.015-1 Лист 25. Колонна К25-2 3.015-1 Лист 26. Колонна К25-3 3.015-1 Лист 27. Колонна К25-4 3.015-1 Лист 28. Колонна К25-5 3.015-1 Лист 29. Колонна К26-1 3.015-1 Лист 30. Колонна К26-2 3.015-1 Лист 31. Колонна К26-3 3.015-1 Лист 32. Колонна К27-1. Опалубочный чертеж и армирование 3.015-1 Лист 33. Колонна К27-1. Спецификация арматуры и выборка материалов 3.015-1 Лист 34. Колонна К28-1. Опалубочный чертеж и армирование 3.015-1 Лист 35. Колонна К28-1. Спецификация арматуры и выборка материалов 3.015-1 Лист 36. Колонна К28-2. Опалубочный чертеж и армирование 3.015-1 Лист 37. Колонна К28-2. Спецификация арматуры и выборка материалов 3.015-1 Лист 38. Колонна К29-1. Опалубочный чертеж и армирование 3.015-1 Лист 39. Колонна К29-1. Спецификация арматуры и выборка материалов 3.015-1 Лист 40. Колонна К30-1. Опалубочный чертеж и армирование 3.015-1 Лист 41. Колонна К30-1. Спецификация арматуры и выборка материалов 3.015-1 Лист 42. Колонна К31-1 3.015-1 Лист 43. Колонна К31-2 3.015-1 Лист 44. Колонна К32-1 3.015-1 Лист 45. Колонна К32-2 3.015-1 Лист 46. Колонна К33-1 3.015-1 Лист 47. Колонна К34-1 3.015-1 Лист 48. Колонна К35-1 3.015-1 Лист 49. Колонна К35-2 3.015-1 Лист 50. Колонна К36-1 3.015-1 Лист 51. Колонна К37-1 3.015-1 Лист 52. Колонна К38-1 3.015-1 Лист 53. Колонна К38-2 3.015-1 Лист 54. Колонна К39-1 3.015-1 Лист 55. Колонна К40-1 3.015-1 Лист 56. Колонна К40-2 3.015-1 Лист 57. Колонна К41-1 3.015-1 Лист 58. Колонна К42-1 3.015-1 Лист 59. Колонна К42-2 3.015-1 Лист 60. Колонна К43-1 |
| Разработан: | ЦНИИпромзданий Харьковский Промстройниипроект НИИЖБ |
| Утверждён: | 27.08.1973 Госстрой СССР (Государственный комитет Совета Министров СССР по делам строительства) (USSR Gosstroy 173) |
| Чем заменён: |
|































































