Скачать Серия 3.503-43/80 Пролетные строения автодорожных мостов сталежелезобетонные пролетами 15, 24, 33 м габаритами Г-8, Г-10 и Г-11,5 в северном исполненииДата актуализации: 01.01.2021
|
| Обозначение: | Серия 3.503-43/80 |
| Обозначение англ: | Series 3.503-43/80 |
| Статус: | не действует |
| Название рус.: | Пролетные строения автодорожных мостов сталежелезобетонные пролетами 15, 24, 33 м габаритами Г-8, Г-10 и Г-11,5 в северном исполнении |
| Дата добавления в базу: | 01.09.2013 |
| Дата актуализации: | 01.01.2021 |
| Дата введения: | 01.09.1981 |
| Дата окончания срока действия: | 01.06.1989 |
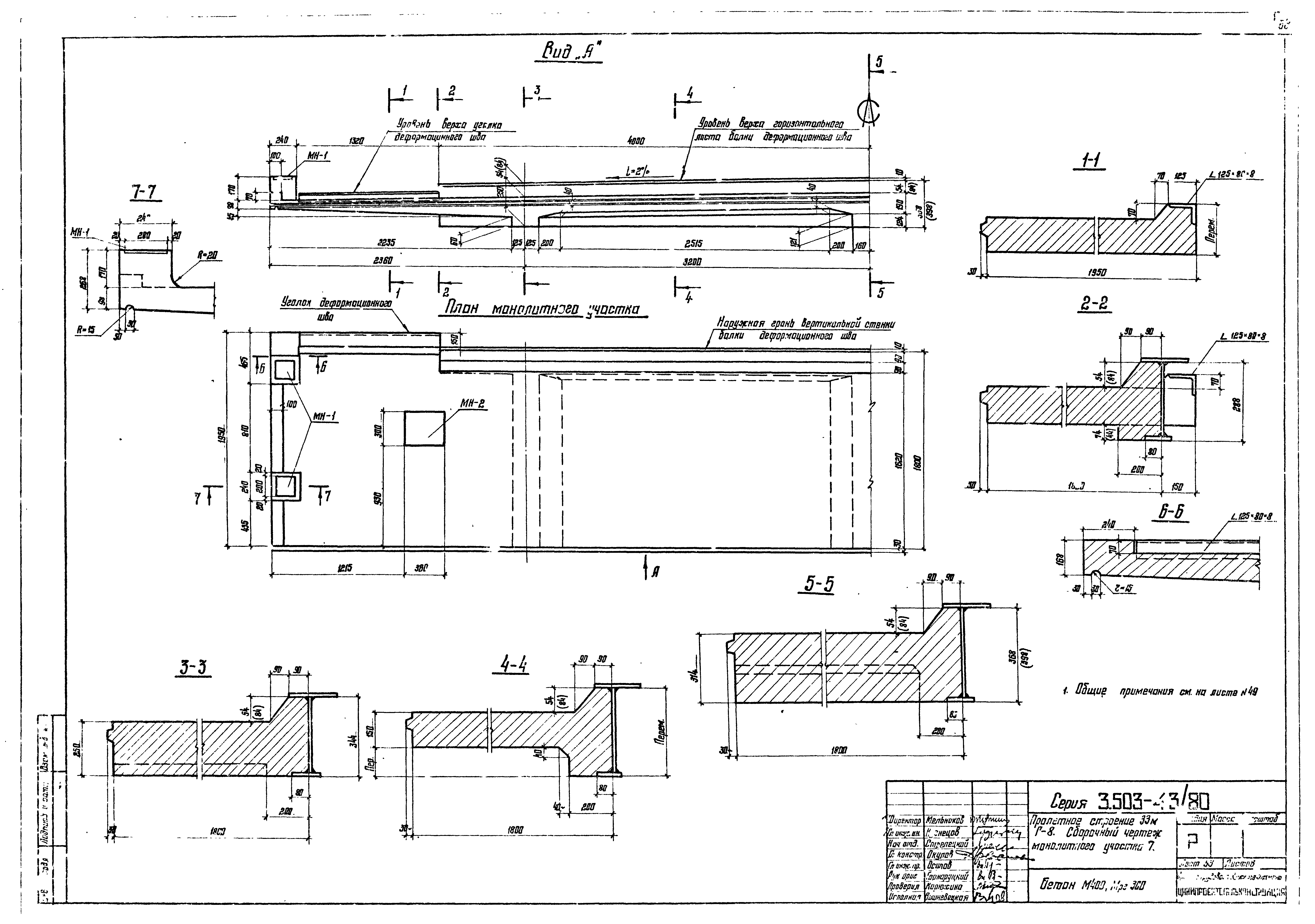
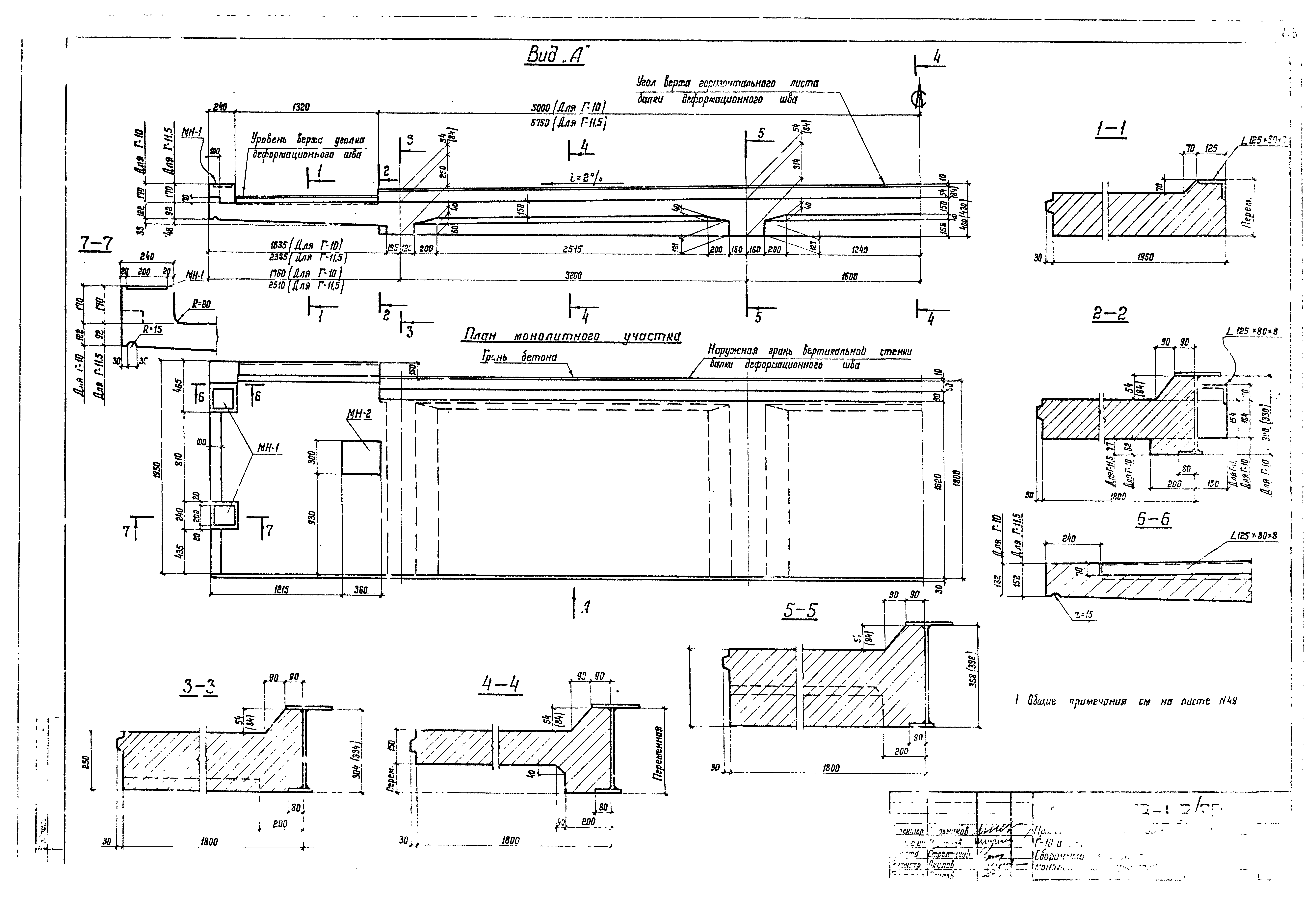
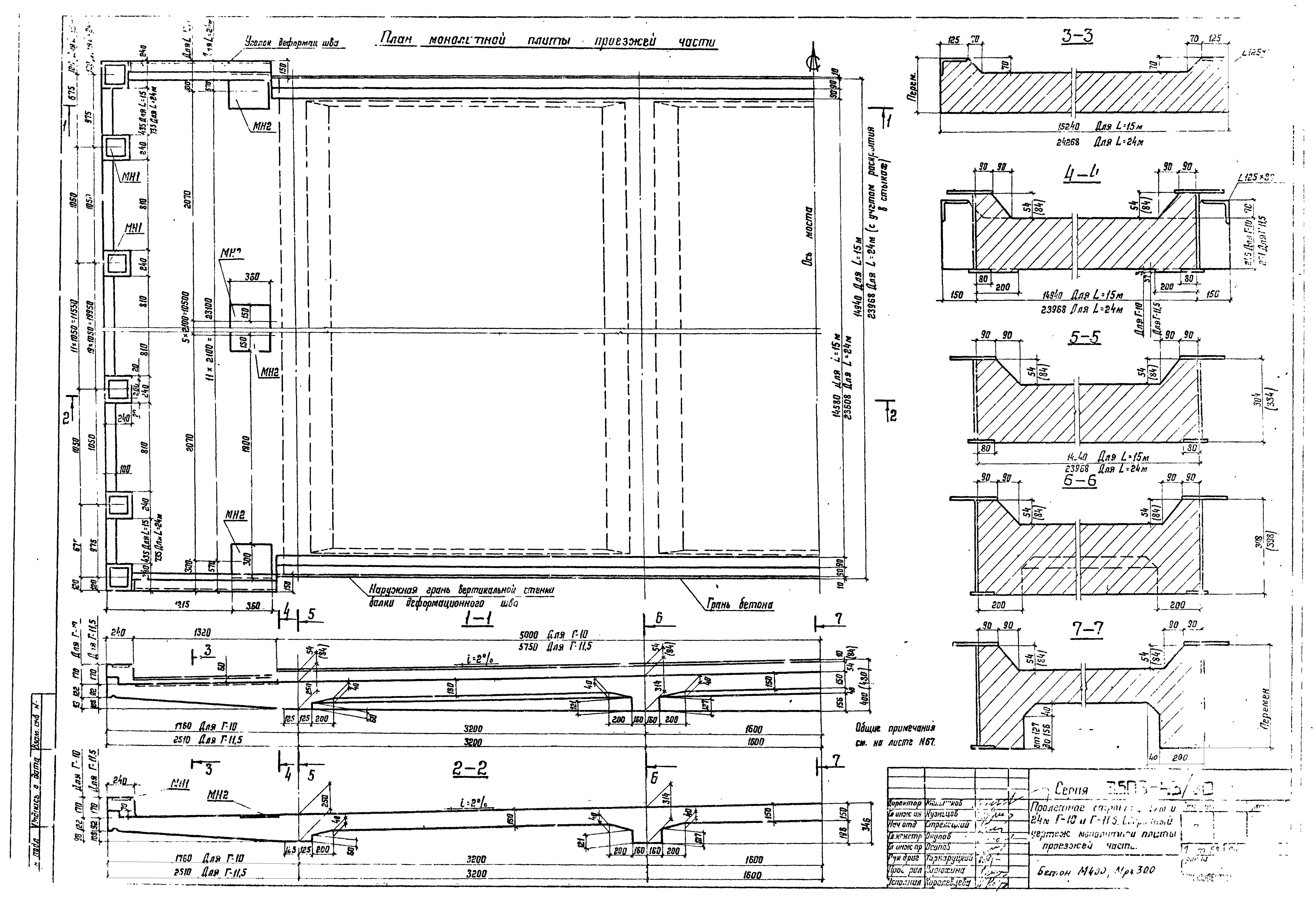
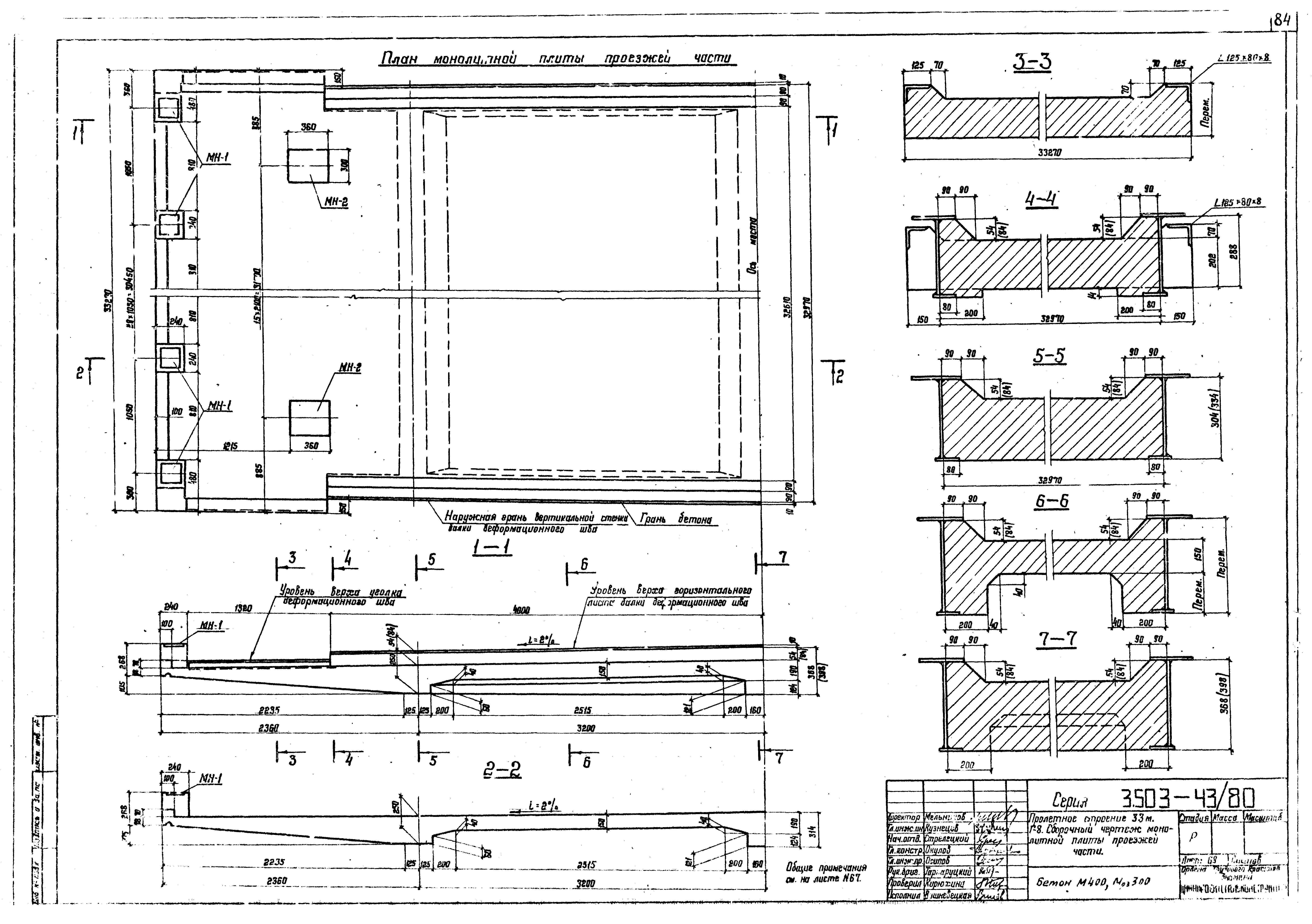
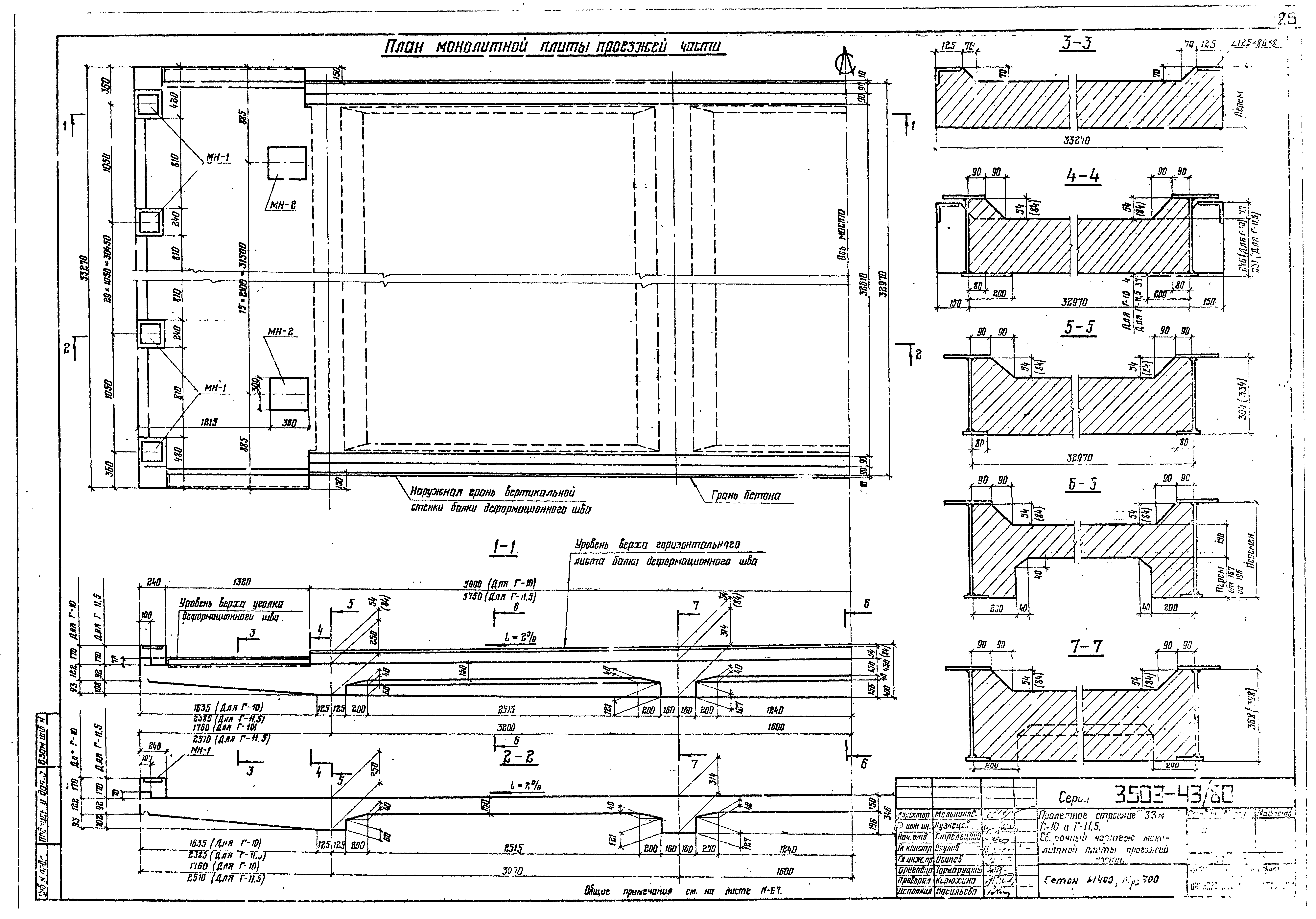
| Оглавление: | 3.503-43/83 Лист 2. Содержание. Ключ для подбора проекта 3.503-43/83 Лист 3.1. Пояснительная записка 3.503-43/83 Лист 3.2. Пояснительная записка 3.503-43/83 Лист 4. Объемы основных работ. Условные обозначения 3.503-43/83 Лист 5. Поперечный разрез проезжей части. Г-8 3.503-43/83 Лист 6. Поперечный разрез проезжей части. Г-10 и Г-11,5 3.503-43/83 Лист 7. Пролетное строение 15 м Г-8. Общий вид металлоконструкций 3.503-43/83 Лист 8. Пролетное строение 15 м Г-8. Домкратная балка 3.503-43/83 Лист 9. Пролетное строение 15 м Г-8. Поперечные связи в пролете узлы 3.503-43/83 Лист 10. Пролетное строение 15 м. Отверстия в верхнем поясе для крепления упора. Монтажный стык главной балки. Конструкция упора 3.503-43/83 Лист 11.1. Пролетное строение 15 м Г-8. Техническая спецификация стали. Ведомость металлоконструкций по маркам металла. Ведомость металлоконструкций по видам профилей. Сводная ведомость монтажных высокопрофильных болтов, гаек, шайб 3.503-43/83 Лист 11.2. Пролетное строение 15 м Г-8. Техническая спецификация стали. Ведомость металлоконструкций по маркам металла. Ведомость металлоконструкций по видам профилей. Сводная ведомость монтажных высокопрофильных болтов, гаек, шайб 3.503-43/83 Лист 12. Пролетное строение 15 м Г-10 и Г-11,5. Общий вид металлоконструкций 3.503-43/83 Лист 13. Пролетное строение 15 м Г-10 и Г-11,5. Домкратная балка 3.503-43/83 Лист 14. Пролетное строение 15 м Г-10 и Г-11,5. Поперечные связи в пролете 3.503-43/83 Лист 15.1. Пролетное строение 15 м Г-10 и Г-11,5. Техническая спецификация стали. Ведомость металлоконструкций по маркам металла. Ведомость металлоконструкций по видам профилей. Сводная ведомость монтажных высокопрофильных болтов, гаек, шайб 3.503-43/83 Лист 15.2. Пролетное строение 15 м Г-10 и Г-11,5. Техническая спецификация стали. Ведомость металлоконструкций по маркам металла. Ведомость металлоконструкций по видам профилей. Сводная ведомость монтажных высокопрофильных болтов, гаек, шайб 3.503-43/83 Лист 16. Пролетное строение 24 м Г-8. Общий вид металлоконструкций 3.503-43/83 Лист 17. Пролетное строение 24 м Г-8. Домкратная балка. Схема строительного подъема 3.503-43/83 Лист 18. Пролетное строение 24 м Г-8. Поперечные связи в пролете. Разрез 5-5. Конструкция упора типа 1 3.503-43/83 Лист 19. Пролетное строение 24 м Г-8. Поперечные связи в пролете. Разрез 6-6. Узлы 3.503-43/83 Лист 20. Пролетное строение 24 м. Отверстия в верхнем поясе для крепления упоров. Монтажный стык главной балки. Конструкция упоров типа 2 3.503-43/83 Лист 21.1. Пролетное строение 24 м Г-8. Техническая спецификация стали. Ведомость металлоконструкций по маркам металла. Ведомость металлоконструкций по видам профилей. Сводная ведомость монтажных высокопрофильных болтов, гаек, шайб 3.503-43/83 Лист 21.2. Пролетное строение 24 м Г-8. Техническая спецификация стали. Ведомость металлоконструкций по маркам металла. Ведомость металлоконструкций по видам профилей. Сводная ведомость монтажных высокопрофильных болтов, гаек, шайб 3.503-43/83 Лист 22. Пролетное строение 24 м Г-10 и Г-11,5. Общий вид металлоконструкций 3.503-43/83 Лист 23. Пролетное строение 24 м Г-10 и Г-11,5. Домкратная балка. Схема строительного подъема 3.503-43/83 Лист 24. Пролетное строение 24 м Г-10 и Г-11,5. Поперечные связи в пролете. Разрез 5-5 3.503-43/83 Лист 25. Пролетное строение 24 м Г-10 и Г-11,5. Поперечные связи в пролете. Разрез 6-6 3.503-43/83 Лист 26.1. Пролетное строение 24 м Г-10 и Г-11,5. Техническая спецификация стали. Ведомость металлоконструкций по маркам металла. Ведомость металлоконструкций по видам профилей. Сводная ведомость монтажных высокопрофильных болтов, гаек, шайб 3.503-43/83 Лист 26.2. Пролетное строение 24 м Г-10 и Г-11,5. Техническая спецификация стали. Ведомость металлоконструкций по маркам металла. Ведомость металлоконструкций по видам профилей. Сводная ведомость монтажных высокопрофильных болтов, гаек, шайб 3.503-43/83 Лист 27.1. Пролетное строение 33м Г-8. Общий вид металлоконструкций. Конструкция упоров. Схема строительного подъема 3.503-43/83 Лист 27.2. Пролетное строение 33м Г-8. Общий вид металлоконструкций. Конструкция упоров. Схема строительного подъема 3.503-43/83 Лист 28. Пролетное строение 33м Г-8. Домкратная балка 3.503-43/83 Лист 29. Пролетное строение 33м Г-8. Поперечные связи в пролете. Разрез 5-5 3.503-43/83 Лист 30. Пролетное строение 33м Г-8. Поперечные связи в пролете. Разрез 6-6 3.503-43/83 Лист 31. Пролетное строение 33м Г-8. Отверстия в верхнем поясе для крепления упоров. Монтажный стык главной балки. Узлы 3.503-43/83 Лист 32.1. Пролетное строение 33м Г-8. Техническая спецификация стали. Ведомость металлоконструкций по маркам металла. Ведомость металлоконструкций по видам профилей. Сводная ведомость монтажных высокопрофильных болтов, гаек, шайб 3.503-43/83 Лист 32.2. Пролетное строение 33м Г-8. Техническая спецификация стали. Ведомость металлоконструкций по маркам металла. Ведомость металлоконструкций по видам профилей. Сводная ведомость монтажных высокопрофильных болтов, гаек, шайб 3.503-43/83 Лист 33.1. Пролетное строение 33м Г-10 и Г-11,5. Общий вид металлоконструкций. Узлы. Схемы строительного подъема 3.503-43/83 Лист 33.2. Пролетное строение 33м Г-10 и Г-11,5. Общий вид металлоконструкций. Узлы. Схемы строительного подъема 3.503-43/83 Лист 34. Пролетное строение 33м Г-10 и Г-11,5. Домкратная балка 3.503-43/83 Лист 35. Пролетное строение 33м Г-10 и Г-11,5. Поперечные связи в пролете. Разрез 5-5 3.503-43/83 Лист 36. Пролетное строение 33м Г-10 и Г-11,5. Поперечные связи в пролете. Разрез 6-6 3.503-43/83 Лист 37.1. Пролетное строение 33м Г-10 и Г-11,5. Техническая спецификация стали. Ведомость металлоконструкций по маркам металла. Ведомость металлоконструкций по видам профилей. Сводная ведомость монтажных высокопрофильных болтов, гаек, шайб 3.503-43/83 Лист 37.2. Пролетное строение 33м Г-10 и Г-11,5. Техническая спецификация стали. Ведомость металлоконструкций по маркам металла. Ведомость металлоконструкций по видам профилей. Сводная ведомость монтажных высокопрофильных болтов, гаек, шайб 3.503-43/83 Лист 38. Пролетное строение 33м. Конструкция смотрового хода 3.503-43/83 Лист 39.1. Конструкция ограждения проезжей части и перил 3.503-43/83 Лист 39.2. Конструкция ограждения проезжей части и 3.503-43/83 Лист 39.3. Конструкция ограждения проезжей части и 3.503-43/83 Лист 40.1. Конструкции игорных частей 3.503-43/83 Лист 40.2. Конструкции игорных частей 3.503-43/83 Лист 41.1. Конструкции деформационных швов 3.503-43/83 Лист 41.2. Конструкции деформационных швов 3.503-43/83 Лист 42.1. Схемы монтажа пролетных строений, указания по монтажу плиты проезжей части 3.503-43/83 Лист 42.2. Схемы монтажа пролетных строений, указания по монтажу плиты проезжей части 3.503-43/83 Лист 43.1. Расчетный лист 3.503-43/83 Лист 43.2. Расчетный лист 3.503-43/83 Лист 44. Пролетное строение 15 м Г-8 и Г-10 и Г-11,5. Маркировочные схемы сборных плит проезжей части 3.503-43/83 Лист 45. Пролетное строение 24 м Г-8;Г-10 и Г-11,5. Маркировочные схемы сборных плит проезжей части 3.503-43/83 Лист 46. Пролетное строение 33 м Г-8;Г-10 и Г-11,5. Маркировочные схемы сборных плит проезжей части 3.503-43/83 Лист 47. Сборочные чертежи плит проезжей части П1 3.503-43/83 Лист 48. Сборочные чертежи плит проезжей части П2 и П3 3.503-43/83 Лист 49. Пролетное строение 15м Г-8. Сборочный чертеж монолитного участка 1 3.503-43/83 Лист 50. Пролетное строение 15м Г-10 и Г-11,5. Сборочный чертеж монолитного участка 2(3) 3.503-43/83 Лист 51. Пролетное строение 24м Г-8. Сборочный чертеж монолитного участка 4 3.503-43/83 Лист 52. Пролетное строение 24м Г-10 и Г-11,5. Сборочный чертеж монолитного участка 5(6) 3.503-43/83 Лист 53. Пролетное строение 33м Г-8. Сборочный чертеж монолитного участка 7 3.503-43/83 Лист 54. Пролетное строение 33м Г-10 и Г-11,5. Сборочный чертеж монолитного участка 8(9) 3.503-43/83 Лист 55. Армирование сборных плит проезжей части П-1. Спецификация арматуры 3.503-43/83 Лист 56. Армирование сборных плит проезжей части П-2. Спецификация арматуры 3.503-43/83 Лист 57. Армирование сборных плит проезжей части П-3. Спецификация арматуры 3.503-43/83 Лист 58. Пролетное строение 15м Г-8. Армирование монолитного участка 1. Спецификация арматуры 3.503-43/83 Лист 59. Пролетное строение 15м Г-10. Армирование монолитного участка 2. Спецификация арматуры 3.503-43/83 Лист 60. Пролетное строение 15м Г-11,5. Армирование монолитного участка 3. Спецификация арматуры 3.503-43/83 Лист 61. Пролетное строение 24м Г-8. Армирование монолитного участка 4. Спецификация арматуры 3.503-43/83 Лист 62. Пролетное строение 24м Г-10. Армирование монолитного участка 5. Спецификация арматуры 3.503-43/83 Лист 63. Пролетное строение 24м Г-11,5. Армирование монолитного участка 6. Спецификация арматуры 3.503-43/83 Лист 64. Пролетное строение 33м Г-8. Армирование монолитного участка 7. Спецификация арматуры 3.503-43/83 Лист 65. Пролетное строение 33м Г-10. Армирование монолитного участка 8. Спецификация арматуры 3.503-43/83 Лист 66. Пролетное строение 33м Г-11,5. Армирование монолитного участка 9. Спецификация арматуры 3.503-43/83 Лист 67. Пролетное строение 15 и 24м Г-8. Сборочный чертеж монолитной плиты проезжей части 3.503-43/83 Лист 68. Пролетное строение 15 и 24м Г-10 и Г-11,5. Сборочный чертеж монолитной плиты проезжей части 3.503-43/83 Лист 69. Пролетное строение 33м Г-8. Сборочный чертеж монолитной плиты проезжей части 3.503-43/83 Лист 70. Пролетное строение 33м Г-10 и Г-11,5. Сборочный чертеж монолитной плиты проезжей части 3.503-43/83 Лист 71. Пролетное строение 15м Г-8. Армирование монолитной плиты проезжей части. Спецификация арматуры 3.503-43/83 Лист 72. Пролетное строение 15м Г-10. Армирование монолитной плиты проезжей части. Спецификация арматуры 3.503-43/83 Лист 73. Пролетное строение 15м Г-11,5. Армирование монолитной плиты проезжей части. Спецификация арматуры 3.503-43/83 Лист 74. Пролетное строение 24м Г-8. Армирование монолитной плиты проезжей части. Спецификация арматуры 3.503-43/83 Лист 75. Пролетное строение 24м Г-10. Армирование монолитной плиты проезжей части. Спецификация арматуры 3.503-43/83 Лист 76. Пролетное строение 24м Г-11,5. Армирование монолитной плиты проезжей части. Спецификация арматуры 3.503-43/83 Лист 77. Пролетное строение 33м Г-8. Армирование монолитной плиты проезжей части. Спецификация арматуры 3.503-43/83 Лист 78. Пролетное строение 33м Г-10. Армирование монолитной плиты проезжей части. Спецификация арматуры 3.503-43/83 Лист 79. Пролетное строение 33м Г-11,5. Армирование монолитной плиты проезжей части. Спецификация арматуры 3.503-43/83 Лист 80. Закладные детали. Швы омоноличивания сборных плит проезжей части. Таблицы объемов работ |
| Разработан: | ЦНИИпроектстальконструкция Госстроя |
| Утверждён: | 19.11.1980 Минавтодор РСФСР (Russian Federation Minavtodor 33) |
































































































