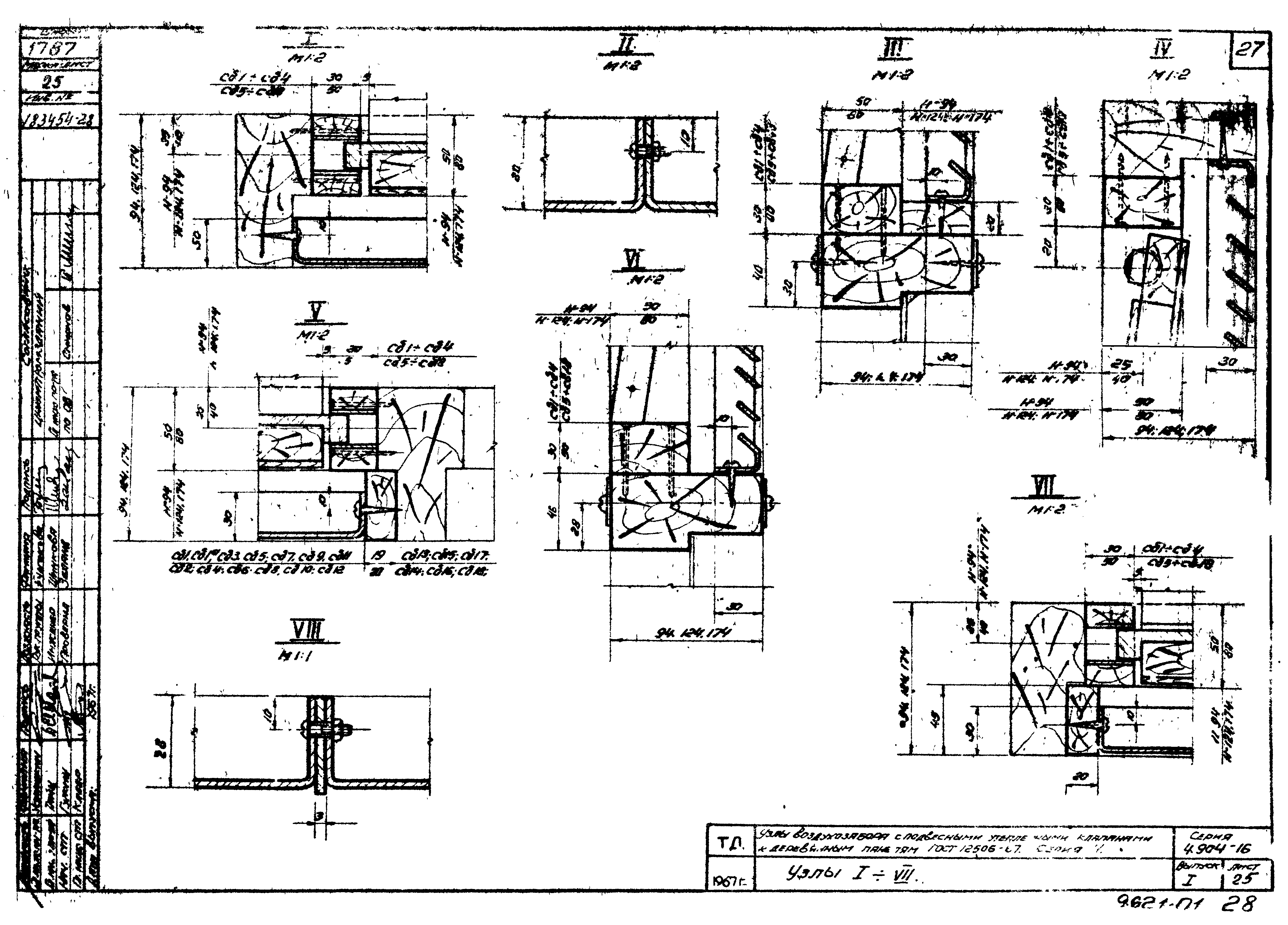
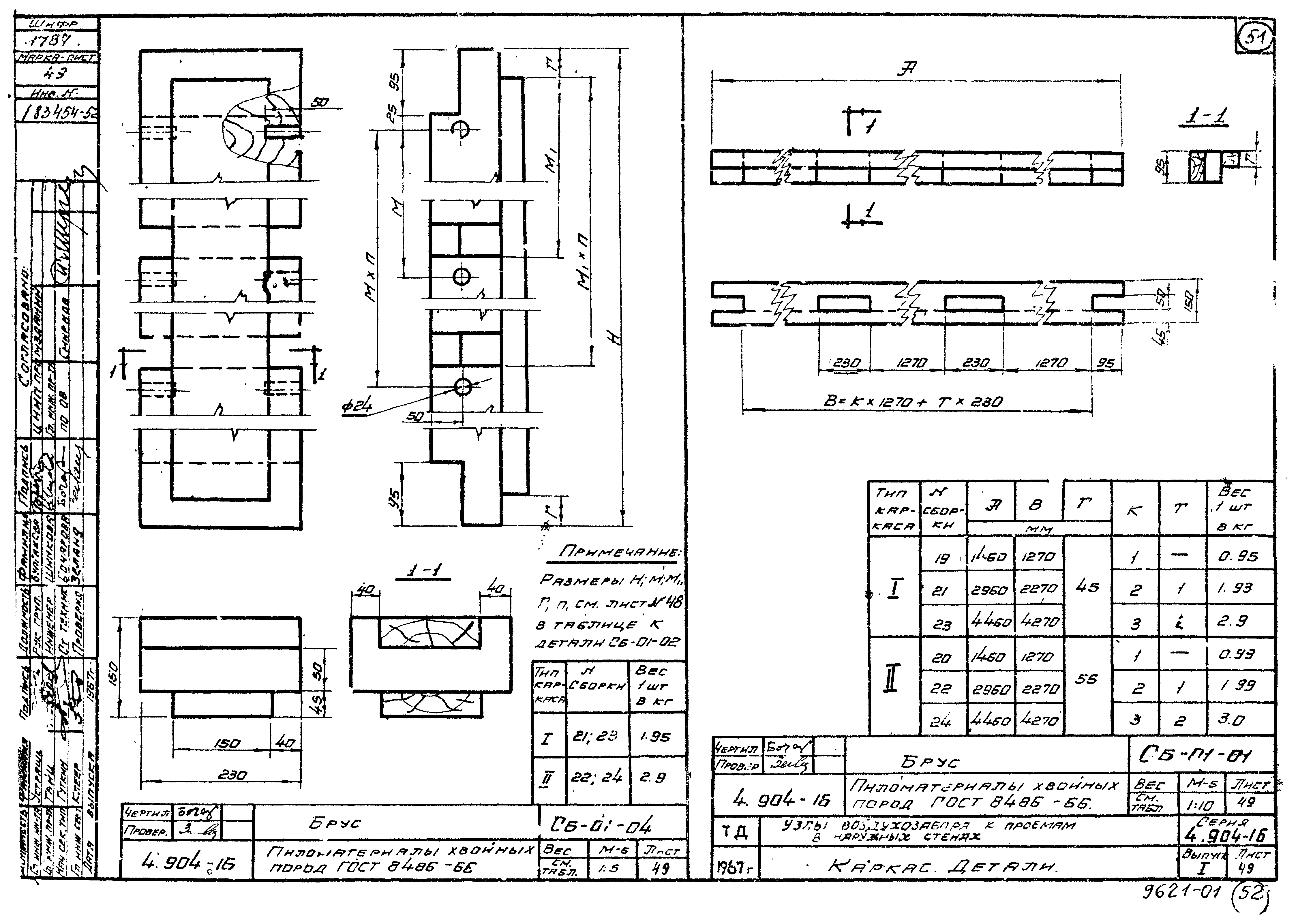
Скачать Серия 4.904-16 Выпуск 1. Узлы воздухозабора с подвесными утепленными клапанами к деревянным панелям ГОСТ 12506-67 серия НДата актуализации: 01.01.2021
|
| Обозначение: | Серия 4.904-16 |
| Обозначение англ: | Series 4.904-16 |
| Статус: | не действует |
| Название рус.: | Выпуск 1. Узлы воздухозабора с подвесными утепленными клапанами к деревянным панелям ГОСТ 12506-67 серия Н |
| Дата добавления в базу: | 01.09.2013 |
| Дата актуализации: | 01.01.2021 |
| Дата окончания срока действия: | 01.01.1977 |
| Разработан: | ЦНИИпромзданий Госхимпроект |
| Утверждён: | 14.12.1967 Госстрой СССР (Государственный комитет Совета Министров СССР по делам строительства) (USSR Gosstroy 373) |
| Чем заменён: |



















































