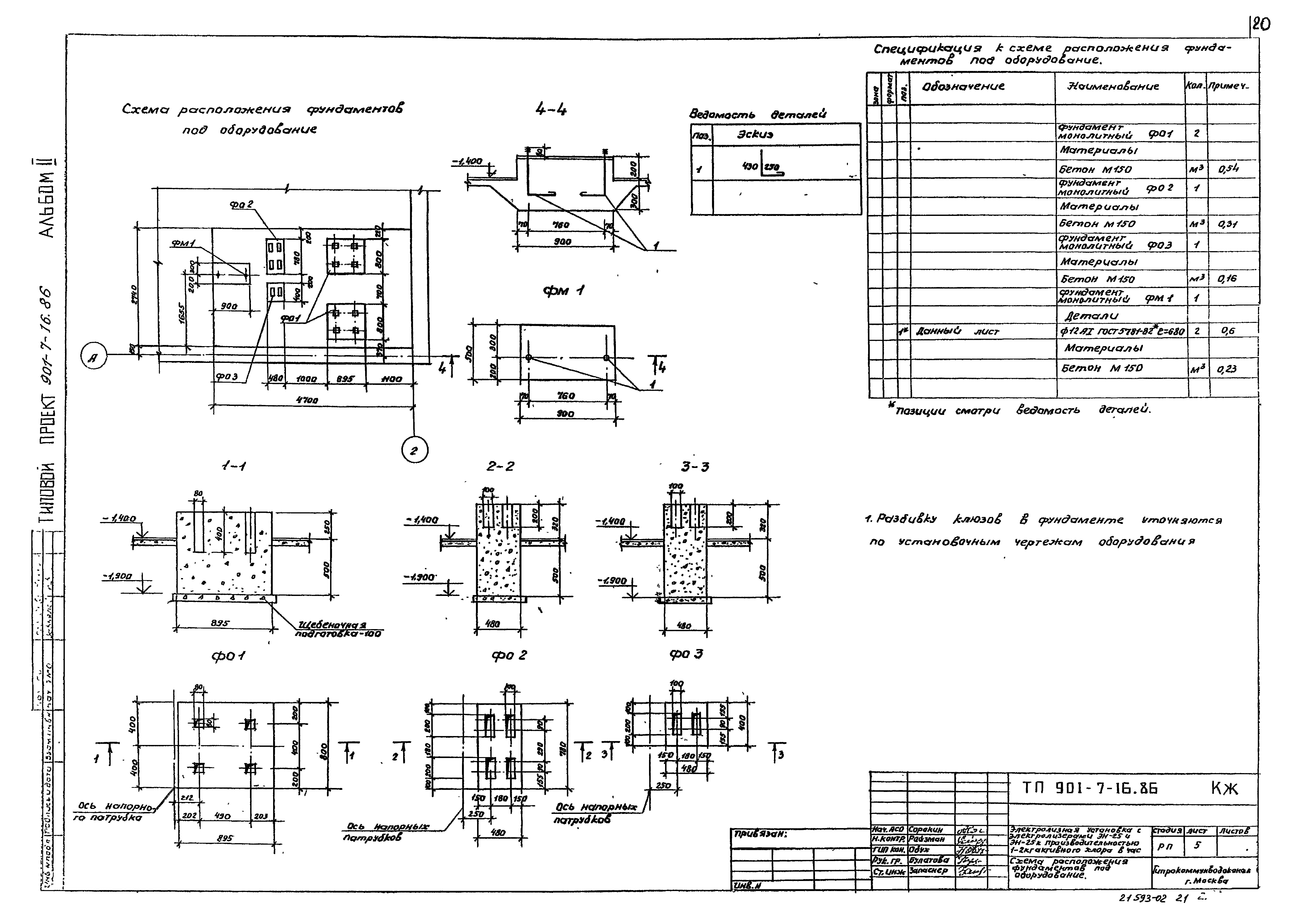
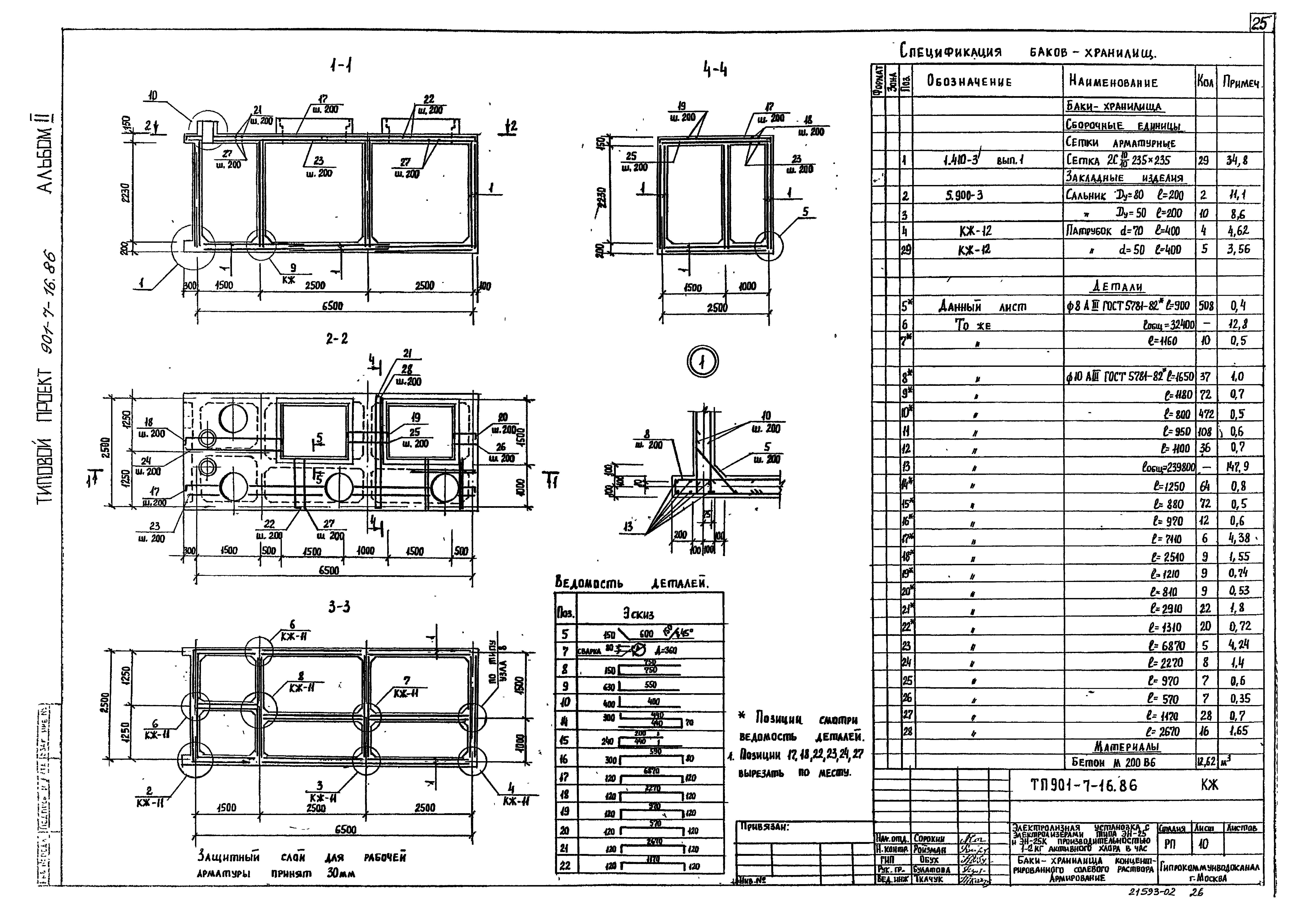
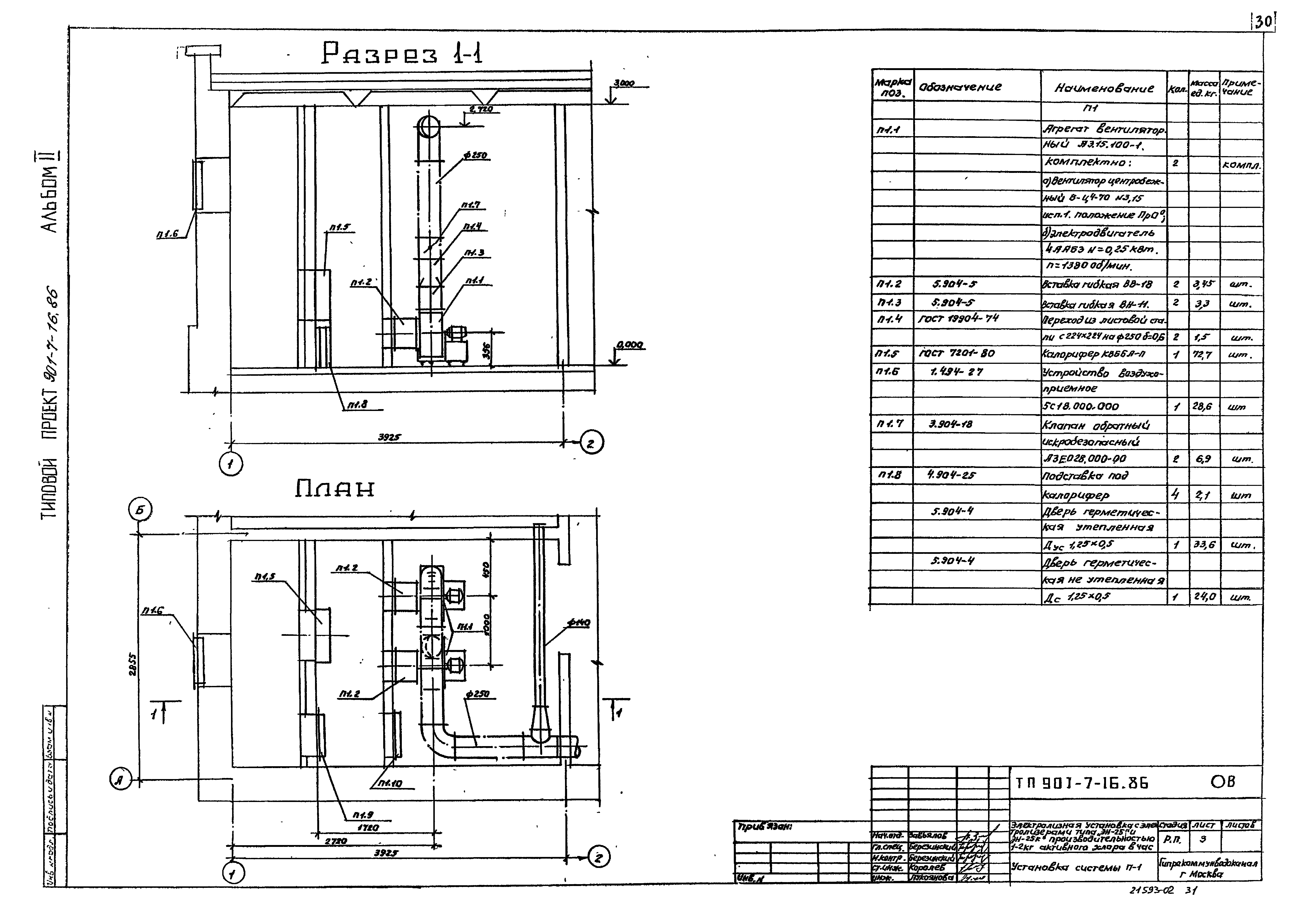
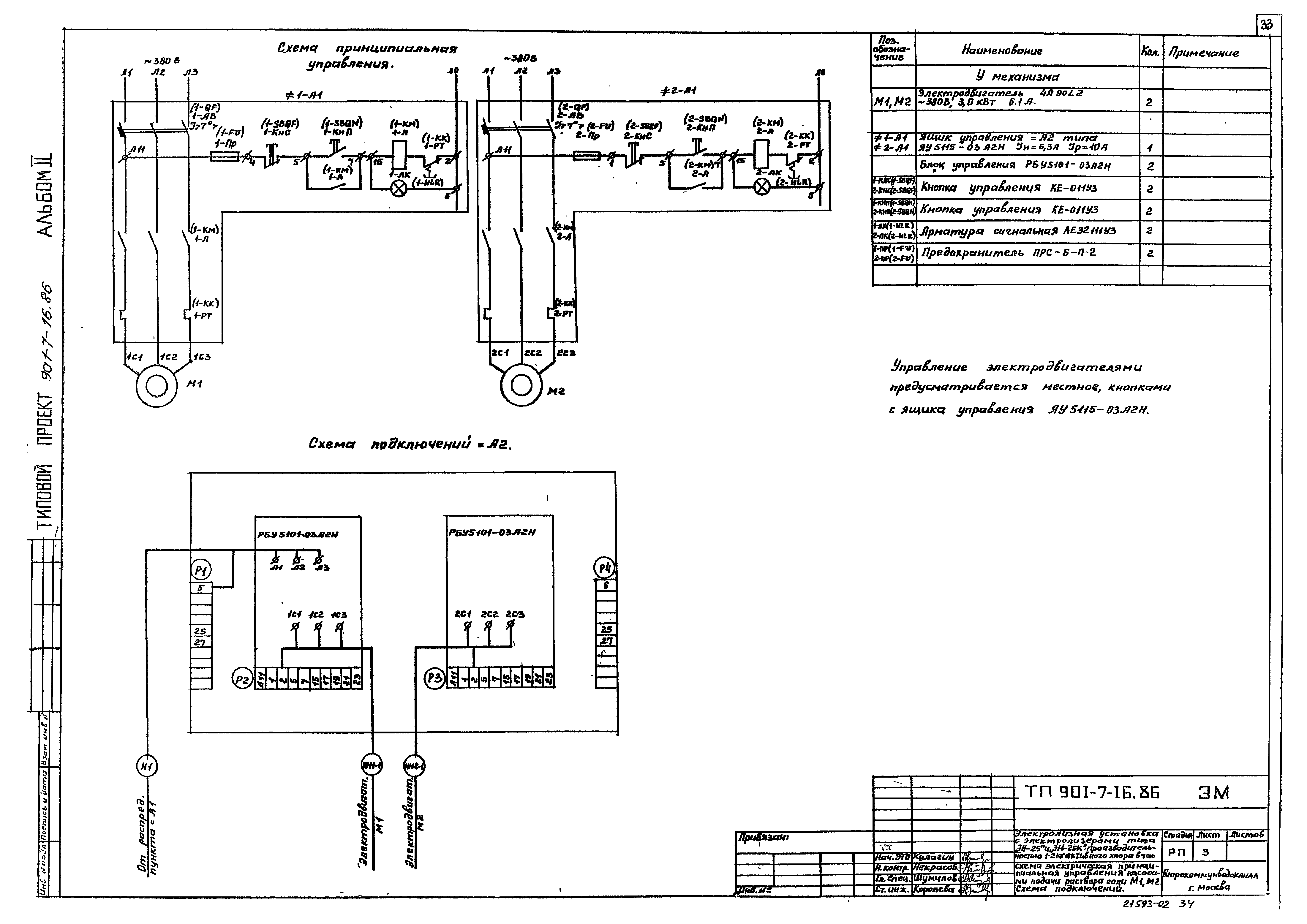
Скачать Типовой проект 901-7-16.86 Альбом II. Технологические, архитектурно-строительные, санитарно-технические, электротехнические решения, нестандартизированное оборудованиеДата актуализации: 01.01.2021 Типовой проект 901-7-16.86
Альбом II. Технологические, архитектурно-строительные, санитарно-технические, электротехнические решения, нестандартизированное оборудование| Обозначение: | Типовой проект 901-7-16.86 | | Обозначение англ: | 901-7-16.86 | | Статус: | не определен законодательством | | Название рус.: | Альбом II. Технологические, архитектурно-строительные, санитарно-технические, электротехнические решения, нестандартизированное оборудование | | Дата добавления в базу: | 01.09.2013 | | Дата актуализации: | 01.01.2021 | | Дата введения: | 24.06.1986 | | Дата окончания срока действия: | 30.06.2003 | | Разработан: | Гипрокоммунводоканал Минжилкомхоза РСФСР
| | Утверждён: | 13.05.1986 Госстрой РСФСР (Russian Federation Gosstroy 48)
| | Заменяет собой: | |
                                             
|