Скачать Типовой проект 902-2-346 Альбом II. Строительная частьДата актуализации: 01.01.2021
|
| Обозначение: | Типовой проект 902-2-346 |
| Обозначение англ: | 902-2-346 |
| Статус: | не действует |
| Название рус.: | Альбом II. Строительная часть |
| Дата добавления в базу: | 01.09.2013 |
| Дата актуализации: | 01.01.2021 |
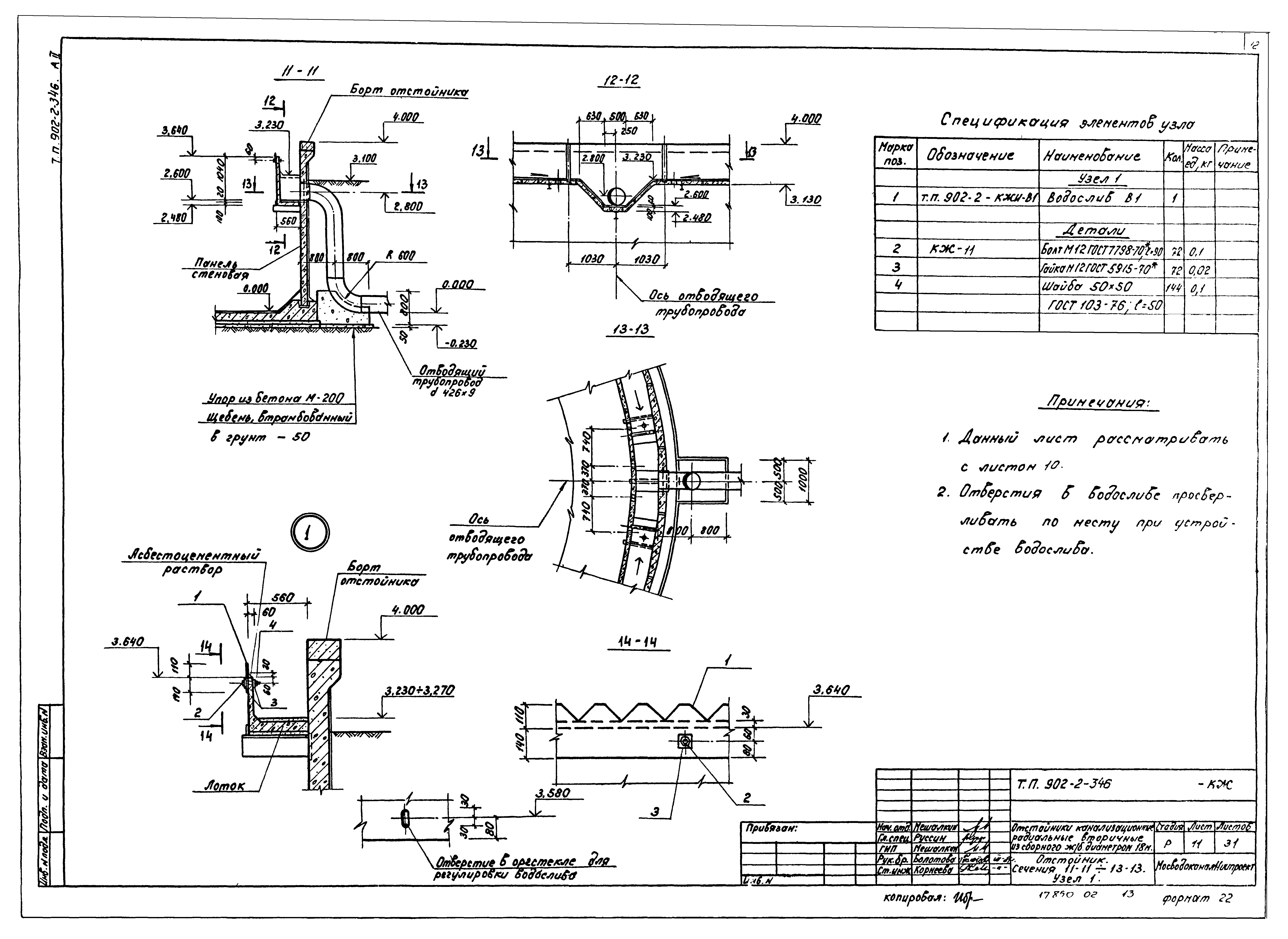
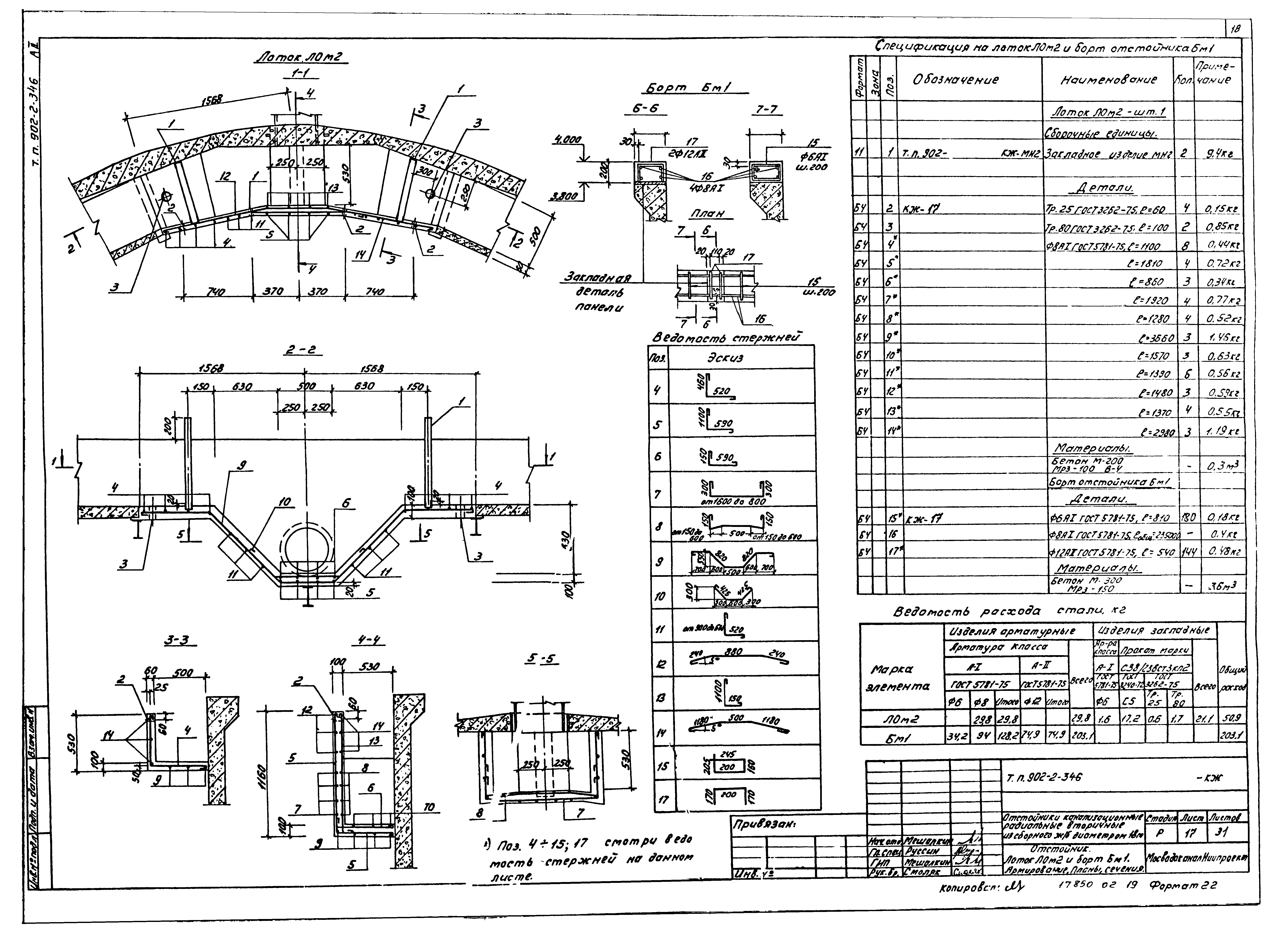
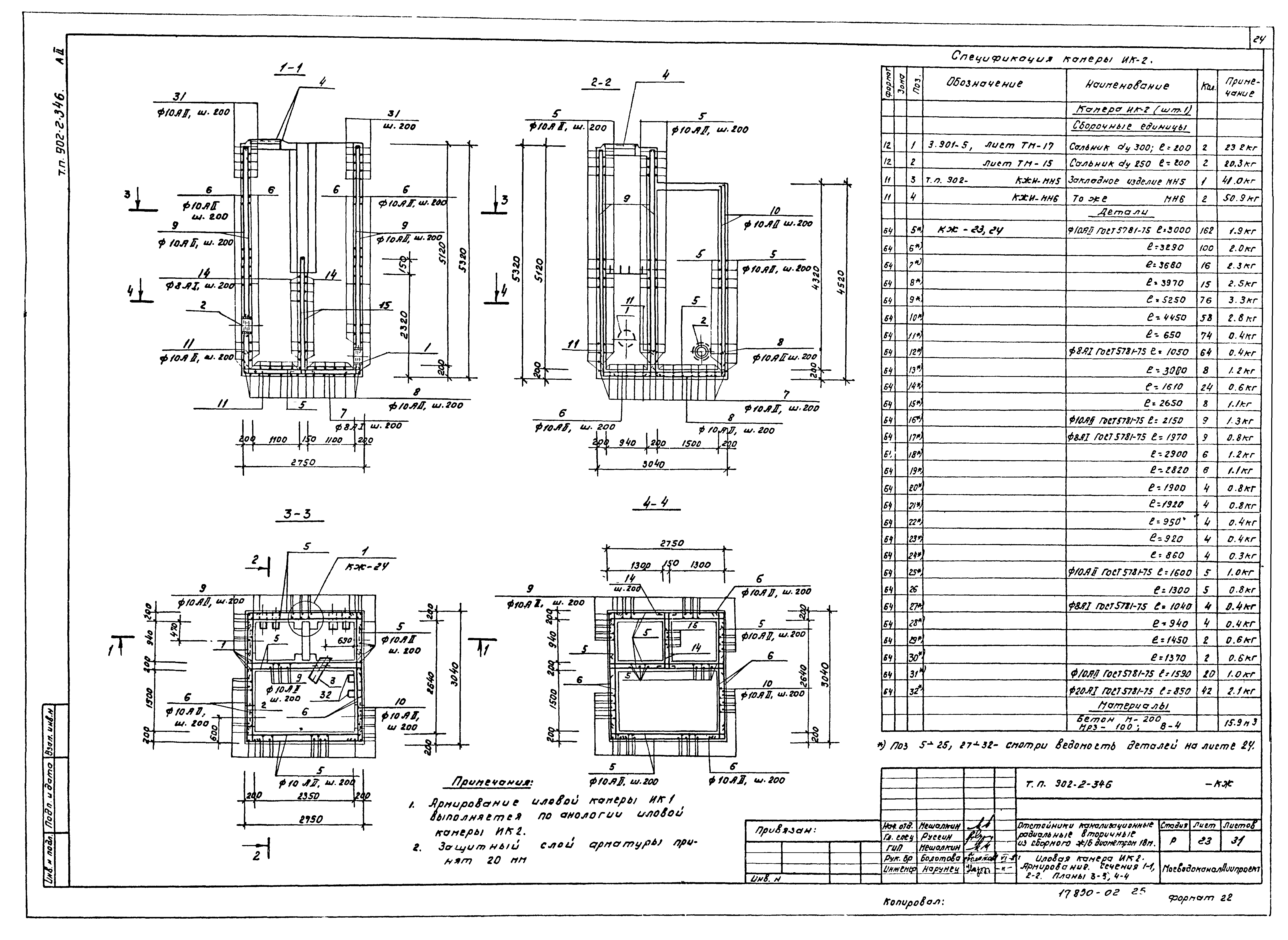
| Оглавление: | ТП 902-2-346-КЖ Общие данные (начало) ТП 902-2-346-КЖ Общие данные (продолжение) ТП 902-2-346-КЖ Общие данные (окончание) ТП 902-2-346-КЖ План группы отстойников и коммуникаций ТП 902-2-346-КЖ Отстойник. План 2-2. Сечения 1-1,3-3 и 4-4 ТП 902-2-346-КЖ Отстойник. Сечения 5-5÷10-10 ТП 902-2-346-КЖ Отстойник. Сечения 11-11÷13-13. Узел 1 ТП 902-2-346-КЖ Отстойник. Днище. Армирование. Планы. Сечения 1-1,2-2 ТП 902-2-346-КЖ Отстойник. Днище. Армирование. Планы. Сечения 3-3÷8-8 ТП 902-2-346-КЖ Отстойник. Схема расположения стеновых панелей. Узлы 1,2. Сечение 1-1 ТП 902-2-346-КЖ Отстойник. Узлы 3-5. Деталь навивки кольцевой арматуры ТП 902-2-346-КЖ Отстойник. Схема расположения лотков. Узлы 6,7. Сечения ТП 902-2-346-КЖ Отстойник. Лоток ЛОМ2 и бори БМ1. Армирование. Планы, сечения ТП 902-2-346-КЖ Распределительная чаша. Планы 1-1,2-2,5-5. Сечения 3-3,4-4,6-6 ТП 902-2-346-КЖ Распределительная чаша. Армирование. Сечения 1-1÷4-4 ТП 902-2-346-КЖ Распределительная чаша. Армирование. Сечения 5-5÷8-8. УМ1 ТП 902-2-346-КЖ Камера ОВ1. Опалубка и армирование. Планы, сечения ТП 902-2-346-КЖ Иловая камера ИК2. Сечения 1-1÷3-3,6-6. Планы 4-4,5-5 ТП 902-2-346-КЖ Иловая камера ИК2. Армирование. Сечения 1-1,2-2. Планы 3-3,4-4 ТП 902-2-346-КЖ Иловая камера ИК2. Армирование. План перекрытия. Сечения 6-6÷10-10 ТП 902-2-346-КЖ Отстойник. Вариант с термонатяжением арматуры. Схема расположения панелей, консолей. Сечение 1-1. Узлы 1,2 ТП 902-2-346-КЖ Отстойник. Вариант с термонатяжением арматуры. Узлы 3,4. Армирование ТП 902-2-346-КЖ Отстойник. Вариант с термонатяжением арматуры. Узел 5. Армирование ТП 902-2-346-КЖ Отстойник. Вариант с термонатяжением арматуры. Узел 6. Детали сечений арматуры ТП 902-2-346-КЖ Отстойник. Вариант с термонатяжением арматуры. Узел 7. План 1-1. Сечения 2-2÷4-4 ТП 902-2-346-КЖ Отстойник. Вариант с термонатяжением арматуры. План оборудования при нагреве трех стержней ТП 902-2-346-КЖ Отстойник. Вариант с термонатяжением арматуры. Принципиальная схема питания. План оборудования при натяжении одного стержня |
| Разработан: | МосводоканалНИИпроект |
| Утверждён: | 01.10.1981 МосводоканалНИИпроект (203) |

































