Скачать Типовой проект 902-3-48.86 Альбом IV. Электротехническая часть. АвтоматизацияДата актуализации: 01.01.2021
|
| Обозначение: | Типовой проект 902-3-48.86 |
| Обозначение англ: | 902-3-48.86 |
| Статус: | не определен законодательством |
| Название рус.: | Альбом IV. Электротехническая часть. Автоматизация |
| Дата добавления в базу: | 01.09.2013 |
| Дата актуализации: | 01.01.2021 |
| Дата введения: | 12.12.1985 |
| Дата окончания срока действия: | 30.06.2003 |
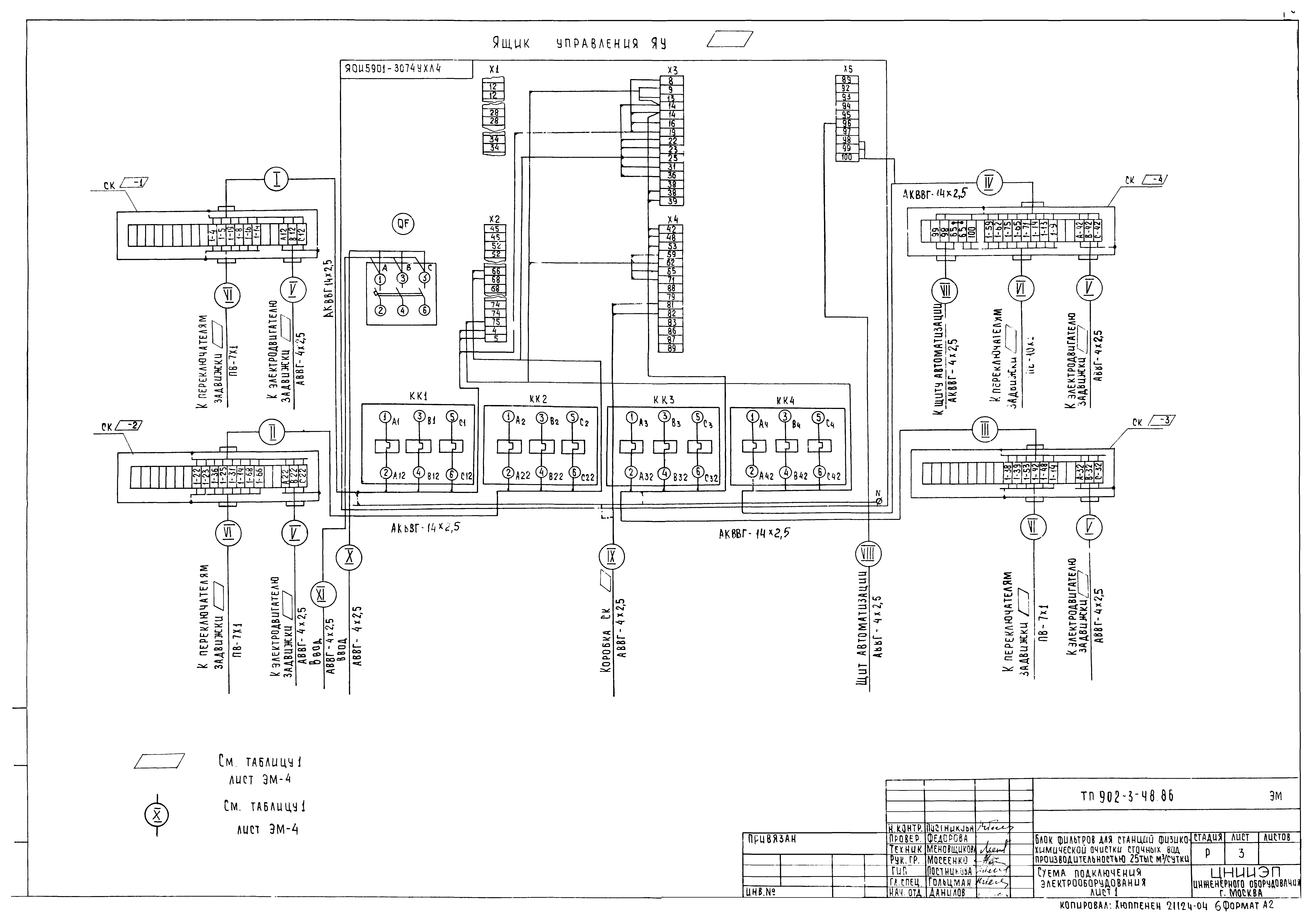
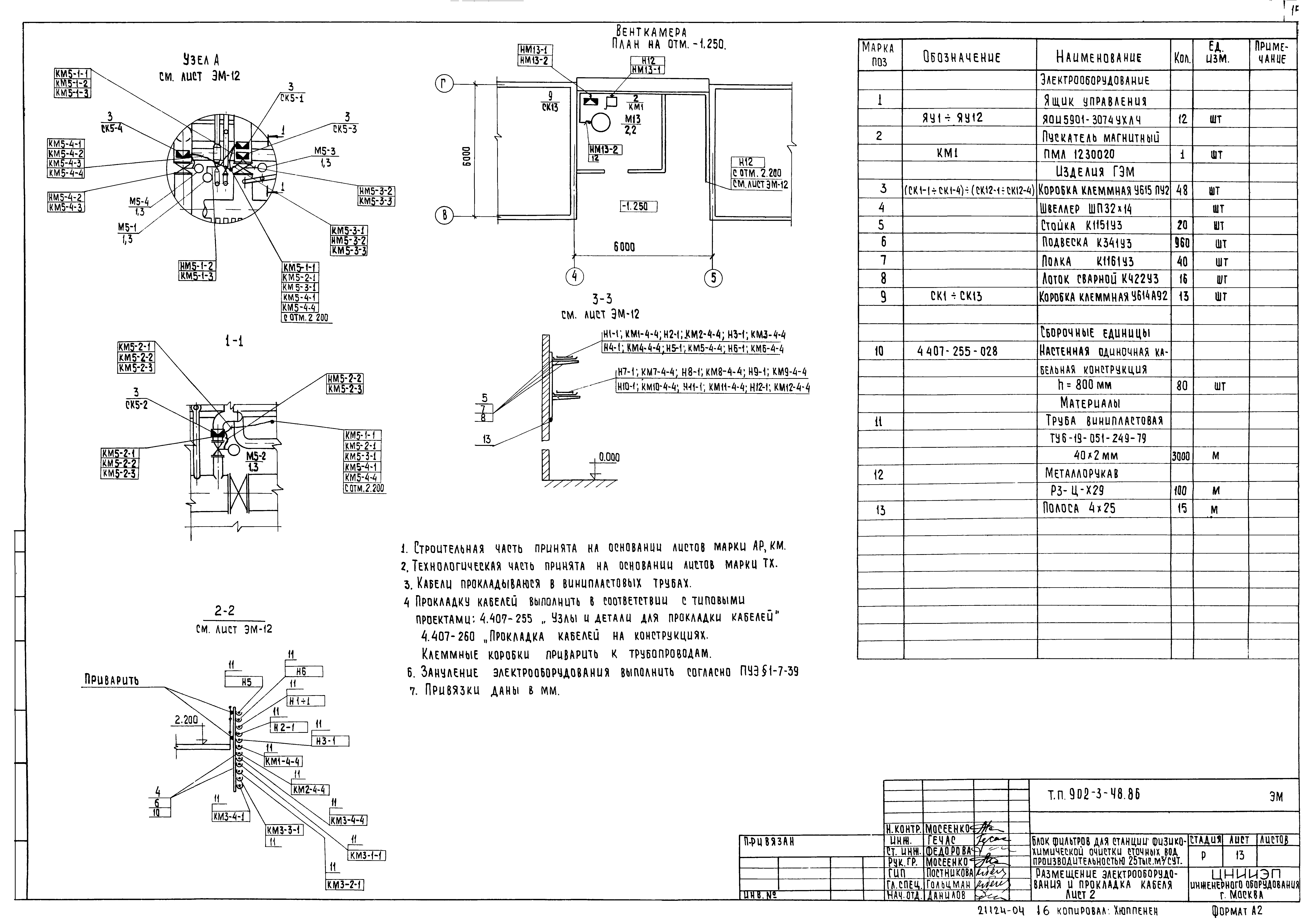
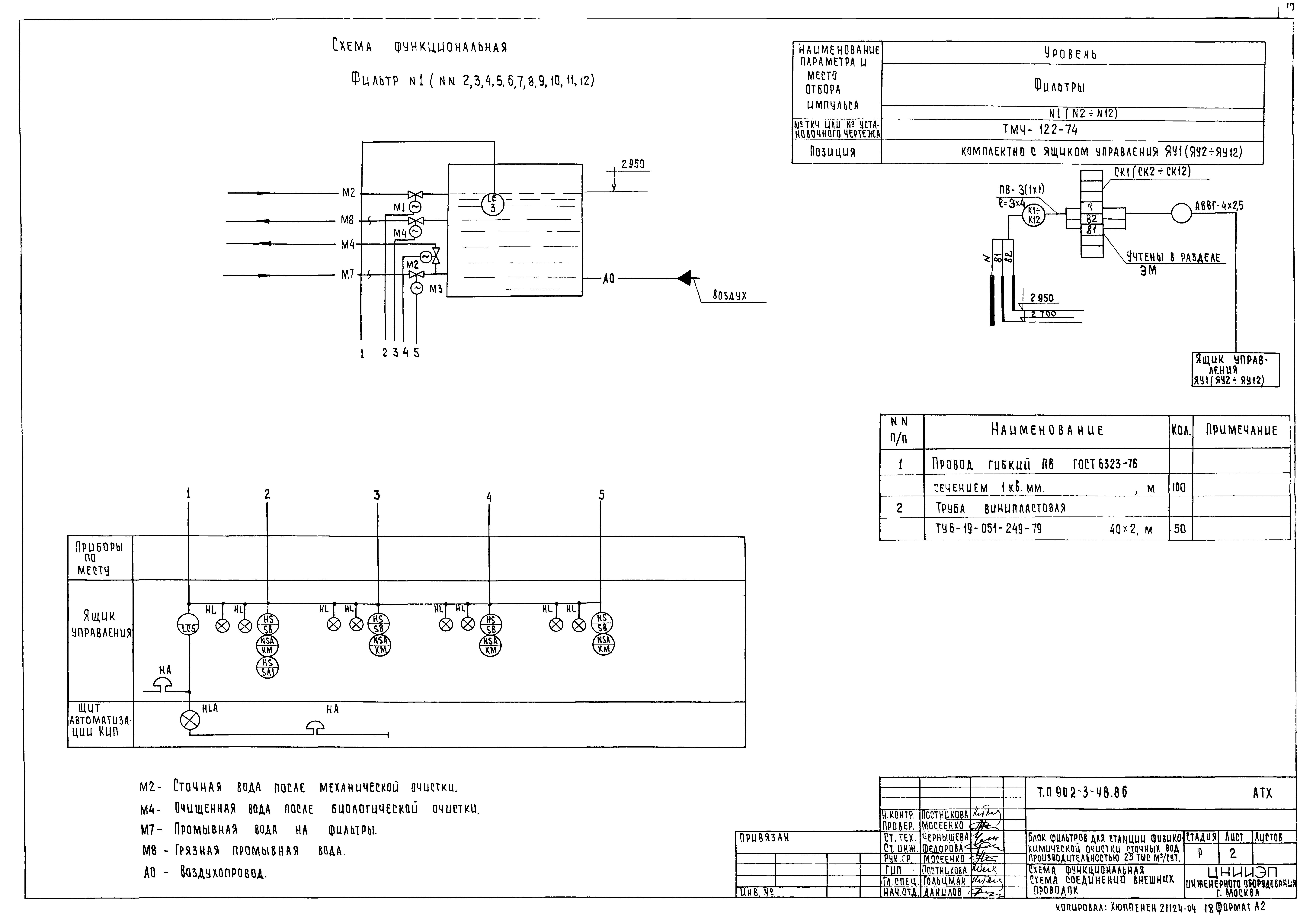
| Оглавление: | ТП 902-3-48.86-ЭМ Электрическая часть ТП 902-3-48.86-ЭМ-1 Общие данные ТП 902-3-48.86-ЭМ-2 Схема электрическая принципиальная питания электрооборудования ТП 902-3-48.86-ЭМ-3 Схема подключения электрооборудования. Лист 1 ТП 902-3-48.86-ЭМ-4 Схема подключения электрооборудования. Лист 2 ТП 902-3-48.86-ЭМ-5 Схема подключения электрооборудования. Лист 3. Сводка кабелей и проводов, учтенных кабельным журналом ТП 902-3-48.86-ЭМ-6 Кабельный журнал. Лист 1 ТП 902-3-48.86-ЭМ-7 Кабельный журнал. Лист 2 ТП 902-3-48.86-ЭМ-8 Кабельный журнал. Лист 3 ТП 902-3-48.86-ЭМ-9 Кабельный журнал. Лист 4 ТП 902-3-48.86-ЭМ-10 Кабельный журнал. Лист 5 ТП 902-3-48.86-ЭМ-11 Кабельный журнал. Лист 6 ТП 902-3-48.86-ЭМ-12 Размещение электрооборудования и оборудования и прокладка кабеля. Лист 1 ТП 902-3-48.86-ЭМ-13 Размещение электрооборудования и прокладка кабеля. Лист 2 ТП 902-3-48.86-АТХ Автоматизация ТП 902-3-48.86-АТХ-1 Общие данные ТП 902-3-48.86-АТХ-2 Схема функциональная. Схема соединений внешних проводок ТП 902-3-48.86-АТХ-3 План расположения ТП 902-3-48.86-ЭО Электрическое освещение ТП 902-3-48.86-ЭО-1 Общие данные ТП 902-3-48.86-ЭО-2 Электрическое освещение. План. Галерея |
| Разработан: | ЦНИИЭП |
| Утверждён: | 05.11.1984 Госгражданстрой (Gosgrazhdanstroy 320) |





















