Скачать Типовой проект 902-2-403.86 Альбом III. Архитектурные решения. Конструкции железобетонные. Конструкции металлические. Отопление и вентиляцияДата актуализации: 01.01.2021
|
| Обозначение: | Типовой проект 902-2-403.86 |
| Обозначение англ: | 902-2-403.86 |
| Статус: | заменен |
| Название рус.: | Альбом III. Архитектурные решения. Конструкции железобетонные. Конструкции металлические. Отопление и вентиляция |
| Дата добавления в базу: | 01.09.2013 |
| Дата актуализации: | 01.01.2021 |
| Дата введения: | 27.03.1985 |
| Дата окончания срока действия: | 01.10.1987 |
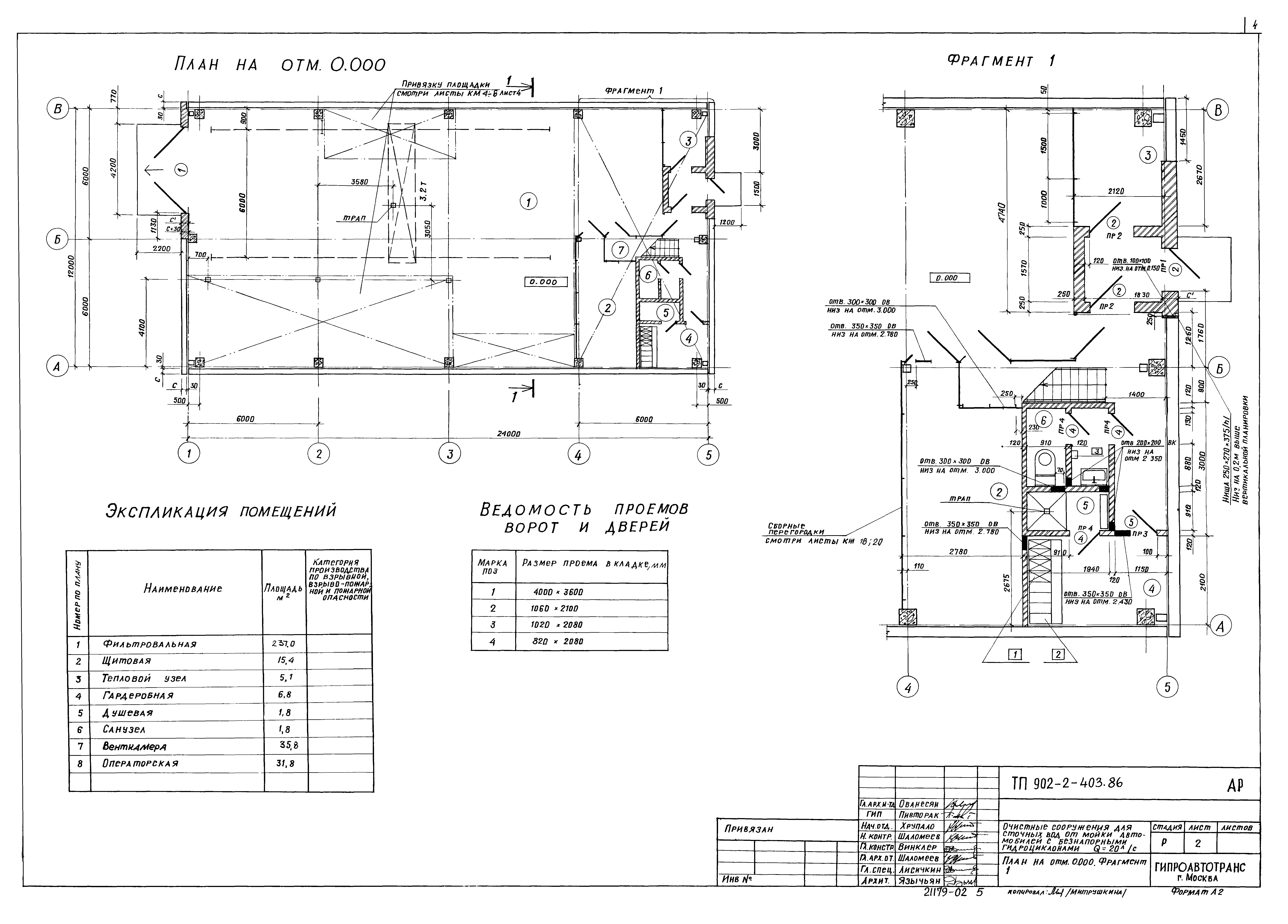
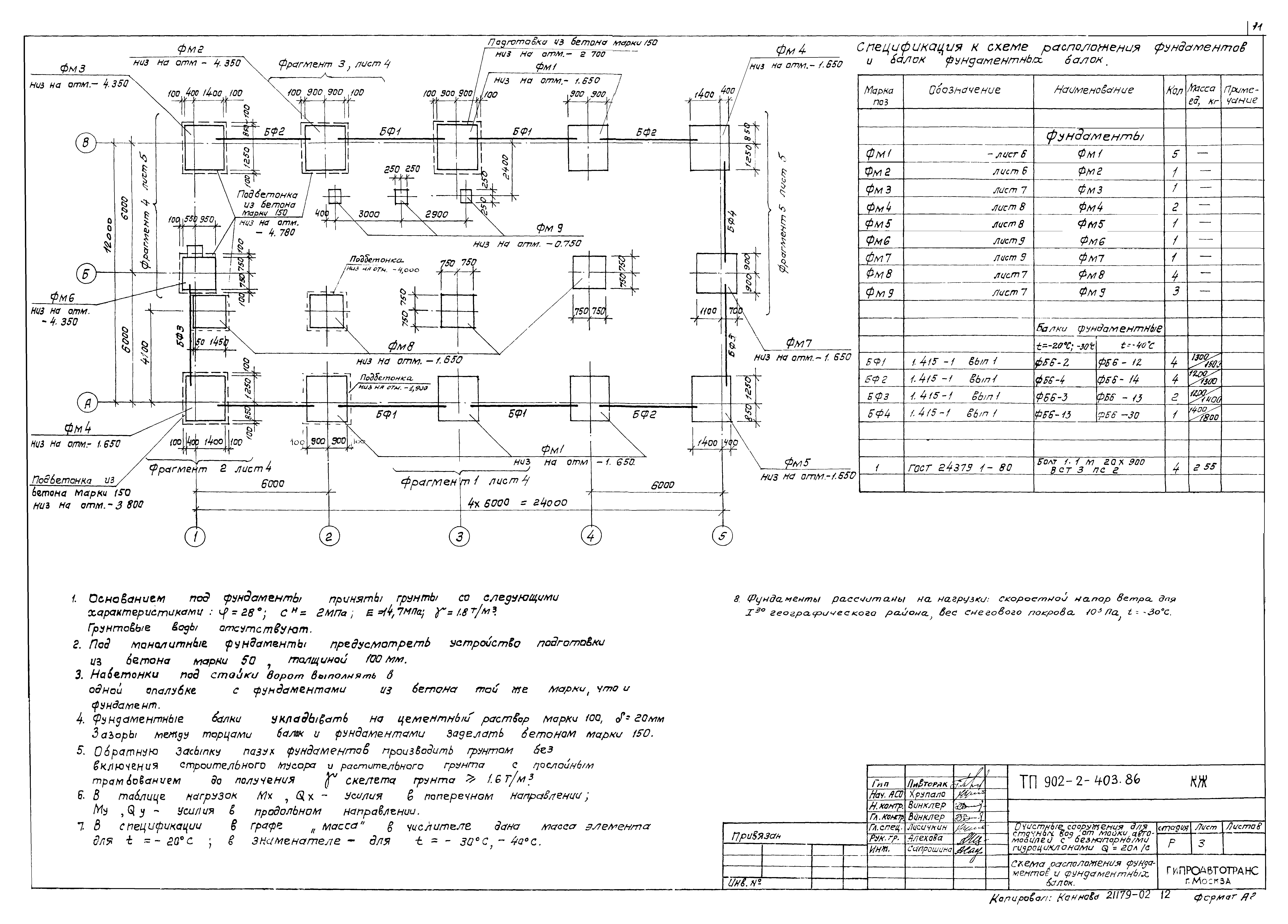
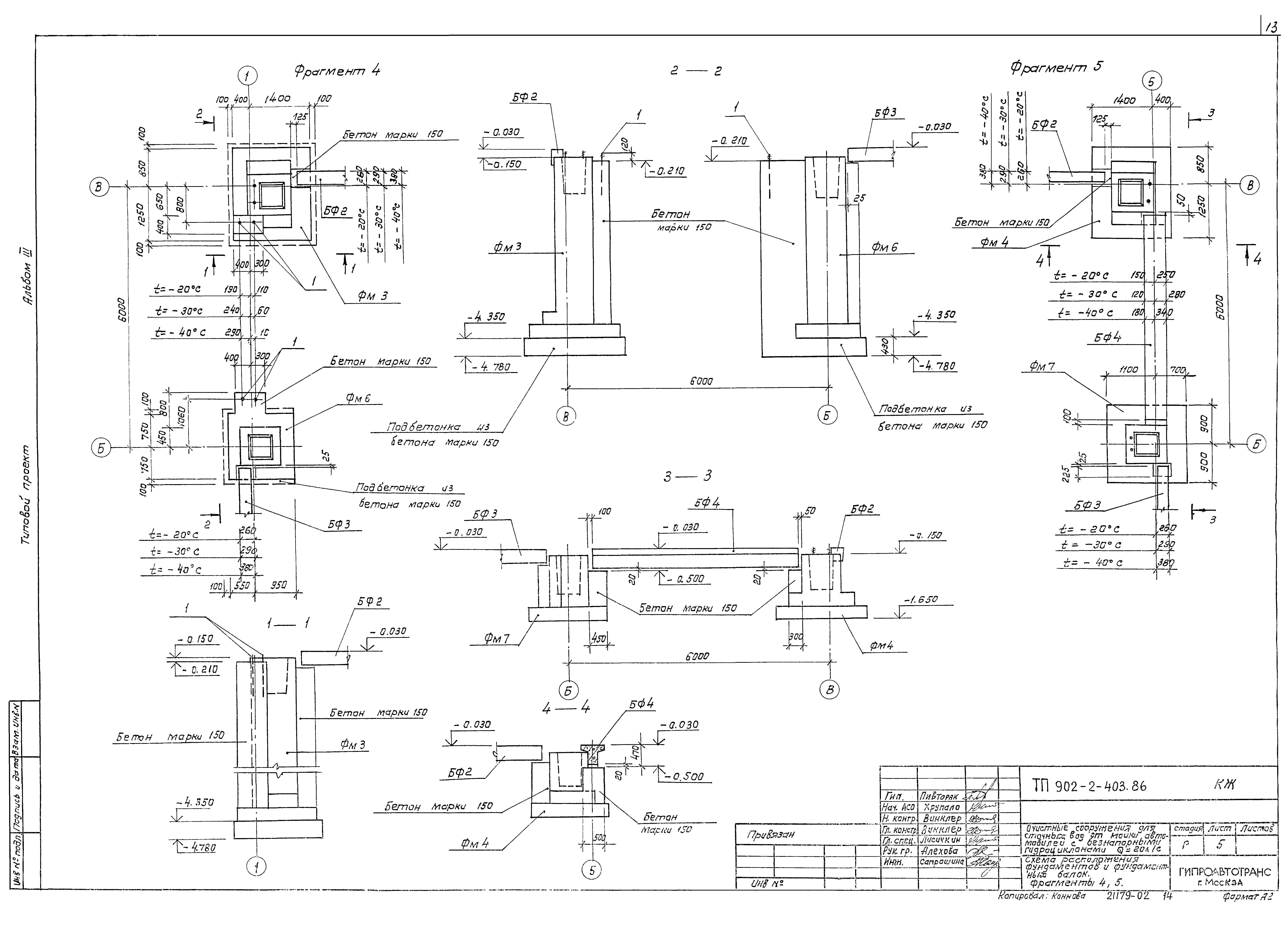
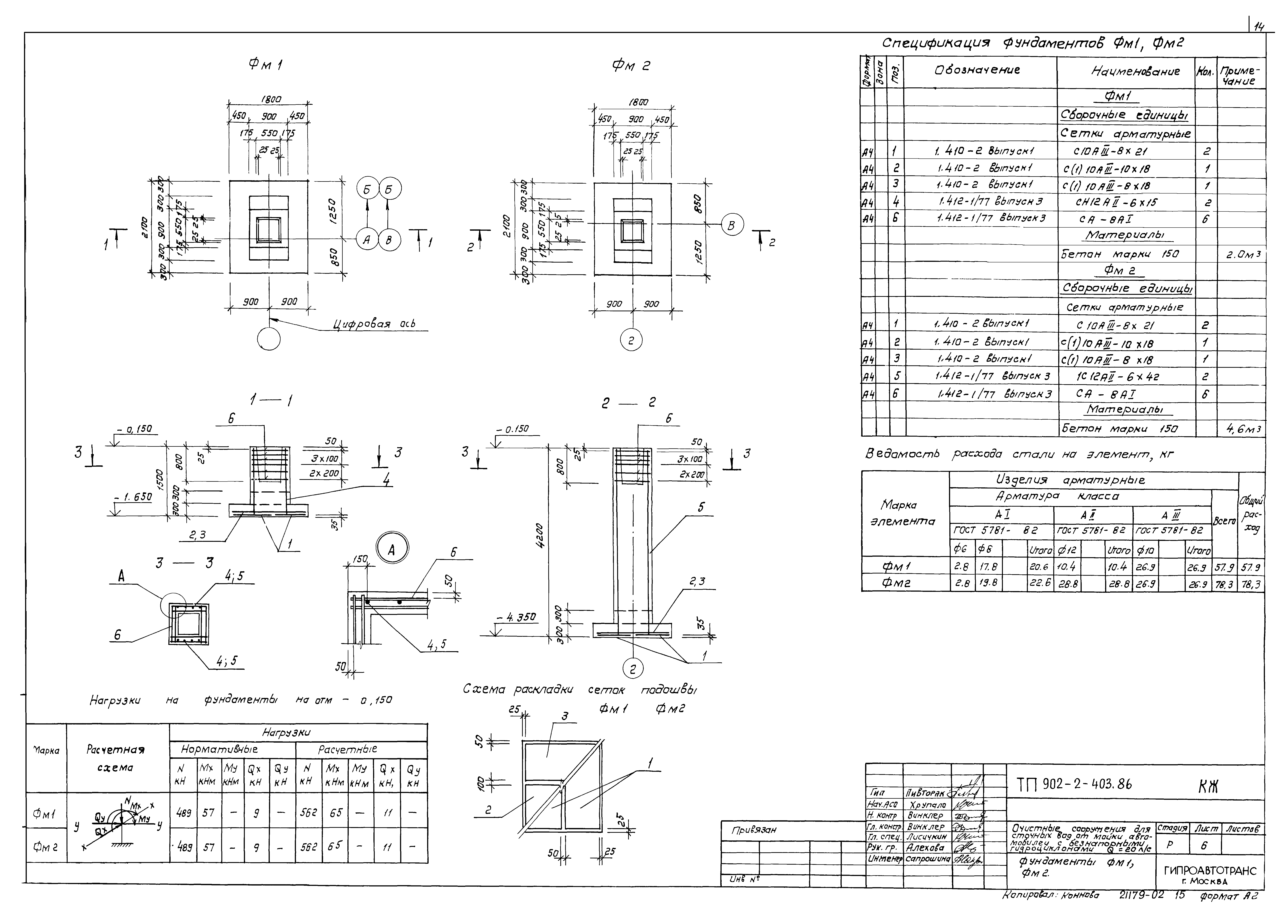
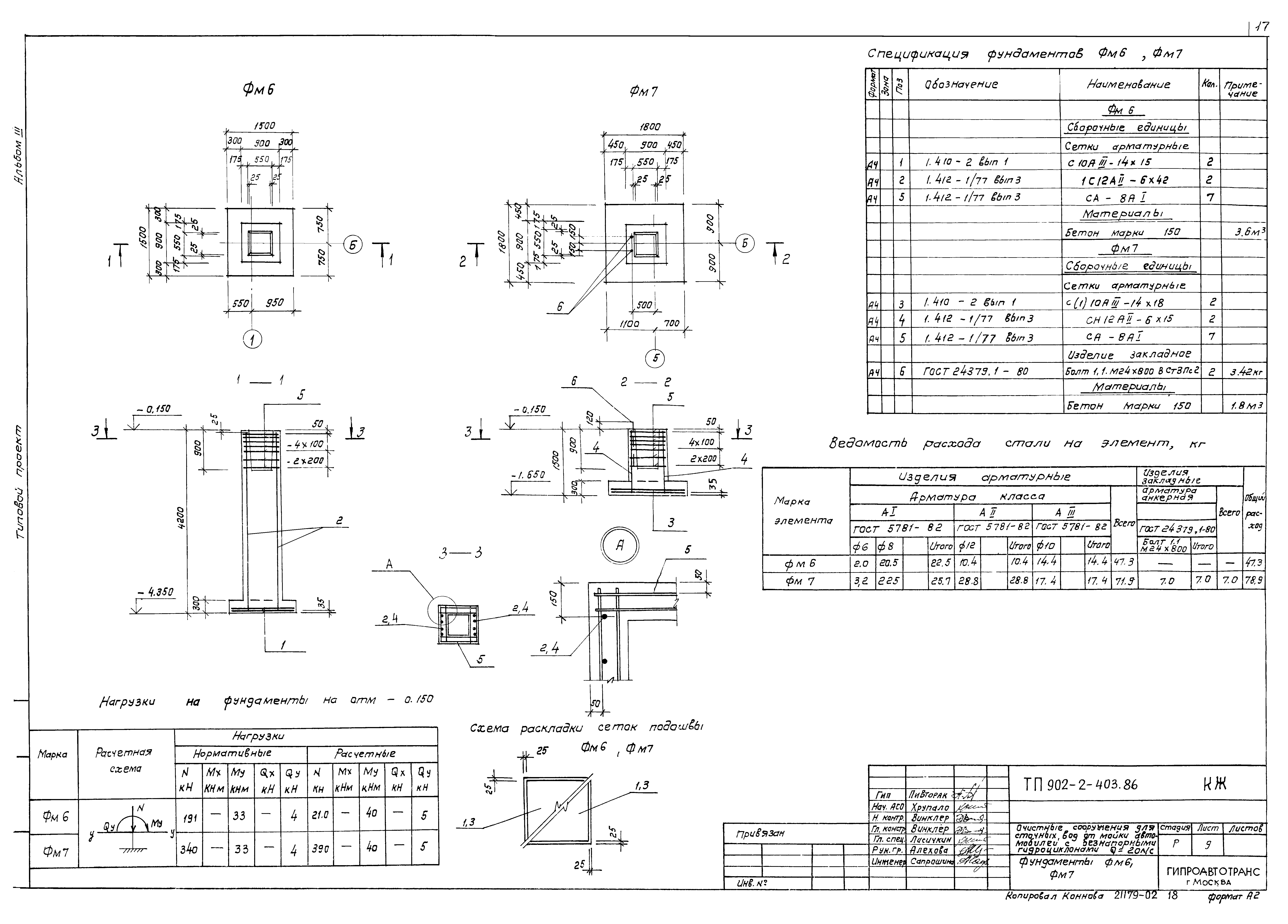
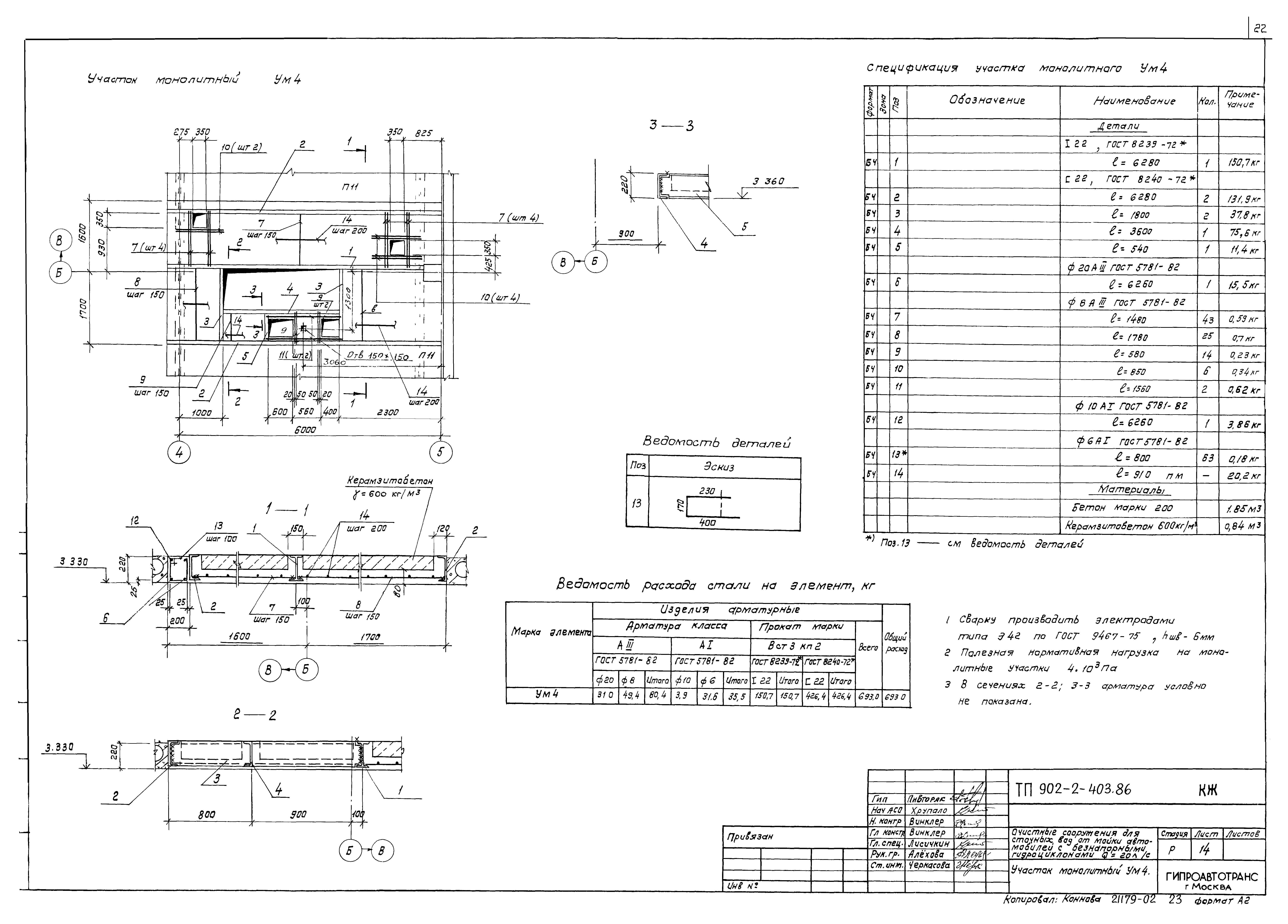
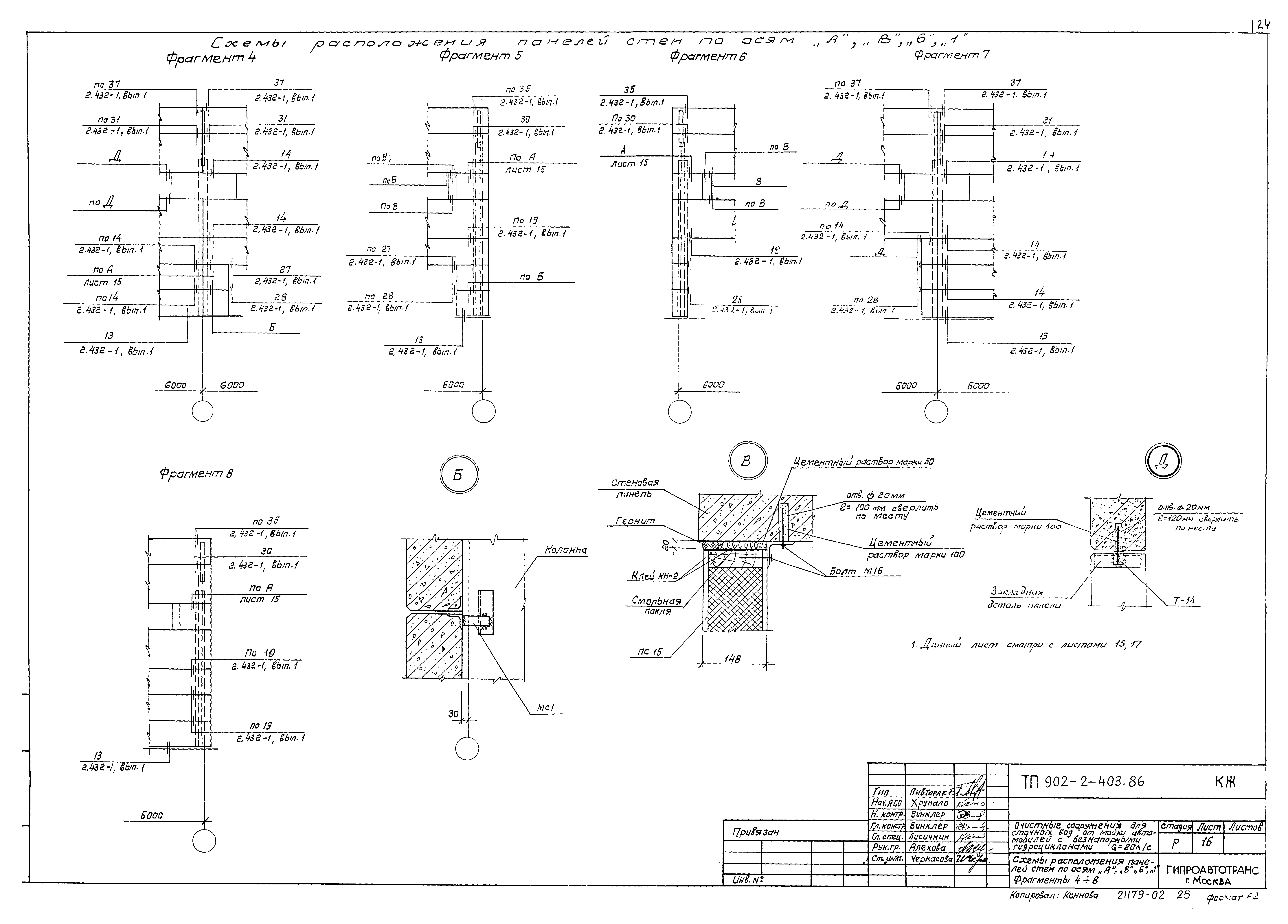
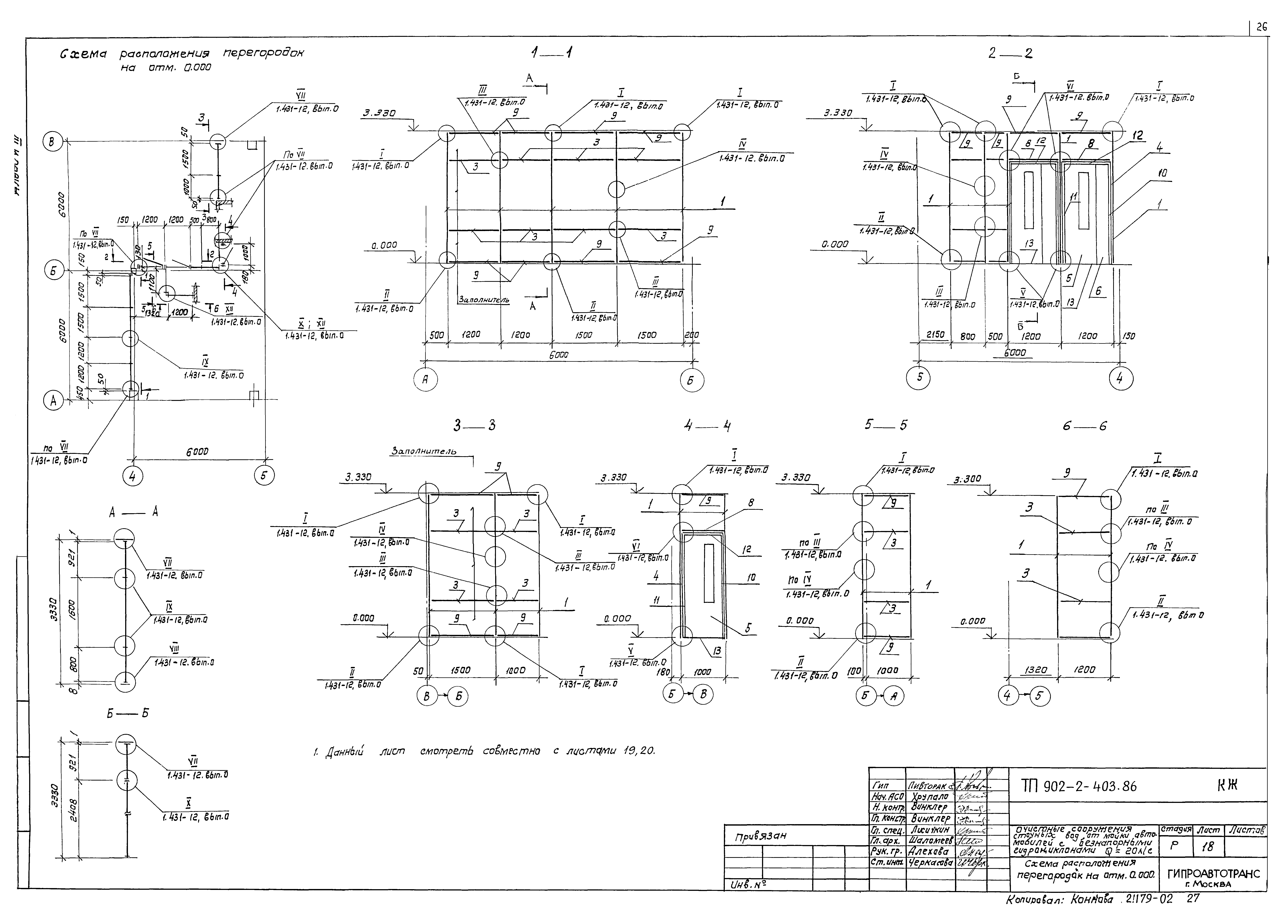
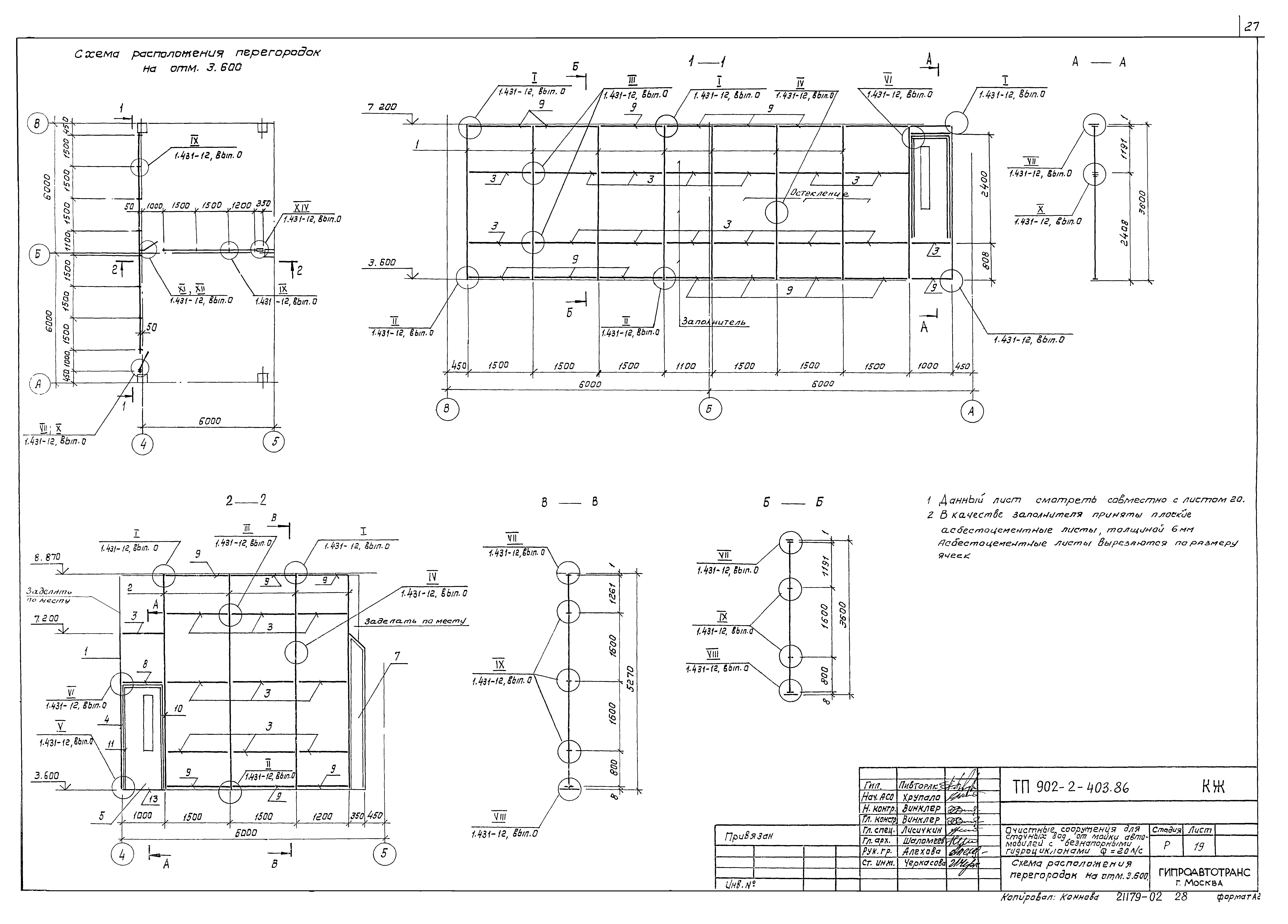
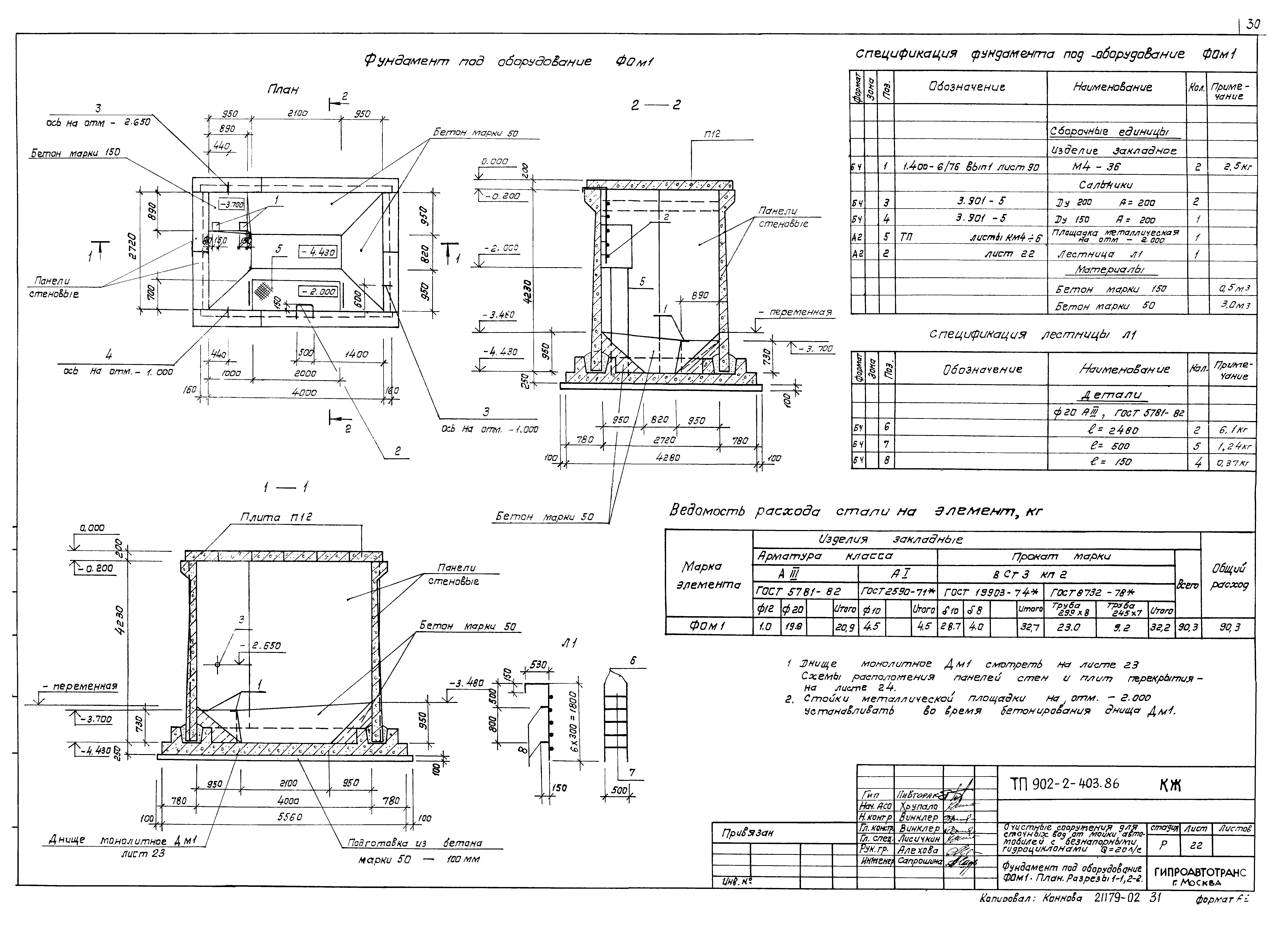
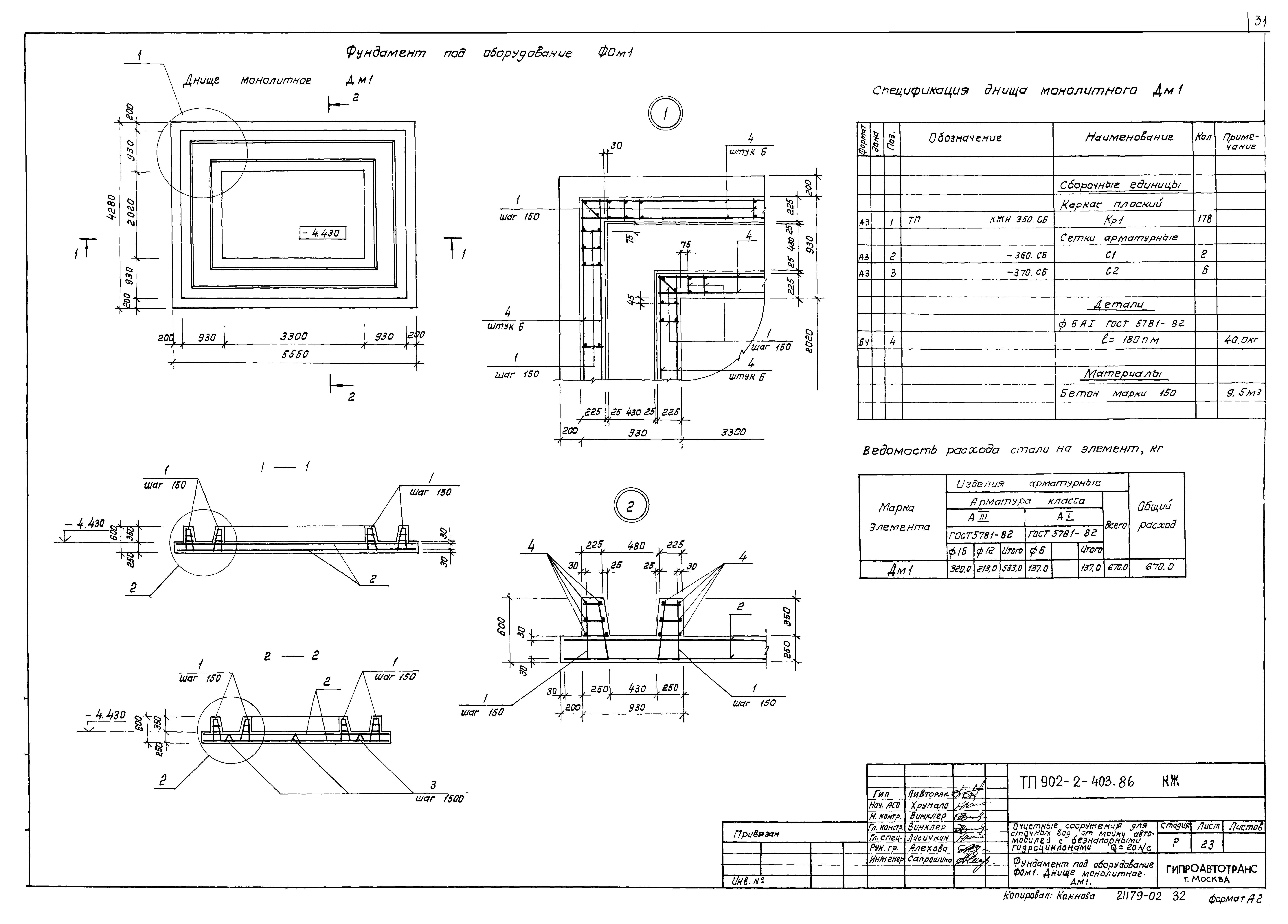
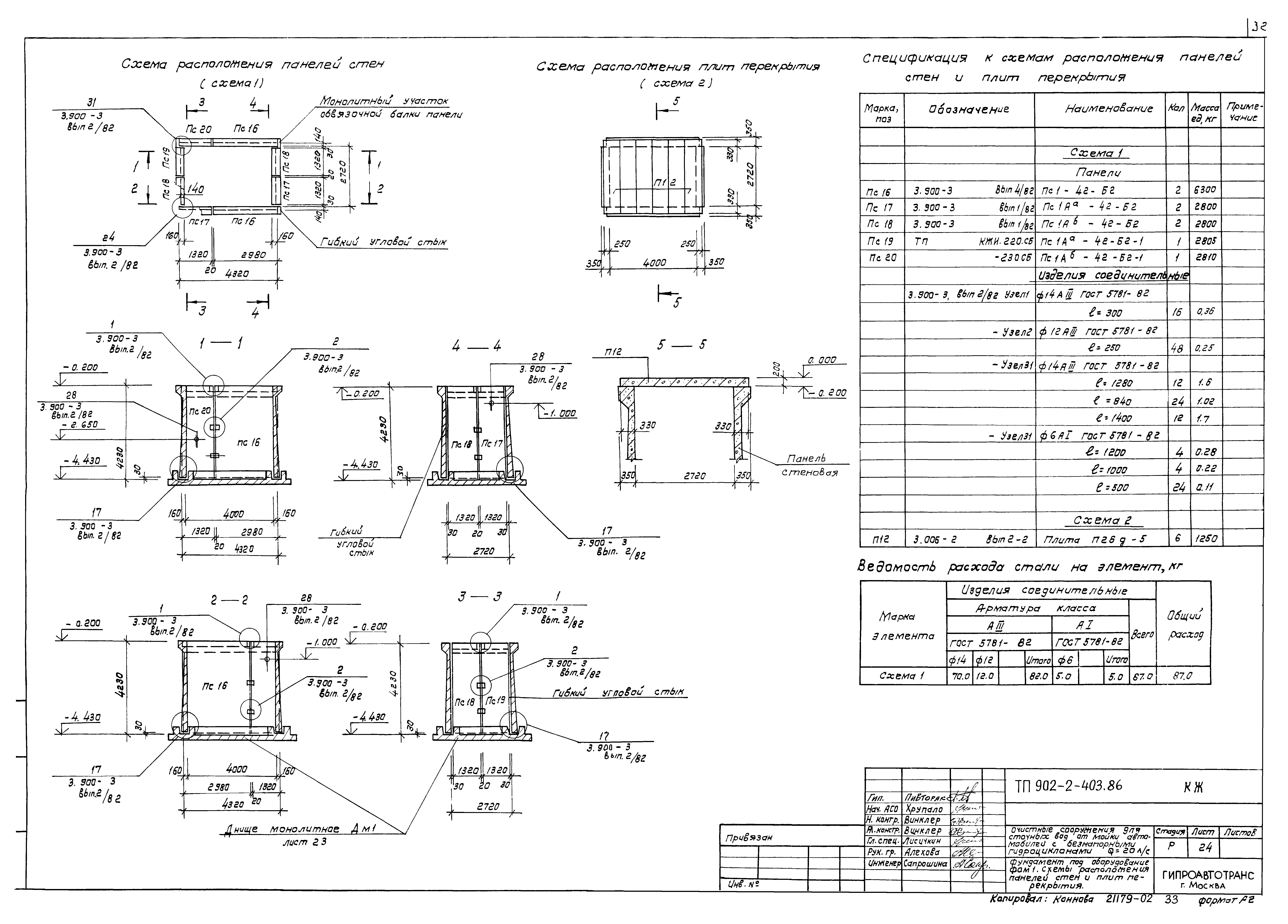
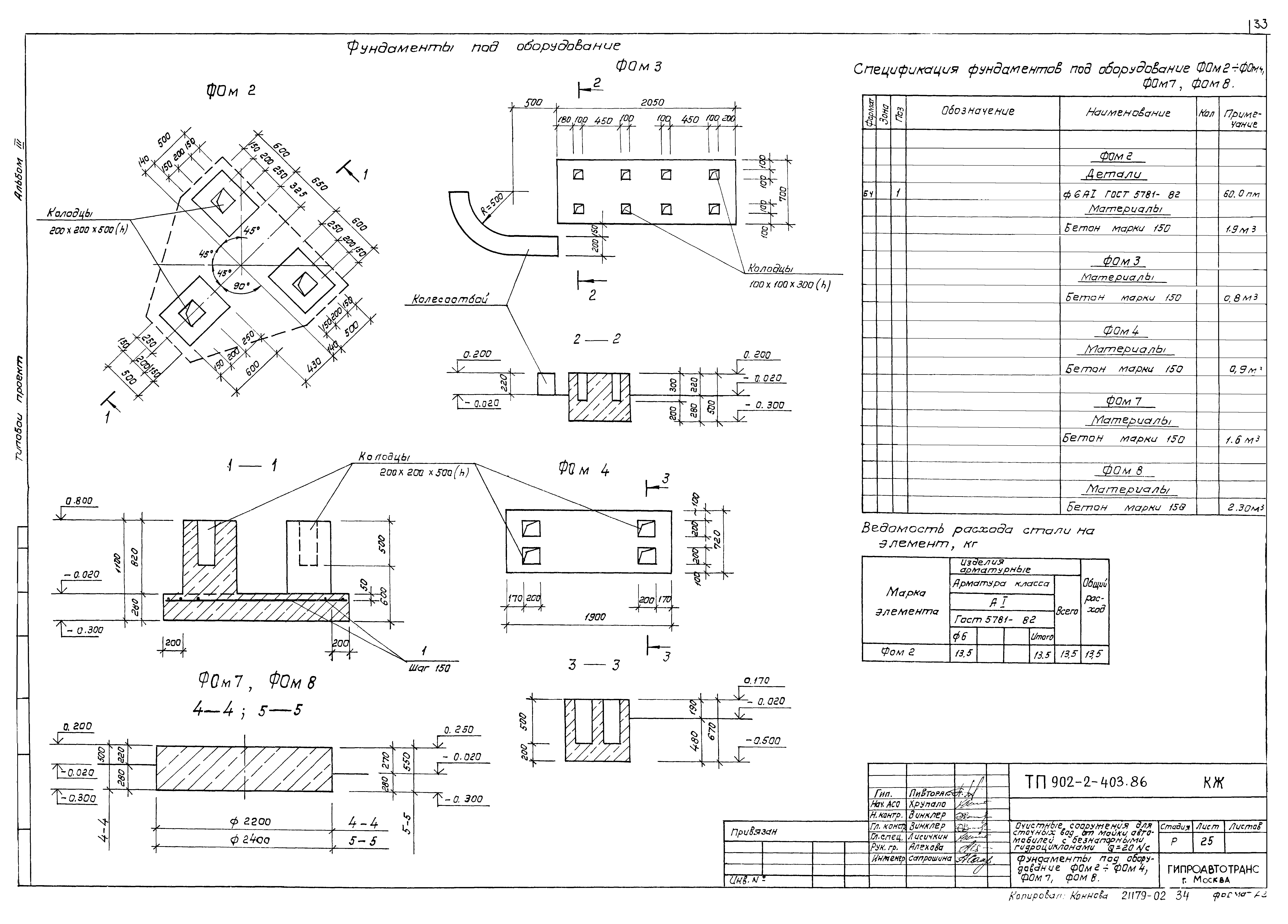
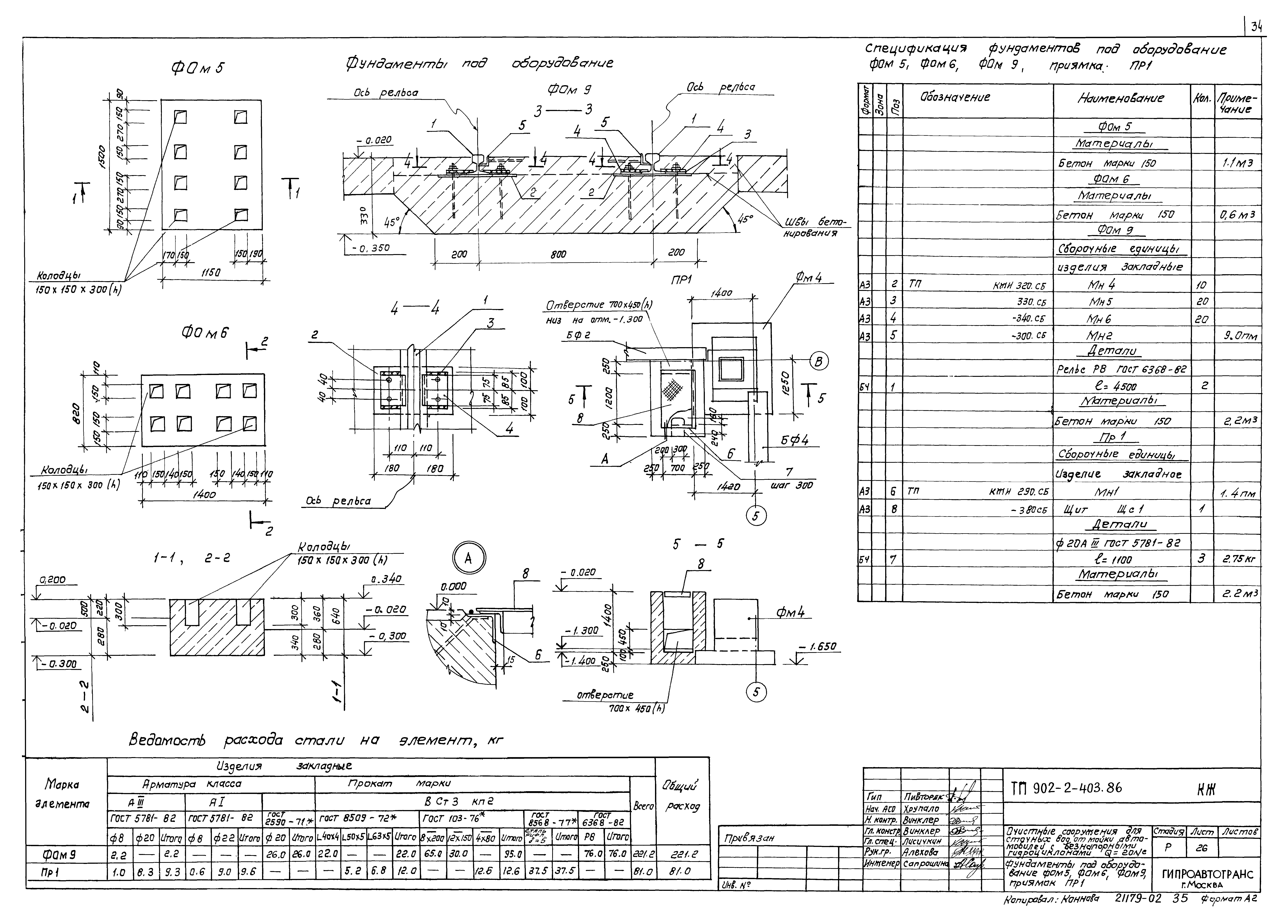
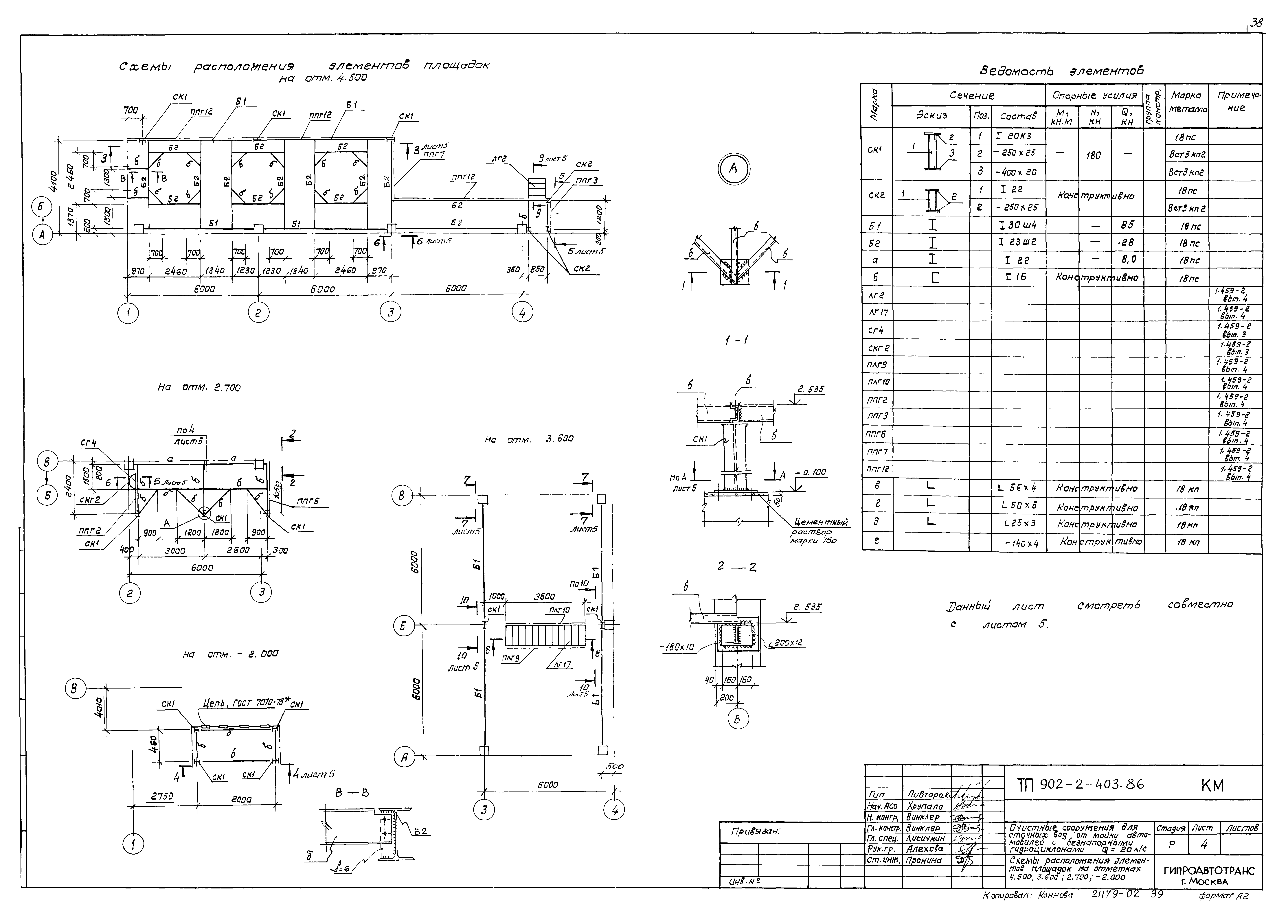
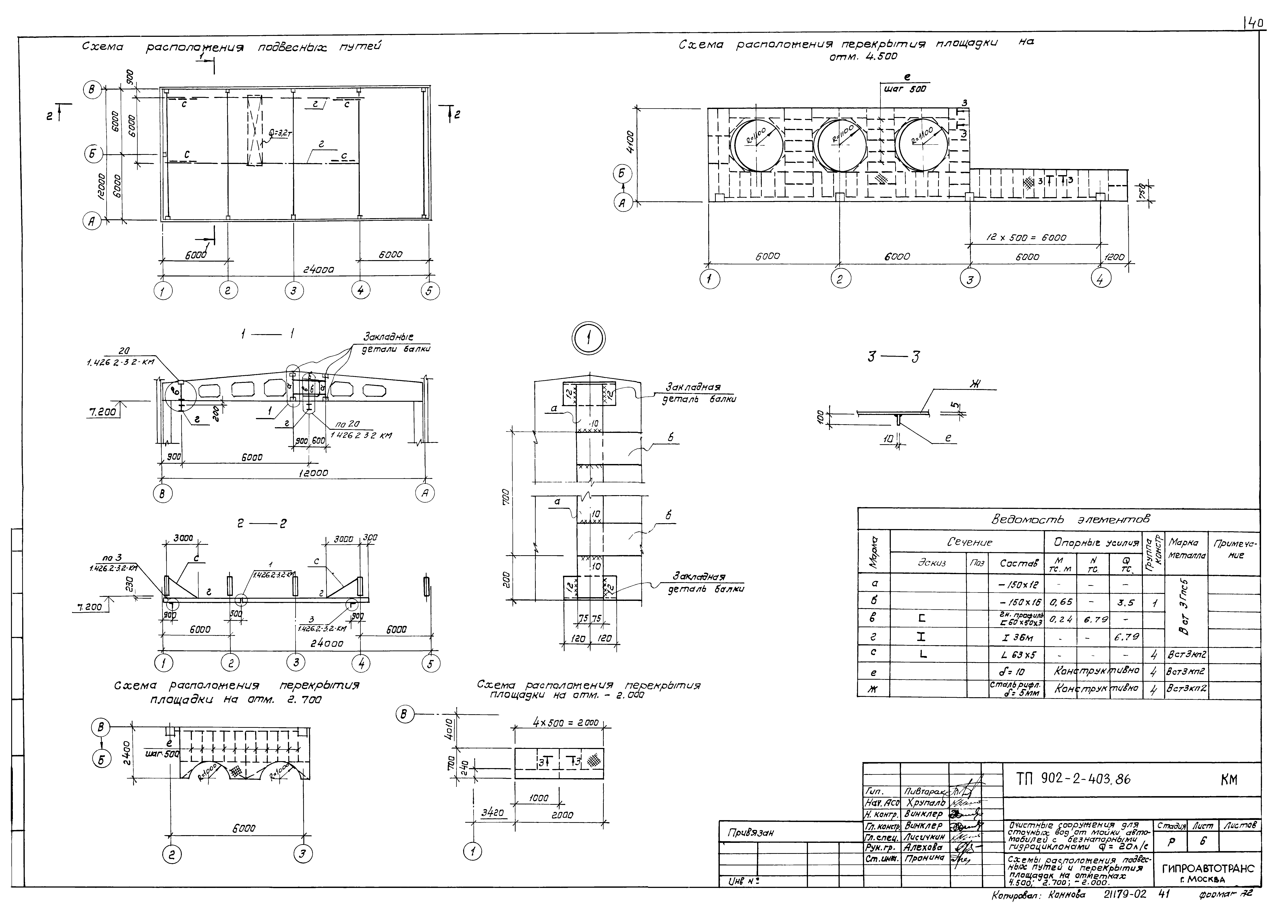
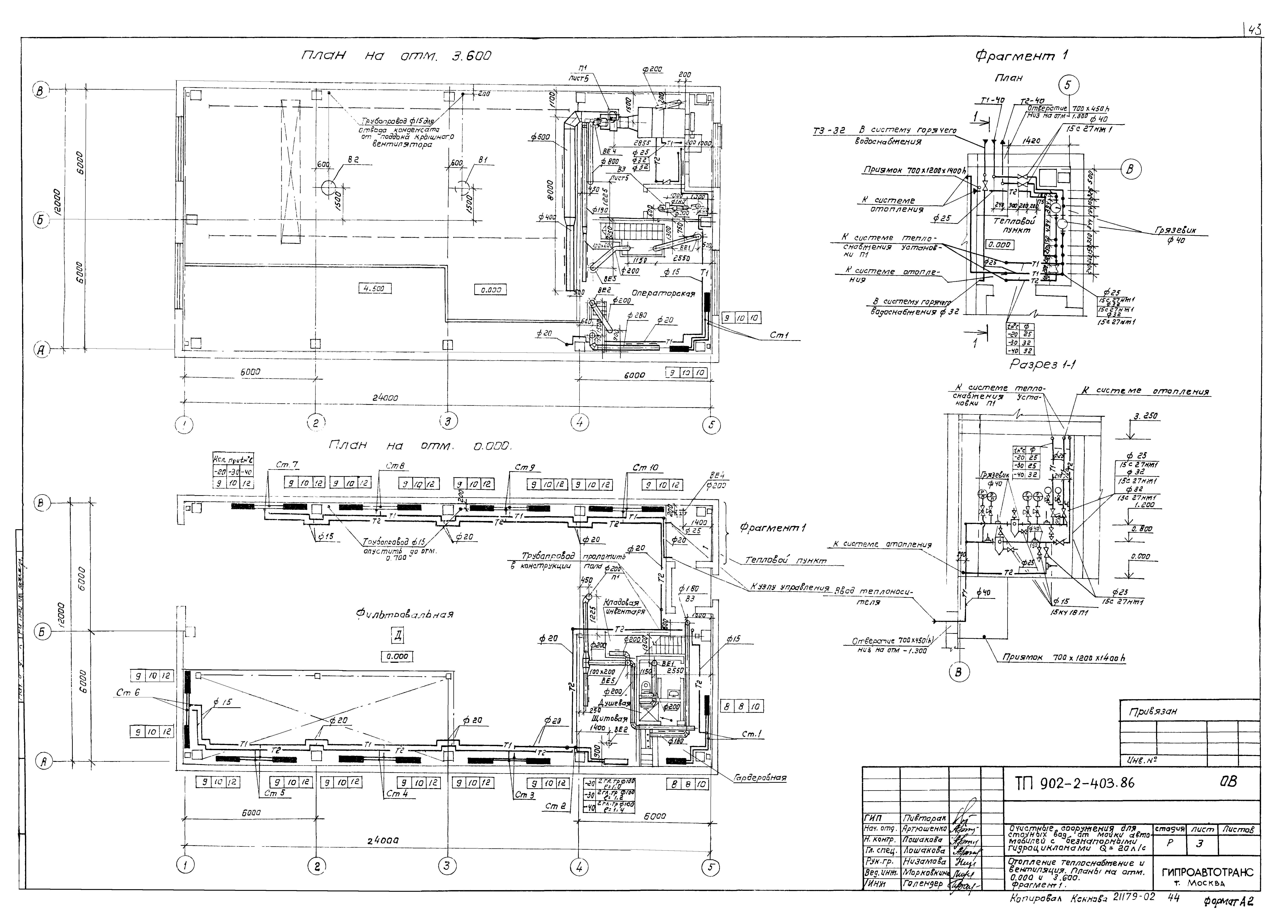
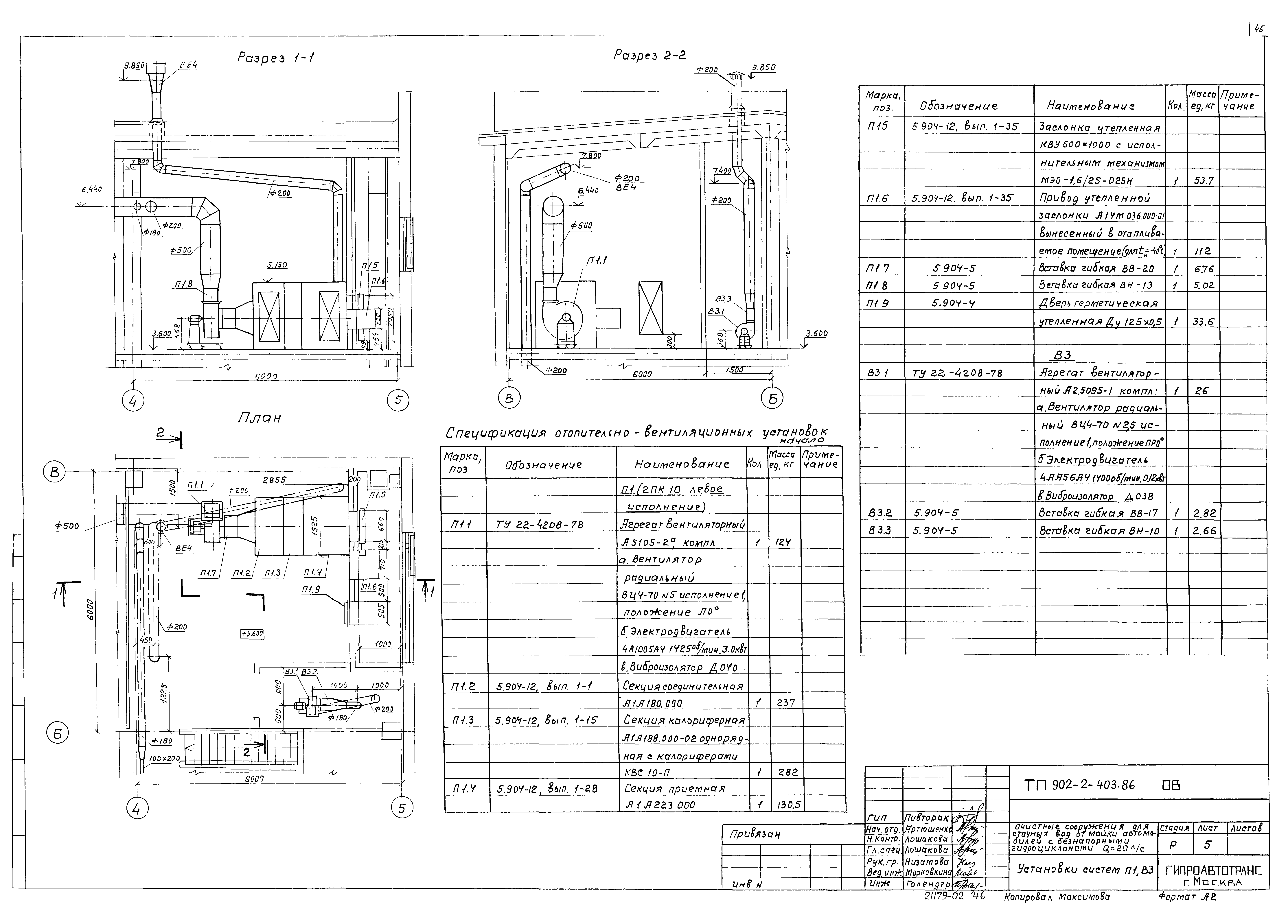
| Оглавление: | ТП 902-2-403.86 Титульный лист ТП 902-2-403.86 Содержание альбома ТП 902-2-403.86-АР Архитектурные решения АР ТП 902-2-403.86-АР-1 Общие данные ТП 902-2-403.86-АР-2 План на отм. 0.000. Фрагмент 1 ТП 902-2-403.86-АР-3 План на отм. 3.600. Фрагмент 2 ТП 902-2-403.86-АР-4 Разрез 1-1. План полов. План кровли, узлы 1,2,3 ТП 902-2-403.86-АР-5 Фасады ТП 902-2-403.86-АР-6 Схема элементов заполнения оконных проемов. Спецификация. Узлы 4,5 ТП 902-2-403.86-КЖ Конструкции железобетонные КЖ ТП 902-2-403.86-КЖ-1 Общие данные (начало) ТП 902-2-403.86-КЖ-2 Общие данные (окончание) ТП 902-2-403.86-КЖ-3 Схема расположения фундаментов и фундаментных балок ТП 902-2-403.86-КЖ-4 Схема расположения фундаментов и фундаментных балок. Фрагмент 1-3 ТП 902-2-403.86-КЖ-5 Схема расположения фундаментов и фундаментных балок. Фрагменты 4,5 ТП 902-2-403.86-КЖ-6 Фундаменты ФМ1,ФМ2 ТП 902-2-403.86-КЖ-7 Фундаменты ФМ3,ФМ8,ФМ9 ТП 902-2-403.86-КЖ-8 Фундаменты ФМ4,ФМ5 ТП 902-2-403.86-КЖ-9 Фундаменты ФМ6,ФМ7 ТП 902-2-403.86-КЖ-10 Схемы расположения колонн, стоек фахверка, балок покрытия, насадок плит перекрытия на отм. 3.600, плит покрытия ТП 902-2-403.86-КЖ-11 Спецификация к схемам расположения колонн, стоек, фахверка, балок покрытия, насадок, плит перекрытия на отм. 3.600, плит покрытия ТП 902-2-403.86-КЖ-12 Участки монолитные УМ1-УМ3 ТП 902-2-403.86-КЖ-13 Спецификация участков монолитных УМ1-УМ3 ТП 902-2-403.86-КЖ-14 Участок монолитный УМ4 ТП 902-2-403.86-КЖ-15 Схемы расположения панелей стен по осям "А","В","6","1". Фрагменты 1-3 ТП 902-2-403.86-КЖ-16 Схемы расположения панелей стен по осям "А","В","6","1". Фрагменты 4-8 ТП 902-2-403.86-КЖ-17 Спецификация к схемам расположения панелей стен ТП 902-2-403.86-КЖ-18 Схема расположения перегородок на отм. 0.000 ТП 902-2-403.86-КЖ-19 Схема расположения перегородок на отм. 3.600 ТП 902-2-403.86-КЖ-20 Спецификация к схемам расположения перегородок на отм. 0.000;3.600. Спецификация на узлы к схемам расположения перегородок на отм. 0.000;3.600 ТП 902-2-403.86-КЖ-21 Схема расположения фундаментов под оборудование ТП 902-2-403.86-КЖ-22 Фундамент под оборудование ФОМ1. План, разрезы 1-1,2-2 ТП 902-2-403.86-КЖ-23 Фундамент под оборудование ФОМ1. Днище монолитное ДМ1 ТП 902-2-403.86-КЖ-24 Фундамент под оборудование ФОМ1. Схемы расположения панелей стен и плит перекрытия ТП 902-2-403.86-КЖ-25 Фундаменты под оборудование ФОМ2-ФОМ4,ФОМ7,ФОМ8 ТП 902-2-403.86-КЖ-26 Фундаменты под оборудование ФОМ5,ФЛМ6,ФОМ9, приямок ПР1 ТП 902-2-403.86-КМ Конструкции металлические КМ ТП 902-2-403.86-КМ-1 Общие данные (начало) ТП 902-2-403.86-КМ-2 Общие данные (продолжение) ТП 902-2-403.86-КМ-3 Общие данные (окончание) ТП 902-2-403.86-КМ-4 Схемы расположения элементов площадок на отметках 4.500;3.600;2.700;-2.000 ТП 902-2-403.86-КМ-5 Схемы расположения элементов площадок на отметках 4.500;3.600;2.700;-2.000. Разрезы. Узлы ТП 902-2-403.86-КМ-6 Схемы расположения подвесных путей и перекрытия площадок на отметках 4.500;2.700;-2.000 ТП 902-2-403.86-ОВ Отопление и вентиляция ОВ ТП 902-2-403.86-ОВ-1 Общие данные ТП 902-2-403.86-ОВ-2 Общие данные ТП 902-2-403.86-ОВ-3 Отопление, теплоснабжение и вентиляция. Планы на отм. 0.000 и 3.600. Фрагмент 1 ТП 902-2-403.86-ОВ-4 Схемы узла управления системы отопления, теплоснабжения установки П1, систем вентиляции П1,В1-В3, ВЕ1-ВЕ5 ТП 902-2-403.86-ОВ-5 Установки систем П1,В3 ТП 902-2-403.86-ОВН Чертежи видов нетиповых конструкций ОВН ТП 902-2-403.86-ОВН Содержание ТП 902-2-403.86-ОВН1 Поддон к стакану Ф700 для крышного вентилятора ТП 902-2-403.86-ОВН2 Регистр из гладких труб ТП 902-2-403.86-ОВН2 Конструкция тепловой изоляции |
| Разработан: | Гипроавтотранс |
| Утверждён: | 27.03.1985 Минавтотранс РСФСР (Russian Federation Minavtotrans 55) |
| Чем заменён: |
















































