Скачать Типовой проект 902-1-79.83 Альбом II. Технологические решения. Внутренние водопровод и канализация. Отопление и вентиляция (из ТП 902-1-78.83)Дата актуализации: 01.01.2021
|
| Обозначение: | Типовой проект 902-1-79.83 |
| Обозначение англ: | 902-1-79.83 |
| Статус: | действует |
| Название рус.: | Альбом II. Технологические решения. Внутренние водопровод и канализация. Отопление и вентиляция (из ТП 902-1-78.83) |
| Дата добавления в базу: | 01.09.2013 |
| Дата актуализации: | 01.01.2021 |
| Дата введения: | 06.02.1984 |
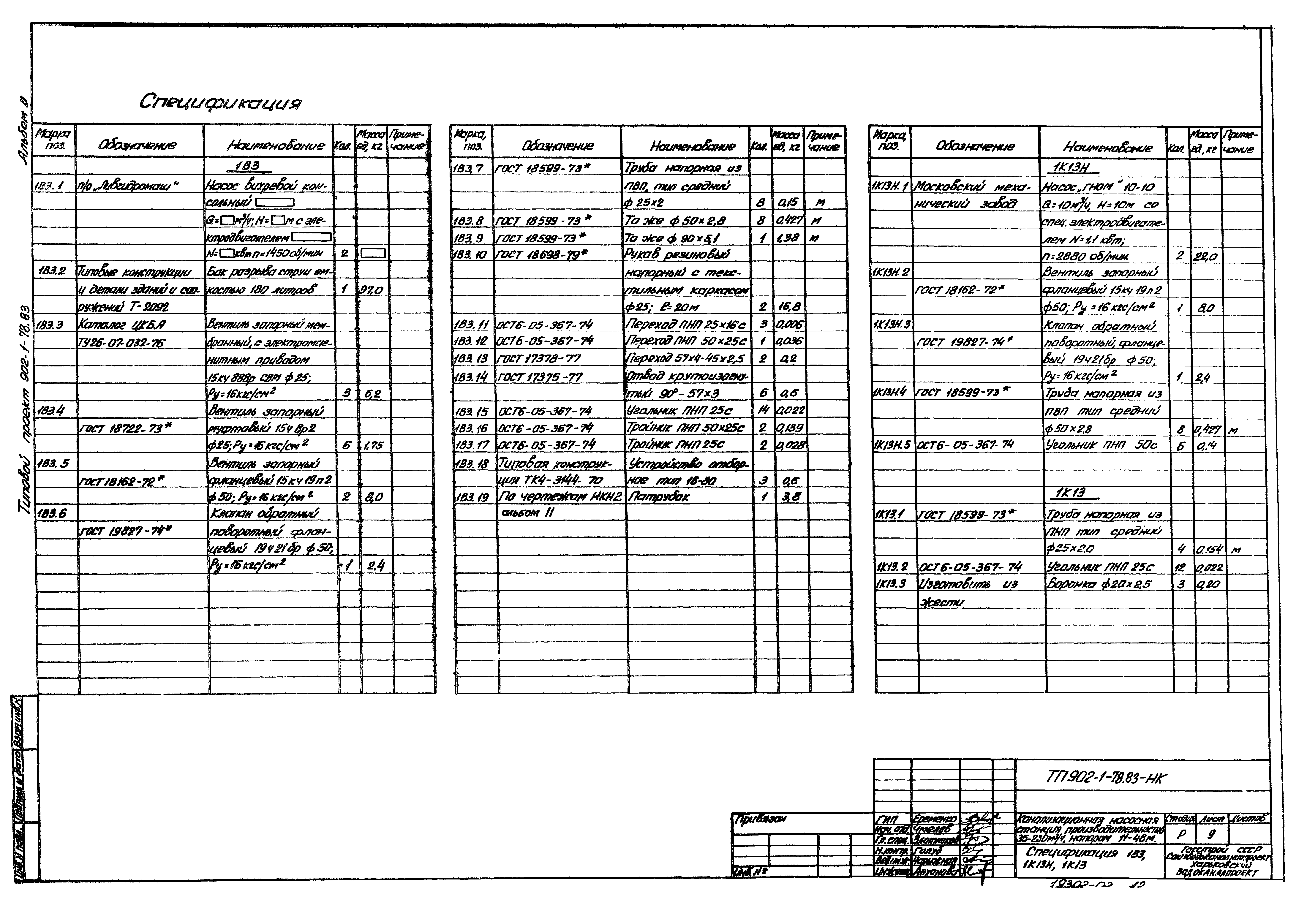
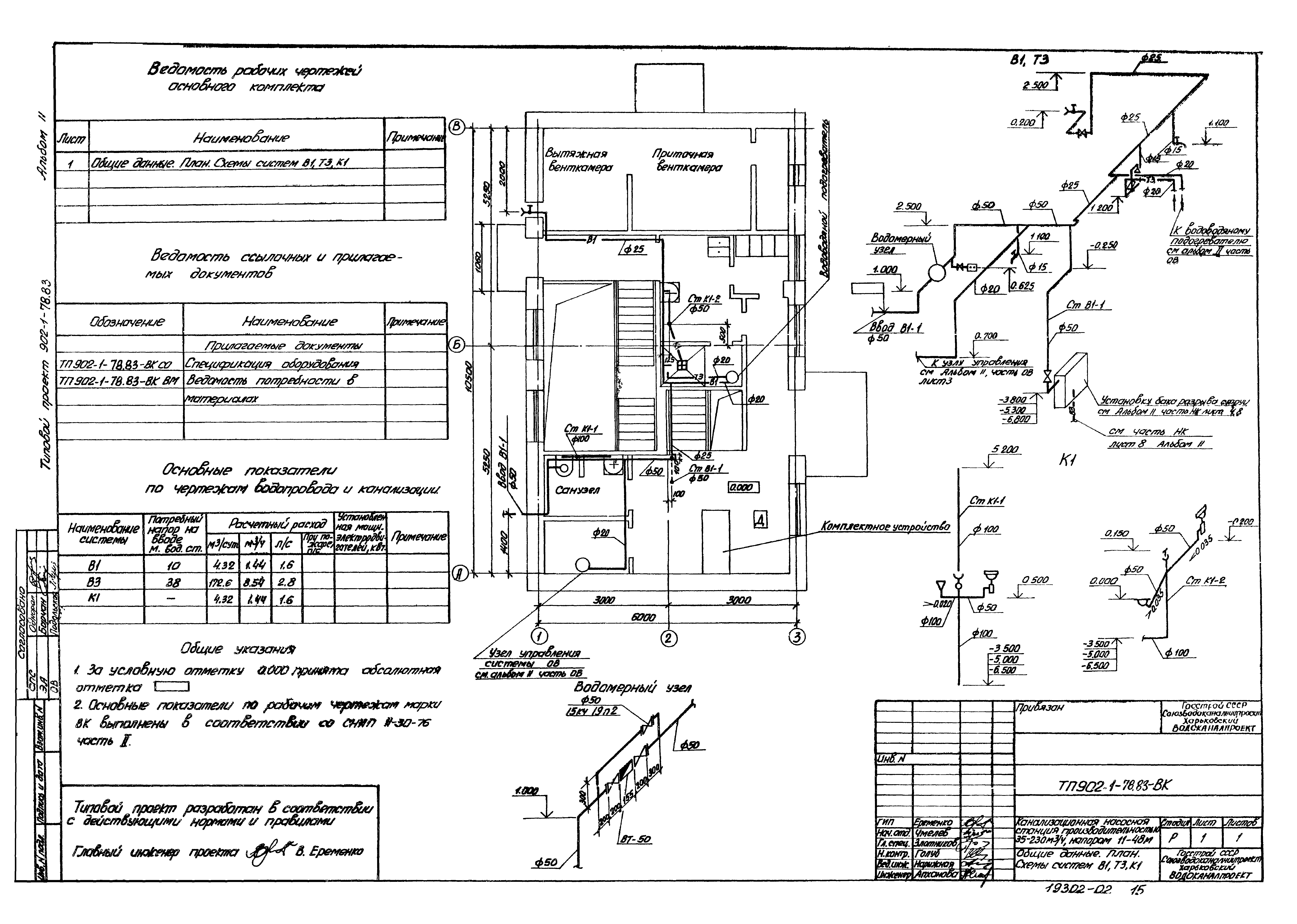
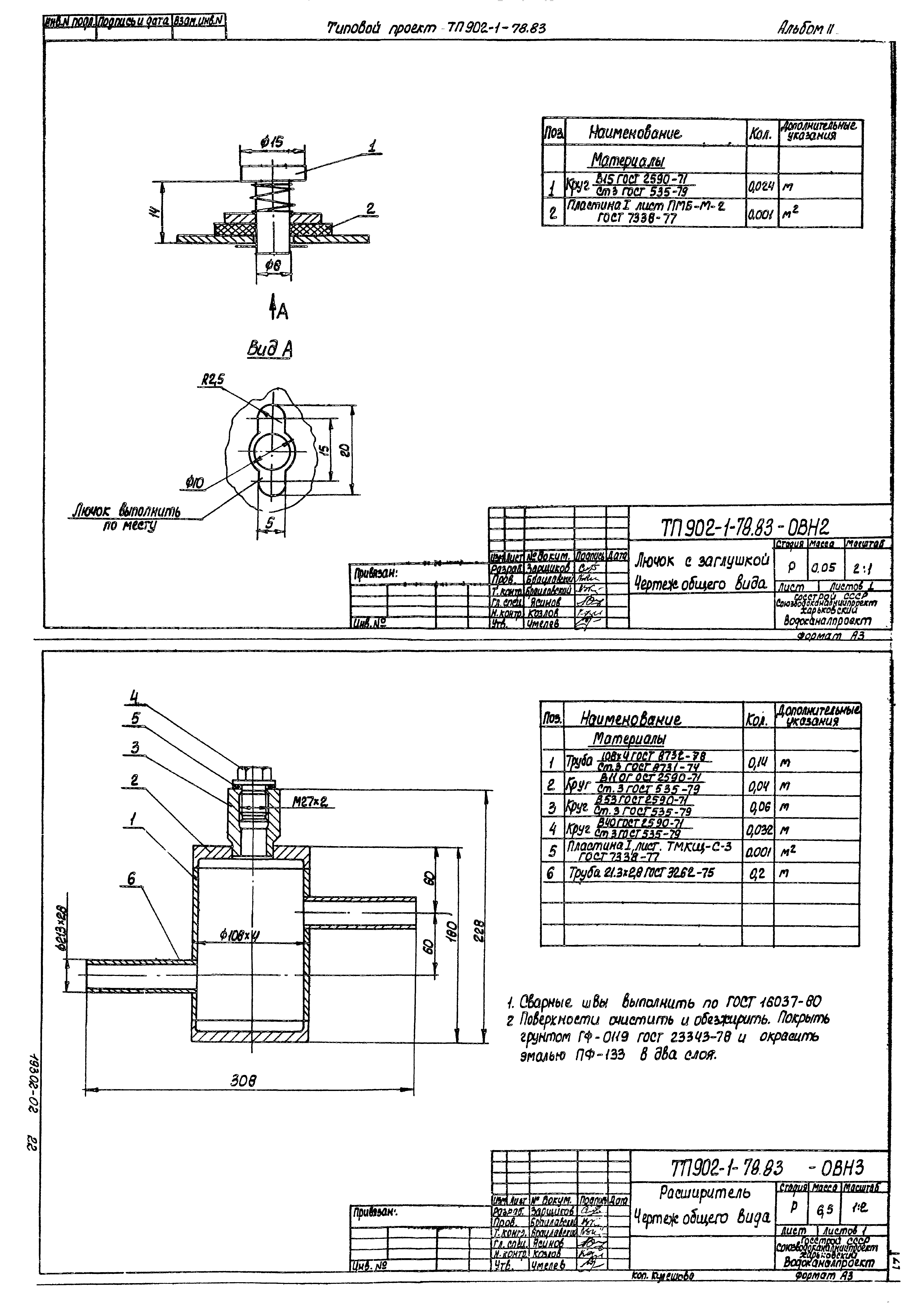
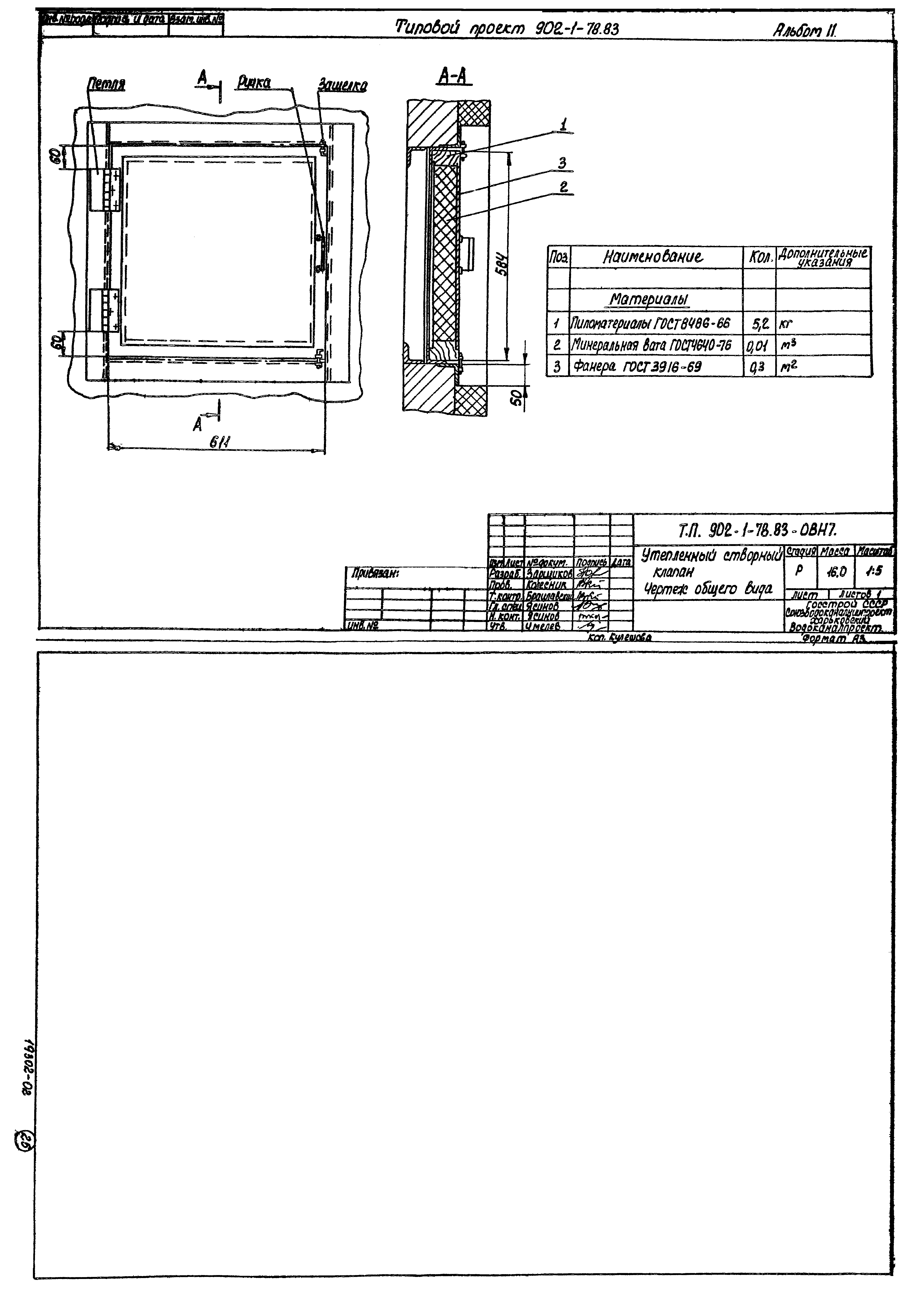
| Оглавление: | ТП 902-1-78.83 Содержание альбома II ТП 902-1-78.83-НК Основной комплект марки НК ТП 902-1-78.83-НК-1 Общие данные ТП 902-1-78.83-НК-2 План на отм. 0.000 ТП 902-1-78.83-НК-3 План ТП 902-1-78.83-НК-4 Разрез 1-1. Разрез 2-2 ТП 902-1-78.83-НК-5 План приемного резервуара. Разрез 1-1 ТП 902-1-78.83-НК-6 Аксонометрическая схема 1К1Н ТП 902-1-78.83-НК-7 Спецификация 1К1,1К1Н ТП 902-1-78.83-НК-8 План на отм. □. Аксонометрические схемы 1В3,1К13,1К13Н ТП 902-1-78.83-НК-9 Спецификация 1В3,1К13Н,1К13 ТП 902-1-78.83-НКН Общие виды нетиповых конструкций марки НКН ТП 902-1-78.83-НКН1 Устройство отборное с разделительной мембраной для манометра ТП 902-1-78.83-НК-12 Патрубок ТП 902-1-78.83-ВК Основной комплект марки ВК ТП 902-1-78.83-ВК-1 Общие данные. План. Схемы В1,Т3,К1 ТП 902-1-78.83-ОВ Основной комплект марки ОВ ТП 902-1-78.83-ОВ-1 Общие данные ТП 902-1-78.83-ОВ-2 План подземной части и на отм. 0.000. Разрез 1-1, схемы систем П1.1р;П2;В1.1р;В2,В4 ТП 902-1-78.83-ОВ-3 Схемы систем отопления, теплоснабжения установок П1,П1р, теплоснабжения водоподогревателя, узла управления ТП 902-1-78.83-ОВ-4 Установки систем П1.1р;П2;В1.1р;В2;В4 ТП 902-1-78.83-ОВ-5 Установки систем П1.1р;П2;В1.1р;В2;В4 ТП 902-1-78.83-ОВН Общие виды нетиповых конструкций марки ОВН ТП 902-1-78.83-ОВН1 Рама для крепления калорифера. Чертеж общего вида ТП 902-1-78.83-ОВН2 Лючок с заглушкой. Чертеж общего вида ТП 902-1-78.83-ОВН3 Расширитель. Чертеж общего вида ТП 902-1-78.83-ОВН4 Зонт. Чертеж общего вида ТП 902-1-78.83-ОВН5 Вставка редукционная. Чертеж общего вида ТП 902-1-78.83-ОВН6 Короб распределительный. Чертеж общего вида ТП 902-1-78.83-ОВН7 Утепленный створный клапан. Чертеж общего вида |
| Разработан: | Харьковский Водоканалпроект |
| Утверждён: | 27.10.1983 СоюзводоканалНИИпроект (SoyuzvodokanalNIIproject 59) |

























