Скачать Типовой проект 902-1-83.83 Альбом IV. Строительные решения. Подземная часть (открытый способ в сухих грунтах)Дата актуализации: 01.01.2021
|
| Обозначение: | Типовой проект 902-1-83.83 |
| Обозначение англ: | 902-1-83.83 |
| Статус: | действует |
| Название рус.: | Альбом IV. Строительные решения. Подземная часть (открытый способ в сухих грунтах) |
| Дата добавления в базу: | 01.09.2013 |
| Дата актуализации: | 01.01.2021 |
| Дата введения: | 06.02.1984 |
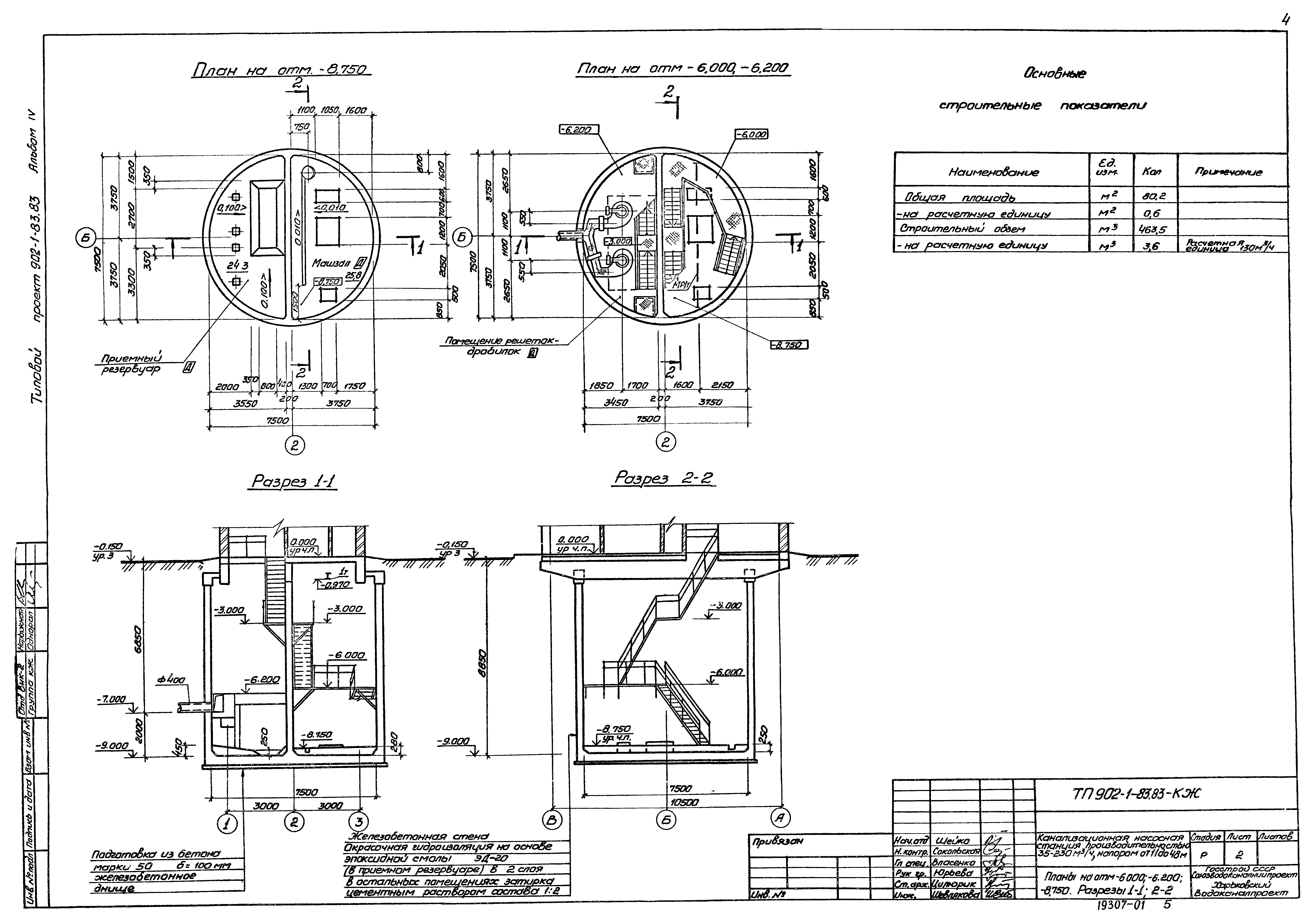
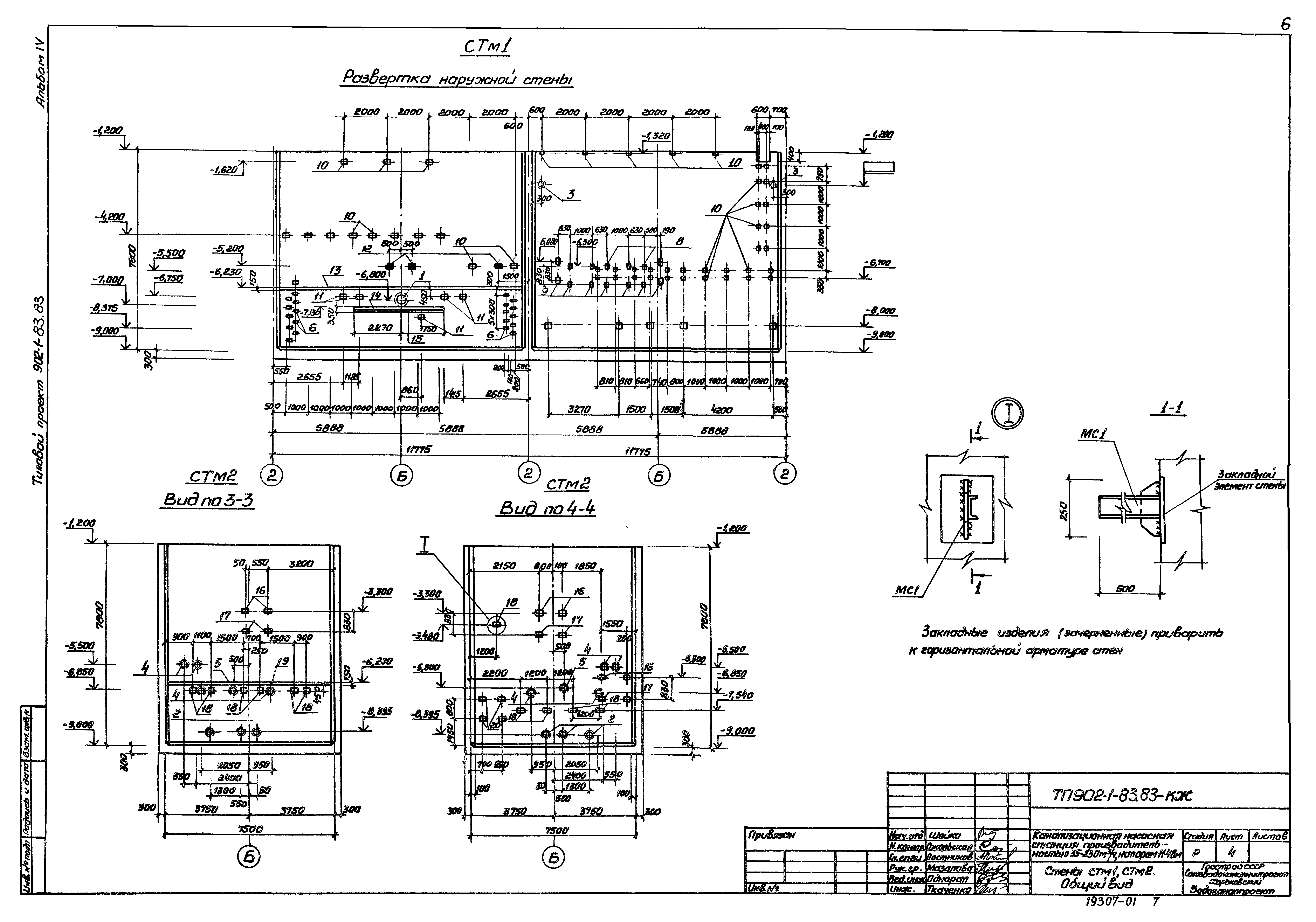
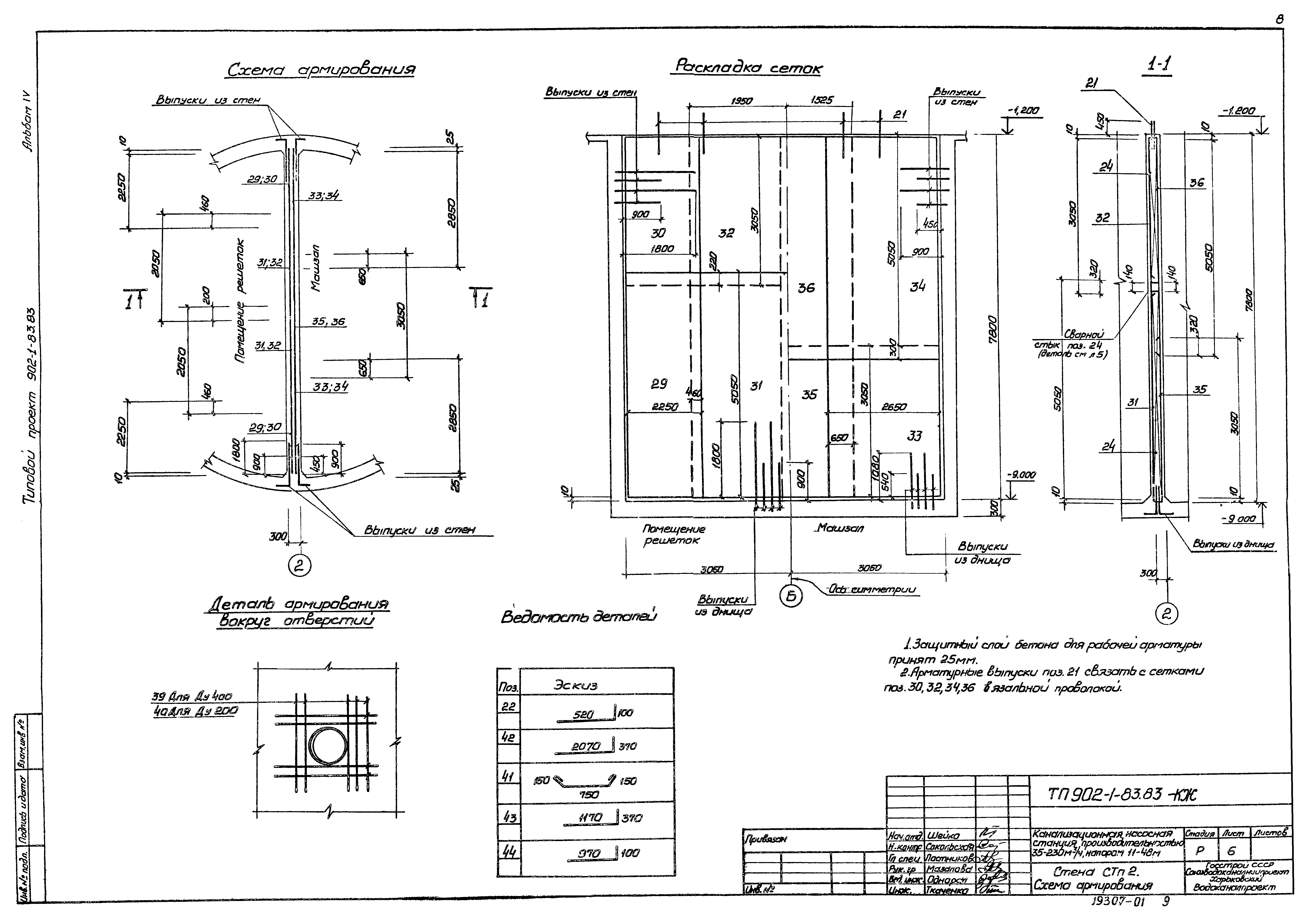
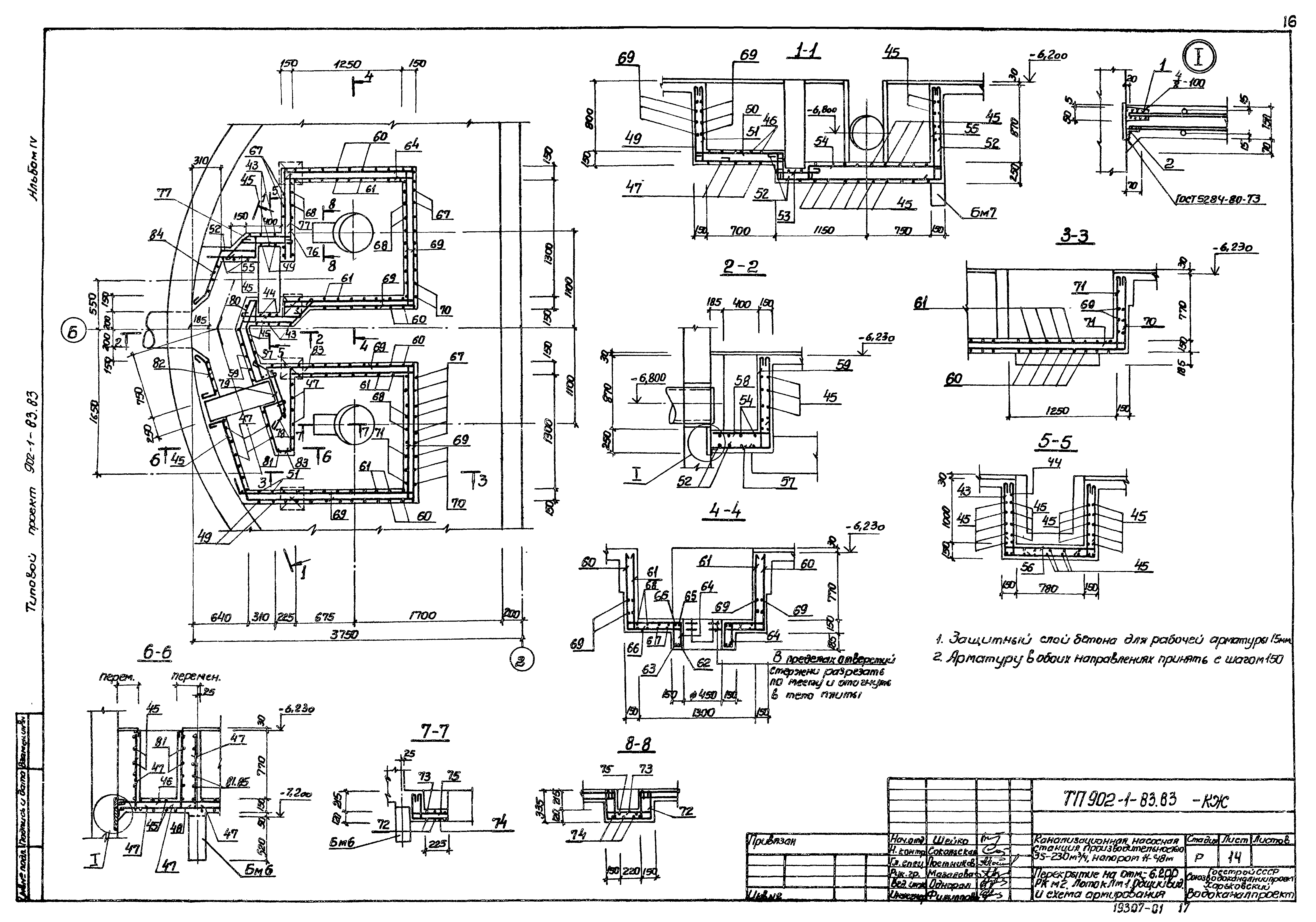
| Оглавление: | ТП 902-1-78.83 Содержание ТП 902-1-78.83-КЖ Основной комплект КЖ ТП 902-1-78.83-КЖ-1 Общие данные ТП 902-1-78.83-КЖ-2 Планы на отм. -6.000;-6.200,-8.750. Разрезы 1-1,2-2 ТП 902-1-78.83-КЖ-3 Схема расположения элементов подземной части ТП 902-1-78.83-КЖ-4 Стены СТМ1,СТМ2. Общий вид ТП 902-1-78.83-КЖ-5 Стена СТМ1. Схема армирования ТП 902-1-78.83-КЖ-6 Стена СТМ2. Схема армирования ТП 902-1-78.83-КЖ-7 Стены СТМ1,СТМ2. Спецификация ТП 902-1-78.83-КЖ-8 Плита днища ПДМ1. Общий вид и схемы армирования ТП 902-1-78.83-КЖ-9 Плита днища ПДМ1. Схема расположения каркасов. Спецификация ТП 902-1-78.83-КЖ-10 Перекрытие на отм. -6.200 РКМ2. Схема расположения (начало) ТП 902-1-78.83-КЖ-11 Перекрытие на отм. -6.200 РКМ2. Схема расположения (окончание) ТП 902-1-78.83-КЖ-12 Перекрытие на отм. -6.200 РКМ2. Плита ПМ1. Балки БМ1-БМ3. Общий вид и схемы армирования ТП 902-1-78.83-КЖ-13 Перекрытие на отм. -6.200 РКМ2. Балки БМ4-БМ8. Колонна КМ1. Общий вид и схемы армирования ТП 902-1-78.83-КЖ-14 Перекрытие на отм. -6.200 РКМ2. Лоток ЛМ1. Общий вид и схема армирования ТП 902-1-78.83-КЖ-15 Перекрытие на отм. -6.200 РКМ2. Спецификация (начало) ТП 902-1-78.83-КЖ-16 Перекрытие на отм. -6.200 РКМ2. Спецификация (окончание) ТП 902-1-78.83-КМ Основной комплект КМ ТП 902-1-78.83-КМ-1 Общие данные ТП 902-1-78.83-КМ-2 Схема расположения лестниц и переходных площадок (начало) ТП 902-1-78.83-КМ-3 Схема расположения лестниц и переходных площадок (окончание) ТП 902-1-78.83 Изделия ТП 902-1-78.83-КЖИ-ДО Опись документов ТП 902-1-78.83-КЖИ-ТО Техническое описание ТП 902-1-78.83-КЖИ-КР1 Каркас плоский КР(КР1,КР2) ТП 902-1-78.83-КЖИ-КР3 Каркас плоский КР(КР3-КР4) ТП 902-1-78.83-КЖИ-КР5 Каркас плоский КР(КР5,КР12) ТП 902-1-78.83-КЖИ-КР5СБ Каркас плоский КР(КР5,КР12). Сборочный чертеж ТП 902-1-78.83-КЖИ-МН1 Изделие закладное МН1 ТП 902-1-78.83-КЖИ-МН2 Изделие закладное МН2 ТП 902-1-78.83-КЖИ-С1 Сетка арматурная С(С1-С3) ТП 902-1-78.83-КЖИ-С1СБ Сетка арматурная С(С1-С3). Сборочный чертеж ТП 902-1-78.83-КЖИ-МС1 Изделие соединительное МС1 ТП 902-1-78.83-КЖИ-МС2 Изделие соединительное МС2 ТП 902-1-78.83-КЖИ-МС3 Изделие соединительное МС3 |
| Разработан: | Харьковский Водоканалпроект |
| Утверждён: | 27.10.1983 СоюзводоканалНИИпроект (SoyuzvodokanalNIIproject 59) |


























