Скачать Типовой проект 902-1-83.83 Альбом VI. Электрооборудование и автоматизация. Технологический контроль (из ТП 902-1-78.83)Дата актуализации: 01.01.2021
|
| Обозначение: | Типовой проект 902-1-83.83 |
| Обозначение англ: | 902-1-83.83 |
| Статус: | действует |
| Название рус.: | Альбом VI. Электрооборудование и автоматизация. Технологический контроль (из ТП 902-1-78.83) |
| Дата добавления в базу: | 01.09.2013 |
| Дата актуализации: | 01.01.2021 |
| Дата введения: | 06.02.1984 |
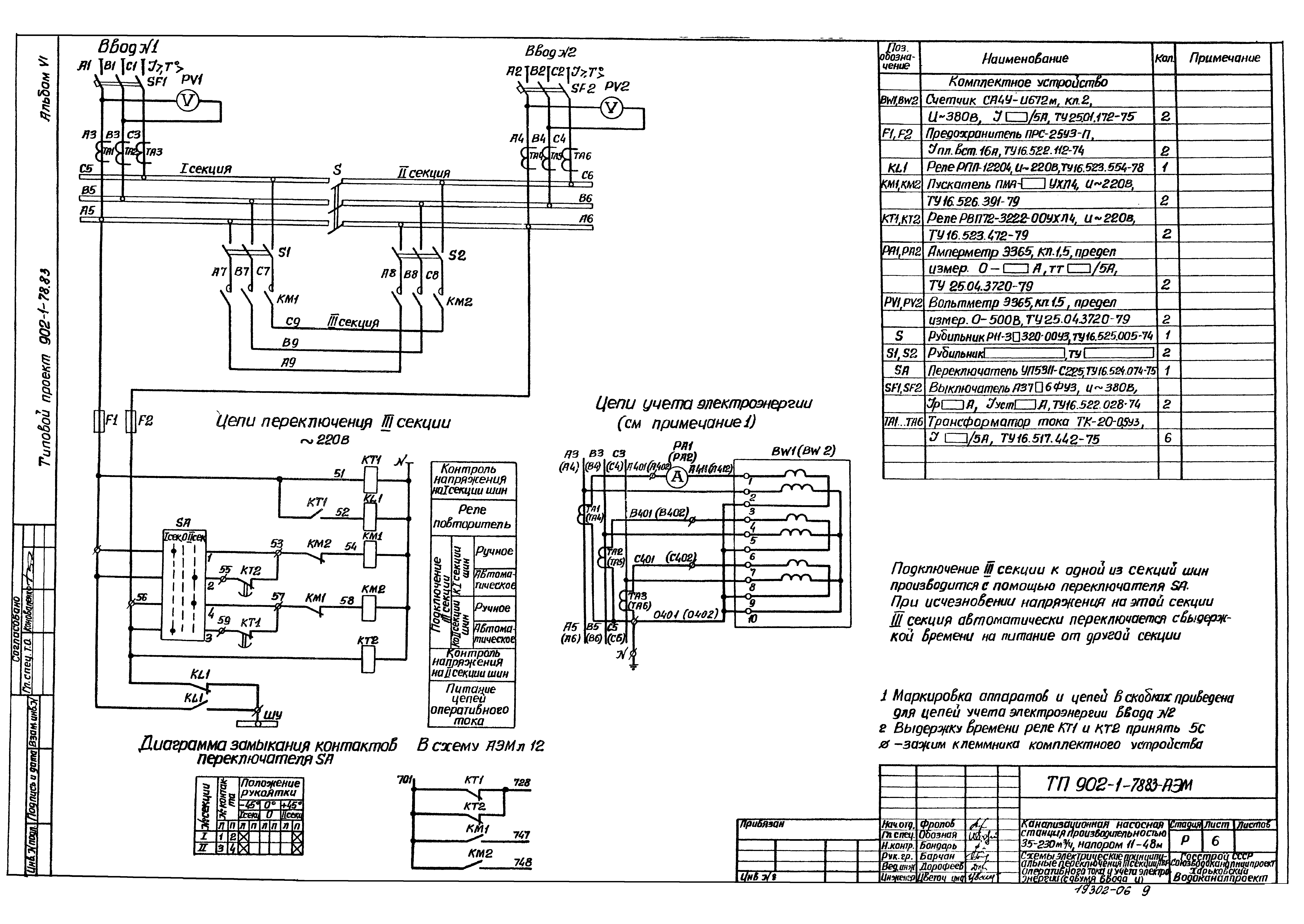
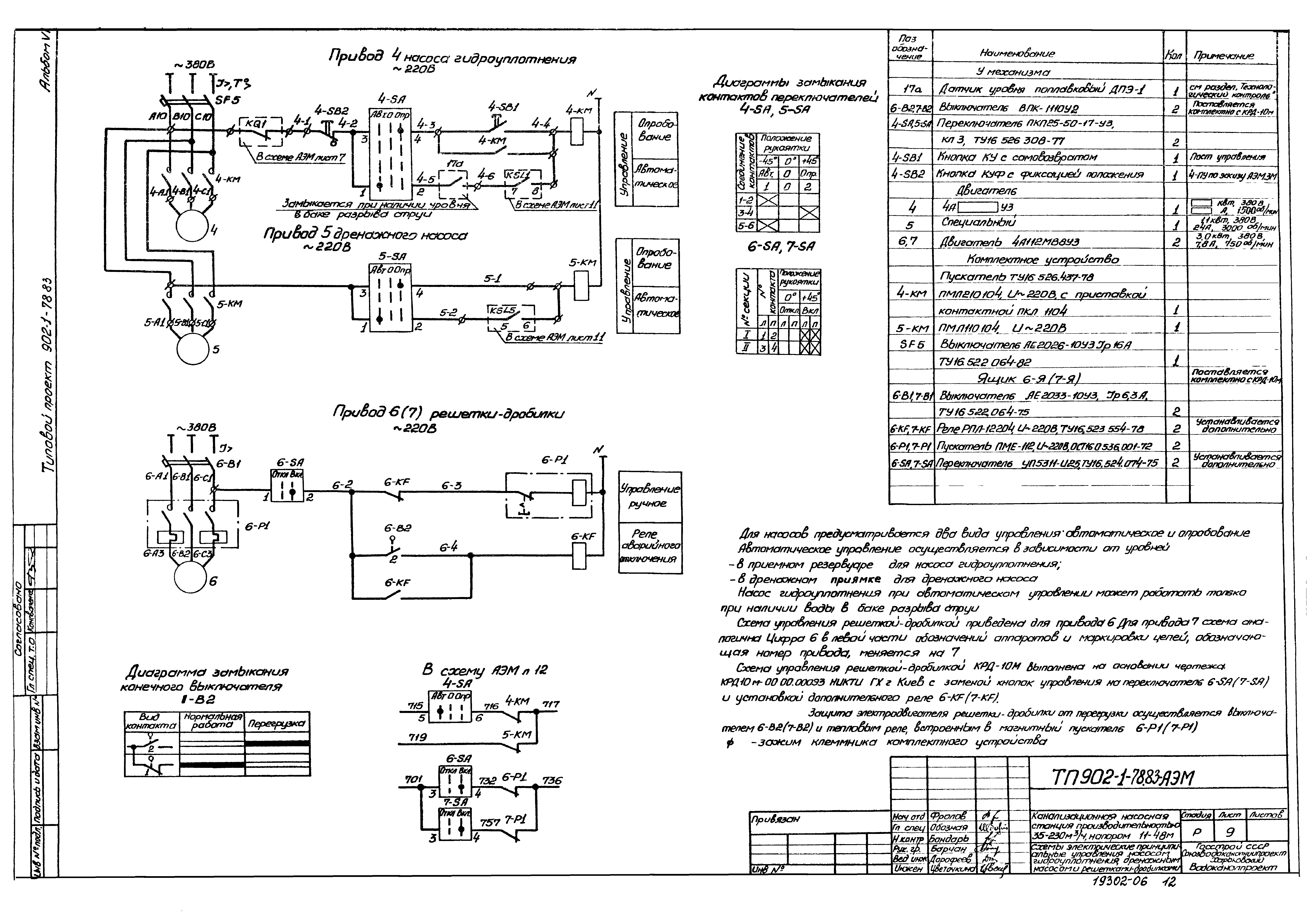
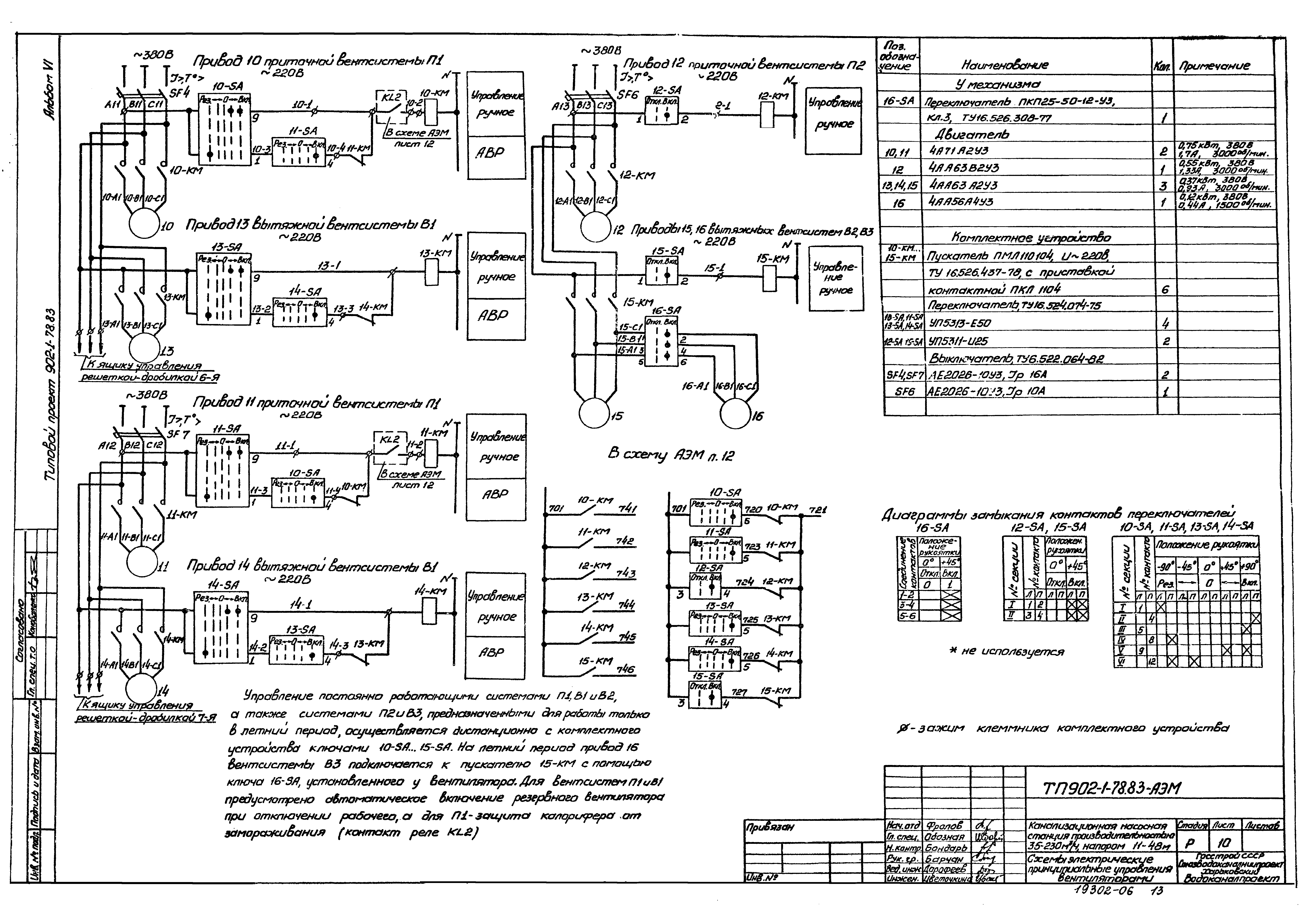
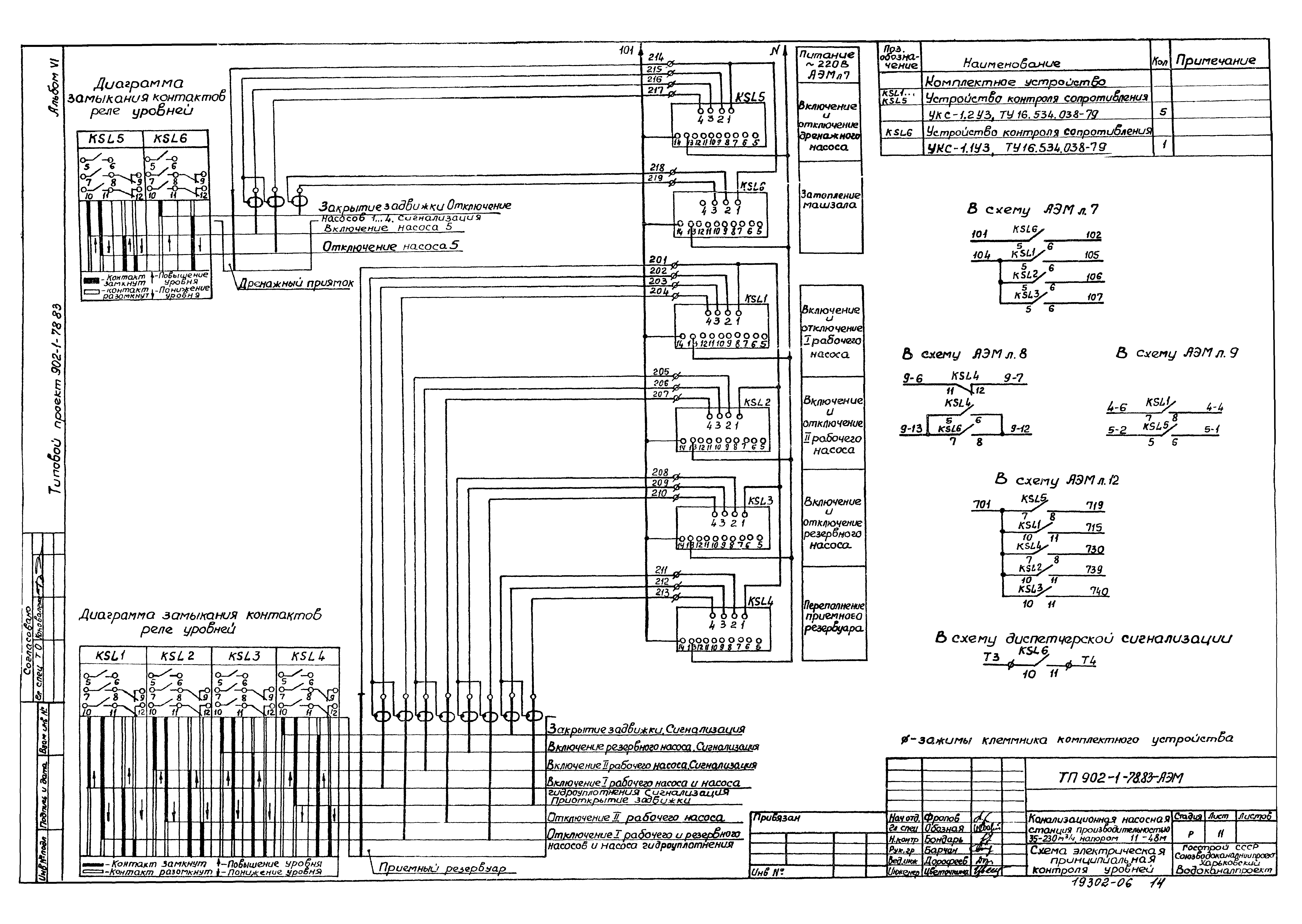
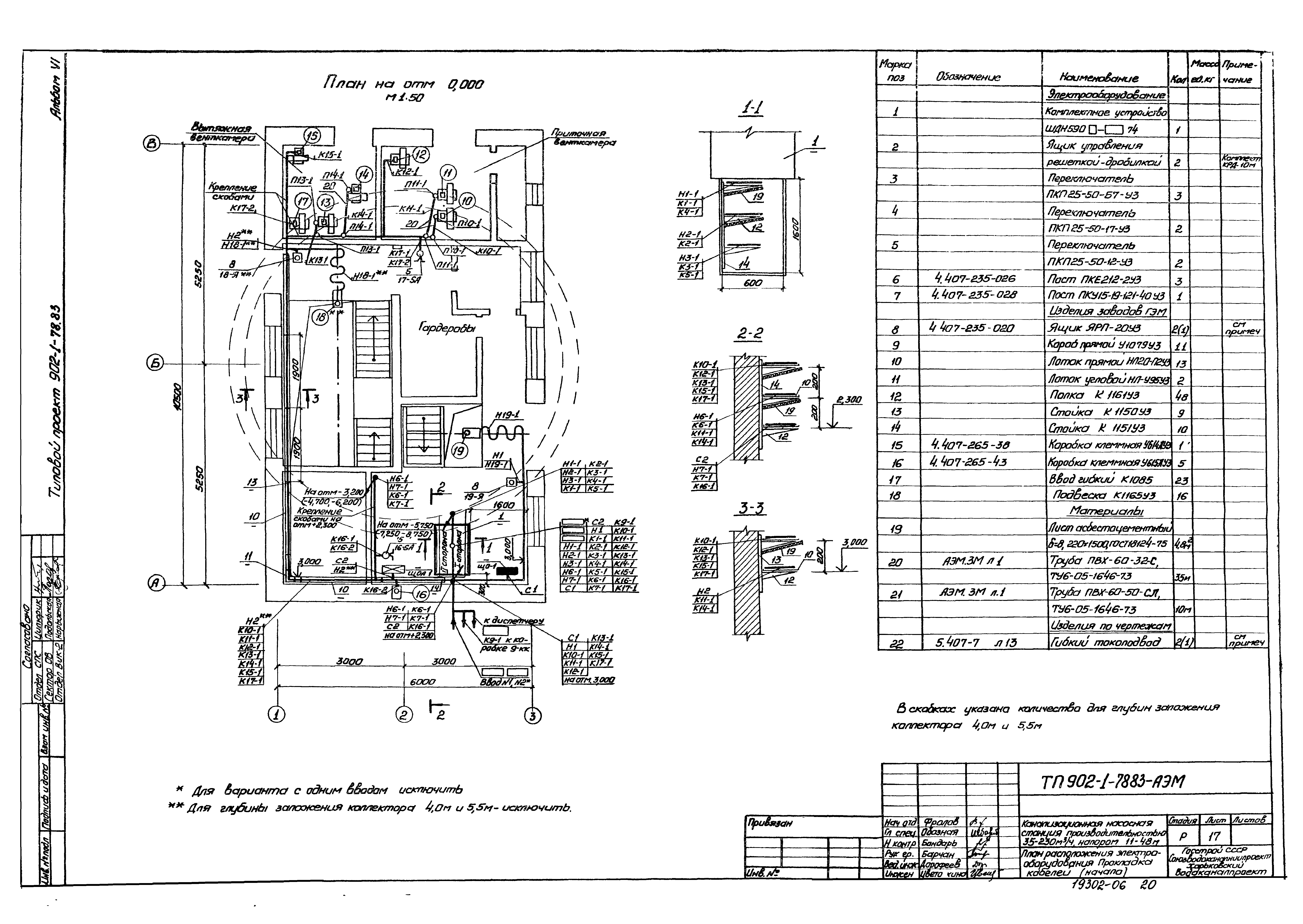
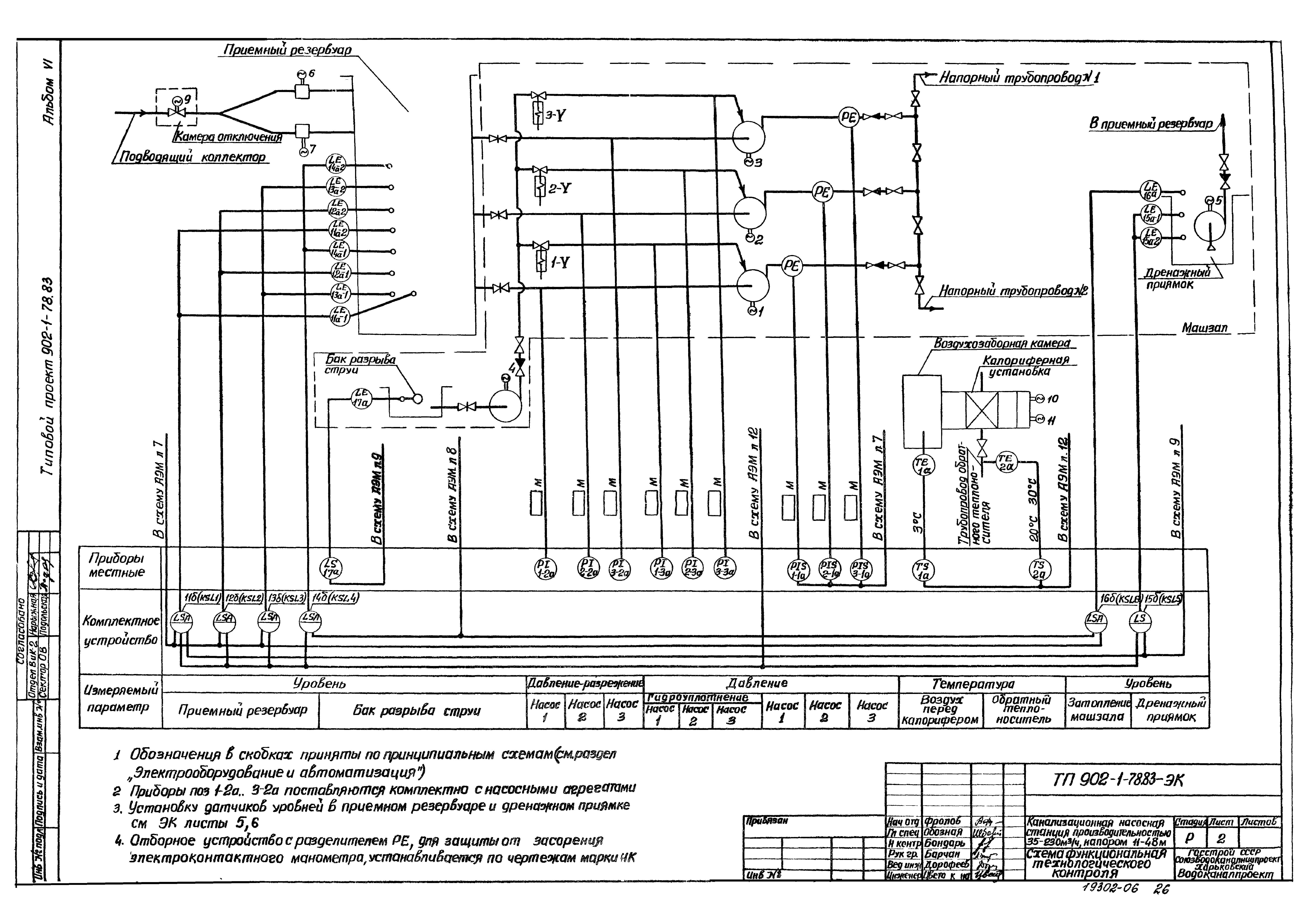
| Оглавление: | ТП 902-1-78.83 Содержание альбома ТП 902-1-78.83-АЭМ Основной комплект марки АЭМ ТП 902-1-78.83-АЭМ-1 Общие данные (начало) ТП 902-1-78.83-АЭМ-2 Общие данные (окончание) ТП 902-1-78.83-АЭМ-3 Схема электрическая принципиальная однолинейная распределительной сети ~380/220В (с двумя вводами) ТП 902-1-78.83-АЭМ-4 Схема электрическая принципиальная однолинейная распределительной сети ~380/220В и учета электроэнергии (с одним вводом) (начало) ТП 902-1-78.83-АЭМ-5 Схема электрическая принципиальная однолинейная распределительной сети ~380/220В и учета электроэнергии (с одним вводом) (окончание) ТП 902-1-78.83-АЭМ-6 Схемы электрические принципиальные переключения 3 секции, АВР оперативного тока и учета электроэнергии (с двумя вводами) ТП 902-1-78.83-АЭМ-7 Схема электрическая принципиальная управления насосами перекачки стоков ТП 902-1-78.83-АЭМ-8 Схема электрическая принципиальная управления задвижкой на подводящем коллекторе ТП 902-1-78.83-АЭМ-9 Схемы электрические принципиальные управления насосом гидроуплотнения, дренажным насосом и решетками-дробилками ТП 902-1-78.83-АЭМ-10 Схемы электрические принципиальные управления вентиляторами ТП 902-1-78.83-АЭМ-11 Схема электрическая принципиальная контроля уровней ТП 902-1-78.83-АЭМ-12 Схема электрическая принципиальная сигнализации ТП 902-1-78.83-АЭМ-13 Схема подключения электрооборудования ТП 902-1-78.83-АЭМ-14 Схема подключения комплектного устройства (с двумя вводами) ТП 902-1-78.83-АЭМ-15 Схема подключения комплектного устройства (с одним вводом) ТП 902-1-78.83-АЭМ-16 Кабельный журнал ТП 902-1-78.83-АЭМ-17 План расположения электрооборудования. Прокладка кабелей (начало) ТП 902-1-78.83-АЭМ-18 План расположения электрооборудования. Прокладка кабелей (окончание) ТП 902-1-78.83-АЭМ-19 Зануление ТП 902-1-78.83-АЭМ-20 Электроосвещение ТП 902-1-78.83-АЭМ.ЗМ Задание МЭЗ марки АЭМ.ЗМ ТП 902-1-78.83-АЭМ.ВР Ведомости объемов электромонтажных и строительных работ марки АЭМ.ВР ТП 902-1-78.83-ЭК.ВР Основной комплект марки ЭК ТП 902-1-78.83-ЭК-1 Общие данные ТП 902-1-78.83-ЭК-2 Схема функциональная технологического контроля ТП 902-1-78.83-ЭК-3 Схема соединений внешних проводок. План расположения (начало) ТП 902-1-78.83-ЭК-4 Схема соединений внешних проводок. План расположения (окончание) ТП 902-1-78.83-ЭК-5 Статив датчиков ст.2. Монтажный чертеж ТП 902-1-78.83-ЭК-6 Статив датчиков ст.1. Монтажный чертеж ТП 902-1-78.83-ЭК-7 Кронштейн. Монтажный чертеж ТП 902-1-78.83-ЭК-8 Стойка. Монтажный чертеж ТП 902-1-78.83-ЭК.ВР Ведомости объемов электромонтажных и строительных работ марки ЭК.ВР |
| Разработан: | Харьковский Водоканалпроект |
| Утверждён: | 27.10.1983 СоюзводоканалНИИпроект (SoyuzvodokanalNIIproject 59) |






























