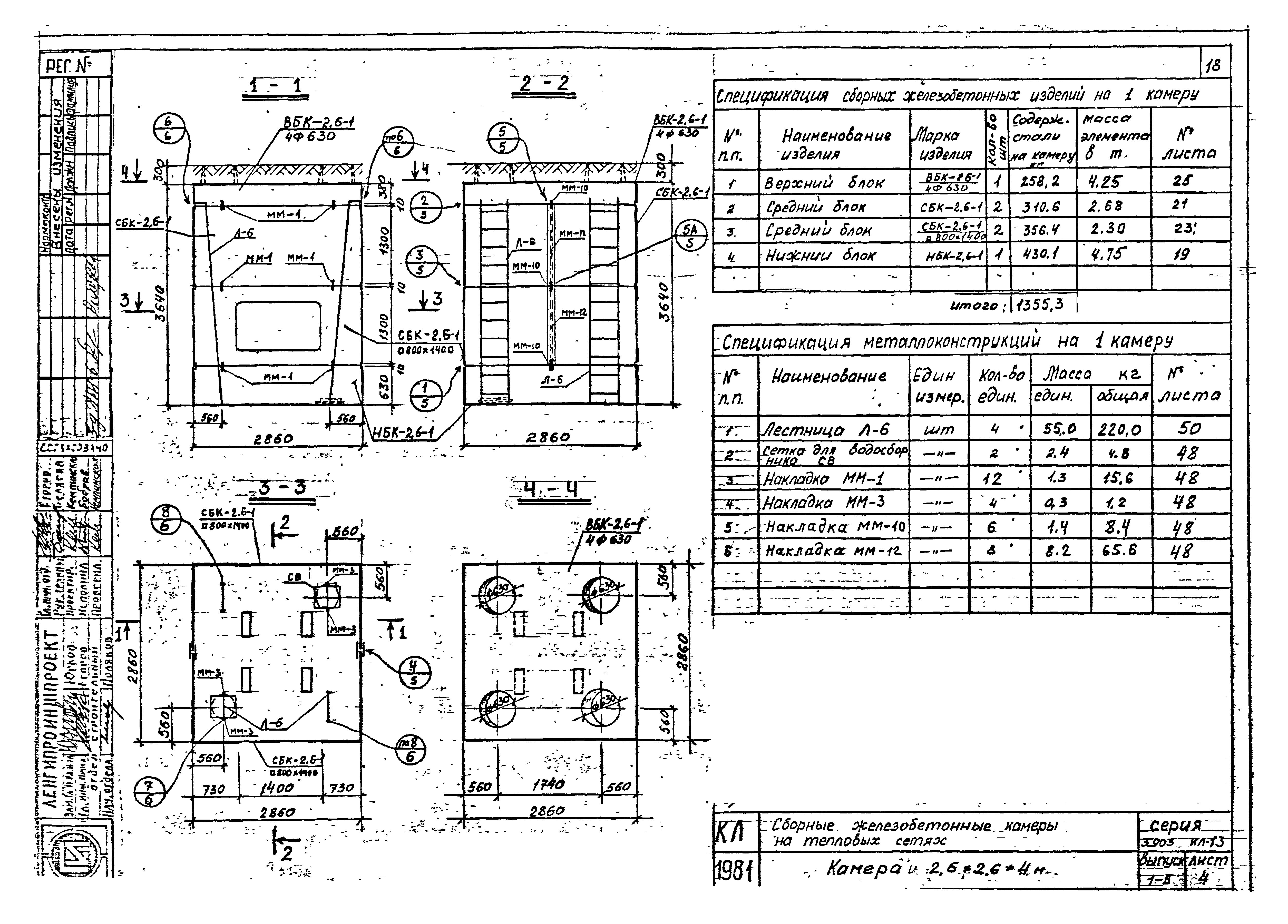
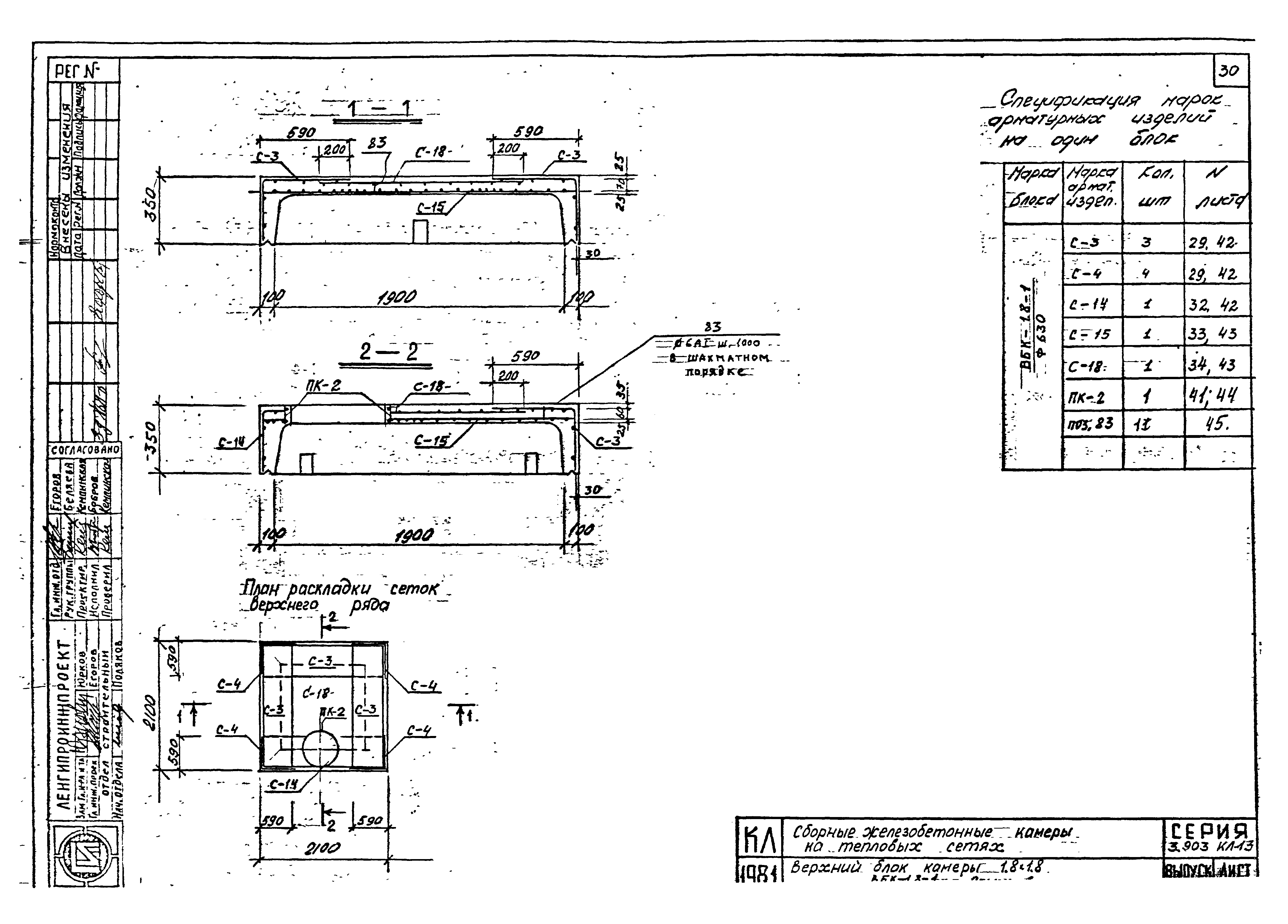
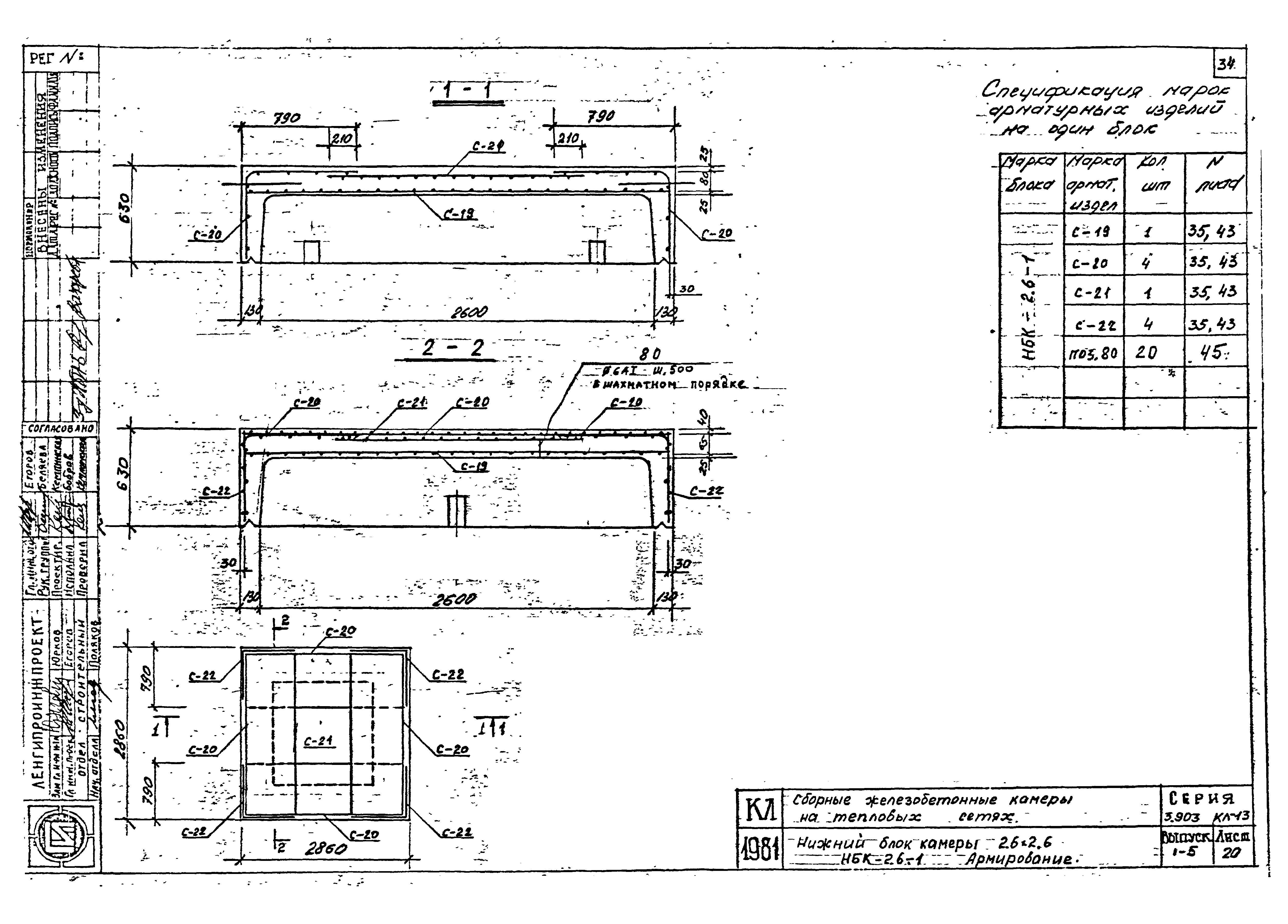
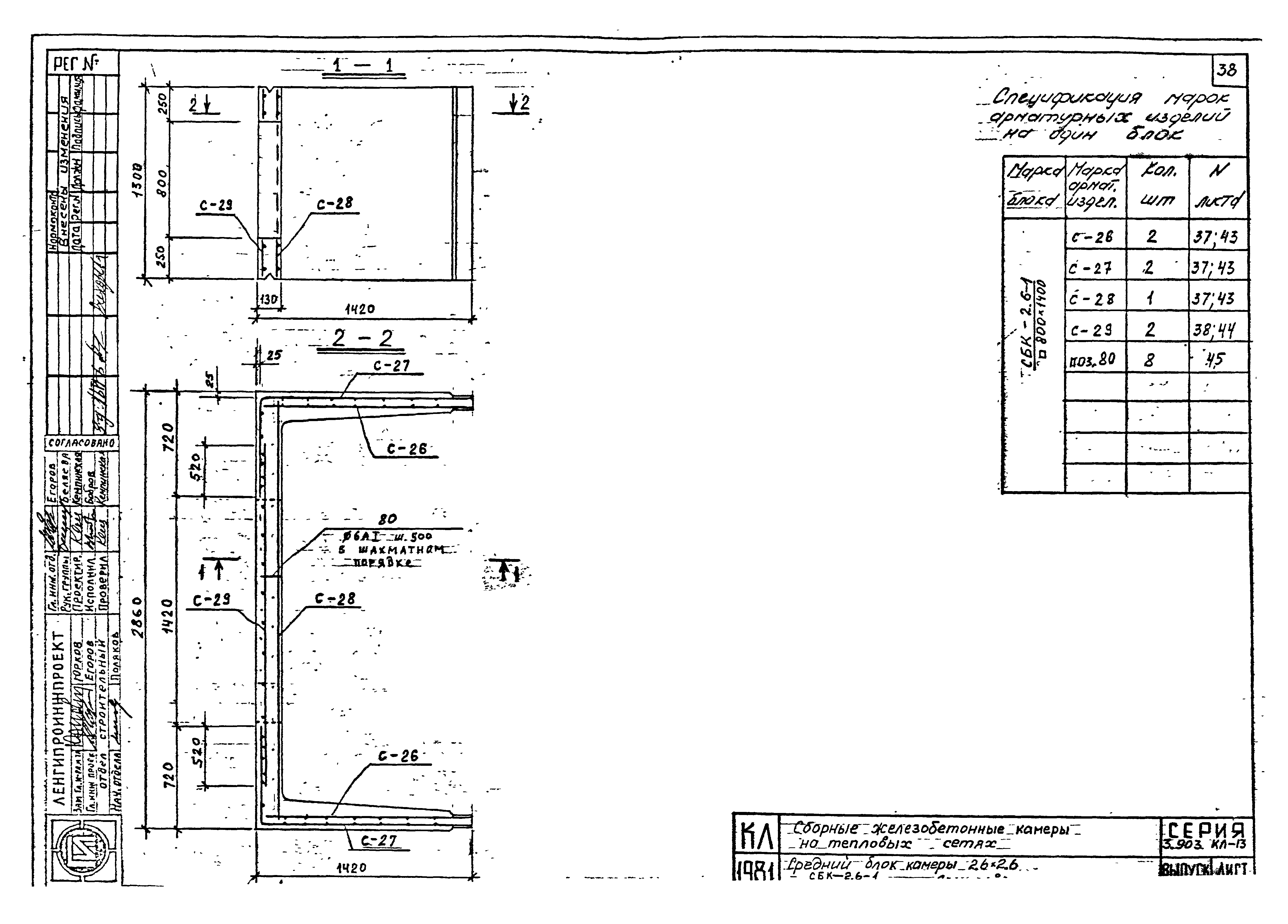
Скачать Серия 3.903 КЛ-13 Выпуск 1-5. Теплоснабжение. Сборные железобетонные камеры на тепловых сетяхДата актуализации: 01.01.2021 Серия 3.903 КЛ-13
Выпуск 1-5. Теплоснабжение. Сборные железобетонные камеры на тепловых сетях| Обозначение: | Серия 3.903 КЛ-13 | | Обозначение англ: | Series 3.903 КЛ-13 | | Статус: | действует | | Название рус.: | Выпуск 1-5. Теплоснабжение. Сборные железобетонные камеры на тепловых сетях | | Дата добавления в базу: | 01.09.2013 | | Дата актуализации: | 01.01.2021 | | Дата введения: | 01.12.1981 | | Разработан: | Ленгипроинжпроект Ленгорисполкома
| | Утверждён: | 01.12.1981 Ленгипроинжпроект (Lengiproinzhproject 231-КЛ)
|
                                                              
|