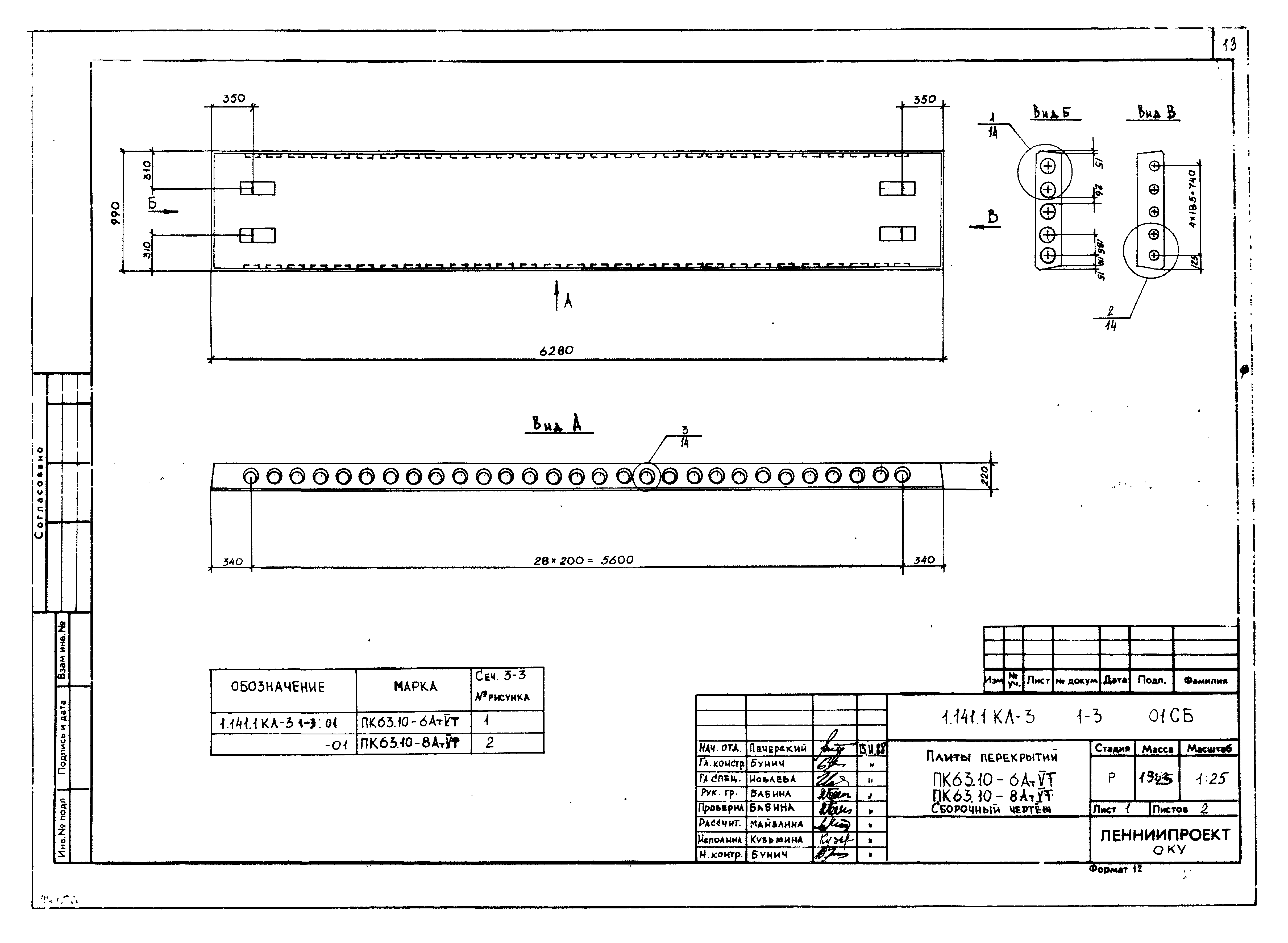
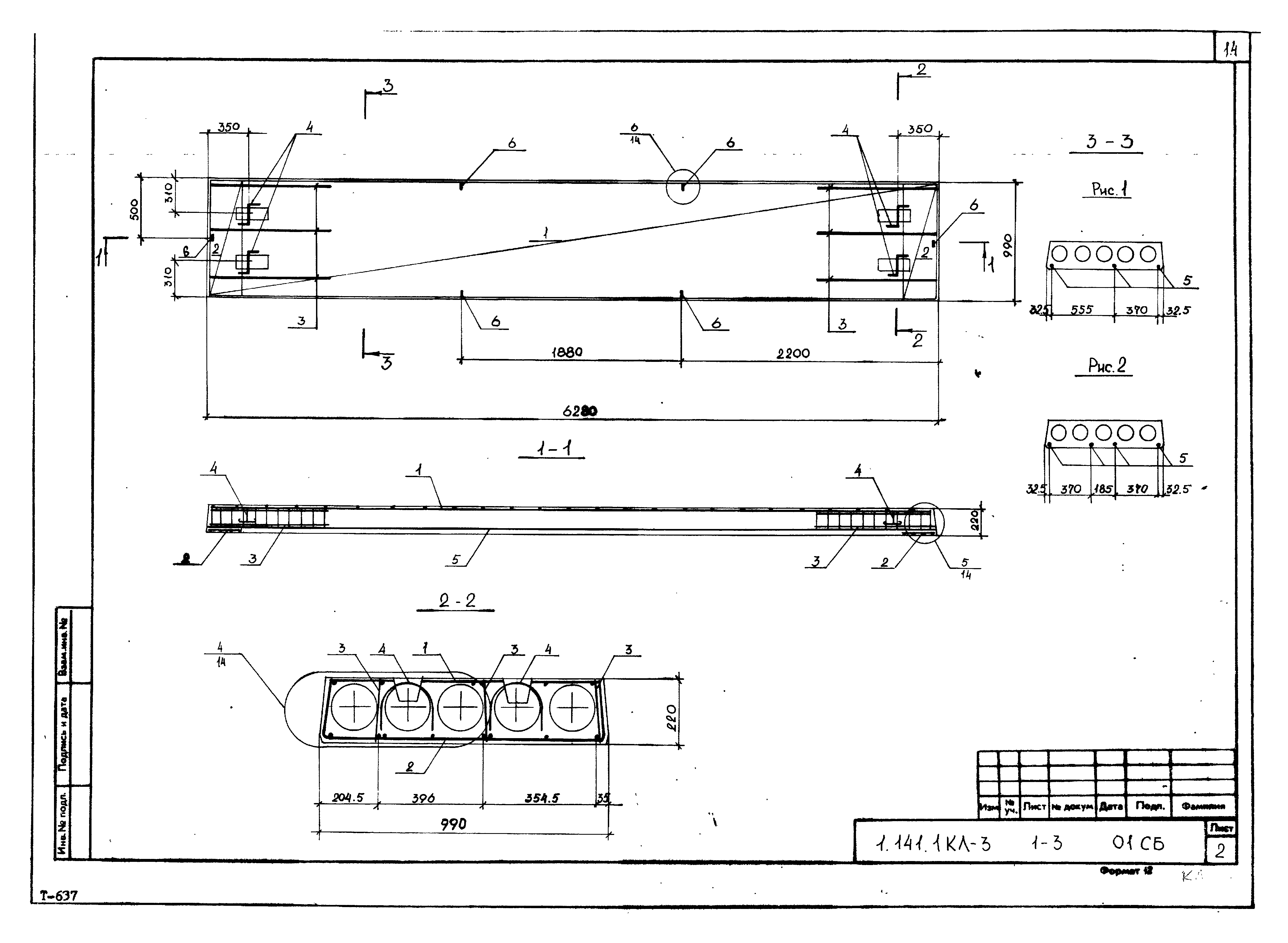
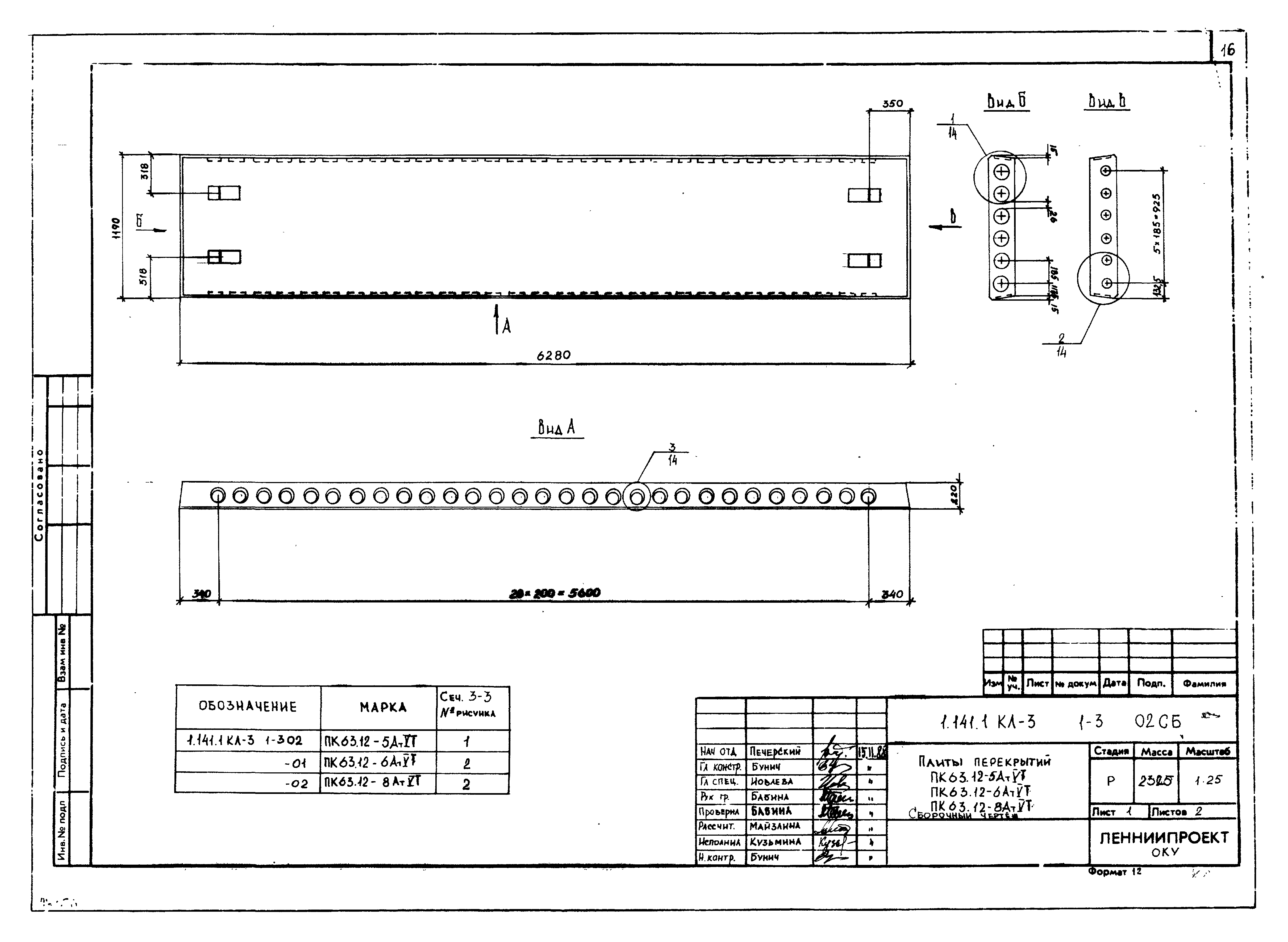
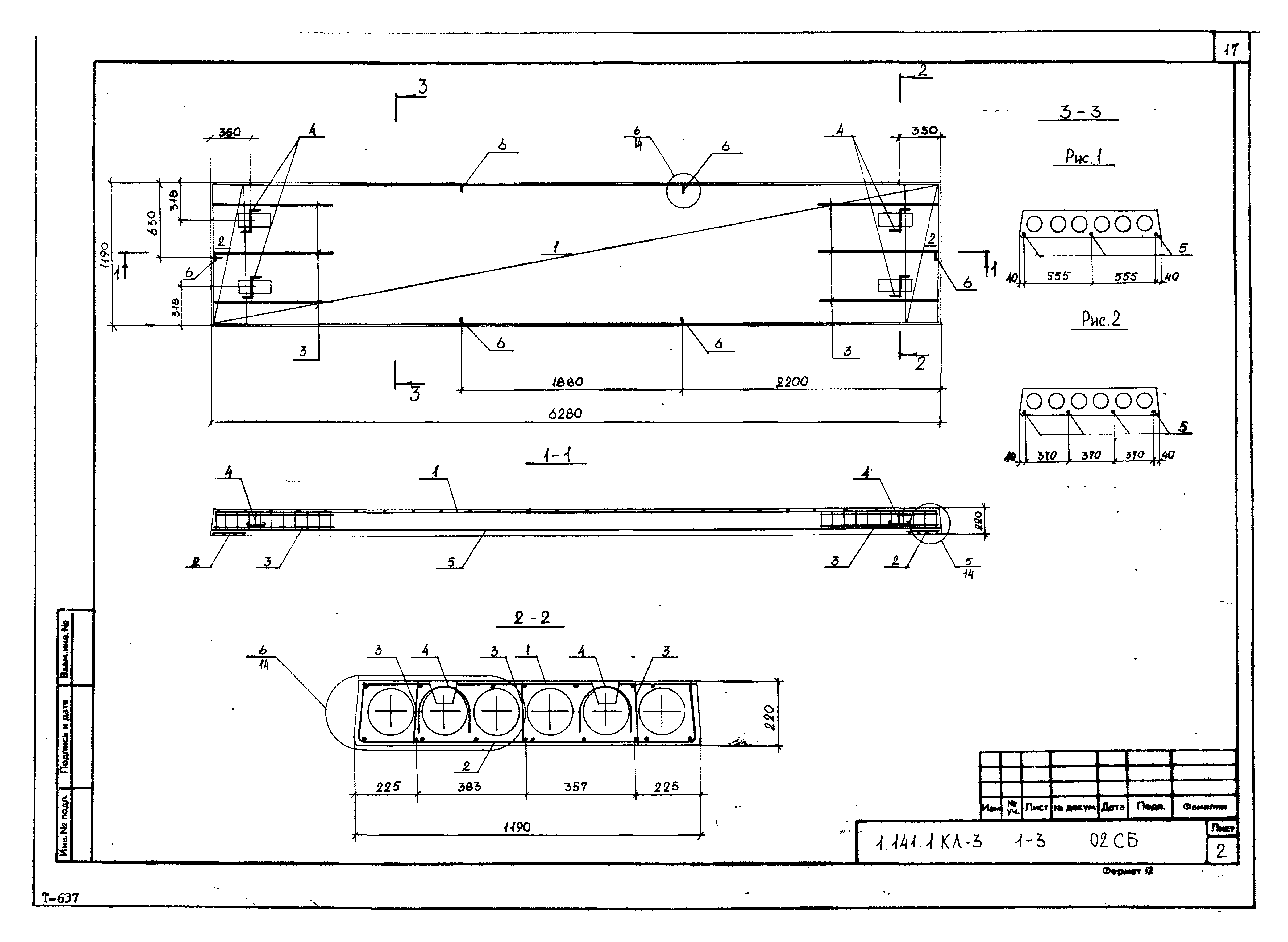
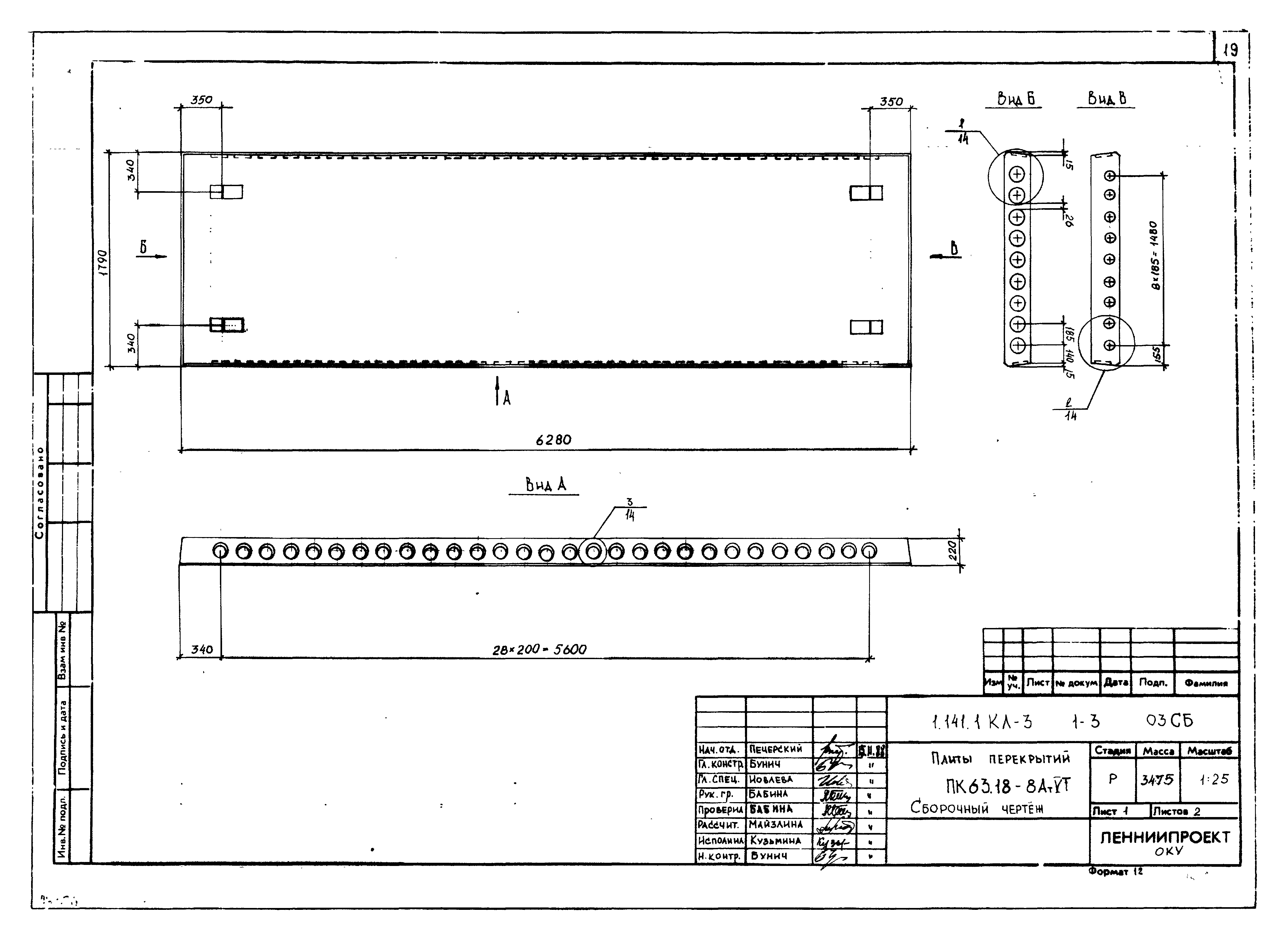
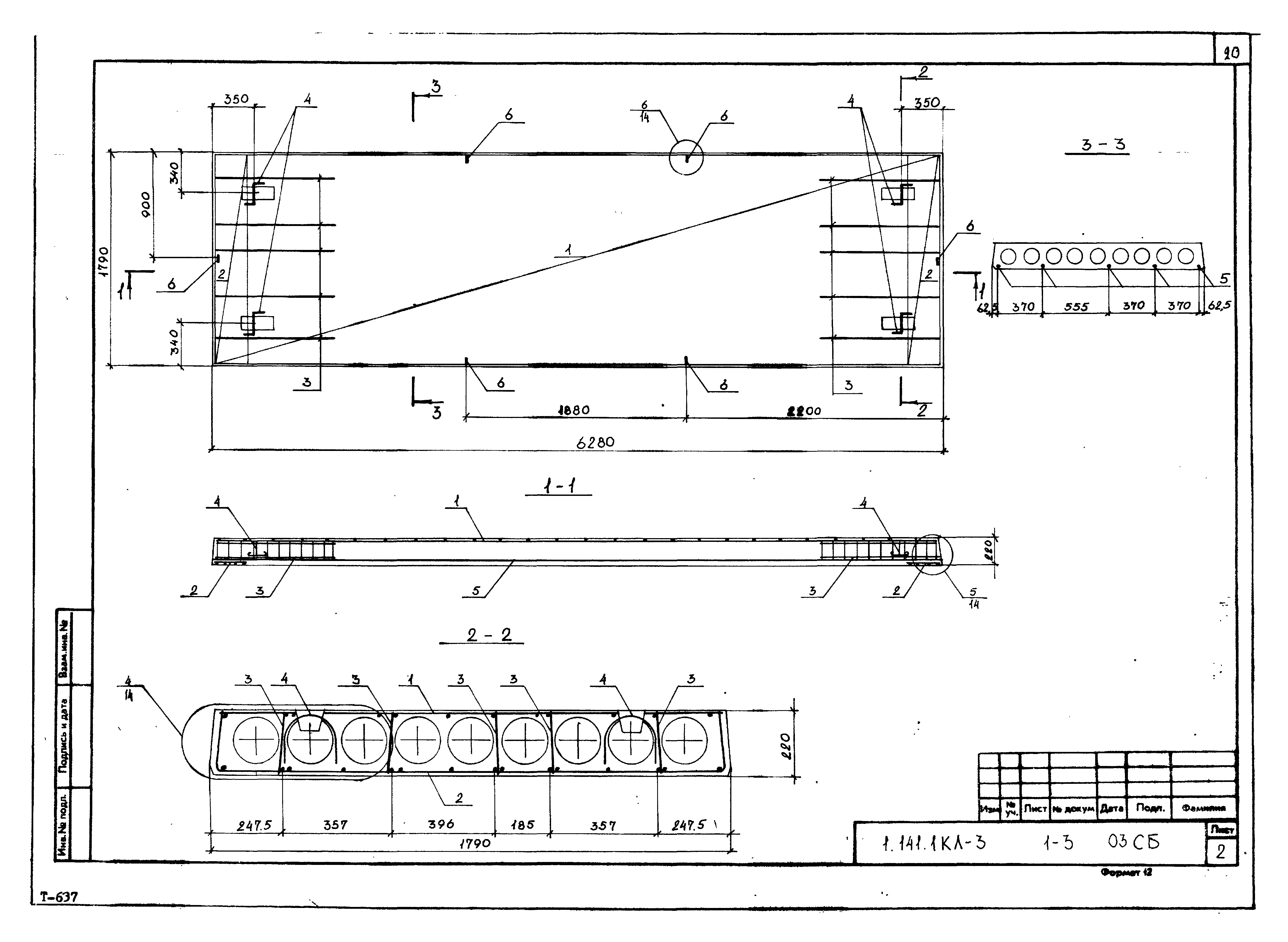
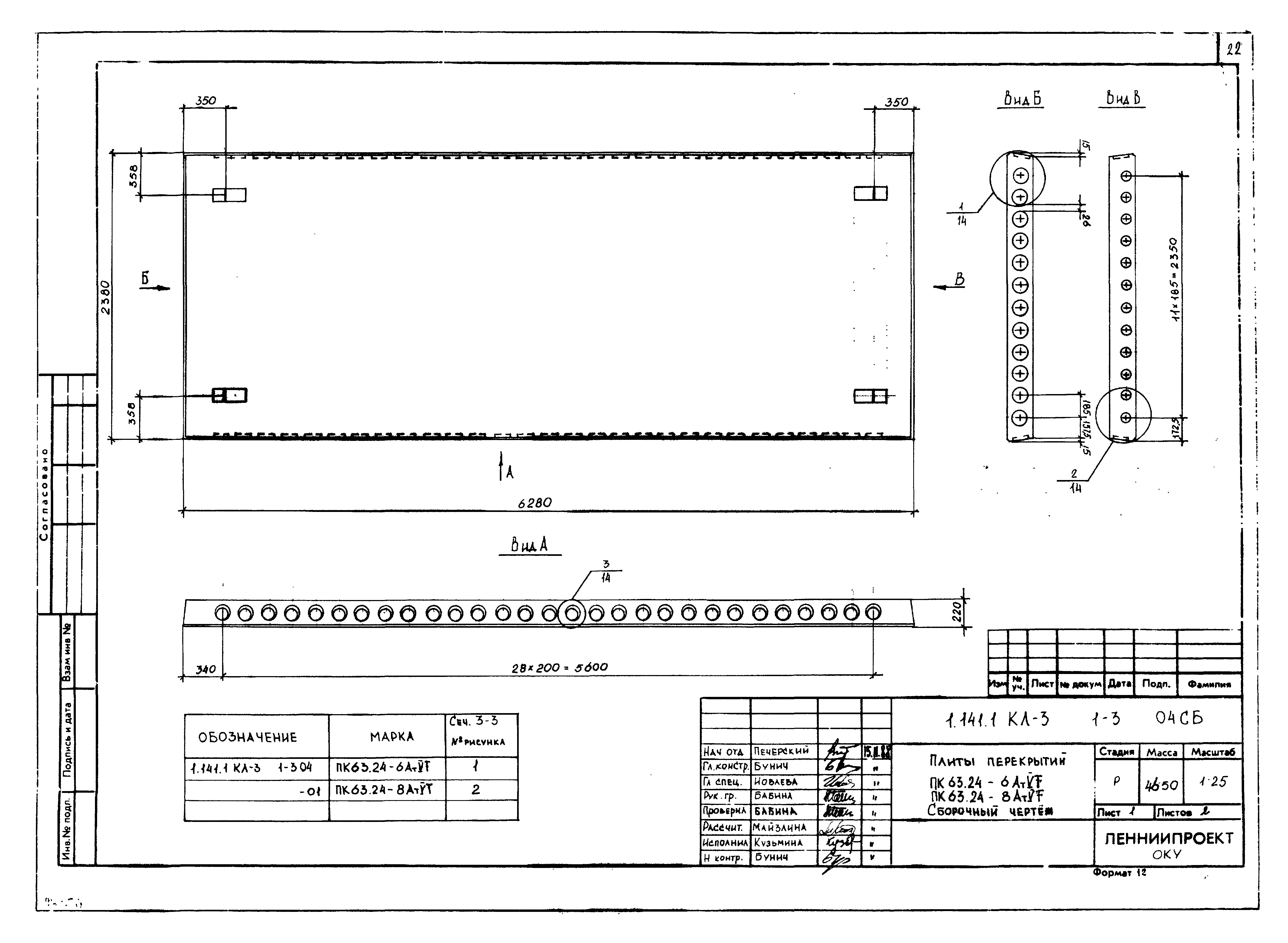
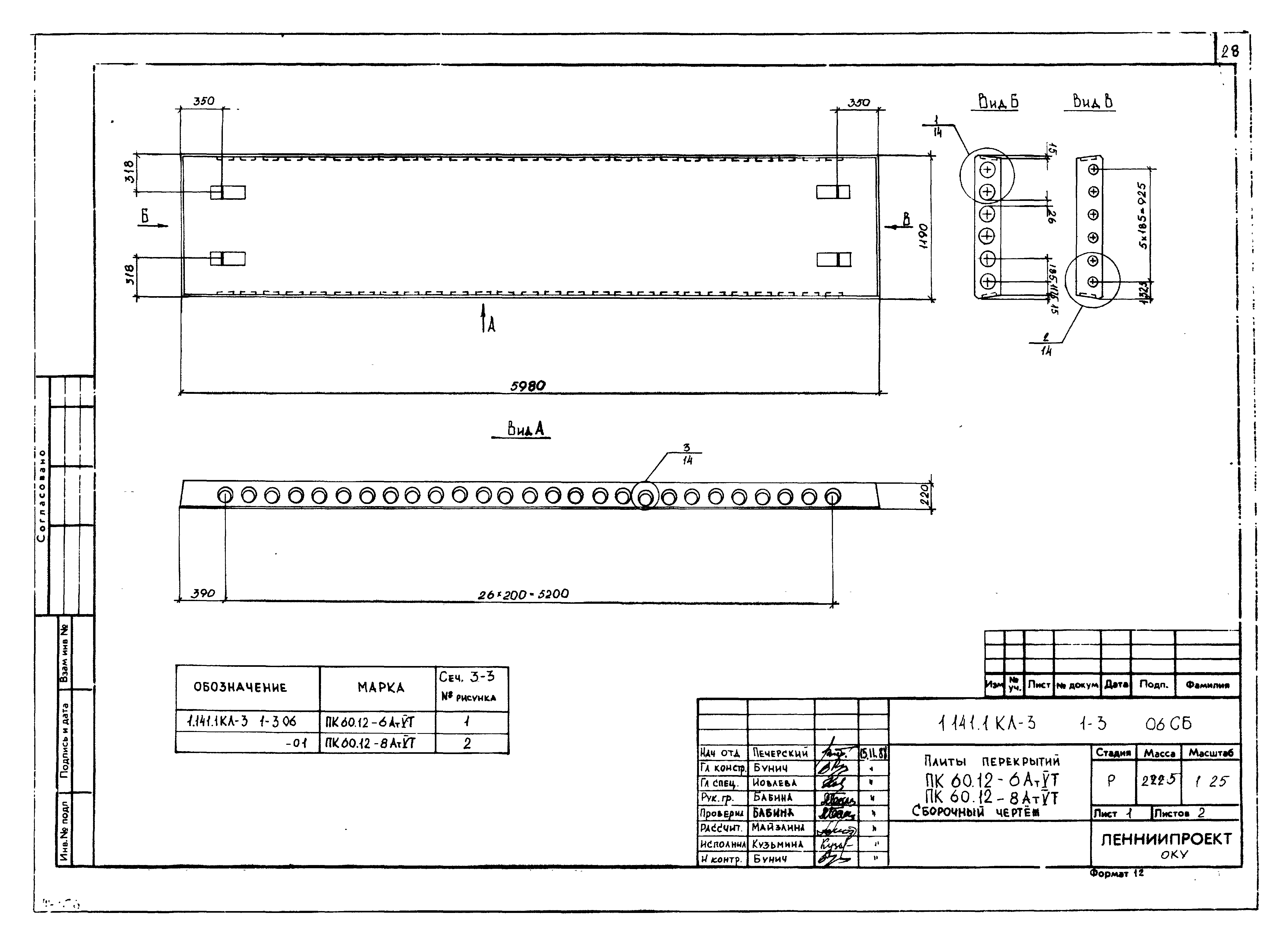
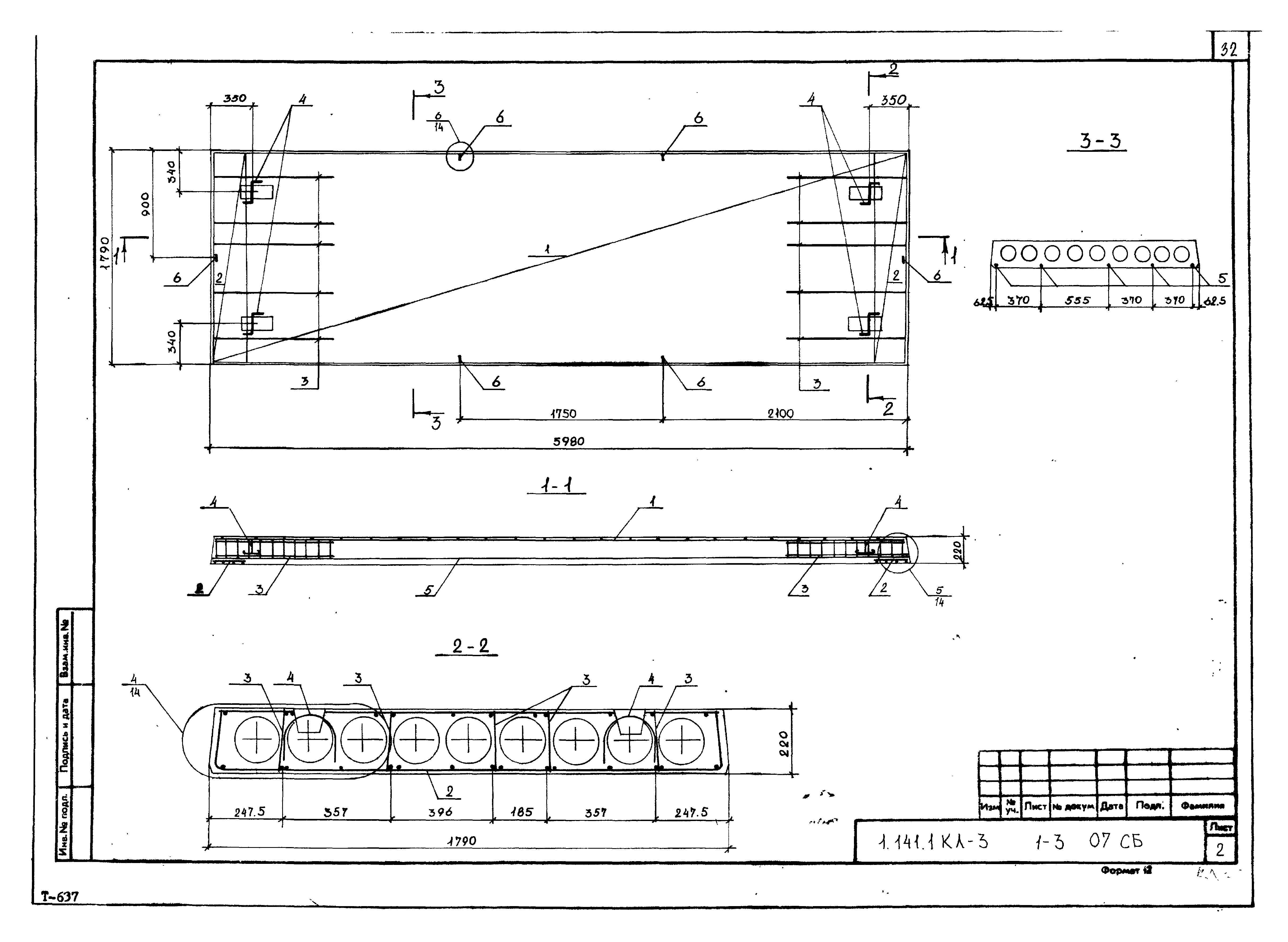
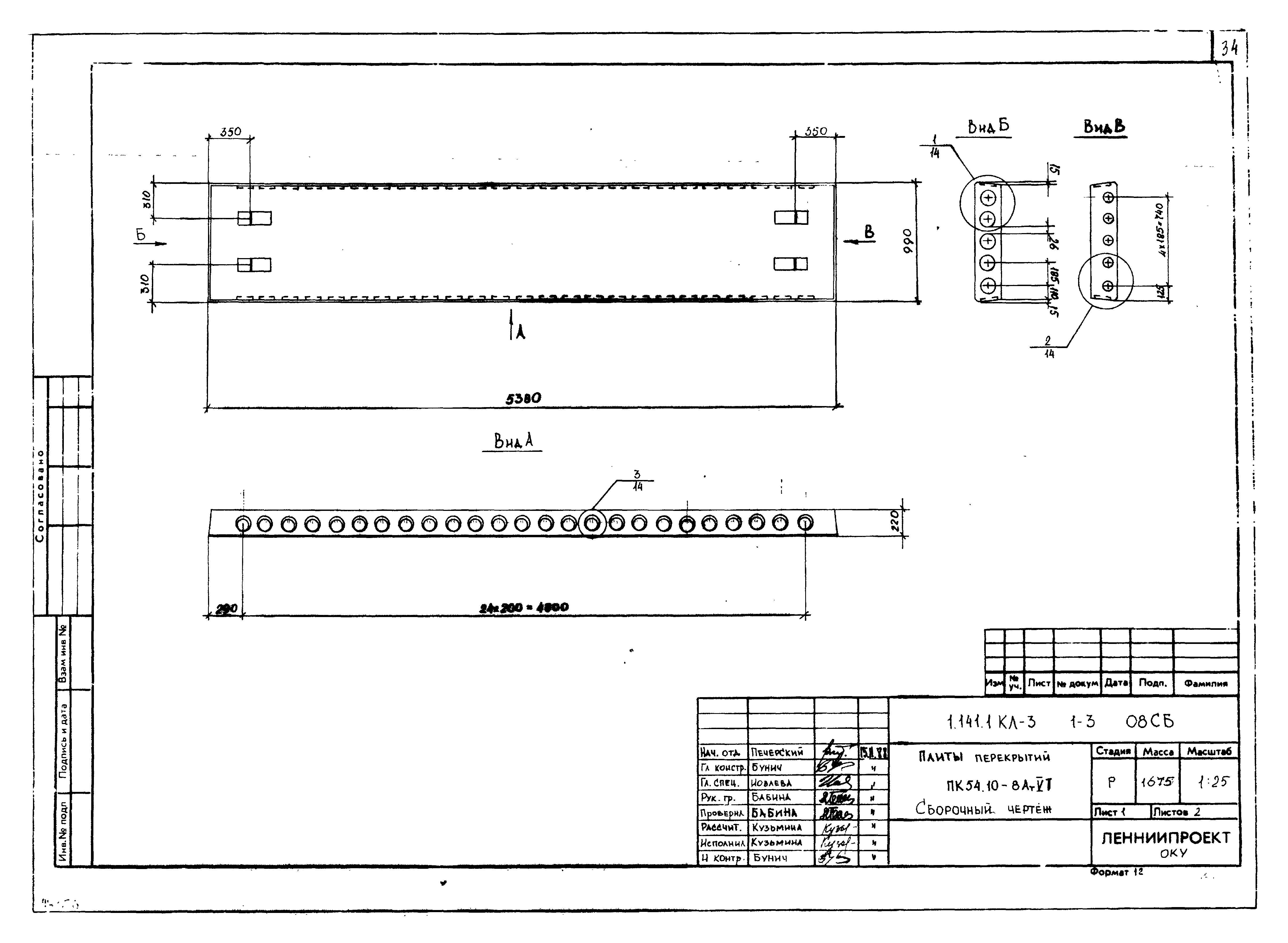
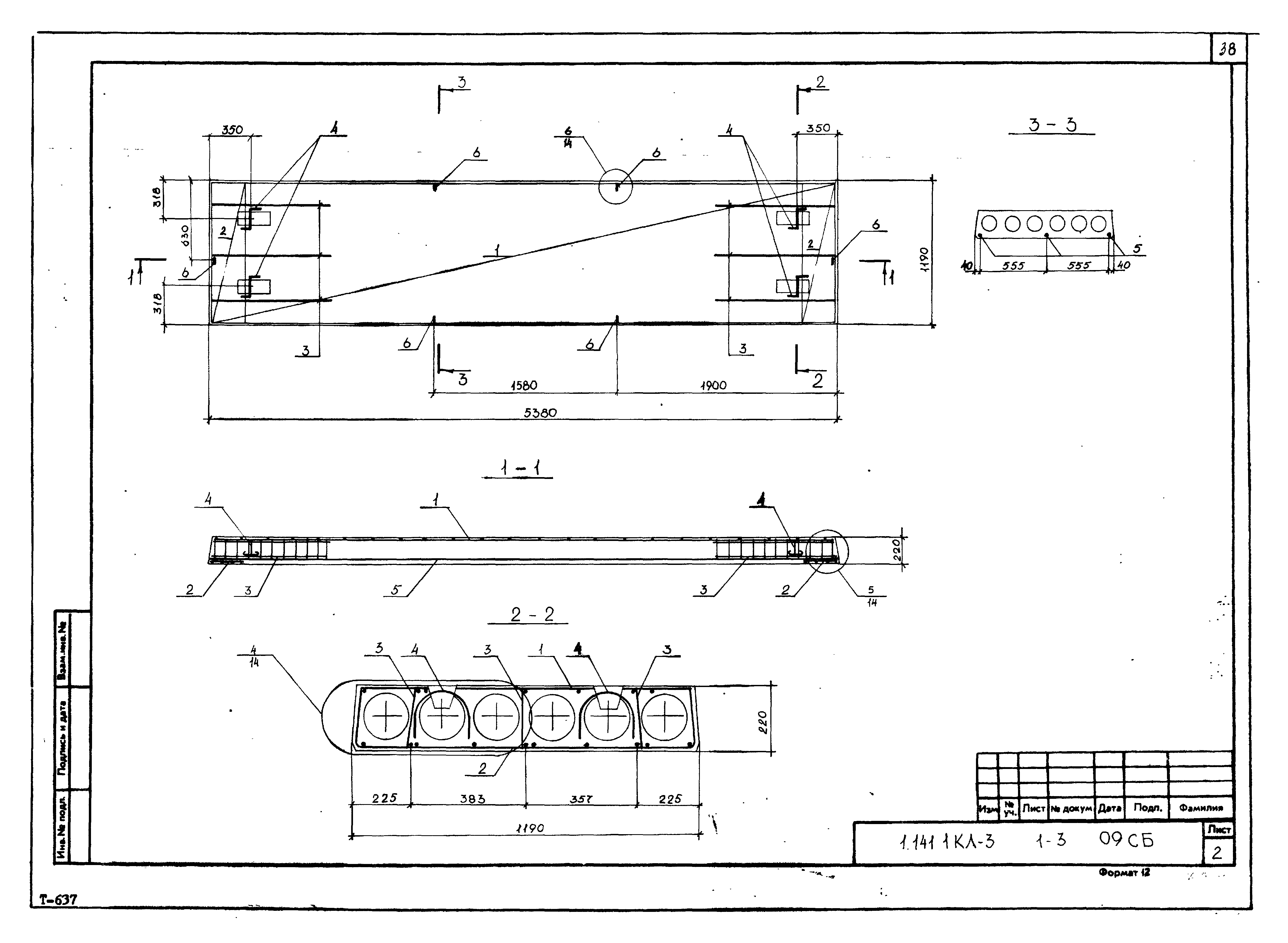
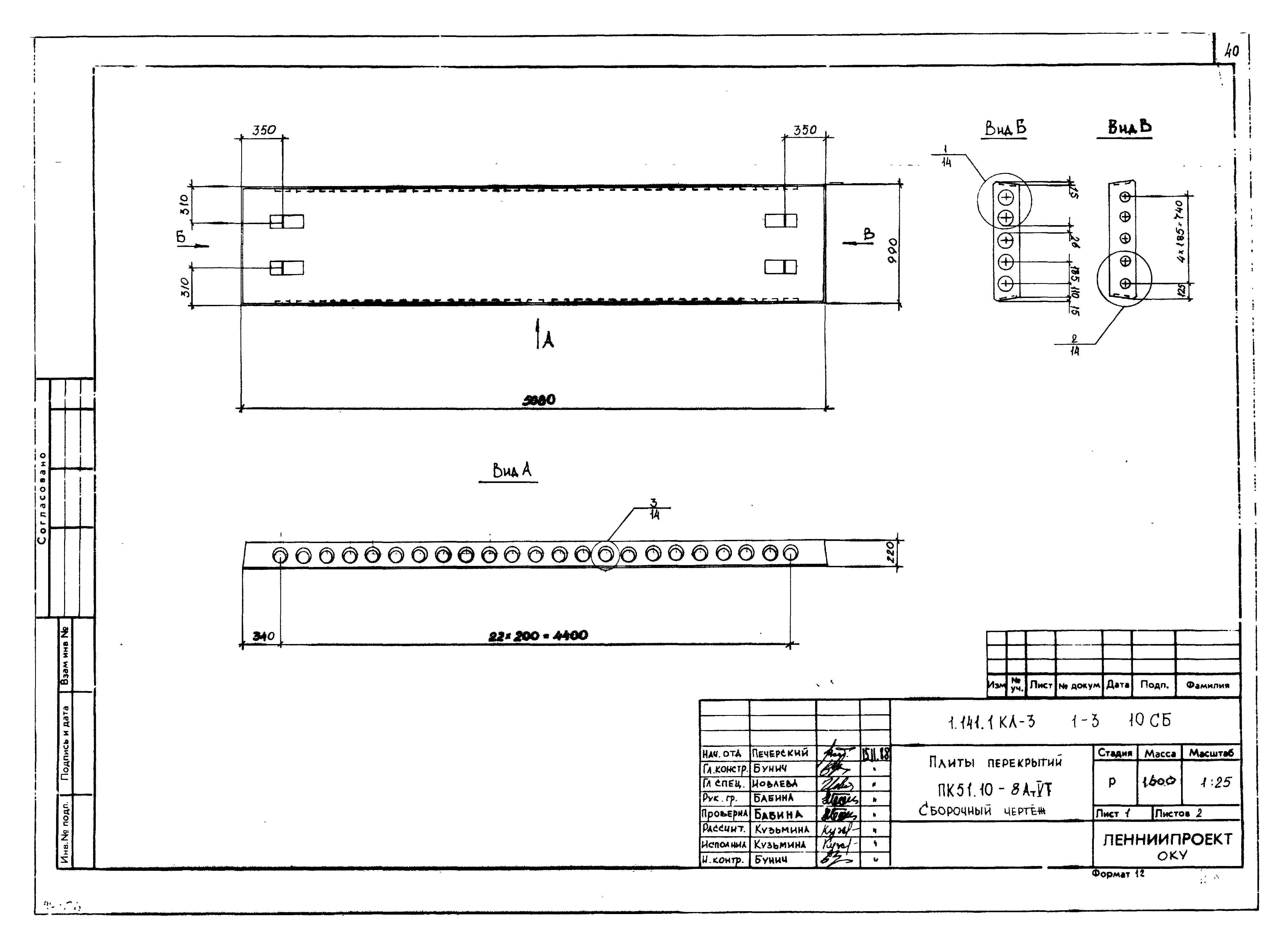
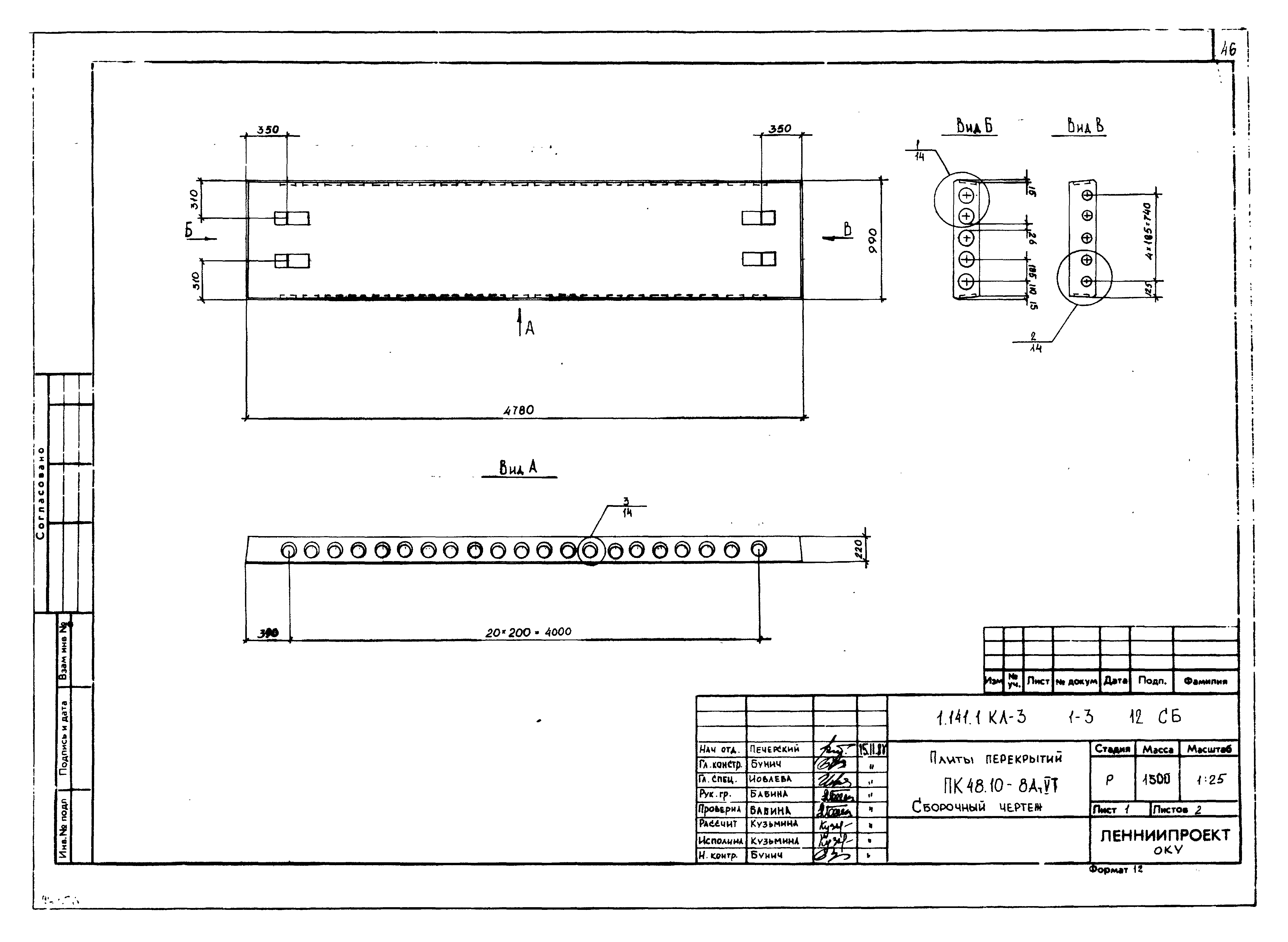
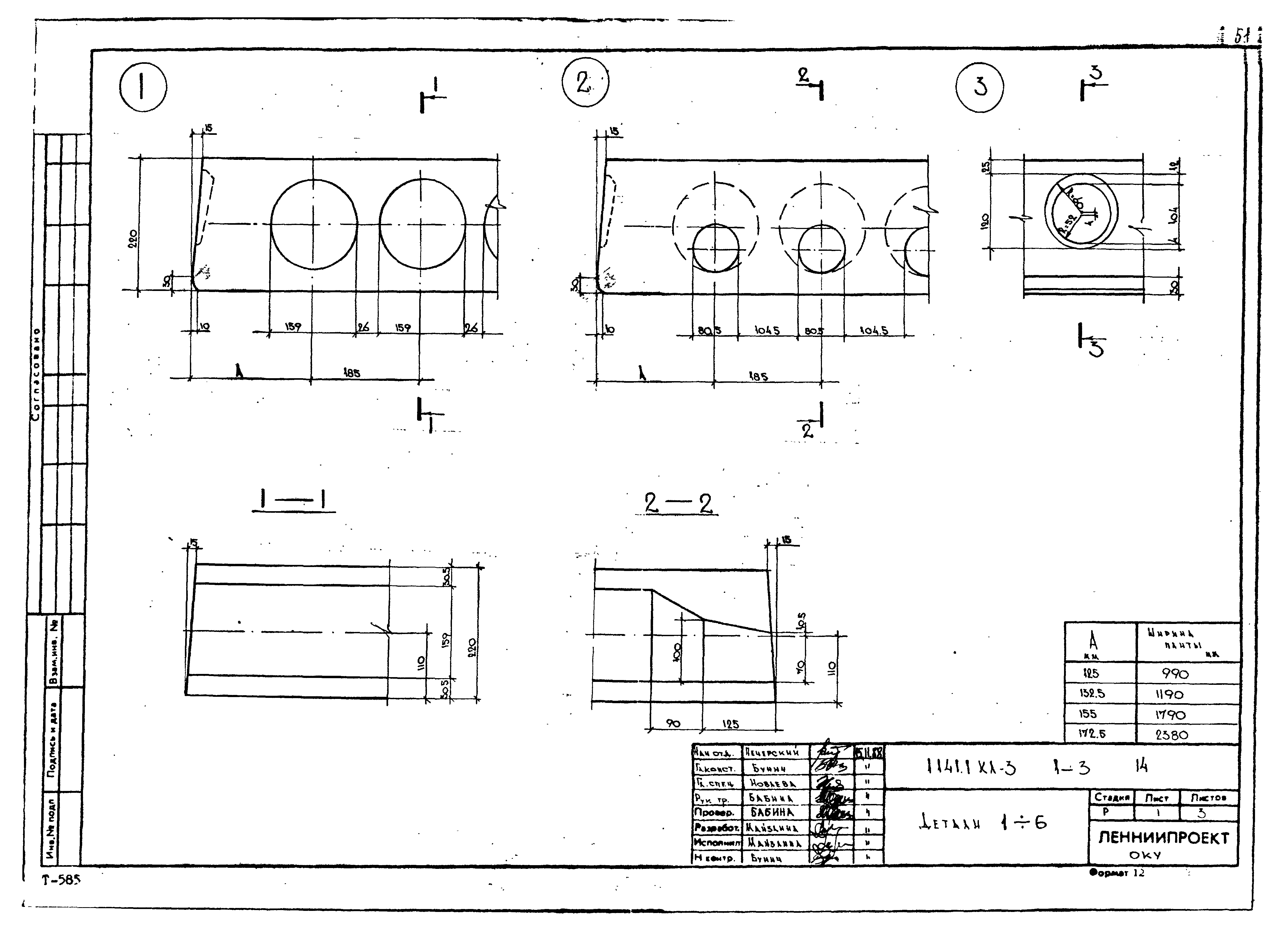
Скачать Серия 1.141.1 КЛ-3 Выпуск 1-3. Плиты длиной 478, 508, 538, 598, 628 см шириной 99, 119, 179, 238 см с предварительно напрягаемой арматурой класса Ат-VДата актуализации: 01.01.2021 Серия 1.141.1 КЛ-3
Выпуск 1-3. Плиты длиной 478, 508, 538, 598, 628 см шириной 99, 119, 179, 238 см с предварительно напрягаемой арматурой класса Ат-V| Обозначение: | Серия 1.141.1 КЛ-3 | | Обозначение англ: | Series 1.141.1 КЛ-3 | | Статус: | действует | | Название рус.: | Выпуск 1-3. Плиты длиной 478, 508, 538, 598, 628 см шириной 99, 119, 179, 238 см с предварительно напрягаемой арматурой класса Ат-V | | Дата добавления в базу: | 01.09.2013 | | Дата актуализации: | 01.01.2021 | | Дата введения: | 06.12.1988 | | Разработан: | Ленниипроект
| | Утверждён: | 06.12.1988 Ленниипроект (129-У)
|
                                                     
|