Скачать Типовые проектные решения 904-02-9 Альбом III. Один и два агрегата в группе. Два режима работыДата актуализации: 01.01.2021
|
| Обозначение: | Типовые проектные решения 904-02-9 |
| Обозначение англ: | 904-02-9 |
| Статус: | справочные материалы, мп, тпр |
| Название рус.: | Альбом III. Один и два агрегата в группе. Два режима работы |
| Дата добавления в базу: | 01.09.2013 |
| Дата актуализации: | 01.01.2021 |
| Дата окончания срока действия: | 15.11.1981 |
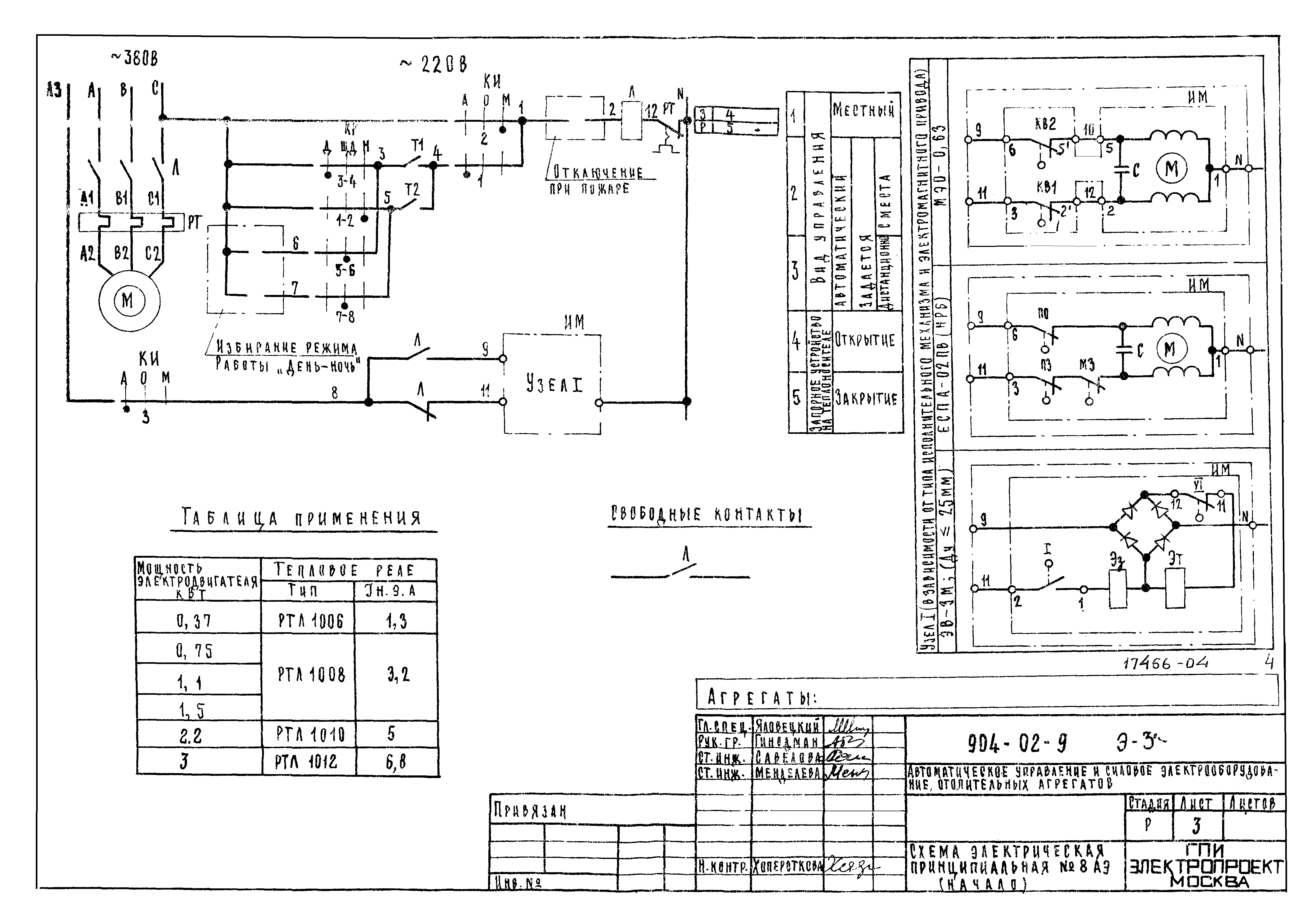
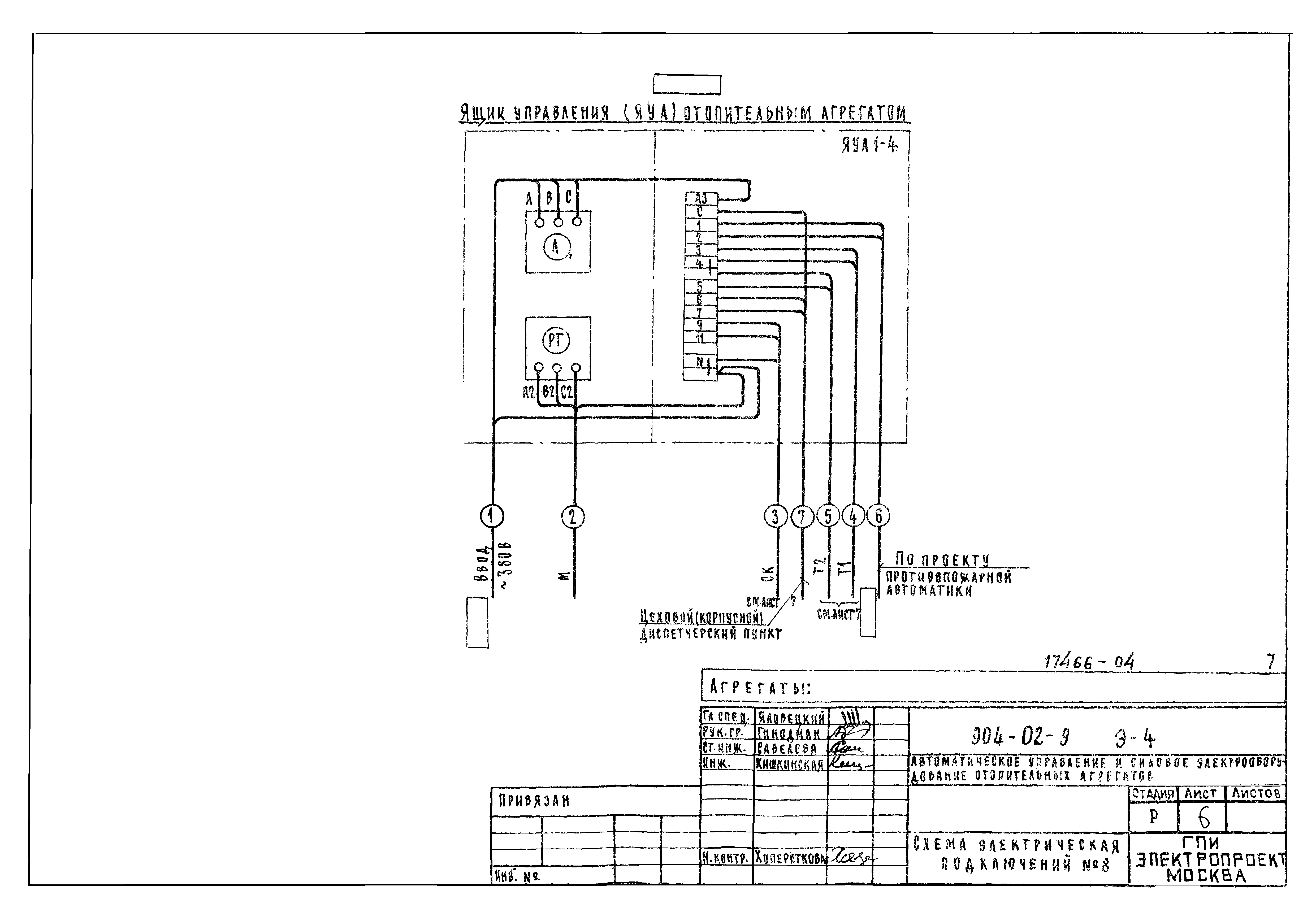
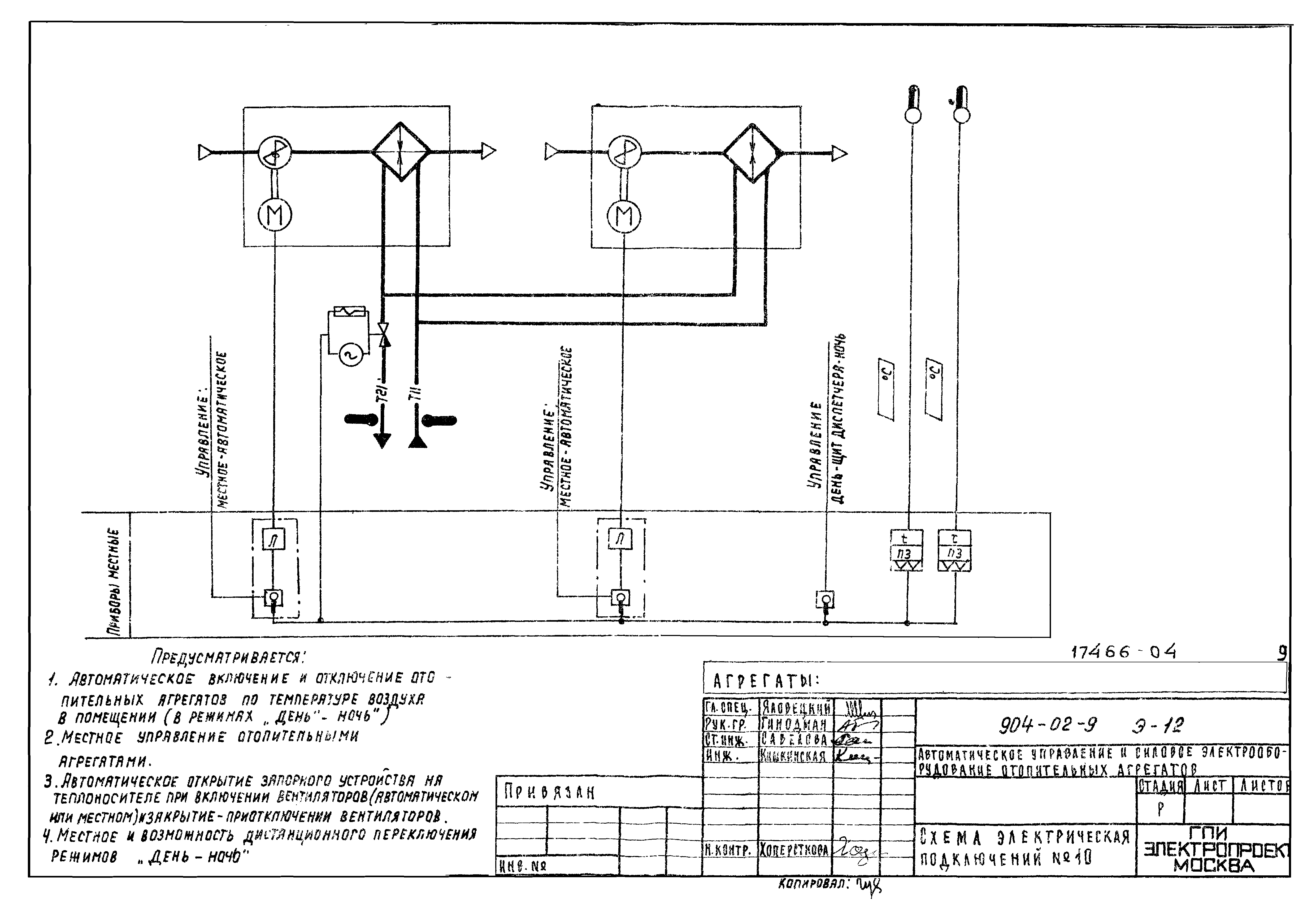
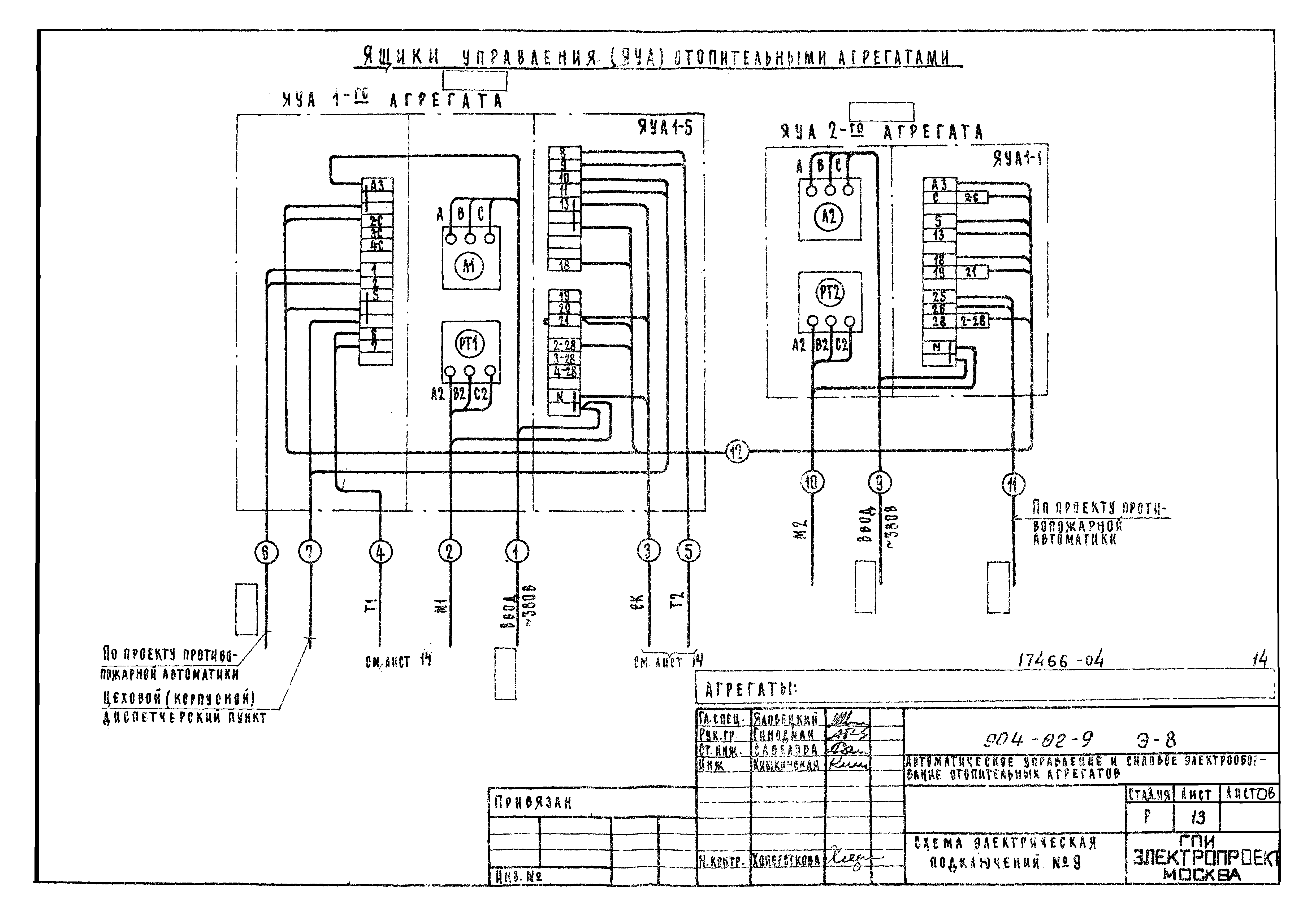
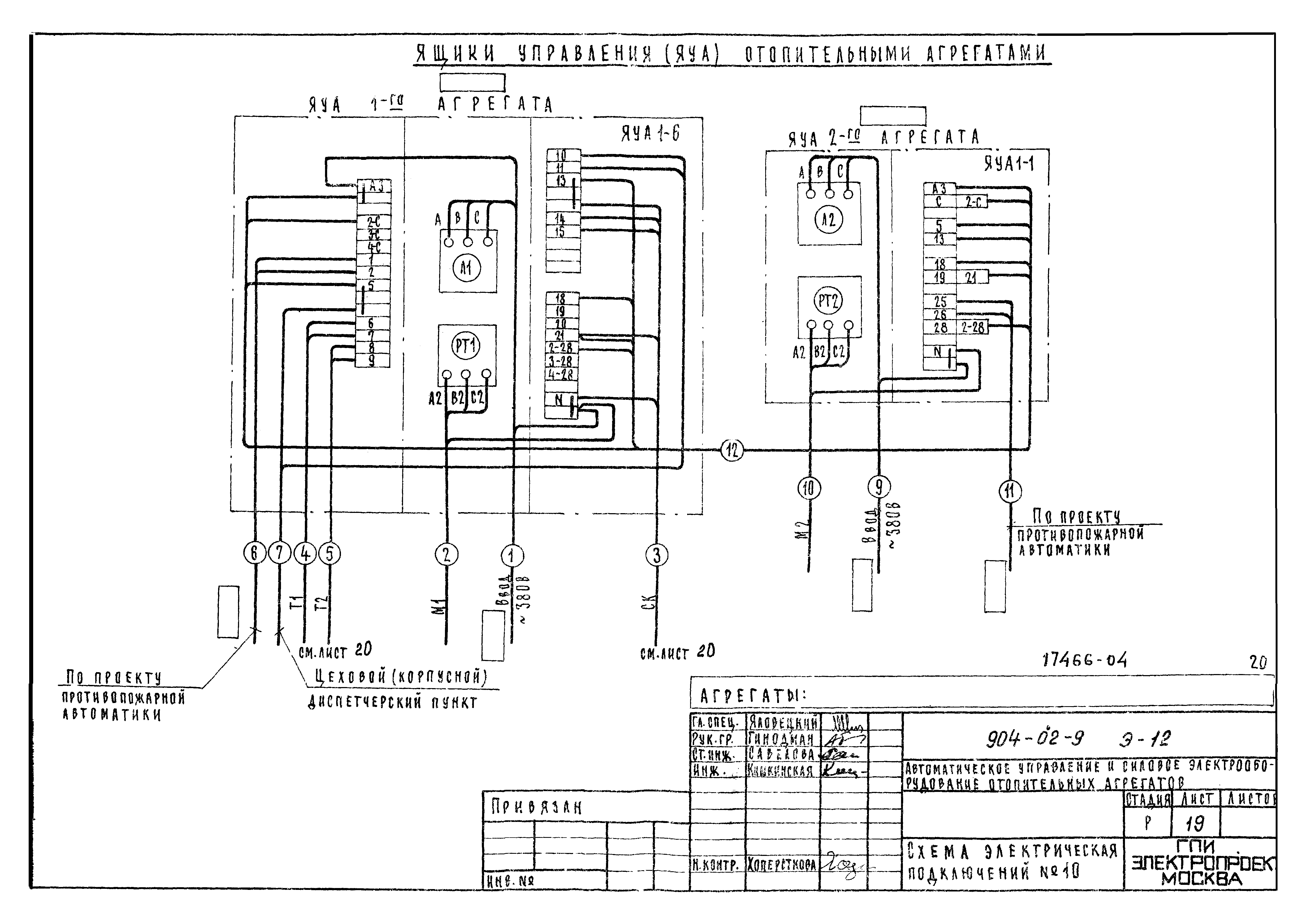
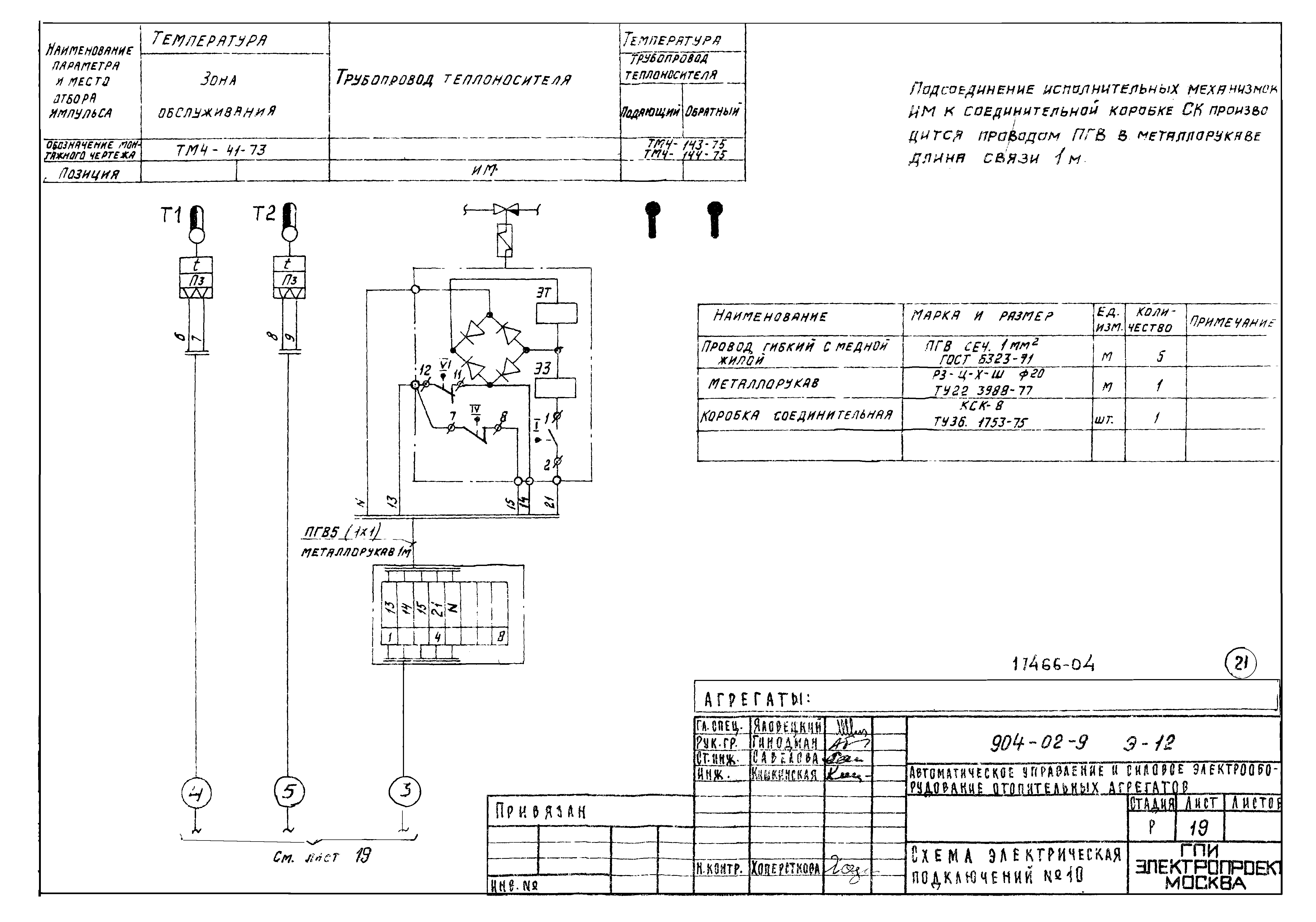
| Оглавление: | ТП 904-02-8-АЭ-1 Общие данные ТП 904-02-8-А-2 Схема функциональная №8АФ ТП 904-02-8-Э-3 Схема электрическая принципиальная №8АЭ ТП 904-02-8-Э-4 Схема электрическая подключений №8 ТП 904-02-8-А-5 Схема внешних проводок №4СВП ТП 904-02-8-А-6 Схема функциональная №9АФ ТП 904-02-8-Э-7 Схема электрическая принципиальная №9АЭ ТП 904-02-8-Э-8 Схема электрическая подключений №9 ТП 904-02-8-А-9 Схема внешних проводок №5СВП ТП 904-02-8-А-10 Схема функциональная №10АФ ТП 904-02-8-Э-11 Схема электрическая принципиальная №10АЭ ТП 904-02-8-Э-12 Схема электрическая подключений №10 ТП 904-02-8-А-13 Схема внешних проводок №6СВП |
| Разработан: | Сантехпроект Госстроя СССР Электропроект Минмонтажспецстроя СССР |
| Утверждён: | 23.10.1981 Главпромстройпроект Госстроя СССР (82) |






















