Скачать Типовой проект 705-1-207.86 Альбом II. Строительные изделияДата актуализации: 01.01.2021
|
| Обозначение: | Типовой проект 705-1-207.86 |
| Обозначение англ: | 705-1-207.86 |
| Статус: | не определен законодательством |
| Название рус.: | Альбом II. Строительные изделия |
| Дата добавления в базу: | 01.09.2013 |
| Дата актуализации: | 01.01.2021 |
| Дата введения: | 02.12.1986 |
| Дата окончания срока действия: | 30.06.2003 |
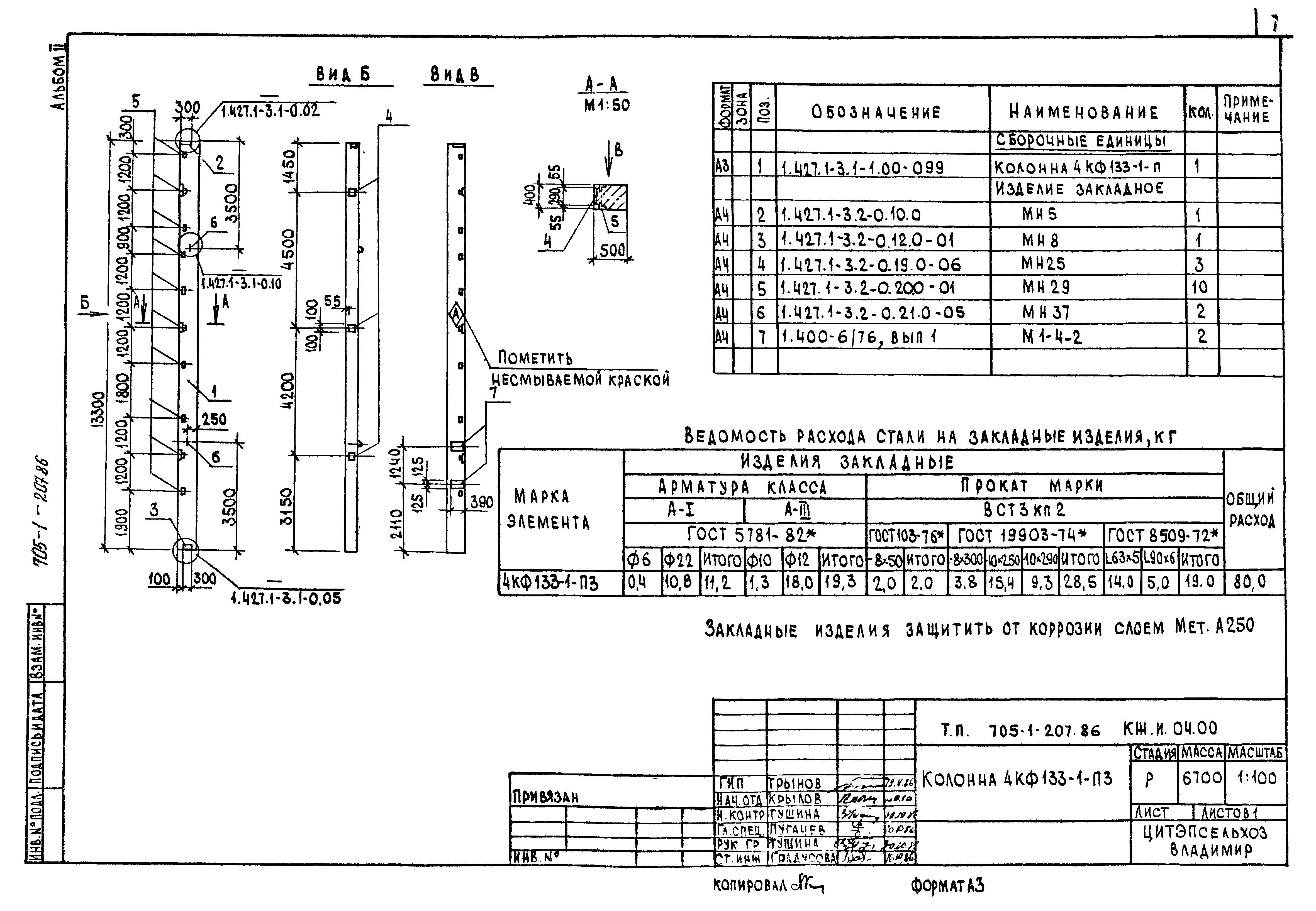
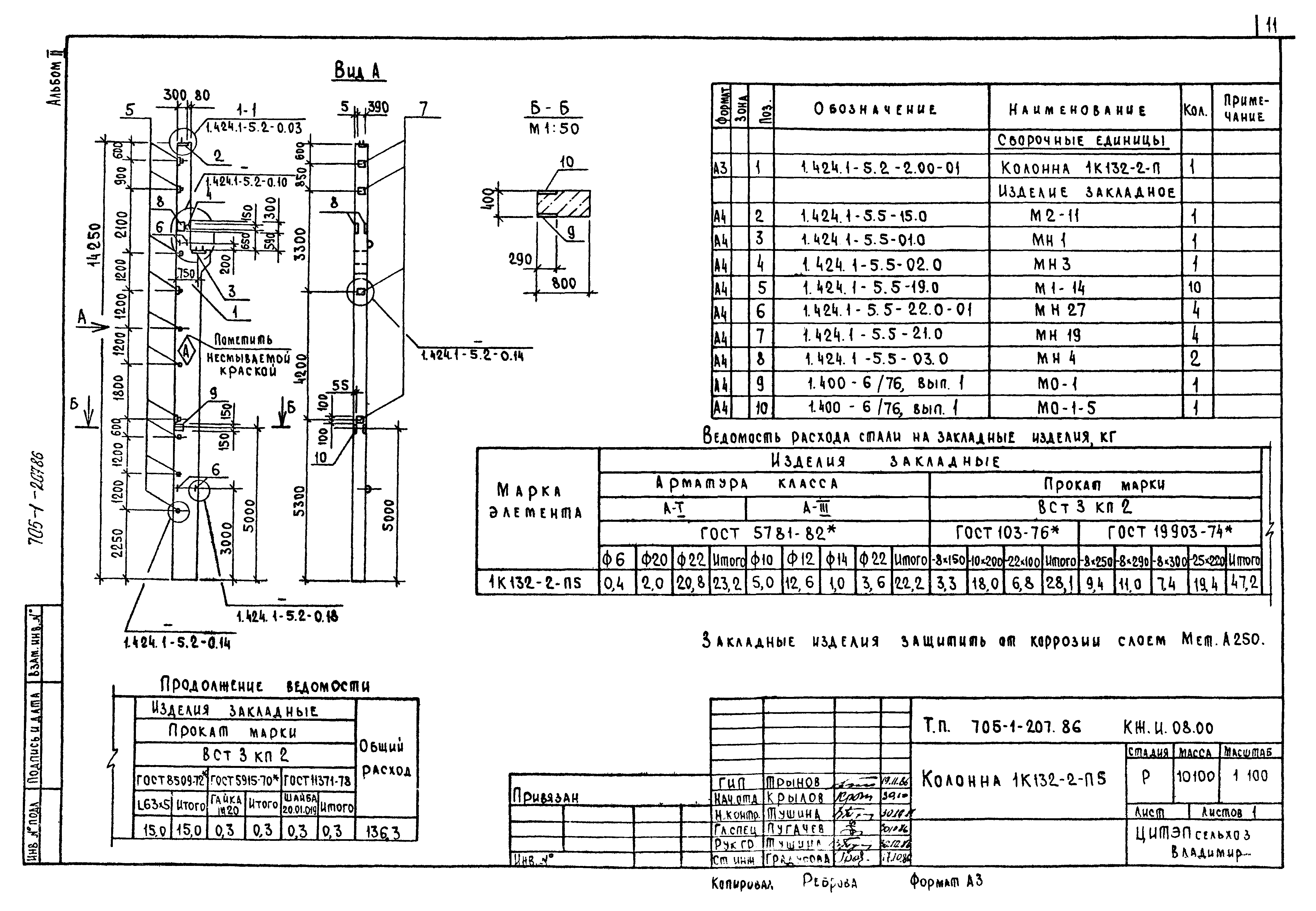
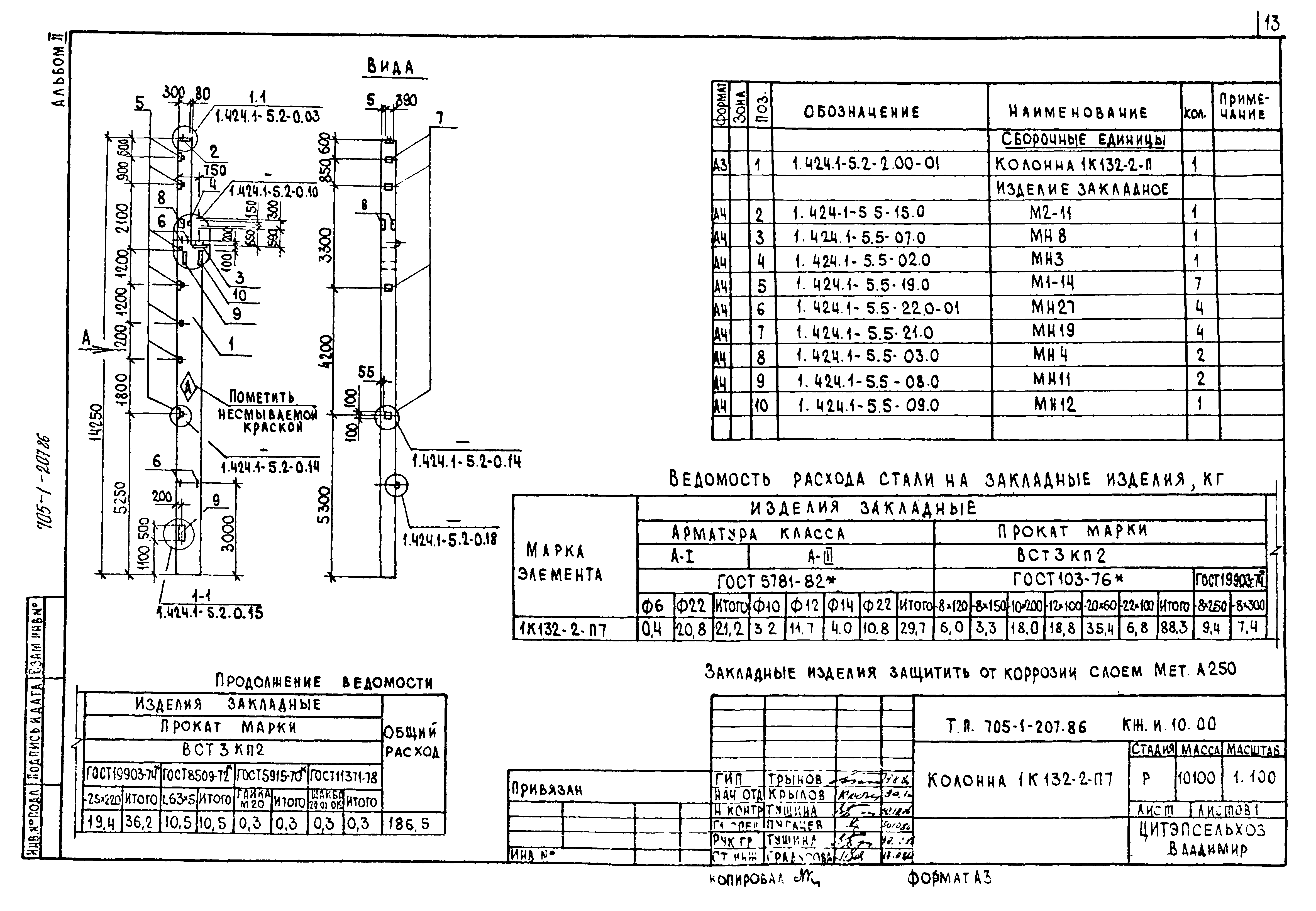
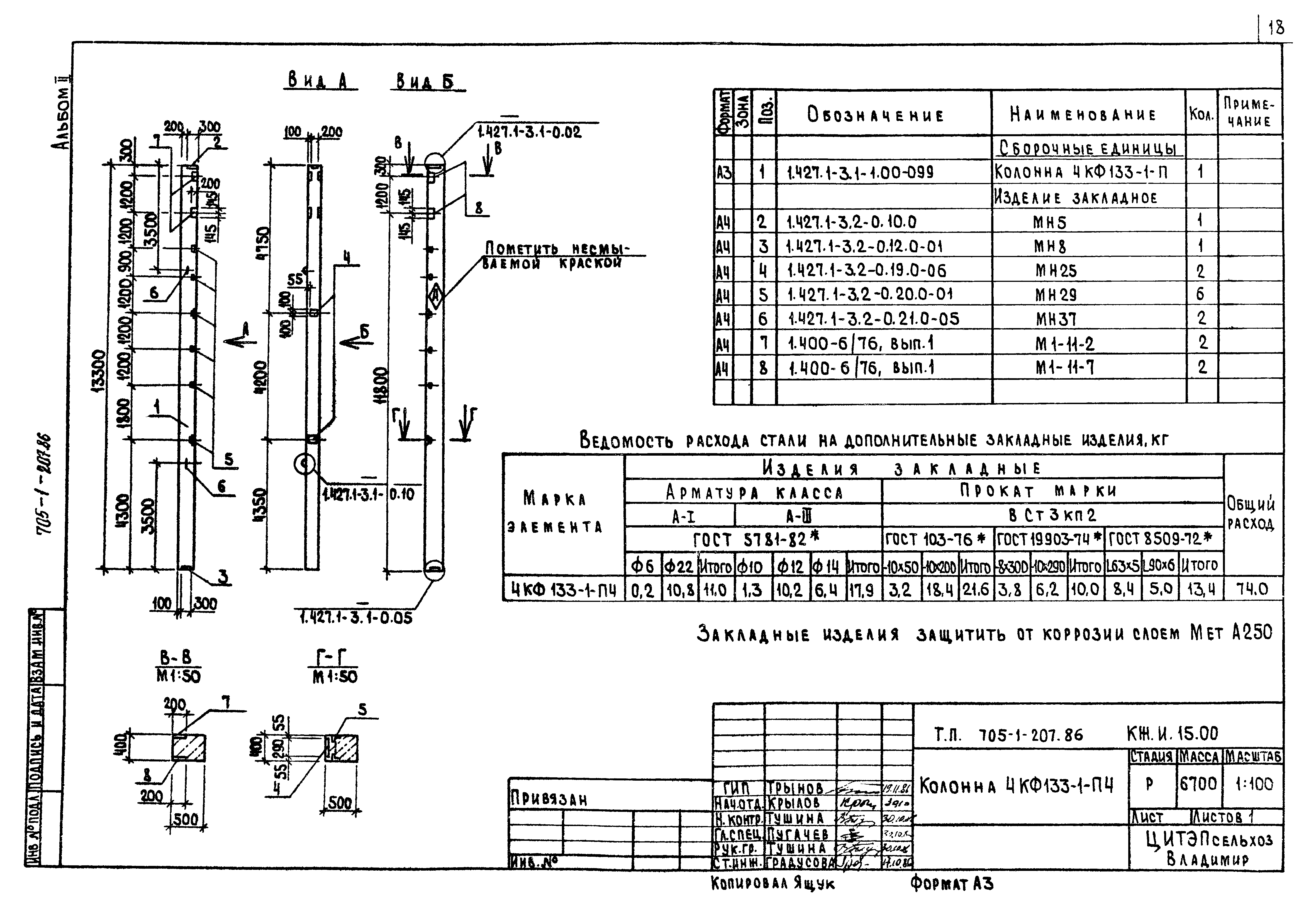
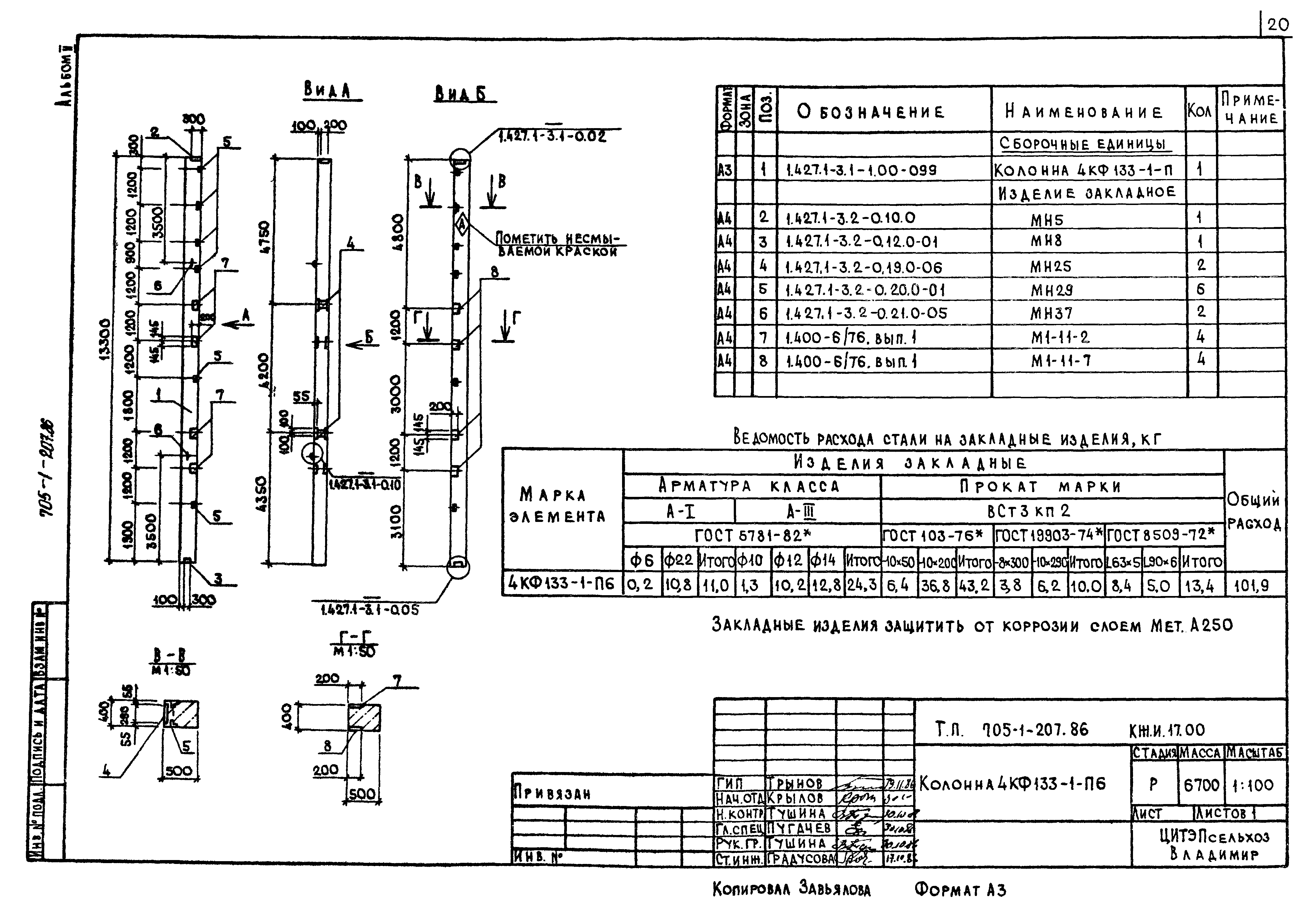
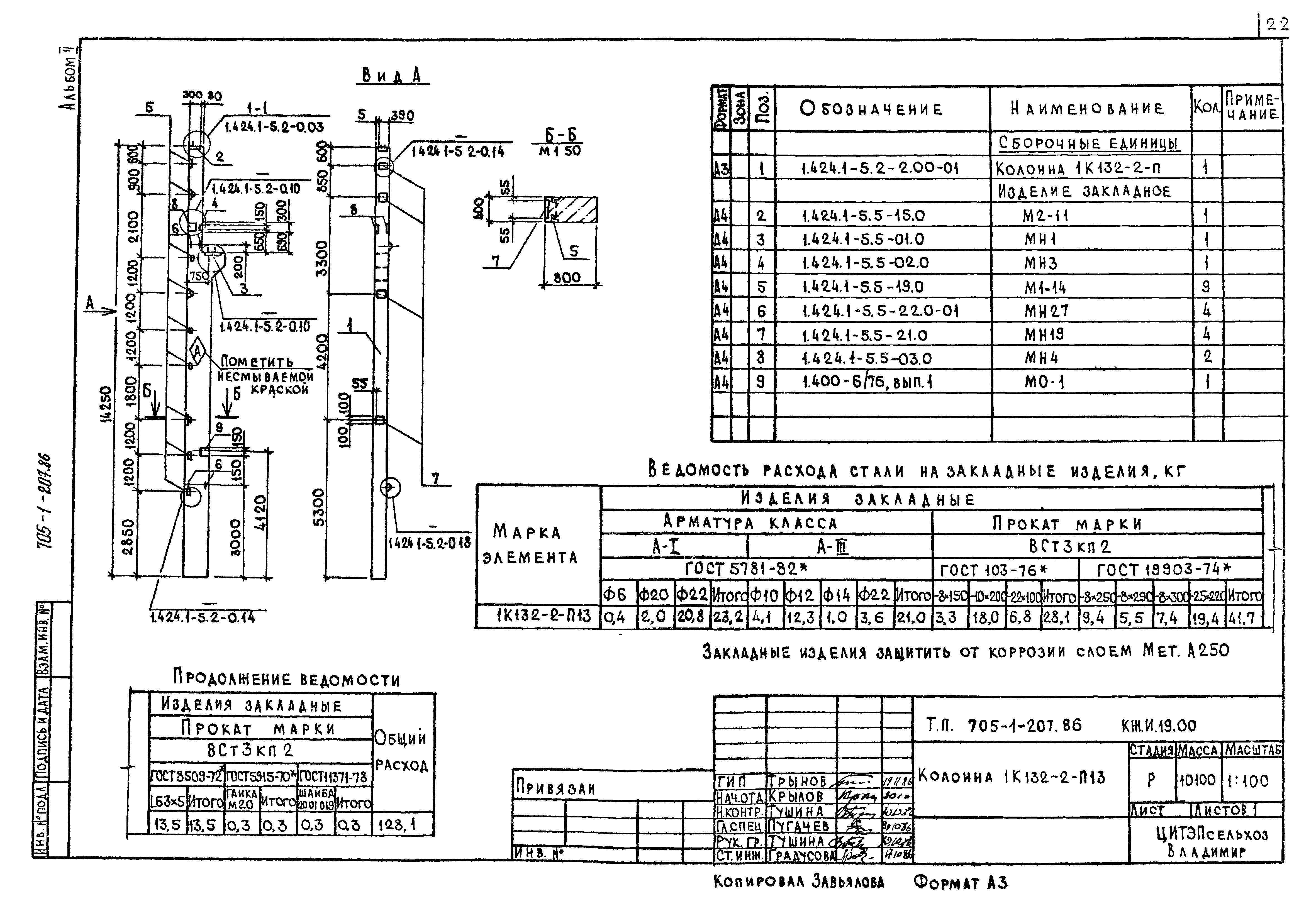
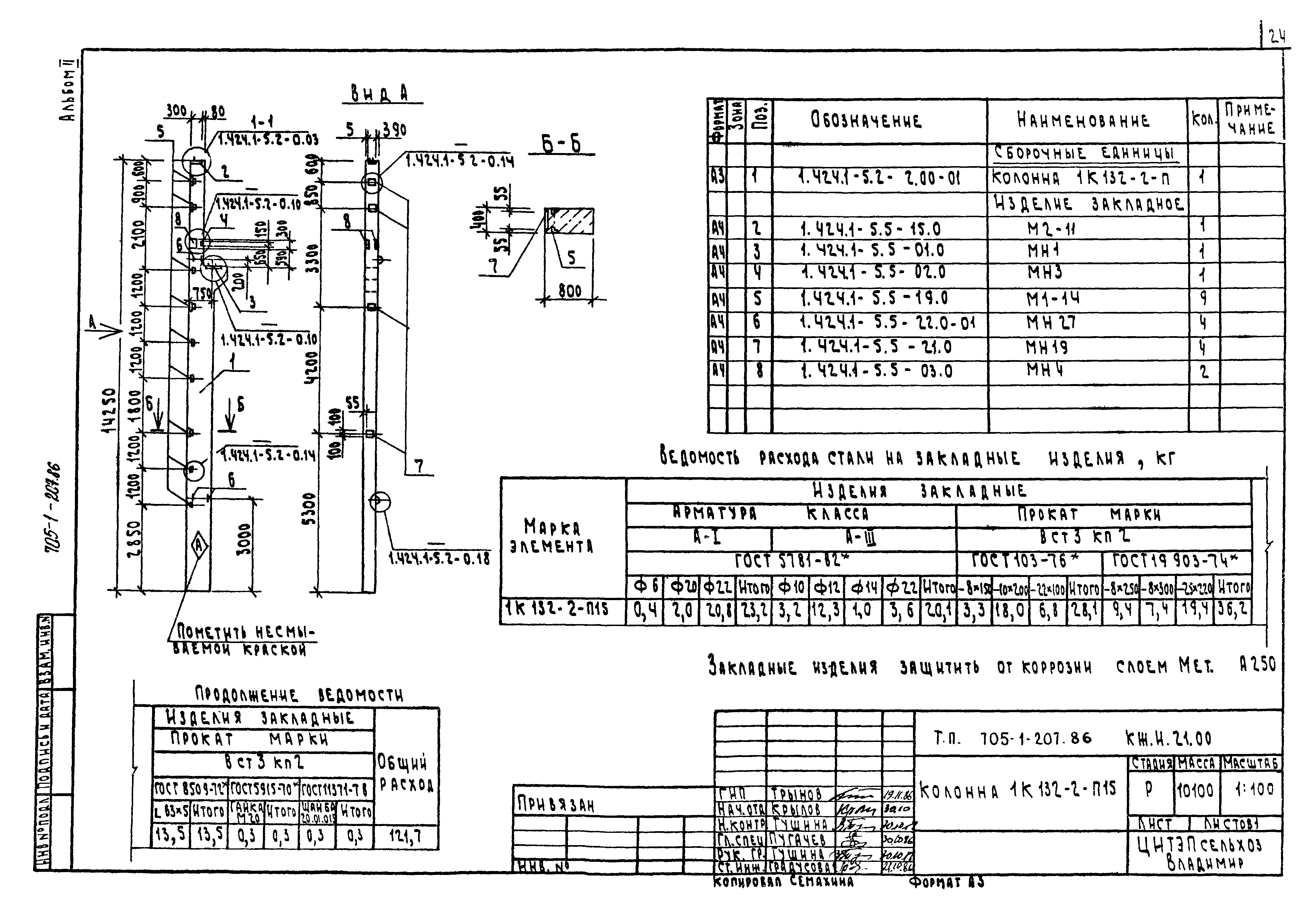
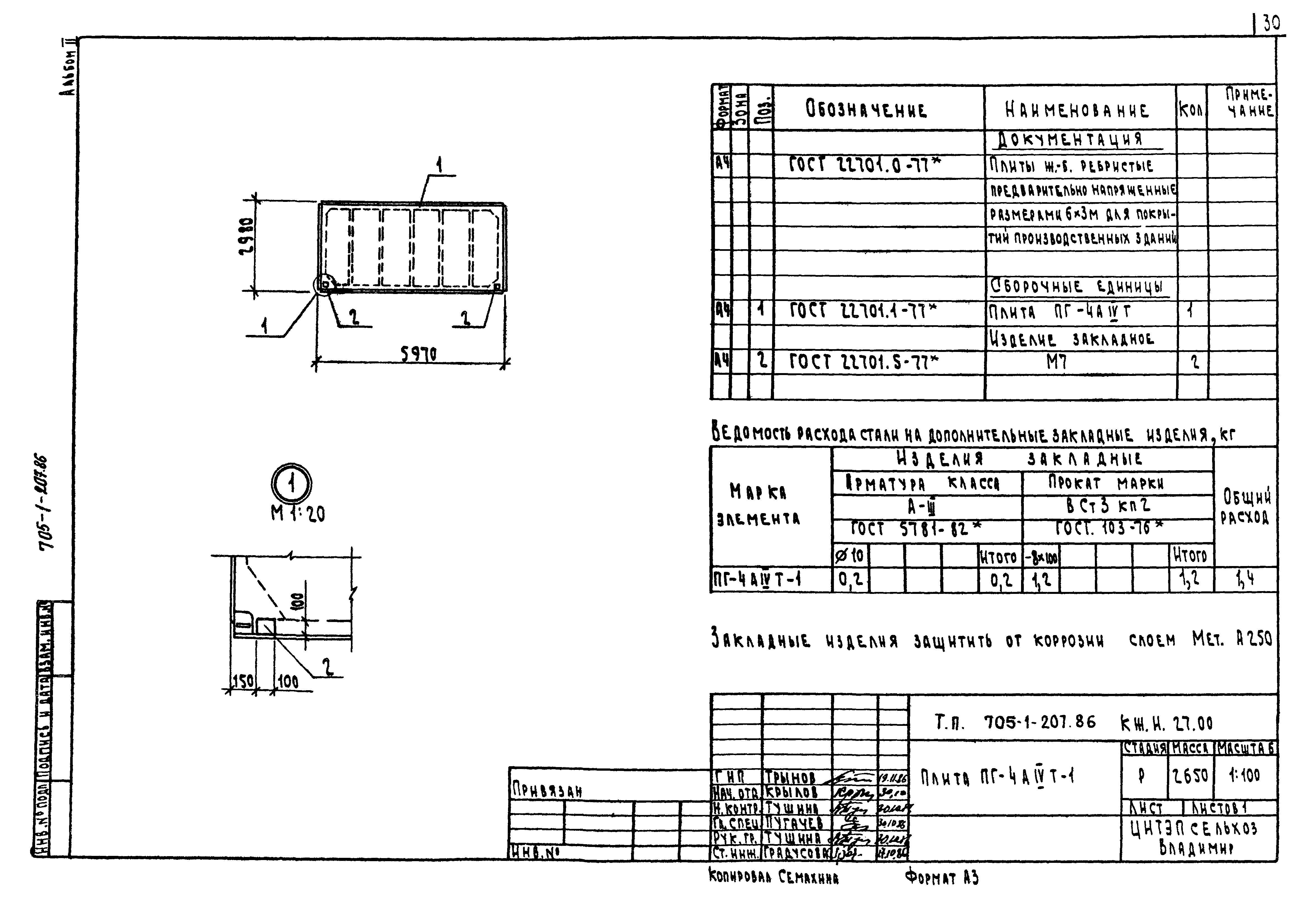
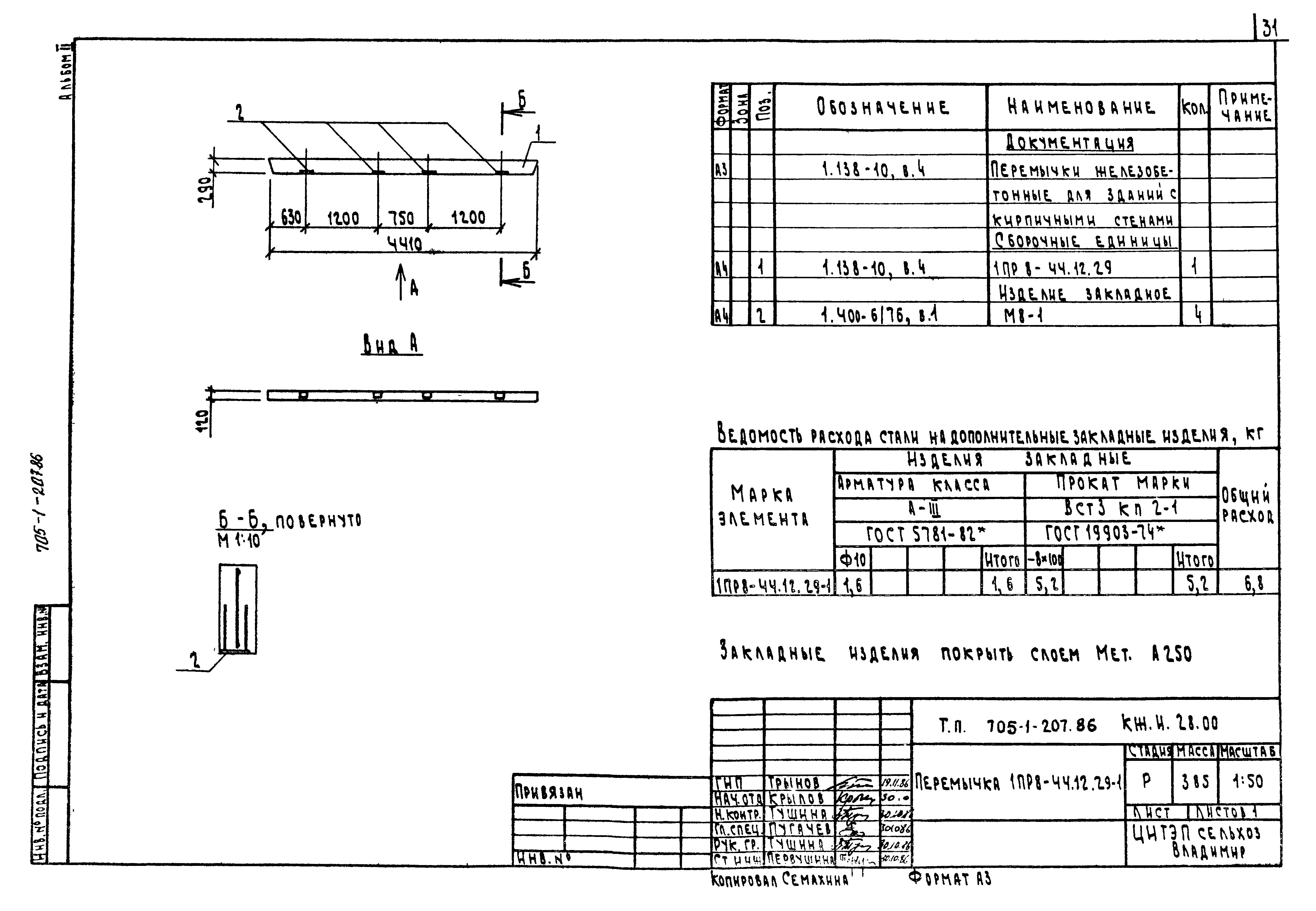
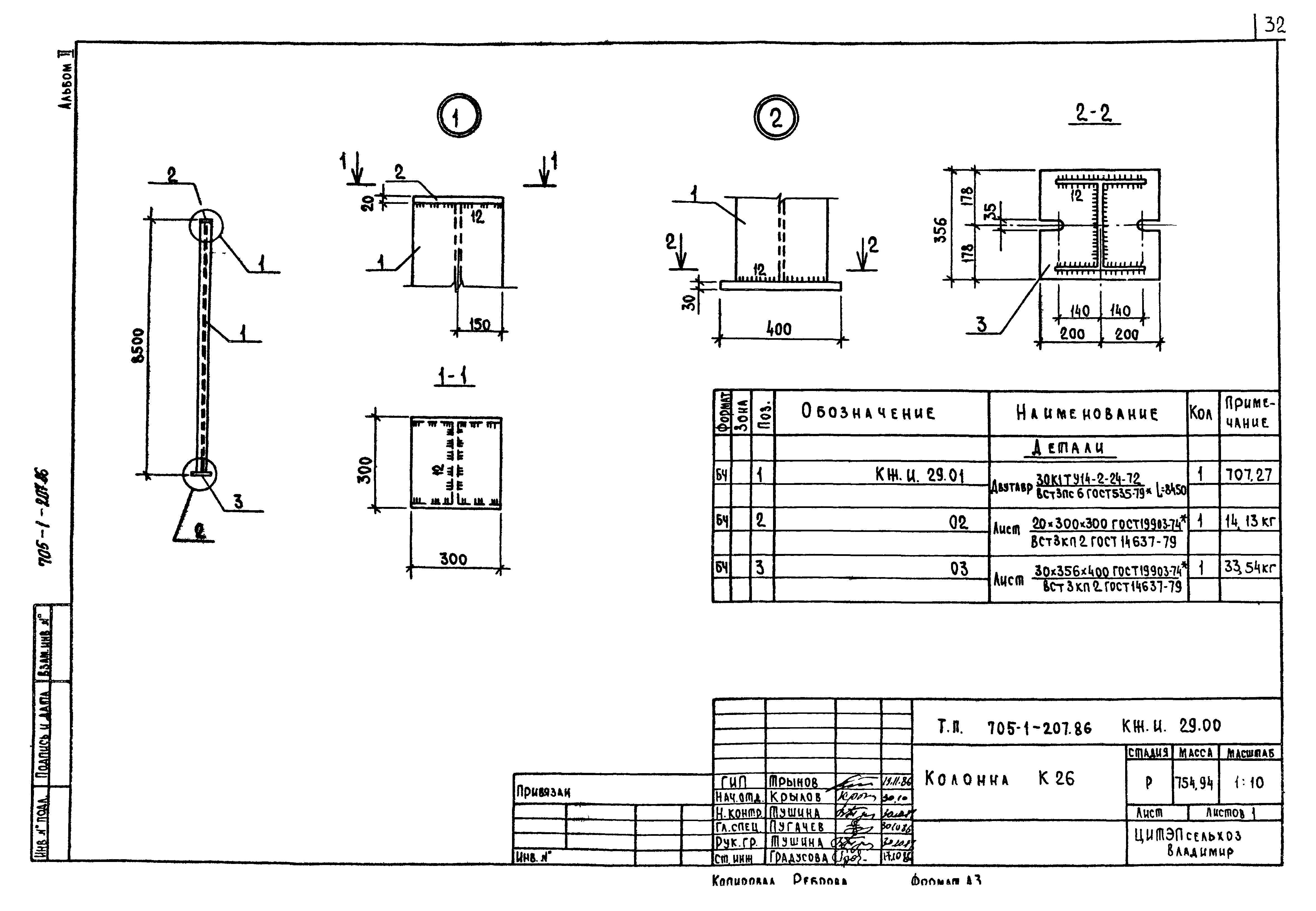
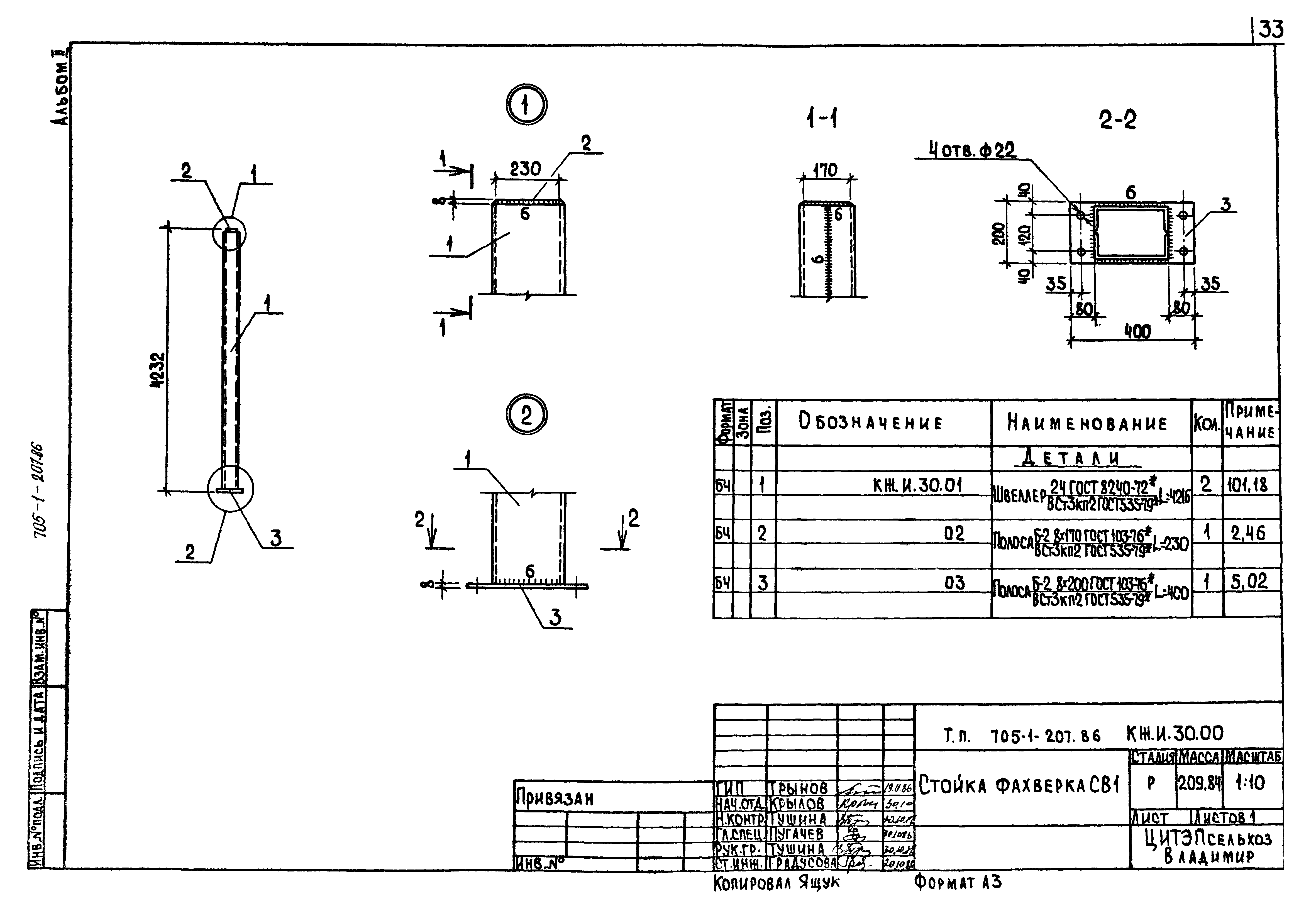
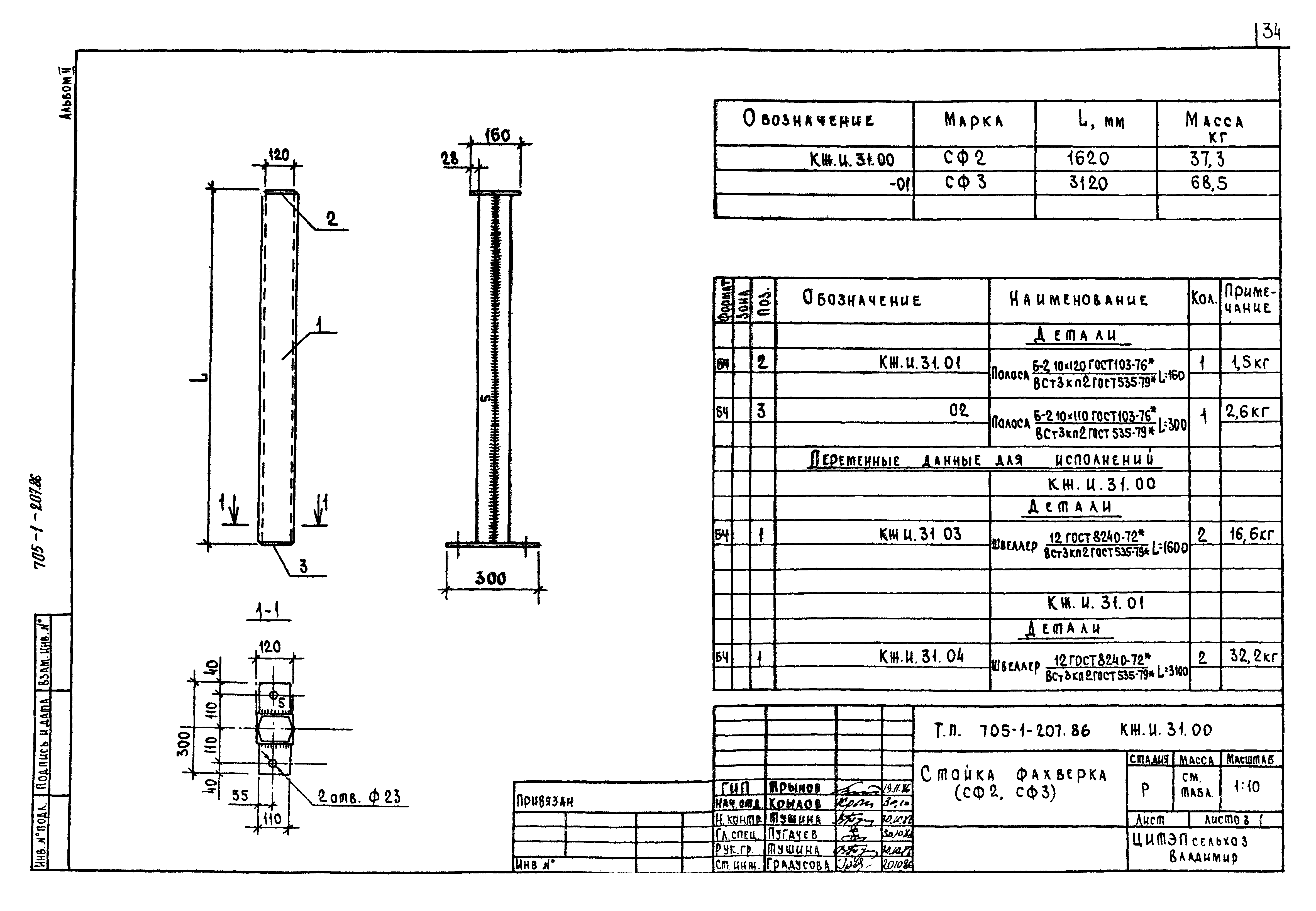
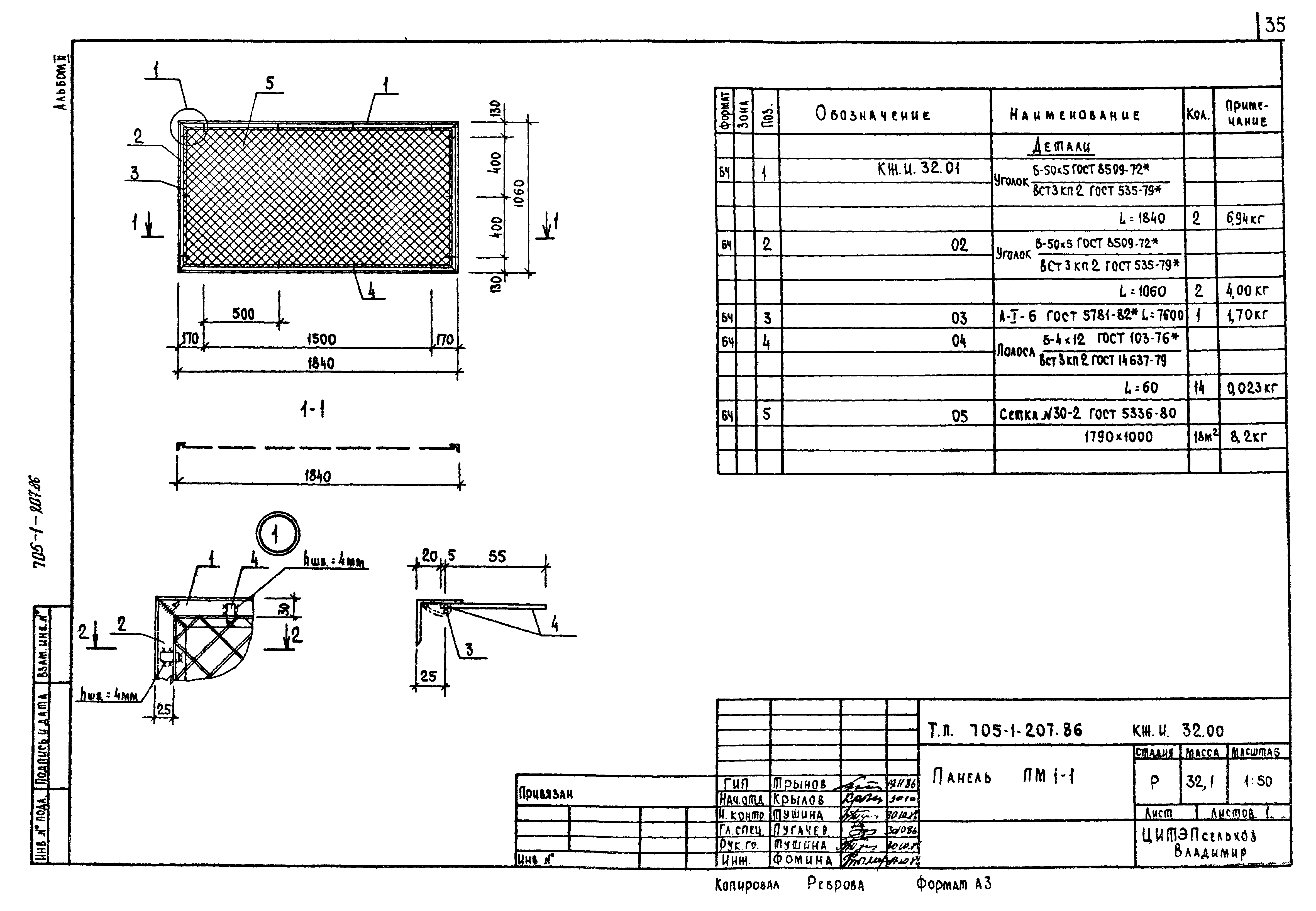
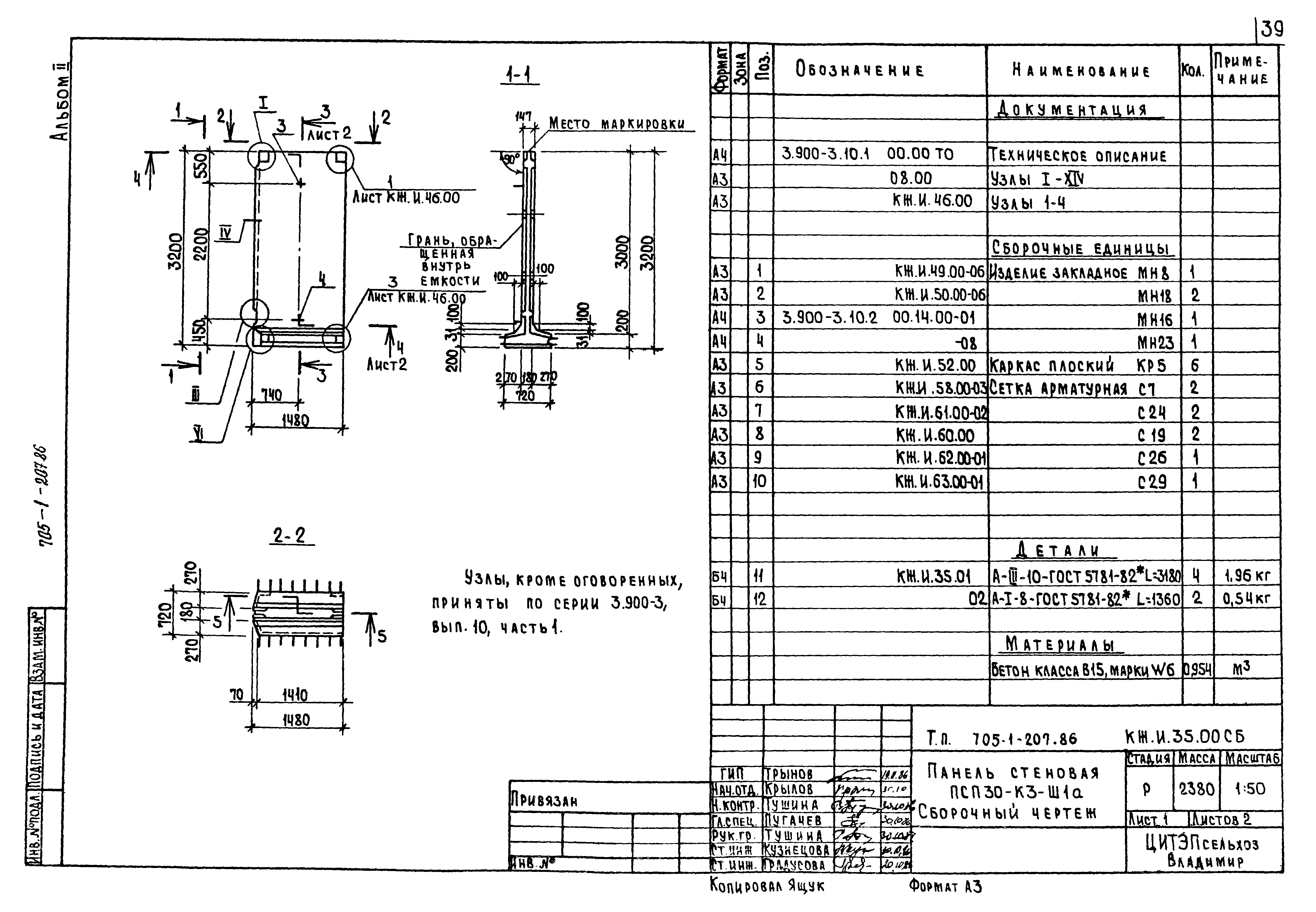
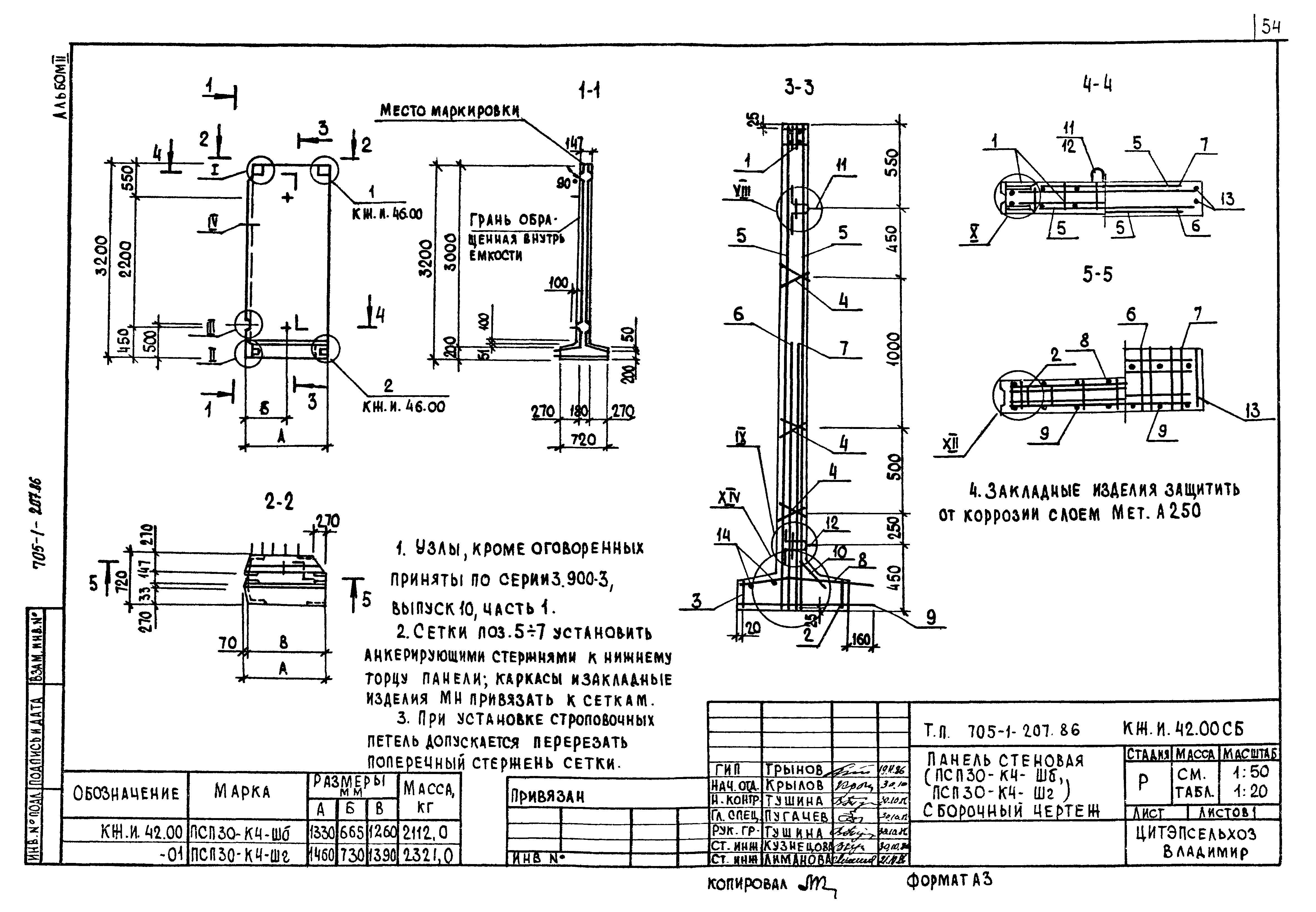
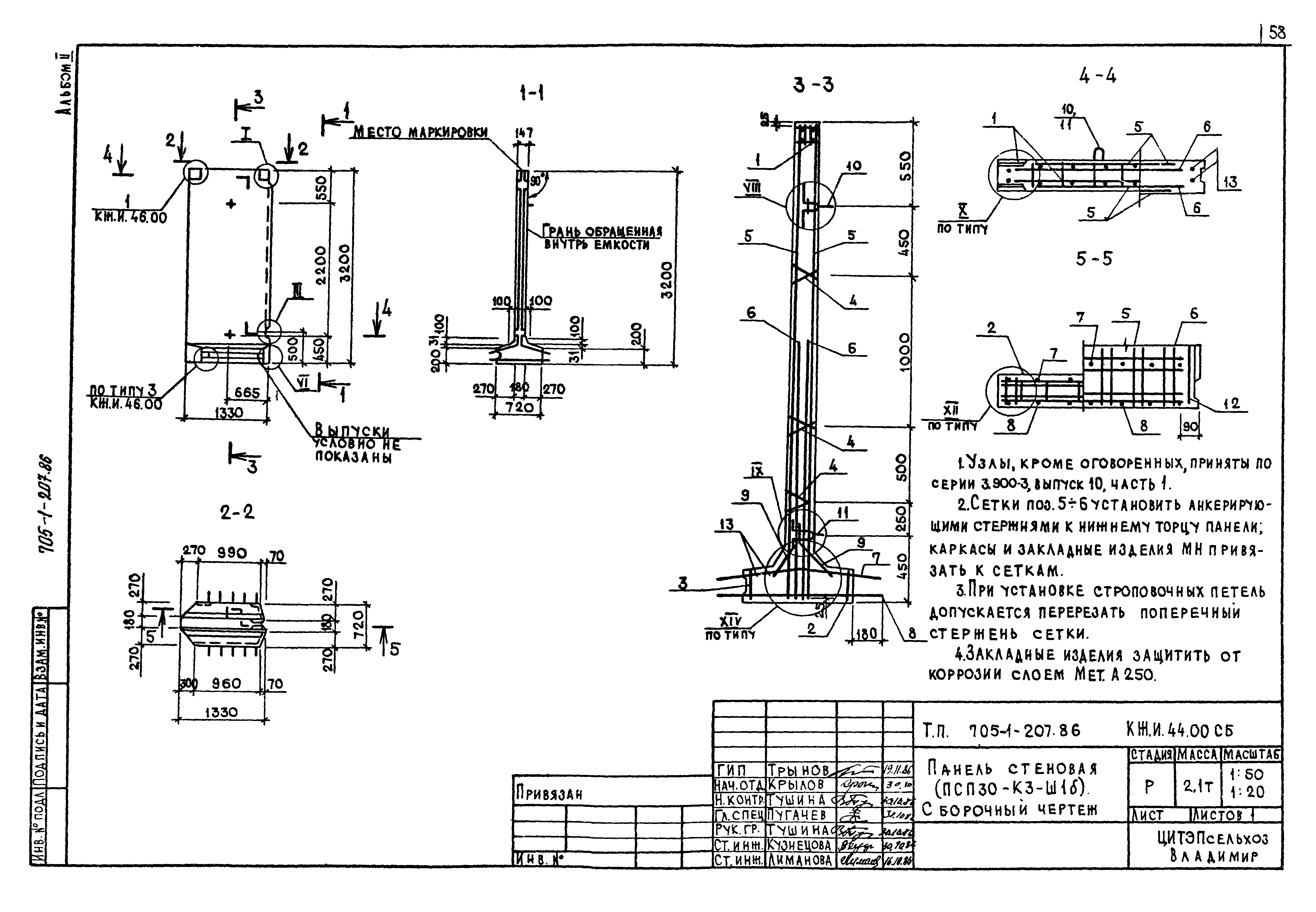
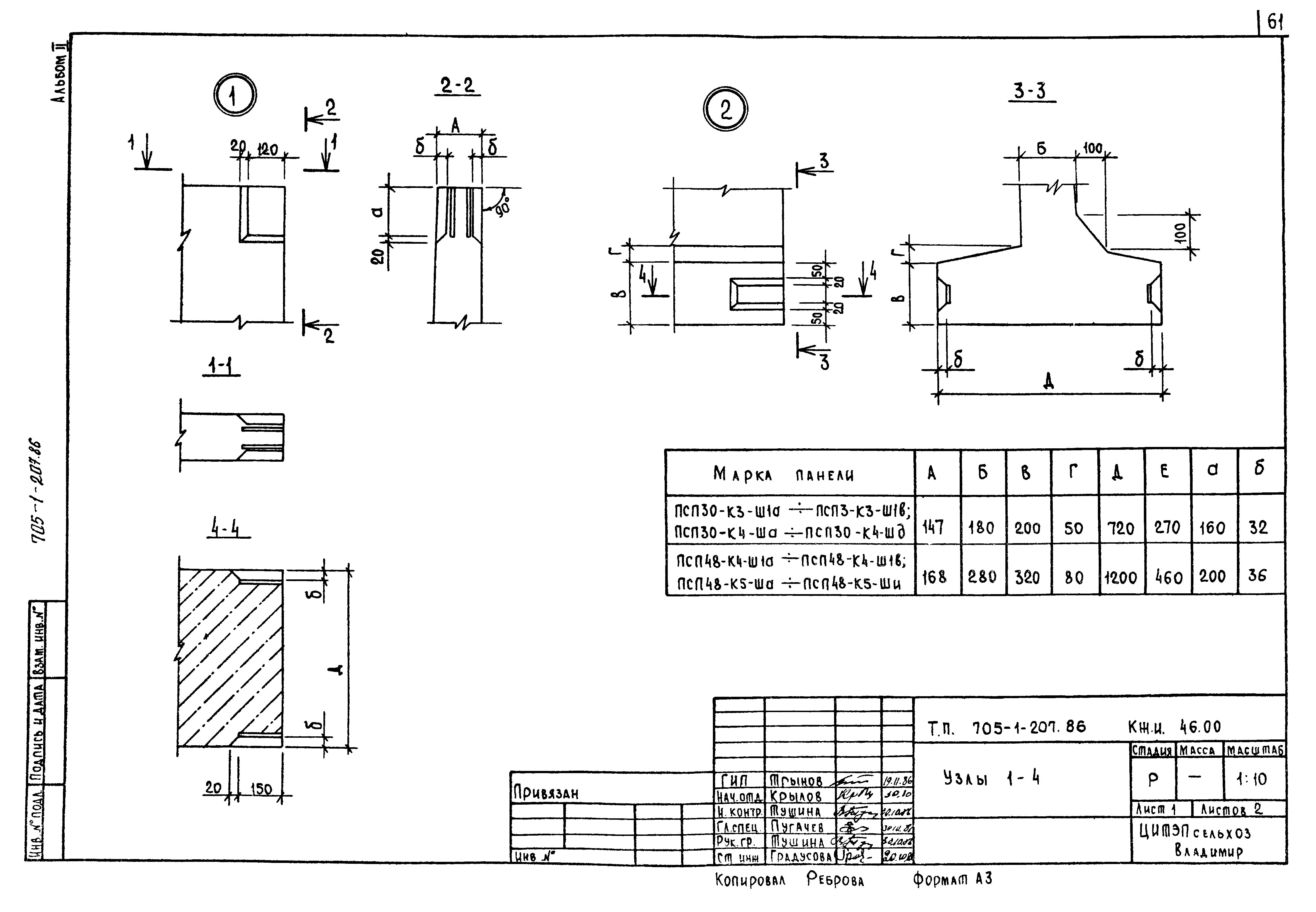
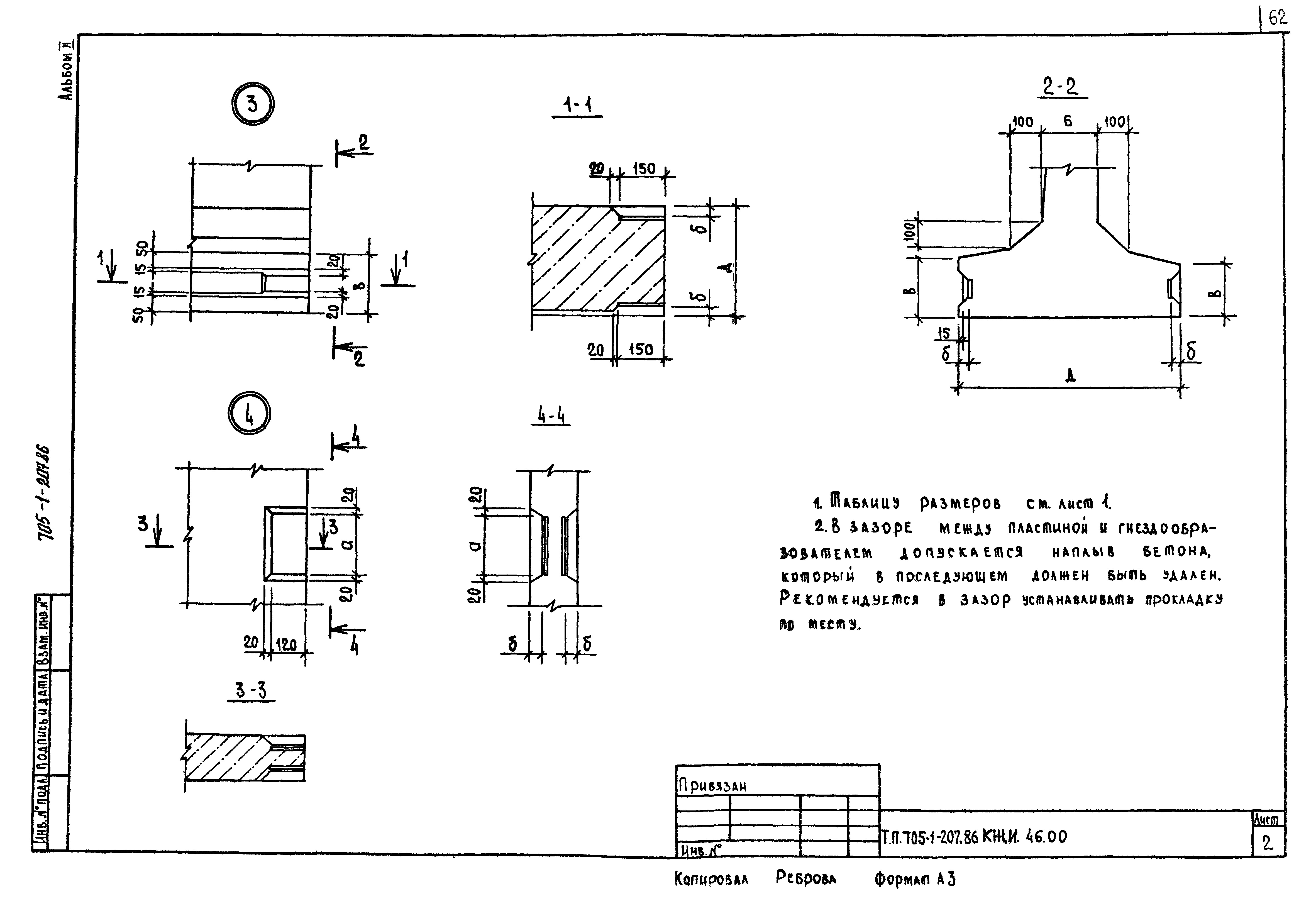
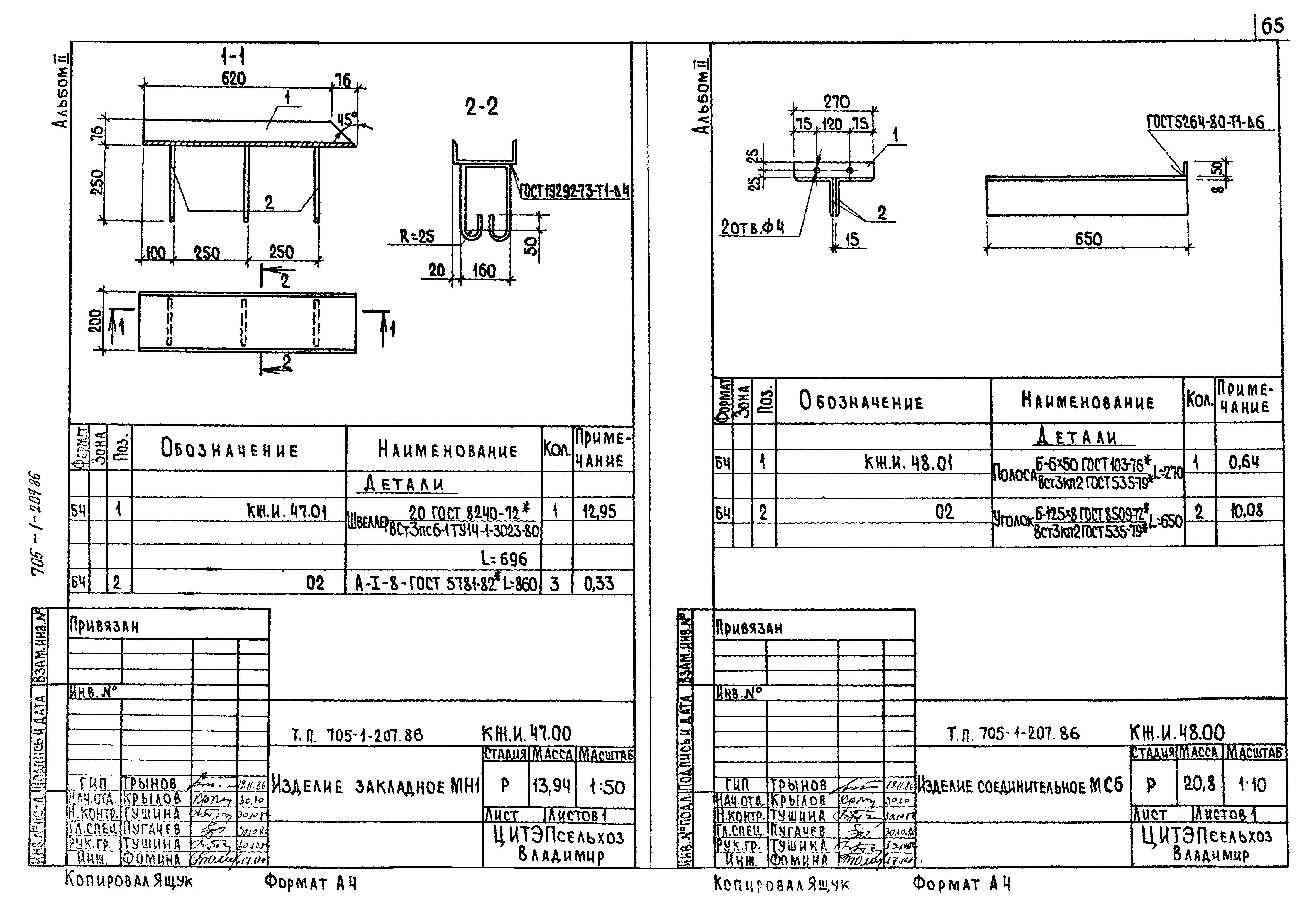
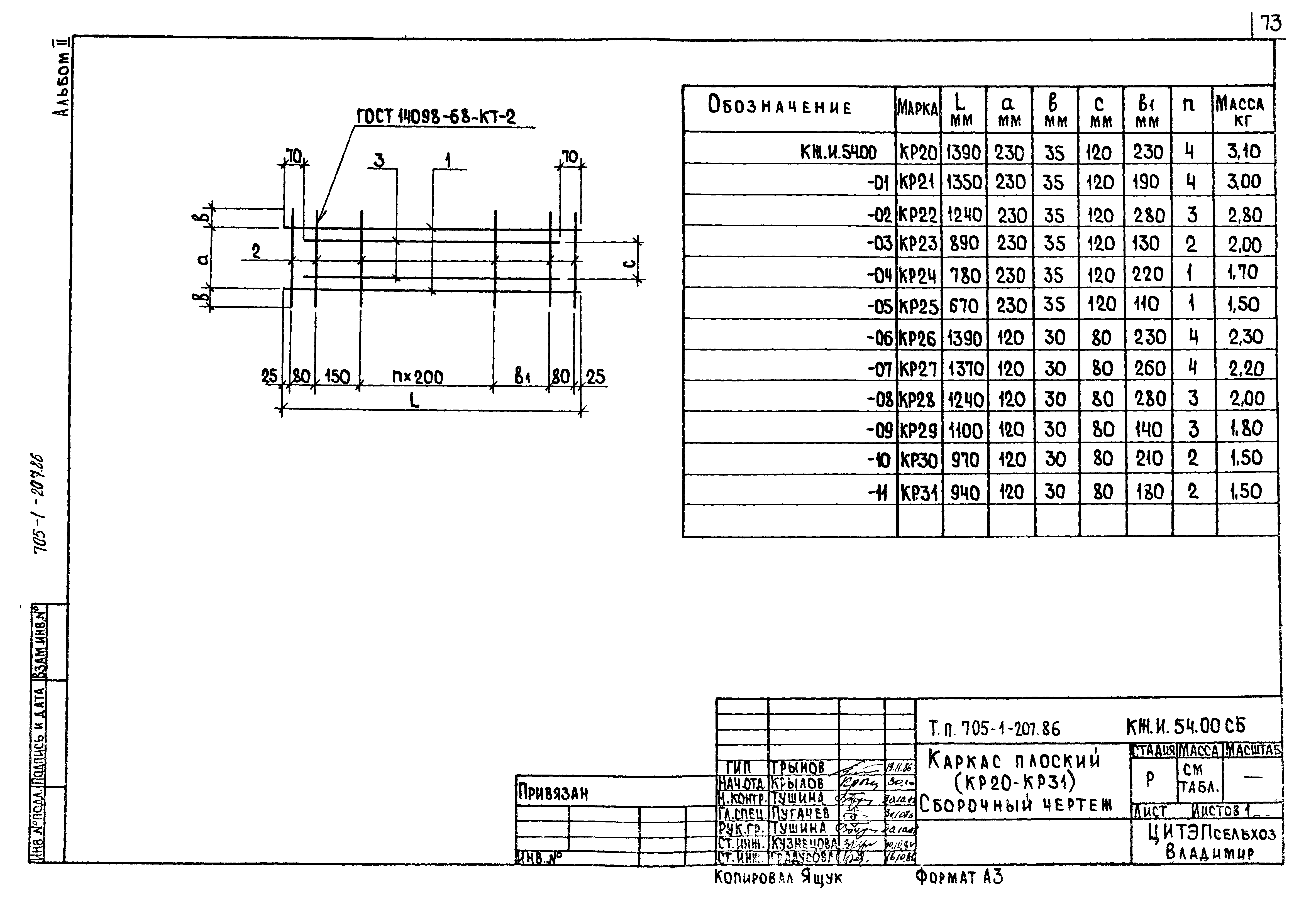
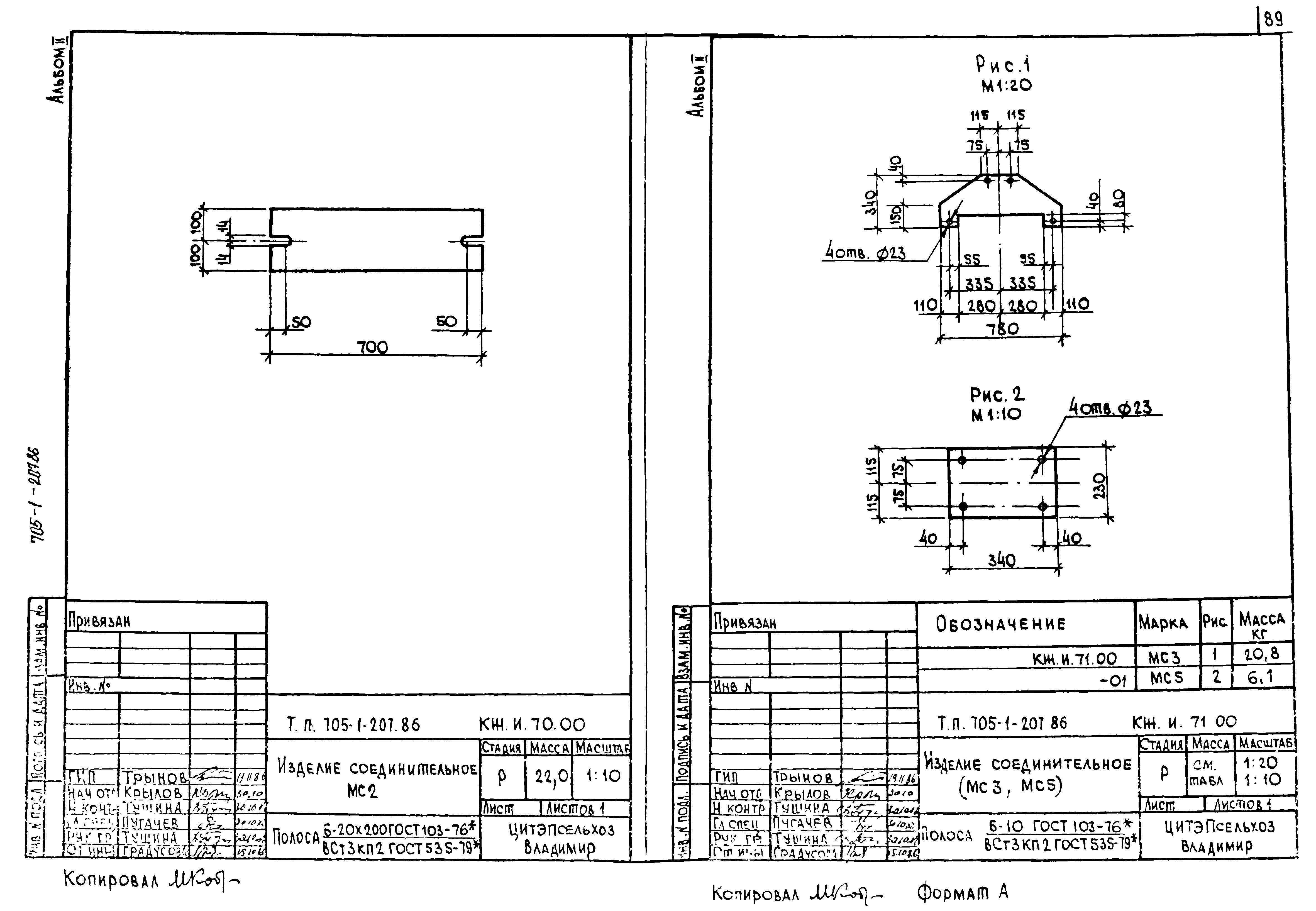
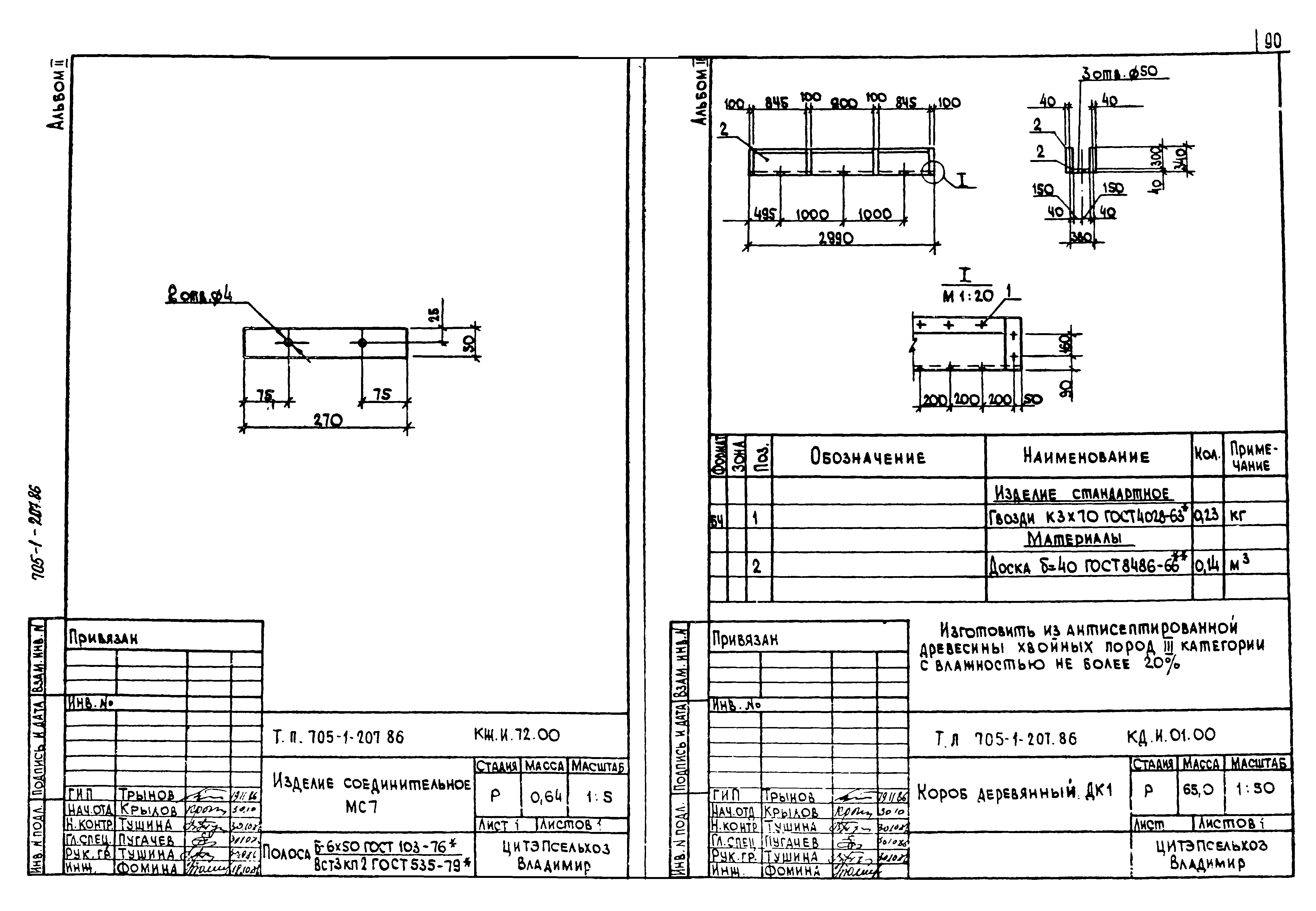
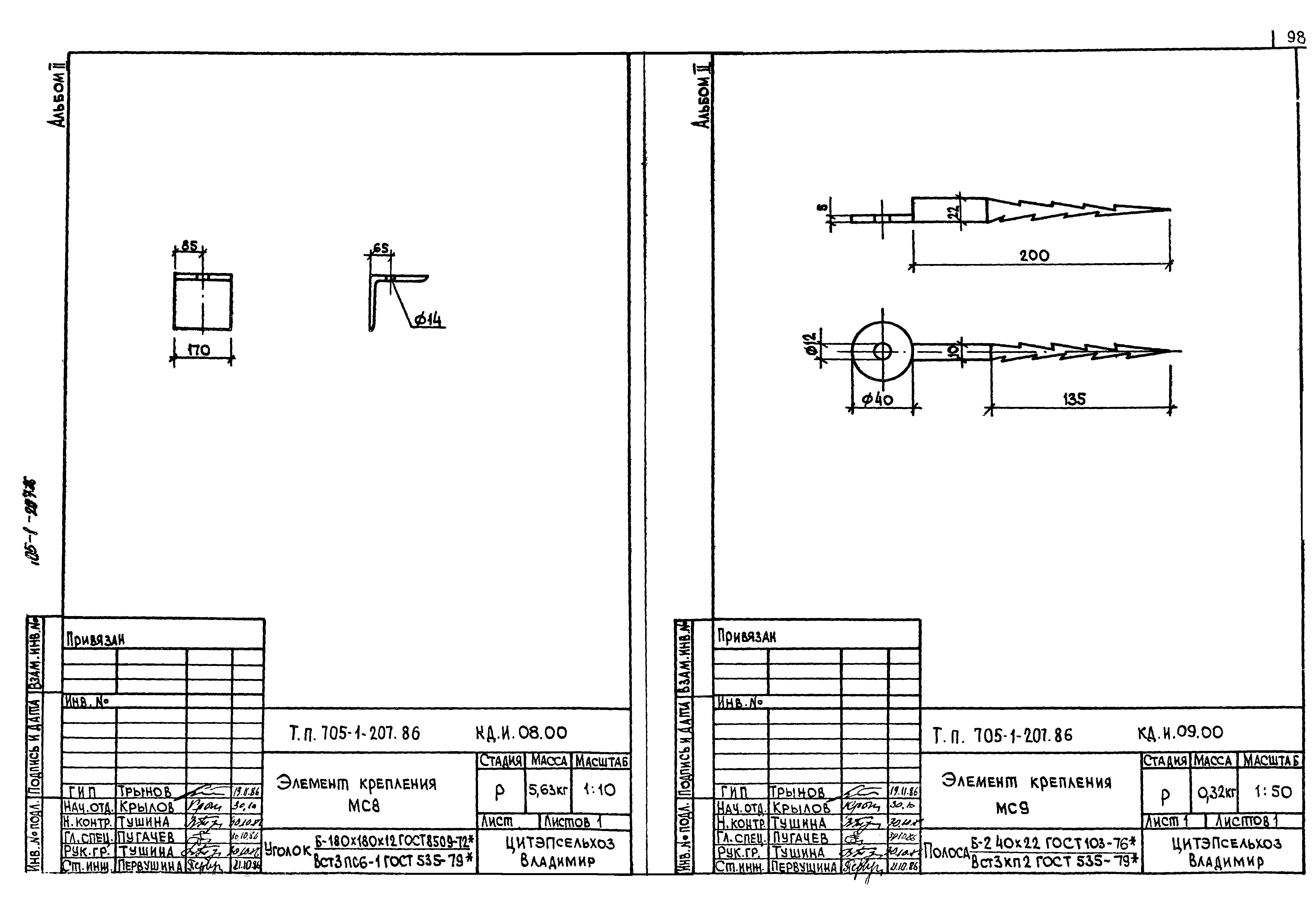
| Оглавление: | ТП 705-1-207.86 Содержание ТП 705-1-207.86-КЖИ.И.01.00 Колонна 1К132-2-П1 ТП 705-1-207.86-КЖИ.И.02.00 Колонна 4КФ133-1-П1 ТП 705-1-207.86-КЖИ.И.03.00 Колонна 4КФ133-1-П2 ТП 705-1-207.86-КЖИ.И.04.00 Колонна 4КФ133-1-П3 ТП 705-1-207.86-КЖИ.И.05.00 Колонна 1К132-2-П2 ТП 705-1-207.86-КЖИ.И.06.00 Колонна 1К132-2-П3 ТП 705-1-207.86-КЖИ.И.07.00 Колонна 1К132-2-П4 ТП 705-1-207.86-КЖИ.И.08.00 Колонна 1К132-2-П5 ТП 705-1-207.86-КЖИ.И.09.00 Колонна 1К132-2-П6 ТП 705-1-207.86-КЖИ.И.10.00 Колонна 1К132-2-П7 ТП 705-1-207.86-КЖИ.И.11.00 Колонна 1К132-2-П8 ТП 705-1-207.86-КЖИ.И.12.00 Колонна 1К132-2-П9 ТП 705-1-207.86-КЖИ.И.13.00 Колонна 1К132-2-П10 ТП 705-1-207.86-КЖИ.И.14.00 Колонна 1К132-2-П11 ТП 705-1-207.86-КЖИ.И.15.00 Колонна 4КФ133-1-П4 ТП 705-1-207.86-КЖИ.И.16.00 Колонна 4КФ133-1-П5 ТП 705-1-207.86-КЖИ.И.17.00 Колонна 4КФ133-1-П6 ТП 705-1-207.86-КЖИ.И.18.00 Колонна 1К132-2-П12 ТП 705-1-207.86-КЖИ.И.19.00 Колонна 1К132-2-П13 ТП 705-1-207.86-КЖИ.И.20.00 Колонна 1К132-2-П14 ТП 705-1-207.86-КЖИ.И.21.00 Колонна 1К132-2-П15 ТП 705-1-207.86-КЖИ.И.22.00 Колонна 1К132-2-П16 ТП 705-1-207.86-КЖИ.И.23.00 Колонна К84-1а ТП 705-1-207.86-КЖИ.И.24.00 Колонна К84-1б ТП 705-1-207.86-КЖИ.И.25.00 Колонна 1К132-2-П17 ТП 705-1-207.86-КЖИ.И.26.00 Балка 1БСТ6-5АIVт-1а ТП 705-1-207.86-КЖИ.И.27.00 Плита ПГ-4АIVт-1 ТП 705-1-207.86-КЖИ.И.28.00 Перемычка 1ПР8-44.12.29-1 ТП 705-1-207.86-КЖИ.И.29.00 Колонна К26 ТП 705-1-207.86-КЖИ.И.30.00 Стойка фахверка СВ1 ТП 705-1-207.86-КЖИ.И.31.00 Стойка фахверка (СФ2,СФ3) ТП 705-1-207.86-КЖИ.И.32.00 Панель ПМ1-1 ТП 705-1-207.86-КЖИ.И.33.00 Панель ПС600.9-1АIV-т-1а,ПС600.9-1АIV-т-1б,ПС600.12-1АIV-т-1а,ПС600.12-1АIV-т-1б ТП 705-1-207.86-КЖИ.И.34.00 СБ Панель стеновая ПСП30-К4-Ша. Сборочный чертеж ТП 705-1-207.86-КЖИ.И.35.00 СБ Панель стеновая ПСП30-К3-Ш1а. Сборочный чертеж ТП 705-1-207.86-КЖИ.И.36.00 СБ Панель стеновая ПСП48-К5-Ша. Сборочный чертеж ТП 705-1-207.86-КЖИ.И.37.00 СБ Панель стеновая (ПСП48-К5-Шб,ПСП48-К5-Шв). Сборочный чертеж ТП 705-1-207.86-КЖИ.И.38.00 СБ Панель стеновая (ПСП48-К5-Шг,ПСП48-К5-Шд). Сборочный чертеж ТП 705-1-207.86-КЖИ.И.39.00 СБ Панель стеновая (ПСП48-К5-Ше,ПСП48-К5-Ши). Сборочный чертеж ТП 705-1-207.86-КЖИ.И.40.00 СБ Панель стеновая (ПСП48-К5-Шж,ПСП48-К5-Шз). Сборочный чертеж ТП 705-1-207.86-КЖИ.И.41.00 СБ Панель стеновая (ПСП48-К4-Ш1а,ПСП48-К4-Ш1б). Сборочный чертеж ТП 705-1-207.86-КЖИ.И.42.00 Панель стеновая (ПСП30-К4-Шб,ПСП30-К4-Шг) ТП 705-1-207.86-КЖИ.И.42.00 СБ Панель стеновая (ПСП30-К4-Шб,ПСП30-К4-Шг). Сборочный чертеж ТП 705-1-207.86-КЖИ.И.43.00 Панель стеновая (ПСП30-К4-Шв,ПСП30-К4-Шд) ТП 705-1-207.86-КЖИ.И.43.00 СБ Панель стеновая (ПСП30-К4-Шв,ПСП30-К4-Шд). Сборочный чертеж ТП 705-1-207.86-КЖИ.И.44.00 Панель стеновая ПСП30-К3-Ш1б ТП 705-1-207.86-КЖИ.И.44.00 СБ Панель стеновая ПСП30-К3-Ш1б. Сборочный чертеж ТП 705-1-207.86-КЖИ.И.45.00 Панель стеновая ПСП30-К3-Ш1в ТП 705-1-207.86-КЖИ.И.45.00 СБ Панель стеновая ПСП30-К3-Ш1в. Сборочный чертеж ТП 705-1-207.86-КЖИ.И.46.00 Узлы 1-4 ТП 705-1-207.86-КЖИ.И.00.00 ВМС Ведомость расхода стали ТП 705-1-207.86-КЖИ.И.47.00 Изделие закладное МН1 ТП 705-1-207.86-КЖИ.И.48.00 Изделие соединительное МС6 ТП 705-1-207.86-КЖИ.И.49.00 Изделие закладное (МН2-МН10) ТП 705-1-207.86-КЖИ.И.50.00 Изделие закладное (МН11-МН15,МН17,МН18,МН20-МН22,МН25) ТП 705-1-207.86-КЖИ.И.50.00 СБ Изделие закладное (МН11-МН15,МН17,МН18,МН20-МН22,МН25). Сборочный чертеж ТП 705-1-207.86-КЖИ.И.51.00 Каркас плоский (КР1-КР4) ТП 705-1-207.86-КЖИ.И.52.00 Каркас плоский (КР5-КР13) ТП 705-1-207.86-КЖИ.И.53.00 Каркас плоский (КР14-КР19) ТП 705-1-207.86-КЖИ.И.54.00 Каркас плоский (КР20-КР31) ТП 705-1-207.86-КЖИ.И.54.00 СБ Каркас плоский (КР20-КР31). Сборочный чертеж ТП 705-1-207.86-КЖИ.И.55.00 Сетка арматурная С1 ТП 705-1-207.86-КЖИ.И.56.00 Сетка арматурная С2 ТП 705-1-207.86-КЖИ.И.57.00 Сетка арматурная С3 ТП 705-1-207.86-КЖИ.И.58.00 Сетка арматурная (С4-С9) ТП 705-1-207.86-КЖИ.И.59.00 Сетка арматурная (С10-С18) ТП 705-1-207.86-КЖИ.И.60.00 Сетка арматурная (С19-С21,С63) ТП 705-1-207.86-КЖИ.И.61.00 Сетка арматурная (С22-С24) ТП 705-1-207.86-КЖИ.И.62.00 Сетка арматурная (С25-С27) ТП 705-1-207.86-КЖИ.И.63.00 Сетка арматурная (С28-С30) ТП 705-1-207.86-КЖИ.И.64.00 Сетка арматурная (С31-С40) ТП 705-1-207.86-КЖИ.И.64.00 СБ Сетка арматурная (С31-С40). Сборочный чертеж ТП 705-1-207.86-КЖИ.И.65.00 Сетка арматурная (С41-С50) ТП 705-1-207.86-КЖИ.И.65.00 СБ Сетка арматурная (С41-С50). Сборочный чертеж ТП 705-1-207.86-КЖИ.И.66.00 Сетка арматурная (С51-С54) ТП 705-1-207.86-КЖИ.И.67.00 Сетка арматурная (С55-С58) ТП 705-1-207.86-КЖИ.И.68.00 Сетка арматурная (С59,С60) ТП 705-1-207.86-КЖИ.И.69.00 Сетка арматурная (С61,С62) ТП 705-1-207.86-КЖИ.И.70.00 Изделие соединительное МС2 ТП 705-1-207.86-КЖИ.И.71.00 Изделие соединительное (МС3,МС5) ТП 705-1-207.86-КЖИ.И.72.00 Изделие соединительное МС7 ТП 705-1-207.86-КДИ.И.01.00 Короб деревянный ТП 705-1-207.86-КДИ.И.02.00 СБ Щит Щ1. Сборочный чертеж ТП 705-1-207.86-КДИ.И.03.00 СБ Щит ЩД1,ЩД5. Сборочный чертеж ТП 705-1-207.86-КДИ.И.04.00 СБ Щит ЩД2,ЩД8. Сборочный чертеж ТП 705-1-207.86-КДИ.И.05.00 СБ Щит ЩД3,ЩД9. Сборочный чертеж ТП 705-1-207.86-КДИ.И.06.00 СБ Щит ЩД4,ЩД6. Сборочный чертеж ТП 705-1-207.86-КДИ.И.07.00 СБ Щит ЩД7. Сборочный чертеж ТП 705-1-207.86-КДИ.И.08.00 Элемент крепления МС8 ТП 705-1-207.86-КДИ.И.09.00 Элемент крепления МС9 ТП 705-1-207.86-КДИ.И.10.00 Петля ТП 705-1-207.86-КДИ.И.11.00 Скоба |
| Разработан: | Проектный институт ЦИТЭПсельхоз |
| Утверждён: | 02.12.1986 Госагропром СССР (USSR Gosagroprom 33-ЭТ) |




































































































