Скачать Типовой проект 705-1-208.86 Альбом I. Пояснительная записка. Технология производства. Архитектурно-строительные решения. Конструкции железобетонные. Конструкции металлические. Отопление и вентиляция. Силовое электрооборудование. Автоматизация технологии производстваДата актуализации: 01.01.2021
|
| Обозначение: | Типовой проект 705-1-208.86 |
| Обозначение англ: | 705-1-208.86 |
| Статус: | не действует |
| Название рус.: | Альбом I. Пояснительная записка. Технология производства. Архитектурно-строительные решения. Конструкции железобетонные. Конструкции металлические. Отопление и вентиляция. Силовое электрооборудование. Автоматизация технологии производства |
| Дата добавления в базу: | 01.09.2013 |
| Дата актуализации: | 01.01.2021 |
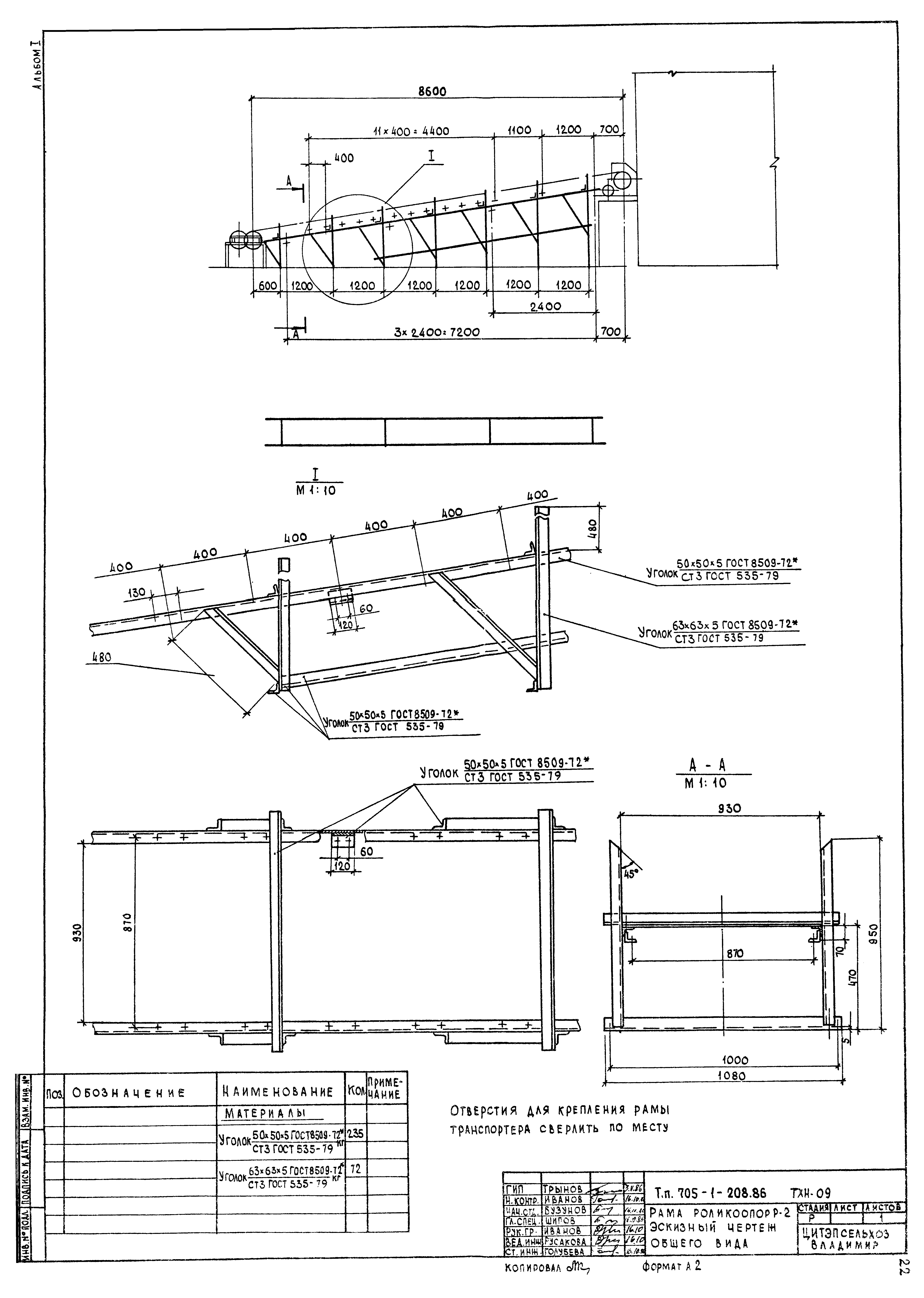
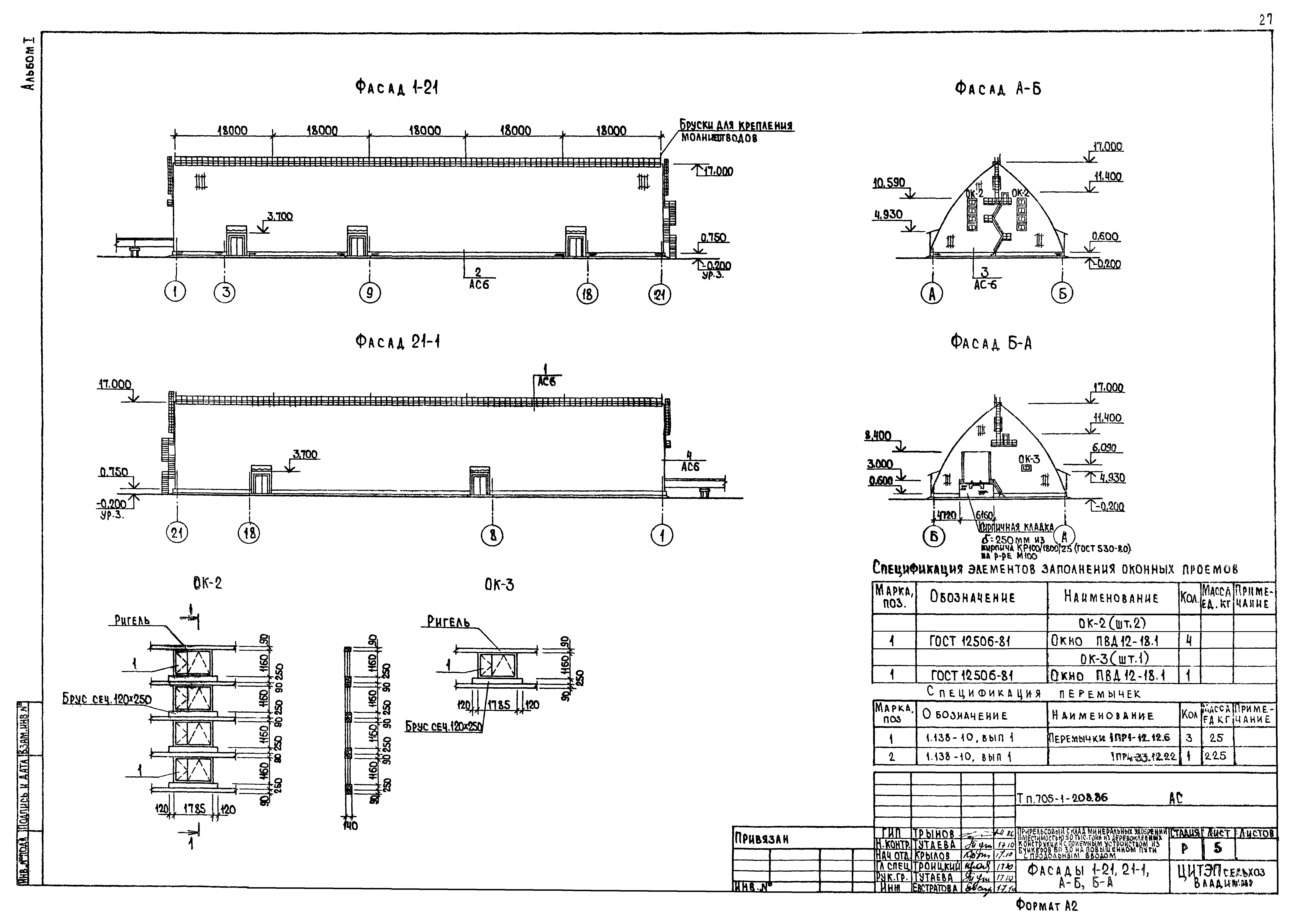
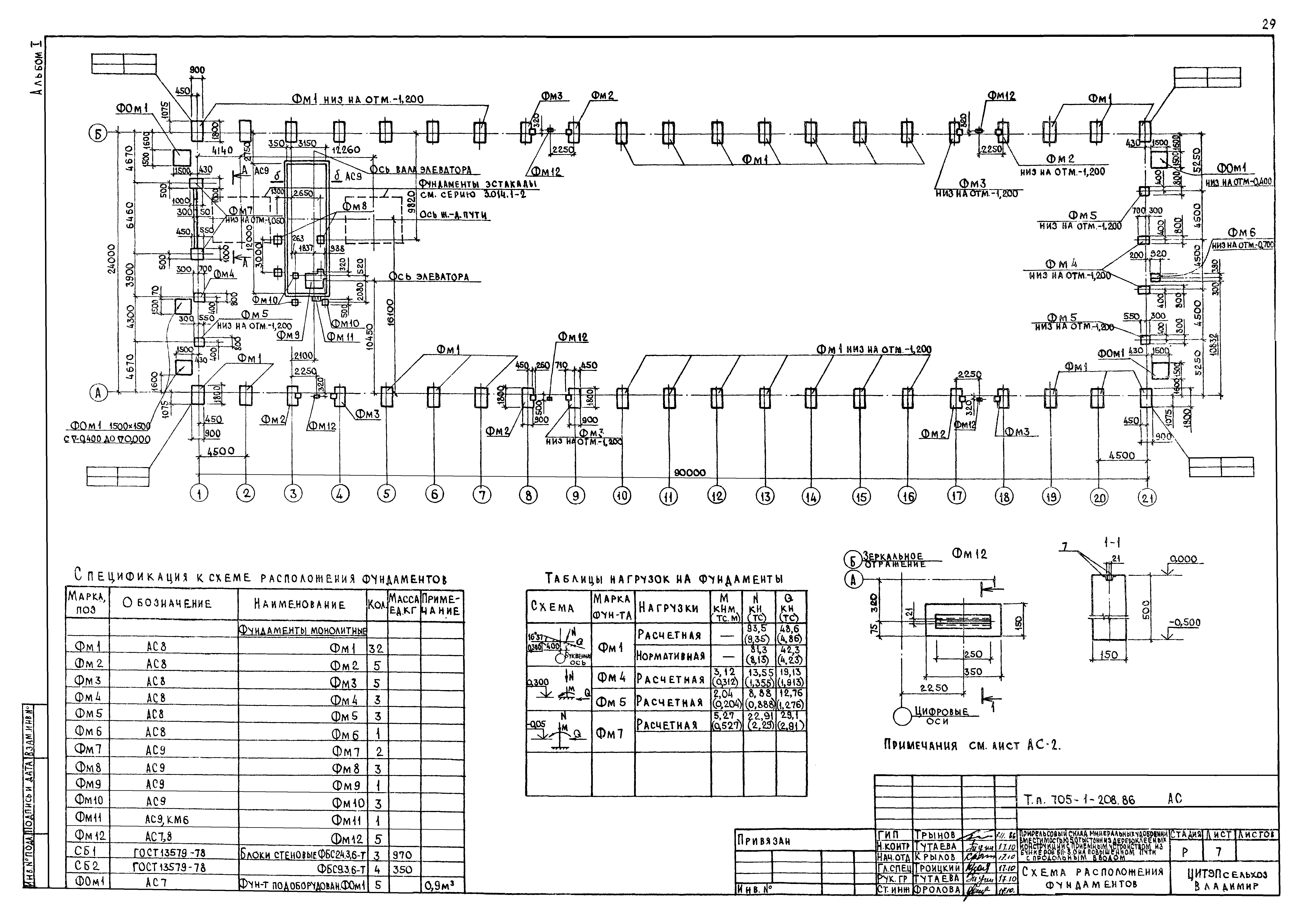
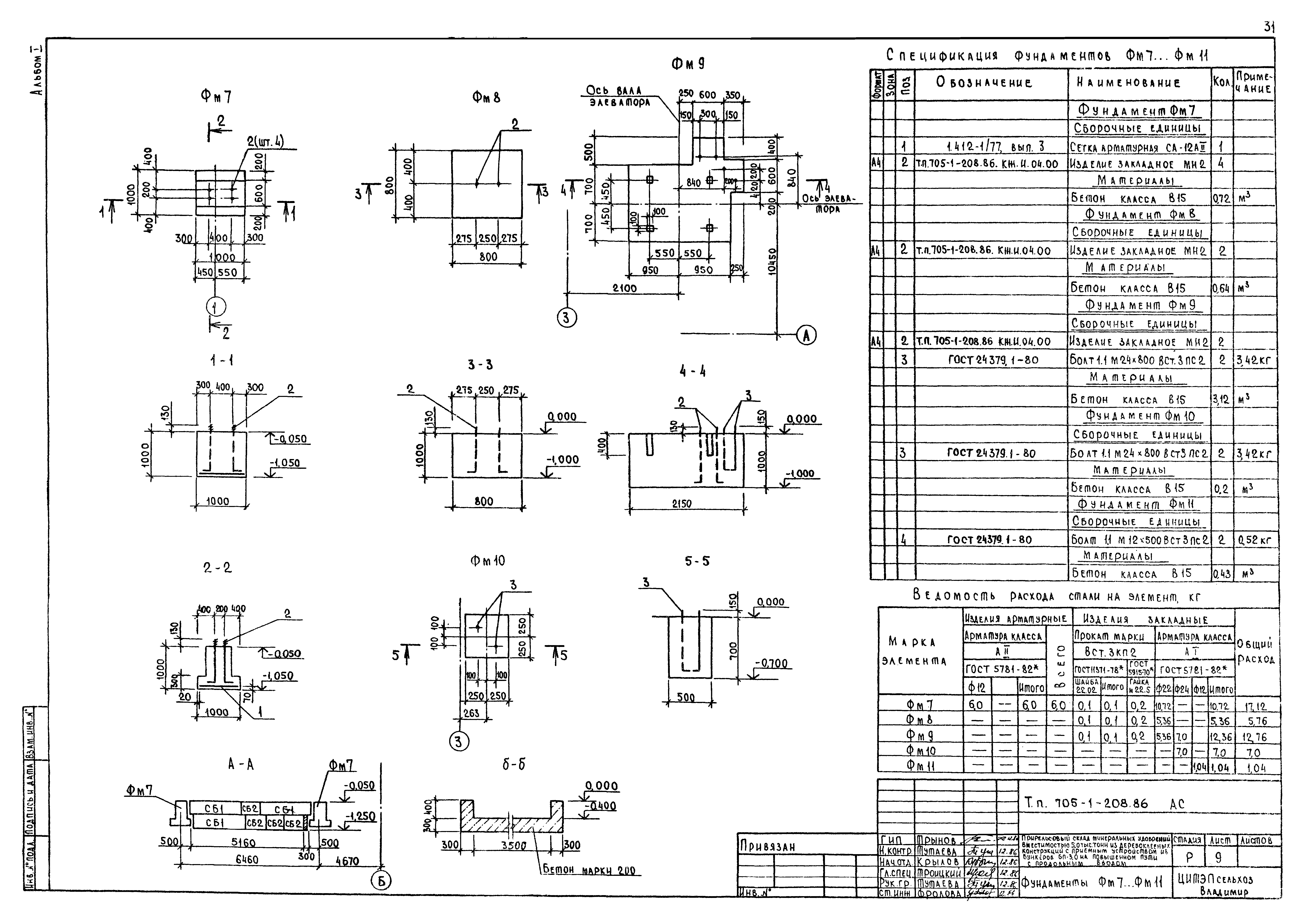
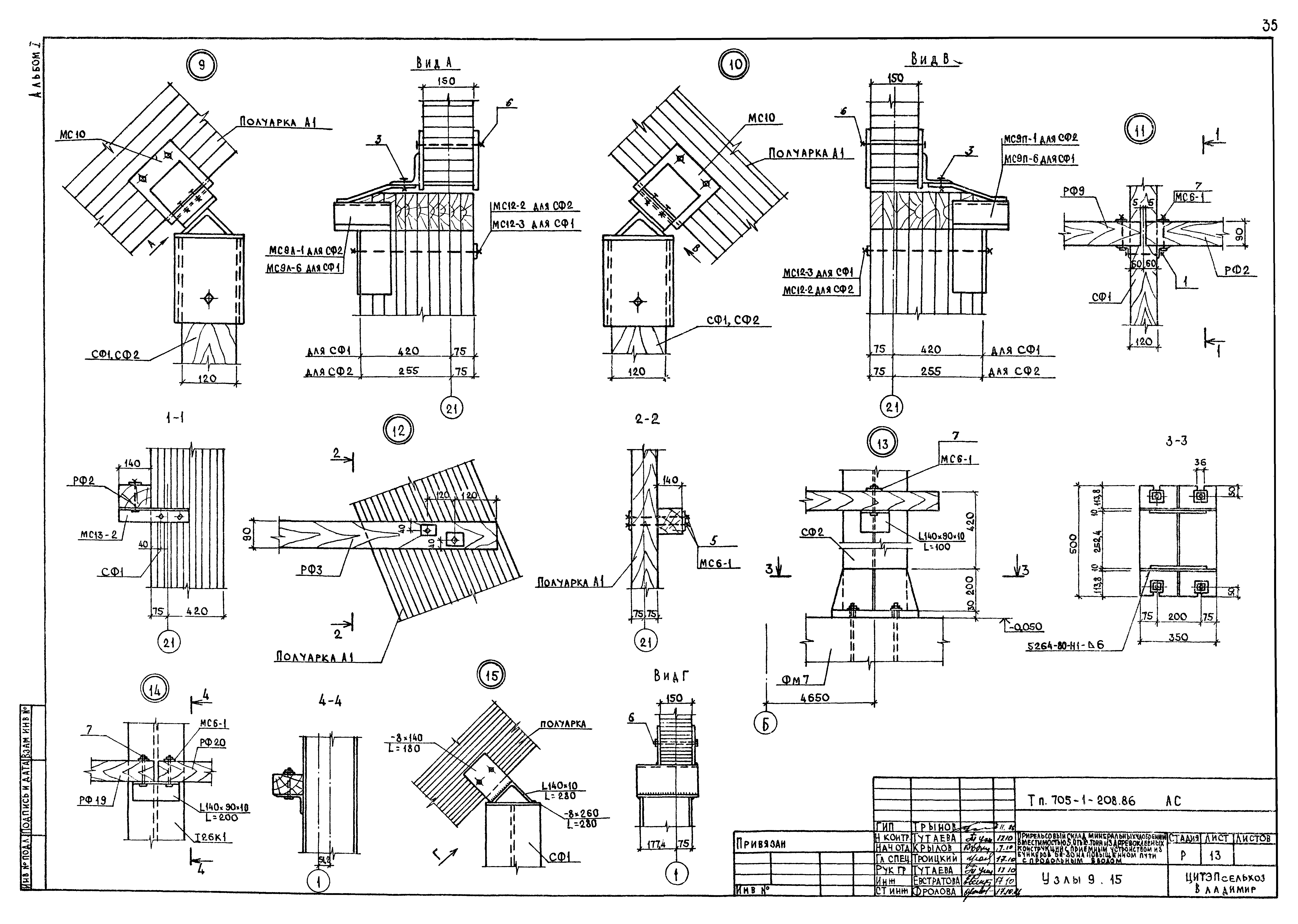
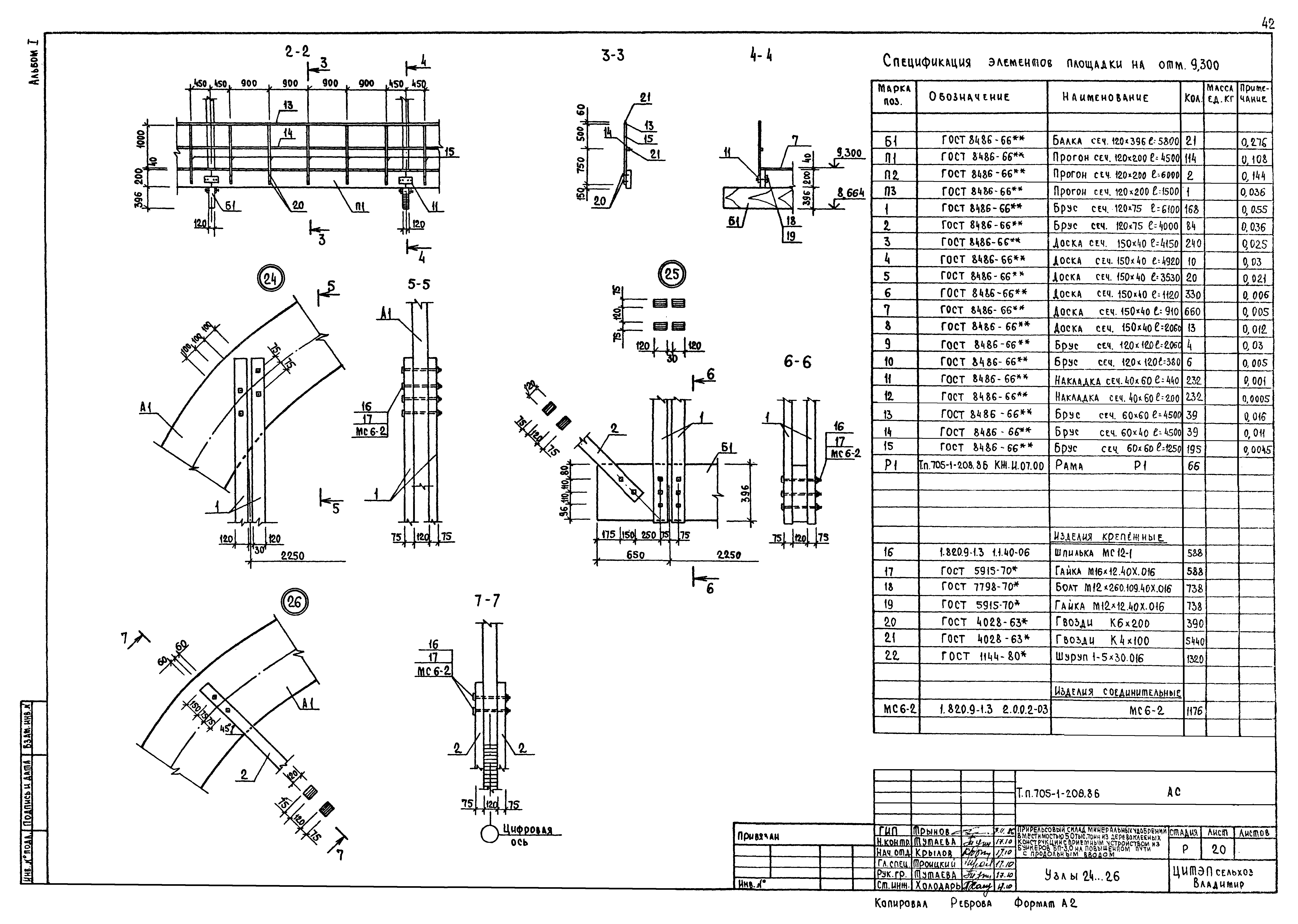
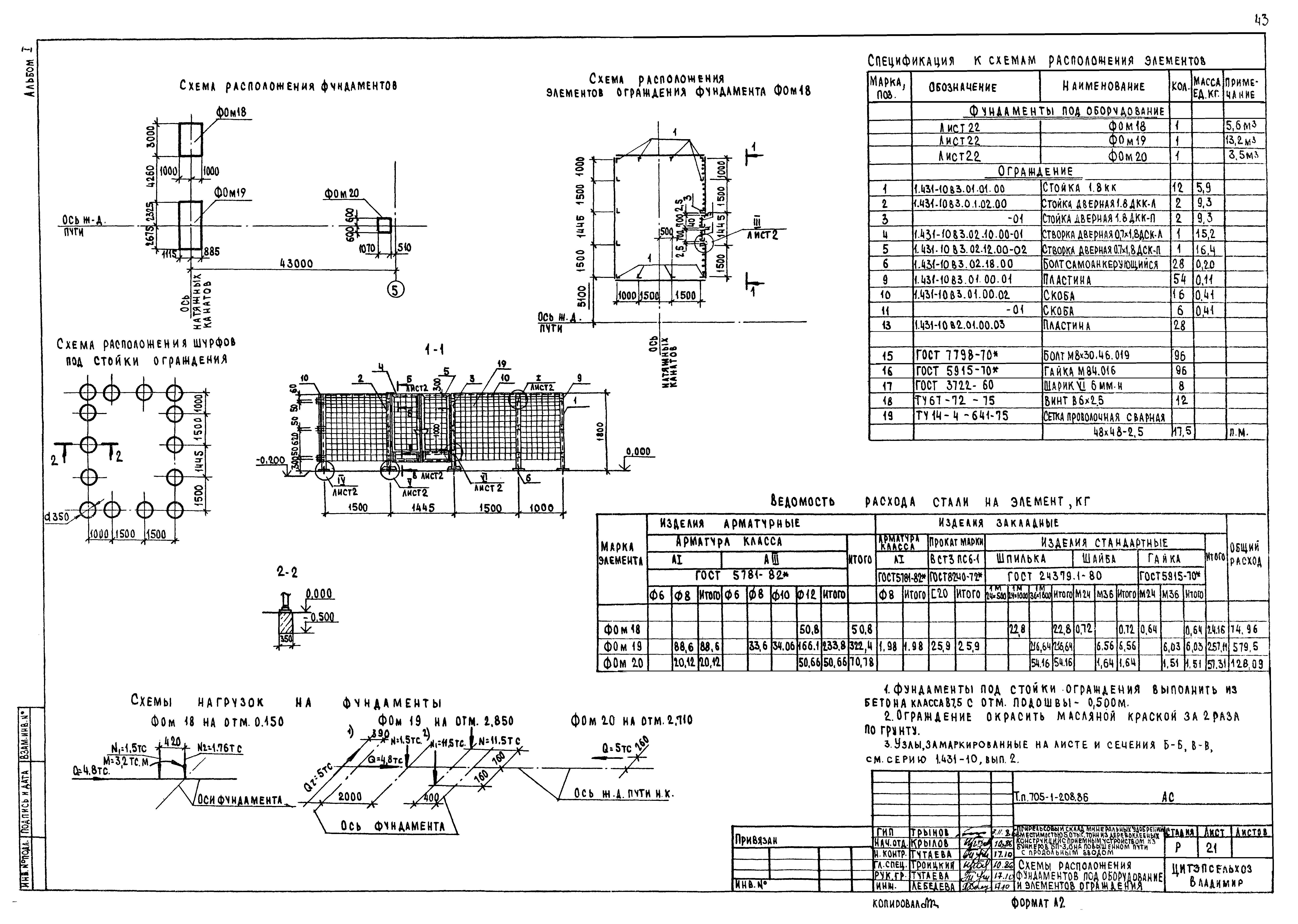
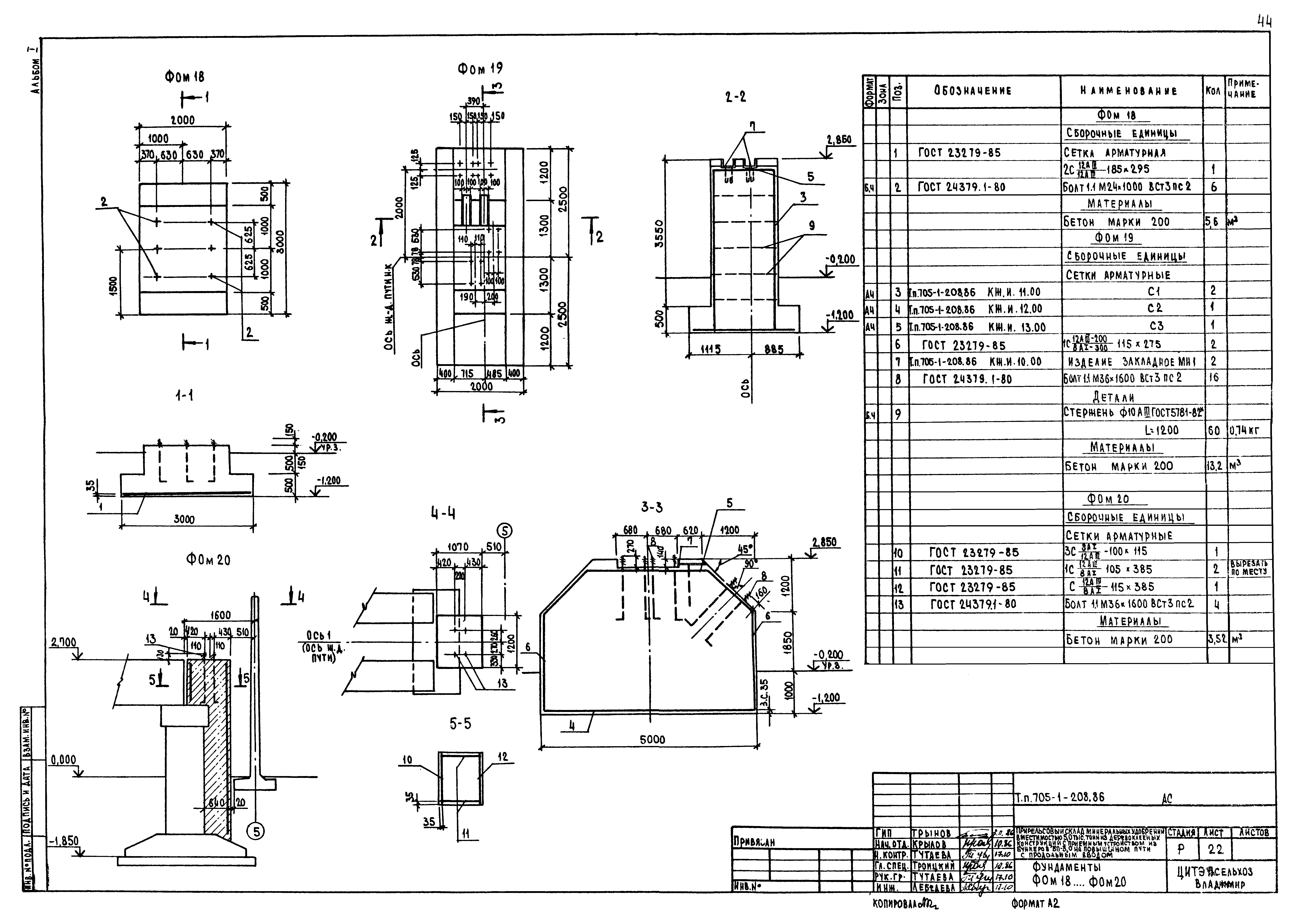
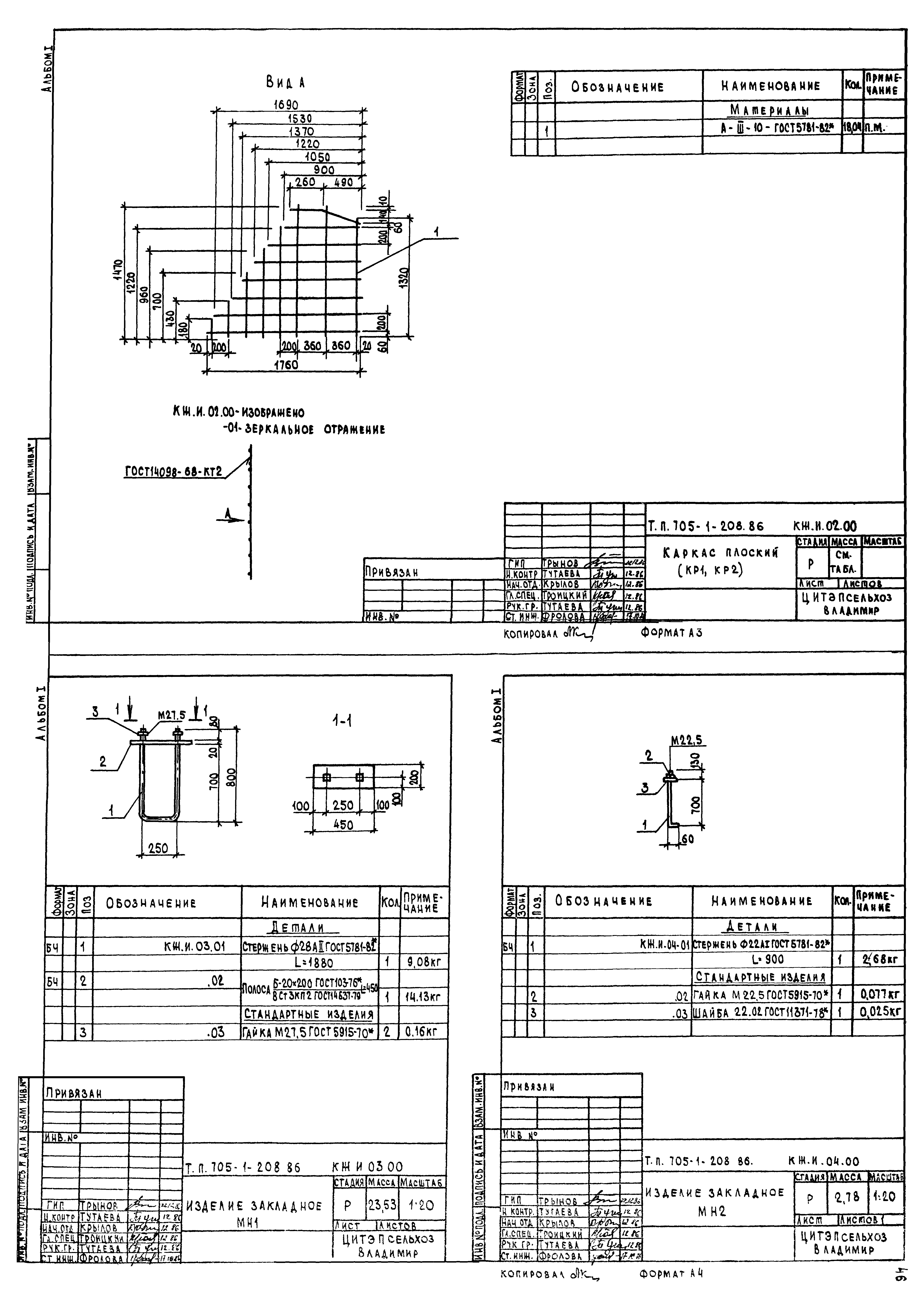
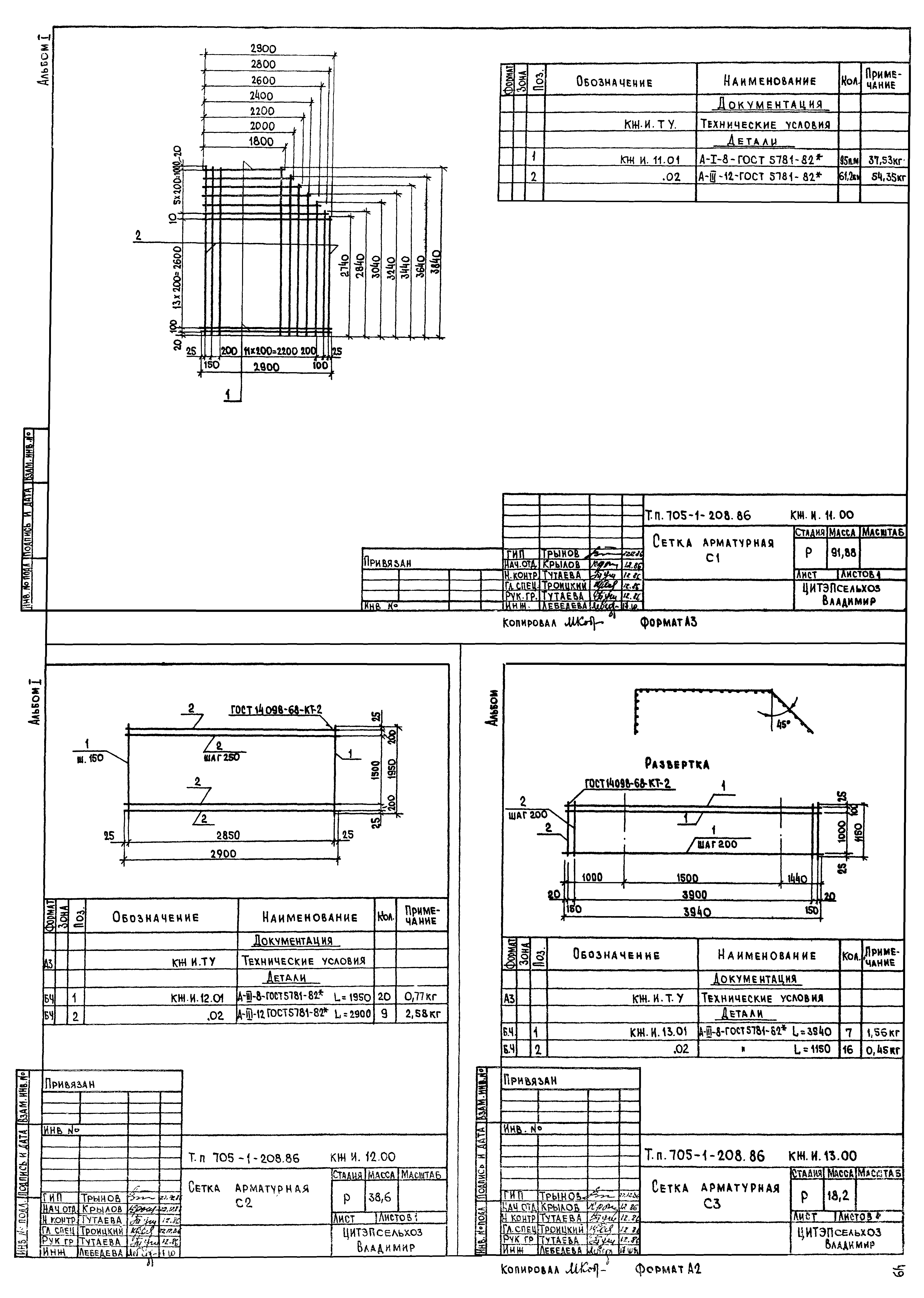
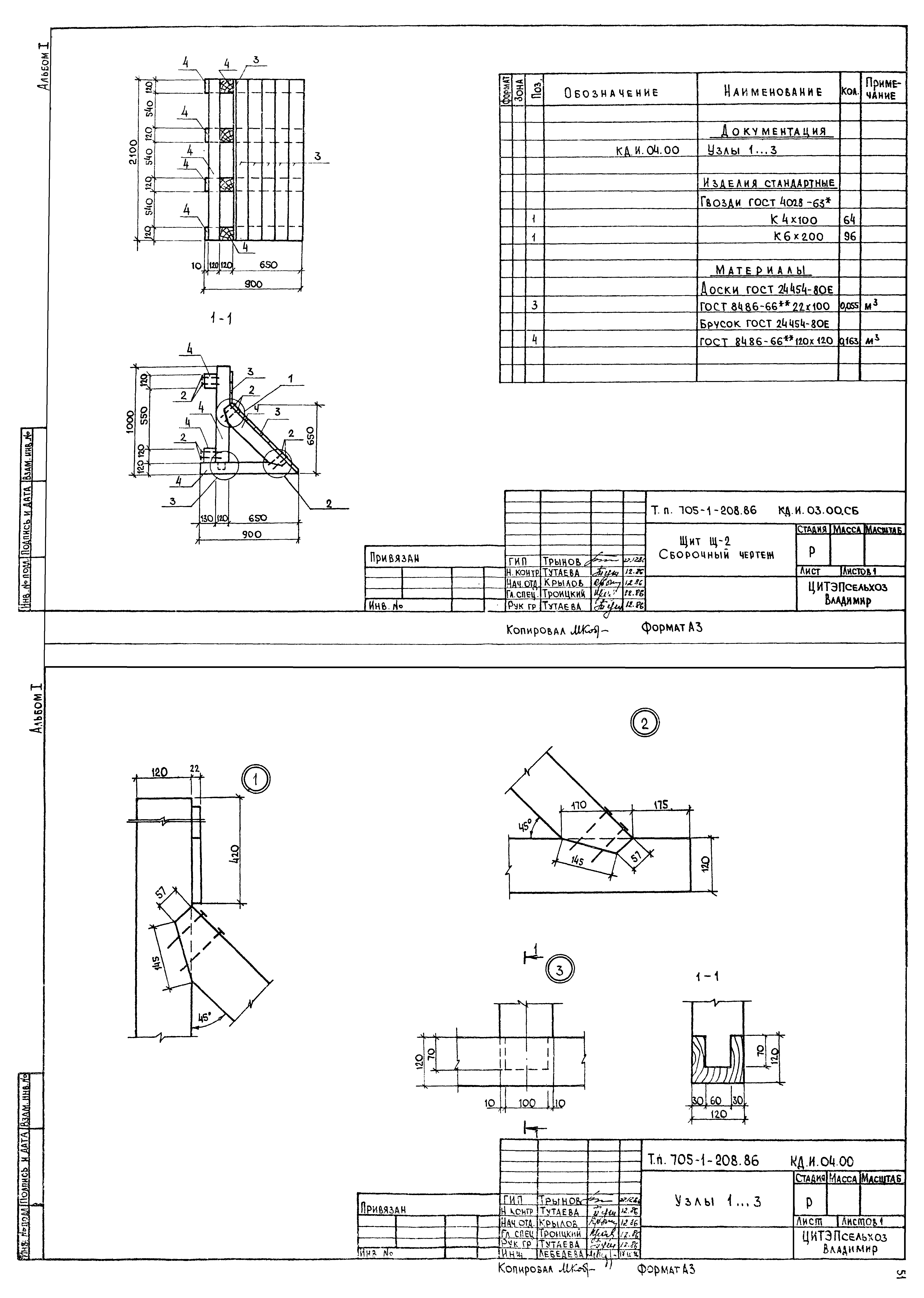
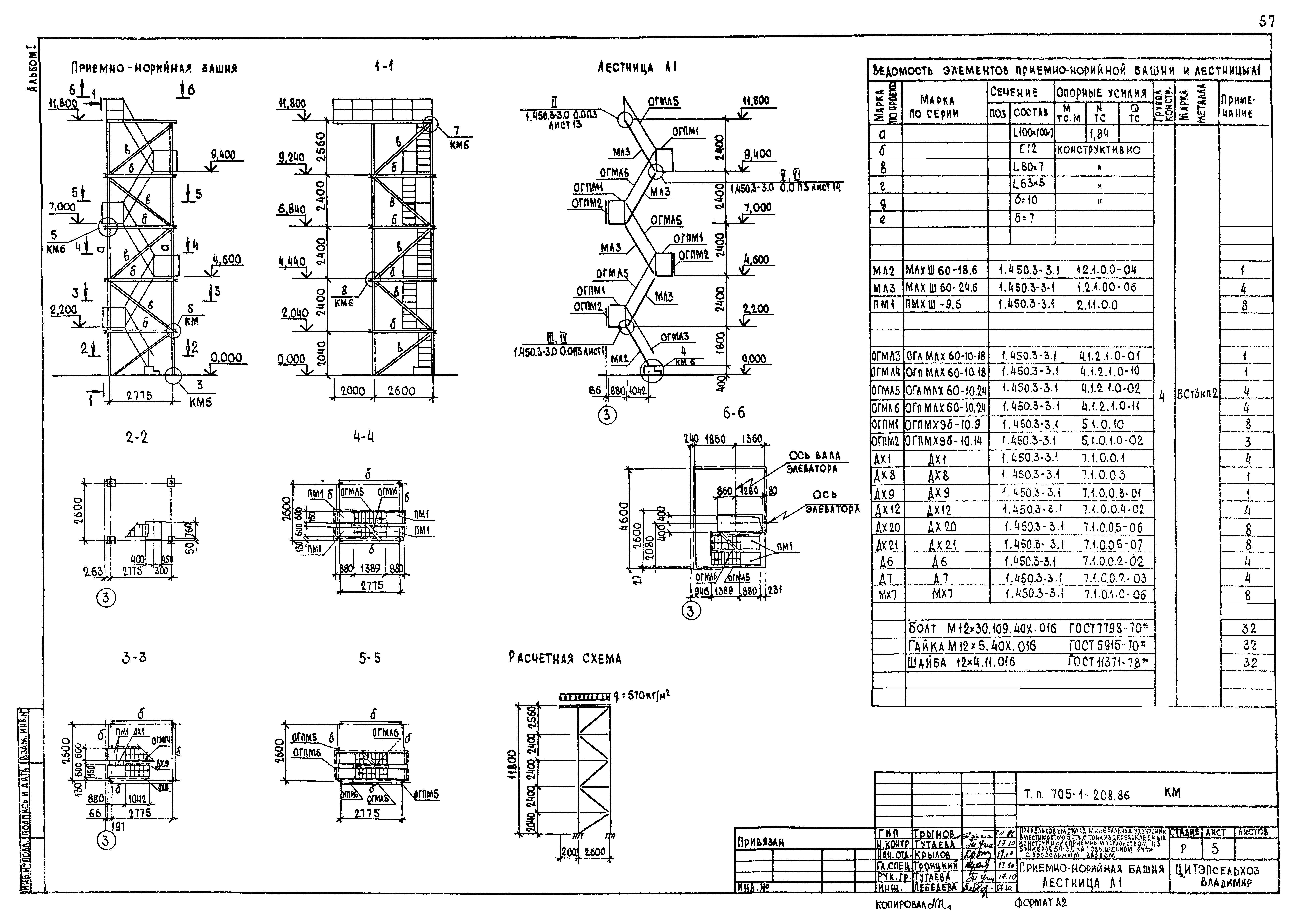
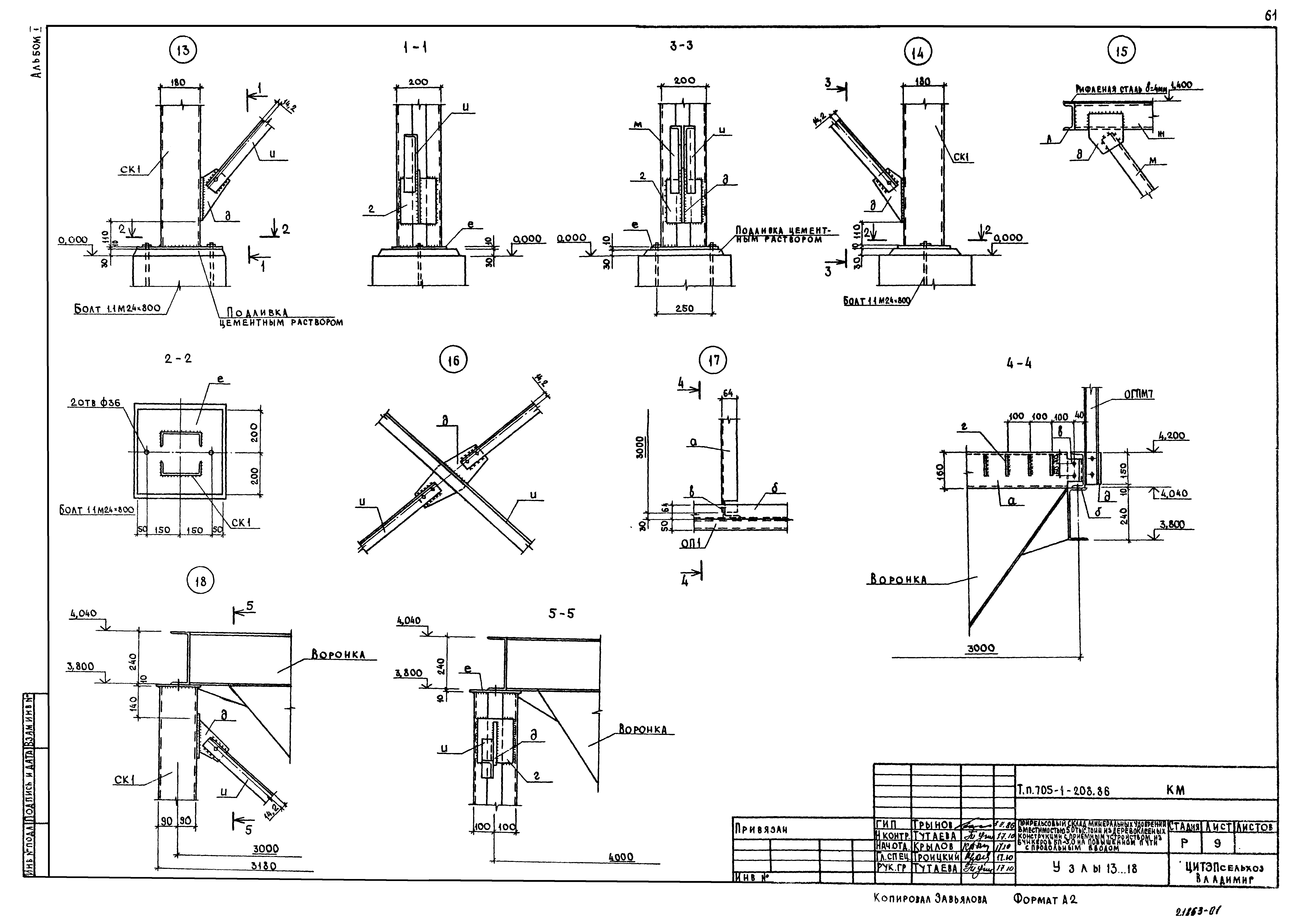
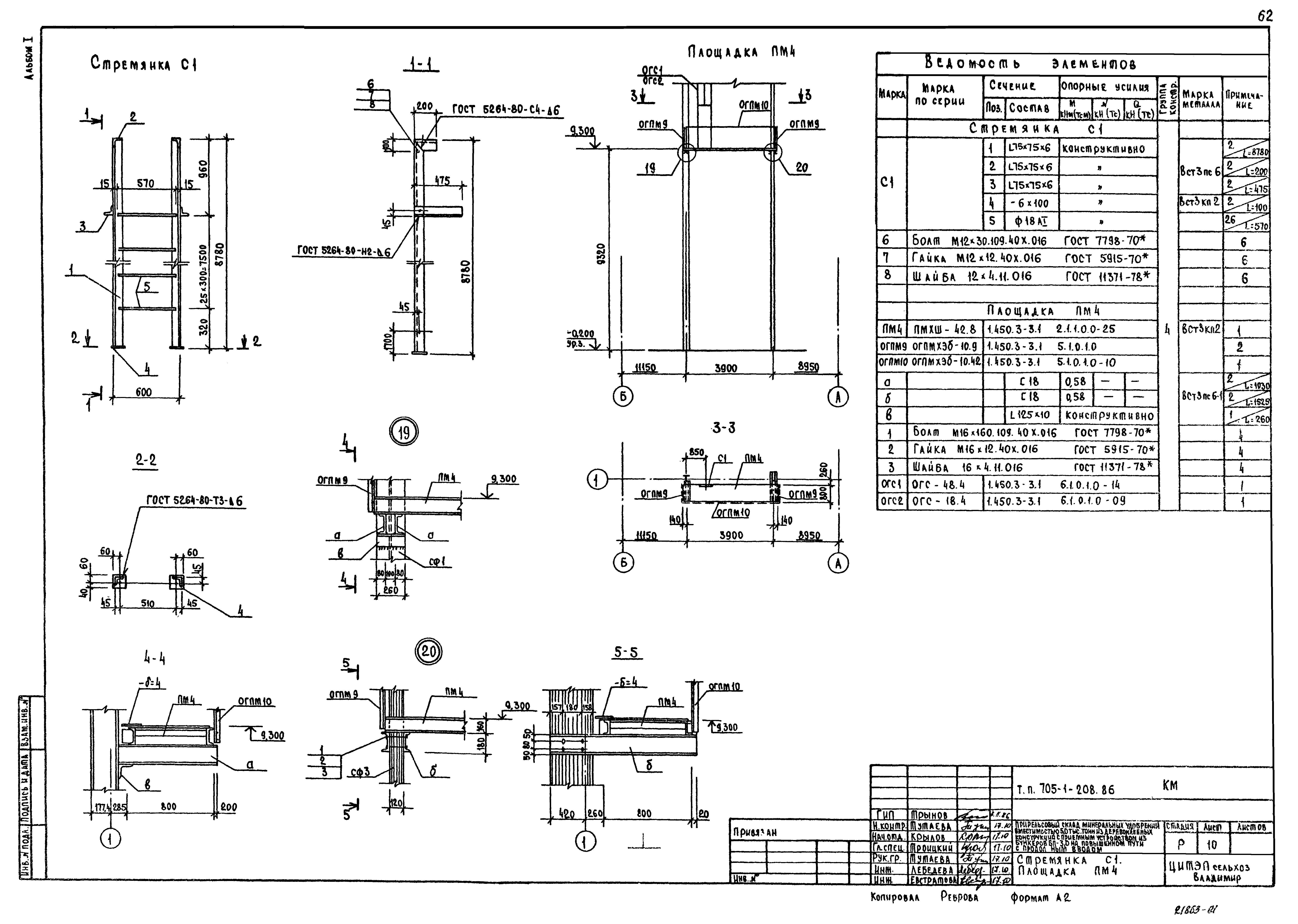
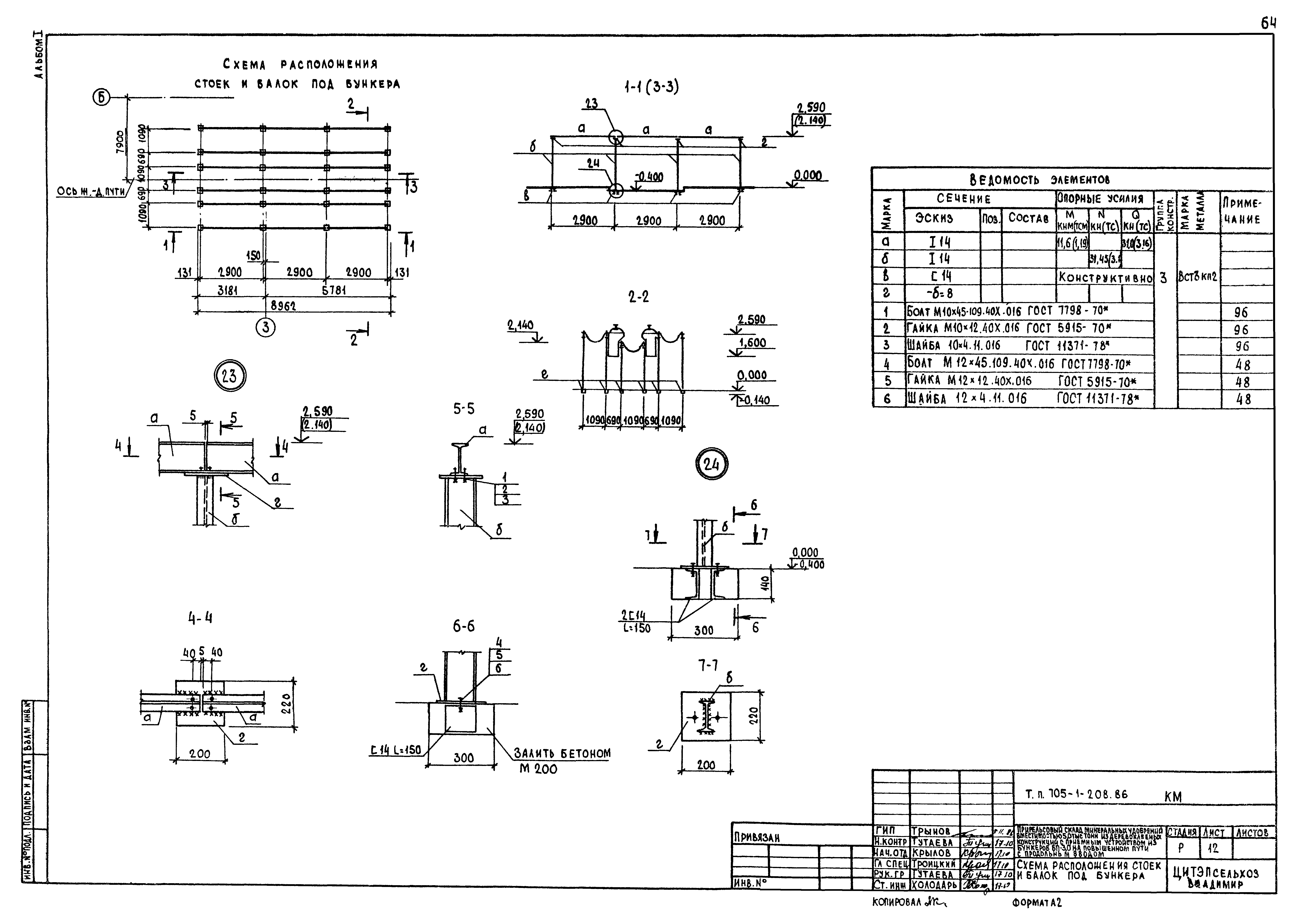
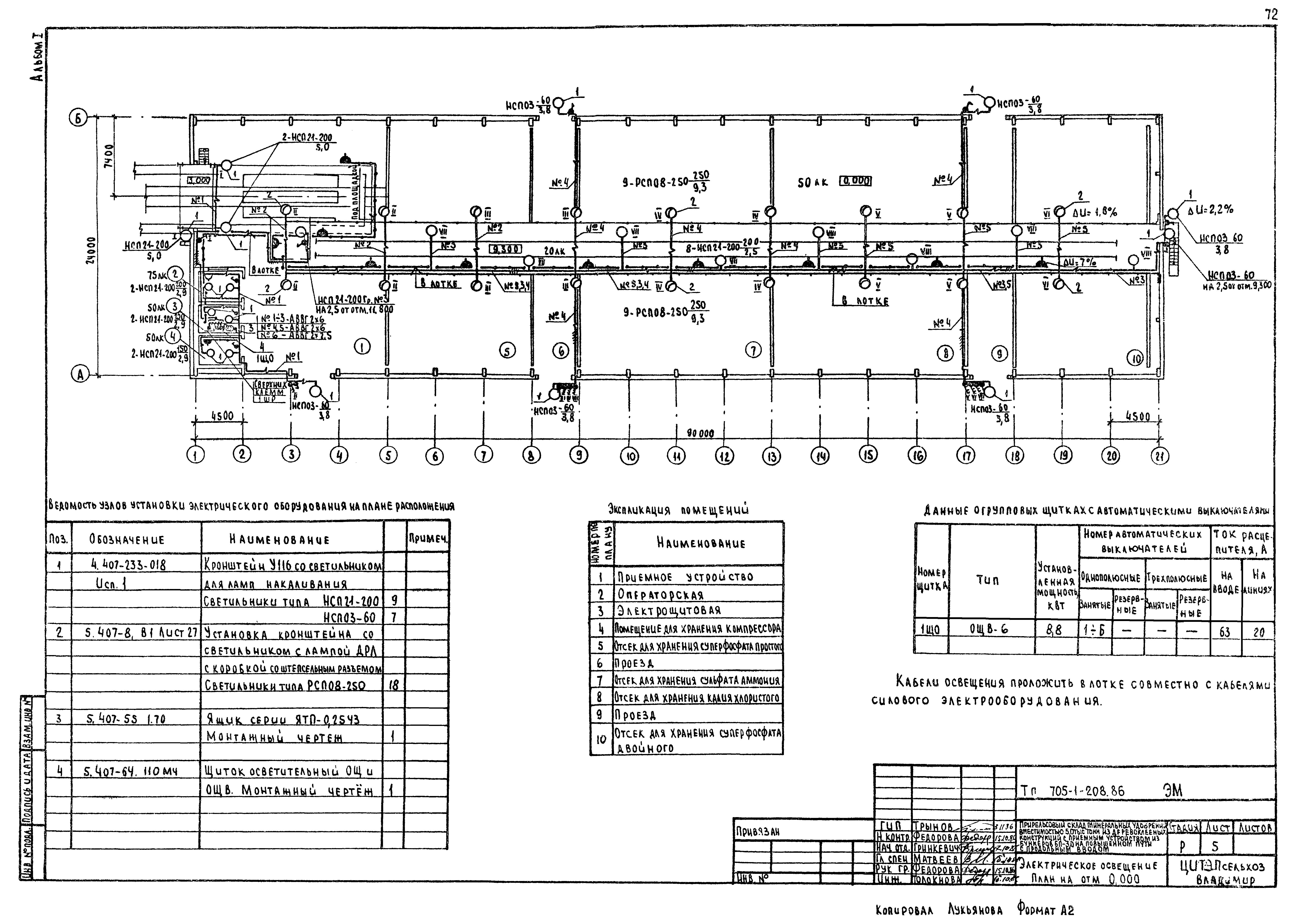
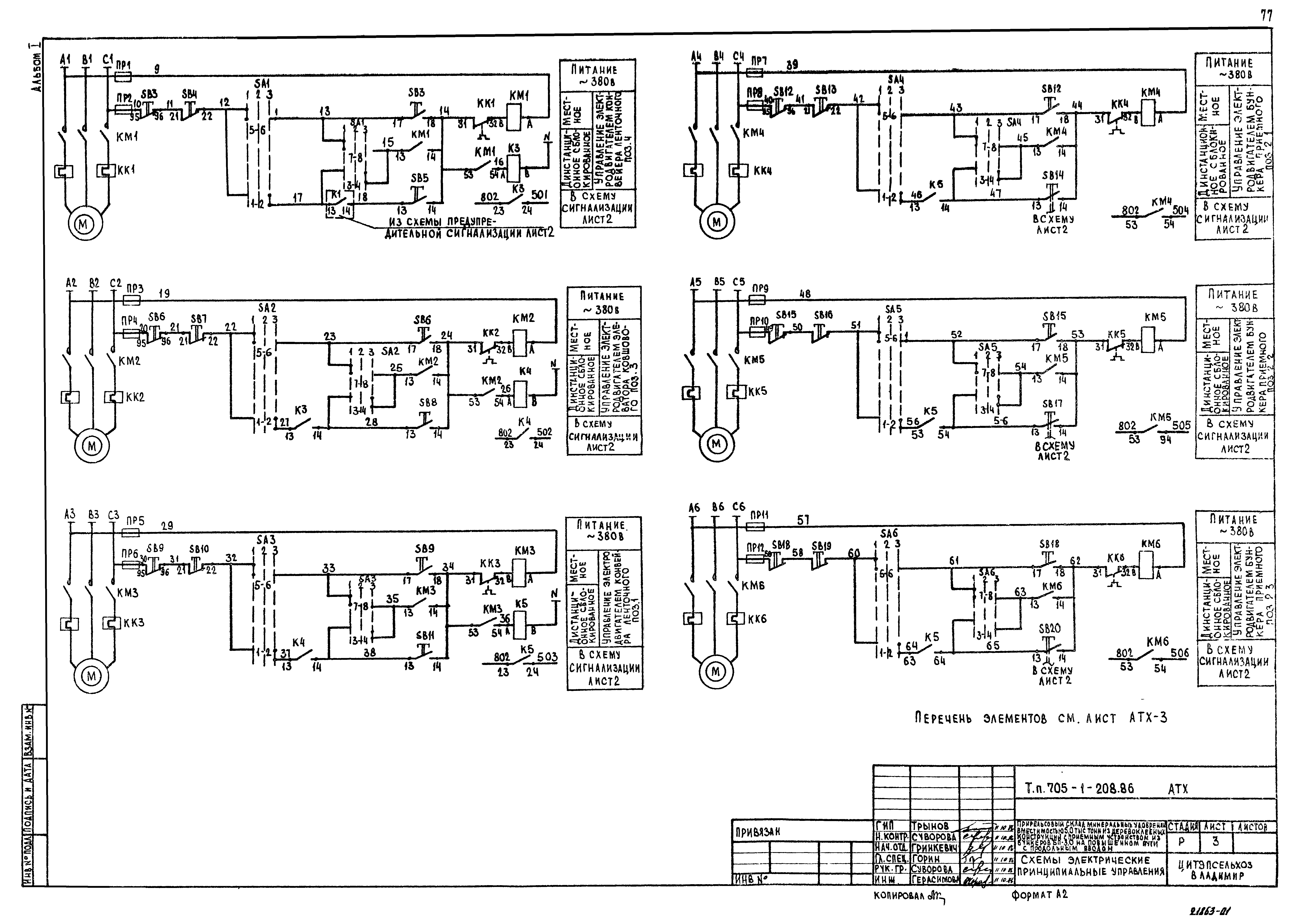
| Оглавление: | ТП 705-1-208.86 Содержание альбома ТП 705-1-208.86-ПЗ-1÷6 Пояснительная записка ТП 705-1-208.86-ТХ-1 Общие данные. Разрезы 1-1;2-2;3-3 ТП 705-1-208.86-ТХ-2 План на отм. 0.000 ТП 705-1-208.86-ТХ-3 Конвейер ленточный КЛ-1. План 4-4 ТП 705-1-208.86-ТХ-4 Схема конвейера КЛ-1. Экспликация оборудования ТП 705-1-208.86-ТХ-5 Конвейер ленточный КЛ-2. План 5-5 ТП 705-1-208.86-ТХ-6 Схема конвейера. Экспликация оборудования ТП 705-1-208.86-ТХ-7 Элеватор ЦГ-650. Общий вид ТП 705-1-208.86-ТХ-8 Воздухоснабжение ТП 705-1-208.86-ТХН-01 Станина. Эскизный чертеж общего вида ТП 705-1-208.86-ТХН-02 Течка. Эскизный чертеж общего вида ТП 705-1-208.86-ТХН-03 Воронка головная. Эскизный чертеж общего вида ТП 705-1-208.86-ТХН-04 Воронка направляющая. Эскизный чертеж общего вида ТП 705-1-208.86-ТХН-05 Лоток направляющий. Эскизный чертеж общего вида ТП 705-1-208.86-ТХН-06 Лоток. Эскизный чертеж общего вида ТП 705-1-208.86-ТХН-07 Бункер приемный. Эскизный чертеж общего вида ТП 705-1-208.86-ТХН-08 Рама роликоопор Р-1. Эскизный чертеж общего вида ТП 705-1-208.86-ТХН-09 Рама роликоопор Р-2. Эскизный чертеж общего вида ТП 705-1-208.86-АС-1 Общие данные (начало) ТП 705-1-208.86-АС-2 Общие данные (окончание) ТП 705-1-208.86-АС-3 План на отм. 0.000. Разрез 1-1 ТП 705-1-208.86-АС-4 План на отм. 9.300. Разрез 2-2 ТП 705-1-208.86-АС-5 Фасады 1-21,21-1,А-Б,Б-А ТП 705-1-208.86-АС-6 Узлы 1...4 ТП 705-1-208.86-АС-7 Схема расположения фундаментов ТП 705-1-208.86-АС-8 Фундаменты ФМ1...ФМ6 ТП 705-1-208.86-АС-9 Фундаменты ФМ7...ФМ11 ТП 705-1-208.86-АС-10 Схема расположения арок, распорок ТП 705-1-208.86-АС-11 Схема расположения стоек и ригелей по оси 1 прогонов и элементов перекрытия помещений 2,3,4 ТП 705-1-208.86-АС-12 Схема расположения стоек и ригелей по оси 21 ТП 705-1-208.86-АС-13 Узлы 9...15 ТП 705-1-208.86-АС-14 Схема расположения прогонов кровли. Фрагмент 1. Узлы 16...19 ТП 705-1-208.86-АС-15 Схема расположения элементов кровли по осям А и Б ТП 705-1-208.86-АС-16 Схема расположения элементов стен по осям 1,21 и навеса над входами ТП 705-1-208.86-АС-17 Схема расположения стеновых панелей, элементов пола и деревянных щитов ТП 705-1-208.86-АС-18 Схема армирования подготовки пола. Узлы ТП 705-1-208.86-АС-19 Площадка на отм. 9.300 ТП 705-1-208.86-АС-20 Узлы 24...26 ТП 705-1-208.86-АС-21 Схемы расположения фундаментов под оборудование и элементов ограждения ТП 705-1-208.86-АС-22 Фундаменты ФОМ18...ФОМ20 ТП 705-1-208.86-КЖ.И.00.00.ТУ Технические условия ТП 705-1-208.86-КЖ.И.01.00 СБ Каркас пространственный КП1. Сборочный чертеж ТП 705-1-208.86-КЖ.И.02.00 Каркас плоский (КР1,КР2) ТП 705-1-208.86-КЖ.И.03.00 Изделие закладное МН1 ТП 705-1-208.86-КЖ.И.04.00 Изделие закладное МН2 ТП 705-1-208.86-КЖ.И.05.00 Панель стеновая (ПС1...ПС6) ТП 705-1-208.86-КЖ.И.06.00 Прогоны ПК9,ПК-10,ПК-11 ТП 705-1-208.86-КЖ.И.07.00 Рама Р1 ТП 705-1-208.86-КЖ.И.08.00 СБ Каркас пространственный КП4. Сборочный чертеж ТП 705-1-208.86-КЖ.И.09.00 Каркас плоский (КР3,КР4) ТП 705-1-208.86-КЖ.И.10.00 Изделие закладное МН1 ТП 705-1-208.86-КЖ.И.11.00 Сетка арматурная С1 ТП 705-1-208.86-КЖ.И.12.00 Сетка арматурная С2 ТП 705-1-208.86-КЖ.И.13.00 Сетка арматурная С3 ТП 705-1-208.86-КД.И.01.00 Изделие соединительное (СД1,СД2) ТП 705-1-208.86-КД.И.02.00 СБ Щит Щ1. Сборочный чертеж ТП 705-1-208.86-КД.И.03.00 СБ Щит Щ2. Сборочный чертеж ТП 705-1-208.86-КД.И.04.00 Узлы 1...3 ТП 705-1-208.86-КД.И.05.00 Изделие соединительное (СД3,СД4) ТП 705-1-208.86-КМ-1 Общие данные (начало) ТП 705-1-208.86-КМ-2 Общие данные (продолжение) ТП 705-1-208.86-КМ-3 Общие данные (окончание) ТП 705-1-208.86-КМ-4 Площадка ПМ1 ТП 705-1-208.86-КМ-5 Приемно-норийная башня. Лестница Л1 ТП 705-1-208.86-КМ-6 Узлы 3...8 ТП 705-1-208.86-КМ-7 Площадка ПМ2 ТП 705-1-208.86-КМ-8 Площадка ПМ3. Марш лестничный МЛ4 ТП 705-1-208.86-КМ-9 Узлы 13...18 ТП 705-1-208.86-КМ-10 Стремянка С1. Площадка ПМ4 ТП 705-1-208.86-КМ-11 Лестница Л2 ТП 705-1-208.86-КМ-12 Схема расположения стоек и балок под бункера ТП 705-1-208.86-ОВ-1 Общие данные ТП 705-1-208.86-ОВ-2 План на отм. 0.000. Схемы систем В1-В5,ВЕ1-ВЕ3 ТП 705-1-208.86-ОВ-3 Установки систем В1-В5 ТП 705-1-208.86-ЭМ-1 Общие данные ТП 705-1-208.86-ЭМ-2 Силовое электрооборудование. План на отм. 0.000 ТП 705-1-208.86-ЭМ-3 Силовое электрооборудование. Принципиальная расчетная схема. Начало ТП 705-1-208.86-ЭМ-4 Силовое электрооборудование. Принципиальная расчетная схема. Окончание ТП 705-1-208.86-ЭМ-5 Электрическое освещение. План на отм. 0.000 ТП 705-1-208.86-ЭМ-6 Молниезащита ТП 705-1-208.86-ЭМ.ВИ Ведомость электромонтажных конструкций подлежащих изготовлению в МЭЗ ТП 705-1-208.86-ЭМ.ВИМ Ведомость изделий и материалов для изготовления электромонтажных конструкций и деталей в МЭЗ ТП 705-1-208.86-ЭМ.ВР Ведомость объемов строительных и монтажных работ по чертежам ТП 705-1-208.86-АТХ-1 Общие данные ТП 705-1-208.86-АТХ-2 Схемы предупредительной сигнализации, сигнализации, питания ТП 705-1-208.86-АТХ-3 Схемы электрические принципиальные управления ТП 705-1-208.86-АТХ-4 Схема внешних проводок. План расположения ТП 705-1-208.86-АТХ5.ВО Щит сигнализации. Чертеж общего вида ТП 705-1-208.86-АТХ5.ЭЧ Щит сигнализации. Схема электрическая соединений ТП 705-1-208.86-АТХ5 Щит сигнализации. Технические данные аппарата ТП 705-1-208.86-АТХ5.ТБ Щит сигнализации. Таблица перечня надписей |
| Разработан: | Проектный институт ЦИТЭПсельхоз |
| Утверждён: | 23.10.1986 Госагропром СССР (USSR Gosagroprom 23-ЭТ) |
| Издан: | ЦИТП Госстроя СССР (CITP, Gosstroy (USSR) 1987 г. ) |



















































































